Скачать Серия 1.450-2 Выпуск 2. Стальные конструкцииДата актуализации: 01.01.2021
|
| Обозначение: | Серия 1.450-2 |
| Обозначение англ: | Series 1.450-2 |
| Статус: | не действует |
| Название рус.: | Выпуск 2. Стальные конструкции |
| Дата добавления в базу: | 01.09.2013 |
| Дата актуализации: | 01.01.2021 |
| Дата окончания срока действия: | 01.09.1986 |
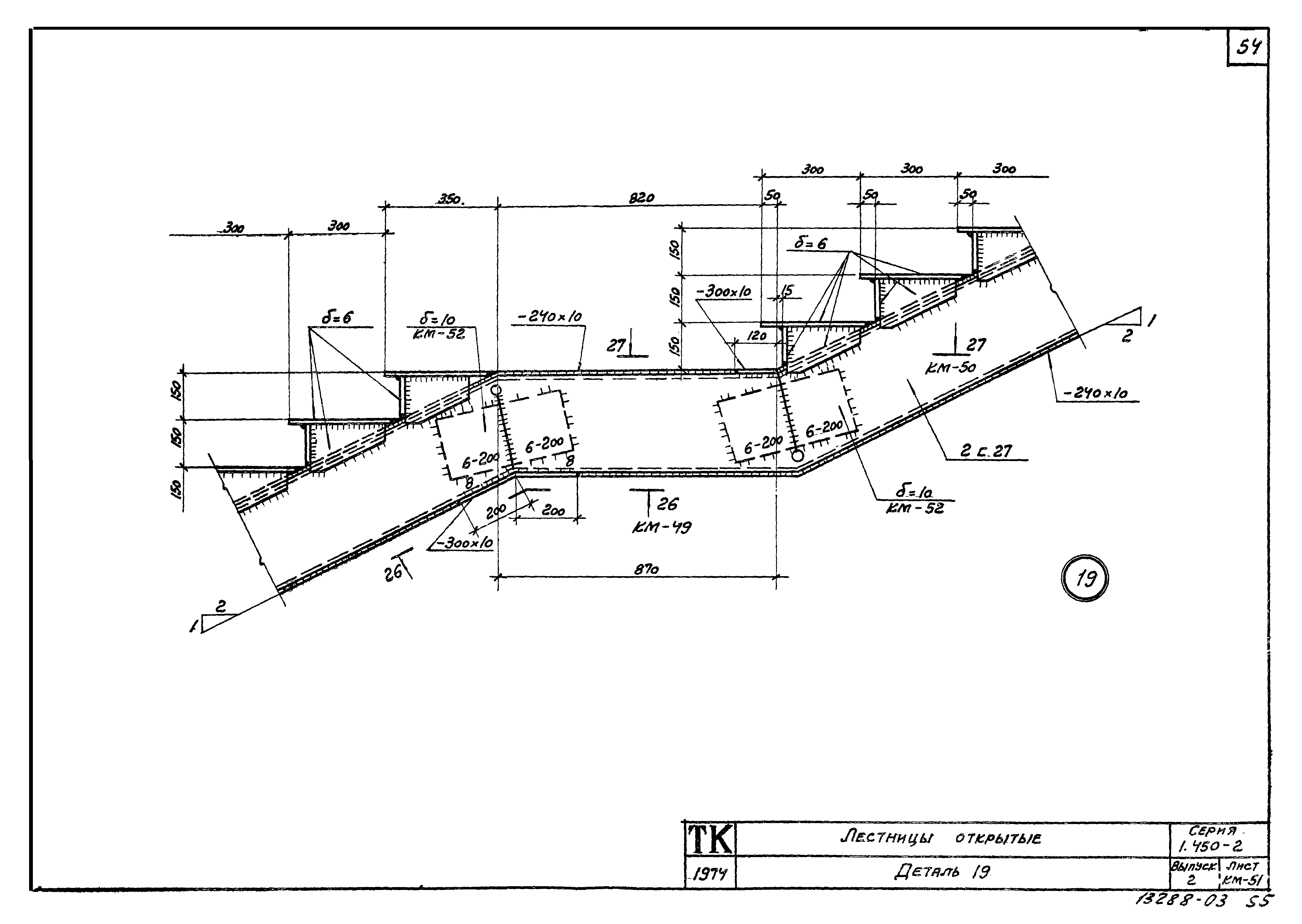
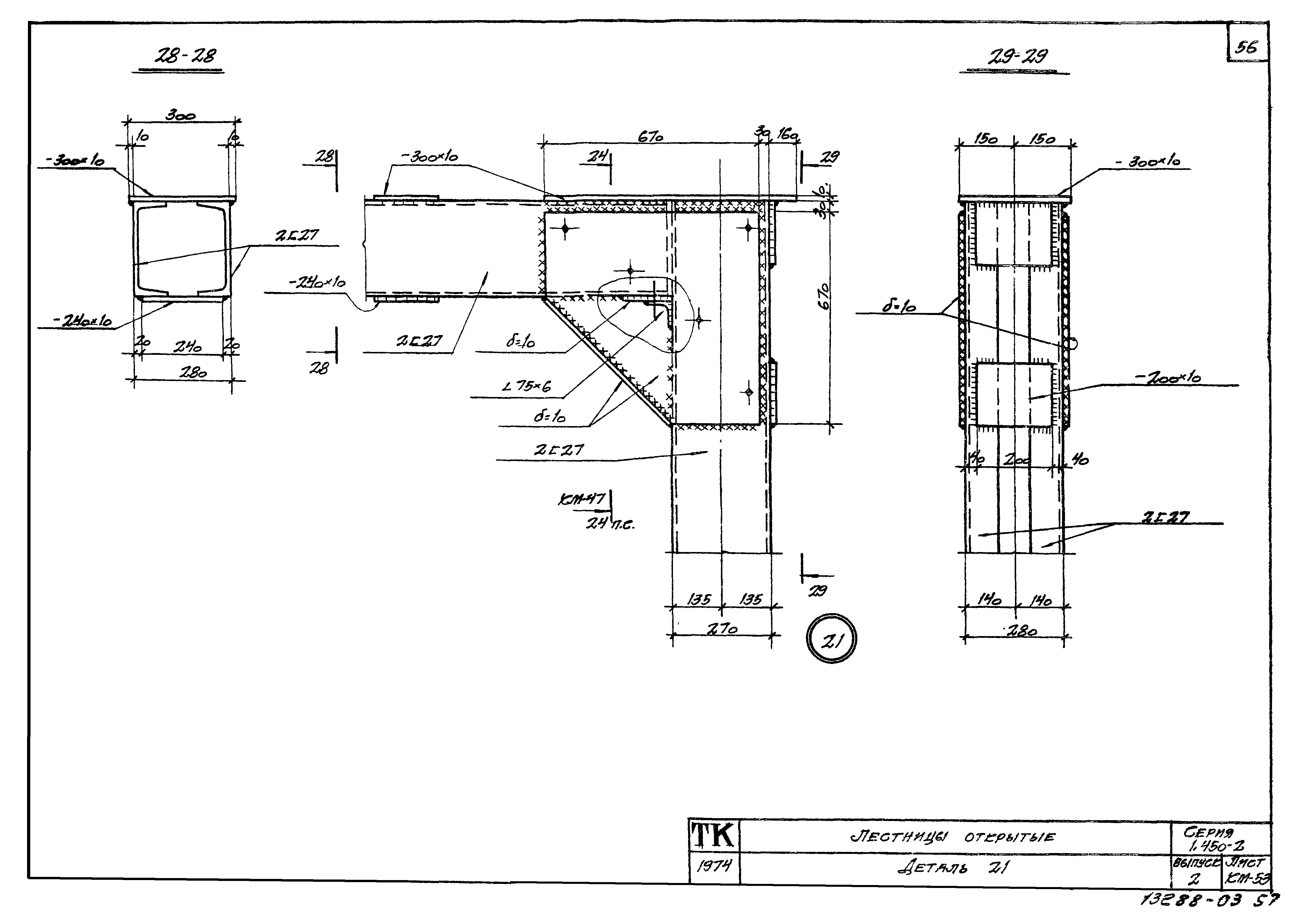
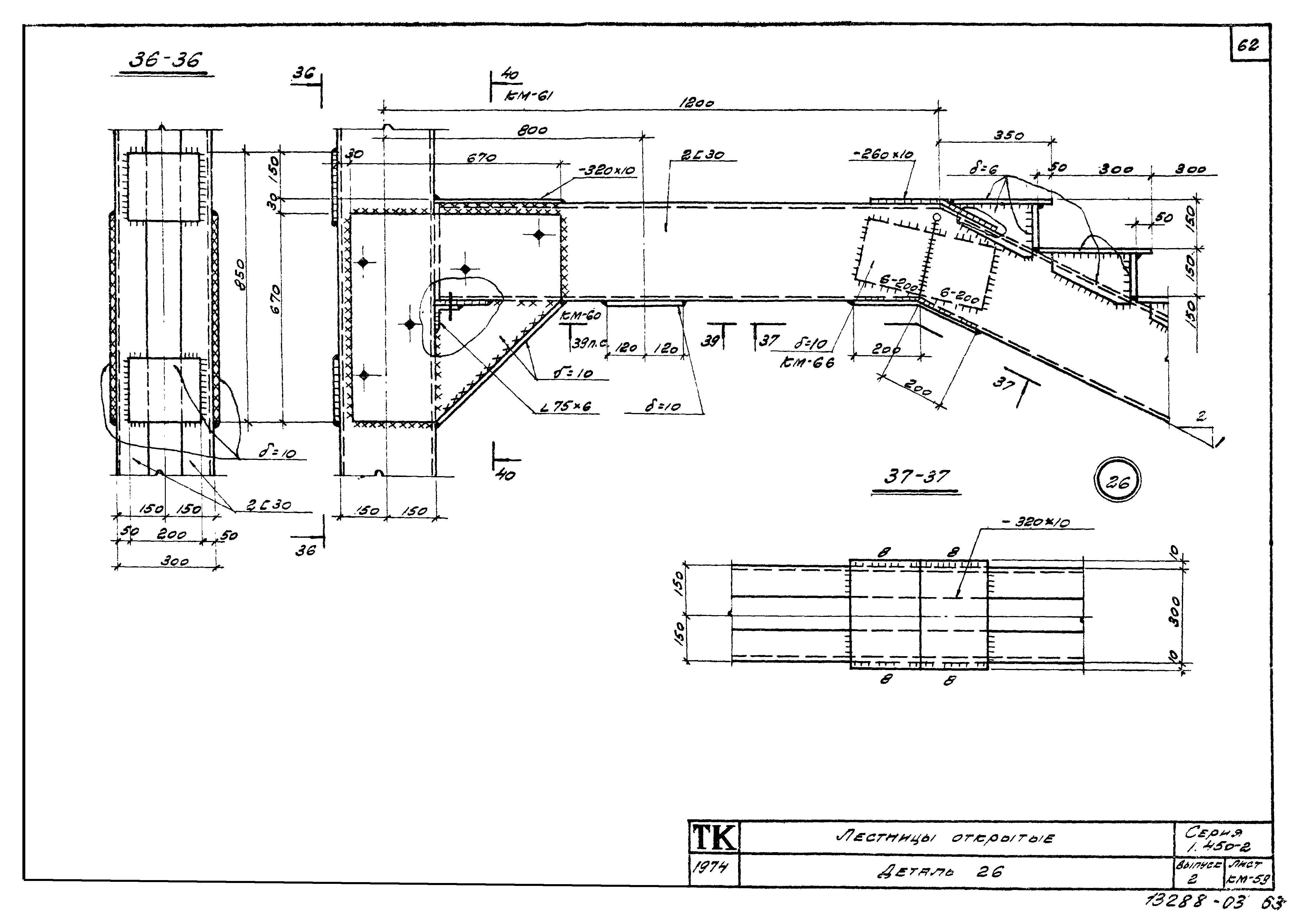
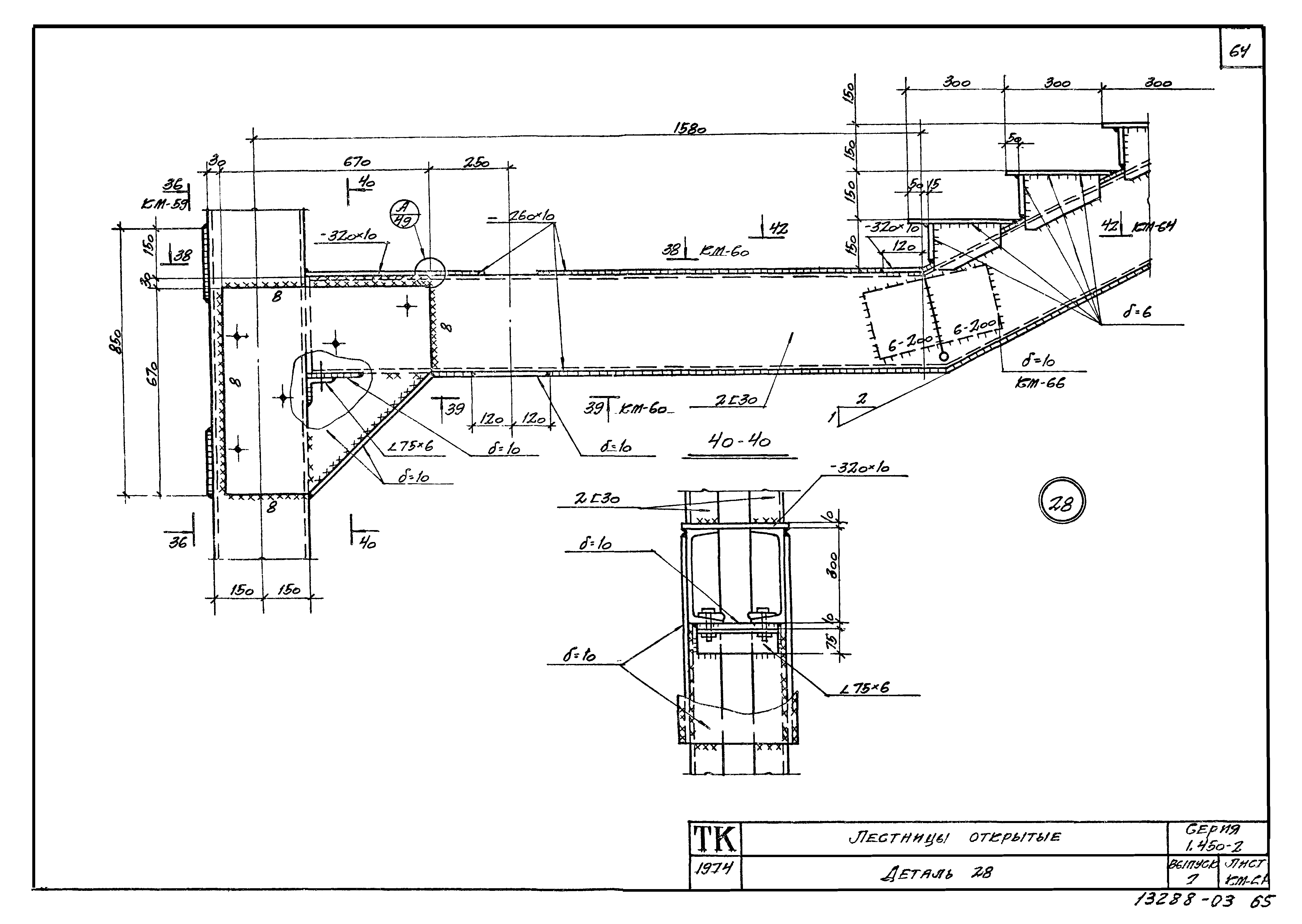
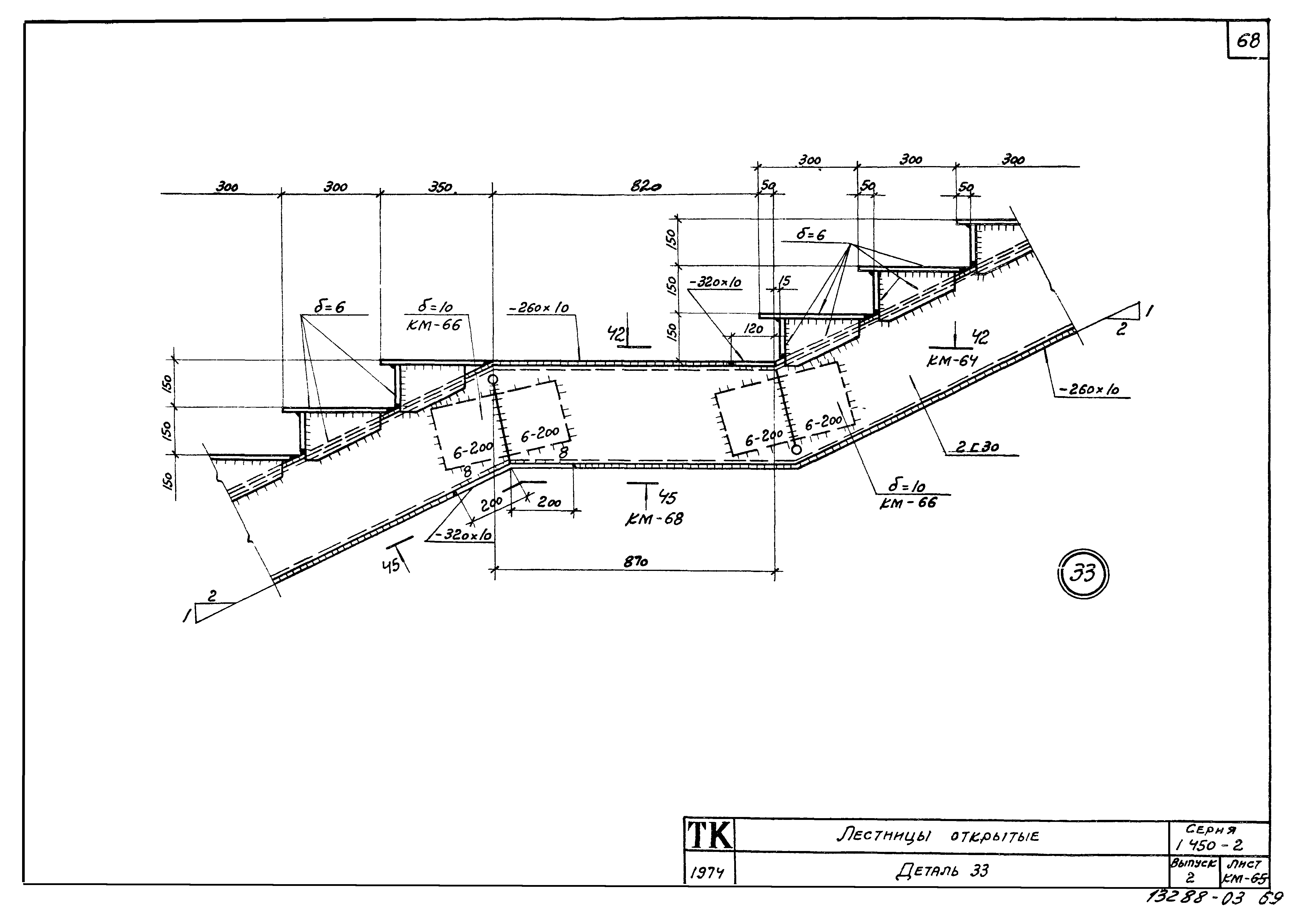
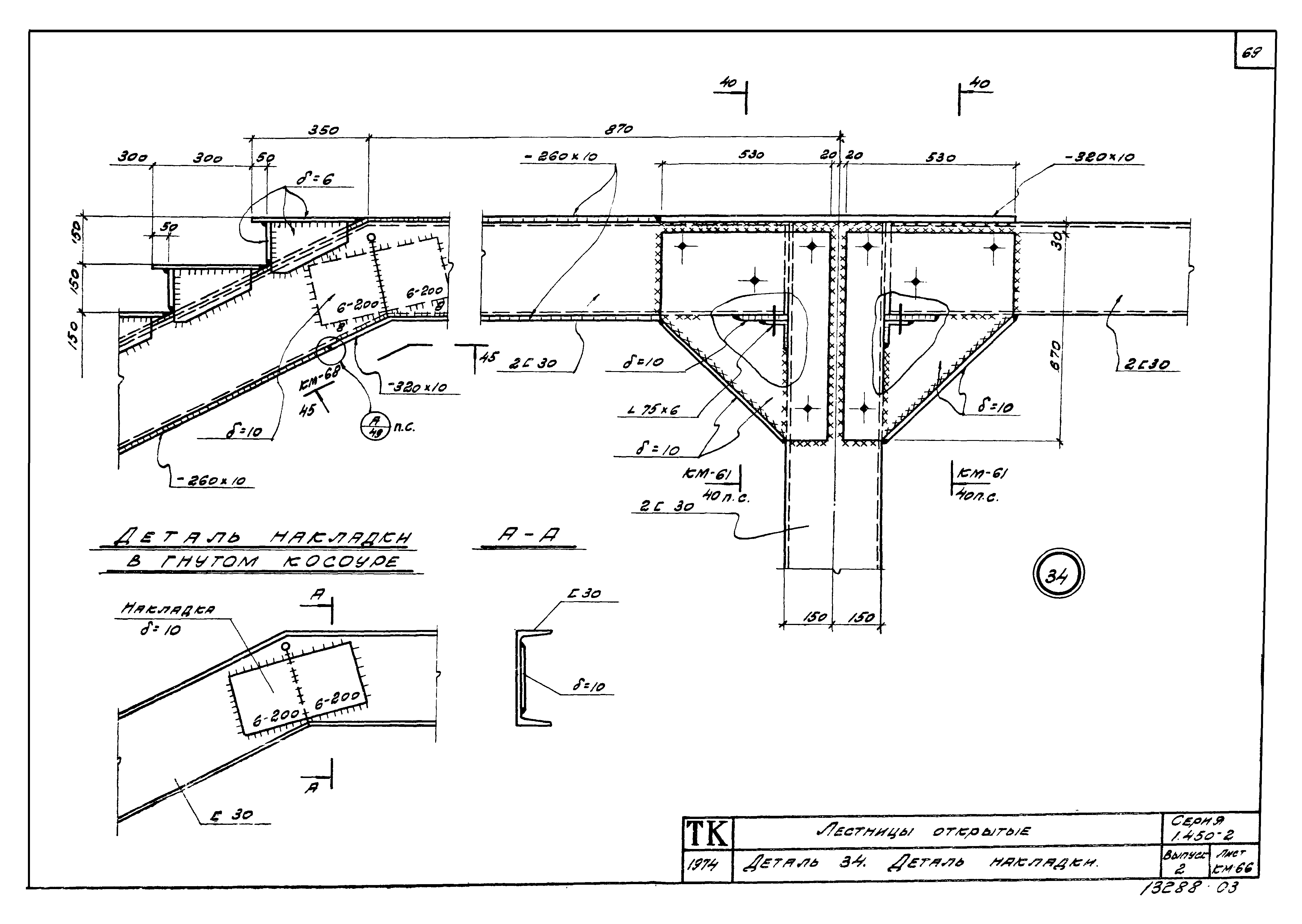
| Оглавление: | 1.450-2 Титульный лист 1.450-2-КМ-С Содержание 1.450-2-КМ-СП Содержание. Пояснительная записка 1.450-2-КМ-1 Лестница №1. Маркировочная схема 1.450-2-КМ-2 Лестница №2. Маркировочная схема 1.450-2-КМ-3 Лестница №3. Маркировочная схема 1.450-2-КМ-4 Лестница №4. Маркировочная схема 1.450-2-КМ-5 Лестница №5. Маркировочная схема 1.450-2-КМ-6 Лестница №6. Маркировочная схема 1.450-2-КМ-7 Лестница №7. Маркировочная схема 1.450-2-КМ-8 Лестница №8. Маркировочная схема 1.450-2-КМ-9 Лестница №9. Маркировочная схема 1.450-2-КМ-10 Лестница №10. Маркировочная схема 1.450-2-КМ-11 Лестница №11. Маркировочная схема 1.450-2-КМ-12 Лестница №12. Маркировочная схема 1.450-2-КМ-13 Лестница №13. Маркировочная схема 1.450-2-КМ-14 Лестница №14. Маркировочная схема 1.450-2-КМ-15 Детали 1,2 1.450-2-КМ-16 Деталь 3 1.450-2-КМ-17 Деталь 4 1.450-2-КМ-18 Разрезы с 4-4 по 7-7 1.450-2-КМ-19 Детали 5,6 1.450-2-КМ-20 Деталь 7 1.450-2-КМ-21 Деталь 8 1.450-2-КМ-22 Разрезы с 11-11 по 14-14 1.450-2-КМ-23 Вариант деталей 3 и 7 1.450-2-КМ-24 Рама лестницы РЛ1 1.450-2-КМ-25 Рама лестницы РЛ2 1.450-2-КМ-26 Рама лестницы РЛ3 1.450-2-КМ-27 Рама лестницы РЛ4 1.450-2-КМ-28 Рама лестниц РЛ5 и РЛ6 1.450-2-КМ-29 Рама лестниц РЛ7 и РЛ8 1.450-2-КМ-30 Рама лестницы РЛ9 1.450-2-КМ-31 Рама лестницы РЛ10 1.450-2-КМ-32 Рама лестницы РЛ11 1.450-2-КМ-33 Рама лестницы РЛ12 1.450-2-КМ-34 Рама лестницы РЛ13 1.450-2-КМ-35 Рама лестницы РЛ14 1.450-2-КМ-36 Рама лестниц РЛ15 и РЛ16 1.450-2-КМ-37 Рама лестниц РЛ17 и РЛ18 1.450-2-КМ-38 Рама лестницы РЛ19 1.450-2-КМ-39 Рама лестниц РЛ20 и РЛ21 1.450-2-КМ-40 Рама лестниц РЛ22 и РЛ23 1.450-2-КМ-41 Рама лестницы РЛ24 1.450-2-КМ-42 Деталь 9 1.450-2-КМ-43 Деталь 10 1.450-2-КМ-44 Деталь 11 1.450-2-КМ-45 Деталь 12 1.450-2-КМ-46 Деталь 13 1.450-2-КМ-47 Деталь 14 1.450-2-КМ-48 Деталь 15,16 1.450-2-КМ-49 Деталь 17 1.450-2-КМ-50 Деталь 18 1.450-2-КМ-51 Деталь 19 1.450-2-КМ-52 Деталь 20. Деталь накладки 1.450-2-КМ-53 Деталь 21 1.450-2-КМ-54 Разрезы 30-30,31-31 1.450-2-КМ-55 Деталь 22 1.450-2-КМ-56 Деталь 23 1.450-2-КМ-57 Деталь 24 1.450-2-КМ-58 Деталь 25 1.450-2-КМ-59 Деталь 26 1.450-2-КМ-60 Деталь 27 1.450-2-КМ-61 Деталь 28 1.450-2-КМ-62 Деталь 29,30 1.450-2-КМ-63 Деталь 31 1.450-2-КМ-64 Деталь 32 1.450-2-КМ-65 Деталь 33 1.450-2-КМ-66 Деталь 34. Деталь накладки 1.450-2-КМ-67 Деталь 35 1.450-2-КМ-68 Деталь 36 1.450-2-КМ-69 Разрезы 47-47,48-48 |
| Разработан: | Промстройпроект |
| Утверждён: | 20.05.1974 Госстрой СССР (Государственный комитет Совета Министров СССР по делам строительства) (USSR Gosstroy ) |









































































