Скачать Серия 1.435-11 Выпуск 1. Часть 1. Рабочие чертежиДата актуализации: 01.01.2021
|
| Обозначение: | Серия 1.435-11 |
| Обозначение англ: | Series 1.435-11 |
| Статус: | не действует |
| Название рус.: | Выпуск 1. Часть 1. Рабочие чертежи |
| Дата добавления в базу: | 01.09.2013 |
| Дата актуализации: | 01.01.2021 |
| Дата окончания срока действия: | 01.12.1984 |
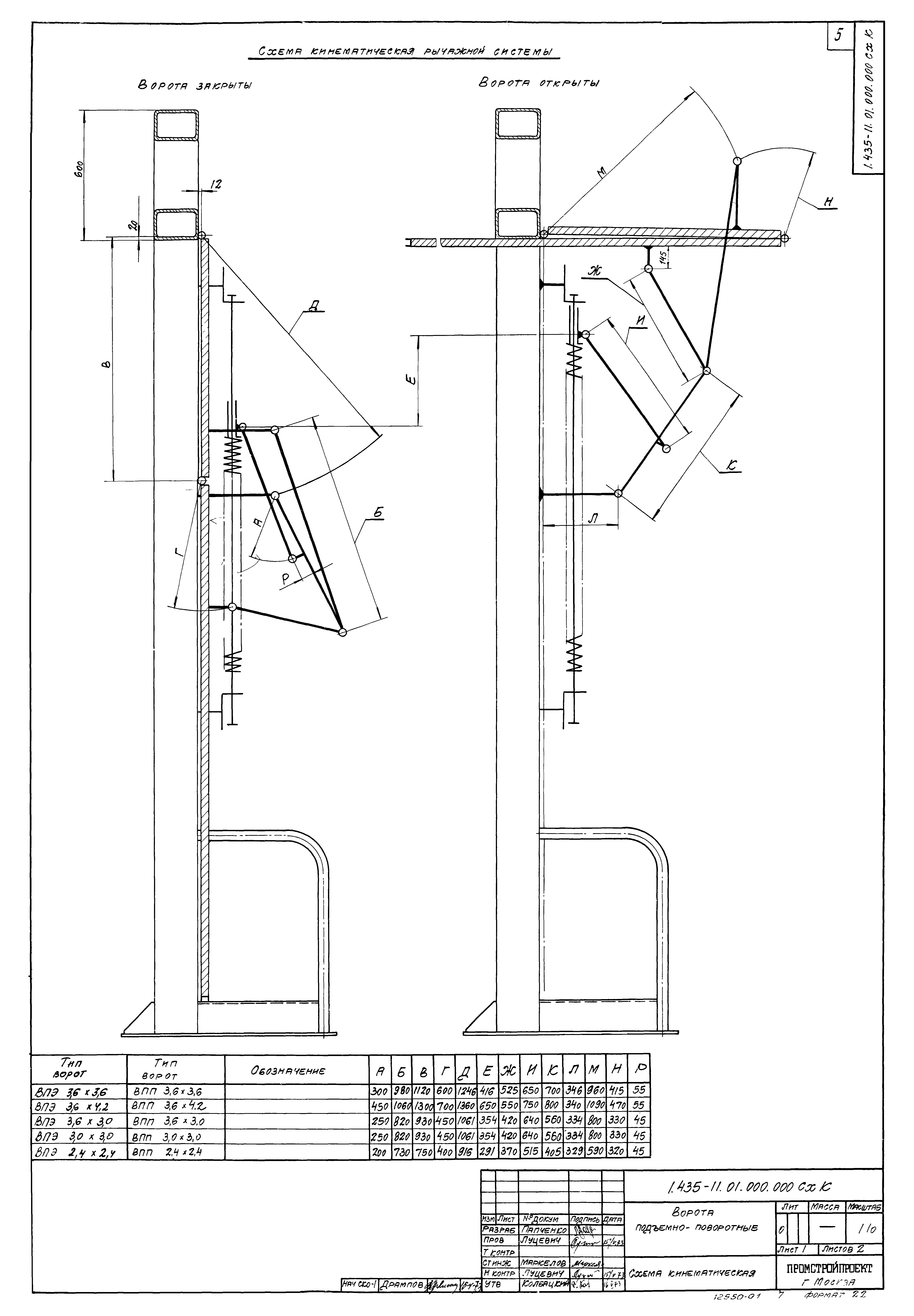
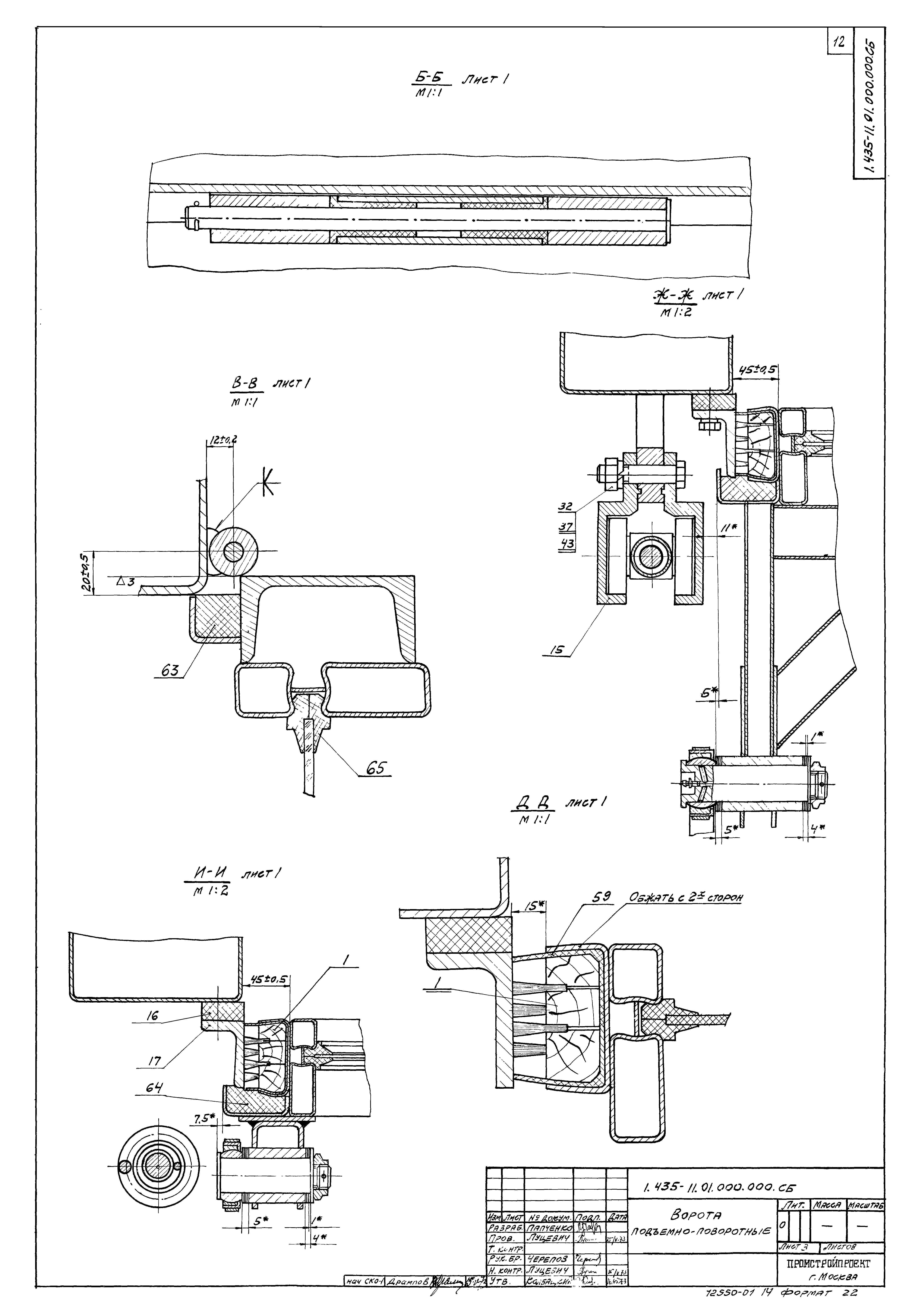
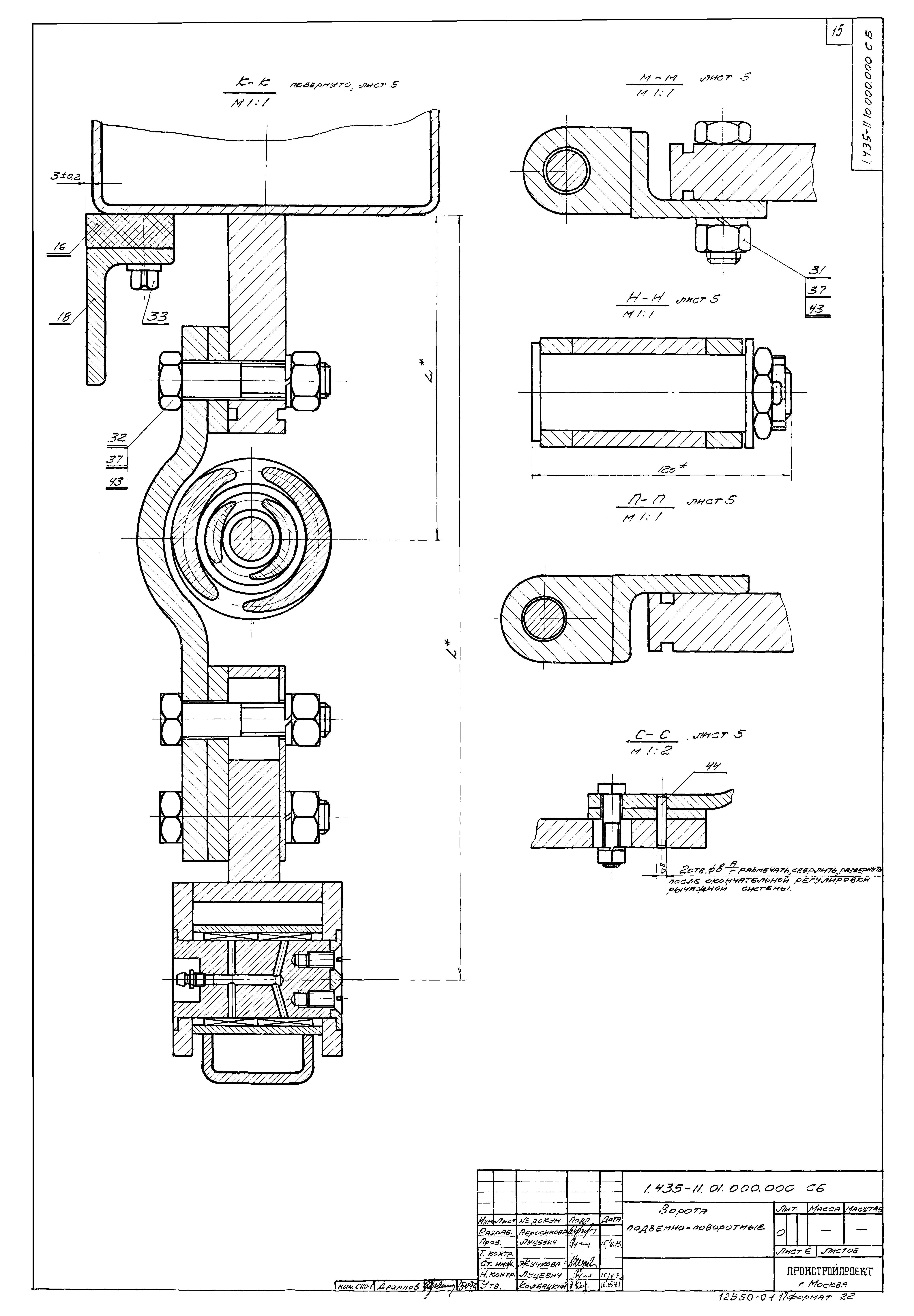
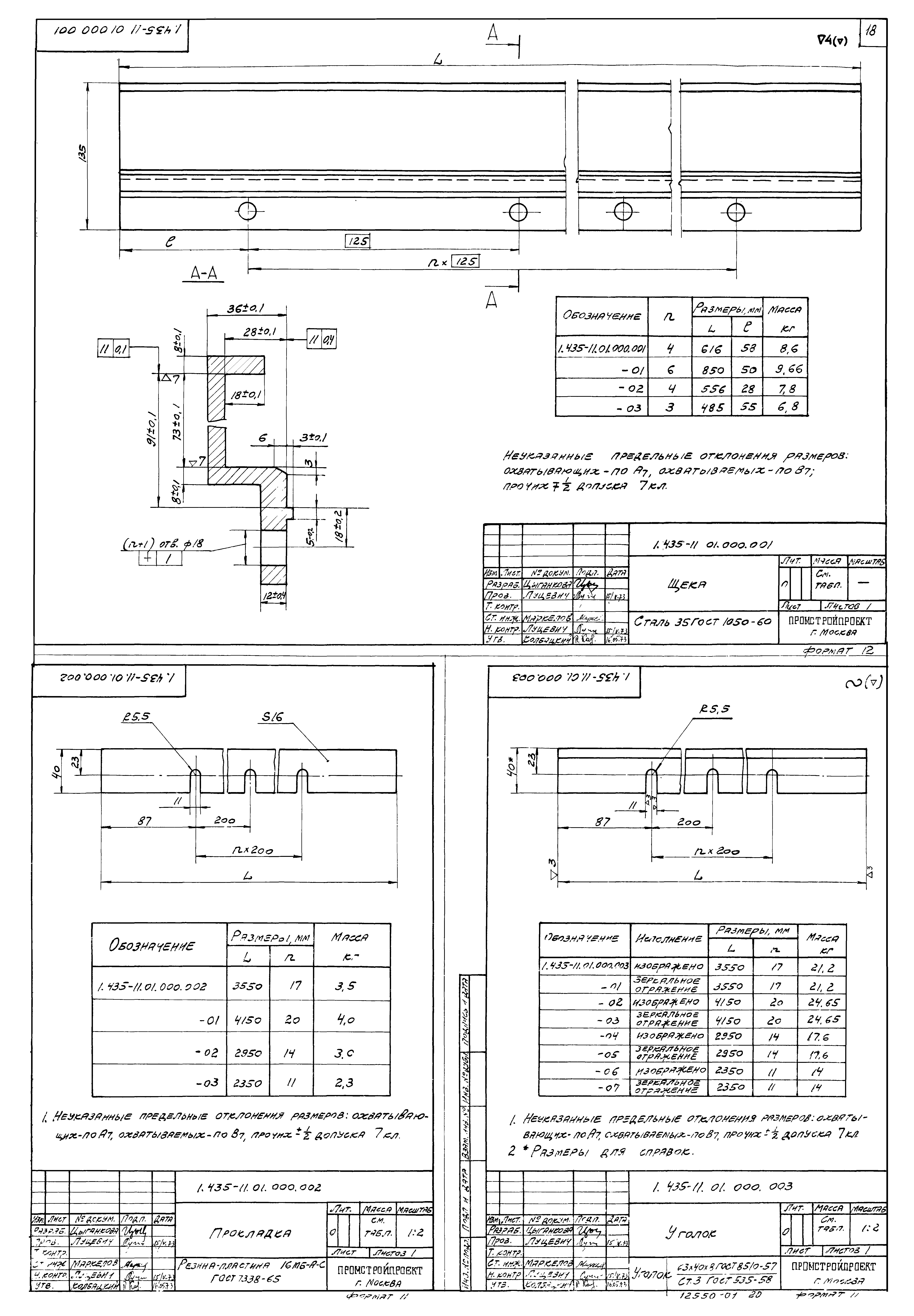
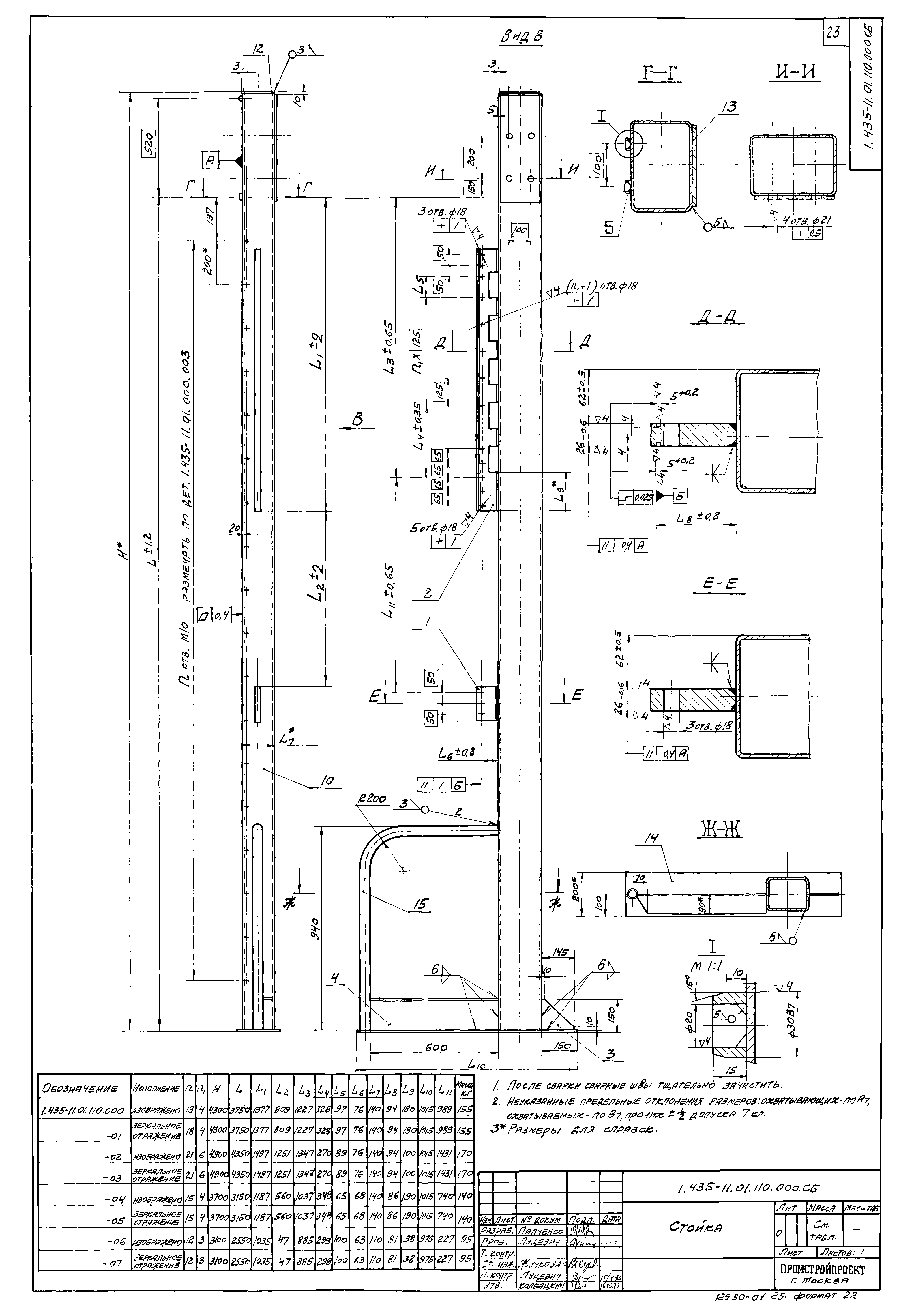
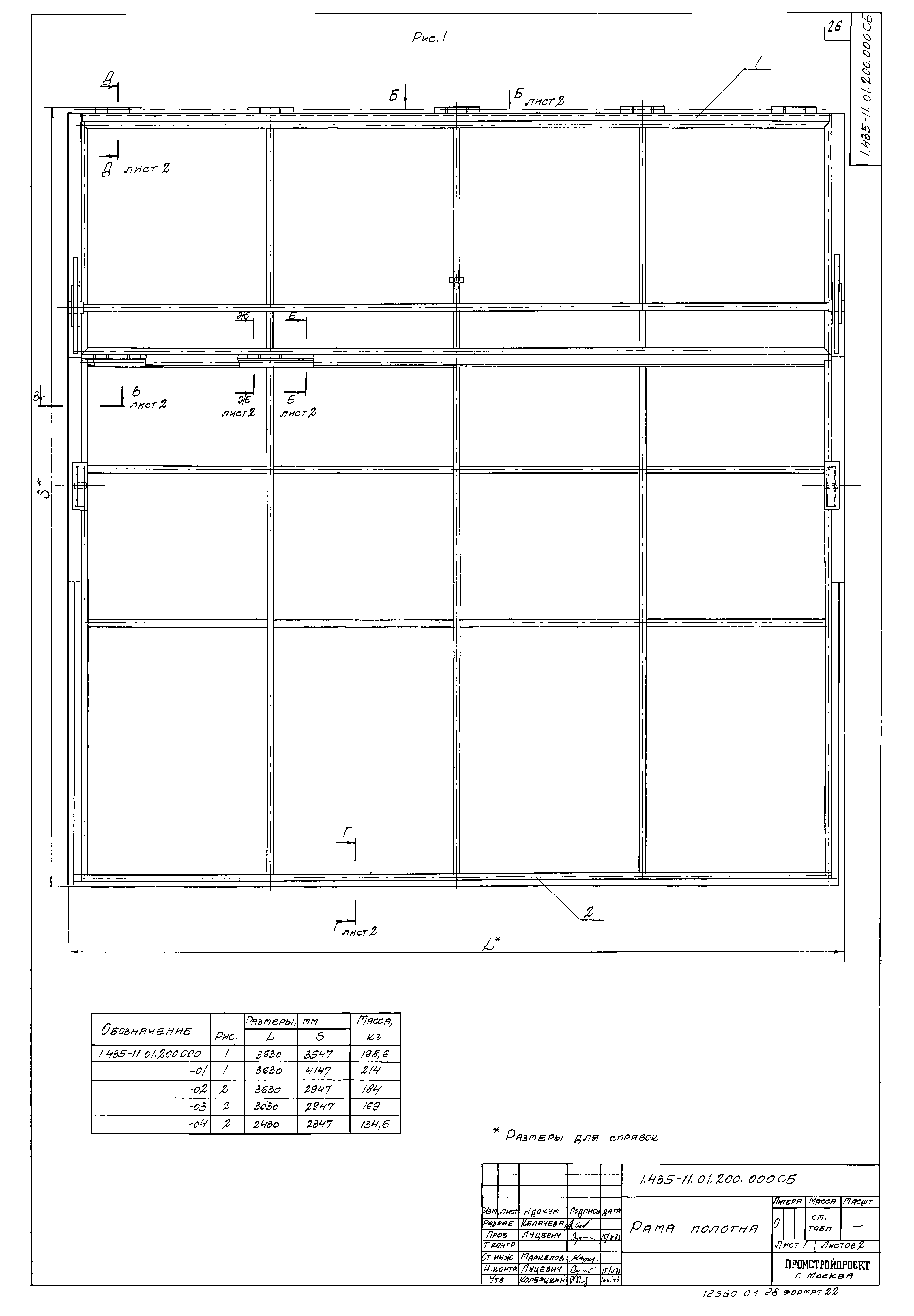
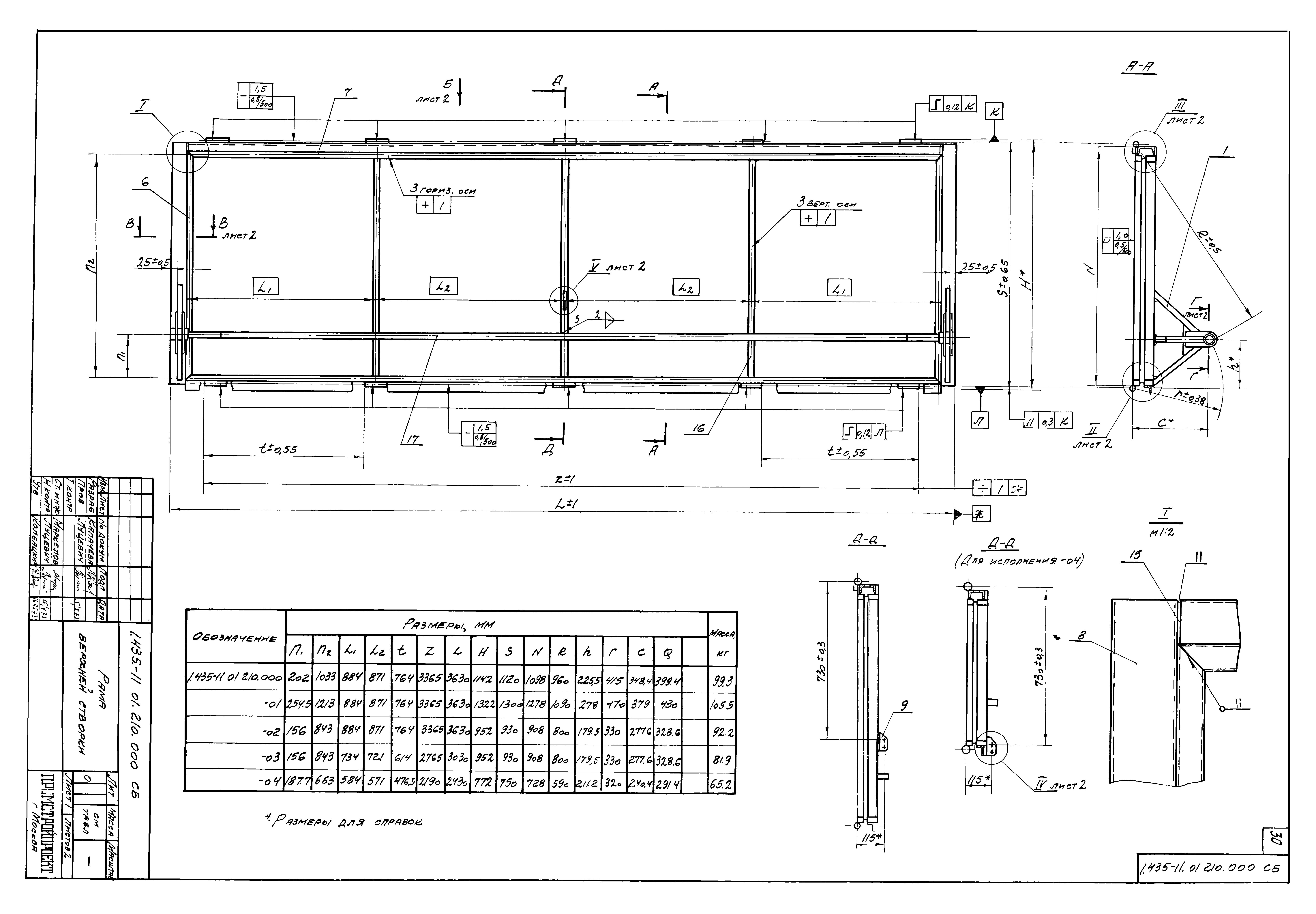
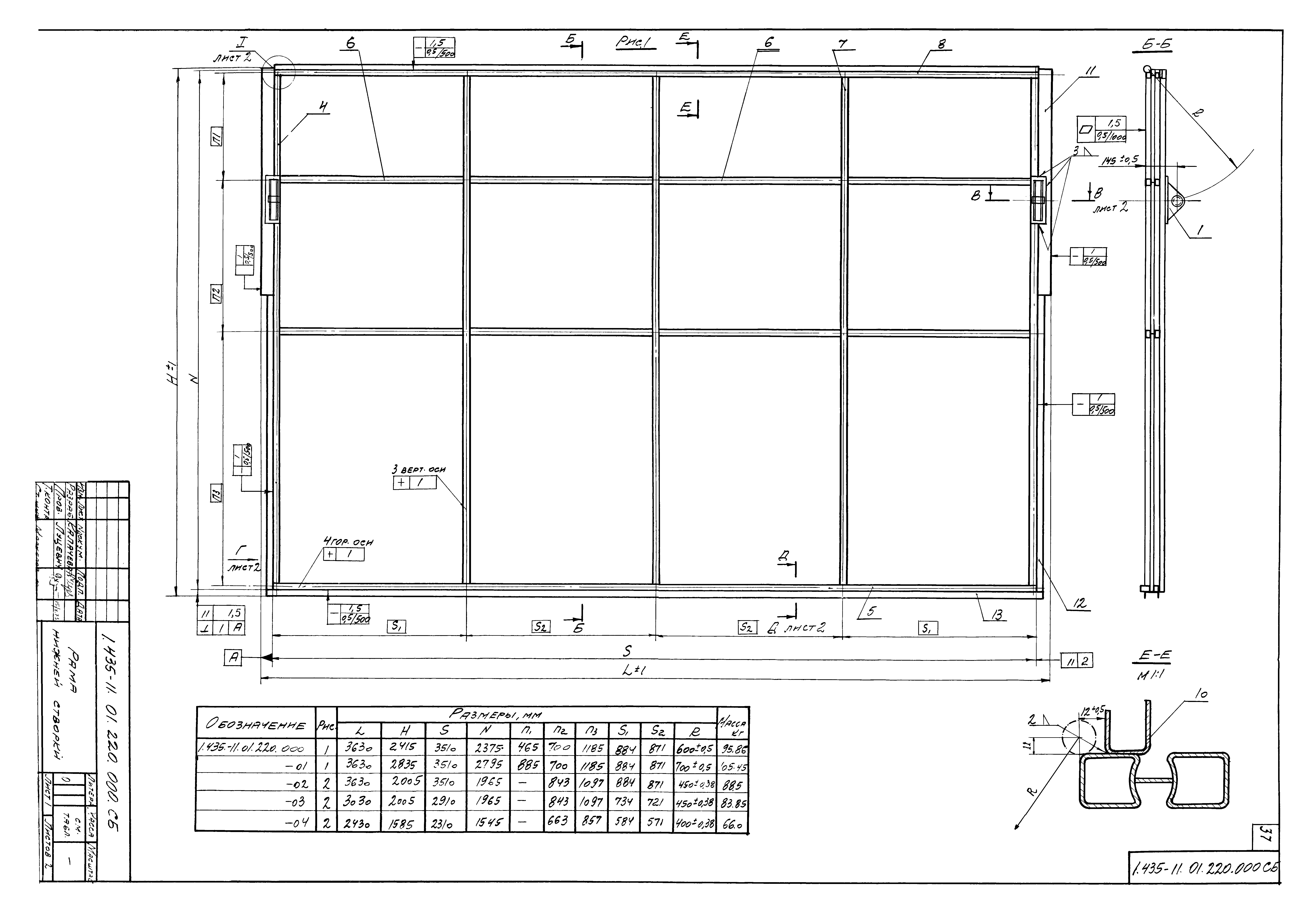
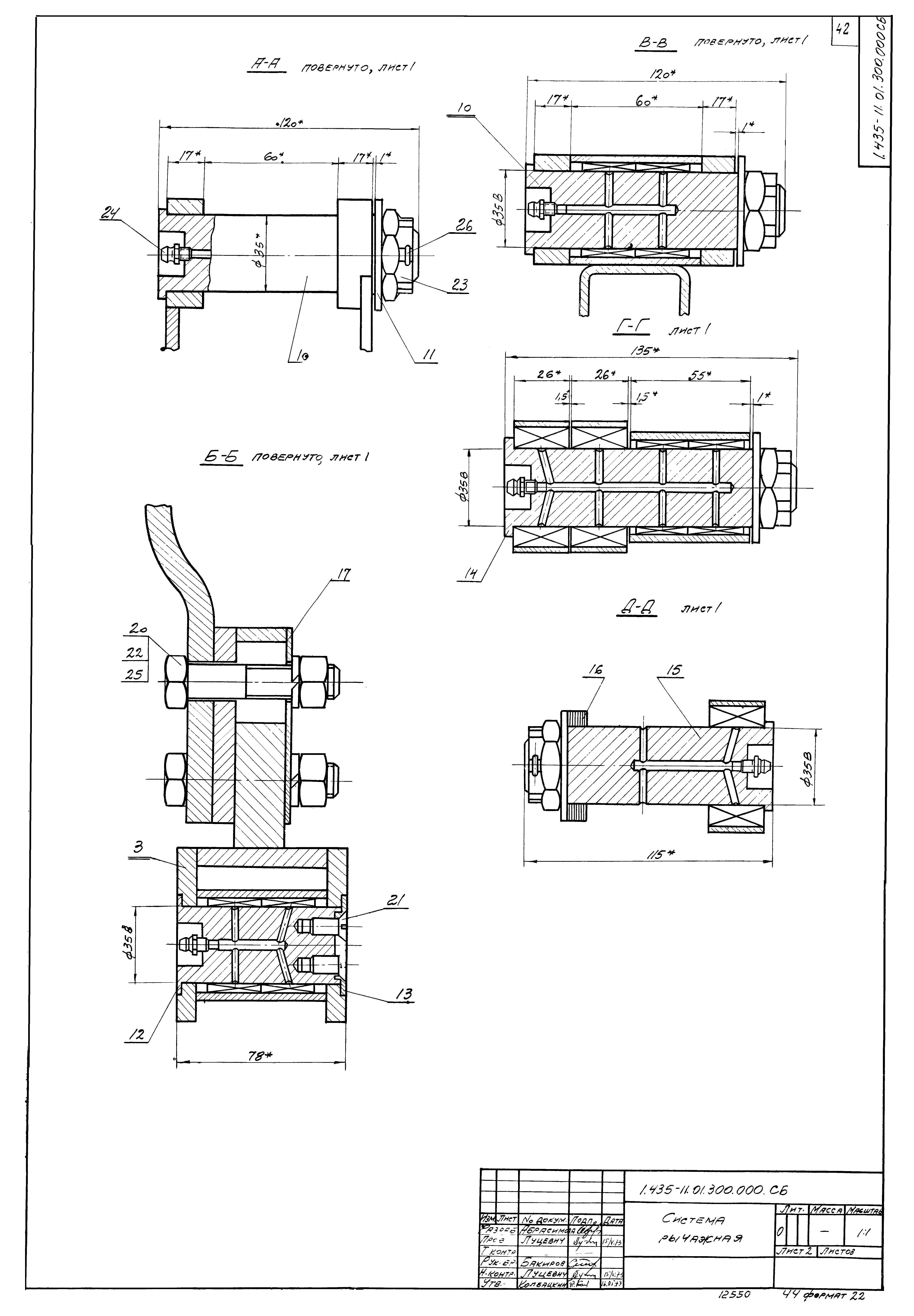
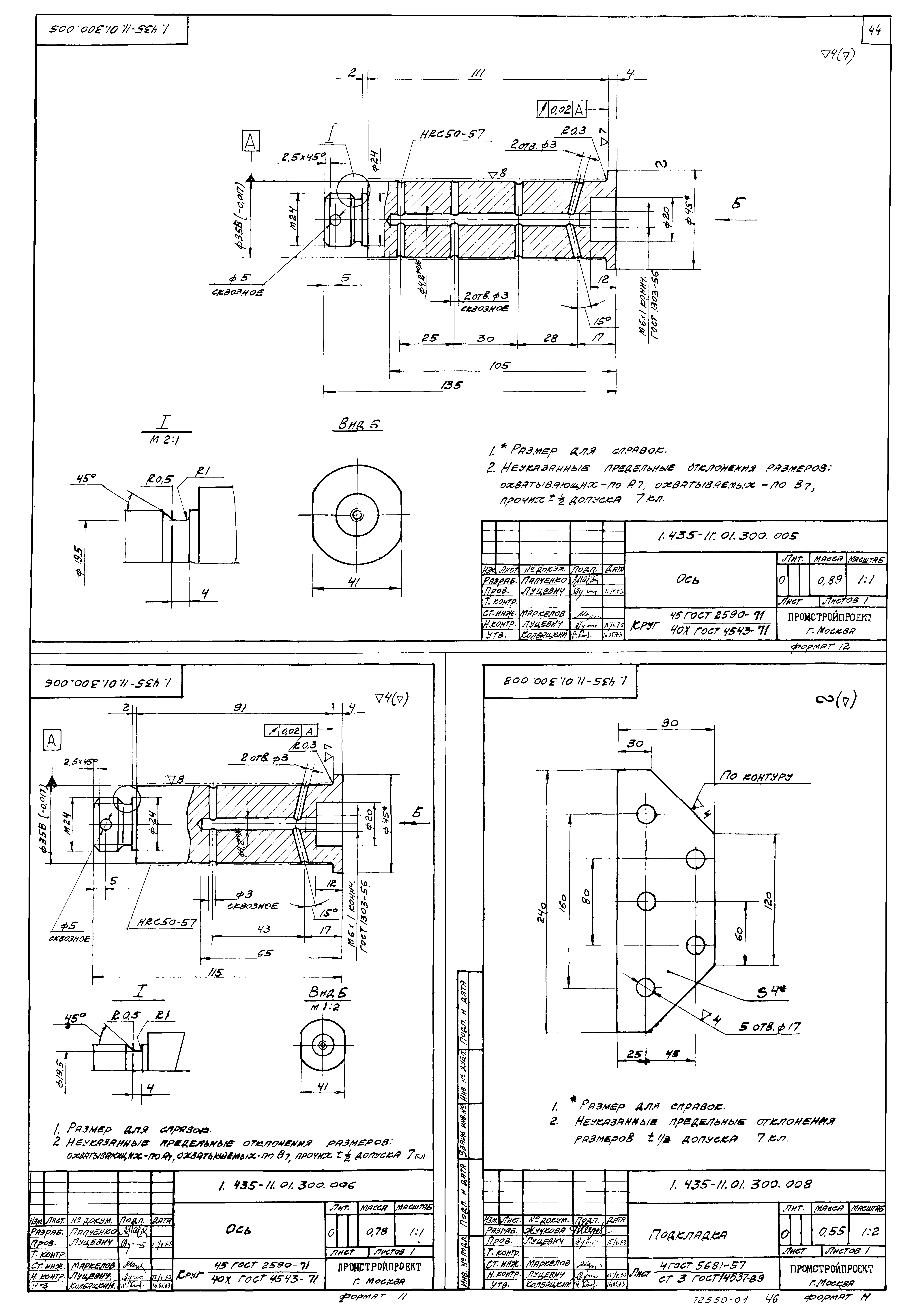
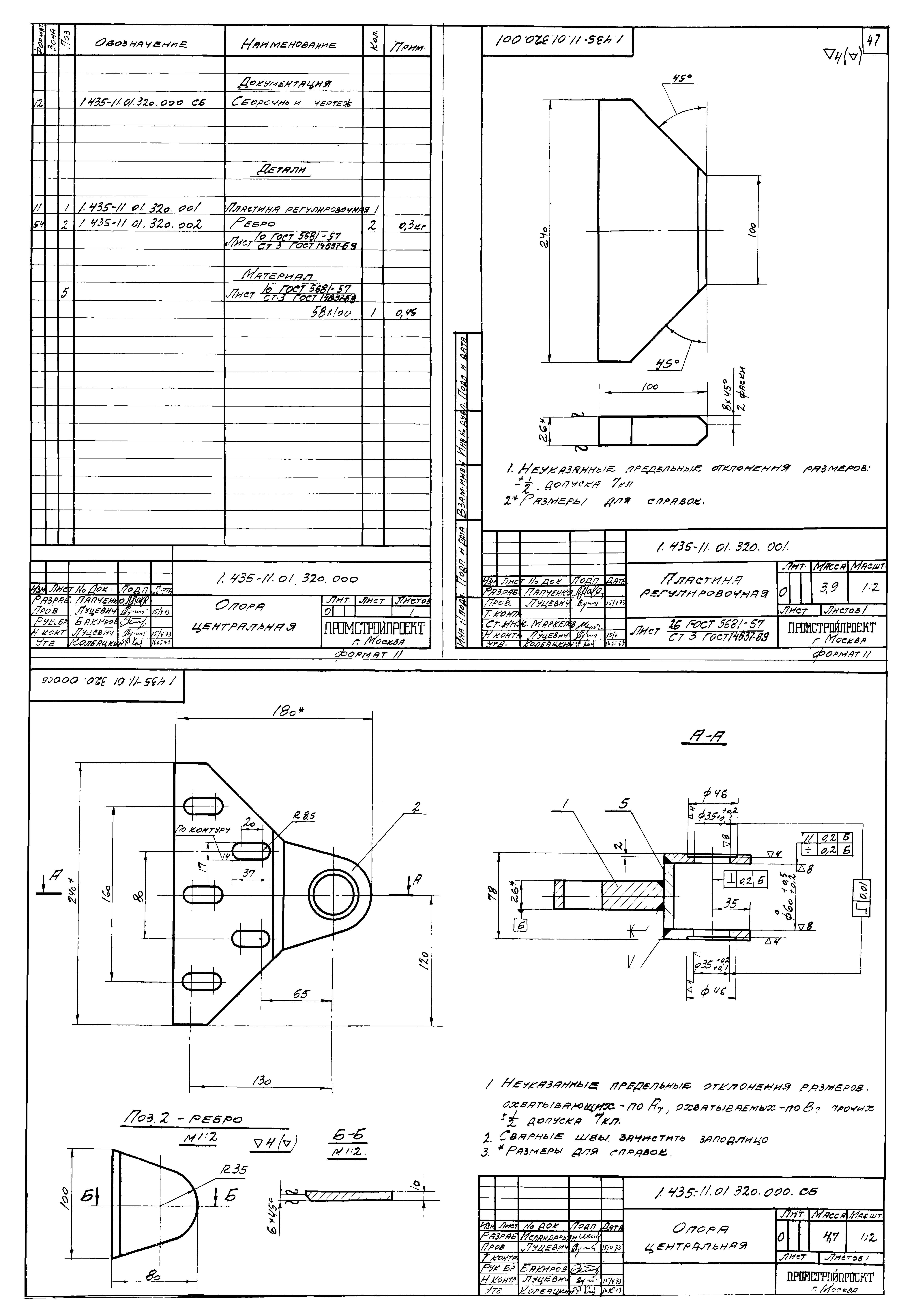
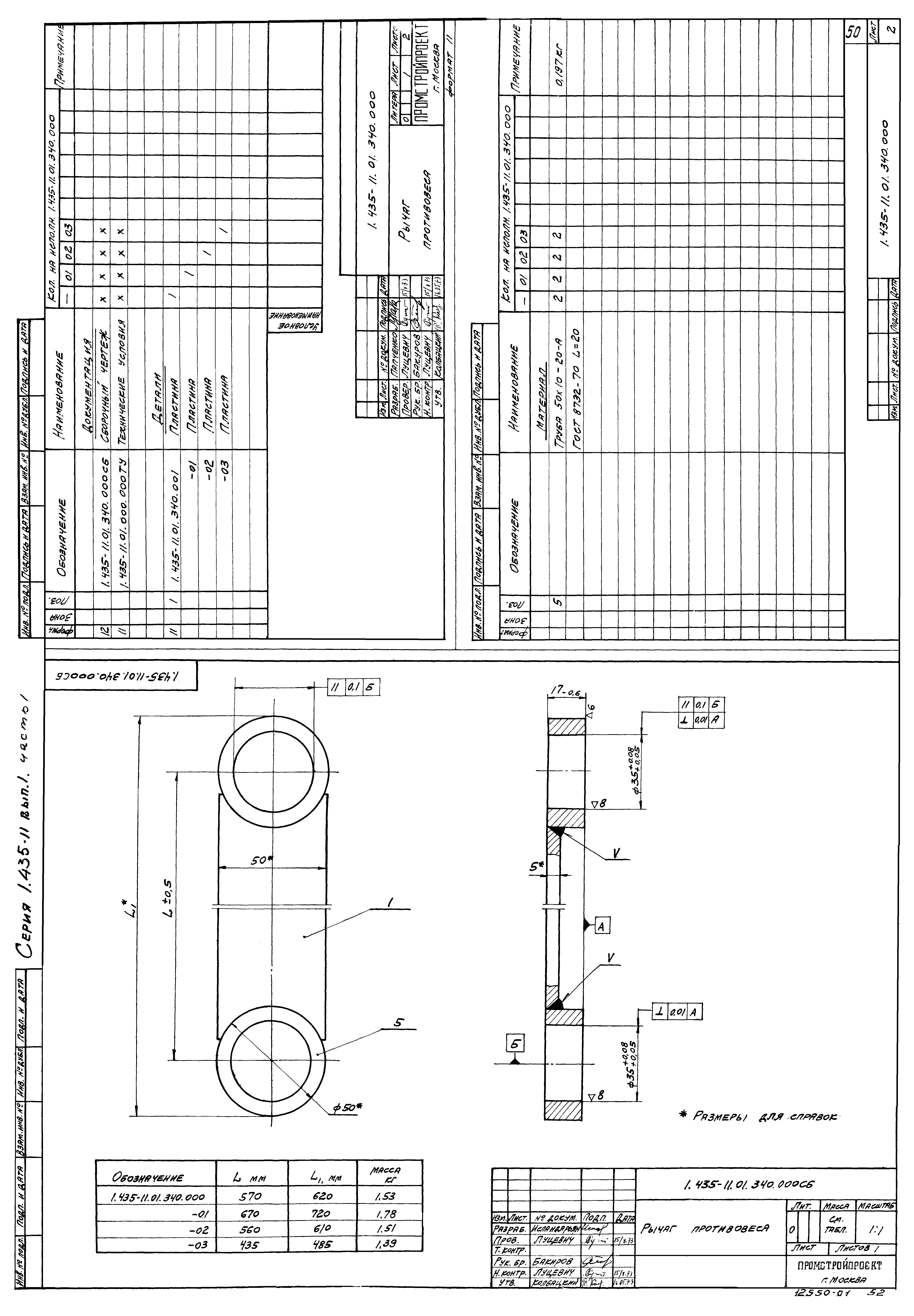
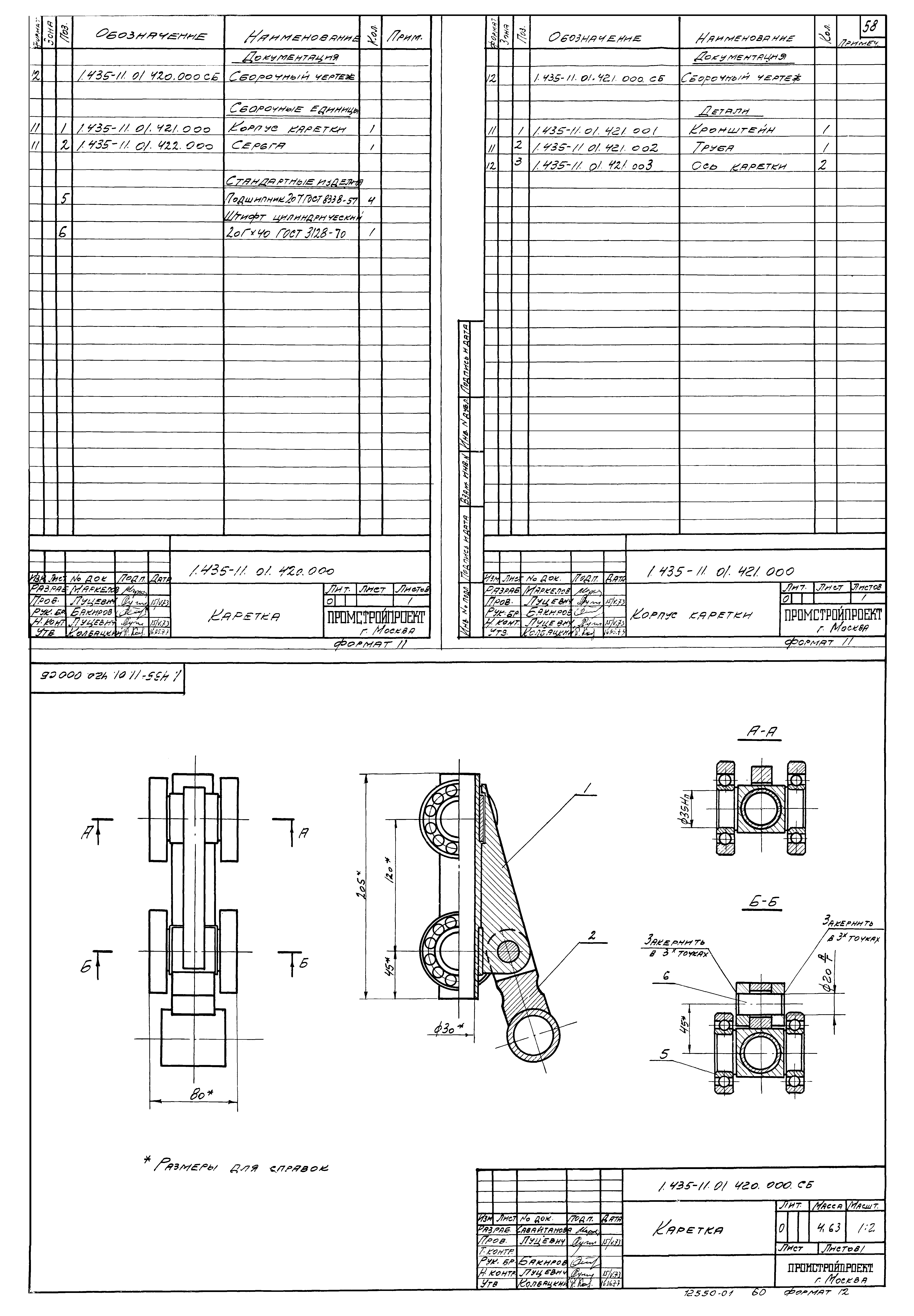
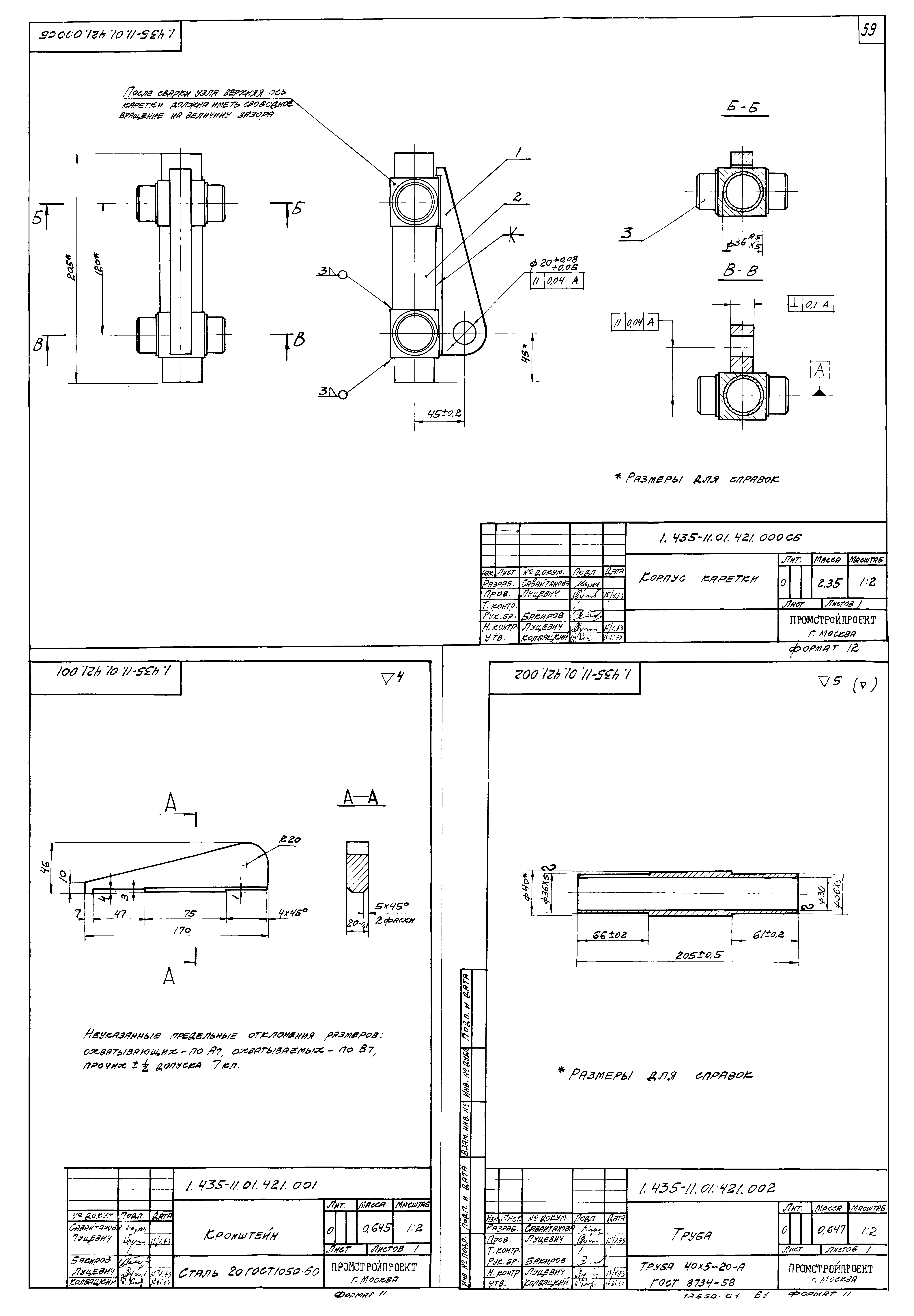
| Оглавление: | 1.435-11 Содержание 1.435-11 Ворота подъемно-поворотные (архитектурно-строительный чертеж) 1.435-11 Ворота подъемно-поворотные (схема кинематическая 1.435-11 Ворота подъемно-поворотные (спецификация) 1.435-11 Ворота подъемно-поворотные (спецификация). Щетка. Корпус 1.435-11 Ворота подъемно-поворотные (сборочный чертеж) 1.435-11 Щетка. Прокладка. Уголок 1.435-11 Кронштейн. Уголок. Контакт 1.435-11 Рама проема (спецификация) 1.435-11 Рама проема (сборочный чертеж) 1.435-11 Стойка (спецификация). Опора (заготовка) 1.435-11 Стойка (сборочный чертеж) 1.435-11 Гребенка. Ригель верхний (спецификация) 1.435-11 Ригель верхний (сборочный чертеж). Рама полотна (спецификация). 1.435-11 Рама полотна (сборочный чертеж) 1.435-11 Ось. Втулка петли. Втулка 1.435-11 Рама верхней створки (спецификация) 1.435-11 Рама верхней створки (сборочный чертеж) 1.435-11 Втулка петли. Труба. Швеллер. Кронштейн 1.435-11 Кронштейн (спецификация). Труба упорная 1.435-11 Кронштейн (сборочный чертеж) 1.435-11 Труба распорная. Ребро. Труба опорная. Накладка опорная 1.435-11 Рама нижней створки (спецификация) 1.435-11 Рама нижней створки (сборочный чертеж) 1.435-11 Кронштейн в сборе (спецификация). Кронштейн в сборе (сборочный чертеж). Кронштейн 1.435-11 Система рычажная (спецификация) 1.435-11 Система рычажная (сборочный чертеж) 1.435-11 Ось. Шайба. Ось. Крышка 1.435-11 Ось. Ось. Подкладка 1.435-11 Рычаг в сборе (спецификация). Хомут. Рычаг 1.435-11 Рычаг в сборе (сборочный чертеж) 1.435-11 Опора центральная (спецификация). Опора центральная (сборочный чертеж). Пластина регулировочная 1.435-11 Рычаг центральный (спецификация). Труба. Косынка 1.435-11 Рычаг центральный (сборочный чертеж) 1.435-11 Рычаг противовеса (спецификация). Рычаг противовеса (сборочный чертеж) 1.435-11 Пластина. Кронштейн в сборе (спецификация). Кронштейн в сборе (сборочный чертеж) 1.435-11 Кронштейн. Пластина (заготовка). Пластина (заготовка). 1.435-11 Противовес (спецификация). Шток 1.435-11 Противовес (сборочный чертеж) 1.435-11 Втулка. Шайба. Пружина 1.435-11 Втулка промежуточная. Втулка опорная. Пружина 1.435-11 Кронштейн (спецификация). Кронштейн (сборочный чертеж). Бобышка (заготовка) 1.435-11 Каретка (спецификация). Каретка (сборочный чертеж). Корпус каретки (спецификация) 1.435-11 Корпус каретки (сборочный чертеж). Кронштейн. Труба 1.435-11 Ось каретки. Серьга (спецификация). Серьга (сборочный чертеж). Вилка 1.435-11 Электроприводное устройство (спецификация). Труба 1.435-11 Электроприводное устройство (сборочный чертеж). Опора. Полка 1.435-11 Пневмоприводное устройство (спецификация). Пневмоприводное устройство (сборочный чертеж) 1.435-11 Тяга. Заглушка. Поперечина. Труба 1.435-11 Ворота подъемно-поворотные размером 3.6х3.6 (схема расчетная) 1.435-11 Ворота подъемно-поворотные размером 3.6х4.2 (схема расчетная) 1.435-11 Ворота подъемно-поворотные размером 3.6х3.0 (схема расчетная) 1.435-11 Ворота подъемно-поворотные размером 2.4х8.4 (схема расчетная) 1.435-11 Ворота подъемно-поворотные (опись) |
| Разработан: | Промтрансниипроект Госстроя СССР |
| Утверждён: | 17.03.1973 Госстрой СССР (Государственный комитет Совета Министров СССР по делам строительства) (USSR Gosstroy 167) |
| Чем заменён: |











































































