Скачать Серия 1.427.3-4 Выпуск 1. Стойки фахверка отапливаемых зданий. Чертежи КМДата актуализации: 01.01.2021
|
| Обозначение: | Серия 1.427.3-4 |
| Обозначение англ: | Series 1.427.3-4 |
| Статус: | не действует |
| Название рус.: | Выпуск 1. Стойки фахверка отапливаемых зданий. Чертежи КМ |
| Дата добавления в базу: | 01.09.2013 |
| Дата актуализации: | 01.01.2021 |
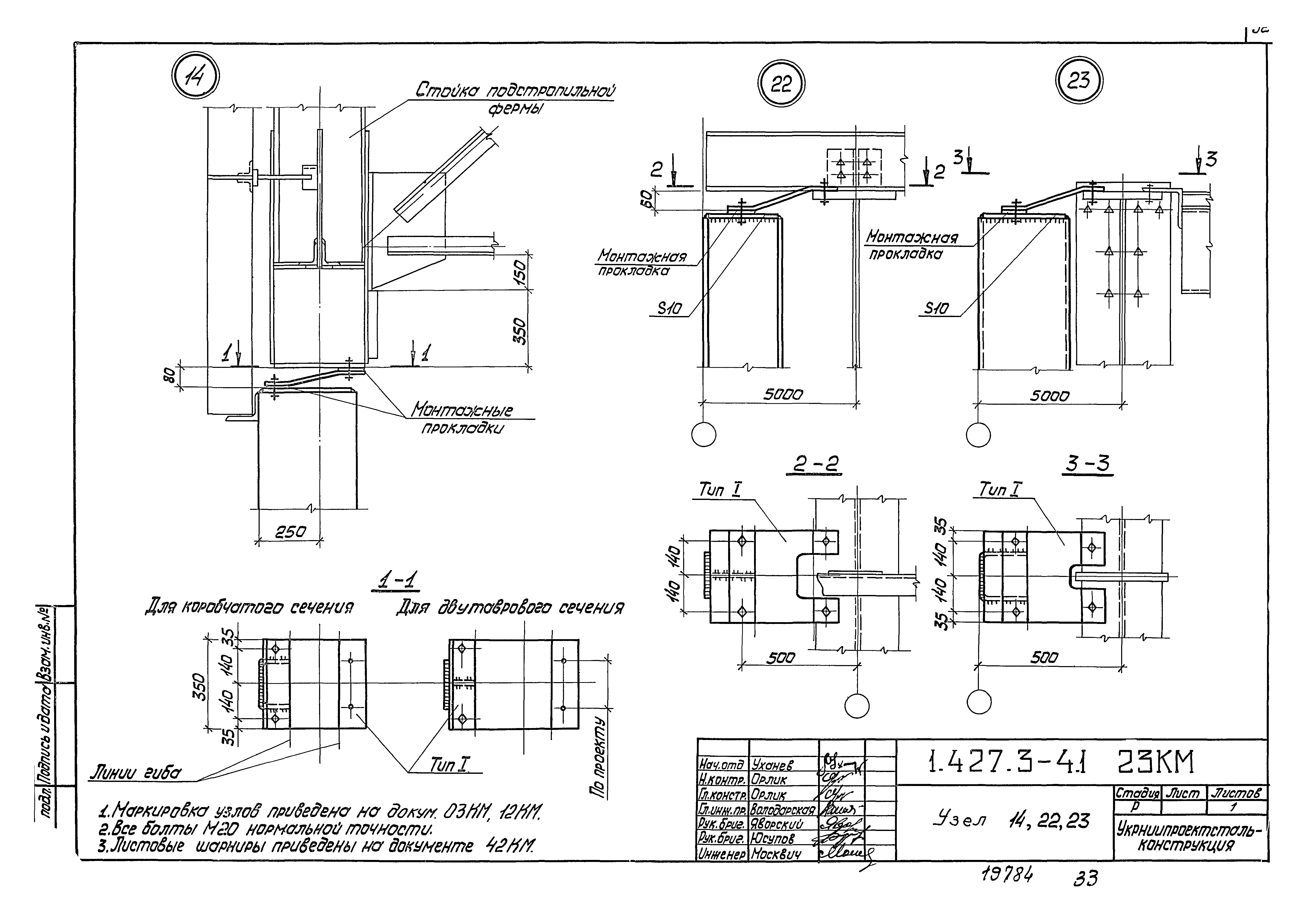
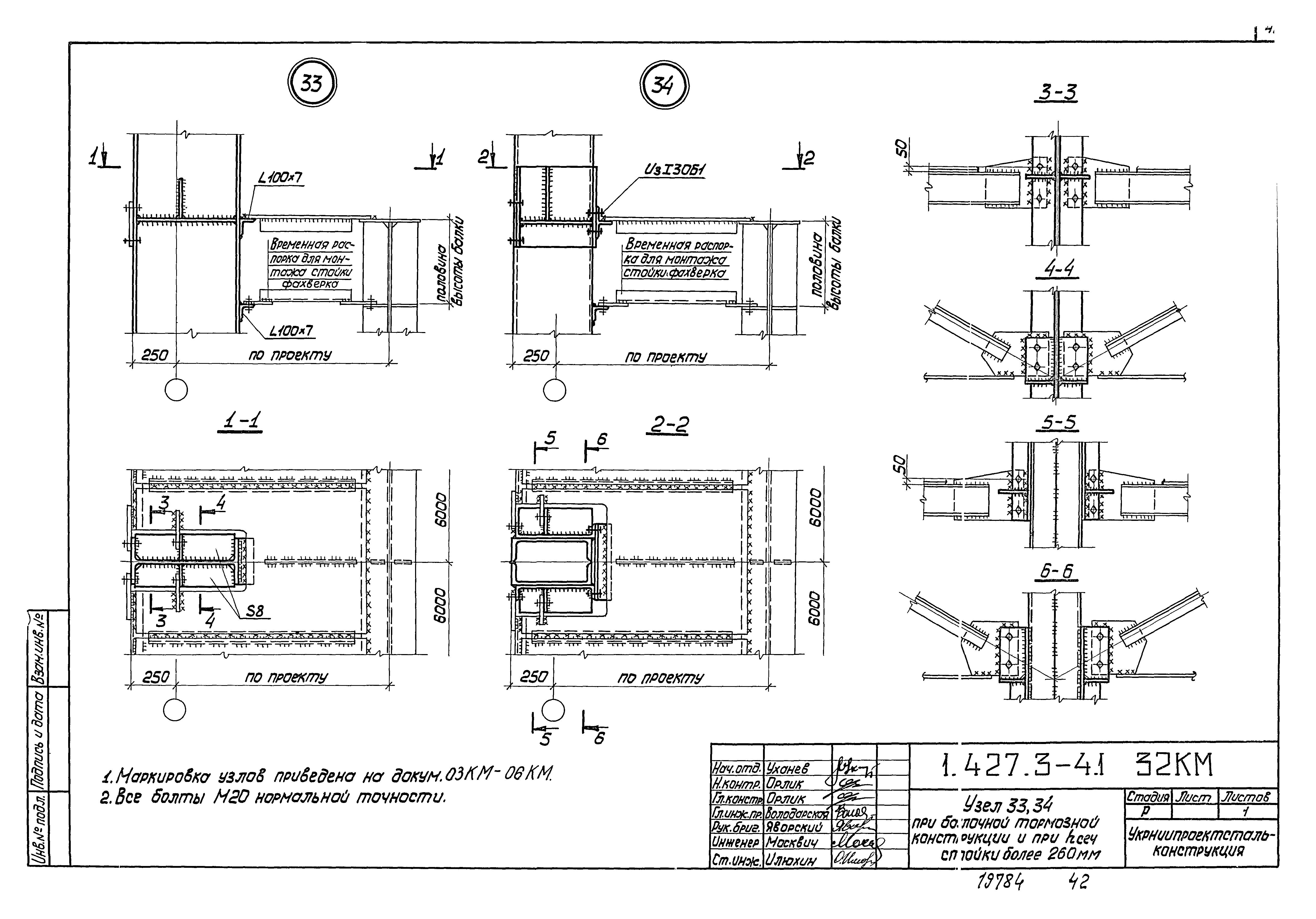
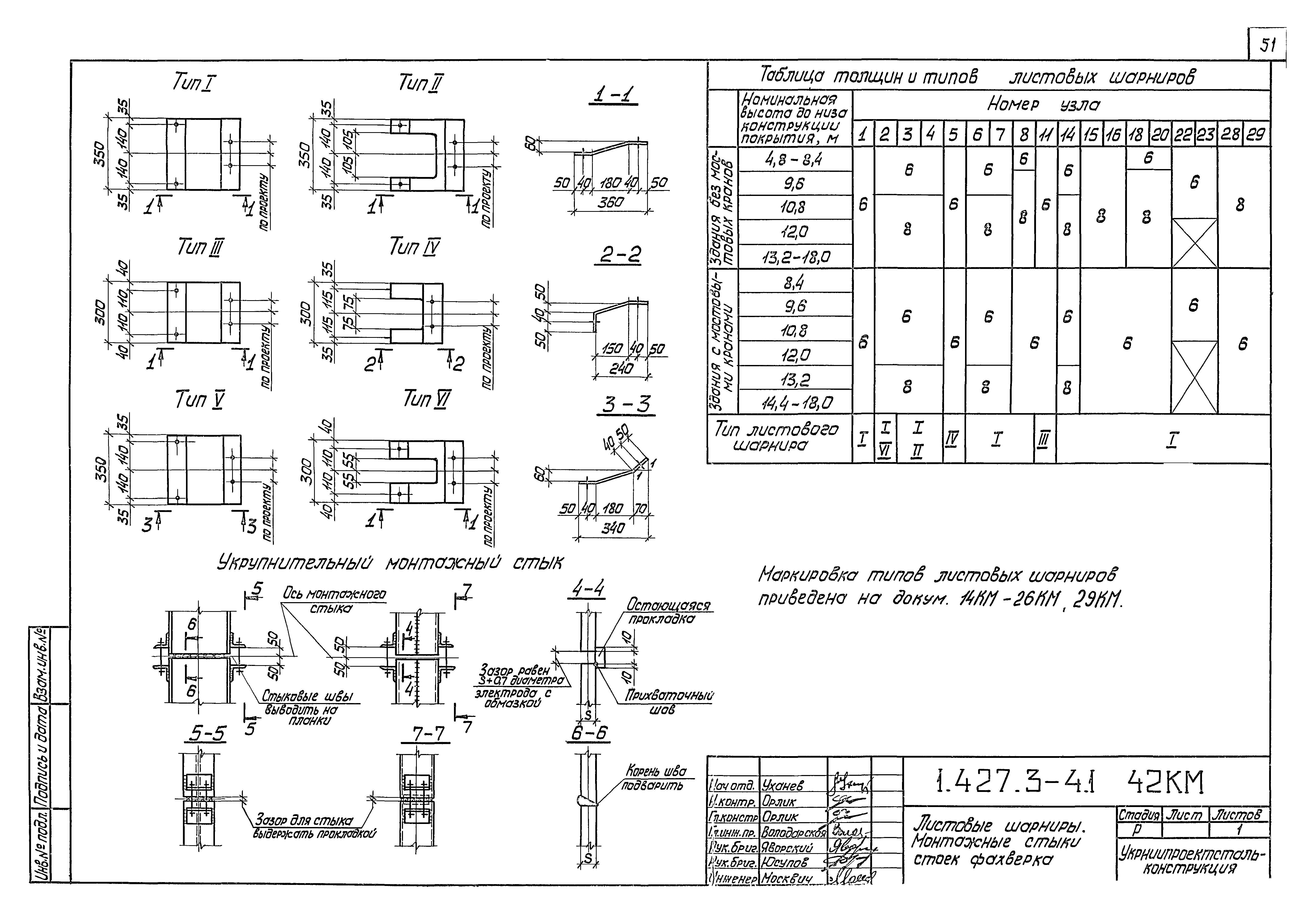
| Оглавление: | 1.427.3-4.1 00 ПЗКМ Пояснительная записка 1.427.3-4.1 01КМ Таблица выбора схем фахверка 1.427.3-4.1 02КМ Схема торцевого фахверка зданий с мостовыми кранами при покрытиях из стропильных ферм по сериям типовых конструкций. Сортамент связей 1.427.3-4.1 03КМ Схемы продольного фахверка зданий с мостовыми кранами при покрытиях из стропильных ферм по сериям типовых конструкций 1.427.3-4.1 04КМ Схемы фахверков зданий с мостовыми кранами для условий конвейерной сборки и блочного монтажа 1.427.3-4.1 05КМ Схемы фахверков зданий с мостовыми кранами при покрытии типа "Молодечно" 1.427.3-4.1 06КМ Схемы фахверков зданий с мостовыми кранами при покрытии из структурных конструкций типа "ЦНИИСК" 1.427.3-4.1 07КМ Схемы фахверков зданий без мостовых кранов при покрытиях из стропильных ферм по сериям типовых конструкций 1.427.3-4.1 08КМ Схемы фахверков зданий без мостовых кранов для условий конвейерной сборки и блочного монтажа 1.427.3-4.1 09КМ Схемы фахверков зданий без мостовых кранов при покрытии типа "Молодечно" 1.427.3-4.1 10КМ Схемы фахверков зданий без мостовых кранов при покрытии из структурных конструкций типа "ЦНИИСК" 1.427.3-4.1 11КМ Схемы фахверков зданий при покрытии из структурных конструкций типа "Кисловодск" 1.427.3-4.1 12КМ Схема фахверка при конструкциях типа "Канск". Схема приколонных стоек торцевого фахверка 1.427.3-4.1 13КМ Схемы торцевых фахверков для зданий с железобетонными конструкциями покрытия по сериям типовых конструкций 1.427.3-4.1 14КМ Узел 1 при покрытии по сериям: 1.460.2-10;1.460-8 1.427.3-4.1 15КМ Узел 1 при покрытии по сериям: 1.460.3-15;1.460.3-17 1.427.3-4.1 16КМ Узел 2 1.427.3-4.1 17КМ Узел 3 1.427.3-4.1 18КМ Узел 4 1.427.3-4.1 19КМ Узел 5;6 1.427.3-4.1 20КМ Узел 7;10 1.427.3-4.1 21КМ Узел 8;9 1.427.3-4.1 22КМ Узел 11;12;13 1.427.3-4.1 23КМ Узел 14;22;23 1.427.3-4.1 24КМ Узел 15;16;17 1.427.3-4.1 25КМ Узел 18;19 1.427.3-4.1 26КМ Узел 20;21 1.427.3-4.1 27КМ Узел 34;25 1.427.3-4.1 28КМ Узел 26;27 1.427.3-4.1 29КМ Узел 28;29;30 1.427.3-4.1 30КМ Узел 31;32 1.427.3-4.1 31КМ Узел 33;34 при балочной тормозной конструкции и при hсеч. Стойки менее или ровно 260 мм 1.427.3-4.1 32КМ Узел 33;34 при балочной тормозной конструкции и при hсеч. Стойки более 260 мм 1.427.3-4.1 33КМ Узел 35;36 при решетчатой тормозной конструкции 1.427.3-4.1 34КМ Узел 37;39 1.427.3-4.1 35КМ Узел 38;40 1.427.3-4.1 36КМ Узел 41;42. Сортамент опорных плит стоек фахверка 1.427.3-4.1 37КМ Узел 43 1.427.3-4.1 38КМ Узел 48;44 1.427.3-4.1 39КМ Узел 45 1.427.3-4.1 40КМ Узел 47 1.427.3-4.1 41КМ Узел46;49 1.427.3-4.1 42КМ Листовые шарниры. Монтажные стыки стоек фахверка 1.427.3-4.1 43КМ Основные габаритные размеры стоек 1.427.3-4.1 44КМ Таблица выбора марок стоек фахверка для схем №1;№2 1.427.3-4.1 45КМ Таблица выбора марок стоек для схемы №2 1.427.3-4.1 46КМ Таблица выбора марок стоек для схем №4;№5;№8;№20 1.427.3-4.1 47КМ Таблица выбора марок стоек для схемы №6 1.427.3-4.1 48КМ Таблица выбора марок стоек для схемы №7 1.427.3-4.1 49КМ Таблица выбора марок стоек для схемы №9 1.427.3-4.1 50КМ Таблица выбора марок стоек для схем №10 и №18 1.427.3-4.1 51КМ Таблица выбора марок стоек для схемы №11 1.427.3-4.1 52КМ Таблица выбора марок стоек для схемы №12 1.427.3-4.1 53КМ Таблица выбора марок стоек для схемы №13 1.427.3-4.1 54КМ Таблица выбора марок стоек для схемы №14 1.427.3-4.1 55КМ Таблица выбора марок стоек для схемы №15 1.427.3-4.1 56КМ Таблица выбора марок стоек для схем №16 и №17 1.427.3-4.1 57КМ Таблица выбора марок стоек для схемы №21 1.427.3-4.1 58КМ Сортамент сечений стоек фахверка 1.427.3-4.1 59КМ Спецификация стали для стоек ТФ1 1.427.3-4.1 60КМ Спецификация стали для стоек ТФ2 1.427.3-4.1 61КМ Спецификация стали для стоек ТФ3 1.427.3-4.1 62КМ Спецификация стали для стоек ТФ4 1.427.3-4.1 63КМ Спецификация стали для стоек ТФ5 1.427.3-4.1 64КМ Спецификация стали для стоек ТФ6 1.427.3-4.1 65КМ Спецификация стали для стоек ТФ7 1.427.3-4.1 66КМ Спецификация стали для стоек ТФ8 1.427.3-4.1 67КМ Спецификация стали для стоек ТФ9 1.427.3-4.1 68КМ Спецификация стали для стоек ТФ10 1.427.3-4.1 69КМ Спецификация стали для стоек ТФ11 1.427.3-4.1 70КМ Спецификация стали для стоек ТФ12 1.427.3-4.1 71КМ Спецификация стали для стоек ТФ13 1.427.3-4.1 72КМ Спецификация стали для стоек ТФ14 1.427.3-4.1 73КМ Спецификация стали для стоек ТФ15 1.427.3-4.1 74КМ Спецификация стали для стоек ТФ16;ТФ17 1.427.3-4.1 75КМ Спецификация стали для стоек ТФ18 1.427.3-4.1 76КМ Спецификация стали для приколонных стоек ТФ19 1.427.3-4.1 77КМ Спецификация стали для стоек ТФ20 1.427.3-4.1 78КМ Спецификация стали для стоек ТФ21 1.427.3-4.1 79КМ Расчетные схемы стоек фахверка 1.427.3-4.1 80КМ Нагрузки на диск покрытия и фундаменты от стоек фахверка для схем №1;№3;№3;№6 1.427.3-4.1 81КМ Нагрузки на диск покрытия и фундаменты от стоек фахверка для схем №4;№5;№7;№8;№20 1.427.3-4.1 82КМ Нагрузки на диск покрытия и фундаменты от стоек фахверка для схемы №9 1.427.3-4.1 83КМ Нагрузки на диск покрытия и фундаменты от стоек фахверка для схем №11;№13;№14;№15;№18;№21;№9 1.427.3-4.1 84КМ Нагрузки на диск покрытия и фундаменты от стоек фахверка для схем №16 и №17 1.427.3-4.1 85КМ Таблица замены марок сечений стоек для схем №1;№2;№3;№6 1.427.3-4.1 86КМ Таблица замены марок сечений стоек для схем №4;№5;№7;№8;№9 1.427.3-4.1 87КМ Таблица замены марок сечений стоек для схем №10;№11;№12;№13;№14;№15;№20 1.427.3-4.1 88КМ Таблица замены марок сечений стоек для схемы №9. Сортамент сварных двутавровых сечений |
| Разработан: | Укрниипроектстальконструкция |
| Утверждён: | 18.06.1984 Госстрой СССР (Государственный комитет Совета Министров СССР по делам строительства) (USSR Gosstroy 89) |
| Заменяет собой: | |
| Чем заменён: |
























































































































