Скачать Типовой проект 902-2-172 Альбом I. Очистные сооружения с расходом 10 л/сек. Пояснительная записка. Технологические чертежи. Архитектурно-строительные чертежи. Отопление и вентиляция. Электротехнические чертежи. Заказные спецификации. Тип IДата актуализации: 01.01.2021
|
| Обозначение: | Типовой проект 902-2-172 |
| Обозначение англ: | 902-2-172 |
| Статус: | не действует |
| Название рус.: | Альбом I. Очистные сооружения с расходом 10 л/сек. Пояснительная записка. Технологические чертежи. Архитектурно-строительные чертежи. Отопление и вентиляция. Электротехнические чертежи. Заказные спецификации. Тип I |
| Дата добавления в базу: | 01.09.2013 |
| Дата актуализации: | 01.01.2021 |
| Дата введения: | 30.05.1972 |
| Дата окончания срока действия: | 01.01.1986 |
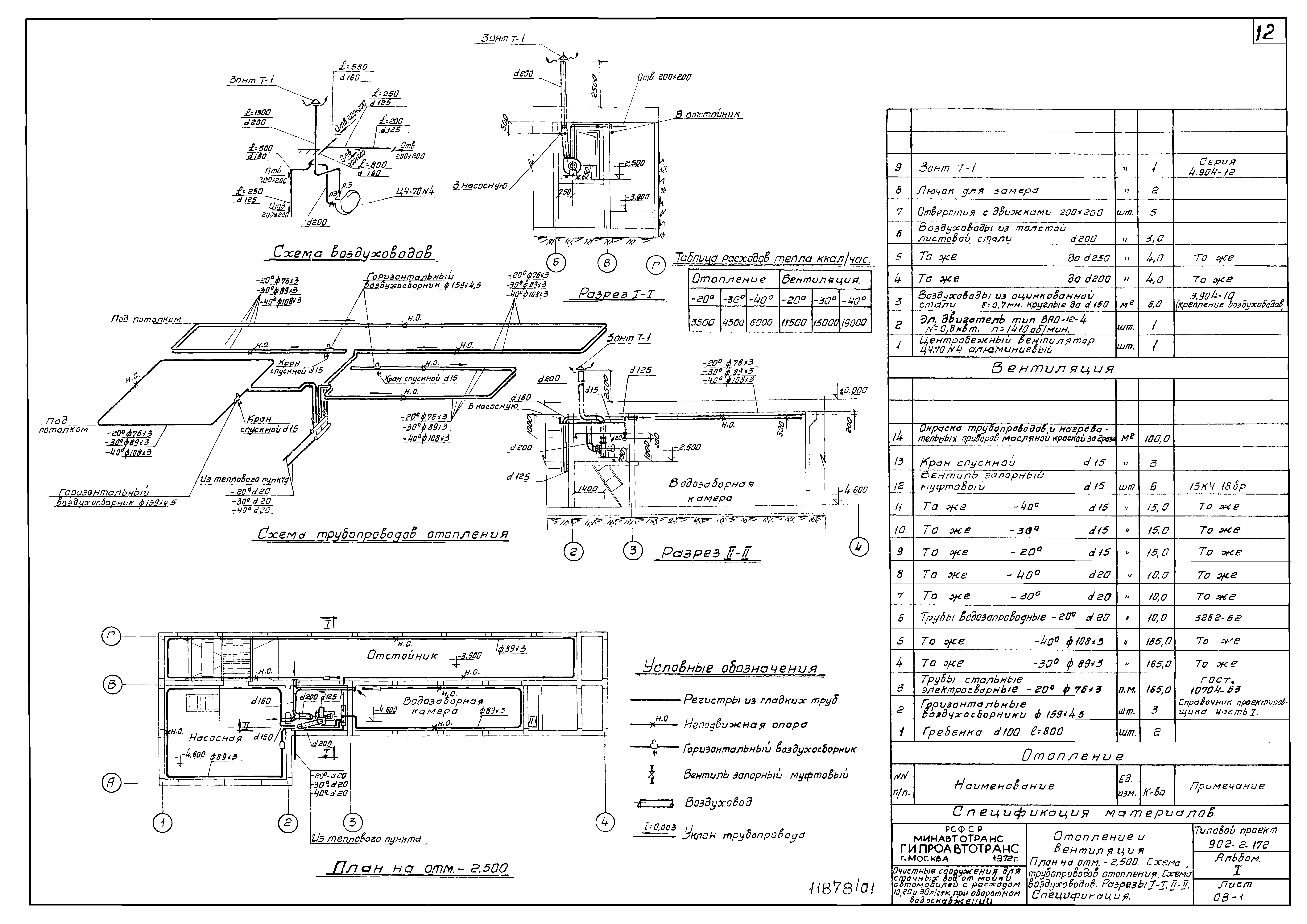
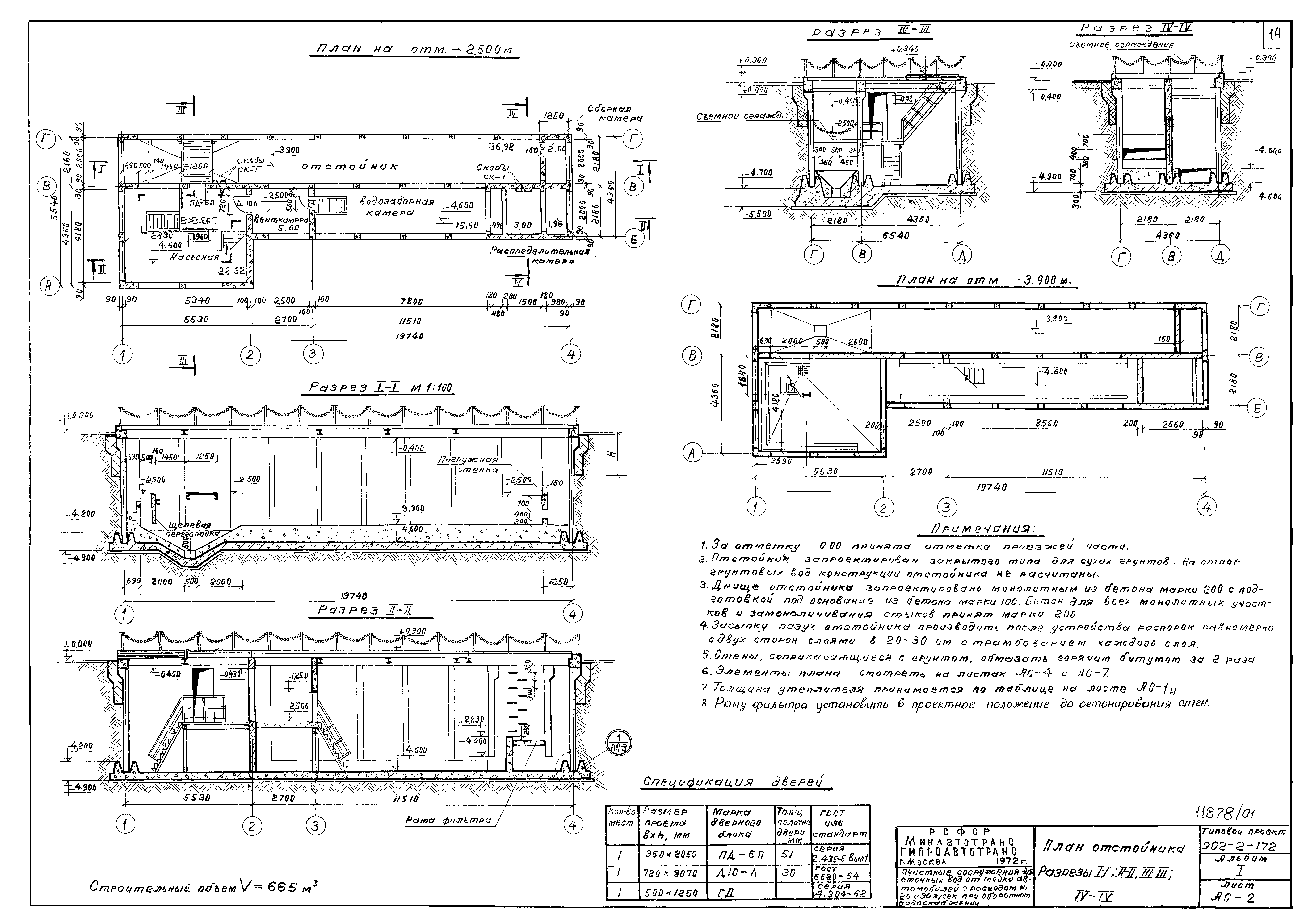
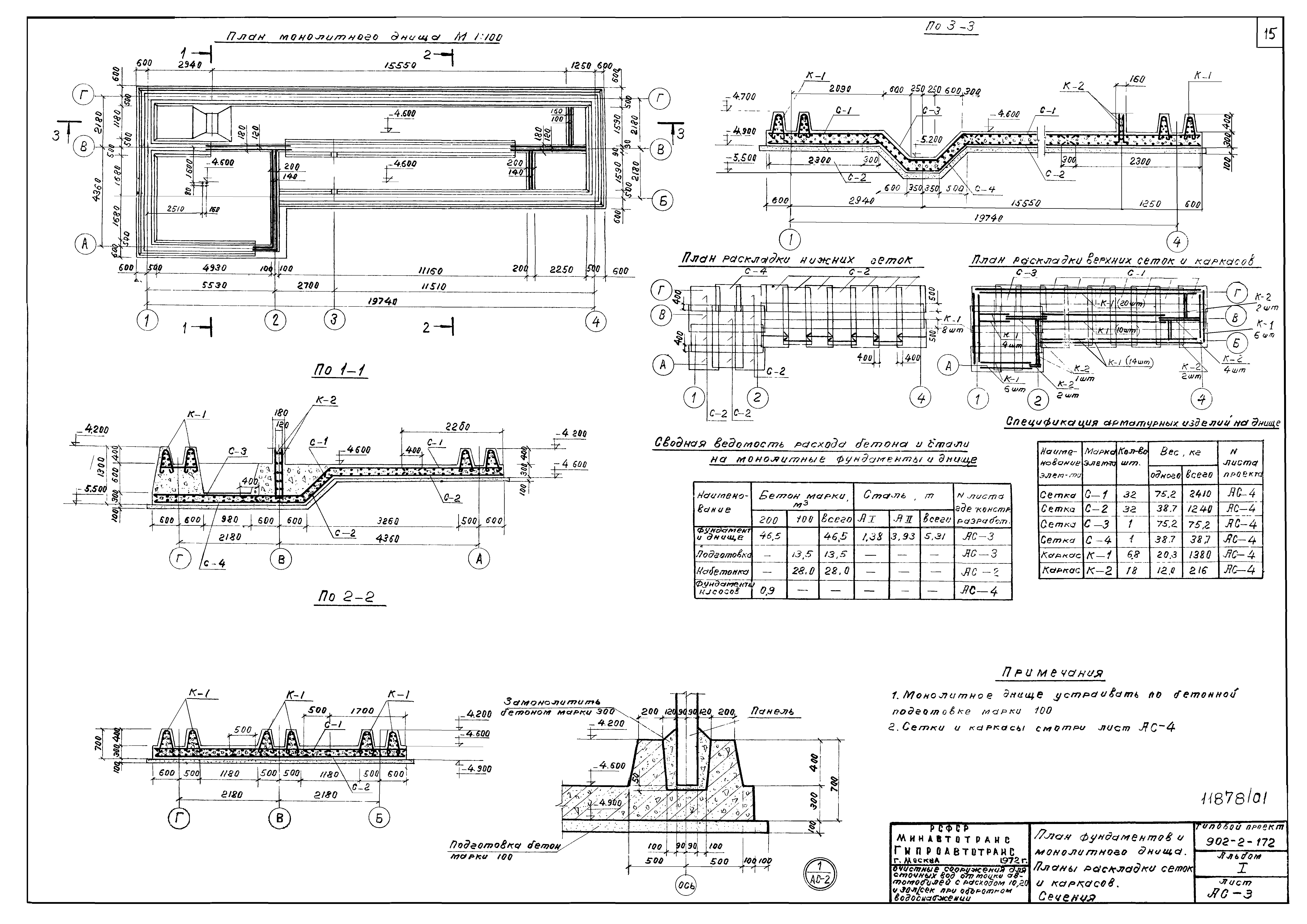
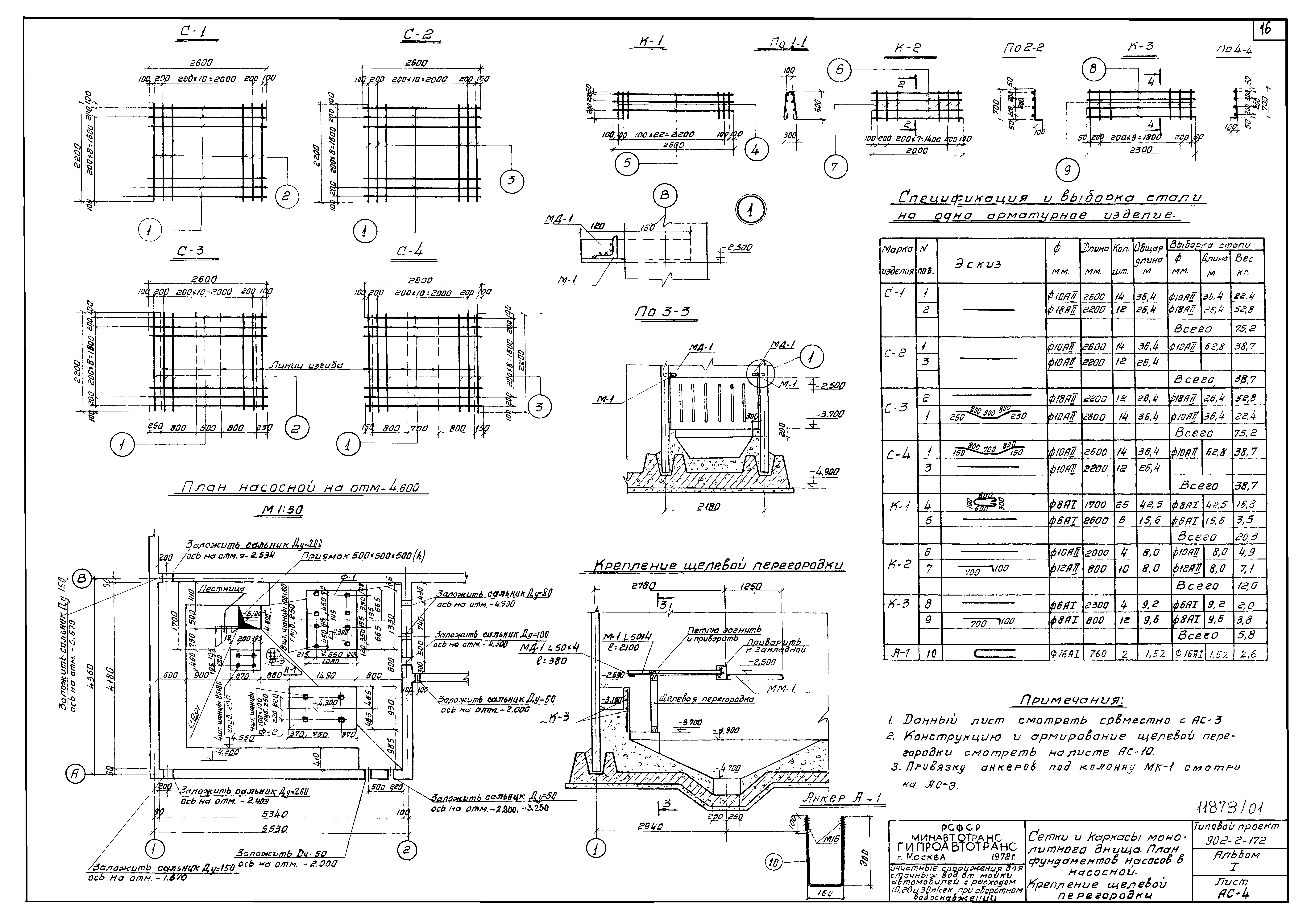
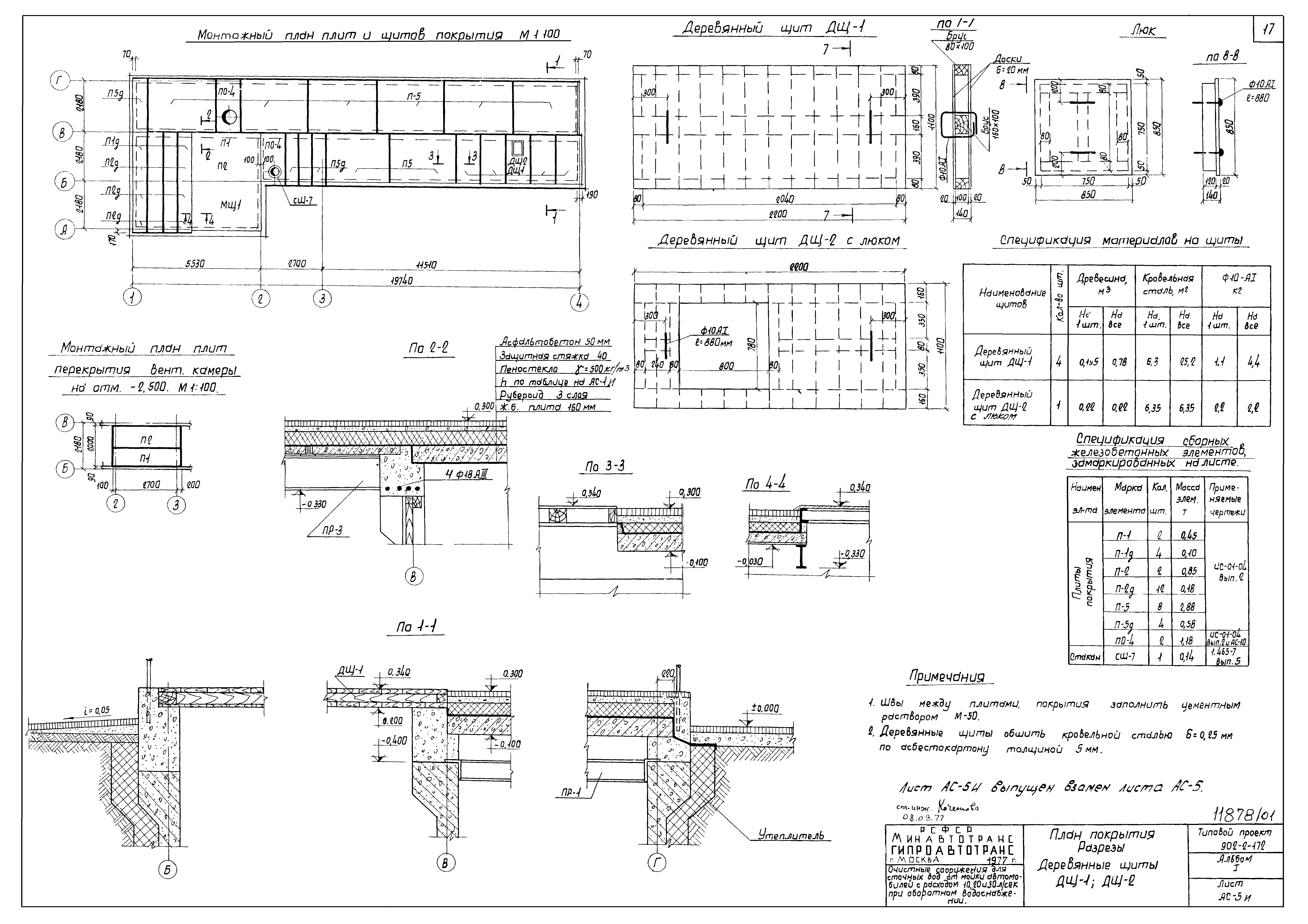
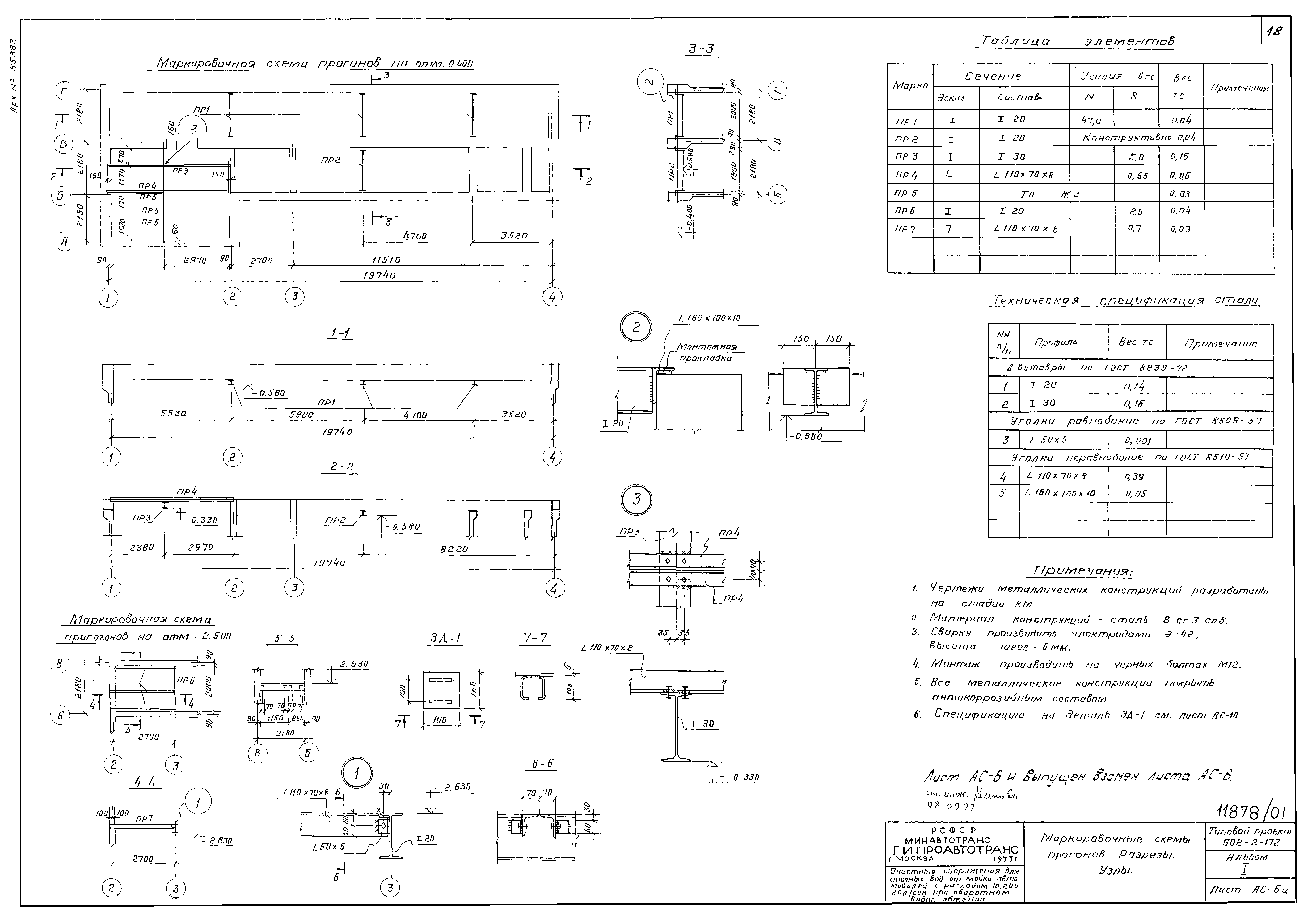
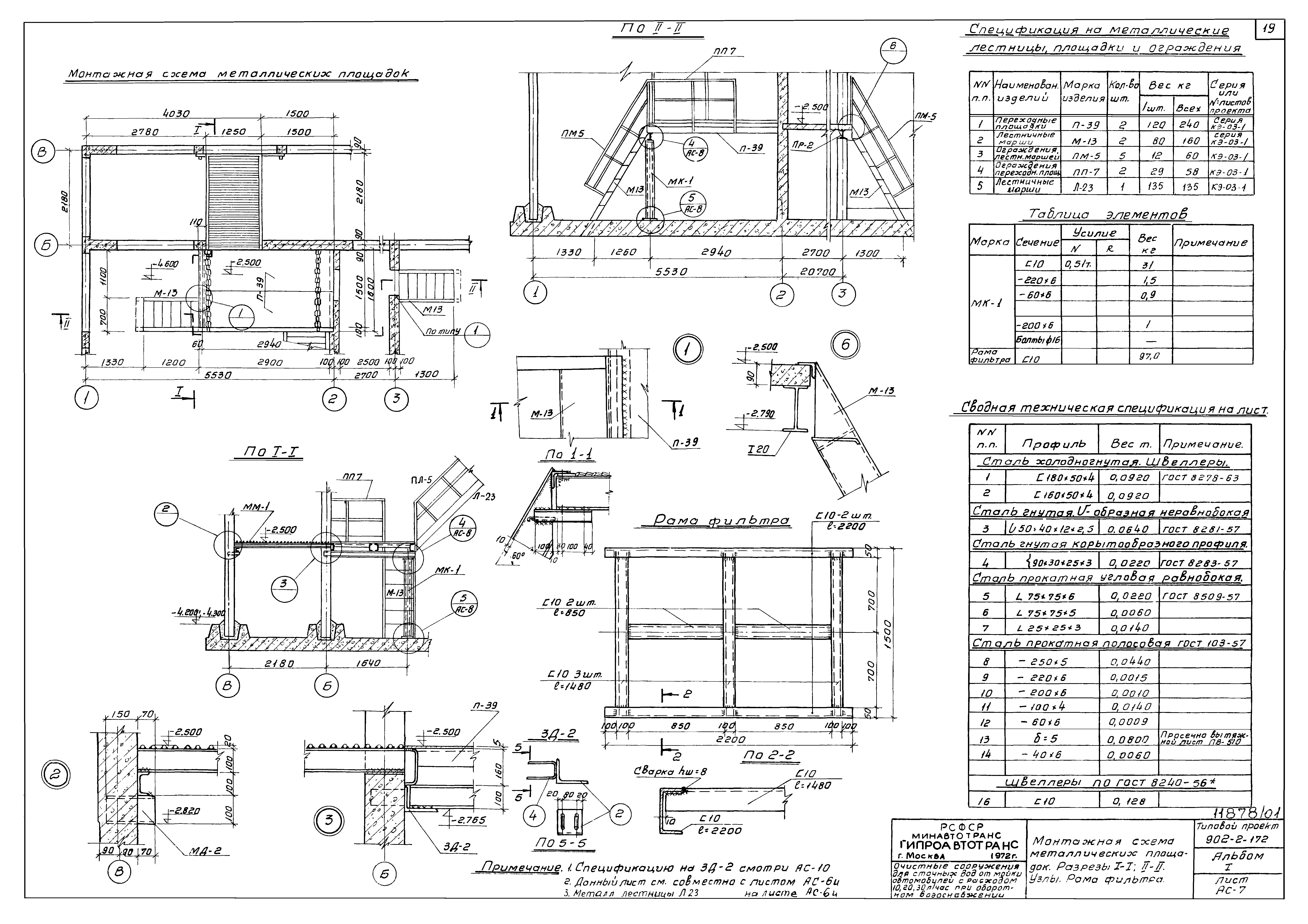
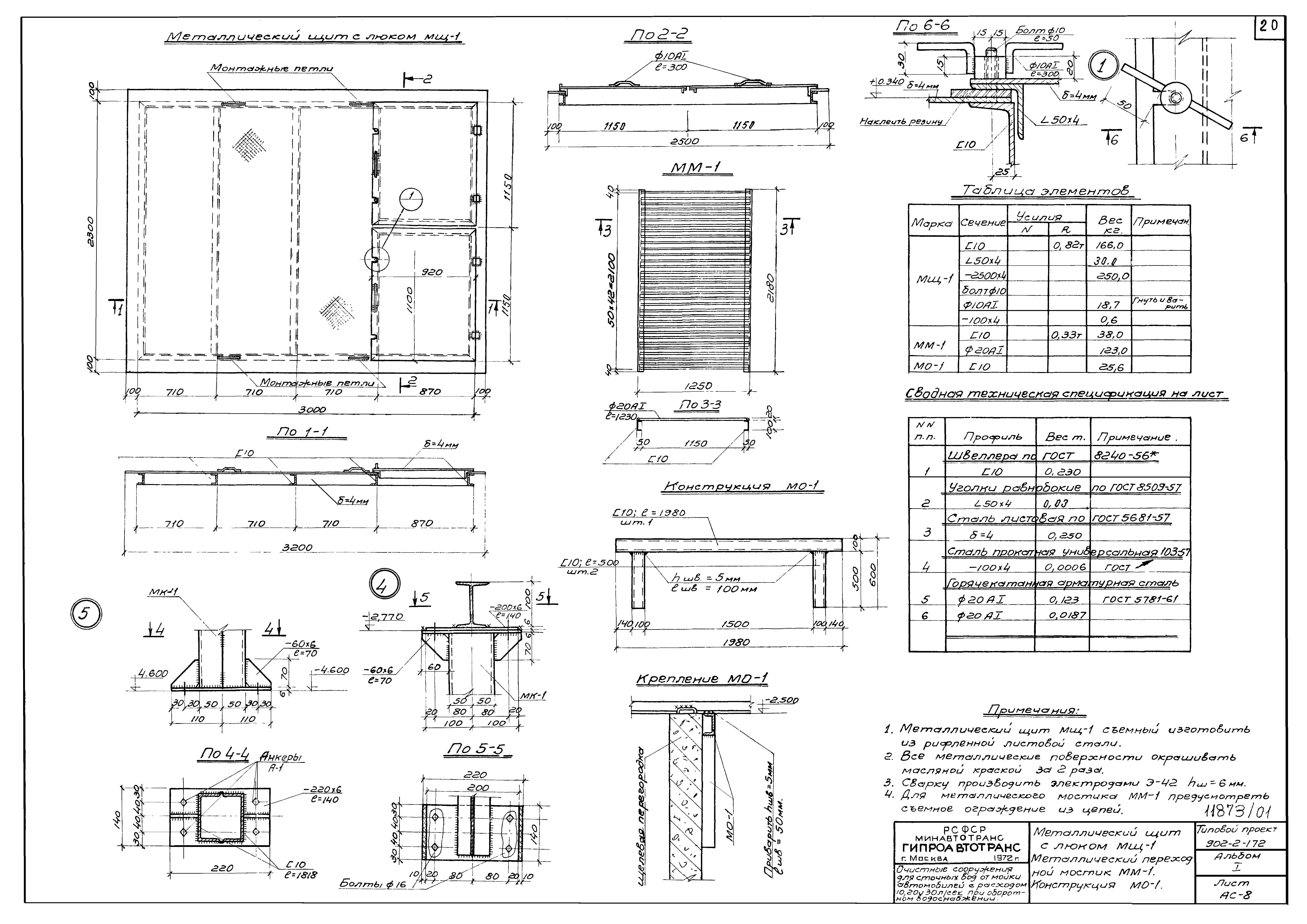
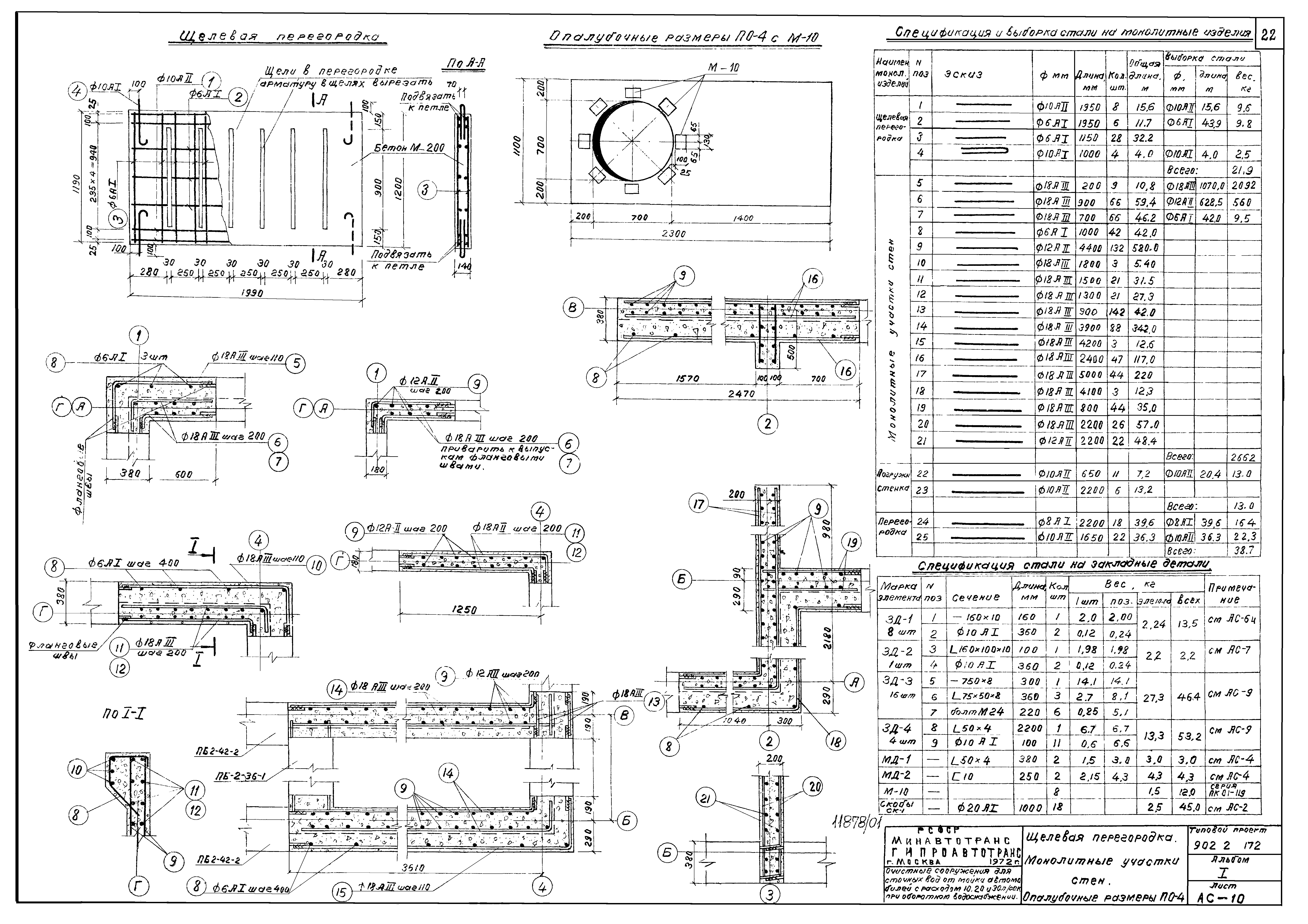
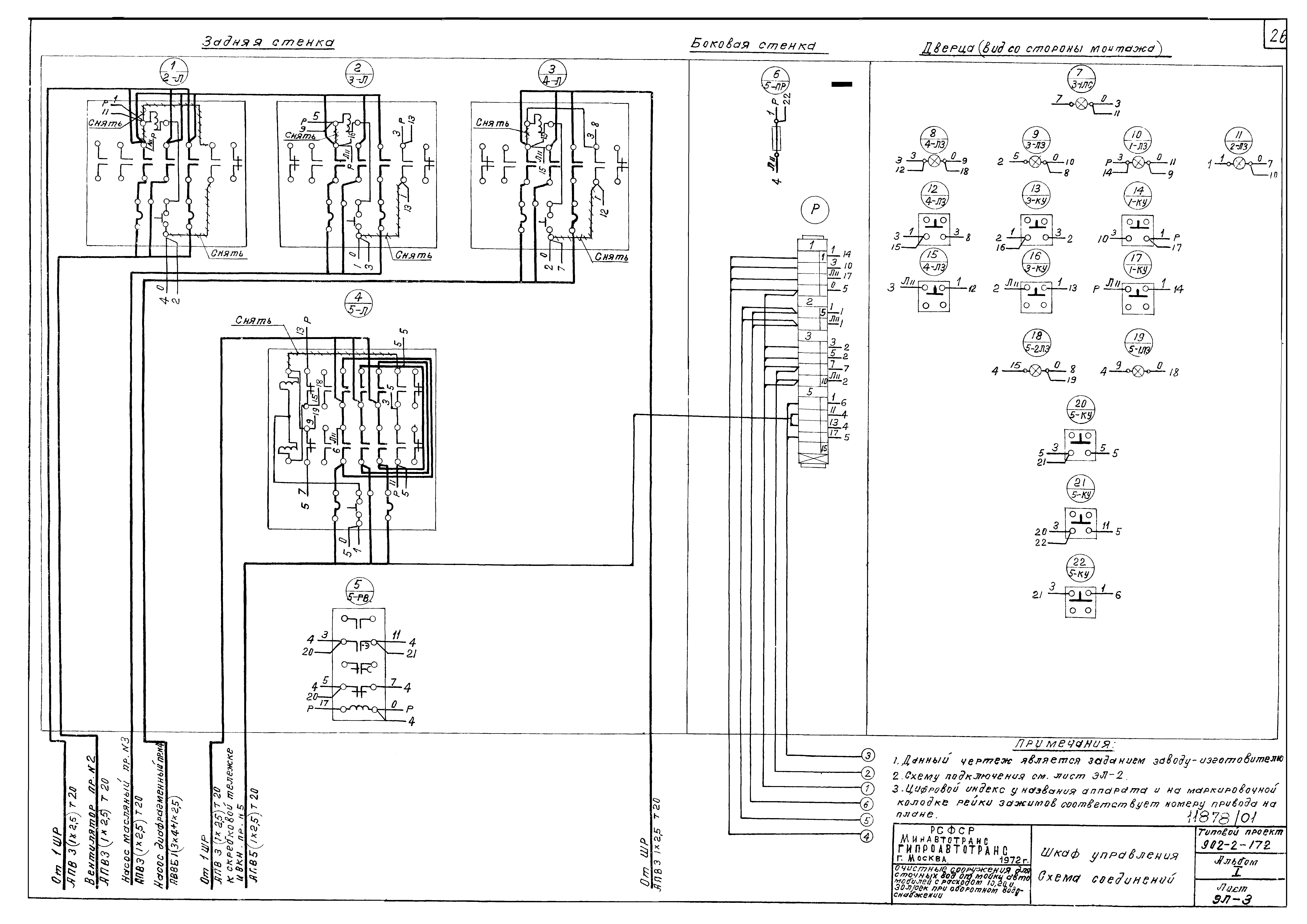
| Оглавление: | ТП 902-2-171 Содержание альбома ТП 902-2-171 Общая часть ТП 902-2-171-ТХ-1 Заглавный лист. Пояснительная записка (начало) ТП 902-2-171-ТХ-2 Пояснительная записка ТП 902-2-171-ТХ-3 Пояснительная записка (окончание) ТП 902-2-171-ТХ-4 План односекционный очистных сооружений производительностью 10л/сек и разрезы. Разрезы ТП 902-2-171-ТХ-5 Схема подачи воды на мойку автомобилей. Схема удаления масла из очистных сооружений. Распределительные трубы от отстойника к фильтрам. Схема удаления осадка из очистных сооружений. Установка гидроэлеватора в приямке для осадка ТП 902-2-171-ТХ-6 Реагентное хозяйство. План. Разрезы. Принципиальная схема ТП 902-2-171-ТХ-7 Тележка скребковая. (Общий вид) ТП 902-2-171-ТХ-8 Спецификация материалов ТП 902-2-171-ОВ-1 Отопление и вентиляция. План на отм. -2.500. Схема трубопроводов отопления. Схема воздуховодов. Разрезы 1-1 и 2-2. Спецификация ТП 902-2-171-АС-1 Заглавный лист ТП 902-2-171-АС-2 План отстойника. Разрезы 1-1,2-2,3-3,4-4 ТП 902-2-171-АС-3 План фундаментов и монолитного днища. Планы раскладки сеток и каркасов. Сечения ТП 902-2-171-АС-4 Сетки и каркасы монолитного днища. План фундаментов насосов в насосной. Крепление щелевой перегородки ТП 902-2-171-АС-5 План покрытия. Разрезы. Деревянные щиты ДЩ-1,ДЩ-2 ТП 902-2-171-АС-6 Маркировочные схемы прогонов. Разрезы. Узлы ТП 902-2-171-АС-7 Монтажная схема металлических площадок. Разрезы 1-1,2-2. Узлы. Рама фильтра ТП 902-2-171-АС-8 Металлический щит с люком МЩ-1. Металлический переходной мостик ММ-1. Конструкция МО-1 ТП 902-2-171-АС-9 Развертки стен по осям "Г","В","Б","А","2","3". Узлы №1,2. Закладные детали ЗД-3,ЗД-4 ТП 902-2-171-АС-10 Щелевая перегородка. Монолитные участки стен. Опалубочные размеры ПО-4 ТП 902-2-171-АС-11 Панель ПБИ42-1. Общий вид. Армирование ТП 902-2-171-ЭЛ-1 Силовое электрооборудование. Электроосвещение ТП 902-2-171-ЭЛ-2 Схемы управления электроприводами №1,2,3,4. Схема подключения. Общий вид шкафа управления ТП 902-2-171-ЭЛ-3 Шкаф управления. Схема соединений ТП 902-2-171 Технологическая часть. Заказная спецификация. Спецификация материалов, не вошедших в заказную спецификацию ТП 902-2-171 Отопление и вентиляция. Заказная спецификация. Спецификация материалов, не вошедших в заказную спецификацию ТП 902-2-171 Электроосвещение. Силовое электрооборудование. Заказные спецификации ТП 902-2-171 Электроосвещение. Силовое электрооборудование. Заказные спецификации (окончание) |
| Разработан: | Гипроавтотранс |
| Утверждён: | 24.05.1972 Минавтотранс РСФСР (Russian Federation Minavtotrans 50) |






























