Скачать Типовой проект 902-2-268 Альбом V. Сборные железобетонные элементыДата актуализации: 01.01.2021
|
| Обозначение: | Типовой проект 902-2-268 |
| Обозначение англ: | 902-2-268 |
| Статус: | не действует |
| Название рус.: | Альбом V. Сборные железобетонные элементы |
| Дата добавления в базу: | 01.09.2013 |
| Дата актуализации: | 01.01.2021 |
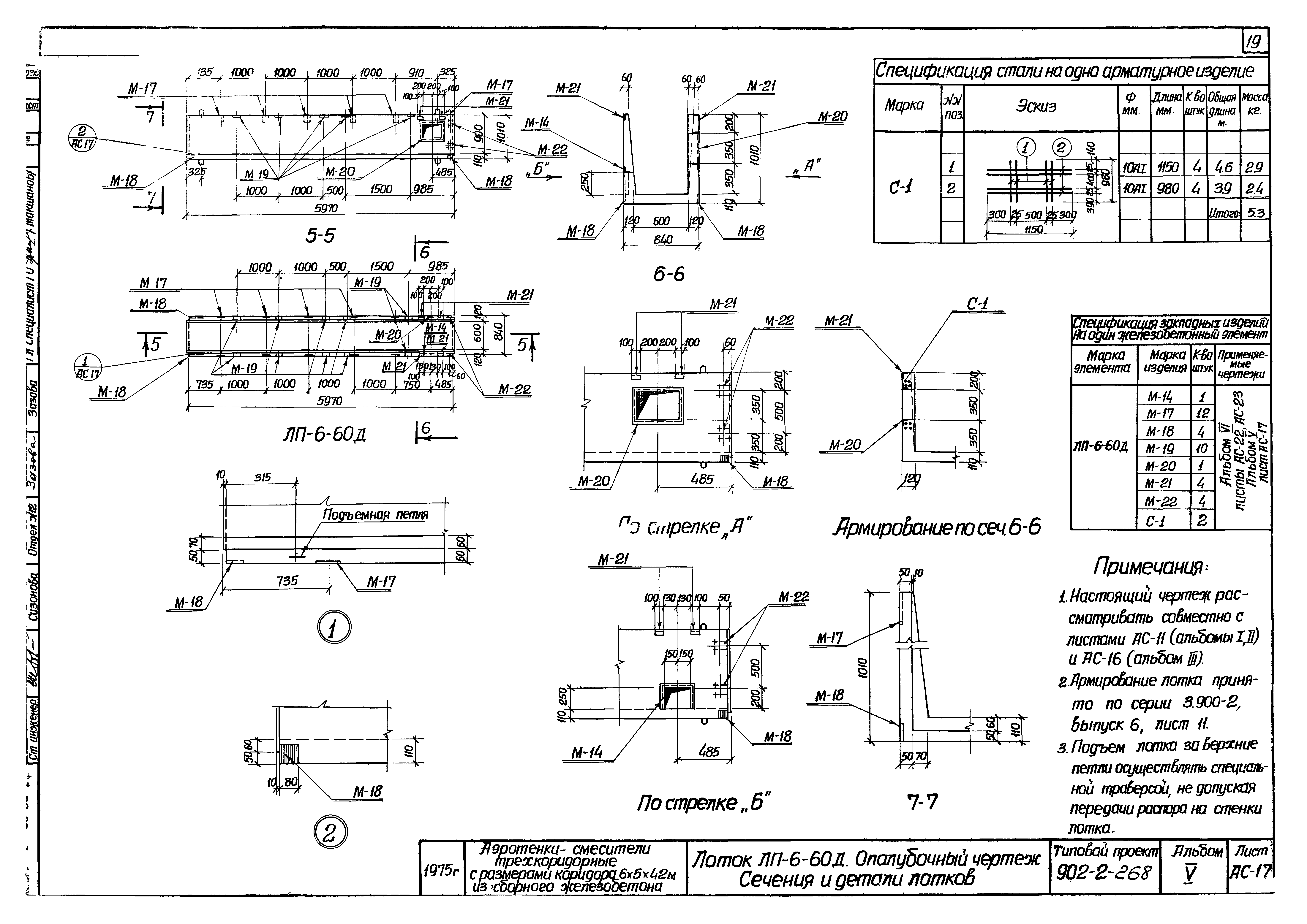
| Оглавление: | ТП 902-2-268-ПЗ-1 Содержание альбома ТП 902-2-268-АС-1 Стеновые панели ПК1-54-1А, ПК1-54-1Б, ПК1-54-1В, ПК1-54-1Г, ПК1-54-1Д, ПК1-54-1Е, ПК1-54-1Ж, ПК1-54-1И, ПКУ1-54-1А, ПКУ1-54-1В. Опалубочный чертеж ТП 902-2-268-АС-2 Стеновая панель ПКУ1-54-1Б. Опалубочный чертеж и армирование ТП 902-2-268-АС-3 Стеновая панель ПКУ1-54-1Г. Опалубочный чертеж и армирование ТП 902-2-268-АС-4 Стеновая панель ПКУ1-54-1Д. Опалубочный чертеж и армирование ТП 902-2-268-АС-5 Стеновые панели. Детали и сечения ТП 902-2-268-АС-6 Стеновые панели. Сетки С-1÷С-10 ТП 902-2-268-АС-7 Стеновые панели. Каркасы К-1÷К-9 ТП 902-2-268-АС-8 Стеновые панели. Сетки и каркасы. Спецификация арматуры ТП 902-2-268-АС-9 Перегородочные панели ПП2-45-1А,ПП2-45-1Б,ПП2-45-1В,ПП2-45-1Г,ПП2-54-1. Опалубочный чертеж ТП 902-2-268-АС-10 Перегородочные панели ПП2-45-1А,ПП2-45-1Б,ПП2-45-1В,ПП2-45-1Г,ПП2-54-1. Армирование ТП 902-2-268-АС-11 Перегородочные панели ПП2-45-1А,ПП2-45-1Б,ПП2-45-1В,ПП2-45-1Г,ПП2-54-1. Сетки, каркас. Спецификация арматуры ТП 902-2-268-АС-12 Балка БС-1. Опорная подушка ОП-1. Опалубочный чертеж и армирование ТП 902-2-268-АС-13 Плиты ПС-1÷ПС-5. Опалубочный чертеж и армирование ТП 902-2-268-АС-14 Плиты ПС-1÷ПС-5. Сетки, каркасы. Спецификация арматуры ТП 902-2-268-АС-15 Стеновые кольца. Опалубочный чертеж и армирование ТП 902-2-268-АС-16 Лотки ЛП-6-60А, ЛП-6-60Б, ЛП-6-60В, ЛП-6-60Г. Опалубочный чертеж ТП 902-2-268-АС-17 Лотки ЛП-6-60Д. Опалубочный чертеж. Сечения и летали лотков ТП 902-2-268-АС-18 Каналы для пористых пластин КП-1,КП-2. Арматурно-опалубочный чертеж |
| Разработан: | Союзводоканалпроект ЦНИИпромзданий |
| Утверждён: | 09.12.1975 Главпромстройпроект Госстроя СССР |




















