Скачать Типовой проект 903-1-152 Альбом XX. Газопроводы и воздухопроводы, металлоконструкции котлоагрегатаДата актуализации: 01.01.2021
|
| Обозначение: | Типовой проект 903-1-152 |
| Обозначение англ: | 903-1-152 |
| Статус: | заменен |
| Название рус.: | Альбом XX. Газопроводы и воздухопроводы, металлоконструкции котлоагрегата |
| Дата добавления в базу: | 01.09.2013 |
| Дата актуализации: | 01.01.2021 |
| Дата окончания срока действия: | 01.03.1987 |
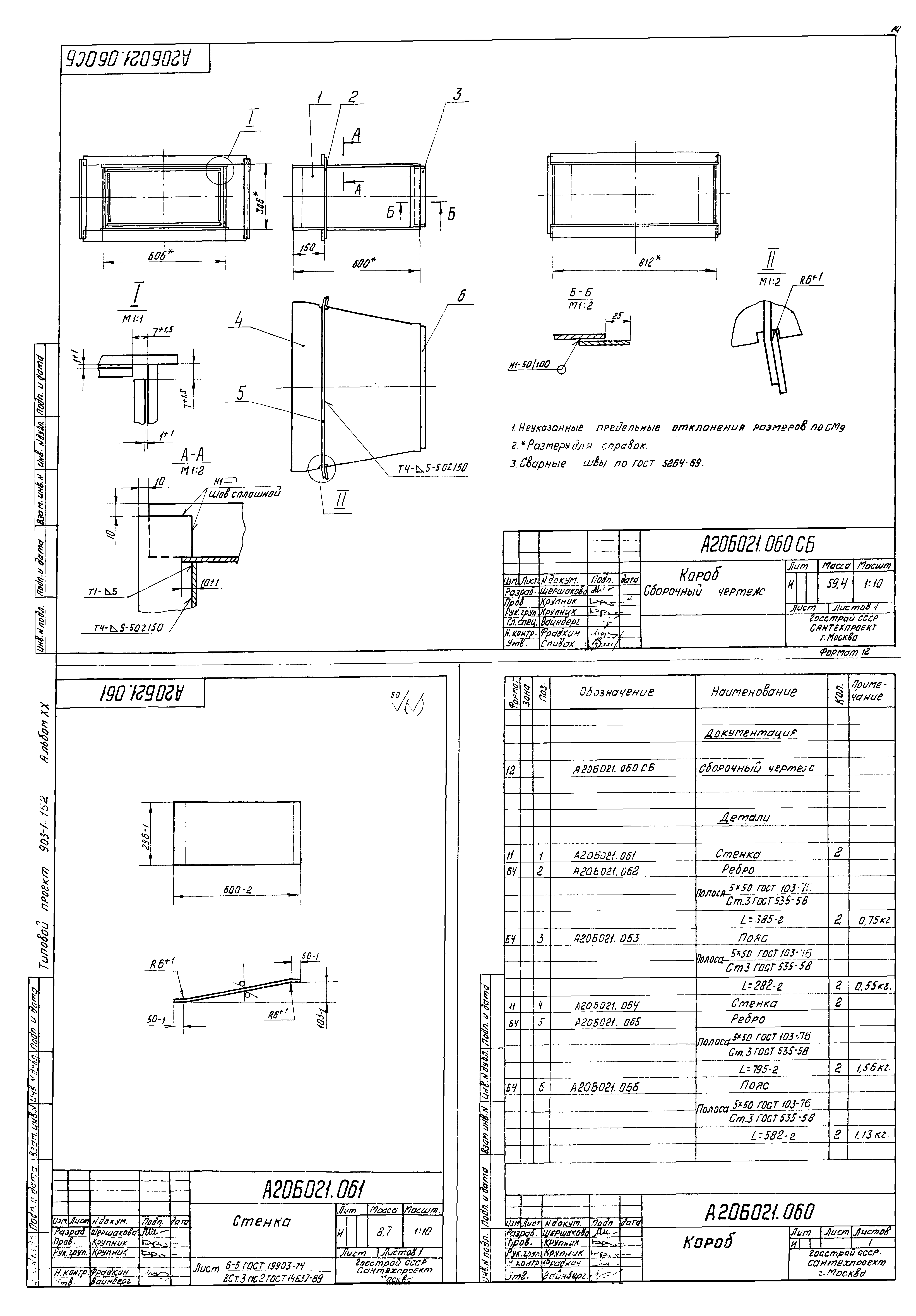
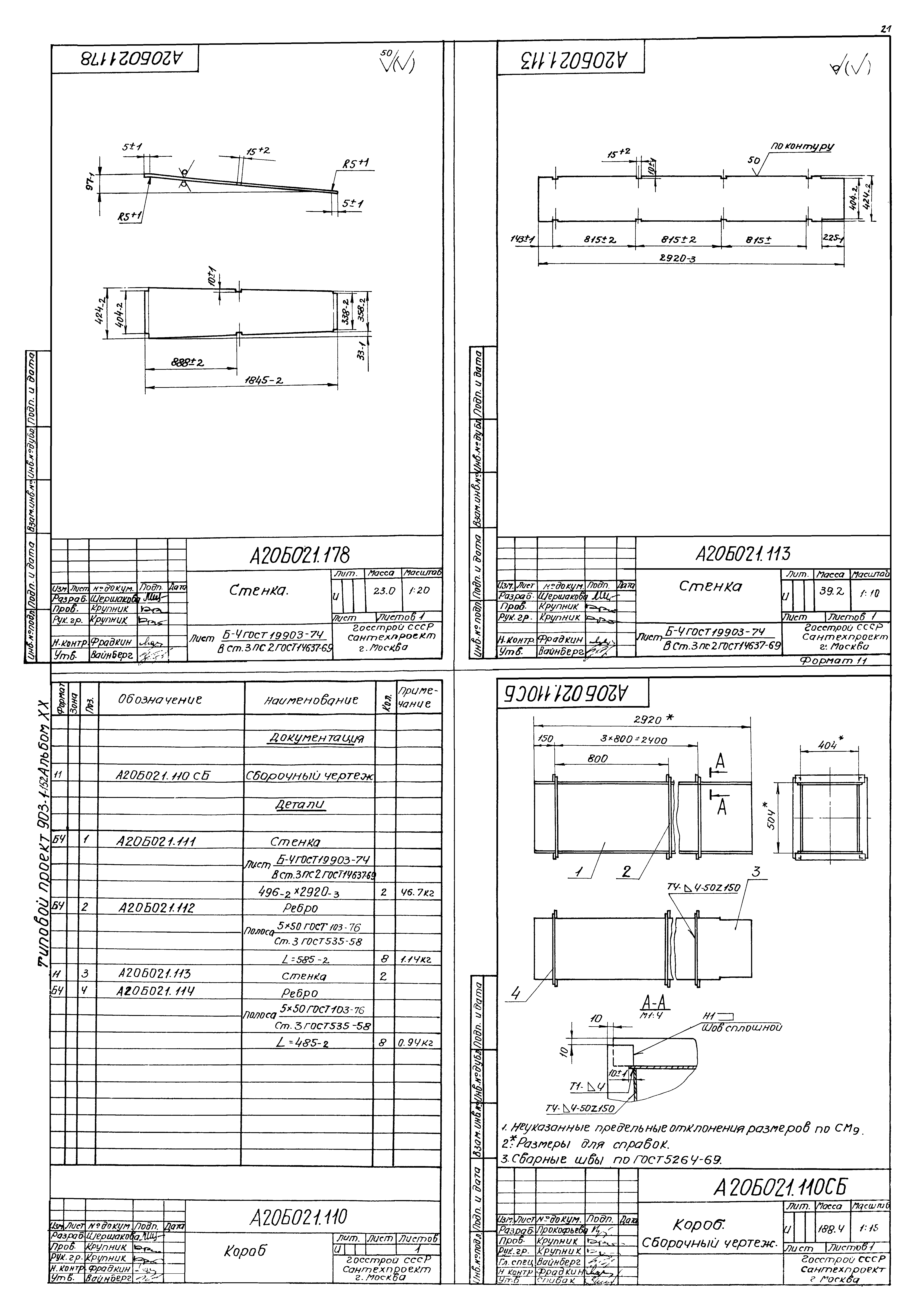
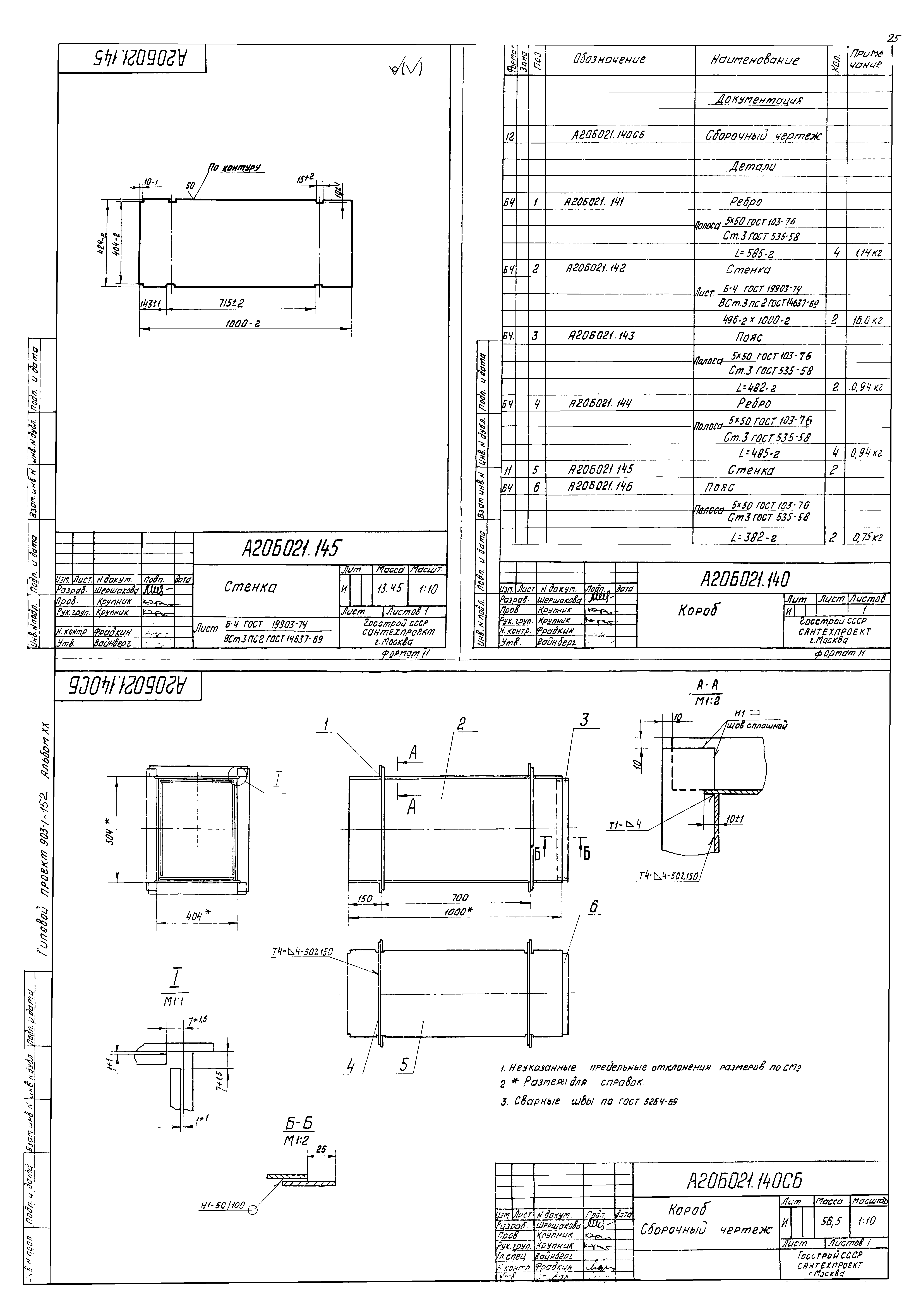
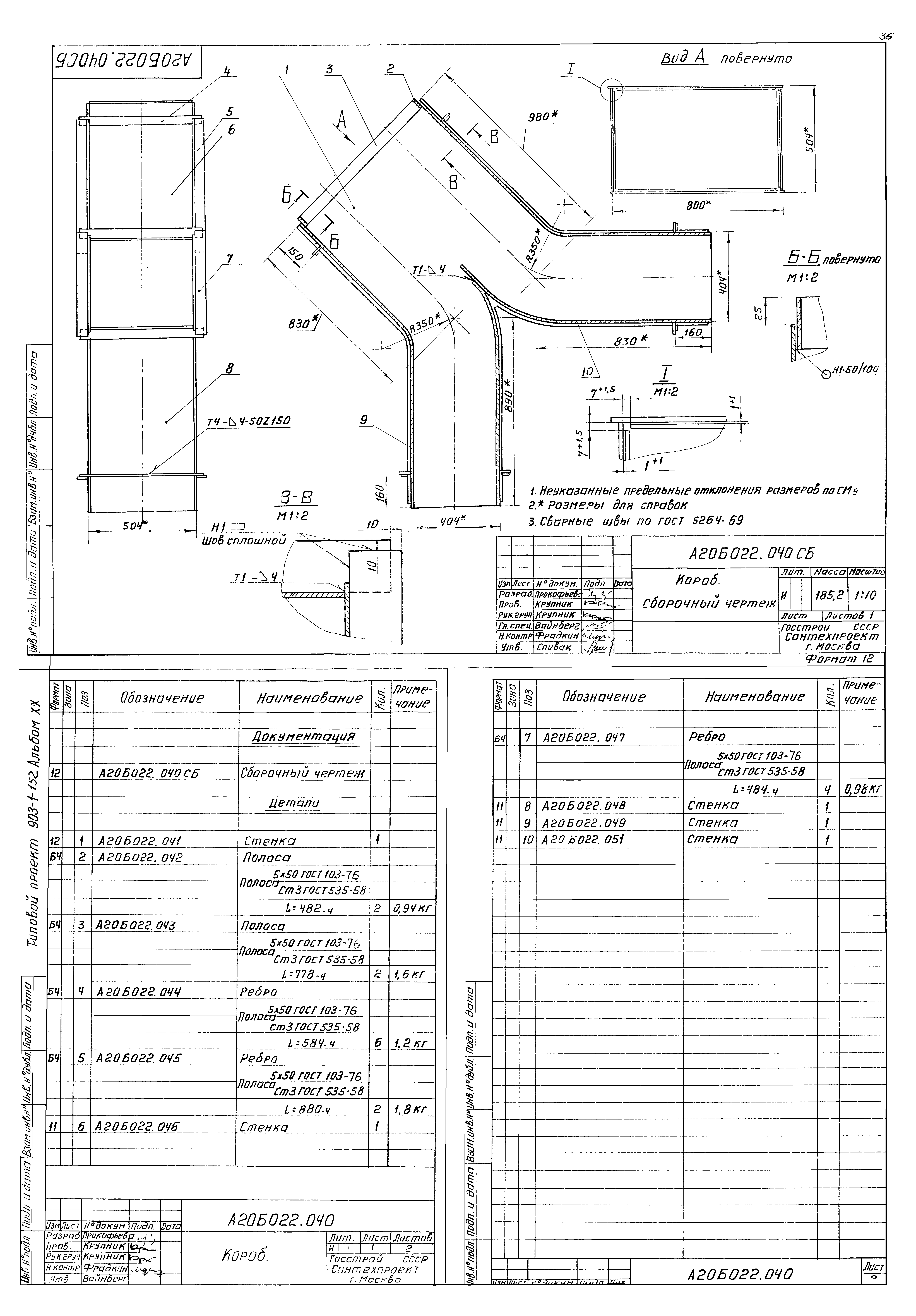
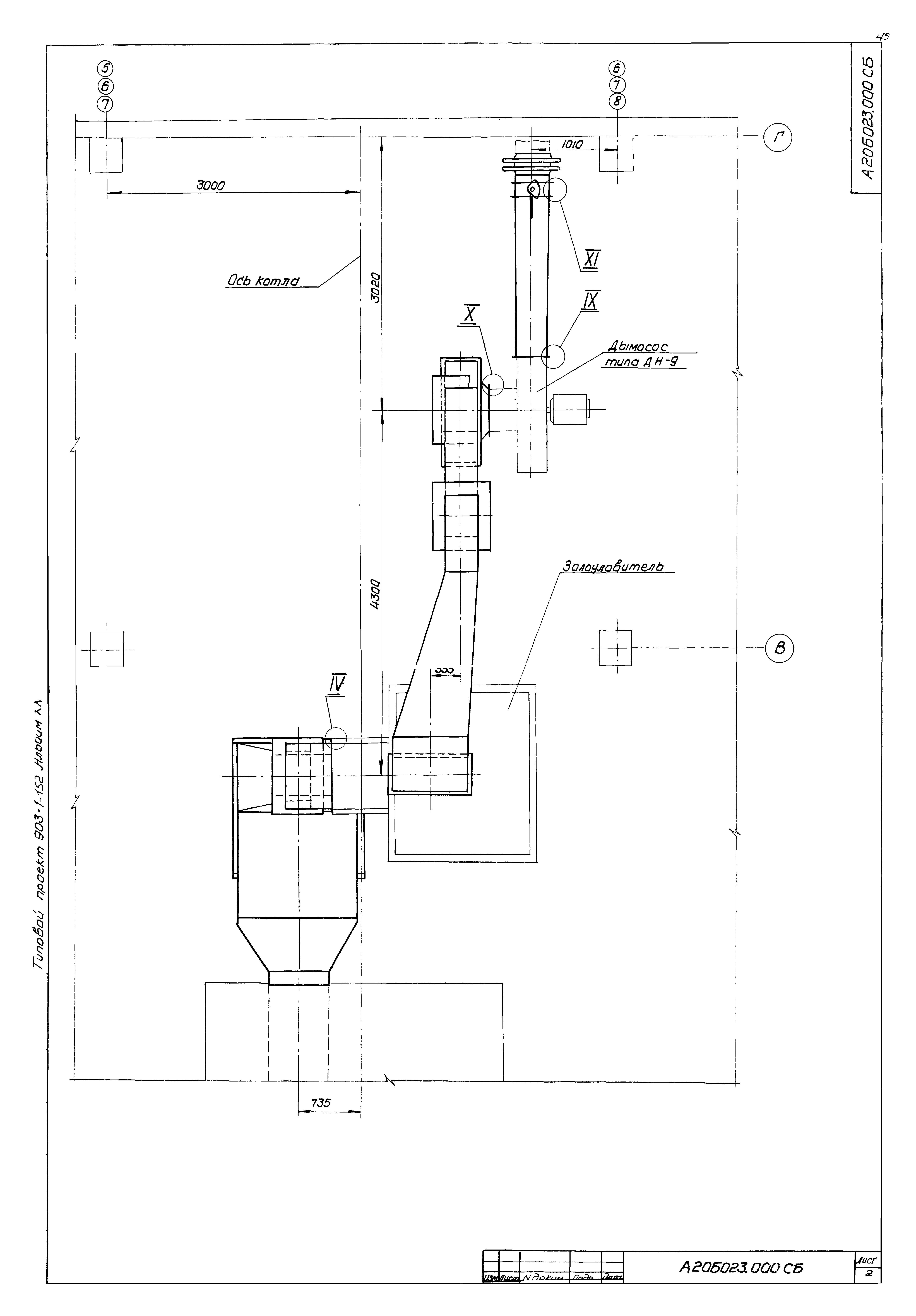
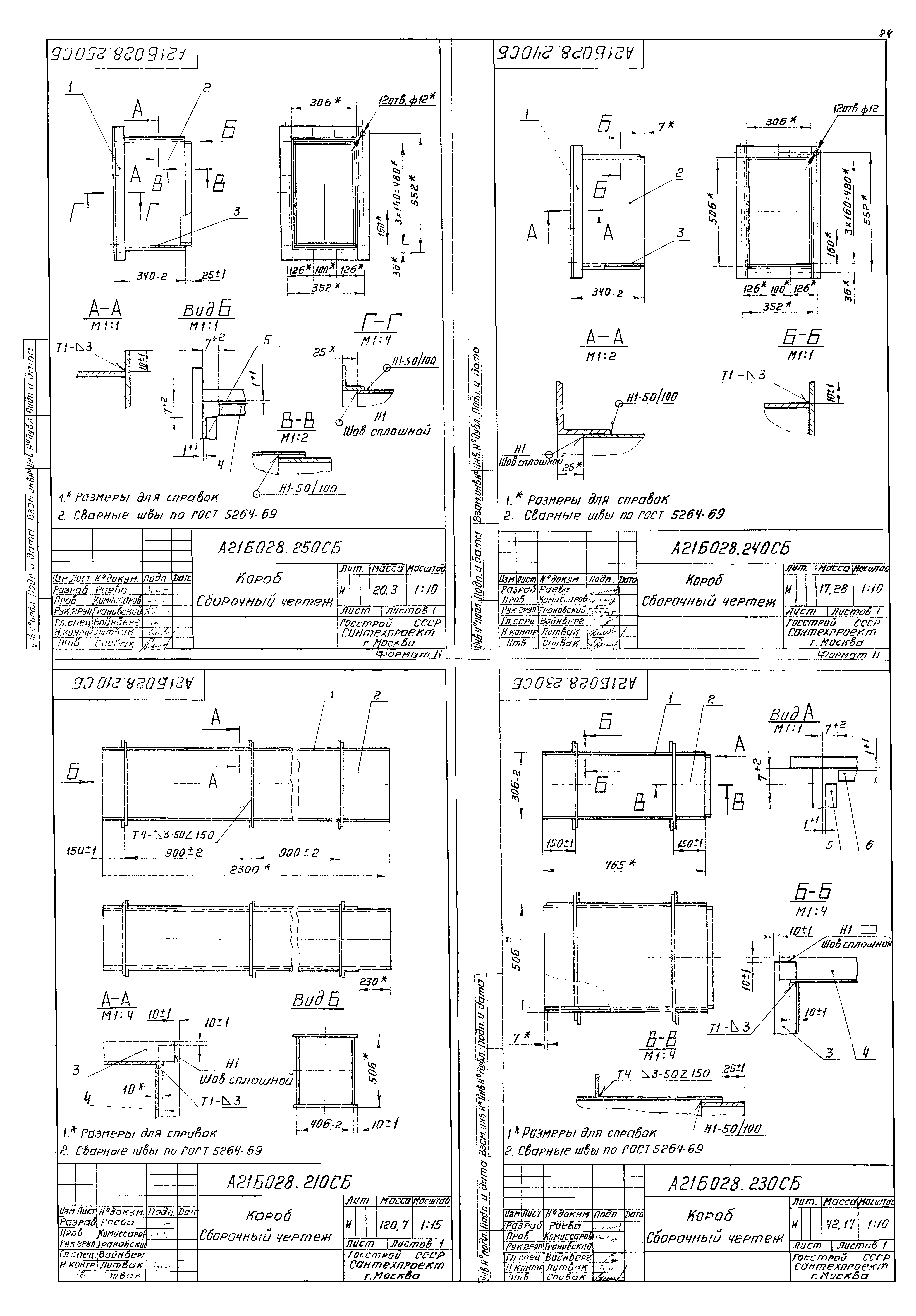
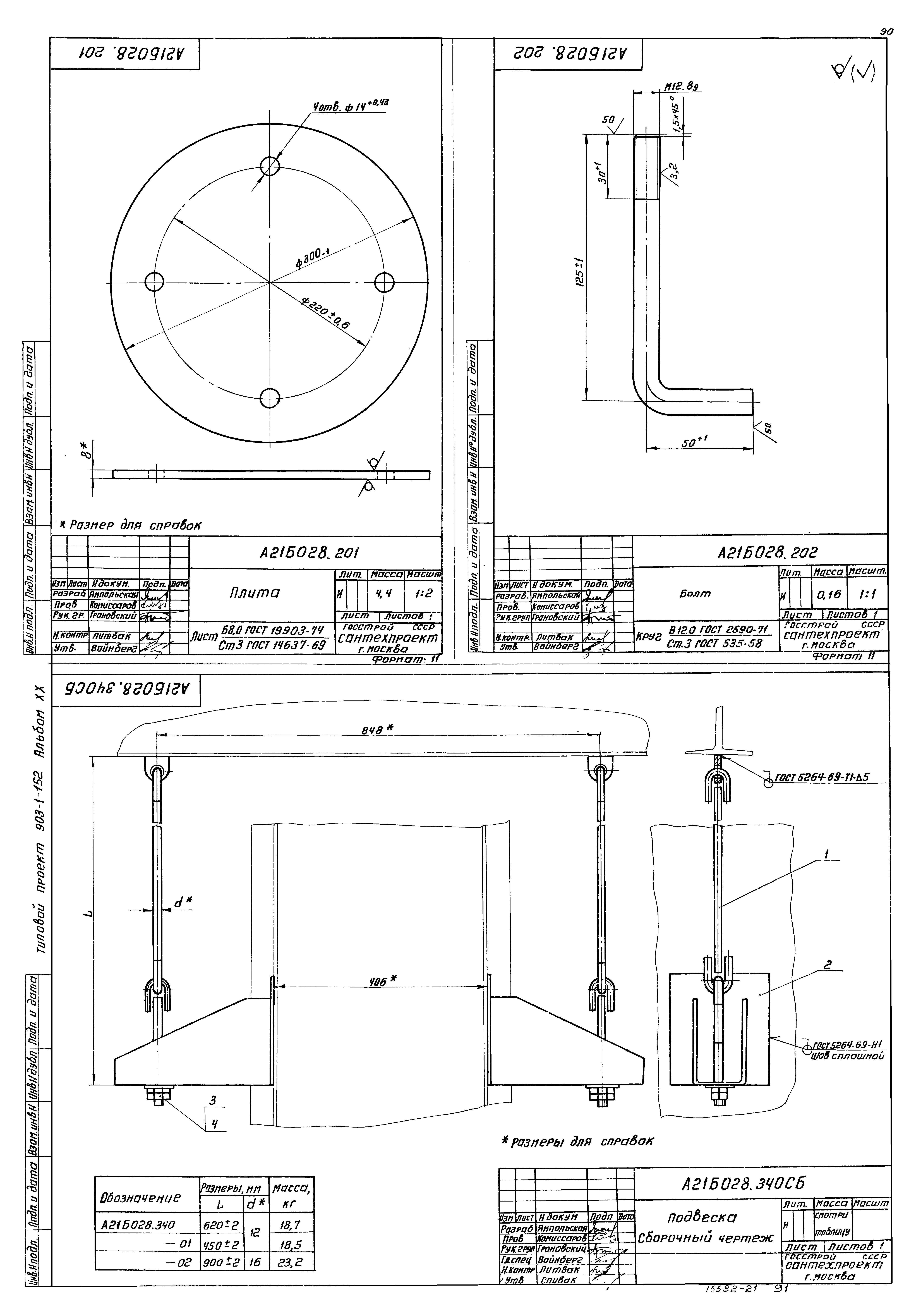
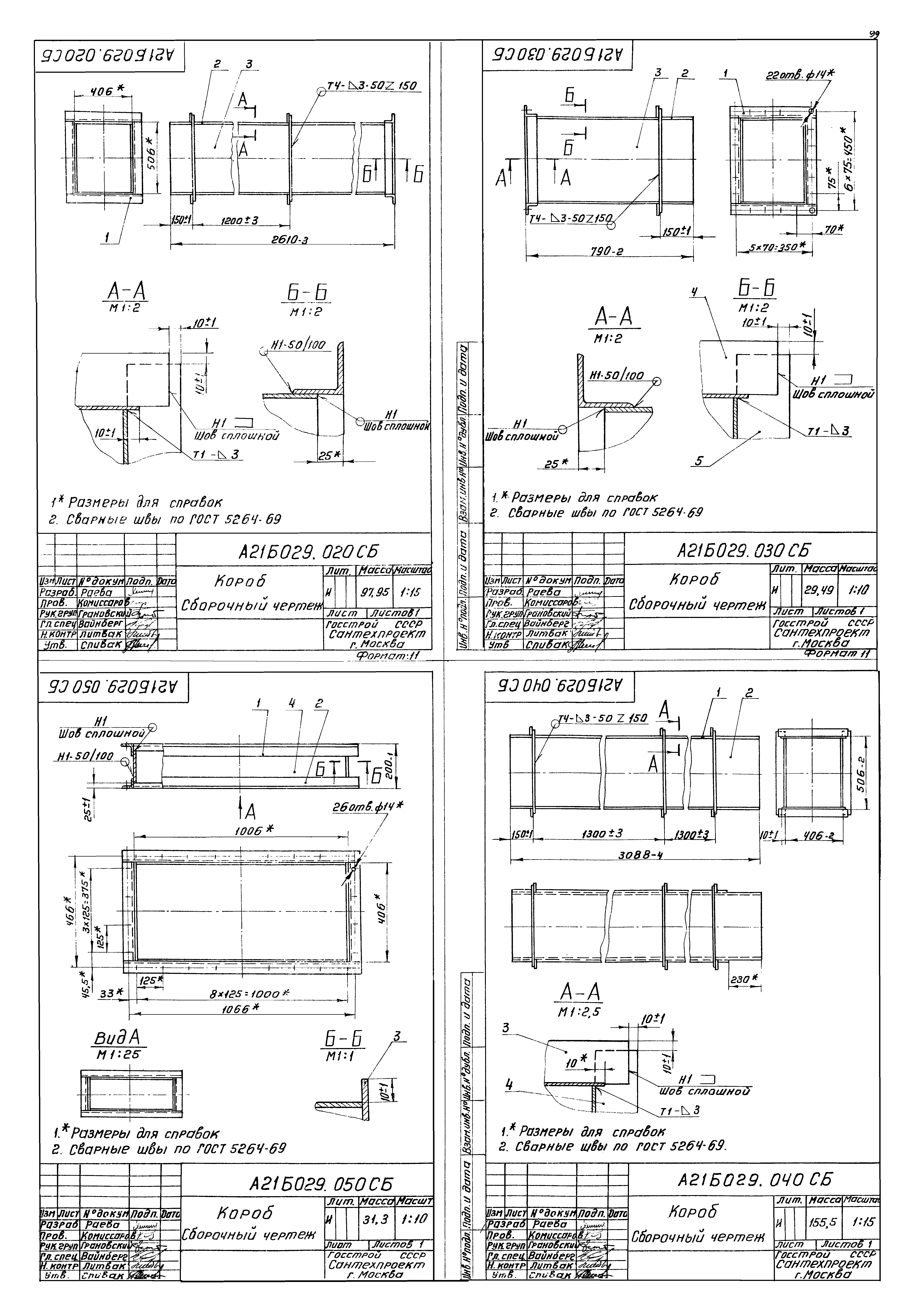
| Оглавление: | ТП 903-1-152 Содержание ТП 903-1-152 А20Б021.000 Газопровод котлоагрегата (топливо-каменные угли) ТП 903-1-152 А20Б022.012 Стенка ТП 903-1-152 А20Б021.000 СБ Газопровод котлоагрегата (топливо-каменные угли). Сборочный чертеж ТП 903-1-152 А20Б021.010 Короб ТП 903-1-152 А20Б021.010 СБ Короб. Сборочный чертеж ТП 903-1-152 А20Б021.011 Стенка ТП 903-1-152 А20Б021.017 Стенка ТП 903-1-152 А20Б021.023 Стенка ТП 903-1-152 А20Б021.025 Стенка ТП 903-1-152 А20Б021.020 Короб ТП 903-1-152 А20Б021.020 СБ Короб. Сборочный чертеж ТП 903-1-152 А20Б021.030 Короб ТП 903-1-152 А20Б021.030 СБ Короб. Сборочный чертеж ТП 903-1-152 А20Б021.034 Стенка ТП 903-1-152 А20Б021.064 Стенка ТП 903-1-152 А20Б021.040 Короб ТП 903-1-152 А20Б021.040 СБ Короб. Сборочный чертеж ТП 903-1-152 А20Б021.045 Стенка ТП 903-1-152 А20Б021.050 Короб ТП 903-1-152 А20Б021.050 СБ Короб. Сборочный чертеж ТП 903-1-152 А20Б021.054 Стенка ТП 903-1-152 А20Б021.060 Короб ТП 903-1-152 А20Б021.060 СБ Короб. Сборочный чертеж ТП 903-1-152 А20Б021.061 Стенка ТП 903-1-152 А20Б021.070 Короб ТП 903-1-152 А20Б021.070 СБ Короб. Сборочный чертеж ТП 903-1-152 А20Б021.071 Стенка ТП 903-1-152 А20Б021.074 Стенка ТП 903-1-152 А20Б021.080 Короб ТП 903-1-152 А20Б021.075 Стенка ТП 903-1-152 А20Б021.083 Стенка ТП 903-1-152 А20Б022.061 Стенка ТП 903-1-152 А20Б021.080 СБ Короб. Сборочный чертеж ТП 903-1-152 А20Б021.082 Стенка ТП 903-1-152 А20Б021.085 Стенка ТП 903-1-152 А20Б021.090 Короб ТП 903-1-152 А20Б021.090 СБ Короб. Сборочный чертеж ТП 903-1-152 А20Б021.092 Стенка ТП 903-1-152 А20Б021.095 Стенка ТП 903-1-152 А20Б021.096 Стенка ТП 903-1-152 А20Б021.099 Стенка ТП 903-1-152 А20Б021.100 Короб ТП 903-1-152 А20Б021.100 СБ Короб. Сборочный чертеж ТП 903-1-152 А20Б021.104 Стенка ТП 903-1-152 А20Б021.110 Короб ТП 903-1-152 А20Б021.110 СБ Короб. Сборочный чертеж ТП 903-1-152 А20Б021.113 Стенка ТП 903-1-152 А20Б021.178 Стенка ТП 903-1-152 А20Б021.120 Короб ТП 903-1-152 А20Б021.120 СБ Короб. Сборочный чертеж ТП 903-1-152 А20Б021.125 Стенка ТП 903-1-152 А20Б021.130 Короб ТП 903-1-152 А20Б021.105 Стенка ТП 903-1-152 А20Б021.106 Стенка ТП 903-1-152 А20Б021.133 Стенка ТП 903-1-152 А20Б021.130 СБ Короб. Сборочный чертеж ТП 903-1-152 А20Б021.131 Стенка ТП 903-1-152 А20Б021.135 Стенка ТП 903-1-152 А20Б021.140 Короб ТП 903-1-152 А20Б021.140 СБ Короб. Сборочный чертеж ТП 903-1-152 А20Б021.145 Стенка ТП 903-1-152 А20Б021.150 Короб ТП 903-1-152 А20Б021.150 СБ Короб. Сборочный чертеж ТП 903-1-152 А20Б021.156 Стенка ТП 903-1-152 А20Б021.160 Карман всасывающий ТП 903-1-152 А20Б021.162 Обечайка ТП 903-1-152 А20Б021.163 Переход ТП 903-1-152 А20Б021.165 Стенка задняя ТП 903-1-152 А20Б021.160 СБ Карман всасывающий. Сборочный чертеж ТП 903-1-152 А20Б021.161 Стенка передняя ТП 903-1-152 А20Б021.164 Фланец ТП 903-1-152 А20Б021.170 Короб ТП 903-1-152 А20Б021.170 СБ Короб. Сборочный чертеж ТП 903-1-152 А20Б021.180 СБ Короб ТП 903-1-152 А20Б021.180 СБ Короб. Сборочный чертеж ТП 903-1-152 А20Б021.190;01 Опора ТП 903-1-152 А20Б021.190 СБ Опора. Сборочный чертеж ТП 903-1-152 А20Б021.200 Опора ТП 903-1-152 А20Б021.200 СБ Опора. Сборочный чертеж ТП 903-1-152 А20Б021.154 Стенка ТП 903-1-152 А20Б021.173 Стенка ТП 903-1-152 А20Б022.000 Газопровод котельной (топливо-каменные и бурые угли) ТП 903-1-152 А20Б022.000 СБ Газопровод котельной (топливо-каменные и бурые угли). Сборочный чертеж ТП 903-1-152 А20Б021.181 Стенка ТП 903-1-152 А20Б022.010 Короб ТП 903-1-152 А20Б022.010 СБ Короб. Сборочный чертеж ТП 903-1-152 А20Б022.013 Стенка ТП 903-1-152 А20Б022.016 Стенка ТП 903-1-152 А20Б022.020 Короб ТП 903-1-152 А20Б022.020 СБ Короб. Сборочный чертеж ТП 903-1-152 А20Б022.024 Стенка ТП 903-1-152 А20Б022.030 Короб ТП 903-1-152 А20Б022.030 СБ Короб. Сборочный чертеж ТП 903-1-152 А20Б022.032 Стенка ТП 903-1-152 А20Б022.013 Стенка ТП 903-1-152 А20Б022.040 Короб ТП 903-1-152 А20Б022.040 СБ Короб. Сборочный чертеж ТП 903-1-152 А20Б022.041 Стенка ТП 903-1-152 А20Б022.046 Стенка ТП 903-1-152 А20Б022.049 Стенка ТП 903-1-152 А20Б022.050 Короб ТП 903-1-152 А20Б022.050 СБ Короб. Сборочный чертеж ТП 903-1-152 А20Б022.053 Стенка ТП 903-1-152 А20Б022.048 Стенка ТП 903-1-152 А20Б022.051 Стенка ТП 903-1-152 А20Б022.054 Стенка ТП 903-1-152 А20Б022.059 Стенка ТП 903-1-152 А20Б022.060 Короб ТП 903-1-152 А20Б022.060 СБ Короб. Сборочный чертеж ТП 903-1-152 А20Б022.063 Стенка ТП 903-1-152 А20Б022.068 Стенка ТП 903-1-152 А20Б022.072 Стенка ТП 903-1-152 А20Б022.079 Стенка ТП 903-1-152 А20Б022.070 Короб ТП 903-1-152 А20Б022.070 СБ Короб. Сборочный чертеж ТП 903-1-152 А20Б022.074 Стенка ТП 903-1-152 А20Б022.076 Стенка ТП 903-1-152 А20Б023.000 Газопровод котлоагрегата (топливо-бурые угли) ТП 903-1-152 А20Б023.012 Стенка ТП 903-1-152 А20Б023.000 СБ Газопровод котлоагрегата (топливо-бурые угли). Сборочный чертеж ТП 903-1-152 А20Б023.010 Короб ТП 903-1-152 А20Б023.010 СБ Короб. Сборочный чертеж ТП 903-1-152 А20Б023.015 Стенка ТП 903-1-152 А20Б023.020 Короб ТП 903-1-152 А20Б023.021 Стенка ТП 903-1-152 А20Б023.023 Стенка ТП 903-1-152 А20Б023.020 СБ Короб. Сборочный чертеж ТП 903-1-152 А20Б023.030 Короб ТП 903-1-152 А20Б023.022 Стенка ТП 903-1-152 А20Б023.027 Стенка ТП 903-1-152 А20Б023.030 СБ Короб. Сборочный чертеж ТП 903-1-152 А20Б023.032 Стенка ТП 903-1-152 А20Б023.035 Стенка ТП 903-1-152 А21Б028.000 Воздуховод котлоагрегата (топливо-бурые угли) ТП 903-1-152 А21Б028.026 Лист ТП 903-1-152 А21Б028.000 СБ Воздуховод котлоагрегата (топливо-бурые угли). Сборочный чертеж ТП 903-1-152 А21Б028.179 Стенка ТП 903-1-152 А21Б028.002 Швеллер ТП 903-1-152 А21Б028.003 Стяжка ТП 903-1-152 А21Б028.005 Ручка ТП 903-1-152 А21Б028.010 Патрубок ТП 903-1-152 А21Б028.010 СБ Патрубок. Сборочный чертеж ТП 903-1-152 А21Б028.020 Фланец ТП 903-1-152 А21Б028.030 Короб ТП 903-1-152 А21Б028.040 Короб ТП 903-1-152 А21Б028.050 Короб ТП 903-1-152 А21Б028.020 СБ Фланец. Сборочный чертеж ТП 903-1-152 А21Б028.015 Лист ТП 903-1-152 А21Б028.016 Лист ТП 903-1-152 А21Б028.017 Лист ТП 903-1-152 А21Б028.030 СБ Короб. Сборочный чертеж ТП 903-1-152 А21Б028.040 СБ Короб. Сборочный чертеж ТП 903-1-152 А21Б028.060 Фланец ТП 903-1-152 А21Б028.060 СБ Фланец. Сборочный чертеж ТП 903-1-152 А21Б028.050 СБ Короб. Сборочный чертеж ТП 903-1-152 А21Б028.070 Патрубок ТП 903-1-152 А21Б028.036 Лист ТП 903-1-152 А21Б028.075 Лист ТП 903-1-152 А21Б028.076 Лист ТП 903-1-152 А21Б028.077 Лист ТП 903-1-152 А21Б028.080 Заслонка ТП 903-1-152 А21Б028.090 Короб ТП 903-1-152 А21Б028.044 Лист ТП 903-1-152 А21Б028.080 СБ Заслонка. Сборочный чертеж ТП 903-1-152 А21Б028.091 Вкладыш ТП 903-1-152 А21Б028.092 Втулка ТП 903-1-152 А21Б028.093 Вал ТП 903-1-152 А21Б028.102 Ушко ТП 903-1-152 А21Б028.094 Лист ТП 903-1-152 А21Б028.095 Лист ТП 903-1-152 А21Б028.096 Лист ТП 903-1-152 А21Б028.097 Лист ТП 903-1-152 А21Б028.090 СБ Короб. Сборочный чертеж ТП 903-1-152 А21Б028.100 Вал ТП 903-1-152 А21Б028.110 СБ Заслонка. Сборочный чертеж ТП 903-1-152 А21Б028.110 Заслонка ТП 903-1-152 А21Б028.120 Переход ТП 903-1-152 А21Б028.130 Переход ТП 903-1-152 А21Б028.215 Косынка ТП 903-1-152 А21Б028.120 СБ Переход. Сборочный чертеж ТП 903-1-152 А21Б028.130 СБ Переход. Сборочный чертеж ТП 903-1-152 А21Б028.0035 Лист ТП 903-1-152 А21Б028.103 Ребро ТП 903-1-152 А21Б028.106 Лист ТП 903-1-152 А21Б028.107 Лист ТП 903-1-152 А21Б028.140 Короб ТП 903-1-152 А21Б028.150 Переход ТП 903-1-152 А21Б028.108 Лист ТП 903-1-152 А21Б028.121 Лист ТП 903-1-152 А21Б028.170 СБ Патрубок. Сборочный чертеж ТП 903-1-152 А21Б028.140 СБ Короб. Сборочный чертеж ТП 903-1-152 А21Б028.150 СБ Переход. Сборочный чертеж ТП 903-1-152 А21Б028.160 Карман всасывающий ТП 903-1-152 А21Б028.170 Короб ТП 903-1-152 А21Б028.122 Лист ТП 903-1-152 А21Б028.160 СБ Карман всасывающий. Сборочный чертеж ТП 903-1-152 А21Б028.125 Сектор ТП 903-1-152 А21Б028.126 Конус ТП 903-1-152 А21Б028.127 Патрубок ТП 903-1-152 А21Б028.128 Стенка ТП 903-1-152 А21Б028.129 Лист ТП 903-1-152 А21Б028.131 Лист ТП 903-1-152 А21Б028.133 Лист ТП 903-1-152 А21Б028.137 Фланец ТП 903-1-152 А21Б028.180 Патрубок ТП 903-1-152 А21Б028.190 Отвод ТП 903-1-152 А21Б028.180 СБ Отвод. Сборочный чертеж ТП 903-1-152 А21Б028.170 СБ Короб. Сборочный чертеж ТП 903-1-152 А21Б028.190 СБ Переход. Сборочный чертеж ТП 903-1-152 А21Б028.200 Переход ТП 903-1-152 А21Б028.200 СБ Переход. Сборочный чертеж ТП 903-1-152 А21Б028.134 Лист ТП 903-1-152 А21Б028.145 Лист ТП 903-1-152 А21Б028.146 Лист ТП 903-1-152 А21Б028.147 Лист ТП 903-1-152 А21Б028.210 Короб ТП 903-1-152 А21Б028.220 Короб ТП 903-1-152 А21Б028.230 Короб ТП 903-1-152 А21Б028.154 Лист ТП 903-1-152 А21Б028.220 СБ Короб. Сборочный чертеж ТП 903-1-152 А21Б028.138 Обечайка ТП 903-1-152 А21Б028.165 Лист ТП 903-1-152 А21Б028.240 Короб ТП 903-1-152 А21Б028.250 Короб ТП 903-1-152 А21Б028.260 Отвод ТП 903-1-152 А21Б028.270 Короб ТП 903-1-152 А21Б028.210 СБ Короб. Сборочный чертеж ТП 903-1-152 А21Б028.230 СБ Короб. Сборочный чертеж ТП 903-1-152 А21Б028.250 СБ Короб. Сборочный чертеж ТП 903-1-152 А21Б028.260 СБ Отвод. Сборочный чертеж ТП 903-1-152 А21Б028.270 СБ Короб. Сборочный чертеж ТП 903-1-152 А21Б028.280 Короб ТП 903-1-152 А21Б028.290 Отвод ТП 903-1-152 А21Б028.280 СБ Короб. Сборочный чертеж ТП 903-1-152 А21Б028.290 СБ Отвод. Сборочный чертеж ТП 903-1-152 А21Б028.300 Короб ТП 903-1-152 А21Б028.310 Короб ТП 903-1-152 А21Б028.153 Лист ТП 903-1-152 А21Б028.164 Лист ТП 903-1-152 А21Б028.177 Лист ТП 903-1-152 А21Б028.310 СБ Короб. Сборочный чертеж ТП 903-1-152 А21Б028.320 Короб ТП 903-1-152 А21Б028.330 Привод заслонки ТП 903-1-152 А21Б028.340 Подвеска ТП 903-1-152 А21Б028.330 СБ Привод заслонки. Сборочный чертеж ТП 903-1-152 А21Б028.340 СБ Подвеска. Сборочный чертеж ТП 903-1-152 А21Б028.201 Плита ТП 903-1-152 А21Б028.202 Болт ТП 903-1-152 А21Б028.350 Проушины с тягой ТП 903-1-152 А21Б028.350 СБ Проушины с тягой. Сборочный чертеж ТП 903-1-152 А21Б028.360 Лапа ТП 903-1-152 А21Б028.360 СБ Лапа. Сборочный чертеж ТП 903-1-152 А21Б028.370 Опора ТП 903-1-152 А21Б028.370 СБ Опора. Сборочный чертеж ТП 903-1-152 А21Б028.205 Проушина ТП 903-1-152 А21Б028.206 Ушко ТП 903-1-152 А21Б028.207 Тяга ТП 903-1-152 А21Б028.213 Лапа ТП 903-1-152 А21Б029.000 Воздуховод котлоагрегата (топливо-каменные угли) ТП 903-1-152 А21Б029.010 Короб ТП 903-1-152 А21Б029.000 СБ Воздуховод котлоагрегата (топливо-каменные угли). Сборочный чертеж ТП 903-1-152 А21Б029.020 Короб ТП 903-1-152 А21Б029.030 Короб ТП 903-1-152 А21Б029.040 Короб ТП 903-1-152 А21Б029.050 Короб ТП 903-1-152 А21Б028.300 СБ Короб. Сборочный чертеж ТП 903-1-152 А21Б028.320 СБ Короб. Сборочный чертеж ТП 903-1-152 А21Б029.010 СБ Короб. Сборочный чертеж ТП 903-1-152 А21Б029.020 СБ Короб. Сборочный чертеж ТП 903-1-152 А21Б029.030 СБ Короб. Сборочный чертеж ТП 903-1-152 А21Б029.040 СБ Короб. Сборочный чертеж ТП 903-1-152 А21Б029.050 СБ Короб. Сборочный чертеж |
| Разработан: | Сантехниипроект Госстроя России Минтяжмаш СССР Союзпроммеханизация |
| Утверждён: | 16.10.1978 ГПИ Сантехпроект (1430Т) |
| Чем заменён: |
|




































































































