Скачать Типовой проект 901-7-5.84 Альбом V. Архитектурно-строительная частьДата актуализации: 01.01.2021
|
| Обозначение: | Типовой проект 901-7-5.84 |
| Обозначение англ: | 901-7-5.84 |
| Статус: | действует |
| Название рус.: | Альбом V. Архитектурно-строительная часть |
| Дата добавления в базу: | 01.09.2013 |
| Дата актуализации: | 01.01.2021 |
| Дата введения: | 23.09.1983 |
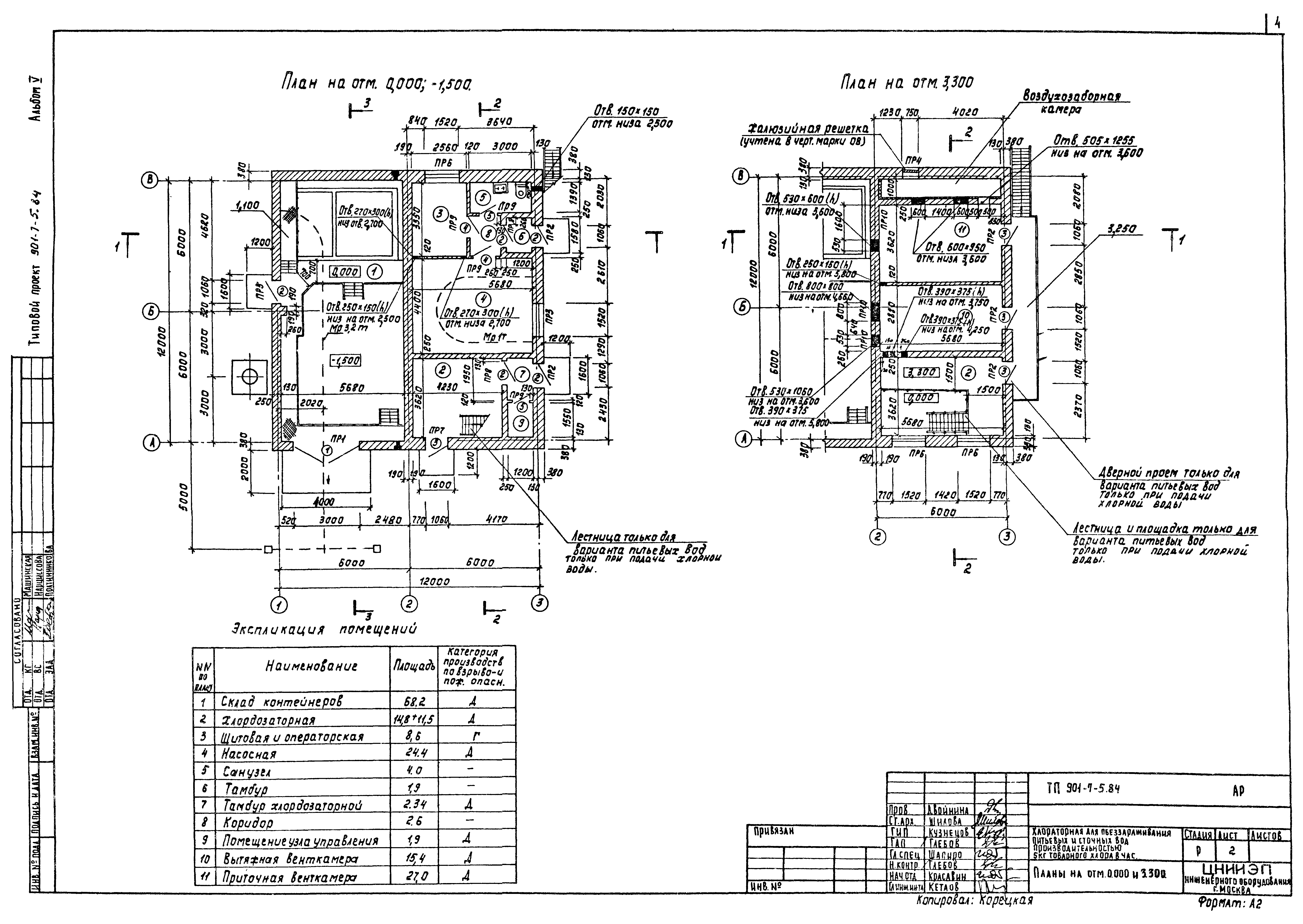
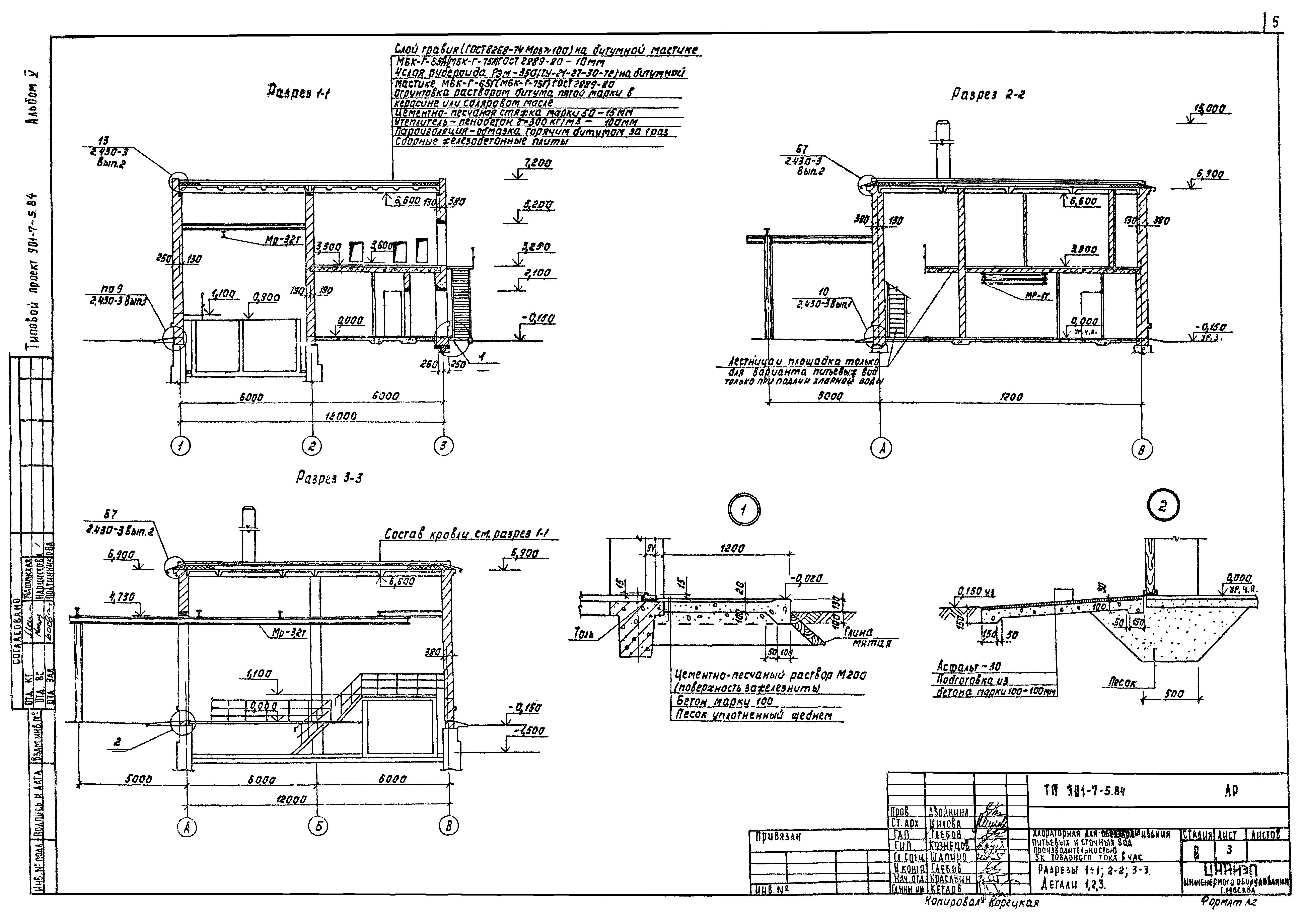
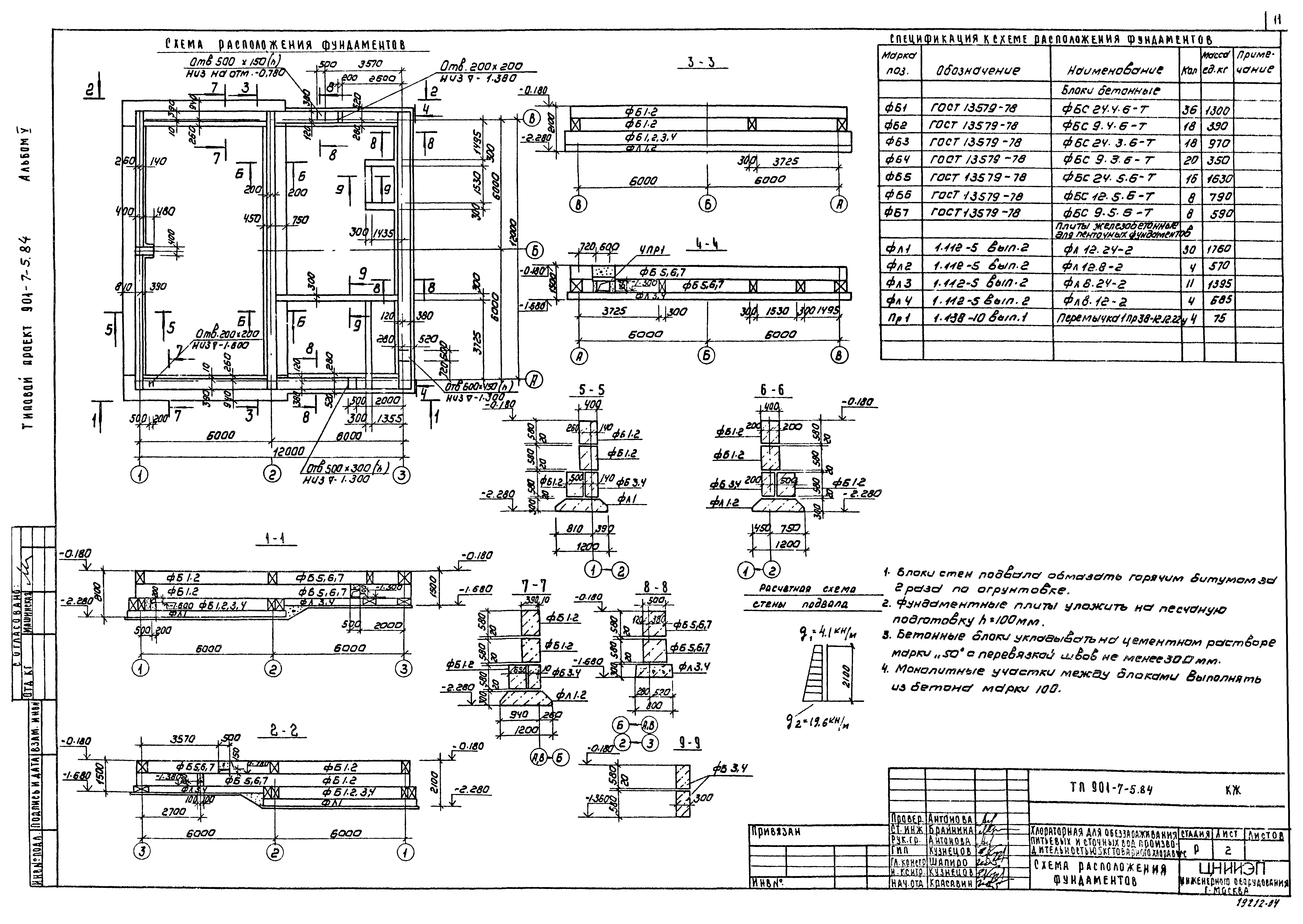
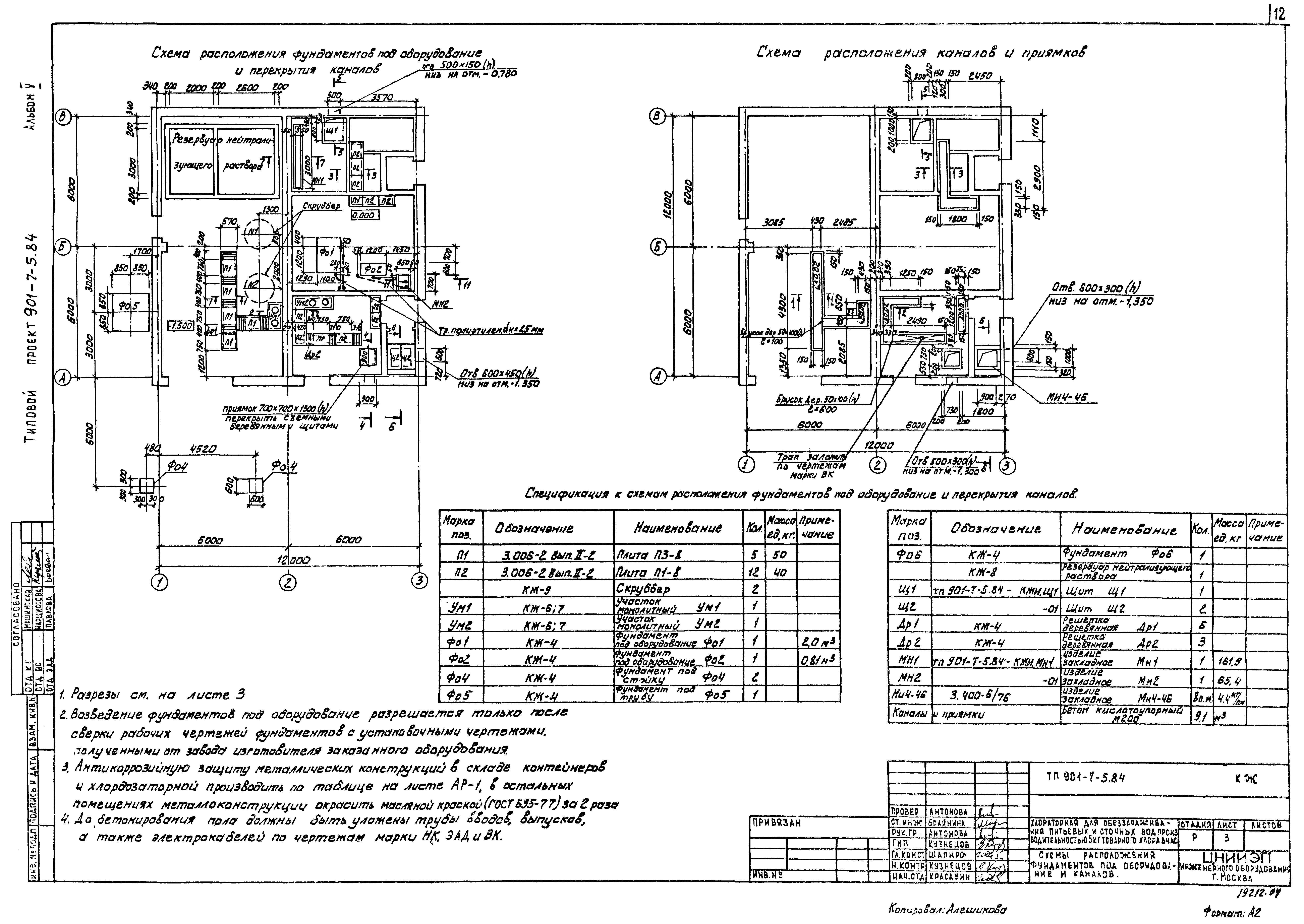
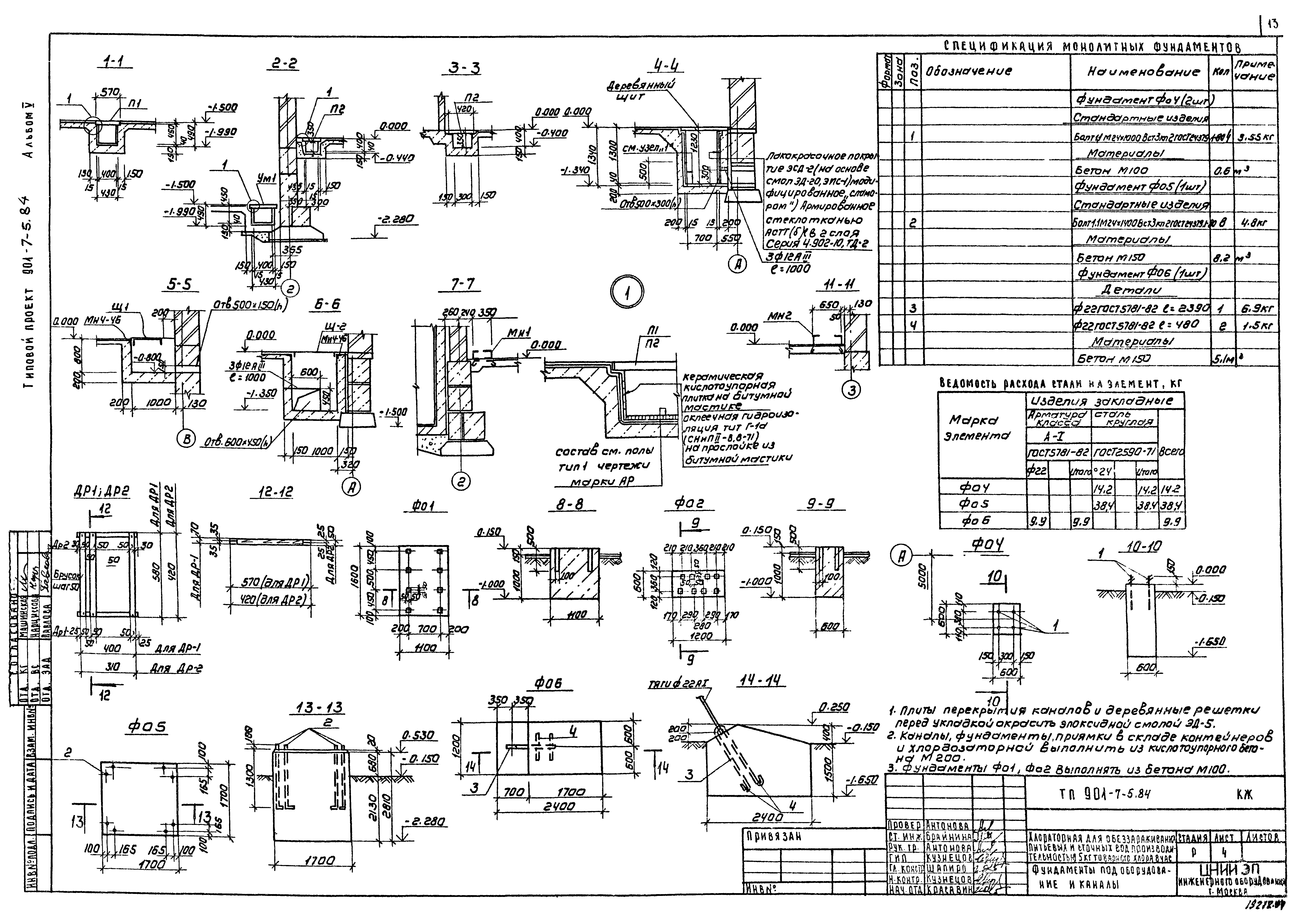
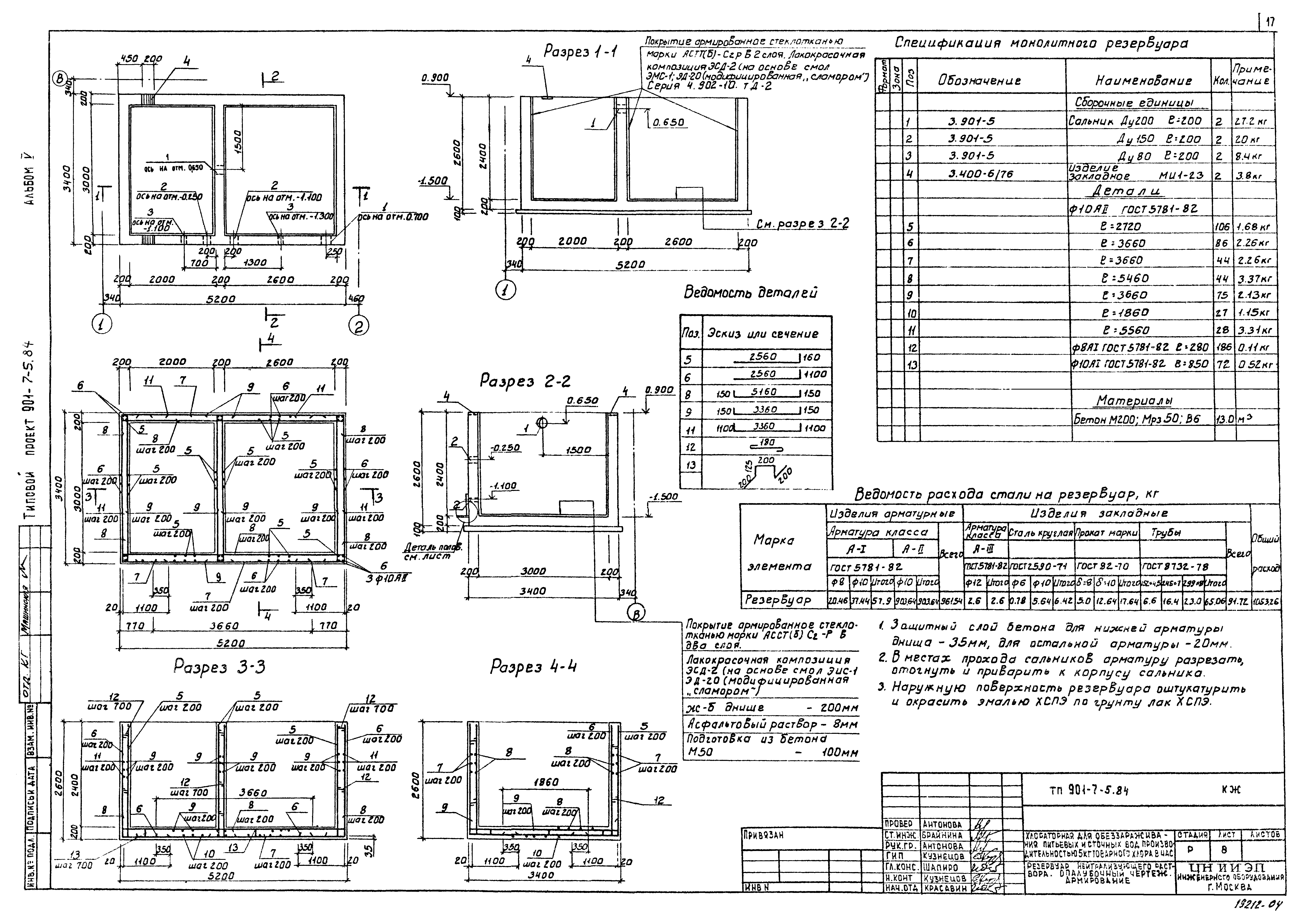
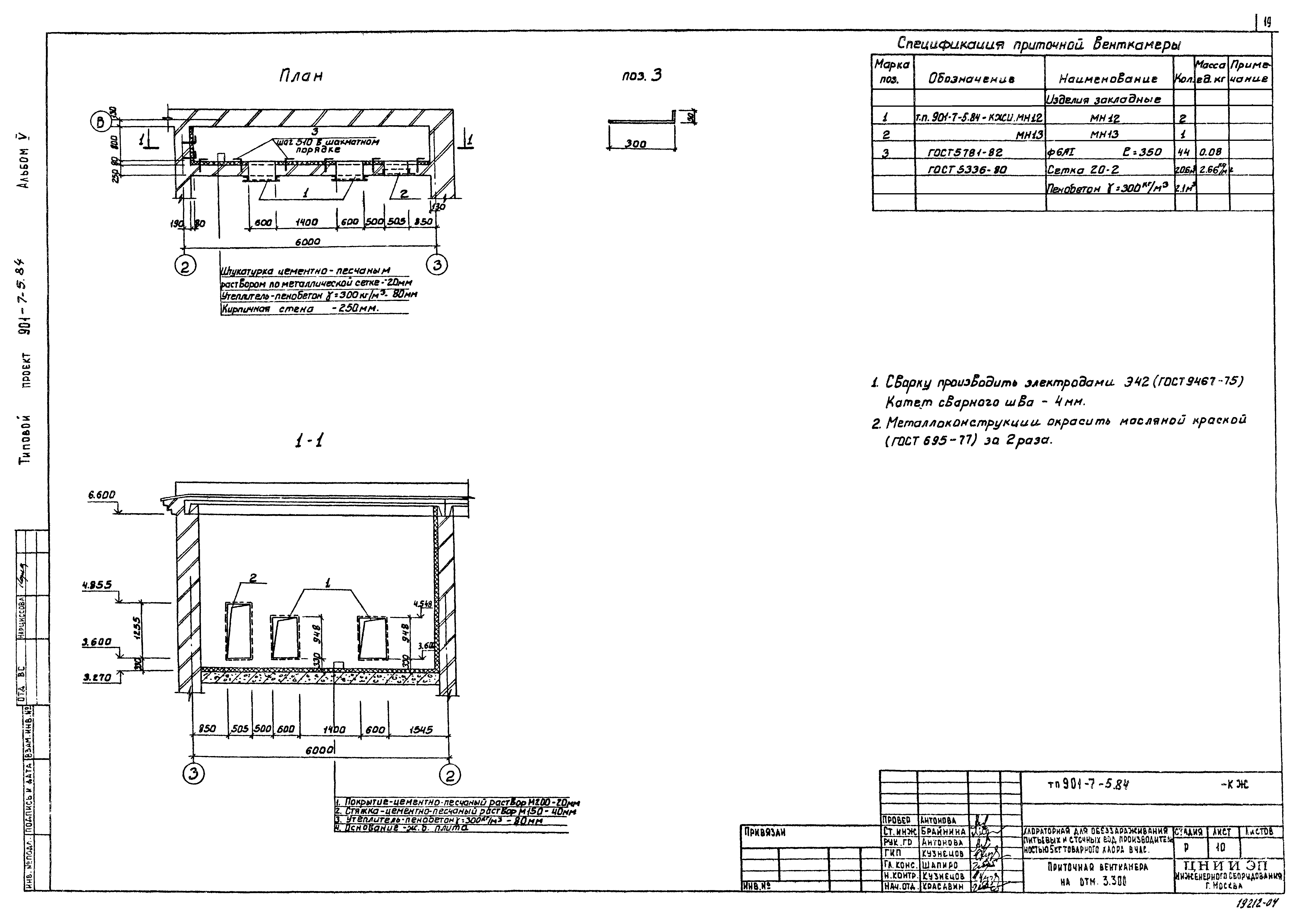
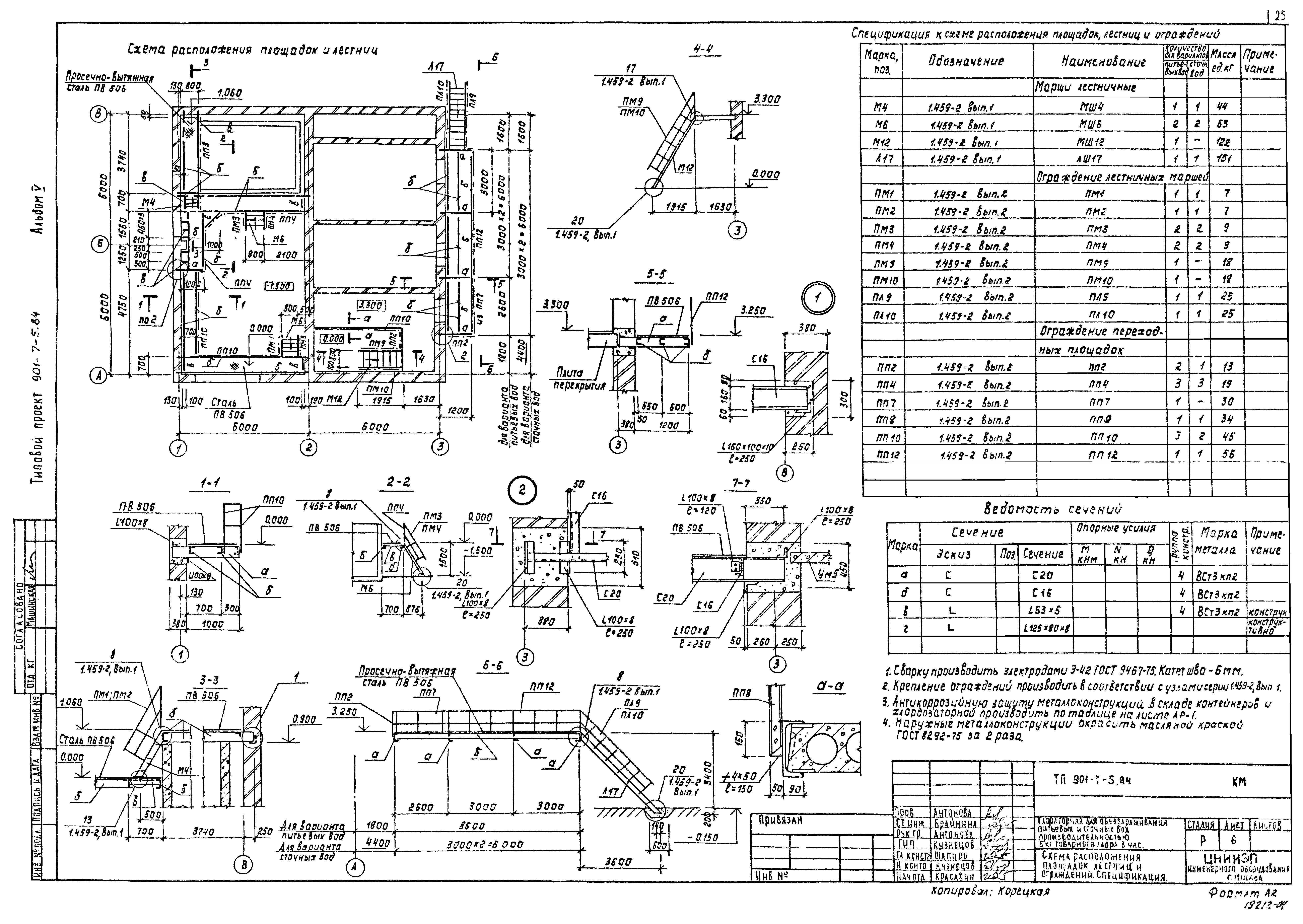
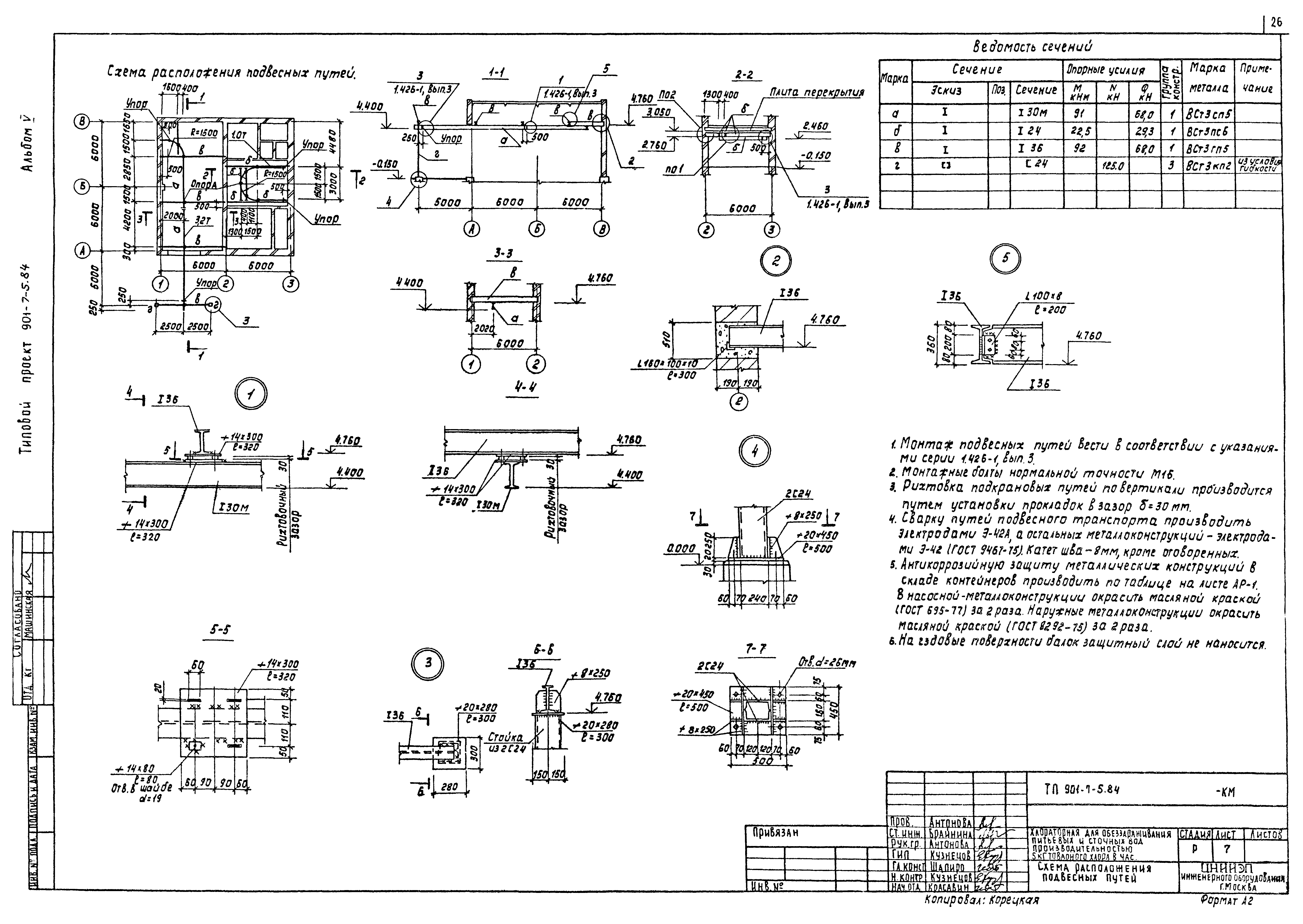
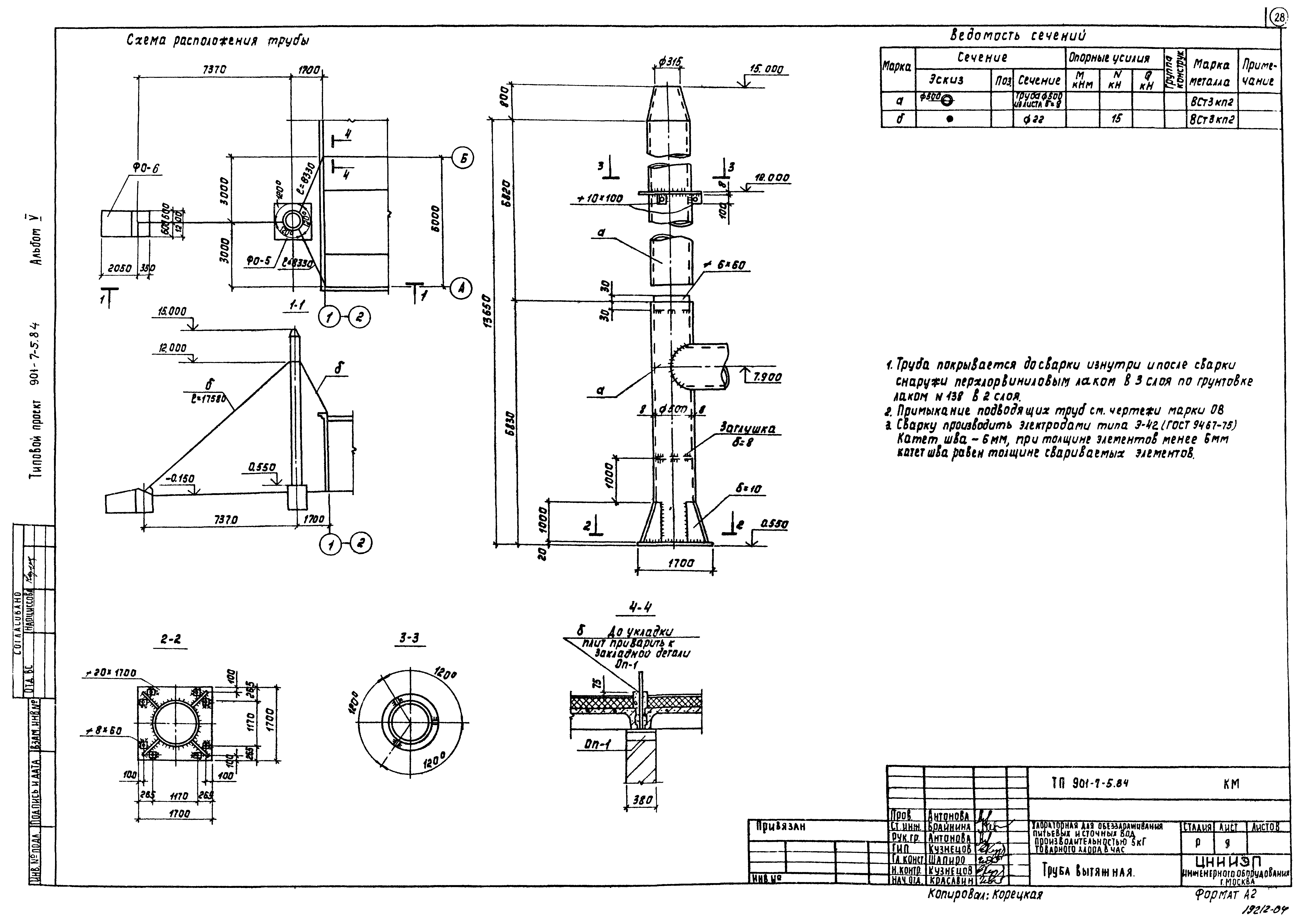
| Оглавление: | ТП 901-7-5.84 Содержание альбома ТП 901-7-5.84-АР Архитектурные решения ТП 901-7-5.84-АР-1 Общие данные ТП 901-7-5.84-АР-2 Планы на отм. 0.000 и 3.300 ТП 901-7-5.84-АР-3 Разрезы 1-1;2-2;3-3. Детали 1,2,3 ТП 901-7-5.84-АР-4 Фасады 1-3;3-1;А-В;В-1 ТП 901-7-5.84-АР-5 Ведомость проемов ворот и дверей. Спецификация элементов заполнения проемов. Ведомость и спецификация перемычек ТП 901-7-5.84-АР-6 Планы полов и кровли. Ведомость отделки помещений ТП 901-7-5.84-АР-7 Ворота распашные 3.00х4.73 ТП 901-7-5.84-КЖ Конструкции железобетонные ТП 901-7-5.84-КЖ-1 Общие данные ТП 901-7-5.84-КЖ-2 Схема расположения фундаментов ТП 901-7-5.84-КЖ-3 Схема расположения фундаментов под оборудование и каналы ТП 901-7-5.84-КЖ-4 Фундаменты под оборудование и каналы ТП 901-7-5.84-КЖ-5 Схема расположения плит покрытия и перекрытия ТП 901-7-5.84-КЖ-6 Монолитные участки УМ-1÷УМ-5 ТП 901-7-5.84-КЖ-7 Монолитные участки УМ-1÷УМ-5. Спецификации ТП 901-7-5.84-КЖ-8 Резервуар нейтрализующего раствора. Опалубочный чертеж. Армирование ТП 901-7-5.84-КЖ-9 Скрубберы №1 и №2 ТП 901-7-5.84-КЖ-10 Приточная венткамера на отм. 3.300 ТП 901-7-5.84-КЖИ-П9 Панель перекрытия П9 ТП 901-7-5.84-КЖИ-МН1 Рама металлическая (МН1,МН2) ТП 901-7-5.84-КЖИ-МН3 Изделие закладное (МН3...МН5) ТП 901-7-5.84-КЖИ-Щ1 Щит стальной (Щ1;Щ2) ТП 901-7-5.84-КЖИ-МН12 Рама металлическая (МН12,МН13) ТП 901-7-5.84-КМ Конструкции металлические ТП 901-7-5.84-КМ-1 Общие данные. Техническая спецификация металла (начало) ТП 901-7-5.84-КМ-2 Общие данные. Техническая спецификация металла (продолжение) ТП 901-7-5.84-КМ-3 Общие данные. Техническая спецификация металла (окончание) ТП 901-7-5.84-КМ-4 Общие данные. Техническая спецификация металла на типовые конструкции ТП 901-7-5.84-КМ-5 Общие данные. Ведомость металлоконструкций по видам профилей ТП 901-7-5.84-КМ-6 Схема расположения переходных площадок, лестниц и ограждений. Спецификация ТП 901-7-5.84-КМ-7 Схема расположения подвесных путей ТП 901-7-5.84-КМ-8 Ворота ТП 901-7-5.84-КМ-9 Труба вытяжная |
| Разработан: | ЦНИИЭП |
| Утверждён: | 27.12.1979 Госгражданстрой (Gosgrazhdanstroy 279) |




























