Скачать Типовой проект 902-2-290 Альбом IДата актуализации: 01.01.2021
|
| Обозначение: | Типовой проект 902-2-290 |
| Обозначение англ: | 902-2-290 |
| Статус: | не действует |
| Название рус.: | Альбом I |
| Дата добавления в базу: | 01.09.2013 |
| Дата актуализации: | 01.01.2021 |
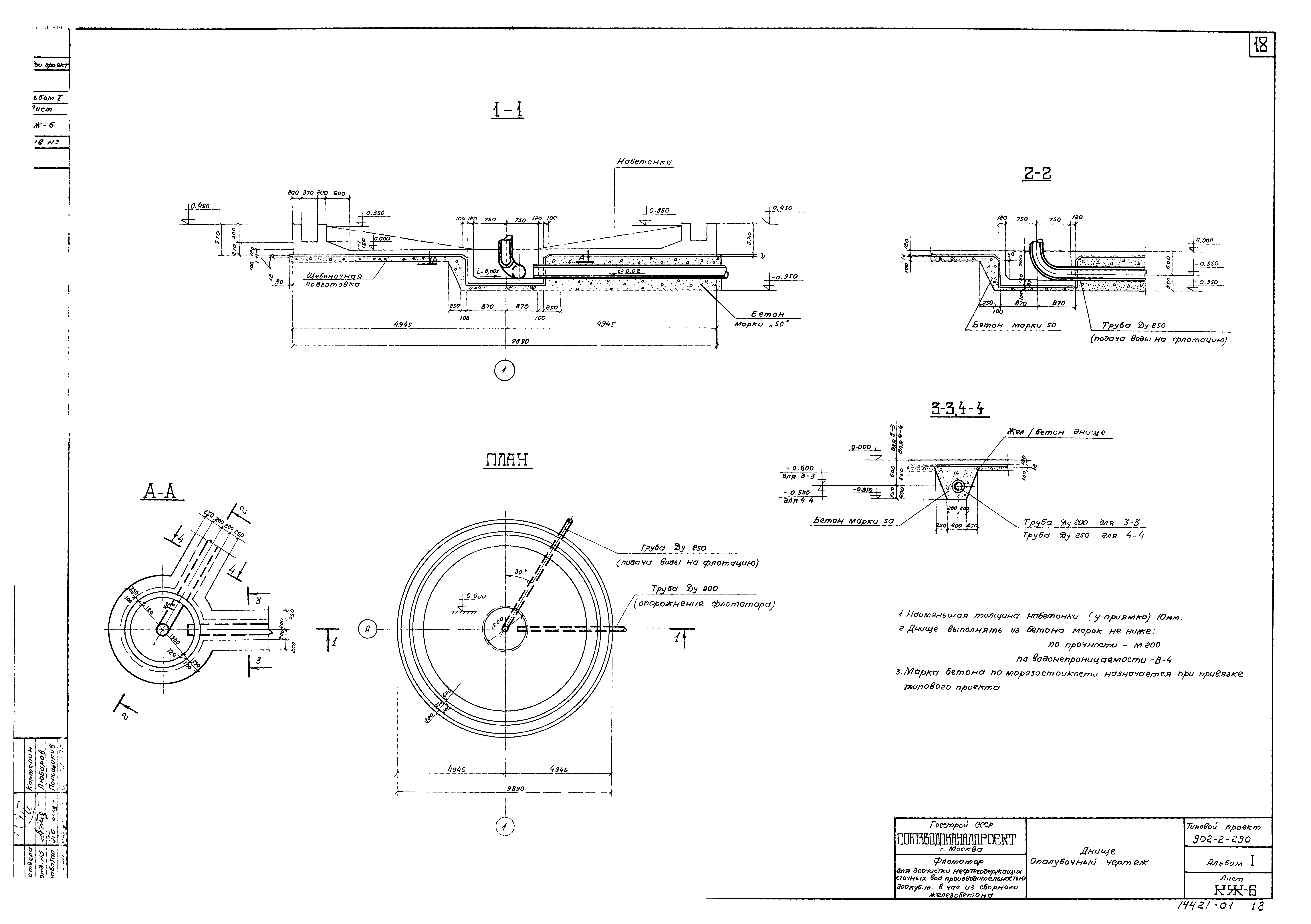
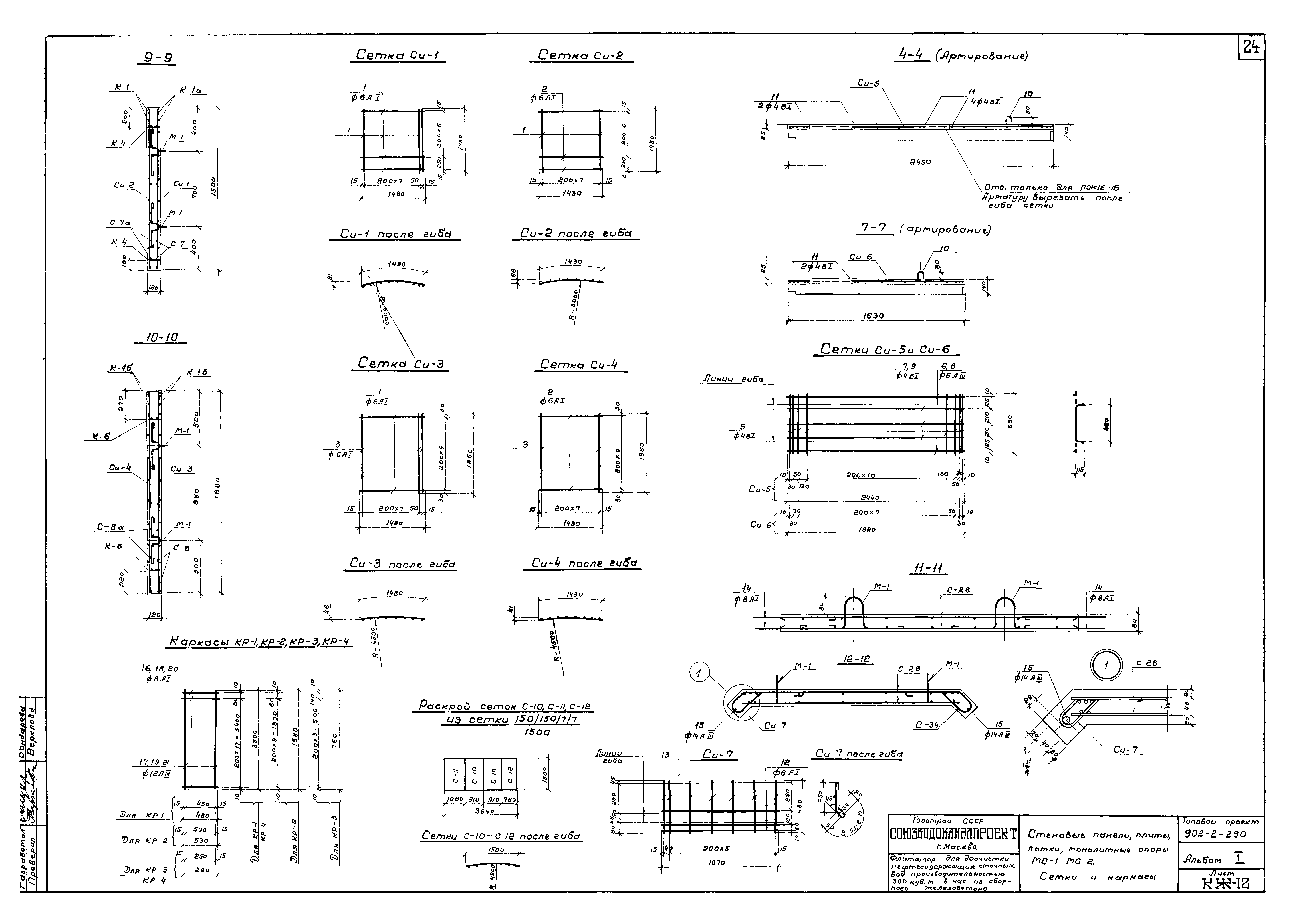
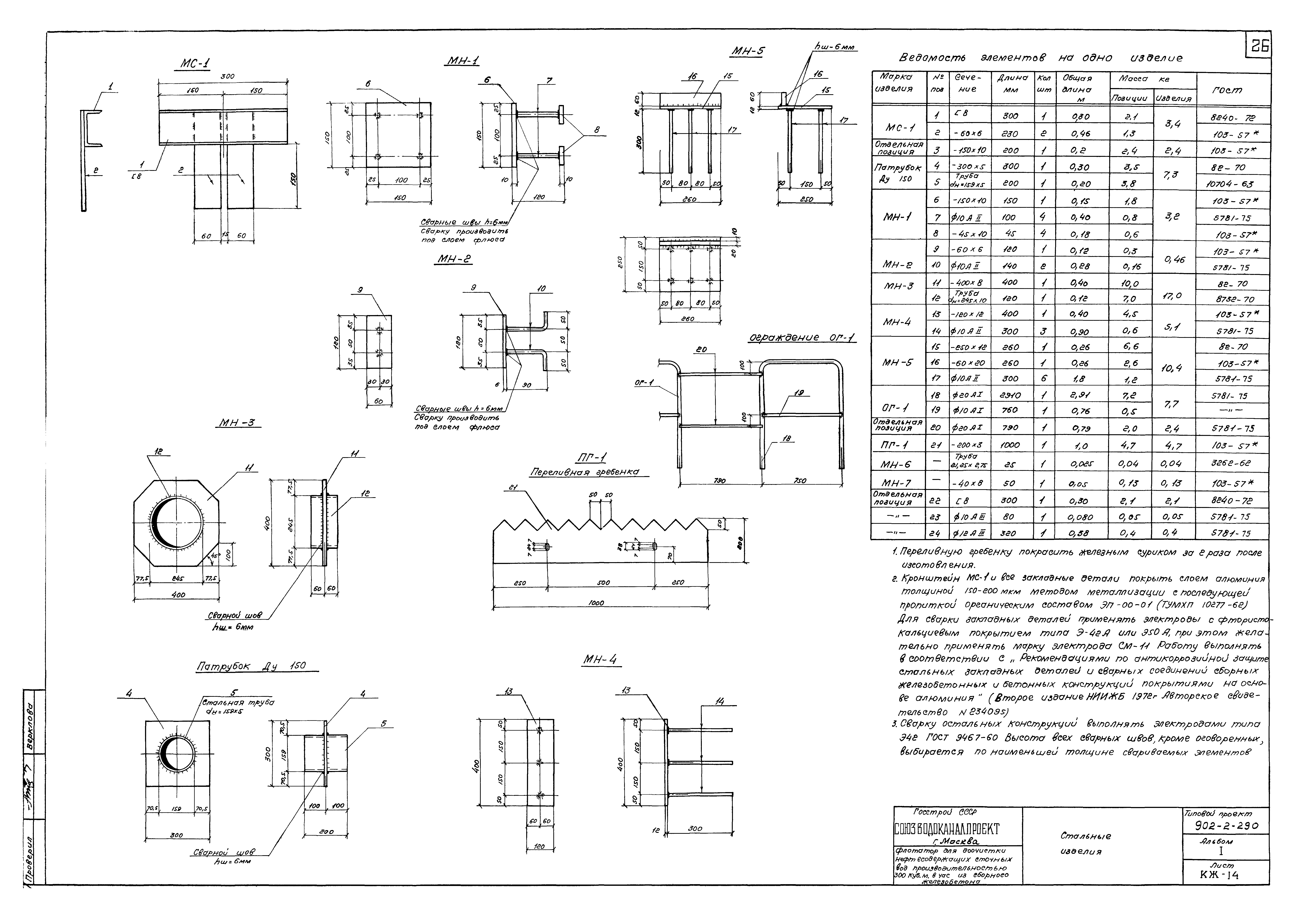
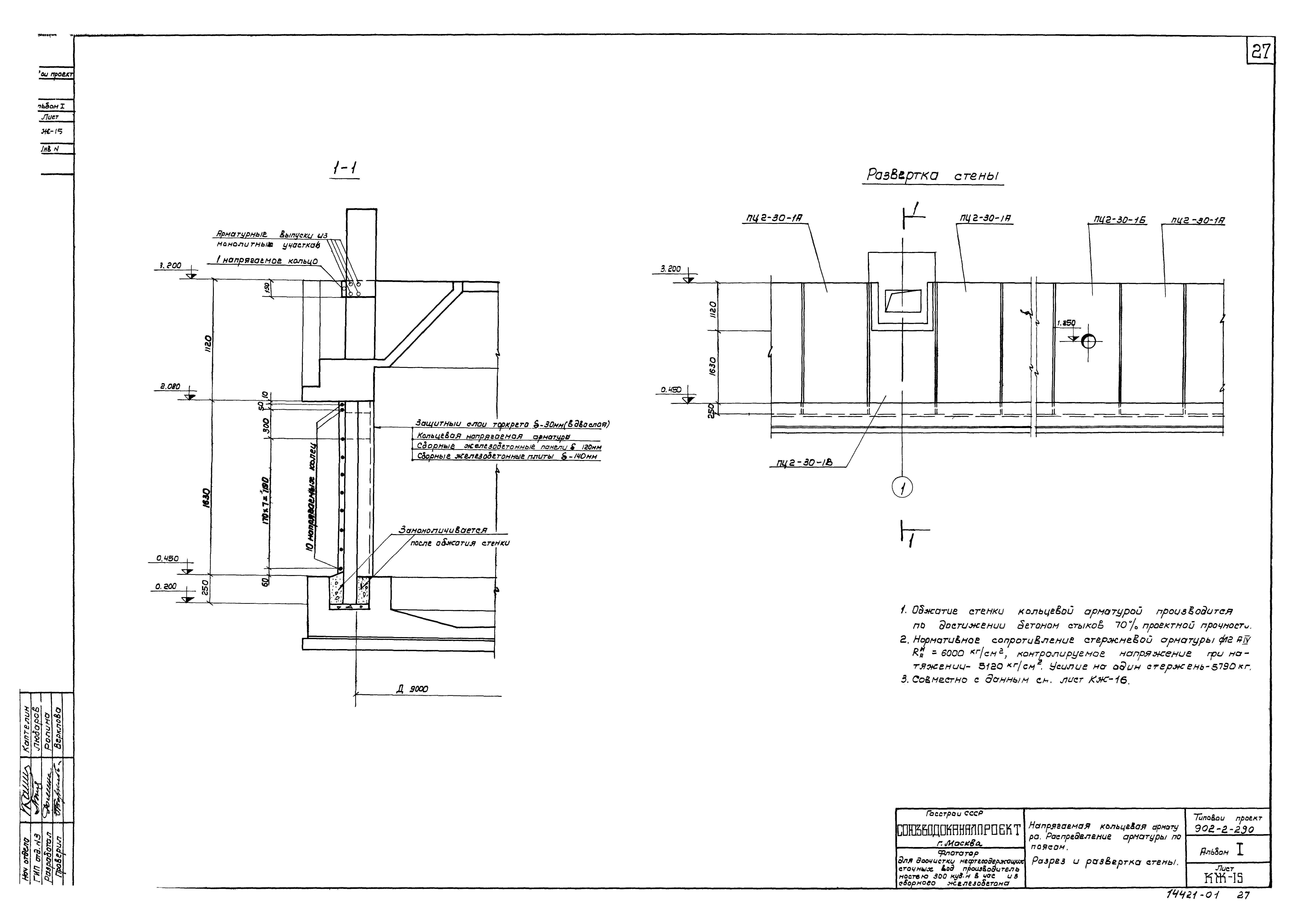
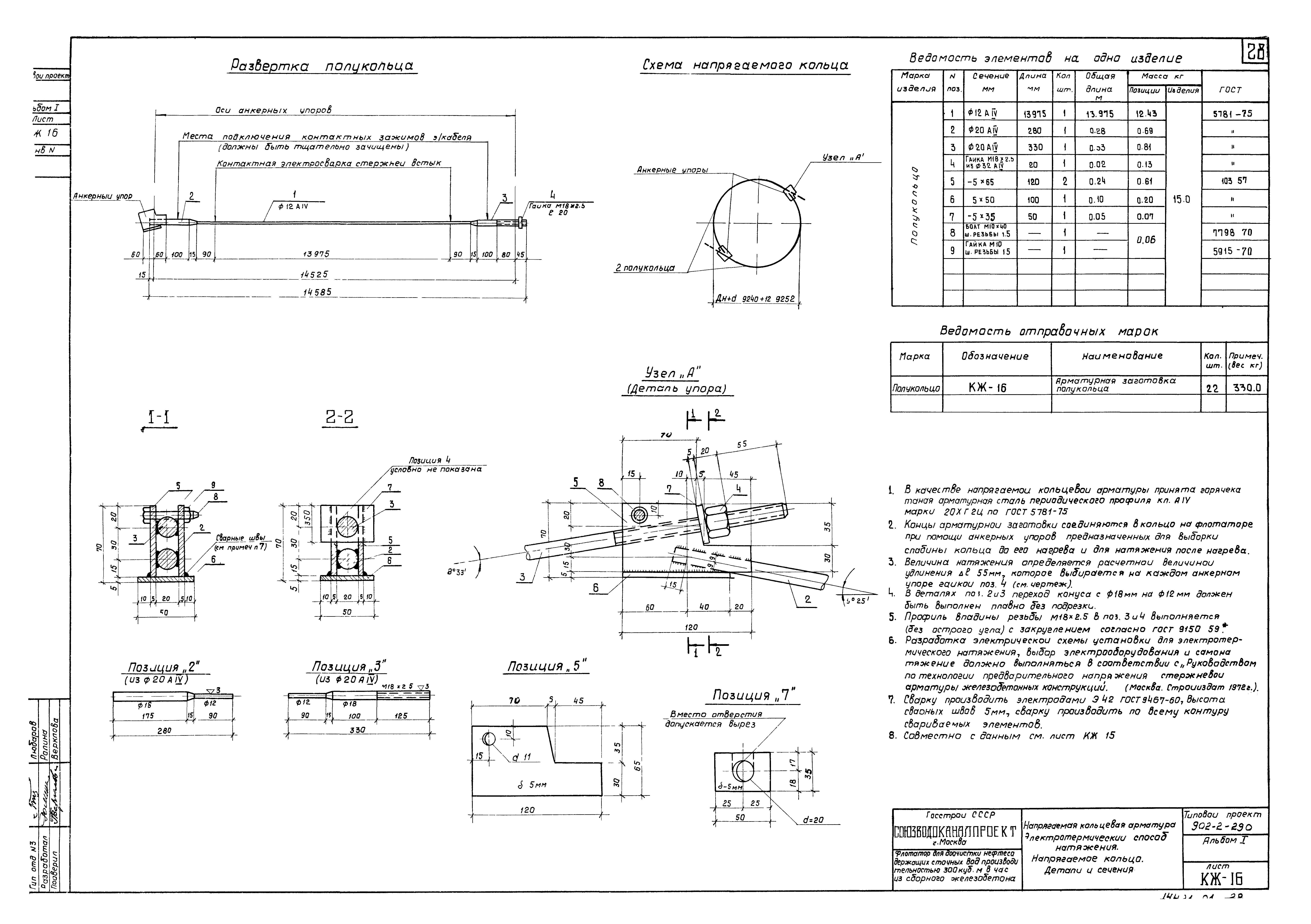
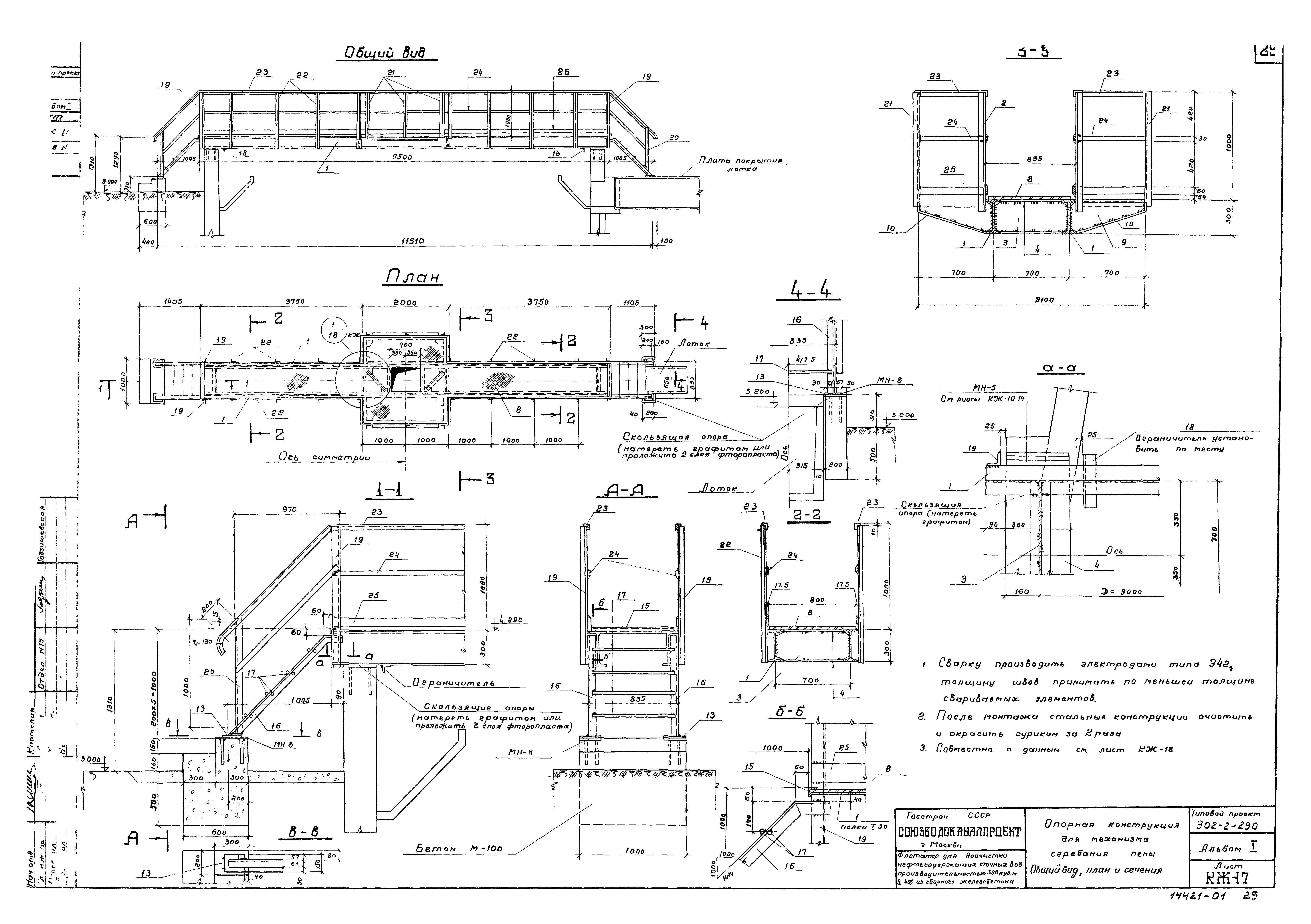
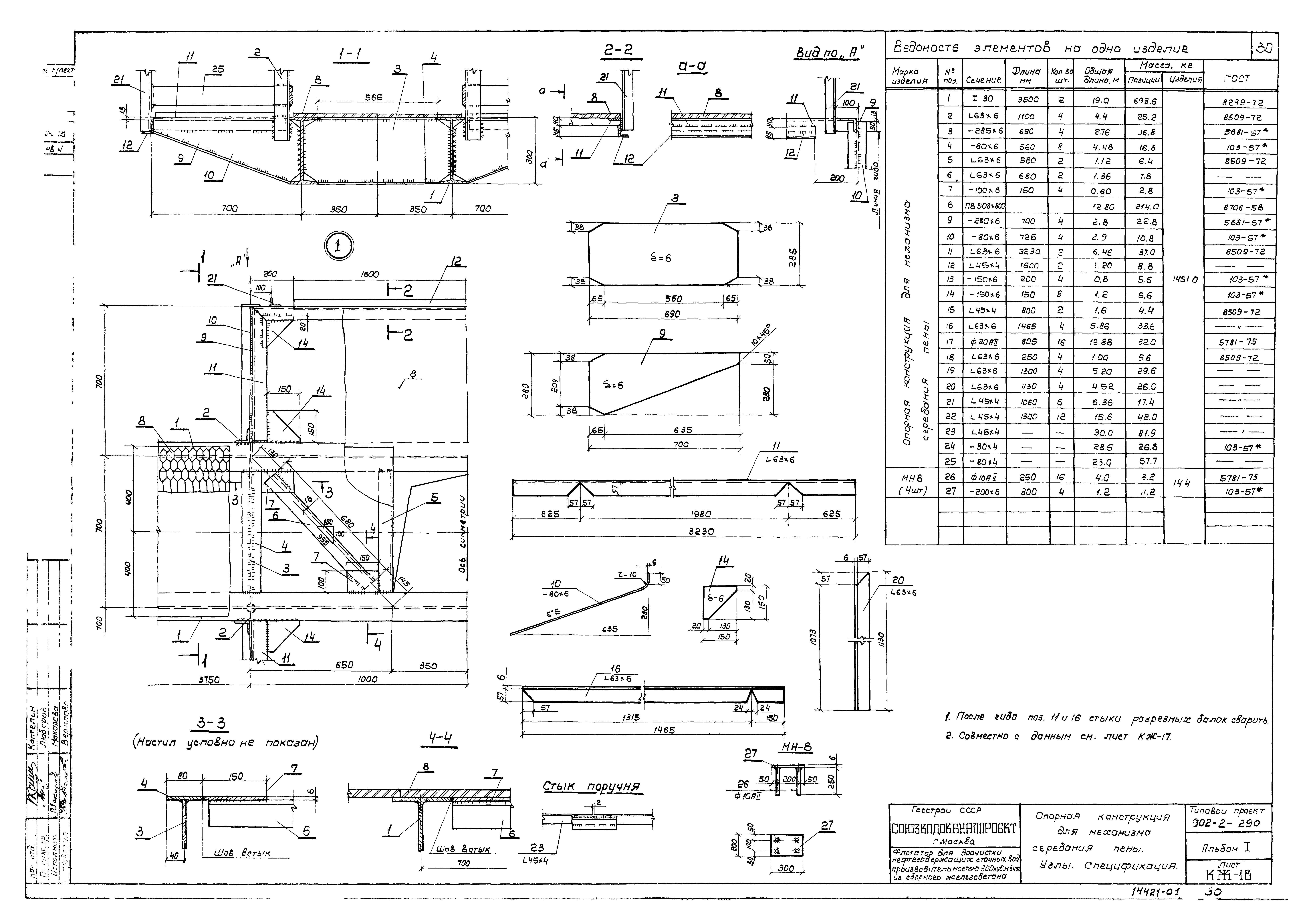
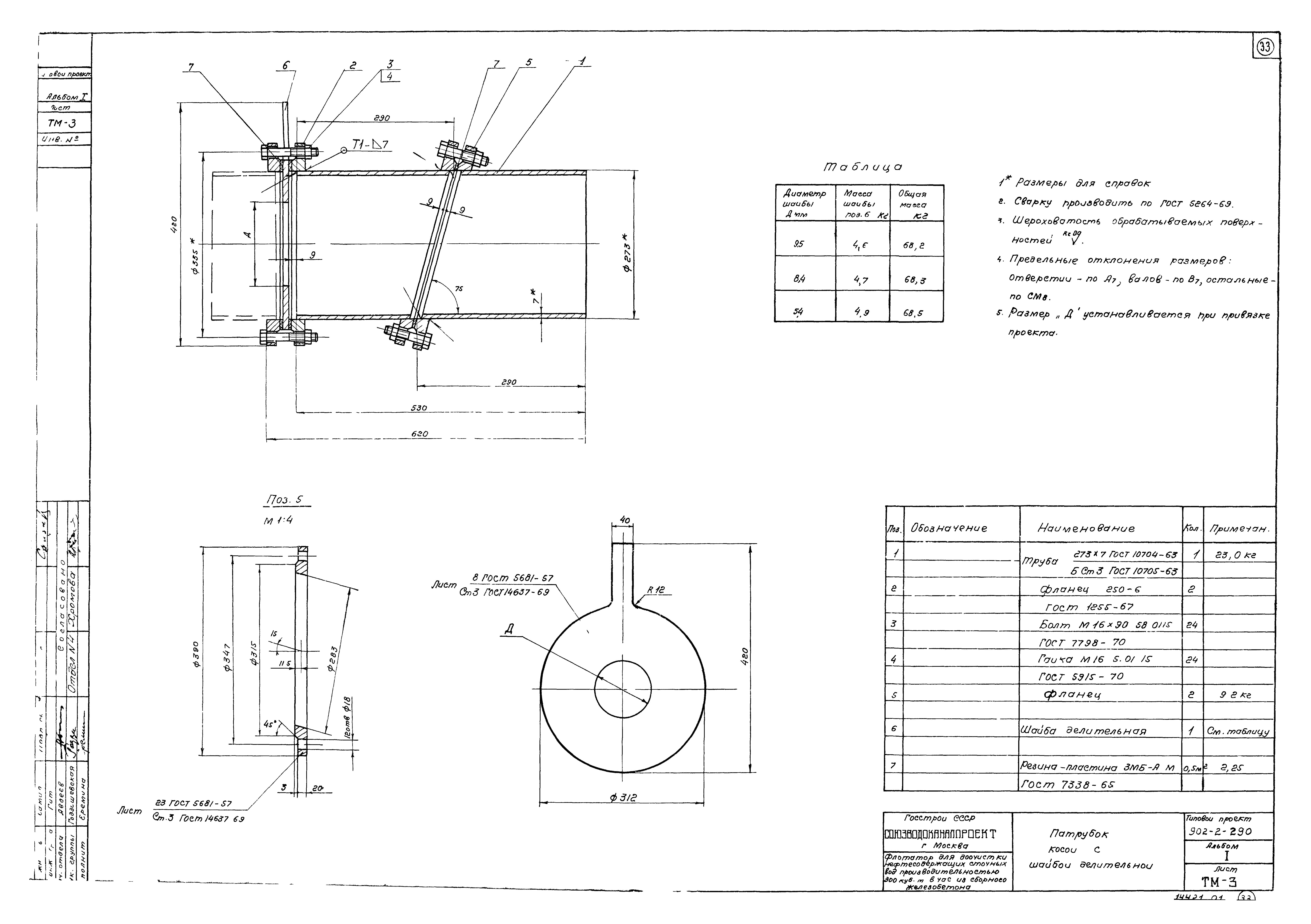
| Оглавление: | ТП 902-2-290-С-1 Содержание альбома ТП 902-2-290-ПЗ-1÷8 Пояснительная записка ТП 902-2-290-ТК-1 Флотационная установка. Вариант без рециркуляции сточных вод. План. (Пример компоновки) ТП 902-2-290-ТК-2 Флотационная установка. Вариант с рециркуляцией сточных вод. План. (Пример компоновки) ТП 902-2-290-КЖ-1 Заглавный лист ТП 902-2-290-КЖ-2 Планы на отм. 4.290 и 2.000. Разрезы 1-1 и 2-2 ТП 902-2-290-КЖ-3 Узлы 1 и 2. Детали и сечения ТП 902-2-290-КЖ-4 Узлы 3,4,5. Детали и сечения ТП 902-2-290-КЖ-5 Маркировочная схема стеновых панелей, плит и лотков ТП 902-2-290-КЖ-6 Днище. Опалубочный чертеж ТП 902-2-290-КЖ-7 Днище. Армирование ТП 902-2-290-КЖ-8 Днище. План расположения каркасов и армирование приямка ТП 902-2-290-КЖ-9 Днище. Раскрой сеток. Спецификация и выборка арматуры ТП 902-2-290-КЖ-10 Железные опоры под механизм сгребания пены МО-1 и МО-2. Армирование ТП 902-2-290-КЖ-11 Панели ПЦ1-30-1А,Б,Г,Д,Е;ПЦ2-30-1А,Б,В. Лоток ЛУ-2-15А. Опалубочные чертежи ТП 902-2-290-КЖ-12 Стеновые панели, плиты, лотки, монолитные опоры МО-1,МО-2. Сетки и каркасы ТП 902-2-290-КЖ-13 Стеновые панели, плиты, лотки, монолитные опоры МО-1,МО-2. Спецификация и выборка арматуры ТП 902-2-290-КЖ-14 Стальные изделия ТП 902-2-290-КЖ-15 Напрягаемая кольцевая арматура. Распределение арматуры по поясам. Разрез и развертка стены ТП 902-2-290-КЖ-16 Напрягаемая кольцевая арматура. Электротермический способ натяжения. Напрягаемое кольцо. Детали и сечения ТП 902-2-290-КЖ-17 Опорная конструкция для механизма сгребания пены. Общий вид, план и сечения ТП 902-2-290-КЖ-18 Опорная конструкция для механизма сгребания пены. Узлы. Спецификация ТП 902-2-290-ТМ-1 Монтажный чертеж. План ТП 902-2-290-ТМ-2 Монтажный чертеж. Разрезы А-А;Б-Б ТП 902-2-290-ТМ-3 Патрубок косой с шайбой делительной |
| Разработан: | Союзводоканалпроект |
| Утверждён: | 26.08.1976 Главпромстройпроект Госстроя СССР (1) |

































