Скачать Типовой проект 902-2-291 Альбом I. Технологическая и строительная частиДата актуализации: 01.01.2021
|
| Обозначение: | Типовой проект 902-2-291 |
| Обозначение англ: | 902-2-291 |
| Статус: | действует |
| Название рус.: | Альбом I. Технологическая и строительная части |
| Дата добавления в базу: | 01.09.2013 |
| Дата актуализации: | 01.01.2021 |
| Дата введения: | 15.11.1976 |
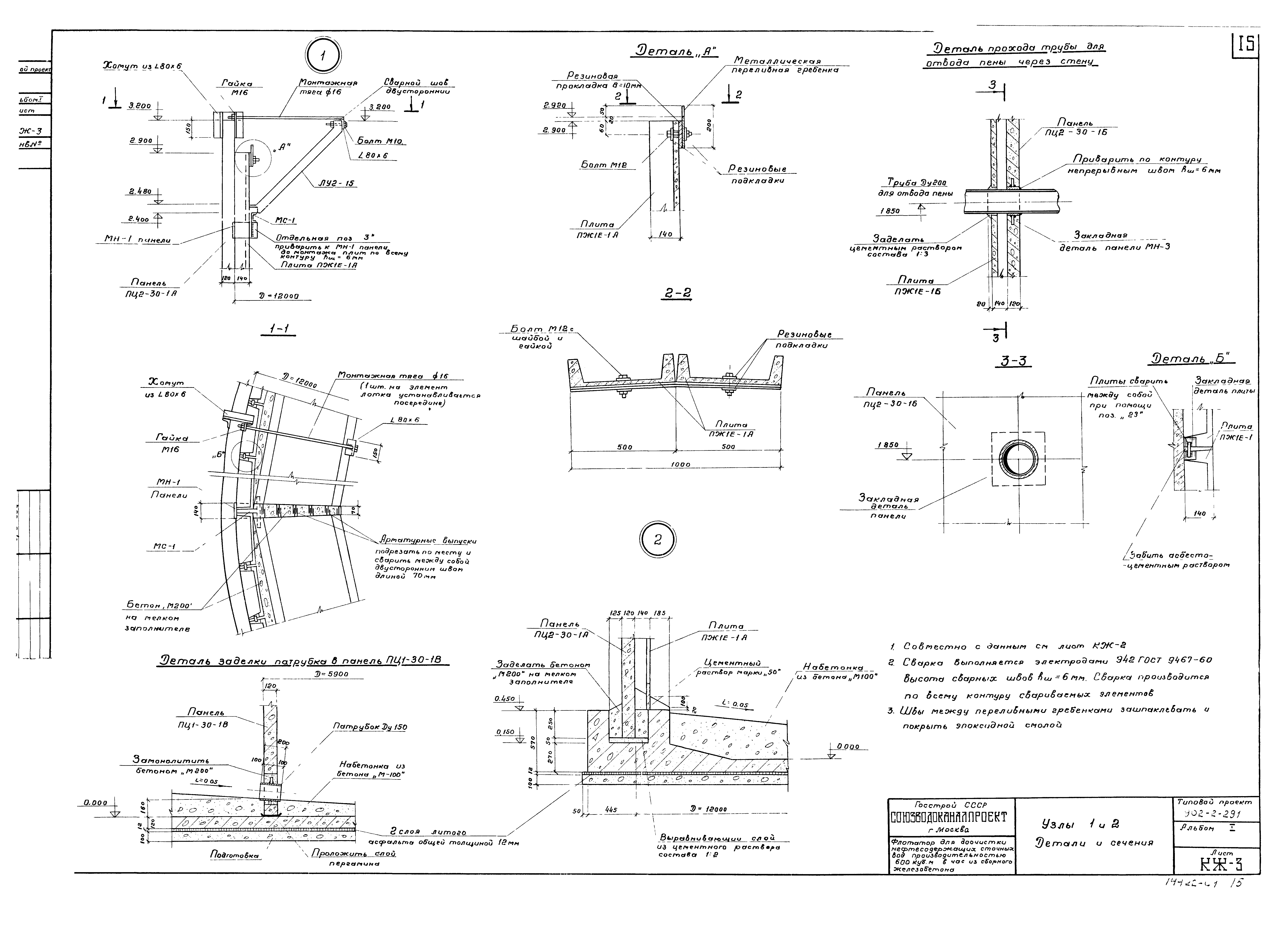
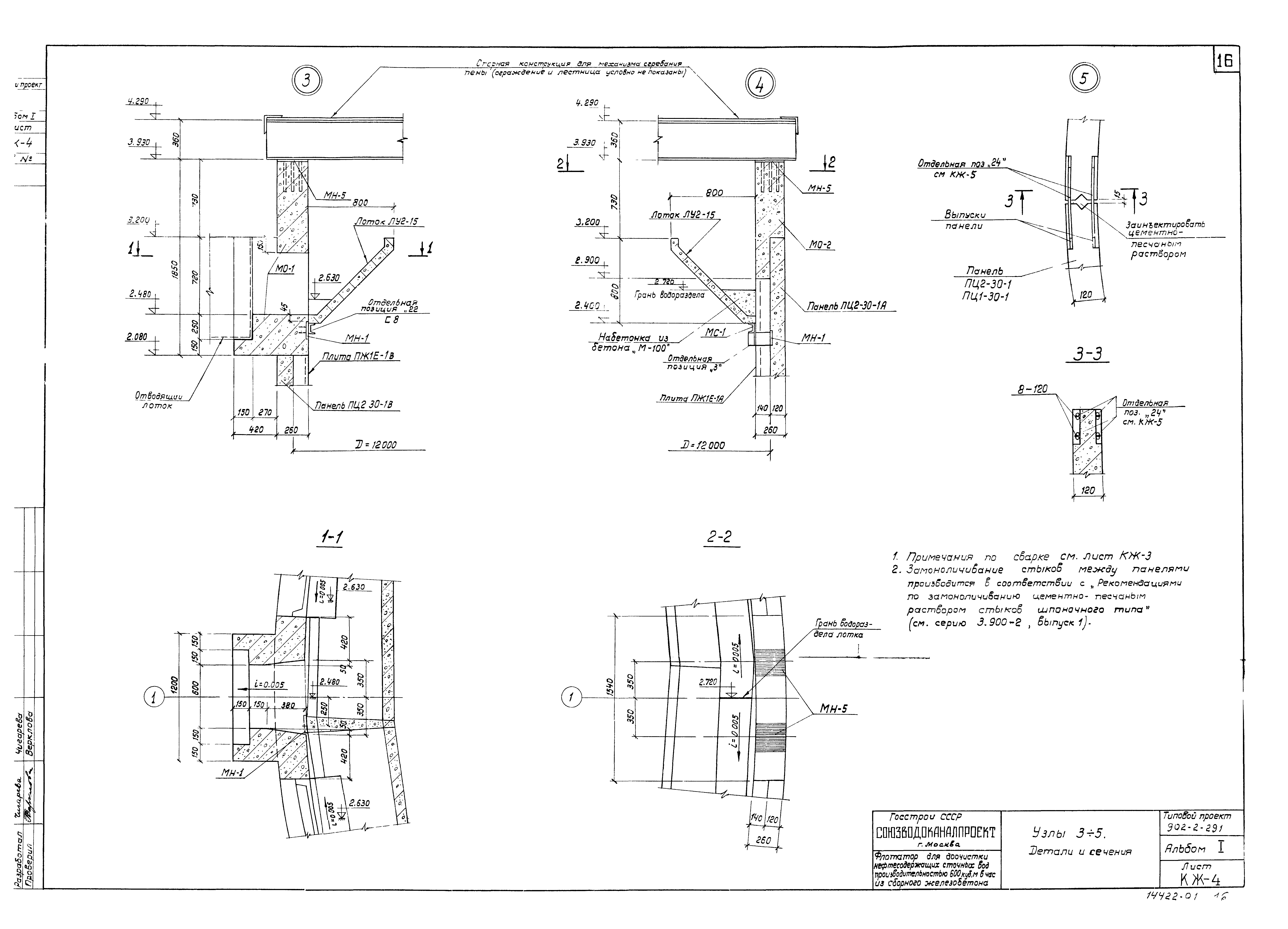
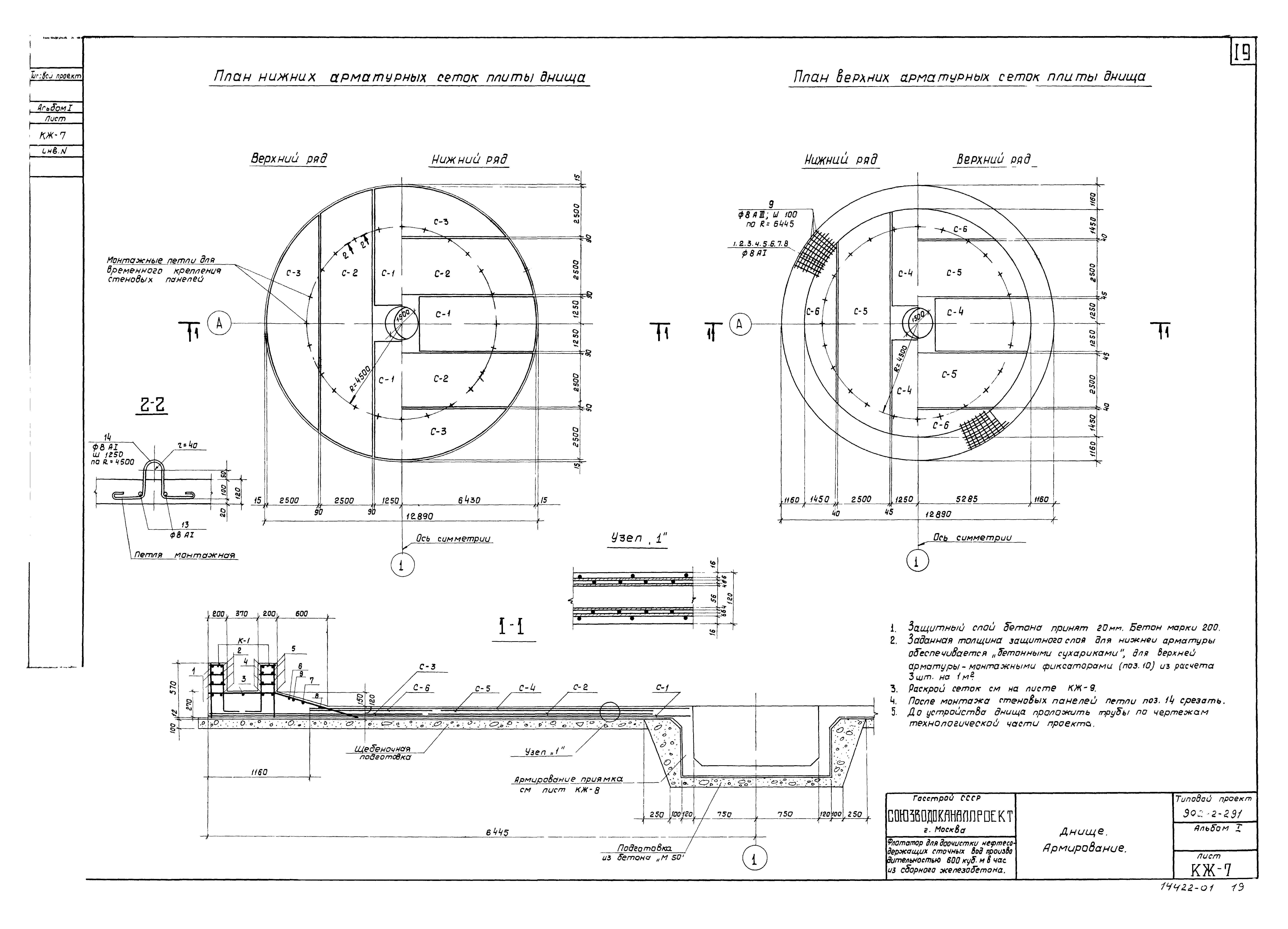
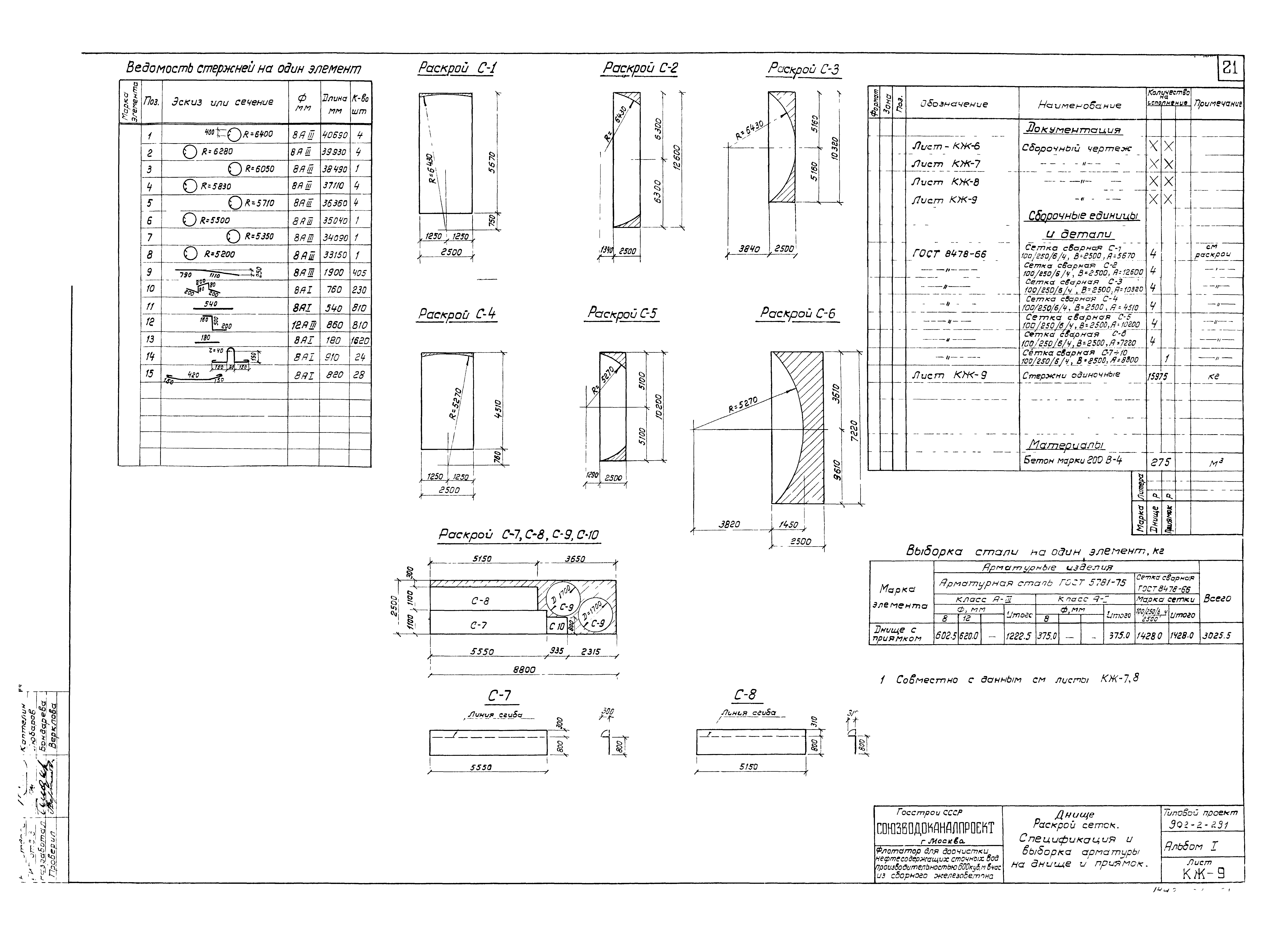
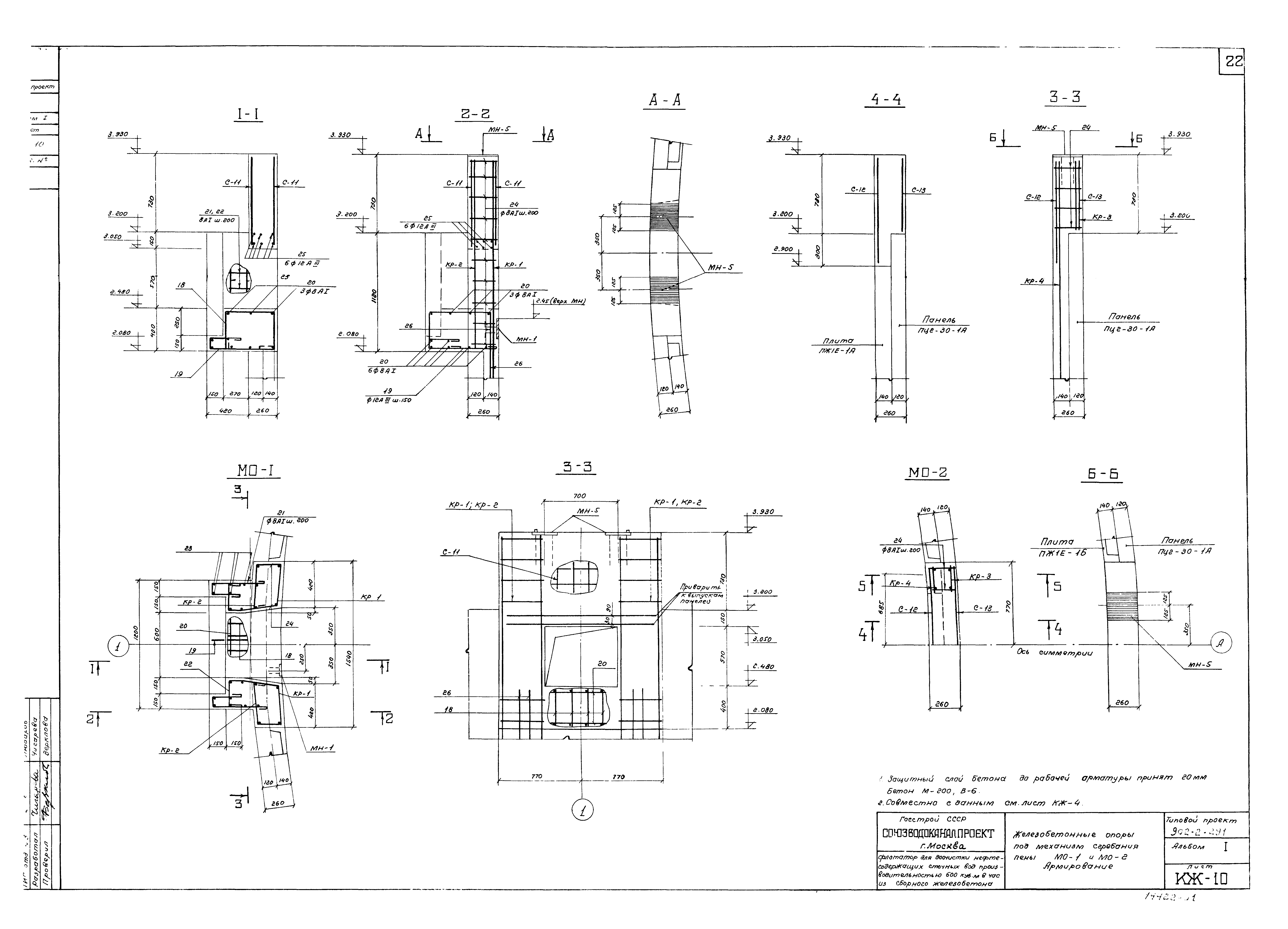
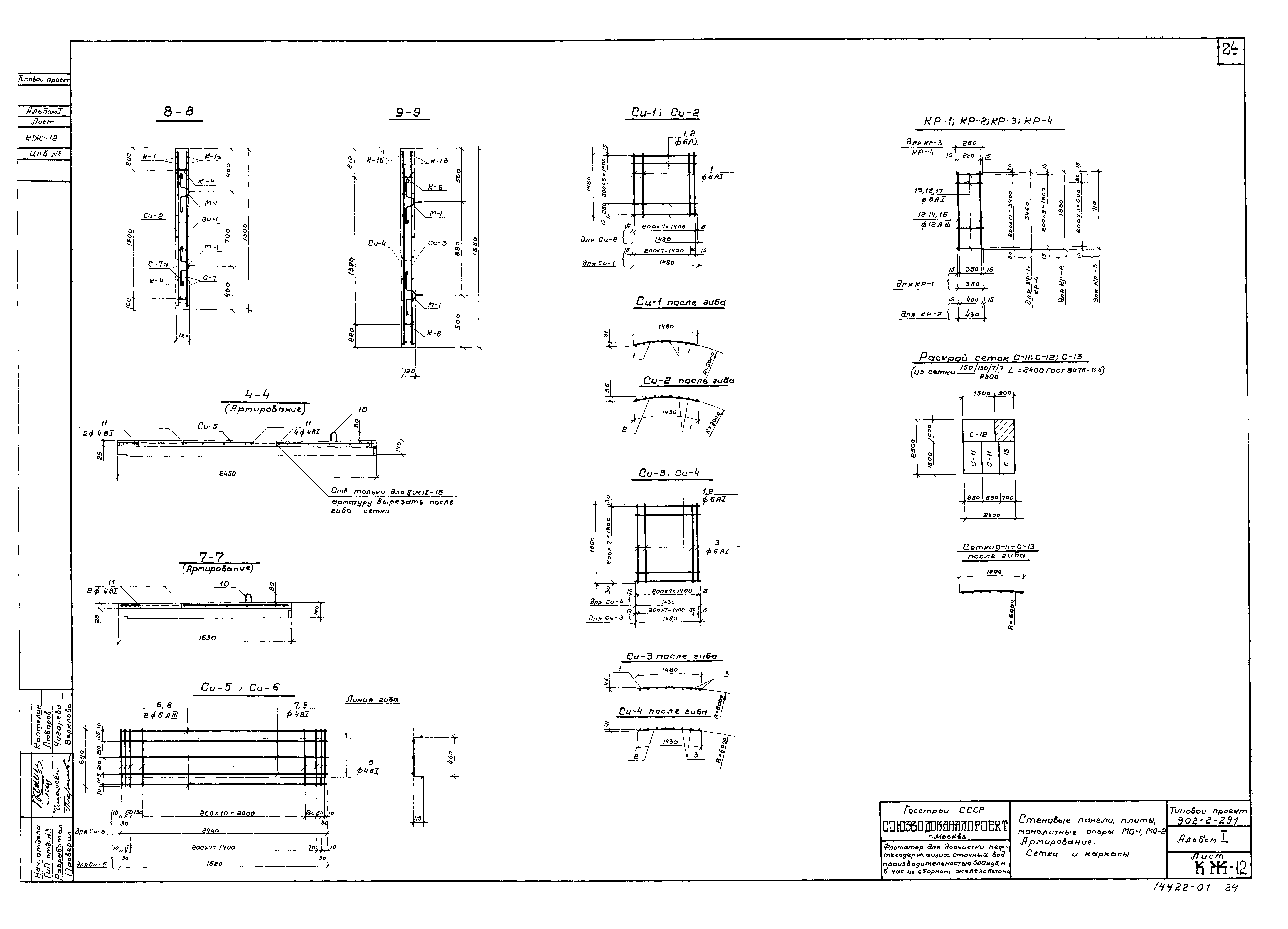
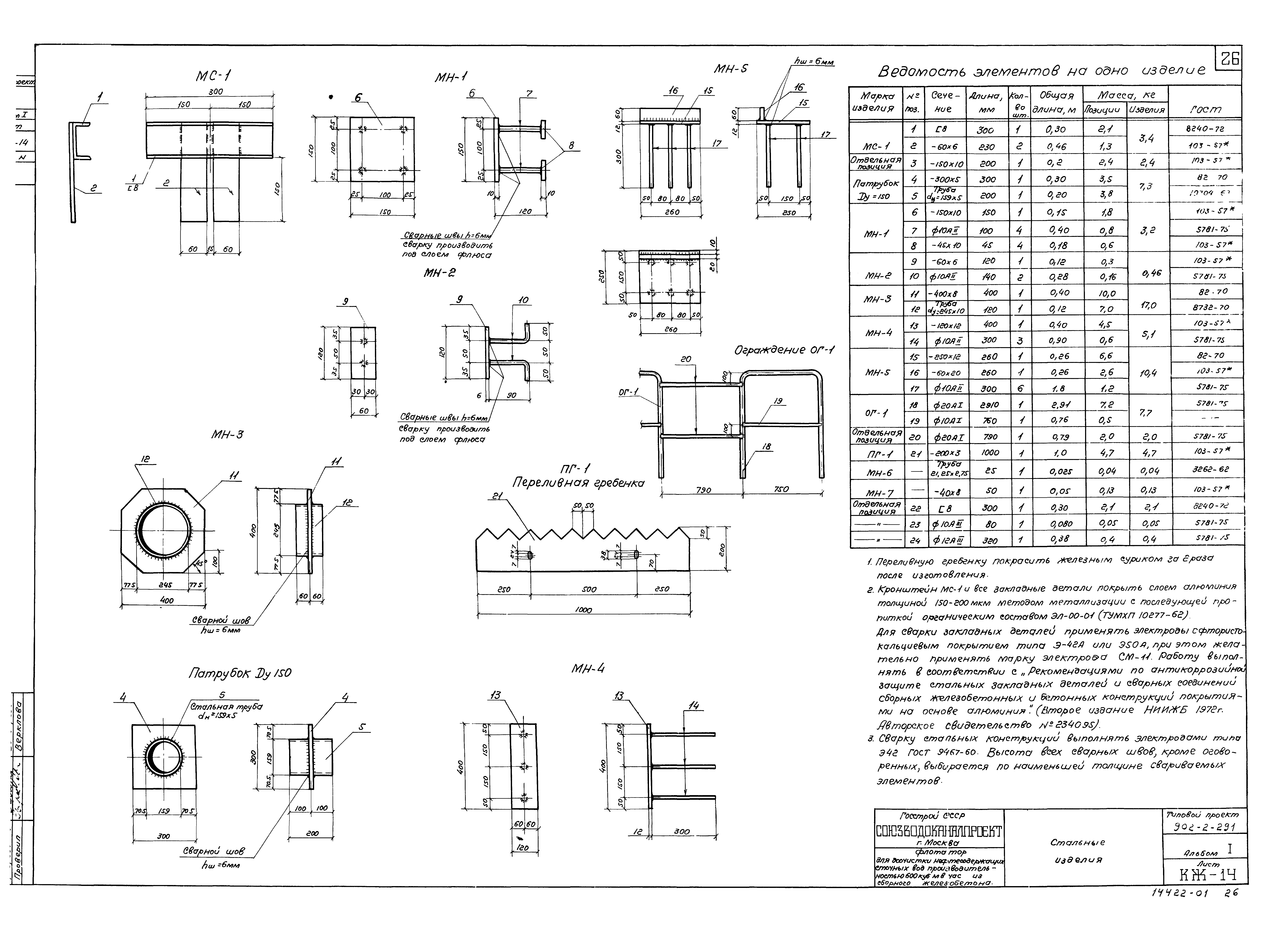
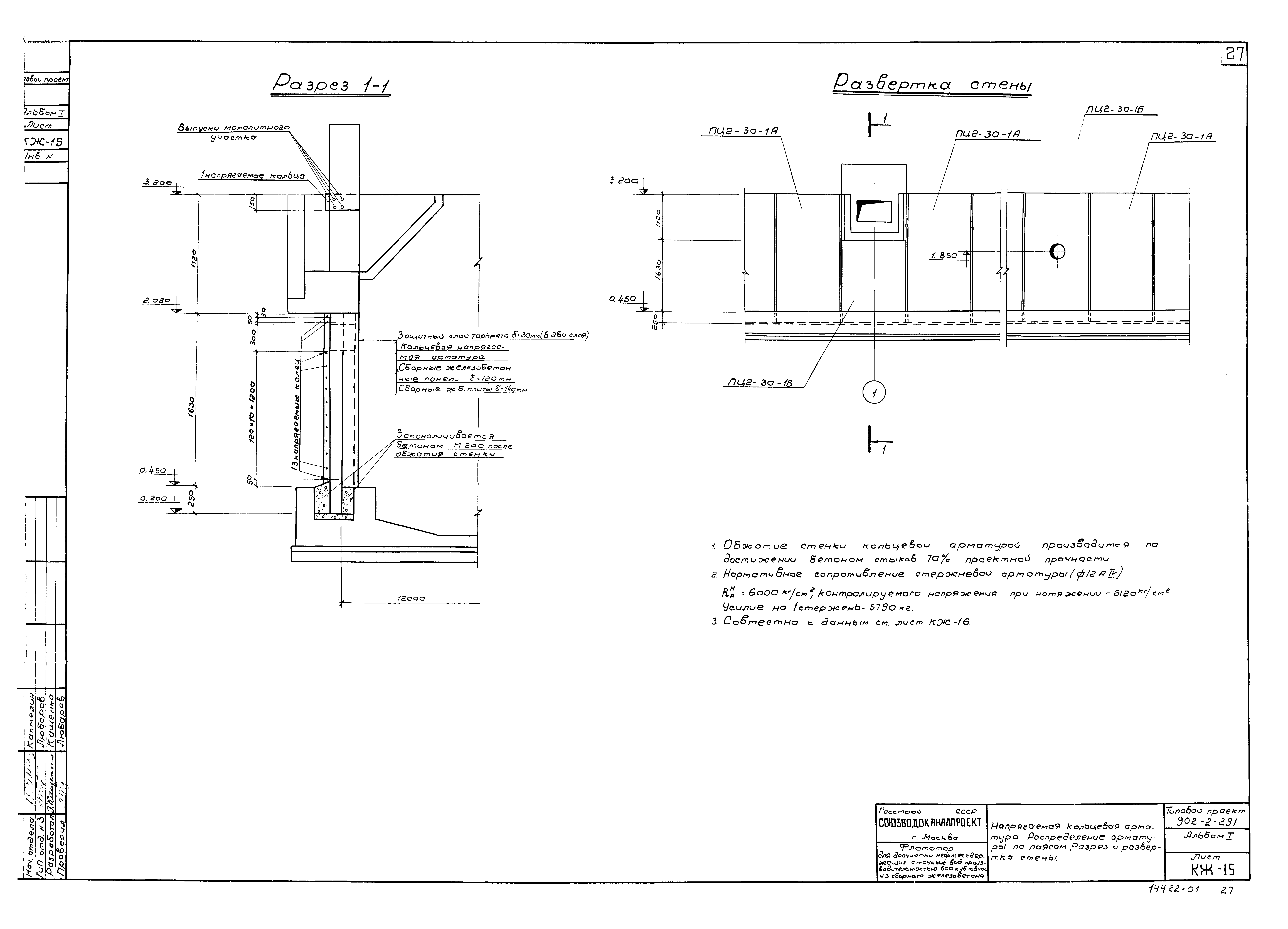
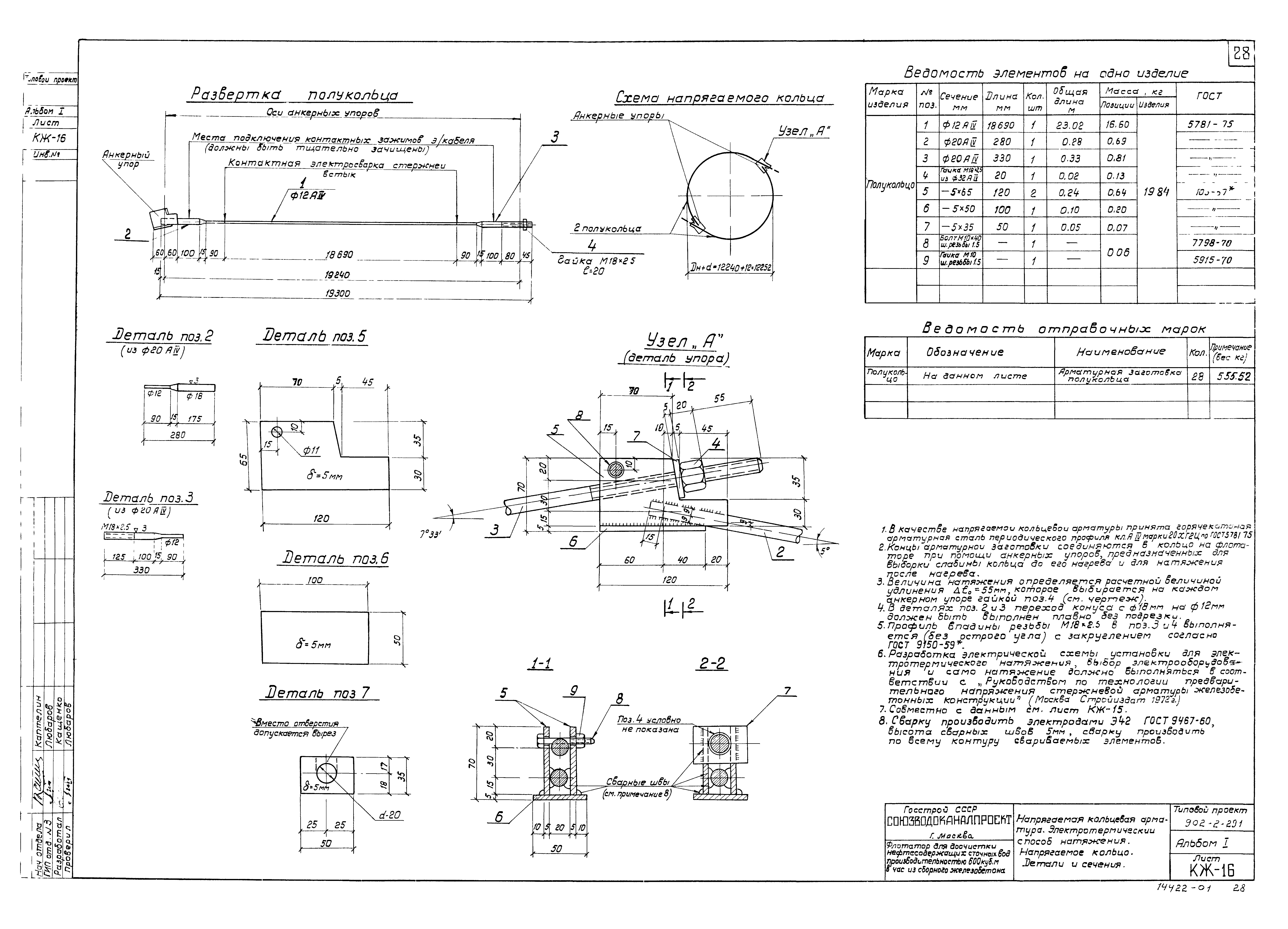
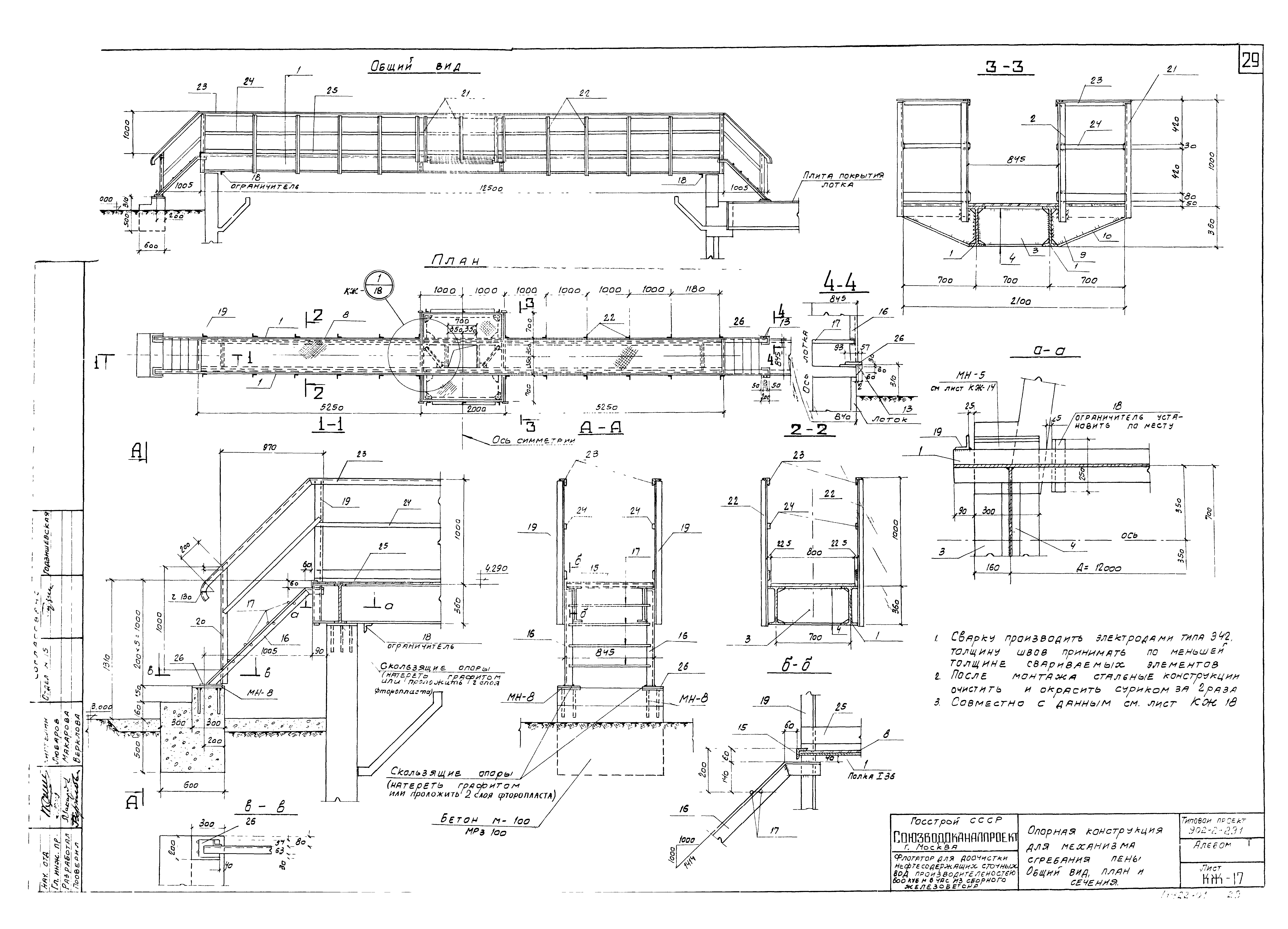
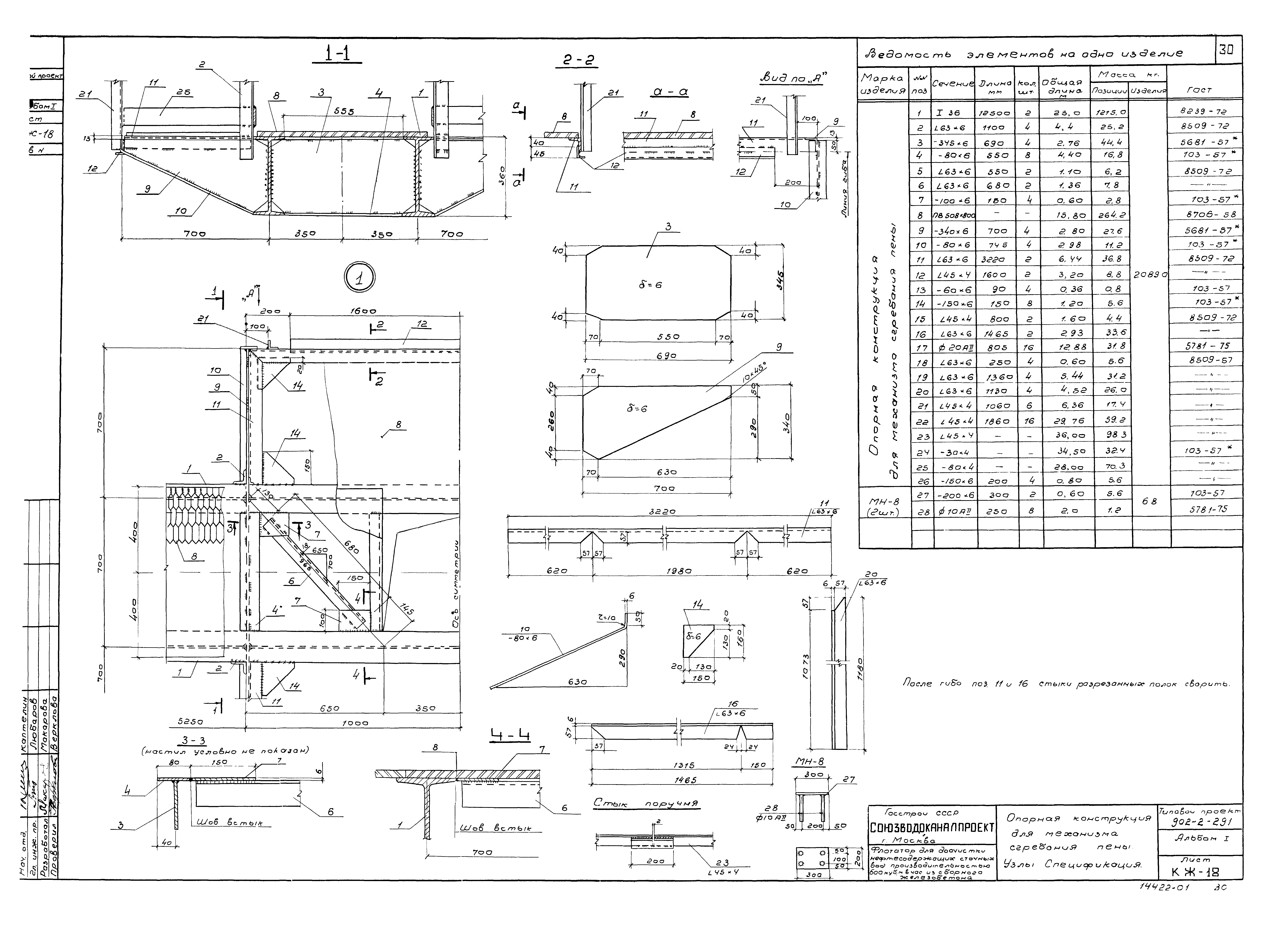
| Оглавление: | ТП 902-2-291-С-1 Содержание альбома ТП 902-2-291-ПЗ-1÷8 Пояснительная записка ТП 902-2-291-ТК-1 Флотационная установка. Вариант без рециркуляции сточных вод. План. (Пример компоновки) ТП 902-2-291-ТК-2 Флотационная установка. Вариант с рециркуляцией сточных вод. План. (Пример компоновки) ТП 902-2-291-КЖ-1 Заглавный лист ТП 902-2-291-КЖ-2 Планы на отм. 4.290 и 2.000. Разрезы 1-1 и 2-2 ТП 902-2-291-КЖ-3 Узлы 1 и 2. Детали и сечения ТП 902-2-291-КЖ-4 Узлы 3,4,5. Детали и сечения ТП 902-2-291-КЖ-5 Маркировочная схема стеновых панелей, плит и лотков ТП 902-2-291-КЖ-6 Днище. Опалубочный чертеж ТП 902-2-291-КЖ-7 Днище. Армирование ТП 902-2-291-КЖ-8 Днище. План расположения каркасов и армирование приямка ТП 902-2-291-КЖ-9 Днище. Раскрой сеток. Спецификация и выборка арматуры на днище и приямок ТП 902-2-291-КЖ-10 Железные опоры под механизм сгребания пены МО-1 и МО-2. Армирование ТП 902-2-291-КЖ-11 Панели ПЦ1-30-1А,Б,В,Г;ПЖ1Е-2А,Б,В. Опалубочные чертежи ТП 902-2-291-КЖ-12 Стеновые панели, плиты, лотки, монолитные опоры МО-1,МО-2. Сетки и каркасы ТП 902-2-291-КЖ-13 Стеновые панели, плиты, лотки, монолитные опоры МО-1,МО-2. Спецификация и выборка арматуры ТП 902-2-291-КЖ-14 Стальные изделия ТП 902-2-291-КЖ-15 Напрягаемая кольцевая арматура. Распределение арматуры по поясам. Разрез и развертка стены ТП 902-2-291-КЖ-16 Напрягаемая кольцевая арматура. Электротермический способ натяжения. Напрягаемое кольцо. Детали и сечения ТП 902-2-291-КЖ-17 Опорная конструкция для механизма сгребания пены. Общий вид, план и сечения ТП 902-2-291-КЖ-18 Опорная конструкция для механизма сгребания пены. Узлы. Спецификация ТП 902-2-291-ТМ-1 Монтажный чертеж. План ТП 902-2-291-ТМ-2 Монтажный чертеж. Разрезы А-А;Б-Б ТП 902-2-291-ТМ-3 Патрубок косой с шайбой делительной |
| Разработан: | Союзводоканалпроект |
| Утверждён: | 26.08.1976 Главпромстройпроект Госстроя СССР (62) |
































