Скачать Типовой проект 902-2-291 Альбом II. Нестандартизированное оборудованиеДата актуализации: 01.01.2021
|
| Обозначение: | Типовой проект 902-2-291 |
| Обозначение англ: | 902-2-291 |
| Статус: | действует |
| Название рус.: | Альбом II. Нестандартизированное оборудование |
| Дата добавления в базу: | 01.09.2013 |
| Дата актуализации: | 01.01.2021 |
| Дата введения: | 15.11.1976 |
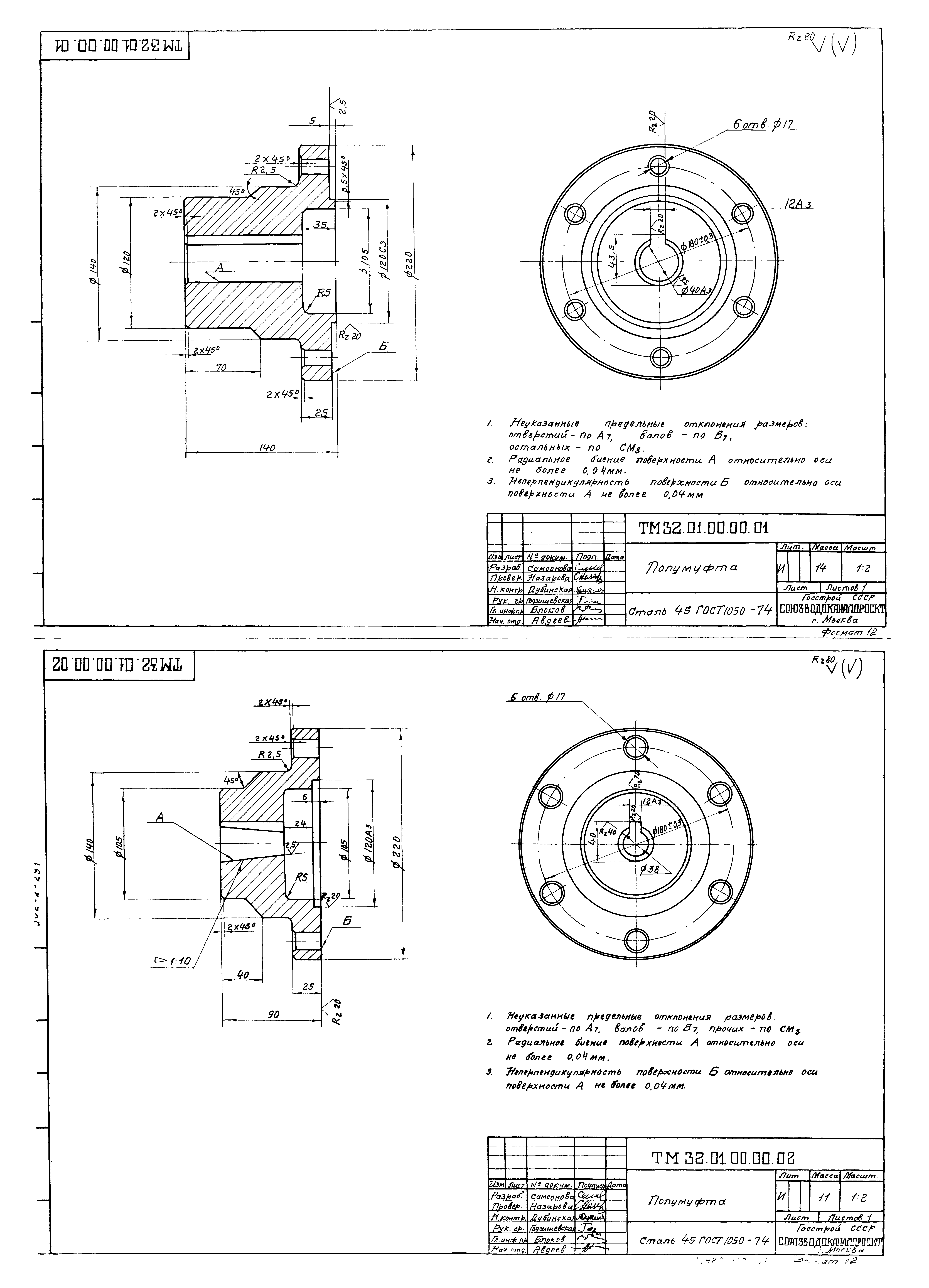
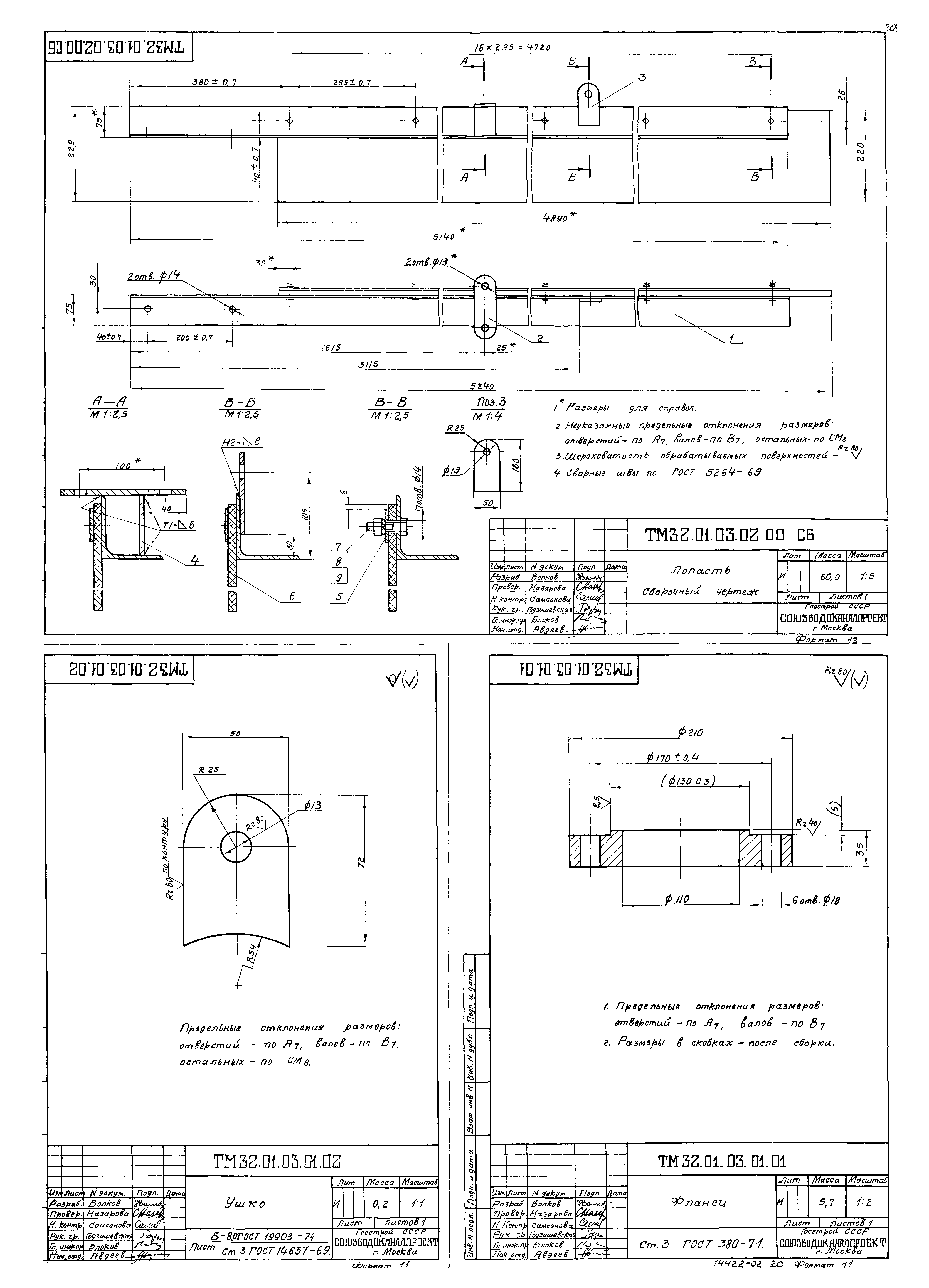
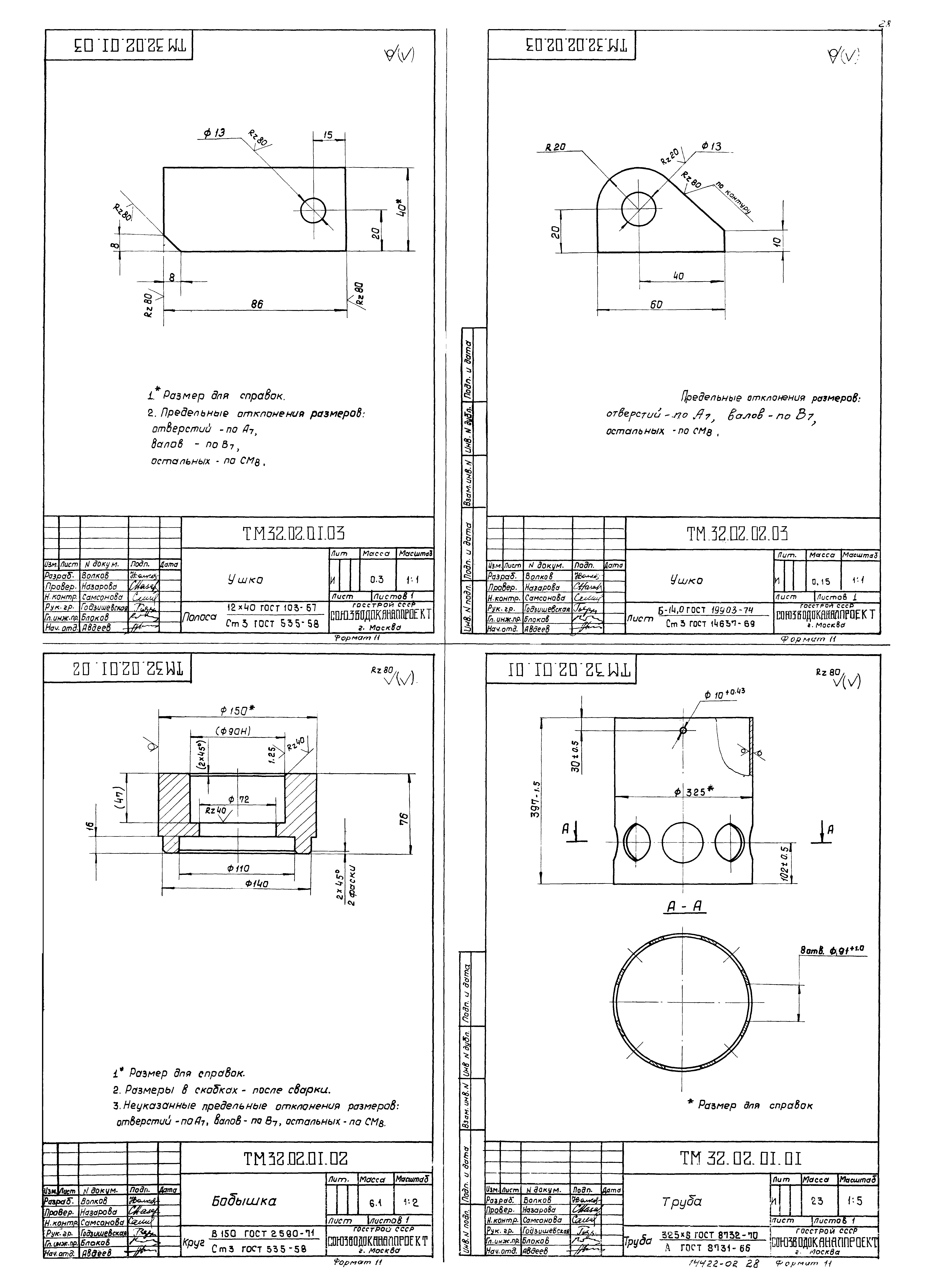
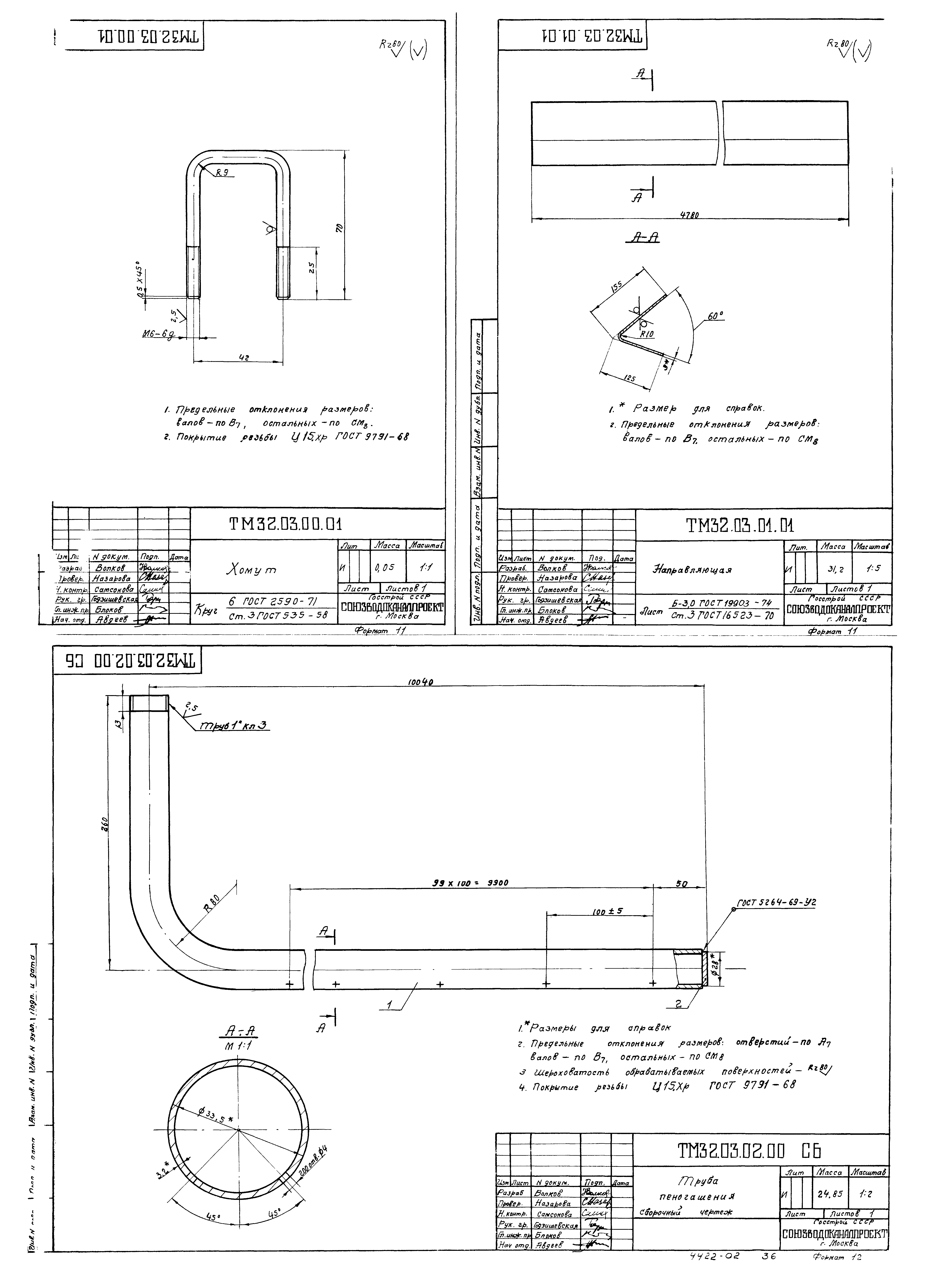
| Оглавление: | ТП 902-2-291 Содержание альбома ТП 902-2-291 ТМ33ПЗ Пояснительная записка ТП 902-2-291 Спецификации ТП 902-2-291 ТМ33.01.03.04.00 СБ Муфта. Сборочный чертеж ТП 902-2-291 ТМ33.01.00.00.00 СБ Механизм сгребания пены. Сборочный чертеж ТП 902-2-291 ТМ33.01.03.03.00 Вилка ТП 902-2-291 ТМ33.01.00.00.04 Планка ТП 902-2-291 ТМ33.01.00.00.02 Полумуфта ТП 902-2-291 ТМ33.01.00.00.01 Полумуфта ТП 902-2-291 ТМ33.01.00.00.05 Полумуфта ТП 902-2-291 ТМ33.01.02.00.02 Полумуфта ТП 902-2-291 ТМ33.01.02.00.03 Крышка подшипника ТП 902-2-291 ТМ33.01.01.00.00 СБ Каркас. Сборочный чертеж ТП 902-2-291 ТМ33.01.01.00.01 Плита ТП 902-2-291 ТМ33.01.01.00.02 Плита ТП 902-2-291 ТМ33.01.01.00.03 Уголок ТП 902-2-291 ТМ33.01.01.00.04 Стойка ТП 902-2-291 ТМ33.01.02.00.00 СБ Опора. Сборочный чертеж ТП 902-2-291 ТМ33.01.02.01.00 СБ Вал с фланцем. Сборочный чертеж ТП 902-2-291 ТМ33.01.02.02.00 СБ Корпус. Сборочный чертеж ТП 902-2-291 ТМ33.01.02.02.02 Фланец нижний ТП 902-2-291 ТМ33.01.02.00.01 Фланец ТП 902-2-291 ТМ33.01.00.00.03 Перекладина ТП 902-2-291 ТМ33.01.02.02.01 Фланец верхний ТП 902-2-291 ТМ33.01.03.00.00 СБ Скребок. Сборочный чертеж ТП 902-2-291 ТМ33.01.03.01.00 СБ Опора. Сборочный чертеж ТП 902-2-291 ТМ33.01.03.01.01 Фланец ТП 902-2-291 ТМ33.01.03.01.02 Ушко ТП 902-2-291 ТМ33.01.03.02.00 СБ Лопасть. Сборочный чертеж ТП 902-2-291 ТМ33.01.03.02.02 Планка ТП 902-2-291 ТМ33.01.03.02.05 Планка ТП 902-2-291 ТМ33.01.03.02.06 Пластина ТП 902-2-291 ТМ33.01.03.03.00 СБ Тяга. Сборочный чертеж ТП 902-2-291 Спецификации ТП 902-2-291 ТМ33.02.00.04 Втулка ТП 902-2-291 ТМ33.02.00.00 СБ Водораспределитель вращающийся. Сборочный чертеж ТП 902-2-291 ТМ33.02.00.01 Ось ТП 902-2-291 ТМ33.02.00.02 Крышка ТП 902-2-291 ТМ33.02.00.03 Пробка ТП 902-2-291 ТМ33.02.01.00 СБ Корпус. Сборочный чертеж ТП 902-2-291 ТМ33.02.01.01 Труба ТП 902-2-291 ТМ33.02.01.02 Бобышка ТП 902-2-291 ТМ33.02.01.03 Ушко ТП 902-2-291 ТМ33.02.02.03 Ушко ТП 902-2-291 ТМ33.02.02.00 СБ Труба со штуцером. Сборочный чертеж ТП 902-2-291 ТМ33.02.03.00 СБ Фланец опорный. Сборочный чертеж ТП 902-2-291 ТМ33.02.03.01 Фланец ТП 902-2-291 ТМ33.02.04.00 СБ Опора. Сборочный чертеж ТП 902-2-291 Спецификации ТП 902-2-291 ТМ33.03.01.02 Ребро ТП 902-2-291 ТМ33.03.01.03 Заглушка ТП 902-2-291 ТМ33.03.00.00 СБ Лоток пеносборный. Сборочный чертеж ТП 902-2-291 ТМ33.03.03.00 СБ Опора. Сборочный чертеж ТП 902-2-291 ТМ33.03.01.00 СБ Лоток. Сборочный чертеж ТП 902-2-291 ТМ33.03.02.00 СБ Труба пеногашения. Сборочный чертеж ТП 902-2-291 ТМ33.03.00.01 Хомут ТП 902-2-291 ТМ33.03.01.01 Направляющая ТП 902-2-291 Спецификации ТП 902-2-291 ТМ33.04.01 Стрелка ТП 902-2-291 ТМ33.04.02 Опора ТП 902-2-291 ТМ33.04.00 СБ Указатель вращения водораспределителя. Сборочный чертеж |
| Разработан: | Союзводоканалпроект |
| Утверждён: | 26.08.1976 Главпромстройпроект Госстроя СССР (62) |






































