Скачать Серия РС 32301 Рабочие чертежиДата актуализации: 01.01.2021 Серия РС 32301
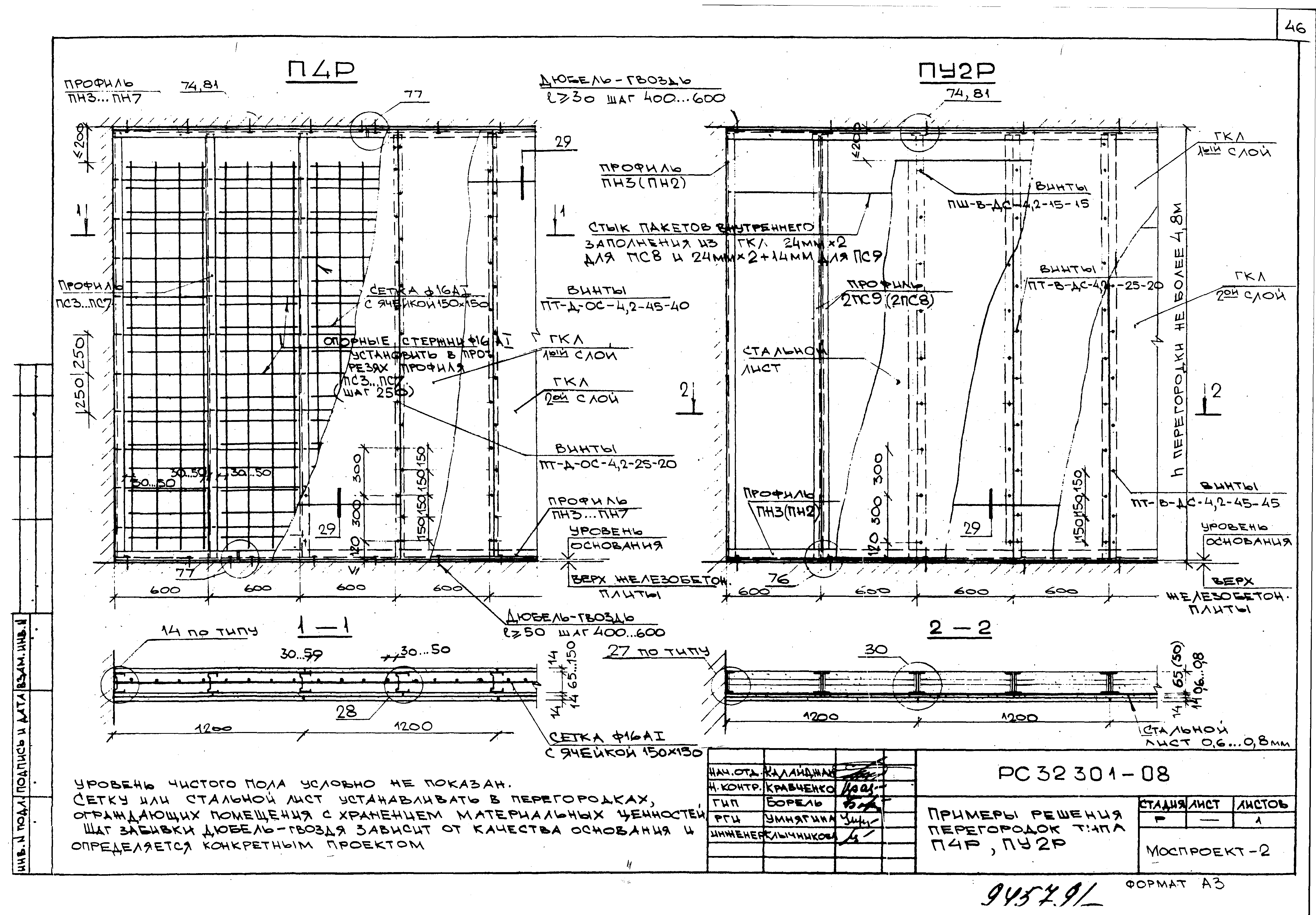
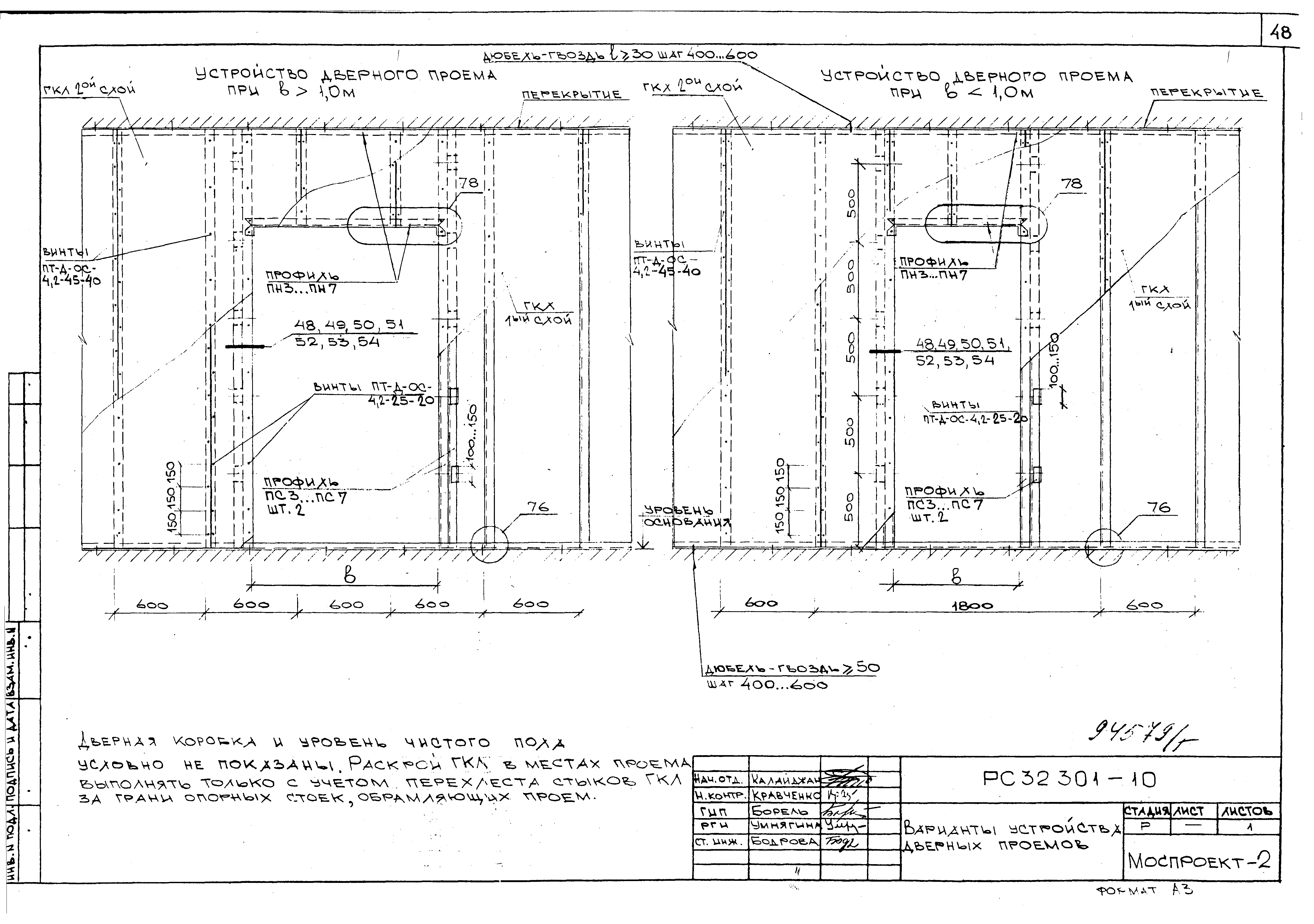
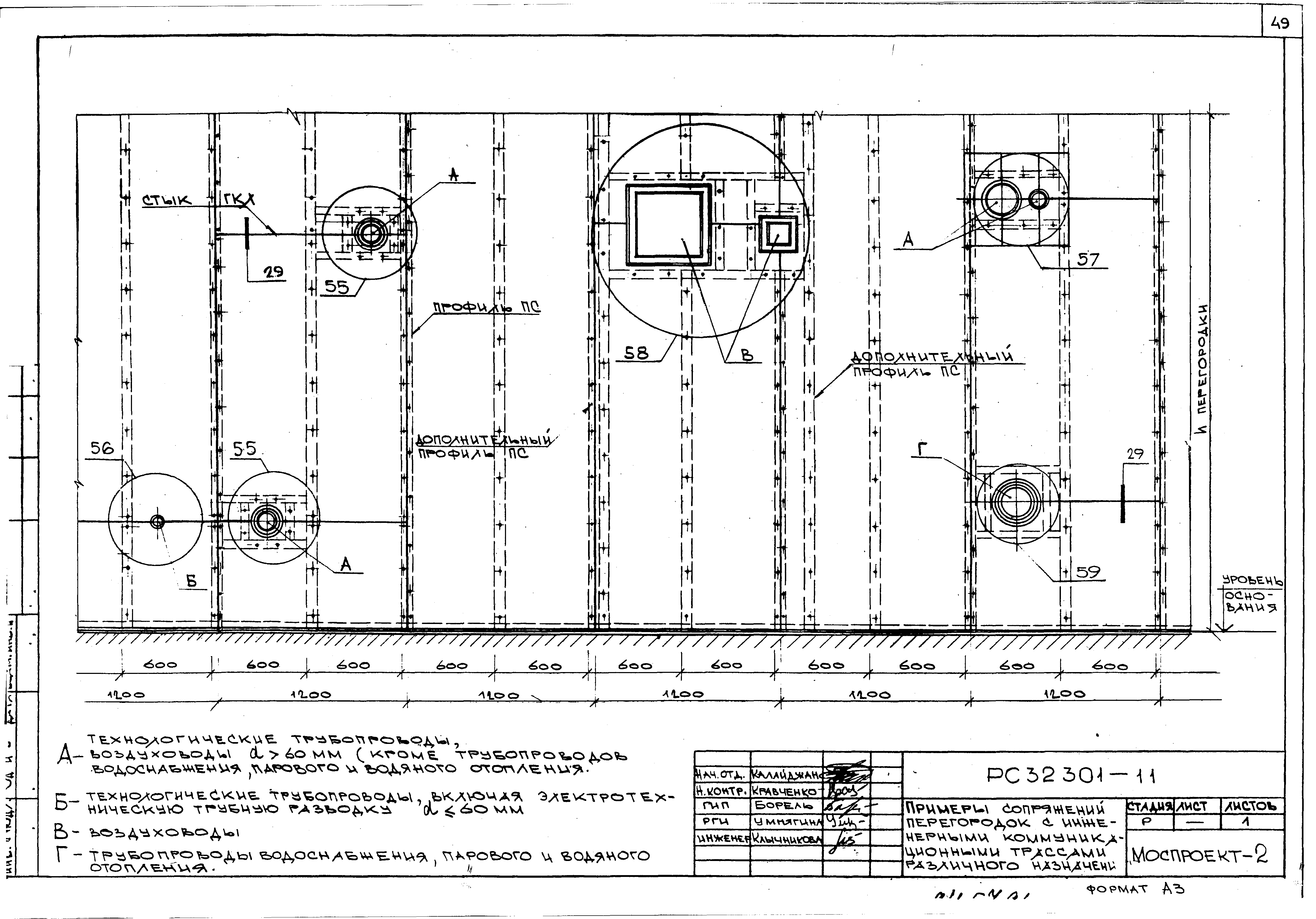
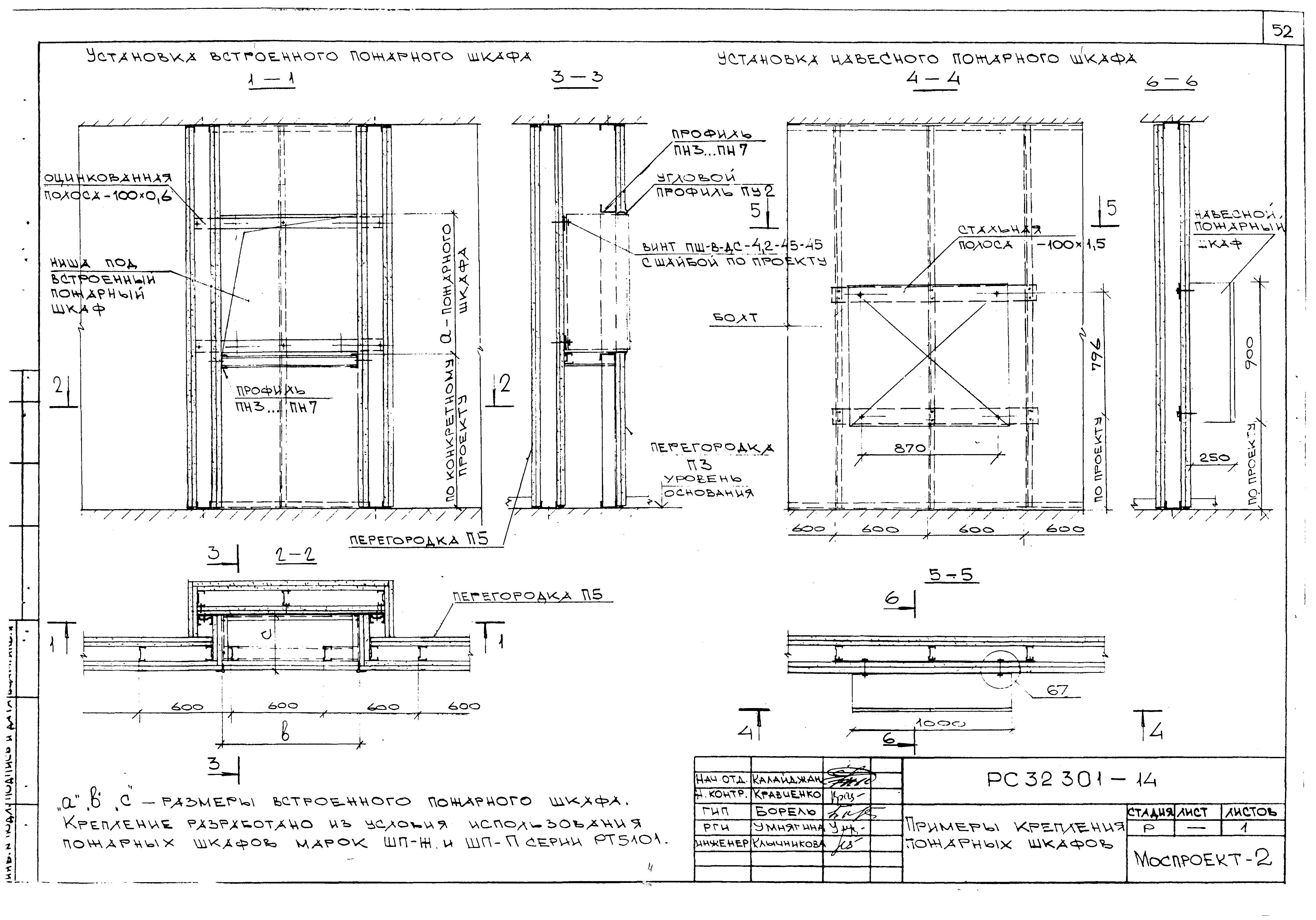
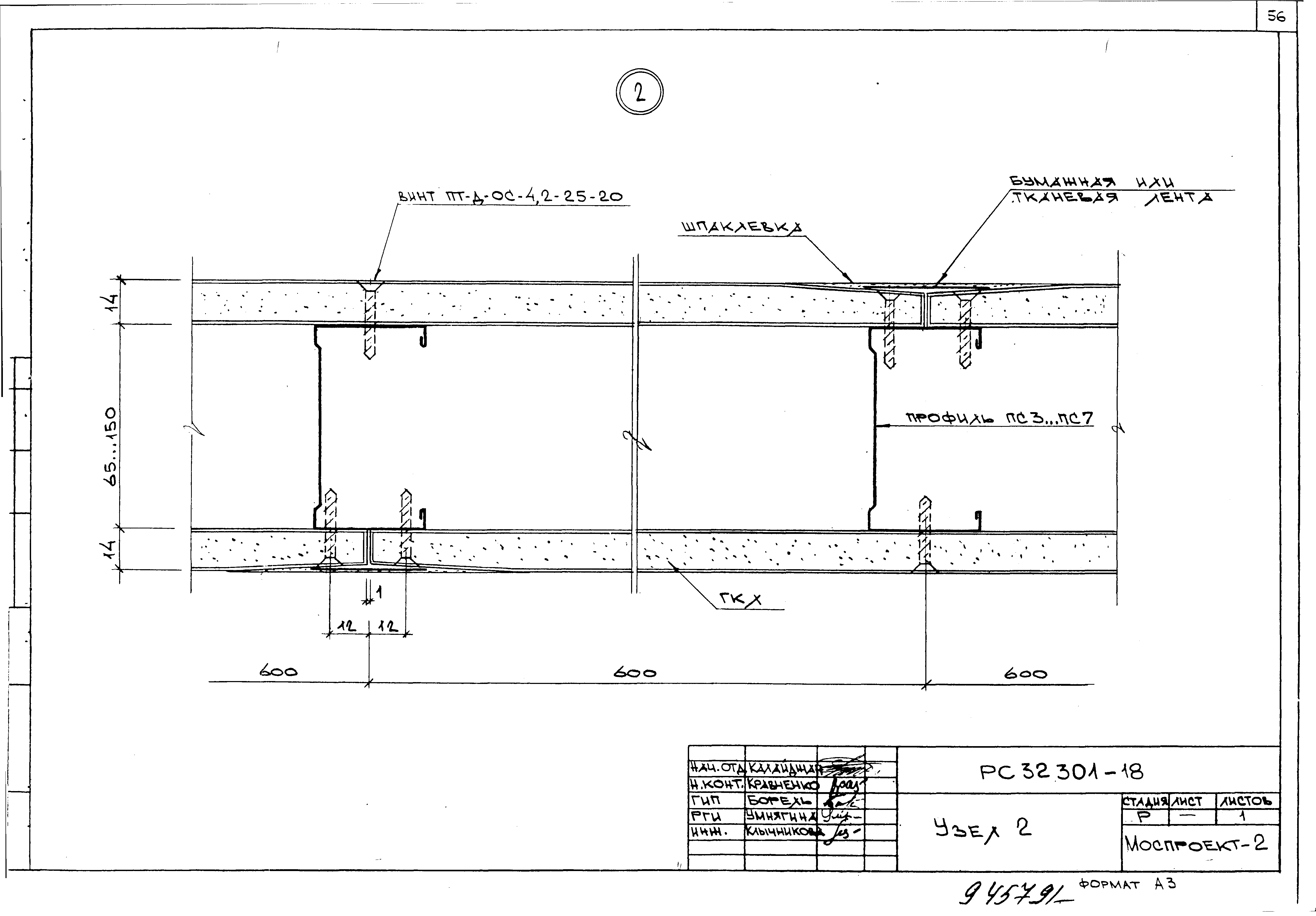
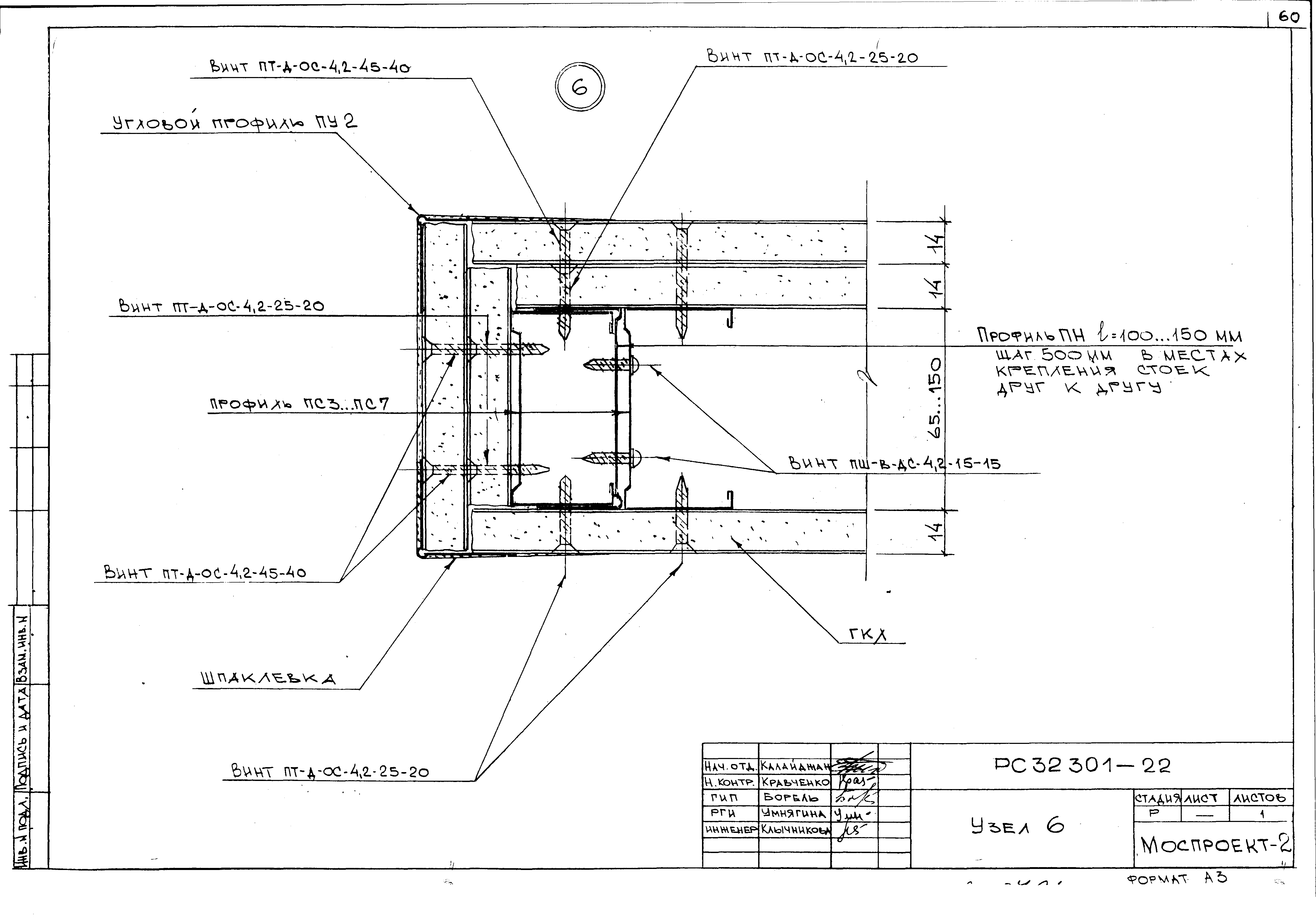
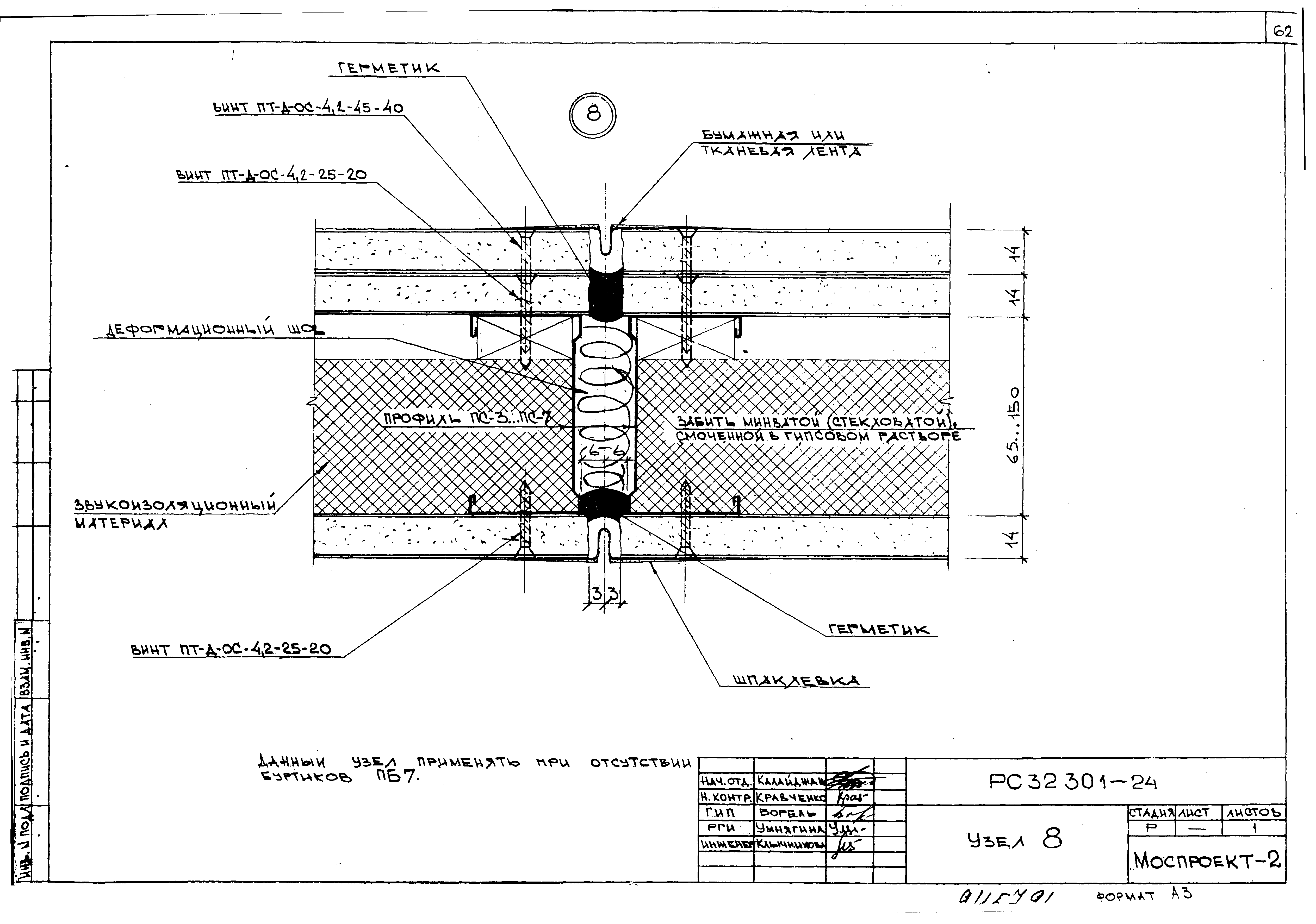
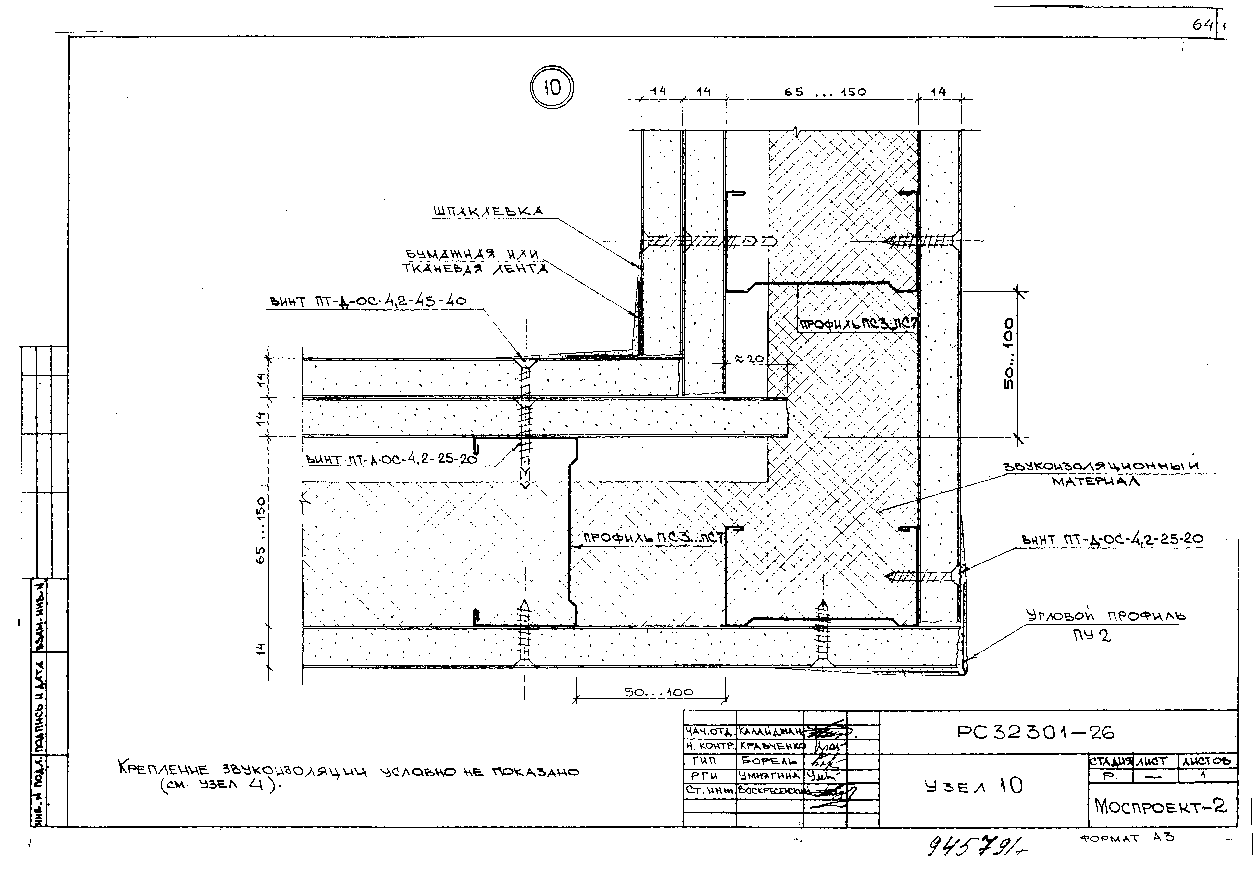
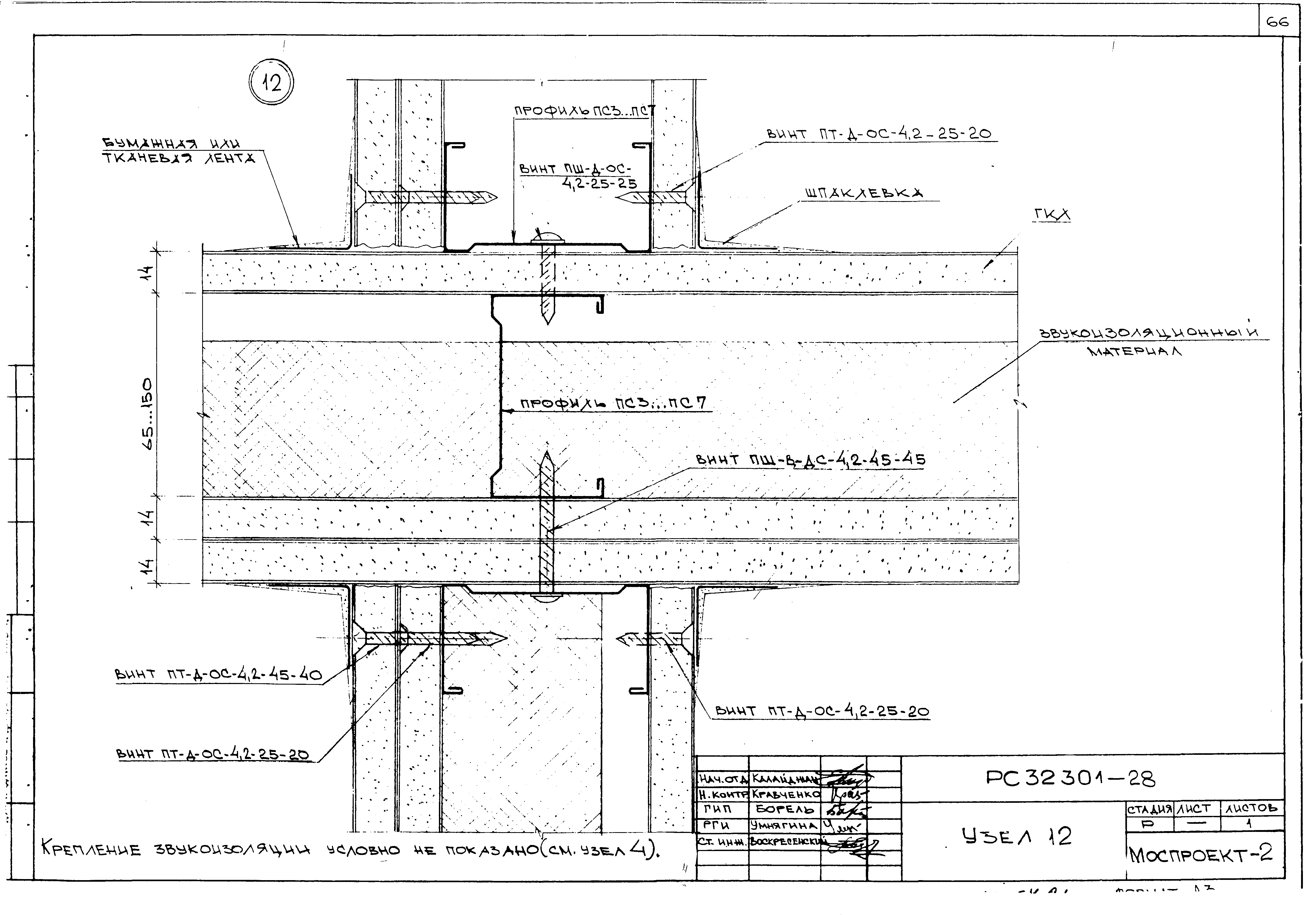
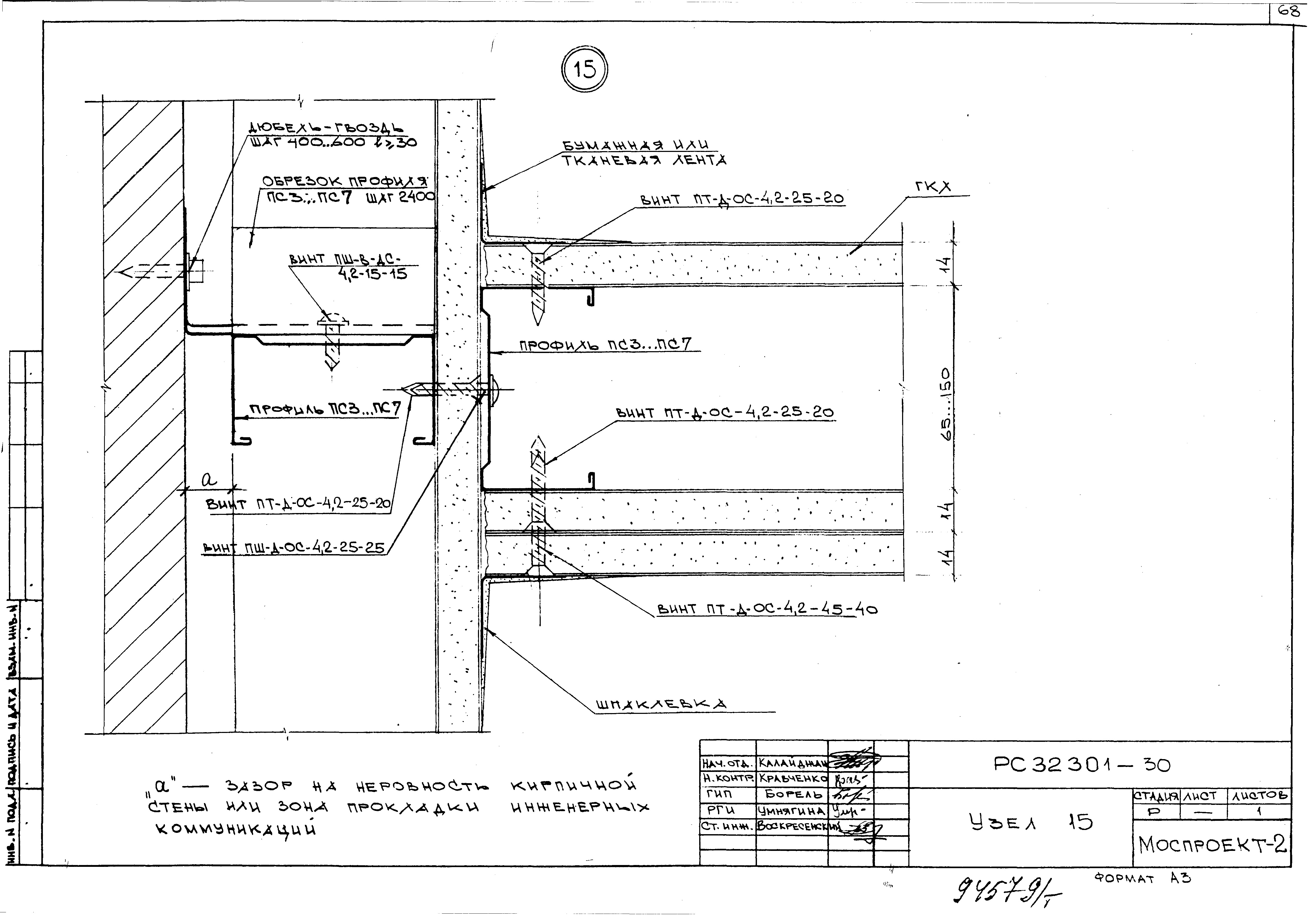
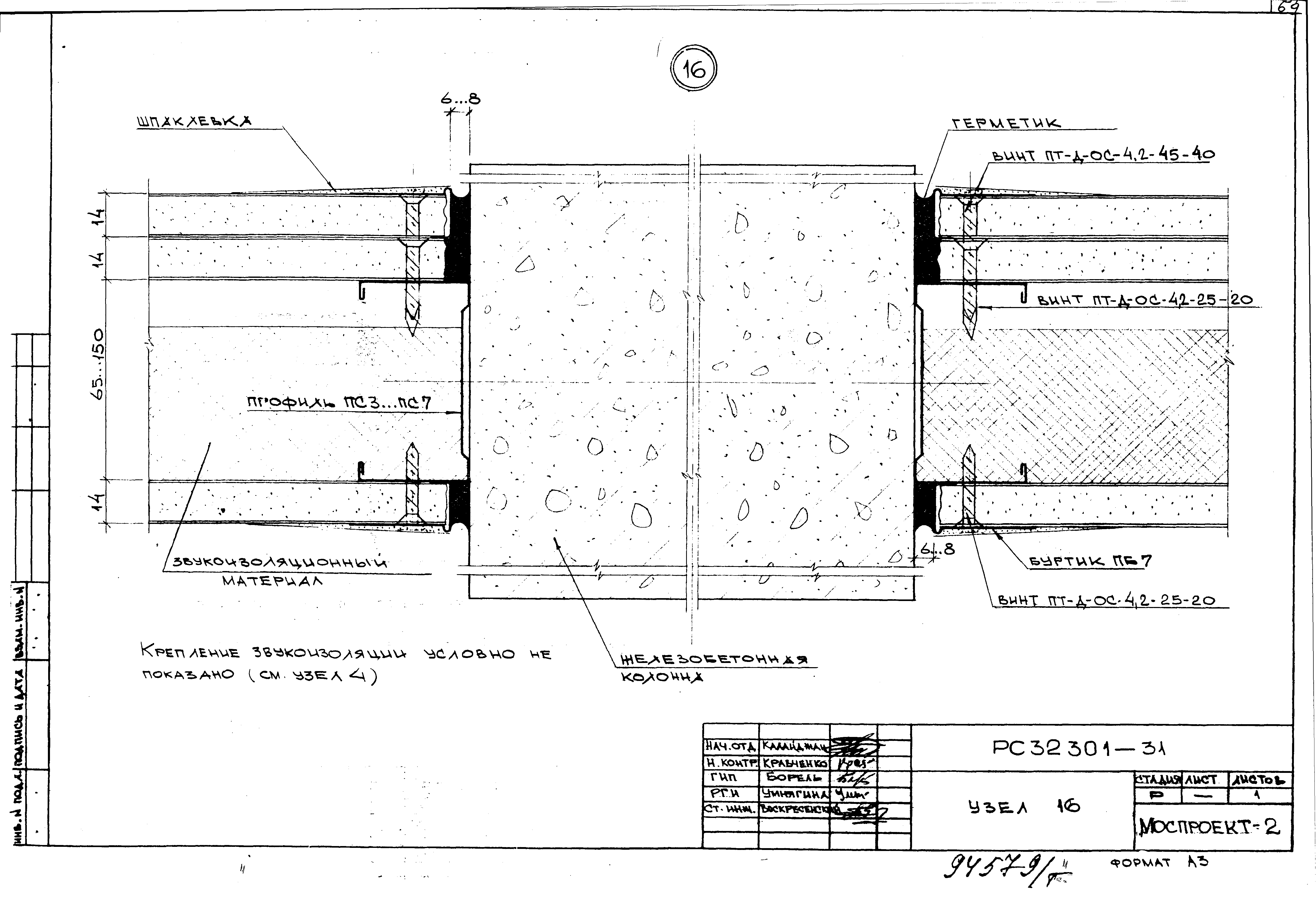
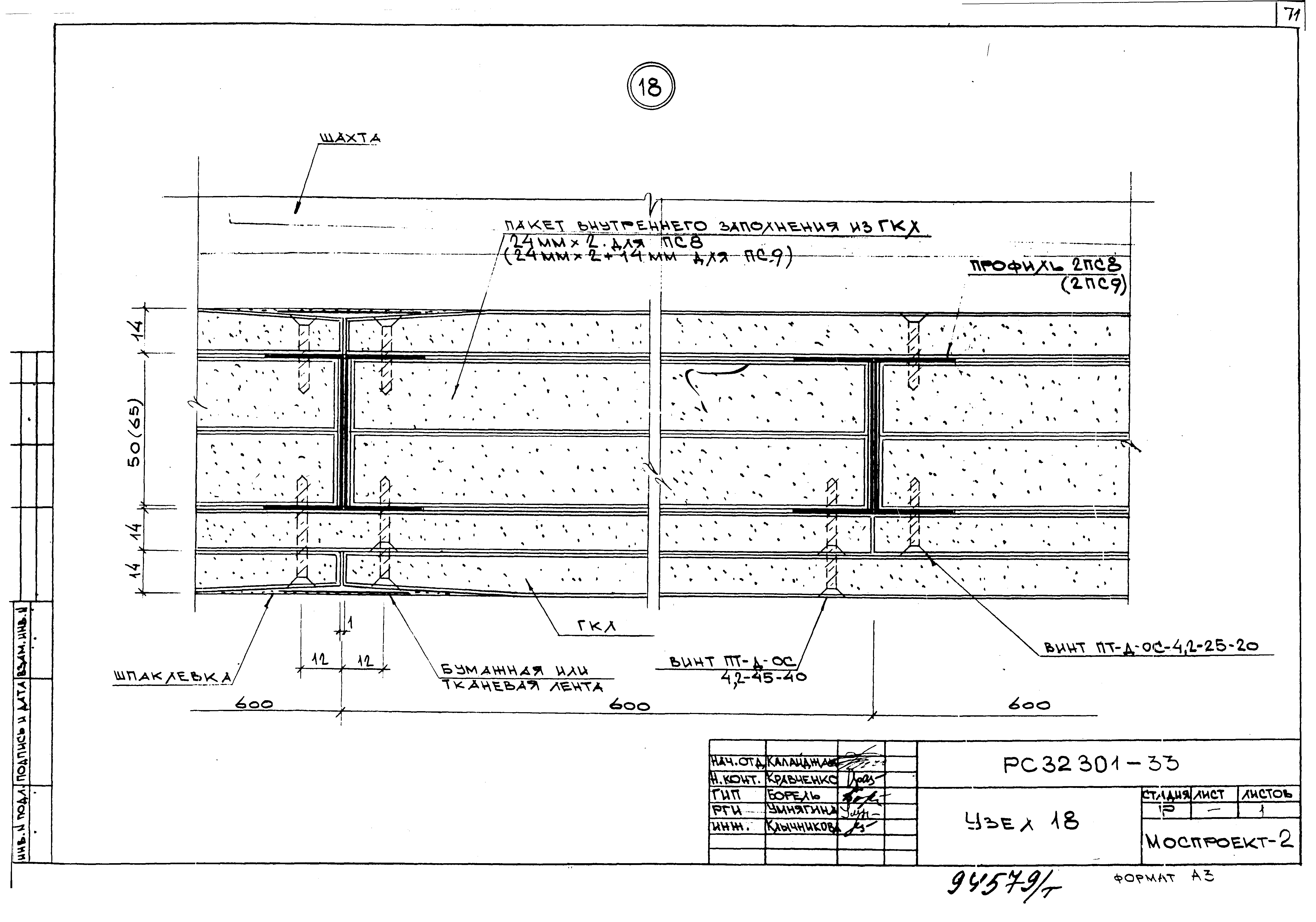
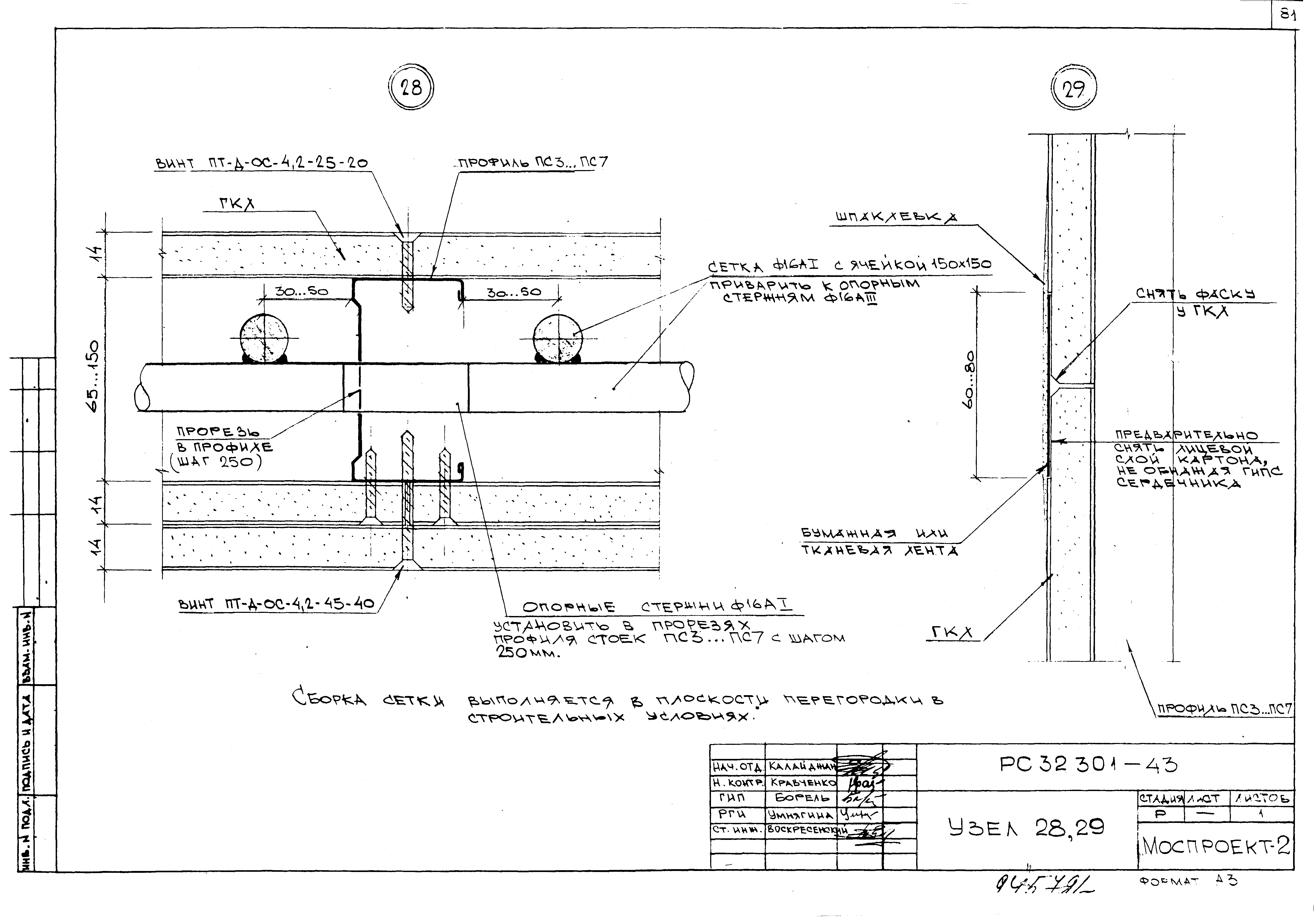
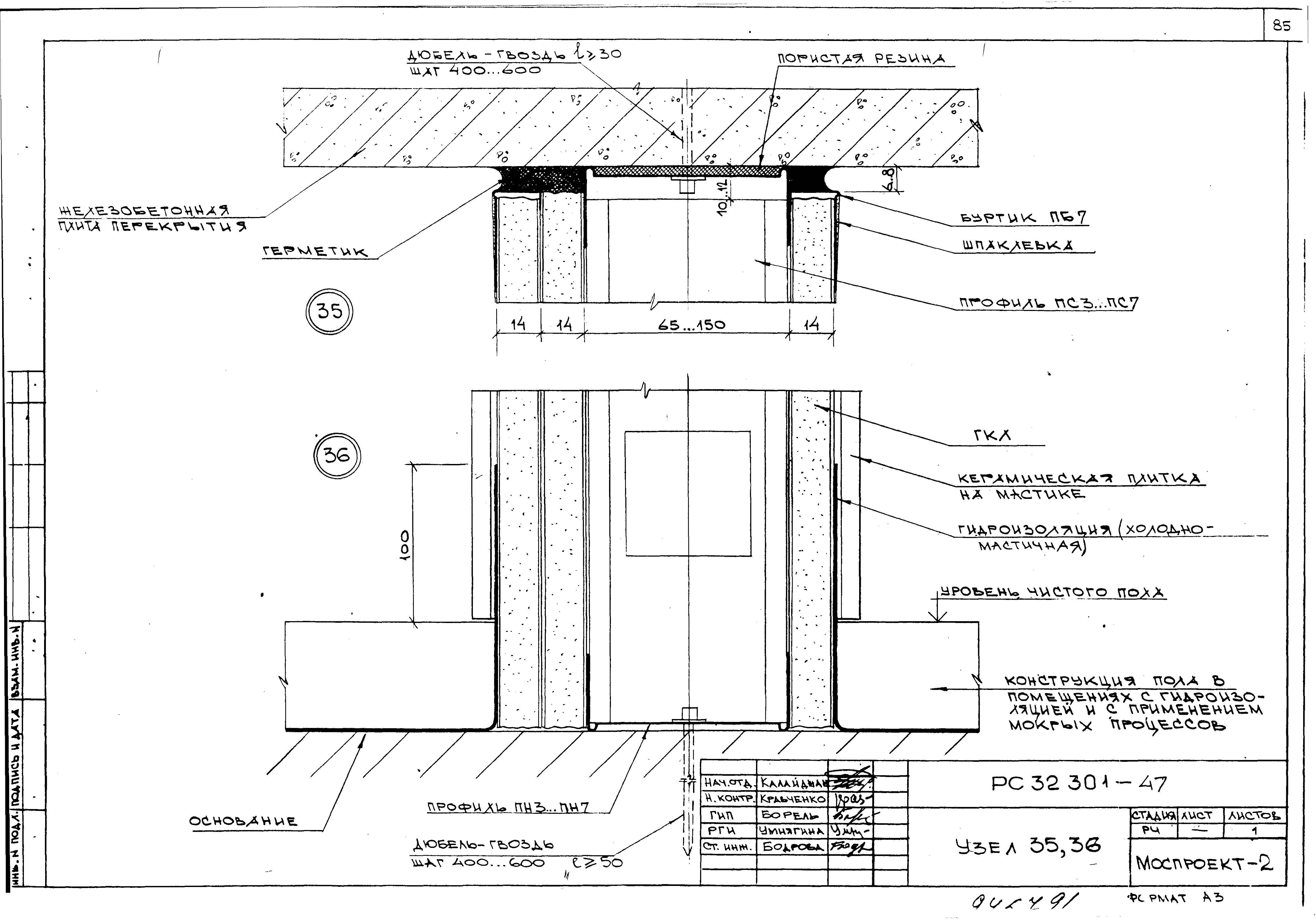
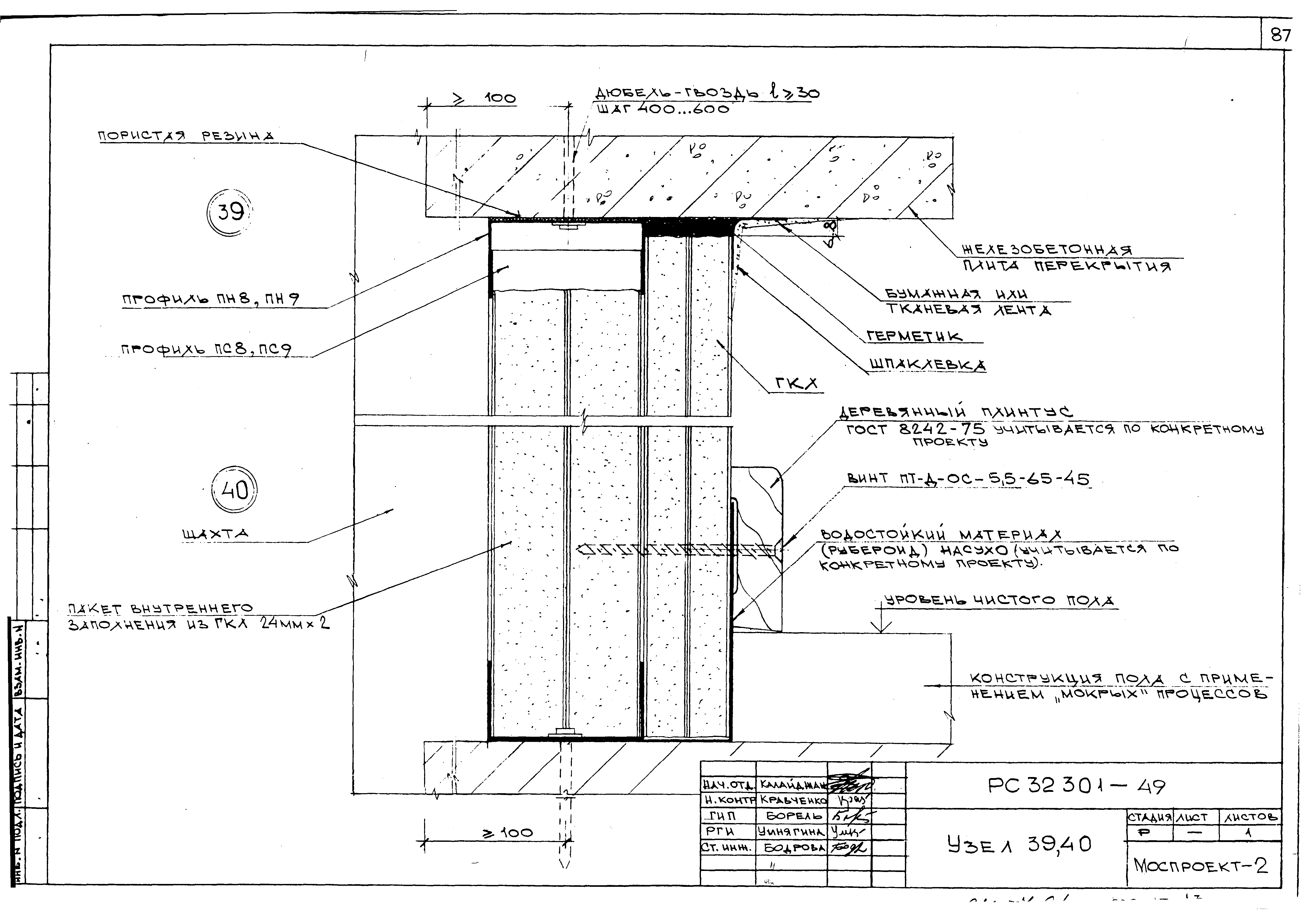
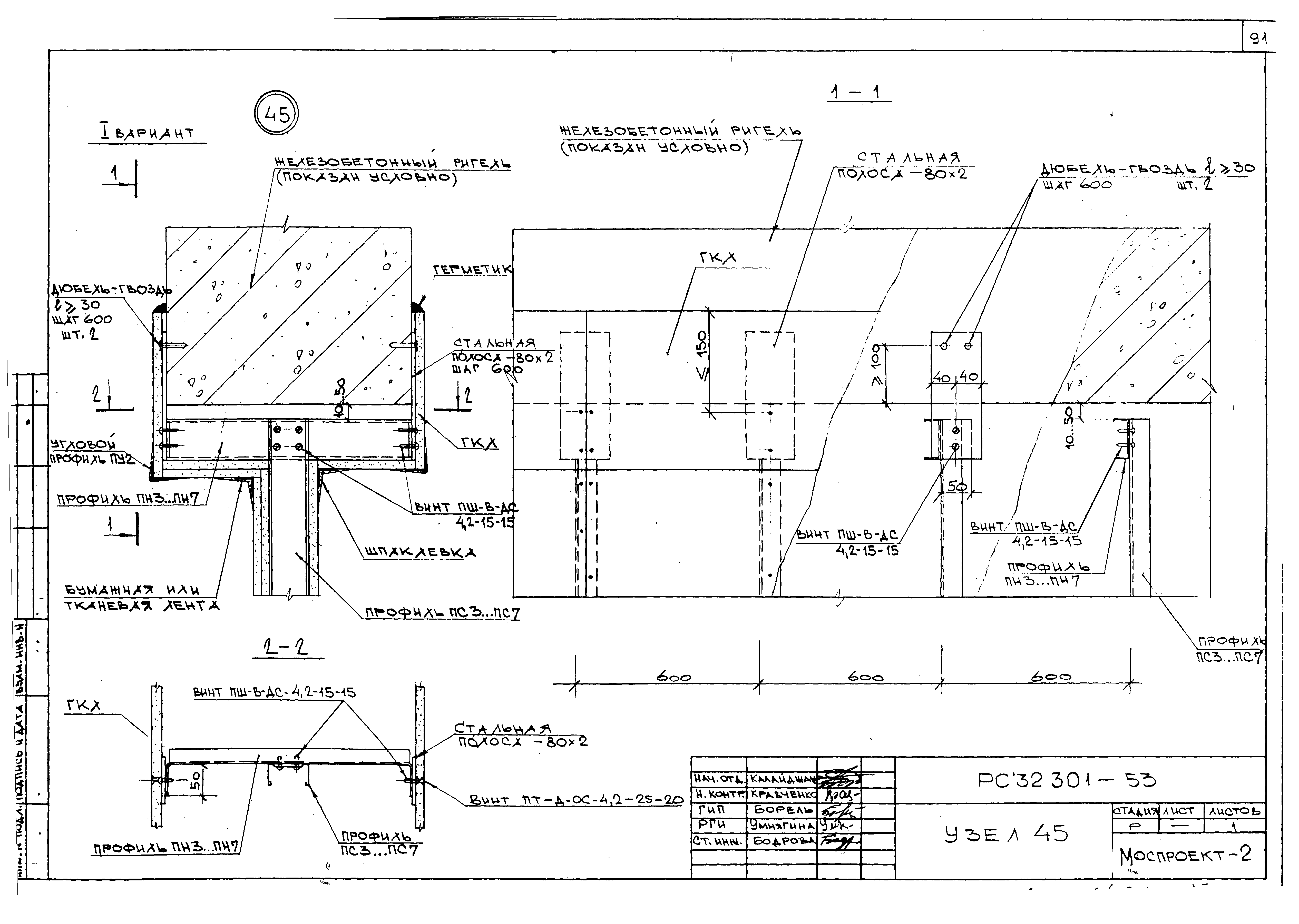
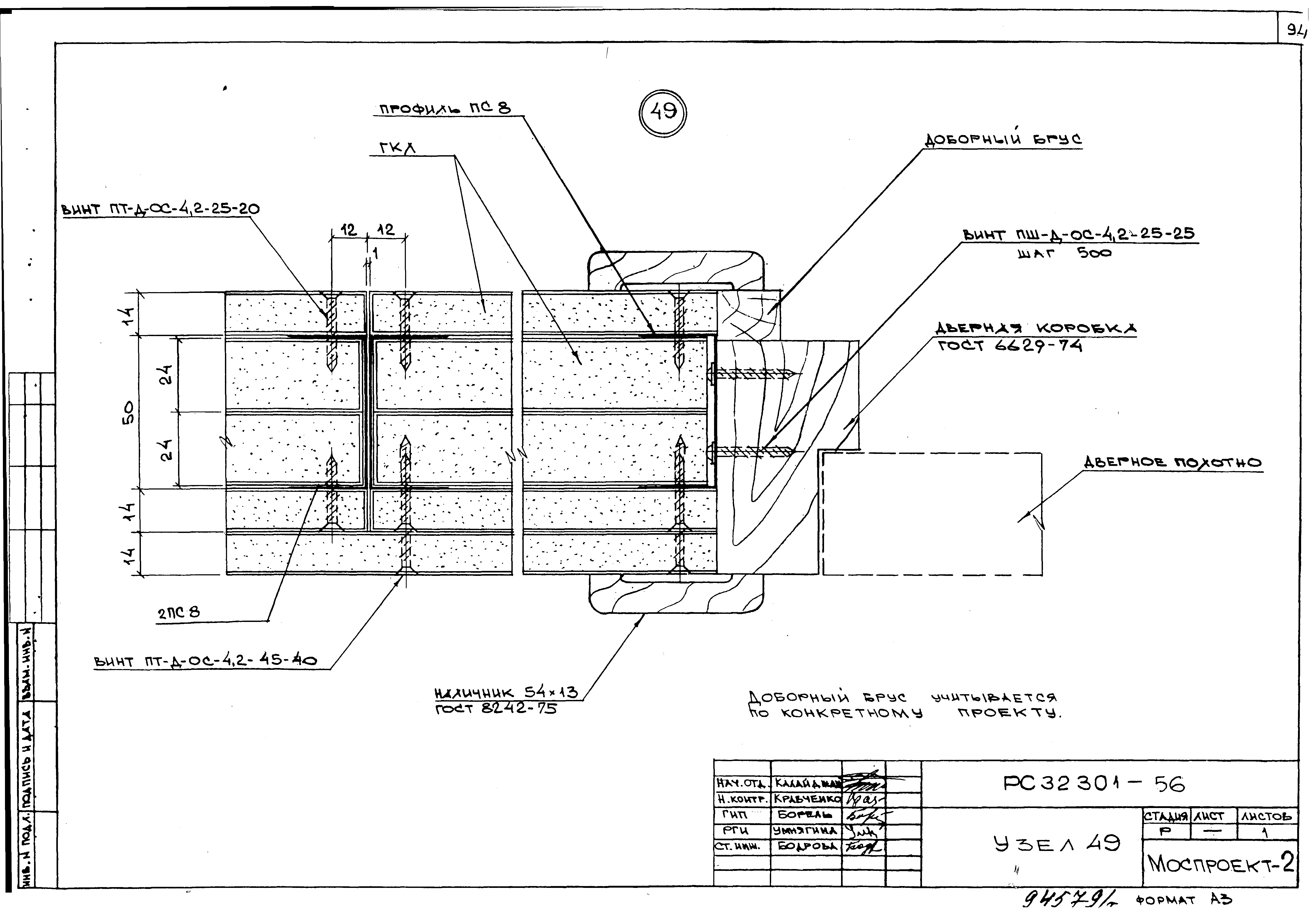
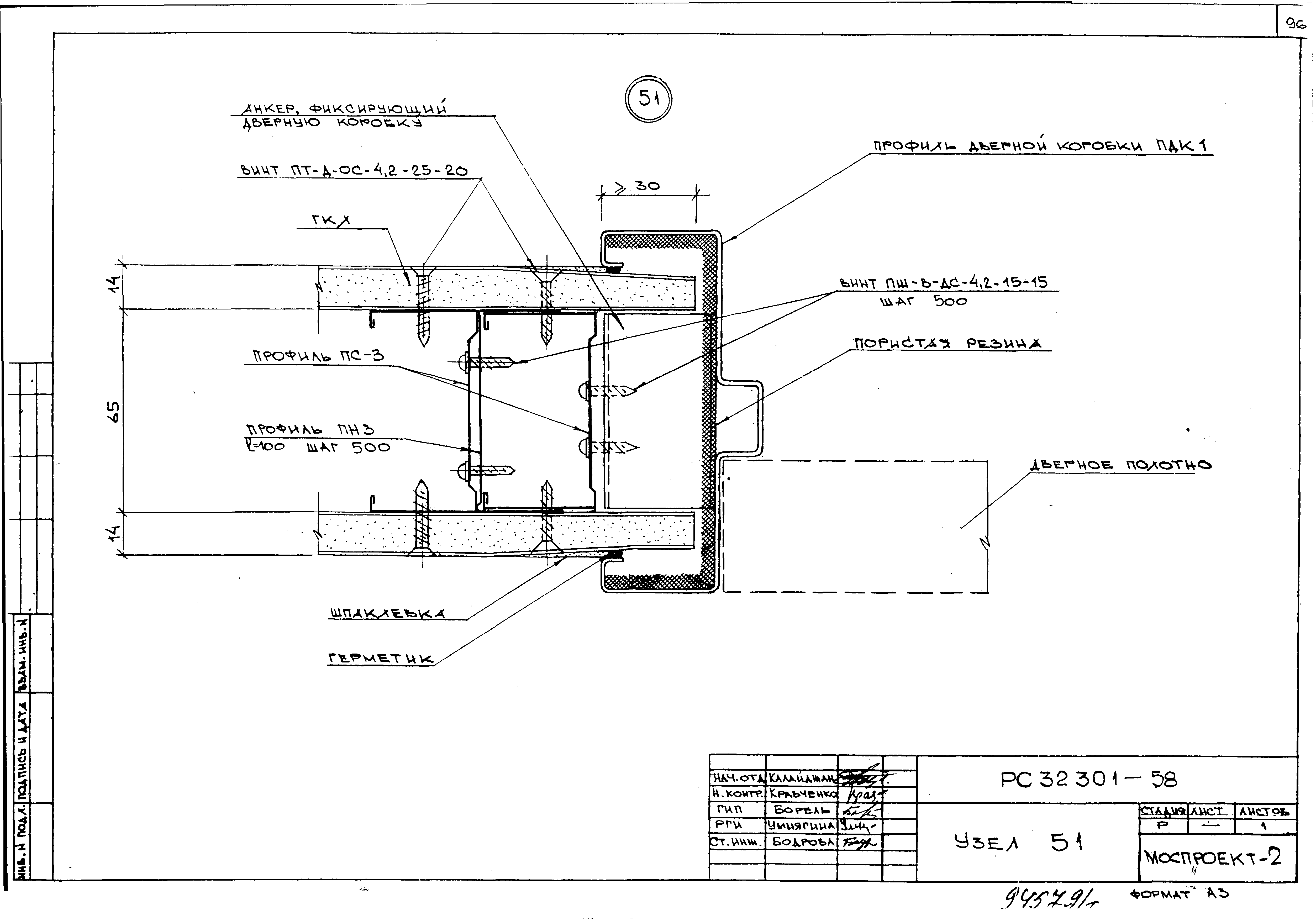
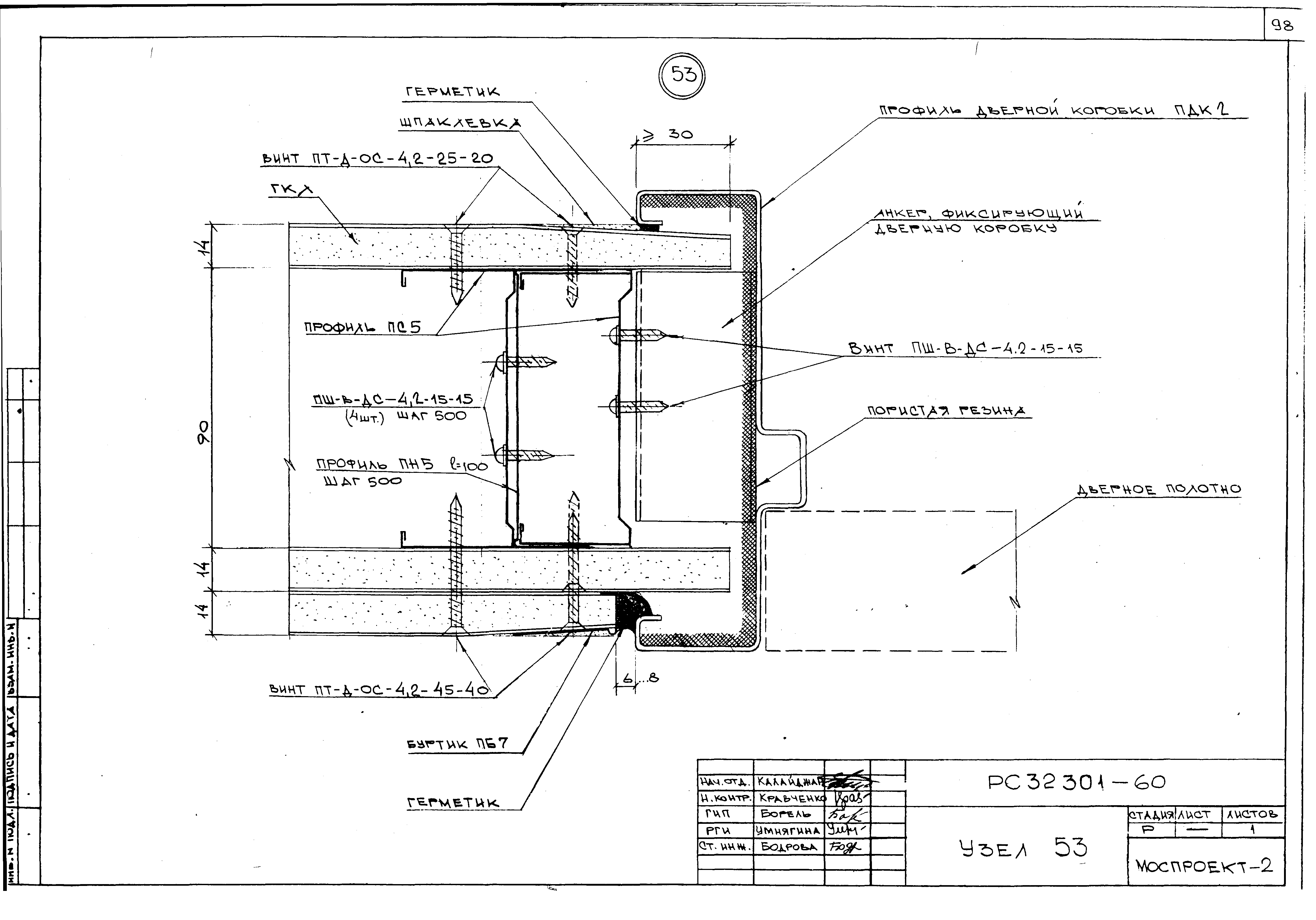
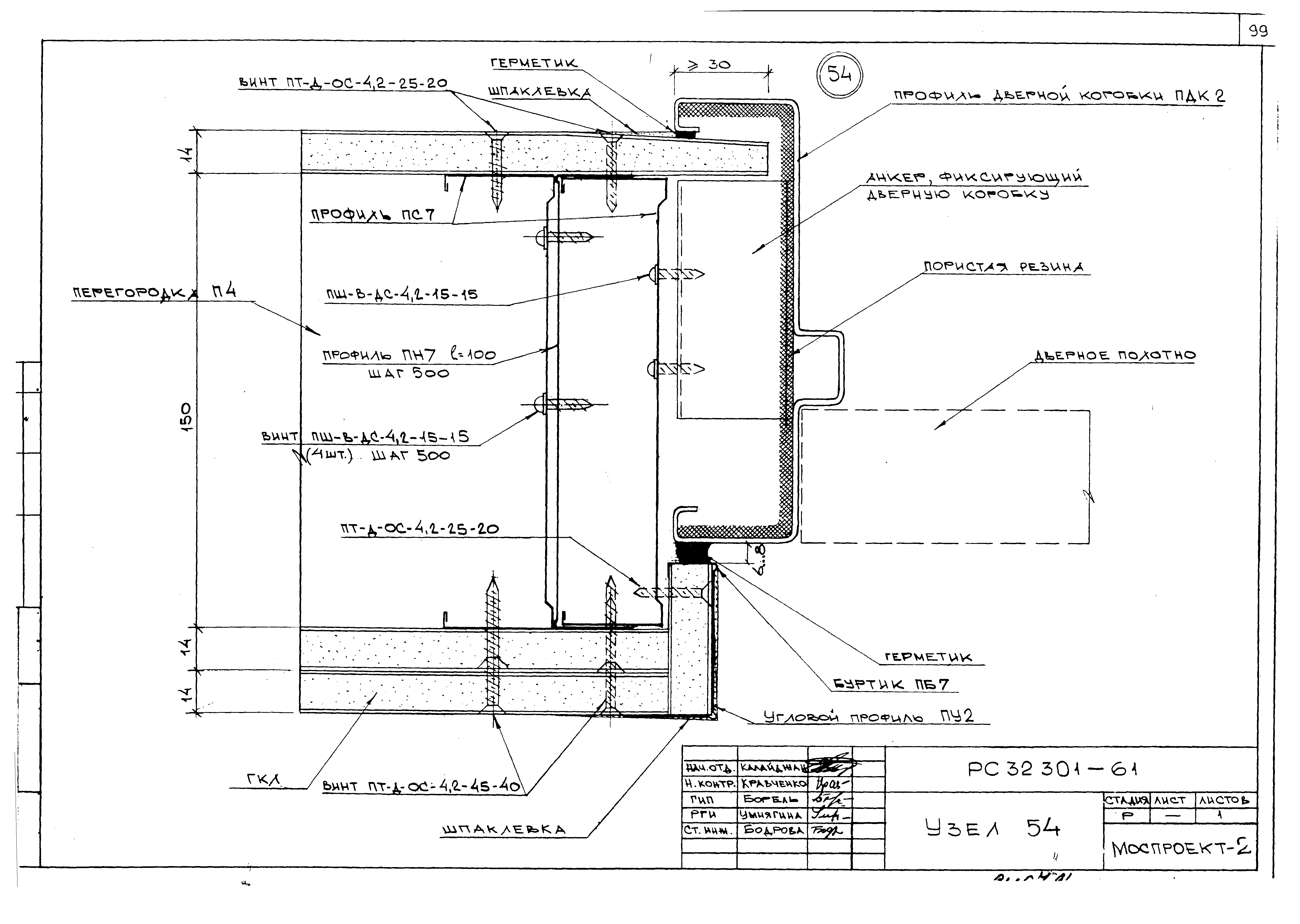
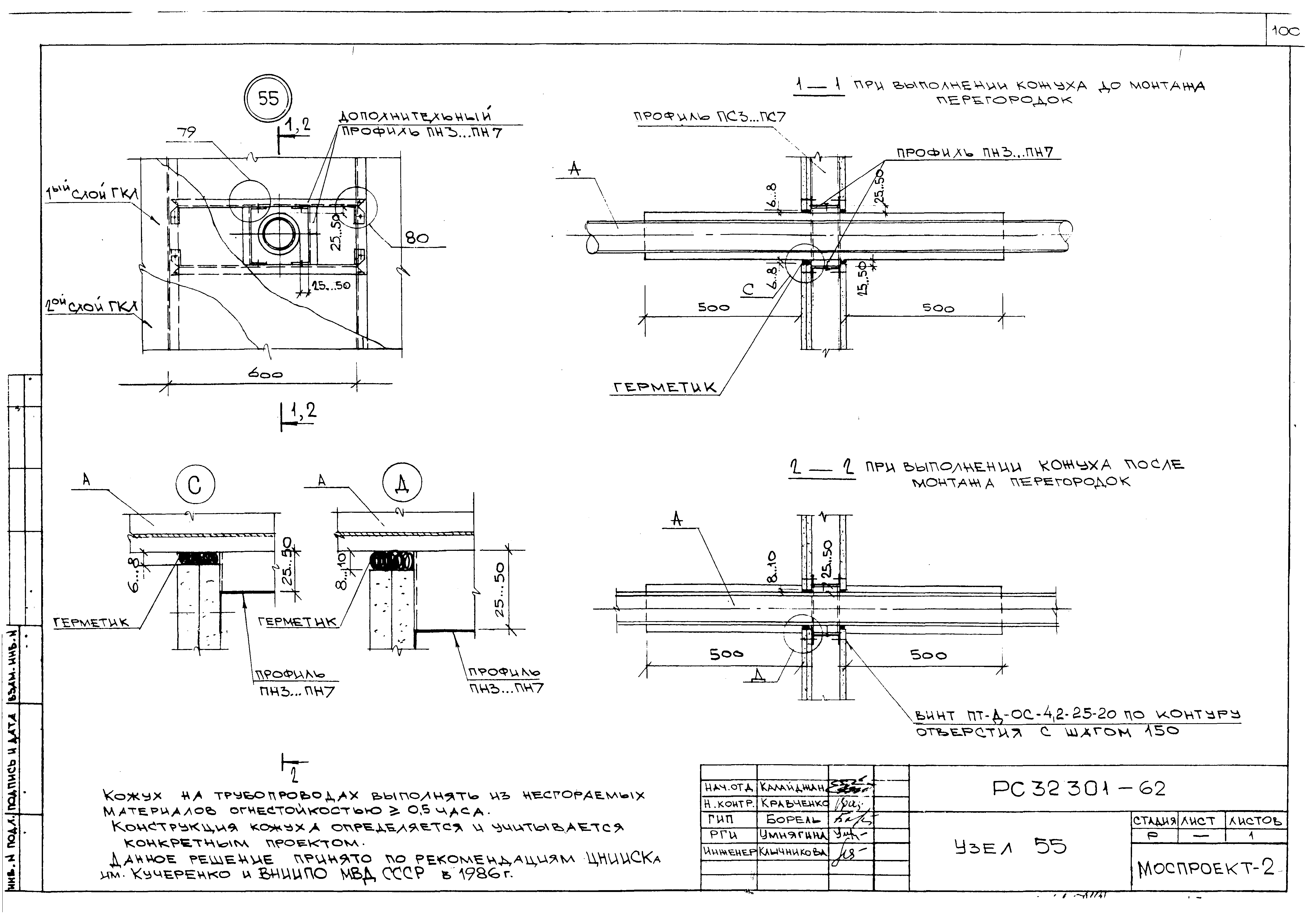
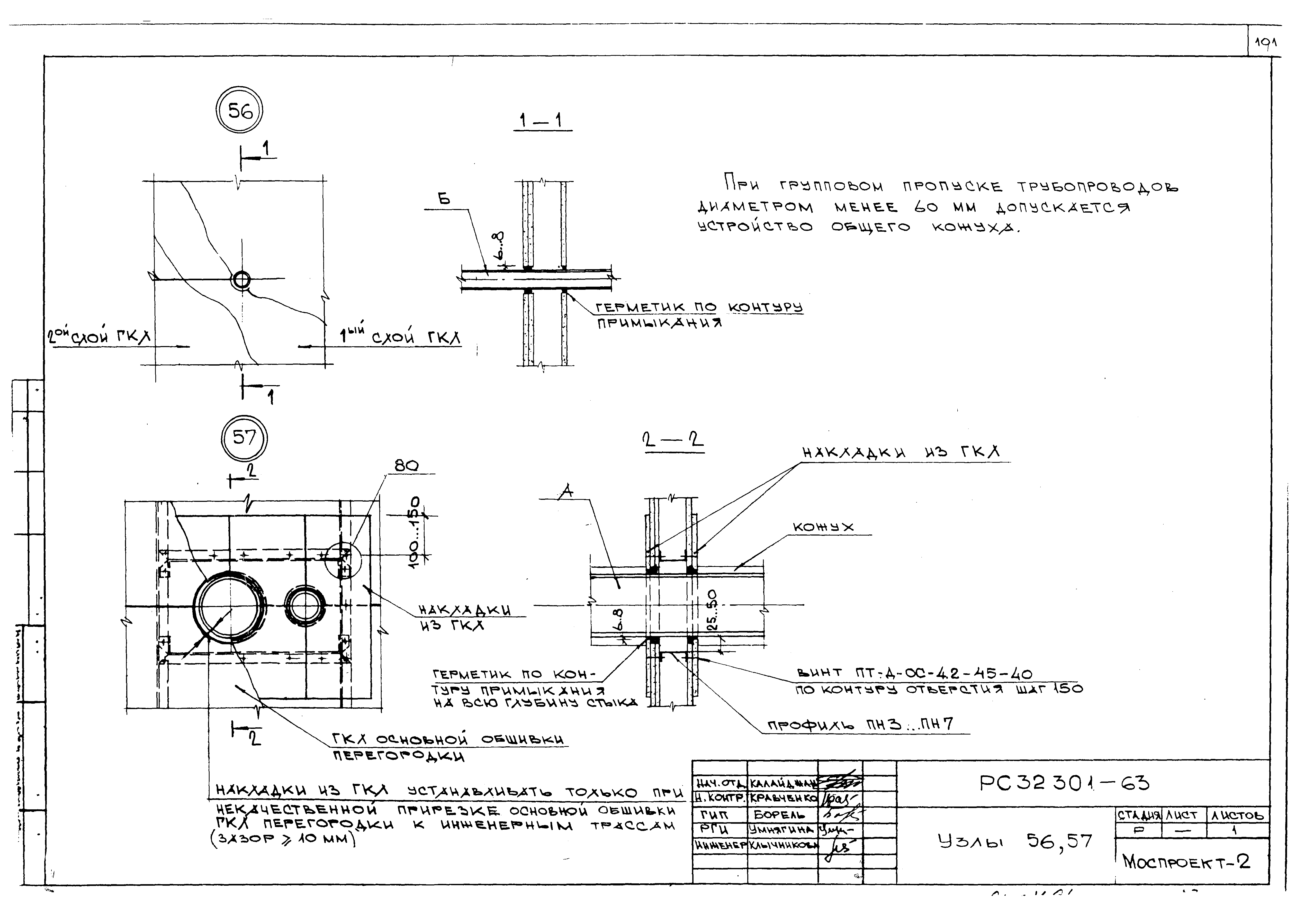
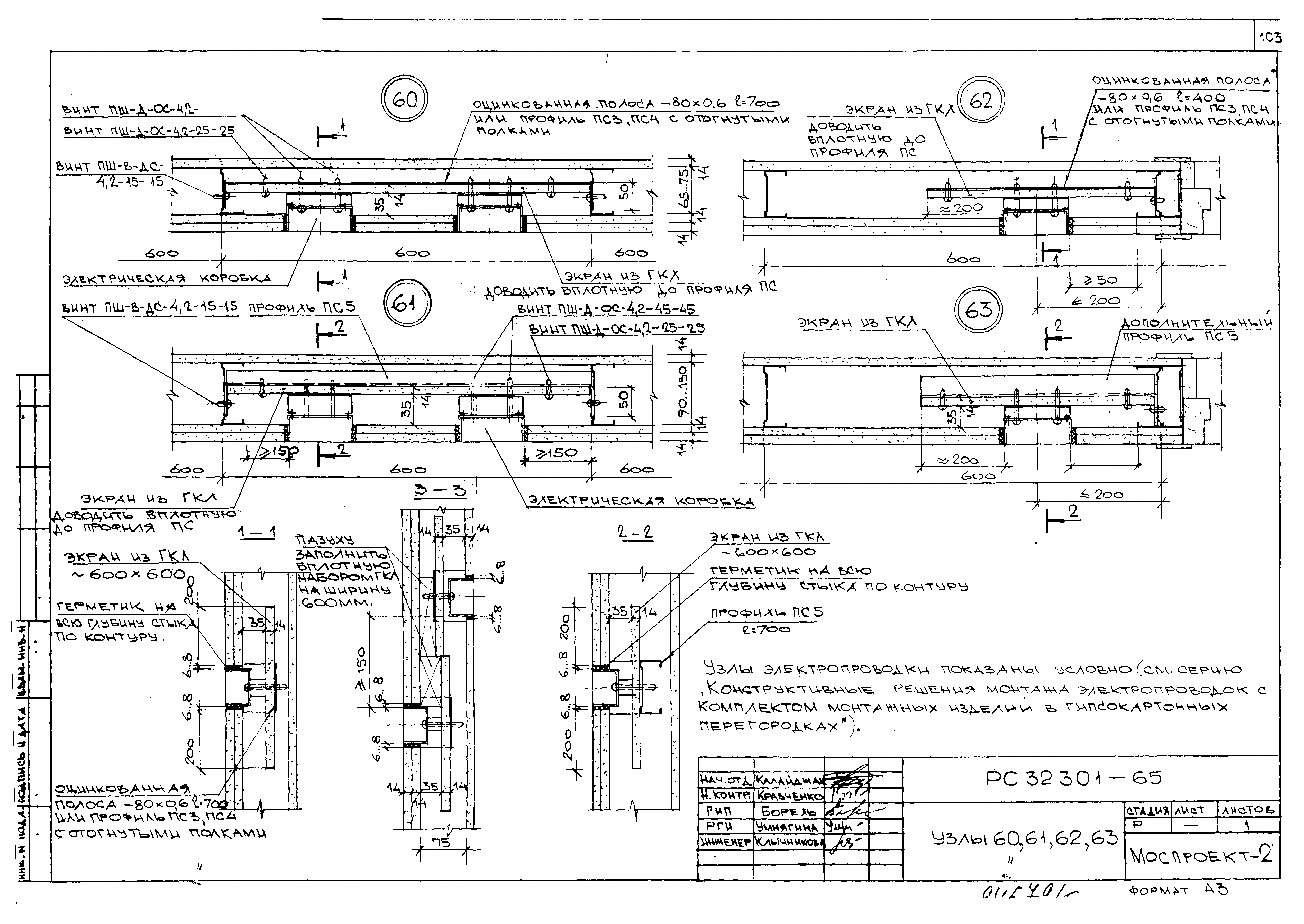
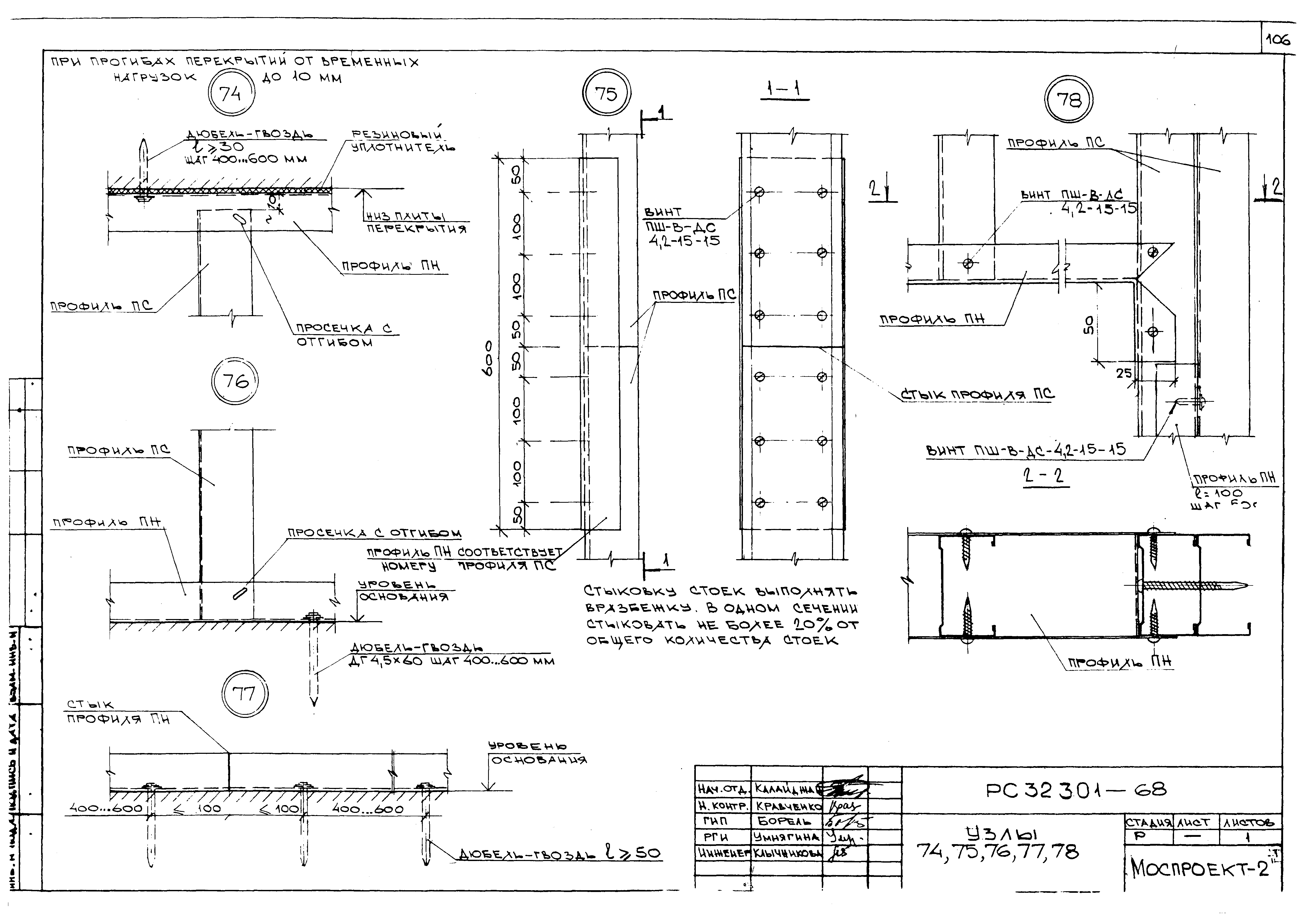
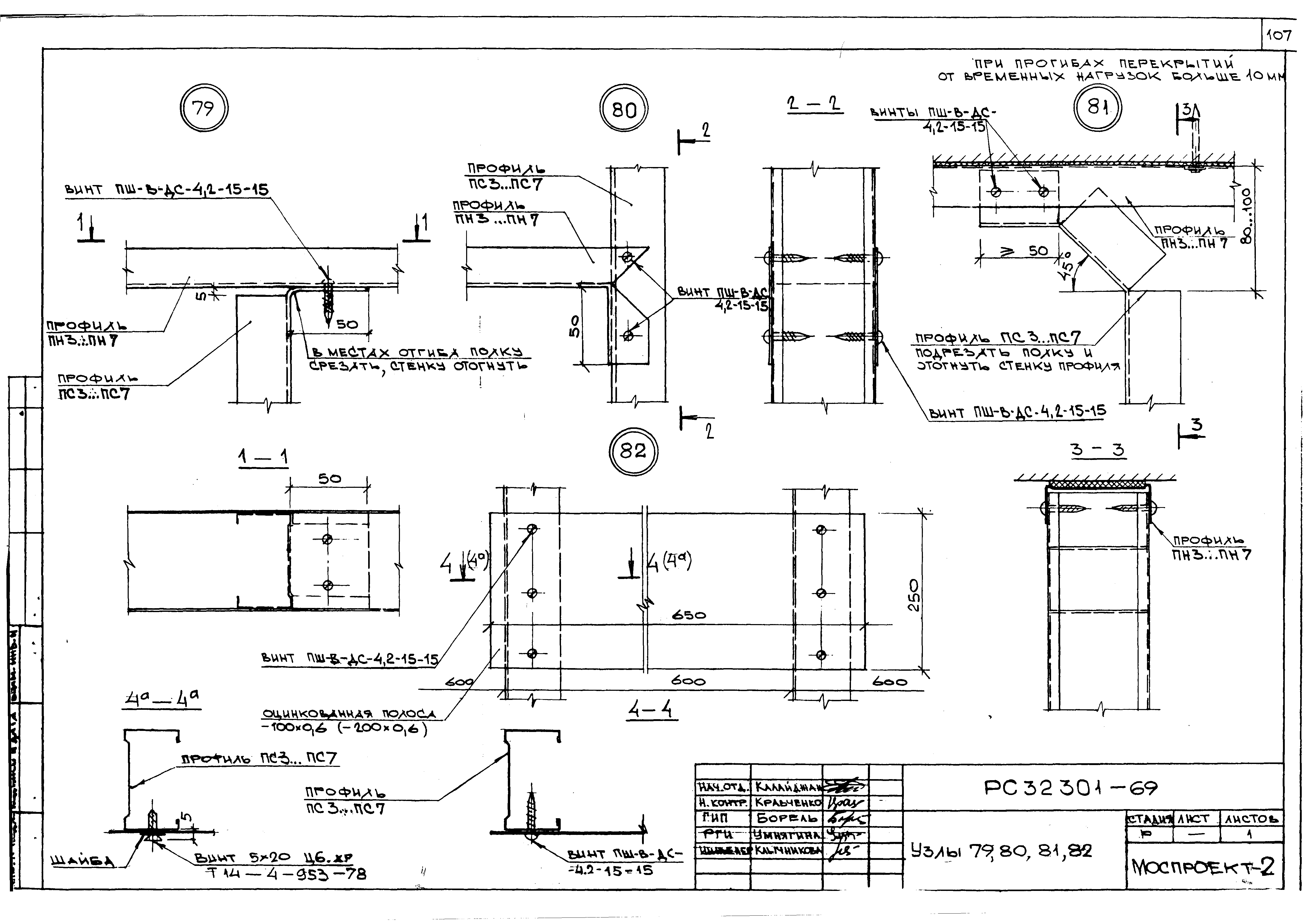
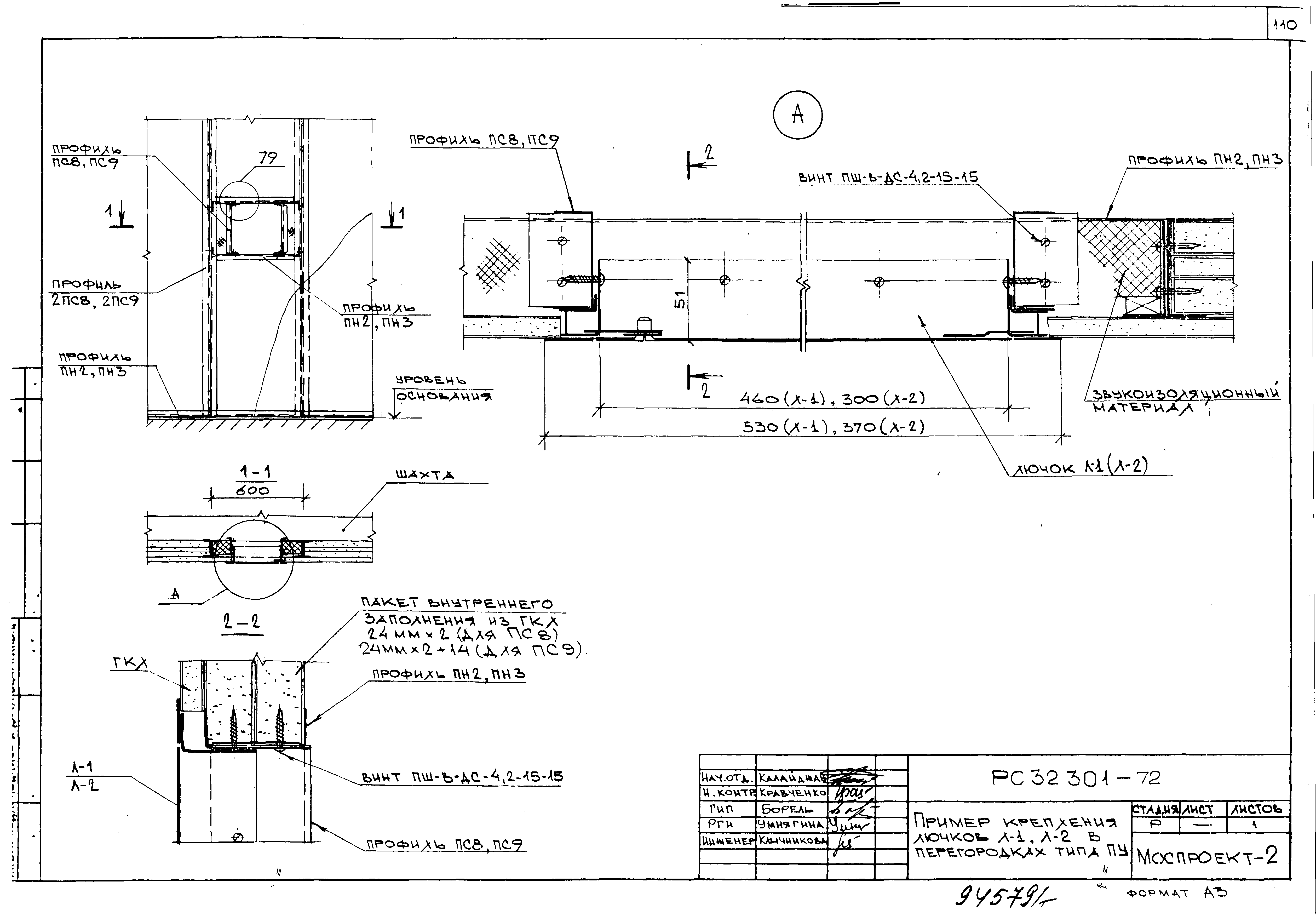
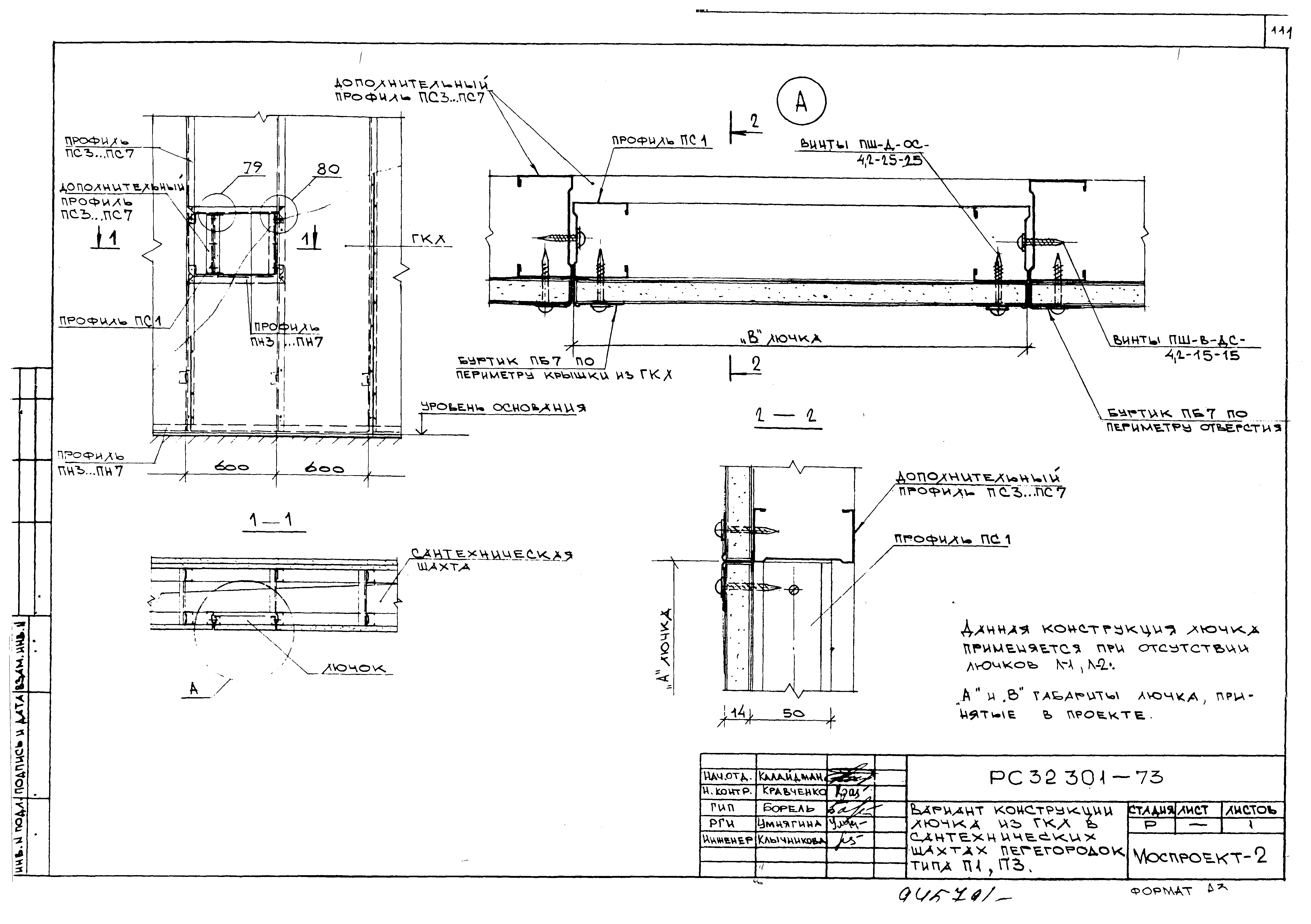
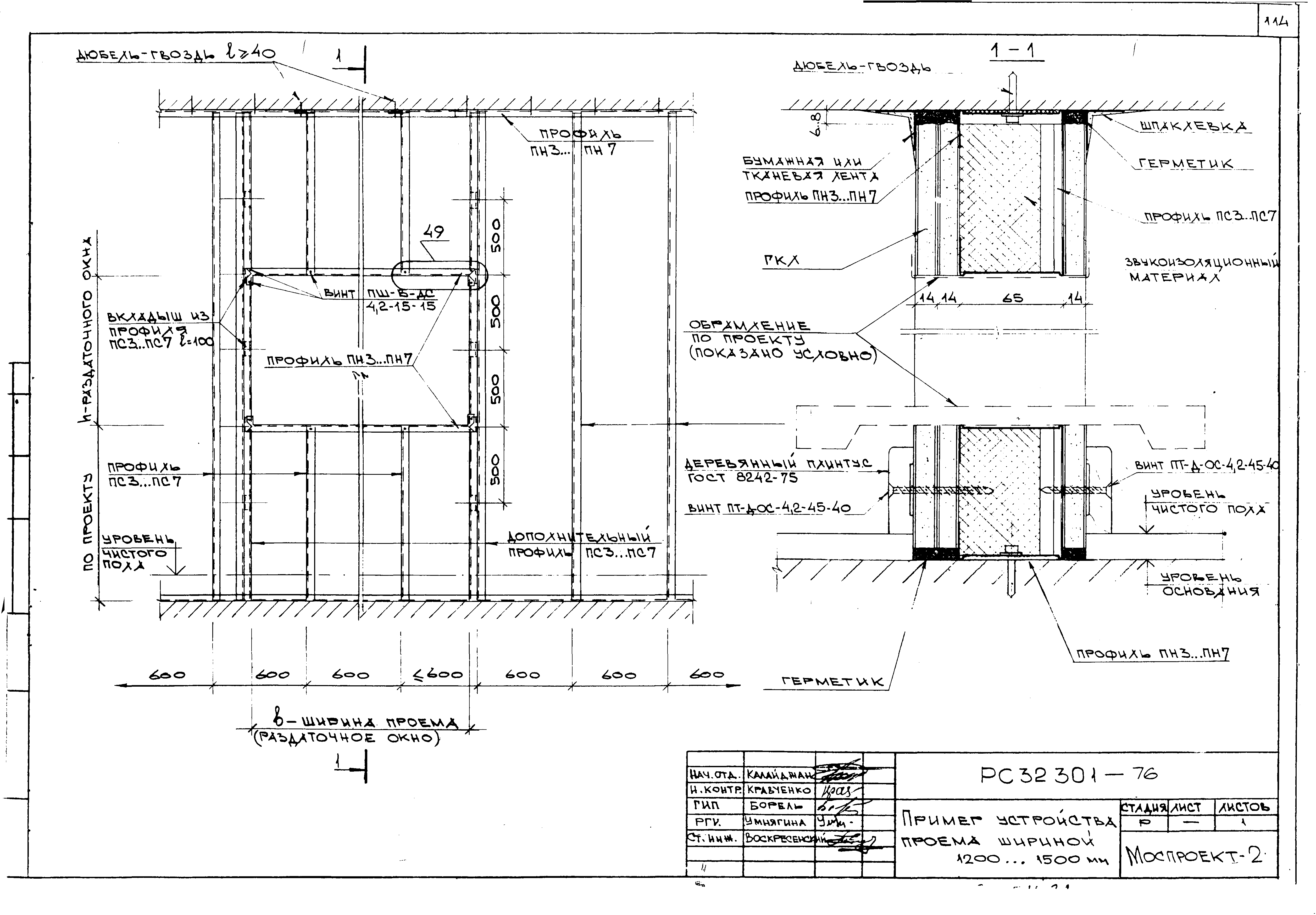
Рабочие чертежи| Обозначение: | Серия РС 32301 | | Обозначение англ: | Series РС 32301 | | Статус: | не определен законодательством | | Название рус.: | Рабочие чертежи | | Дата добавления в базу: | 01.09.2013 | | Дата актуализации: | 01.01.2021 | | Дата введения: | 31.05.1988 | | Дата окончания срока действия: | 30.06.2003 | | Область применения: | Серия содержит рабочие чертежи перегородок поэлементной сборки из гипсокартонных листов на металлическом каркасе для жилых, общественных и промышленных зданий с высотой этажа 2,8, 3,0, 3,3, 3,6, 4,2, 4,8, 6,0, 7,2 м, при этом для промышленных зданий предусматриваются высоты этажей 4,2, 4,8, 6,0 и 7,2 м | | Разработан: | Моспроект-2 Главмосархитектуры
| | Утверждён: | 31.05.1988 Исполком Моссовета (Mossoviet Ispolkom 1195)
| | Принят: | 14.12.1987 Госстрой СССР (Государственный комитет Совета Министров СССР по делам строительства) (USSR Gosstroy 6/6-4489)
| | Заменяет собой: | - ТК1-9-1-81 «Часть 1, 2-я редакция»
|
                                                                                                                                    
|