Скачать Типовой проект 0901-9-17.2.87 Альбом IV. Строительные изделия (из ТП 0901-9-17.1.87)Дата актуализации: 01.01.2021
|
| Обозначение: | Типовой проект 0901-9-17.2.87 |
| Обозначение англ: | 0901-9-17.2.87 |
| Статус: | не определен законодательством |
| Название рус.: | Альбом IV. Строительные изделия (из ТП 0901-9-17.1.87) |
| Дата добавления в базу: | 01.09.2013 |
| Дата актуализации: | 01.01.2021 |
| Дата введения: | 16.10.1987 |
| Дата окончания срока действия: | 30.06.2003 |
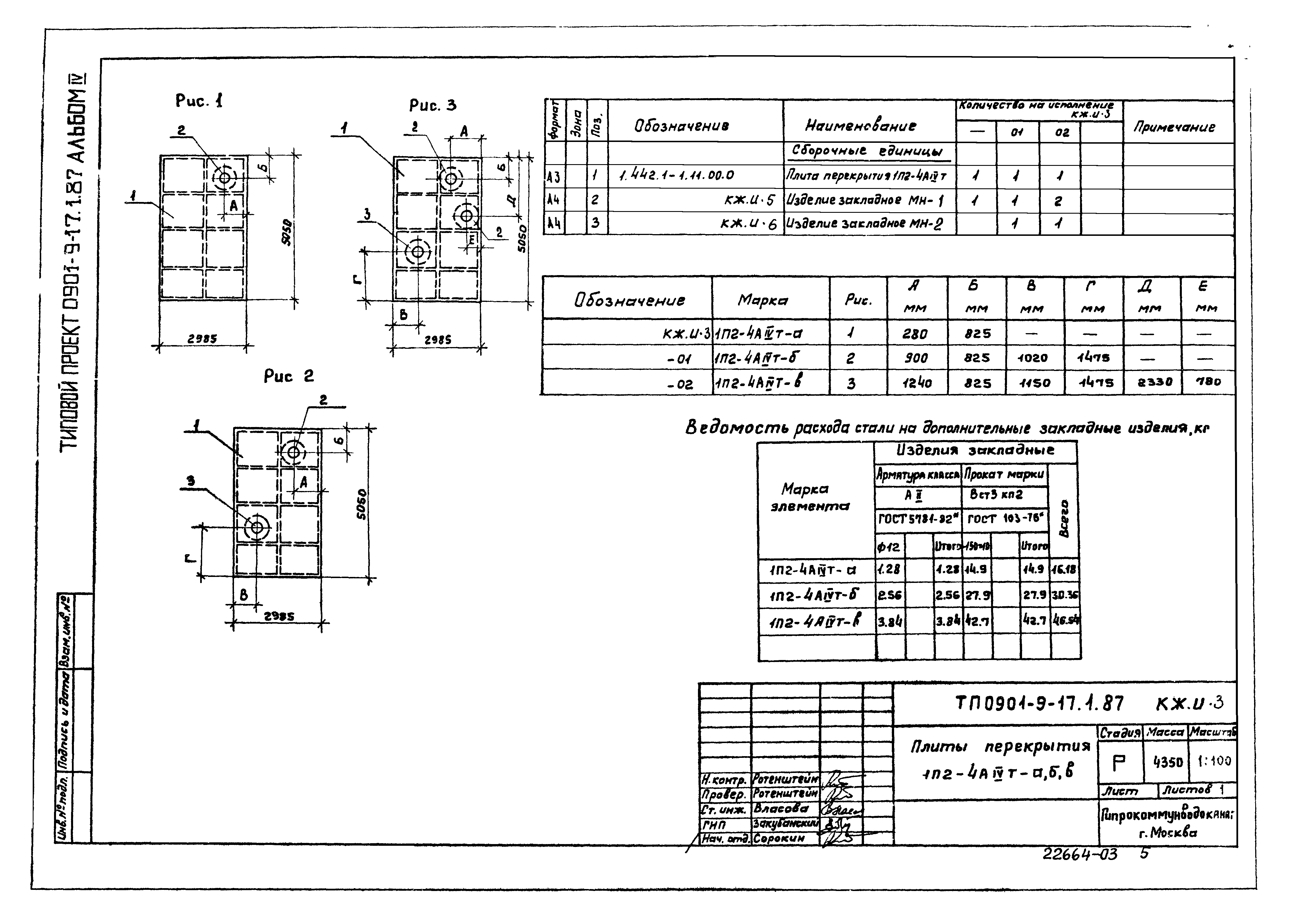
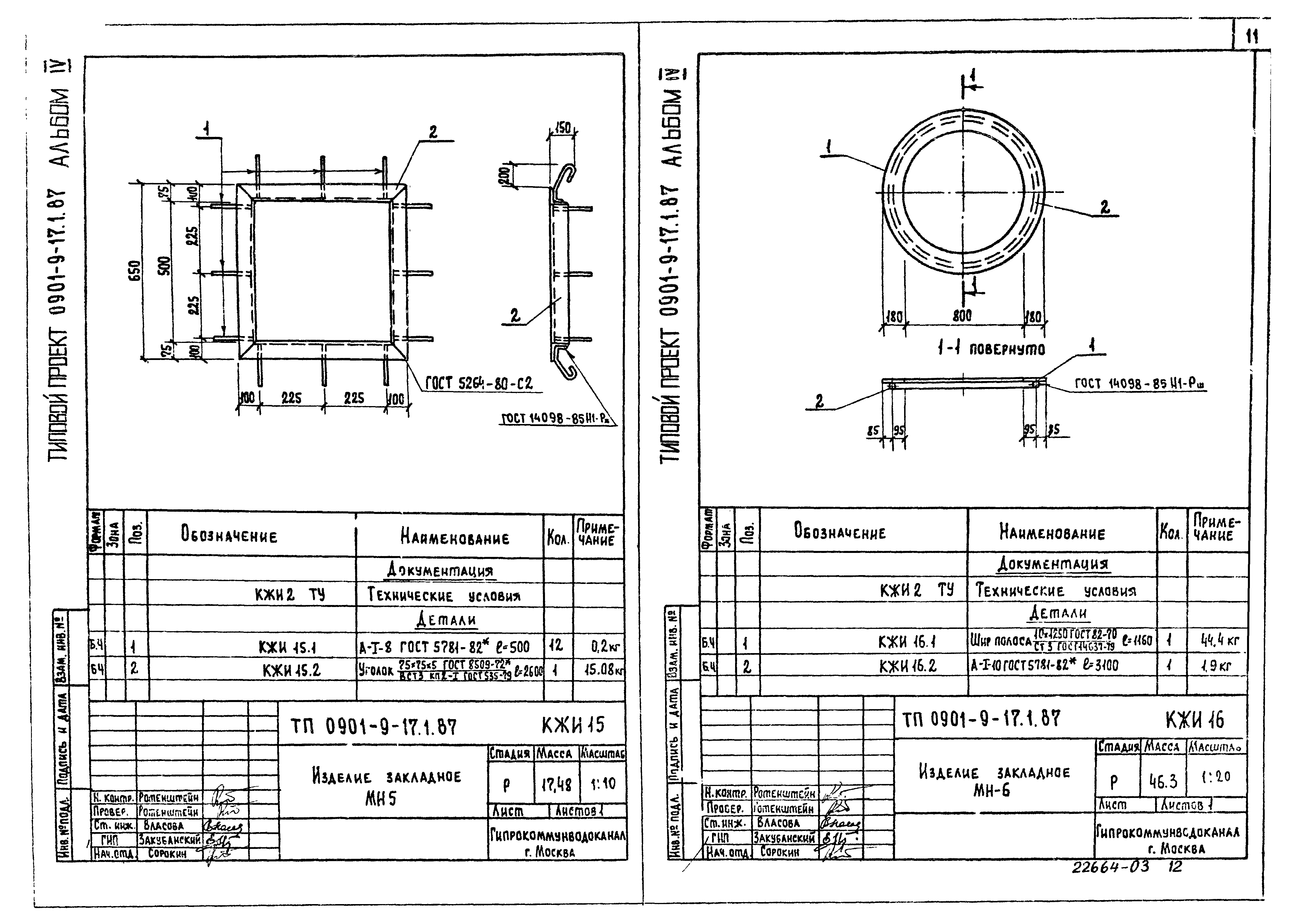
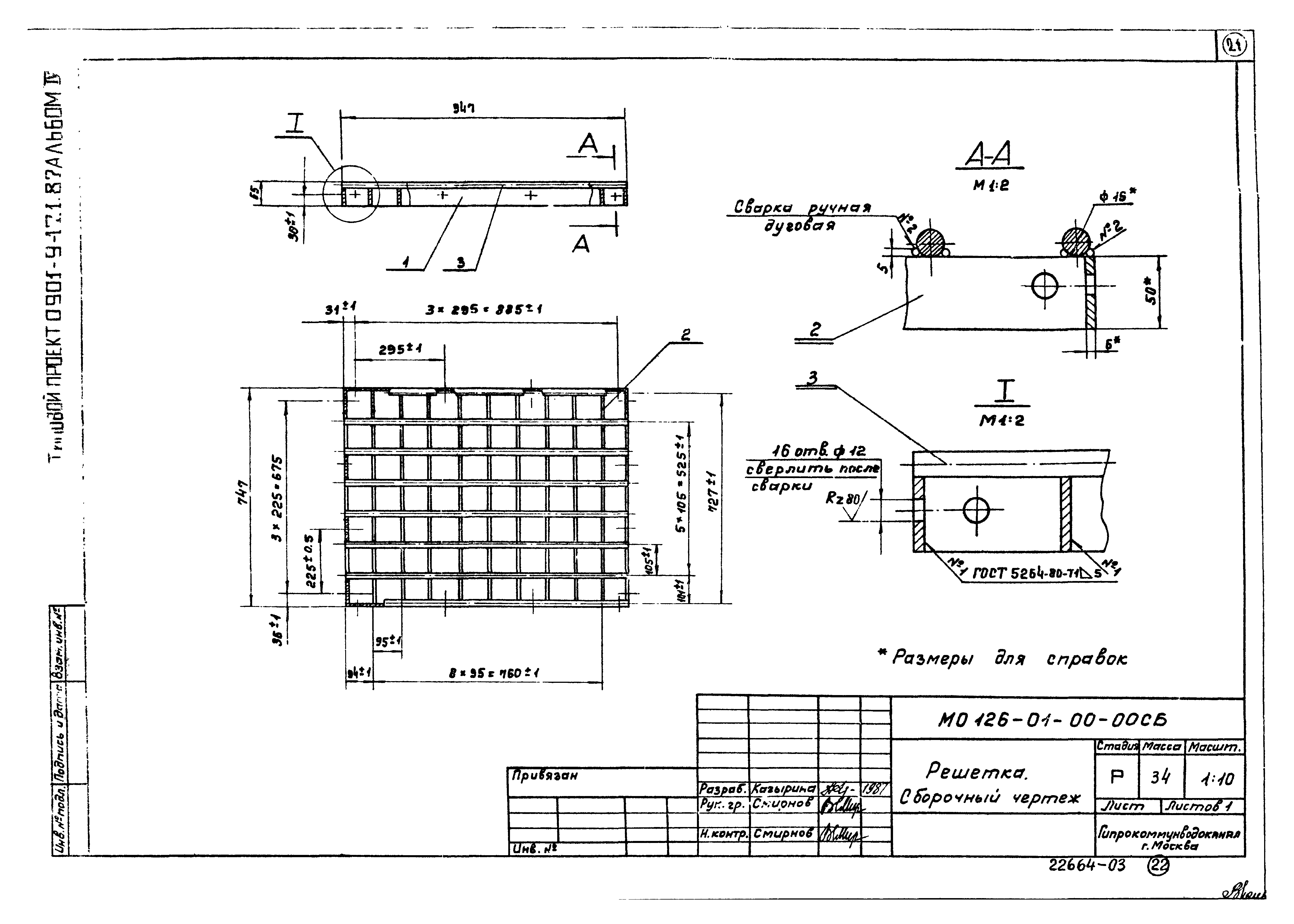
| Оглавление: | ТП 0901-9-17.1.87-КЖИ Изделия марки КЖИ ТП 0901-9-17.1.87-КЖИ-1 Содержание альбома ТП 0901-9-17.1.87-КЖИ-2 Технические условия ТП 0901-9-17.1.87-КЖИ-3 Плита перекрытия 1П2-4АIVТ-а ТП 0901-9-17.1.87-КЖИ-3-01 Плита перекрытия 1П2-4АIVТ-б ТП 0901-9-17.1.87-КЖИ-3-02 Плита перекрытия 1П2-4АIVТ-в ТП 0901-9-17.1.87-КЖИ-4 Плита перекрытия 1П2-4АIVТ-г ТП 0901-9-17.1.87-КЖИ-4-01 Плита перекрытия 1П2-4АIVТ-д ТП 0901-9-17.1.87-КЖИ-4-02 Плита перекрытия 1П2-4АIVТ-е ТП 0901-9-17.1.87-КЖИ-5 Изделие закладное МН-1 ТП 0901-9-17.1.87-КЖИ-6 Изделие закладное МН-2 ТП 0901-9-17.1.87-КЖИ-7 Сетка арматурная С-1 ТП 0901-9-17.1.87-КЖИ-8 Решетка Р-1 ТП 0901-9-17.1.87-КЖИ-9 Каркас пространственный КП1 ТП 0901-9-17.1.87-КЖИ-10 Каркас плоский КР-1 ТП 0901-9-17.1.87-КЖИ-11 Изделие закладное МН-3 ТП 0901-9-17.1.87-КЖИ-12 Изделие закладное МН-4 ТП 0901-9-17.1.87-КЖИ-13 Кольцо ТП 0901-9-17.1.87-КЖИ-14 Кольцо ТП 0901-9-17.1.87-КЖИ-15 Изделие закладное МН-5 ТП 0901-9-17.1.87-КЖИ-16 Изделие закладное МН-6 ТП 0901-9-17.1.87-КЖИ-17 Деревянная крышка ø1150 ТП 0901-9-17.1.87-КЖИ-18 Деревянная крышка 1120х920 ТП 0901-9-17.1.87-КЖИ-19 Кольцо стеновое КЦ-10-6"А" ТП 0901-9-17.1.87-МО Изделия марки МО ТП 0901-9-17.1.87-МО-123-00-00-00 СБ Решетка ø910. Сборочный чертеж ТП 0901-9-17.1.87-МО-123-00-00-00 Решетка ø910 ТП 0901-9-17.1.87-МО-123-00-00-01 Хомут ТП 0901-9-17.1.87-МО-123-01-00-00 Решетка ТП 0901-9-17.1.87-МО-123-01-00-00 СБ Решетка. Сборочный чертеж ТП 0901-9-17.1.87-МО-126-00-00-00 СБ Решетка 750х950. Сборочный чертеж ТП 0901-9-17.1.87-МО-126-00-00-00 Решетка 750х950 ТП 0901-9-17.1.87-МО-126-00-00-01 Планка ТП 0901-9-17.1.87-МО-126-01-00-00 Решетка ТП 0901-9-17.1.87-МО-126-00-00-02 Планка ТП 0901-9-17.1.87-МО-126-01-00-00 СБ Решетка. Сборочный чертеж |
| Разработан: | Гипрокоммунводоканал Минжилкомхоза РСФСР |
| Утверждён: | 16.10.1987 Минжилкомхоз РСФСР (Russian Federation Minzhilkomkhoz 12-ТД) |






















