Скачать Серия 2.230-1 Выпуск 2. Крупнопанельные перегородки каркасно-панельных зданийДата актуализации: 01.01.2021
|
| Обозначение: | Серия 2.230-1 |
| Обозначение англ: | Series 2.230-1 |
| Статус: | не действует |
| Название рус.: | Выпуск 2. Крупнопанельные перегородки каркасно-панельных зданий |
| Дата добавления в базу: | 01.09.2013 |
| Дата актуализации: | 01.01.2021 |
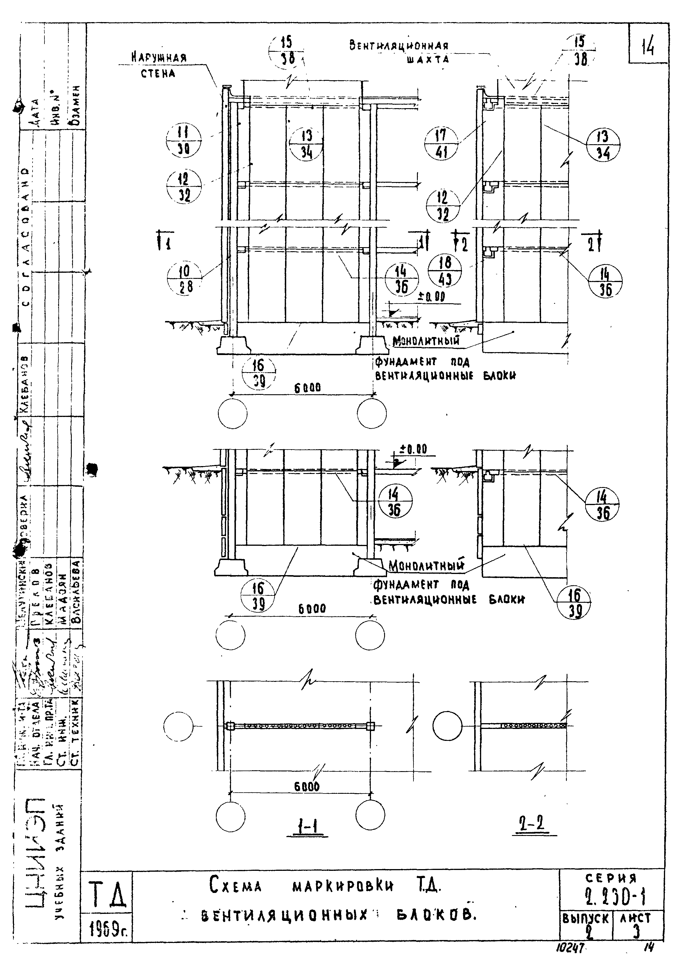
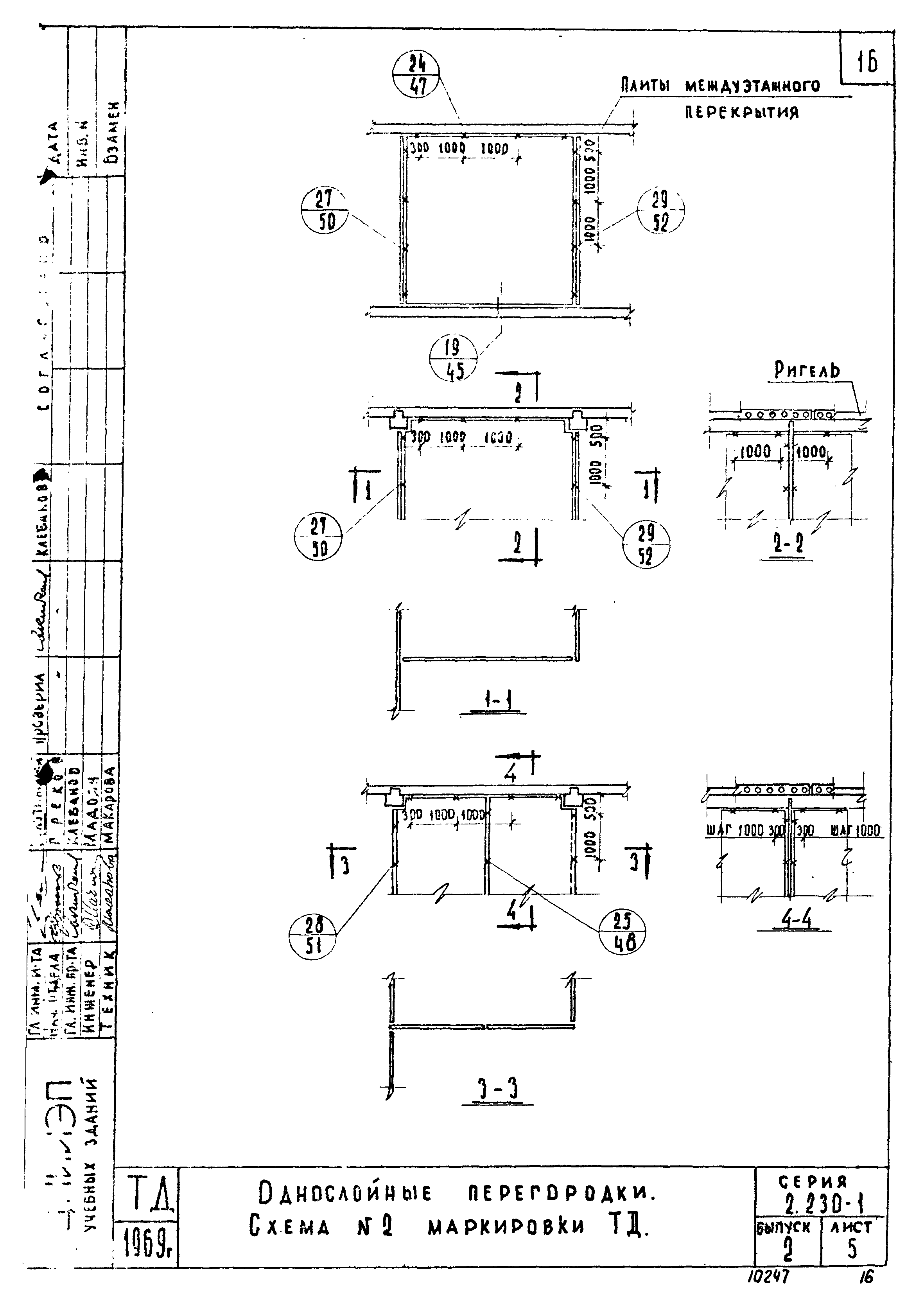
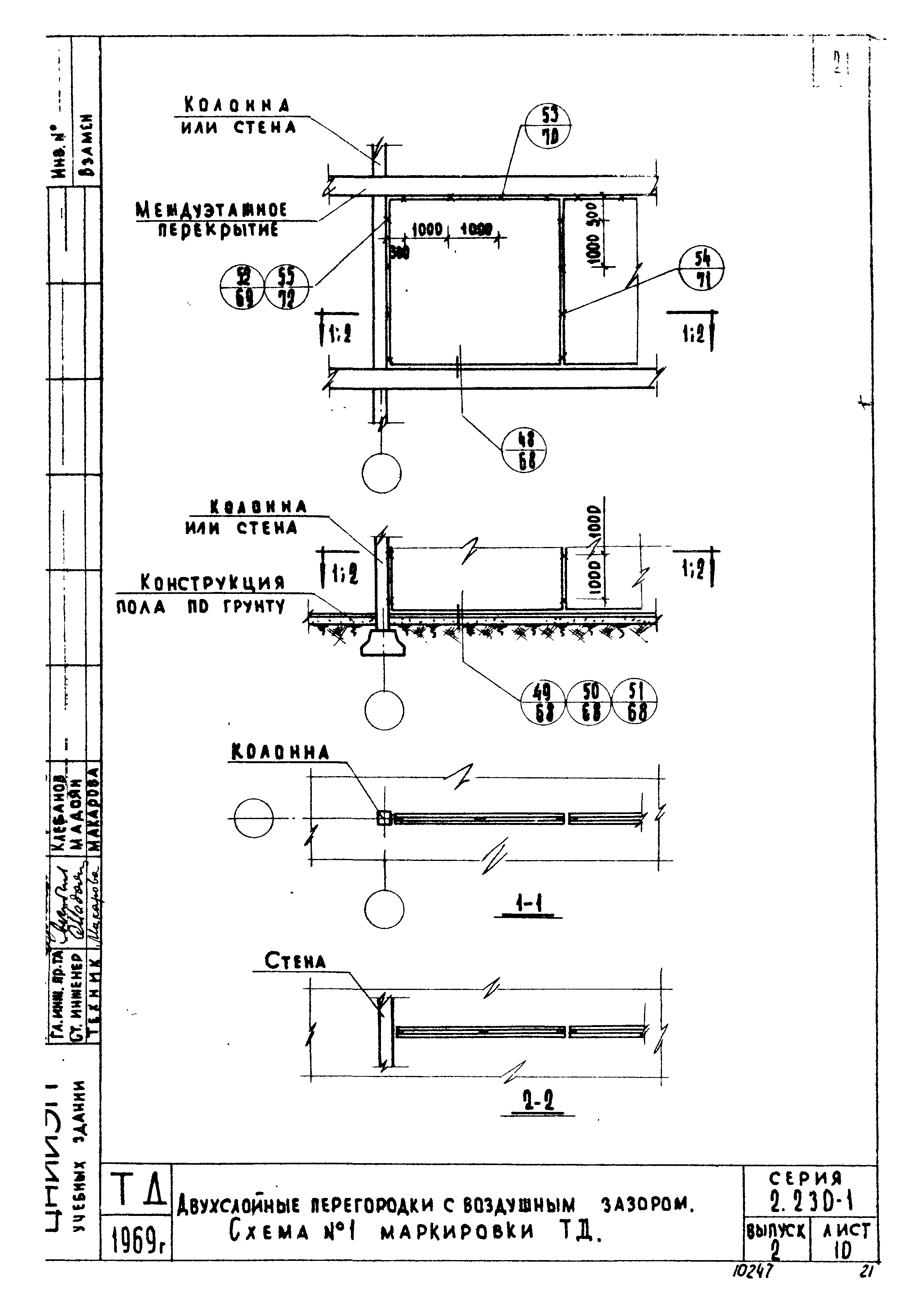
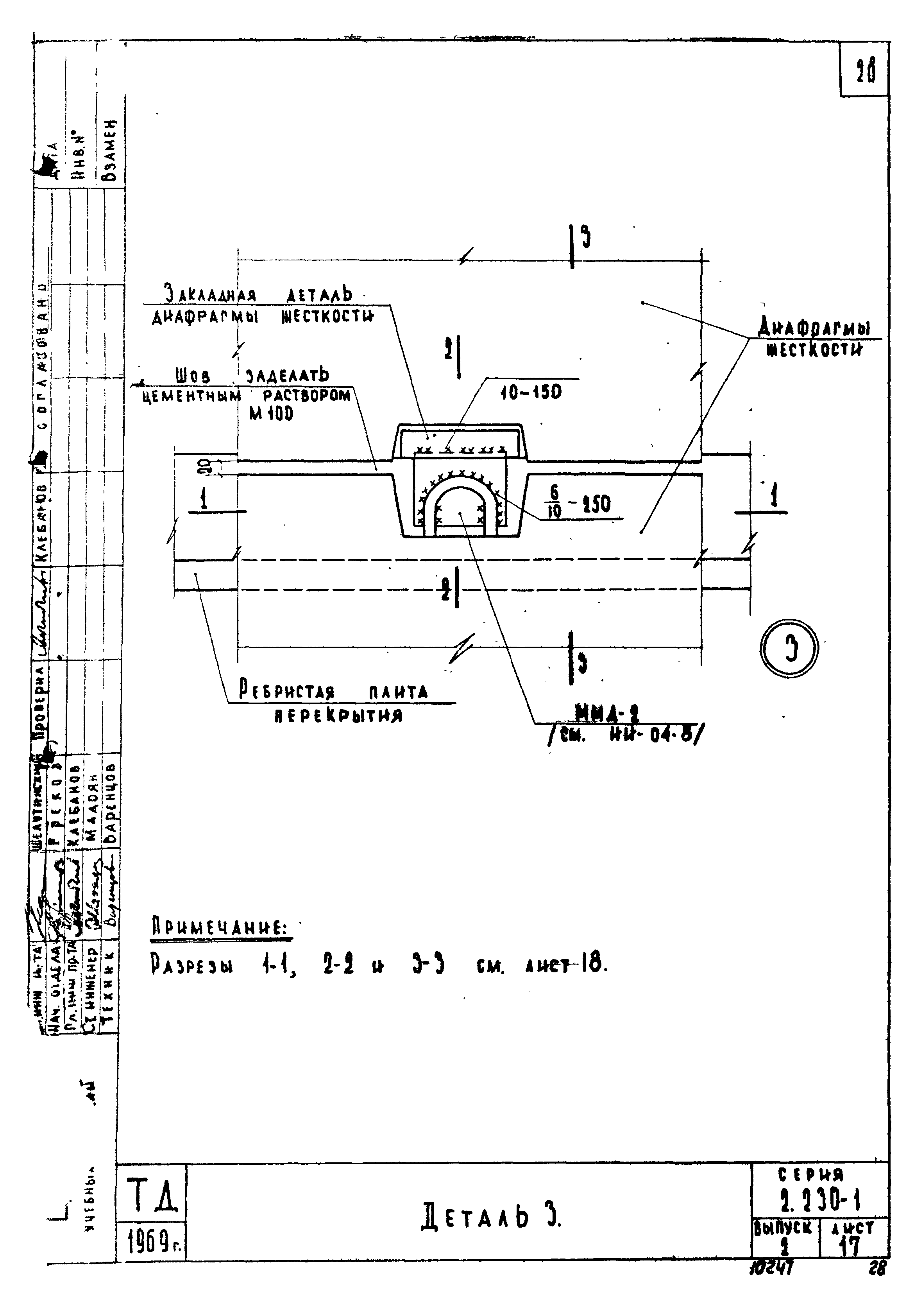
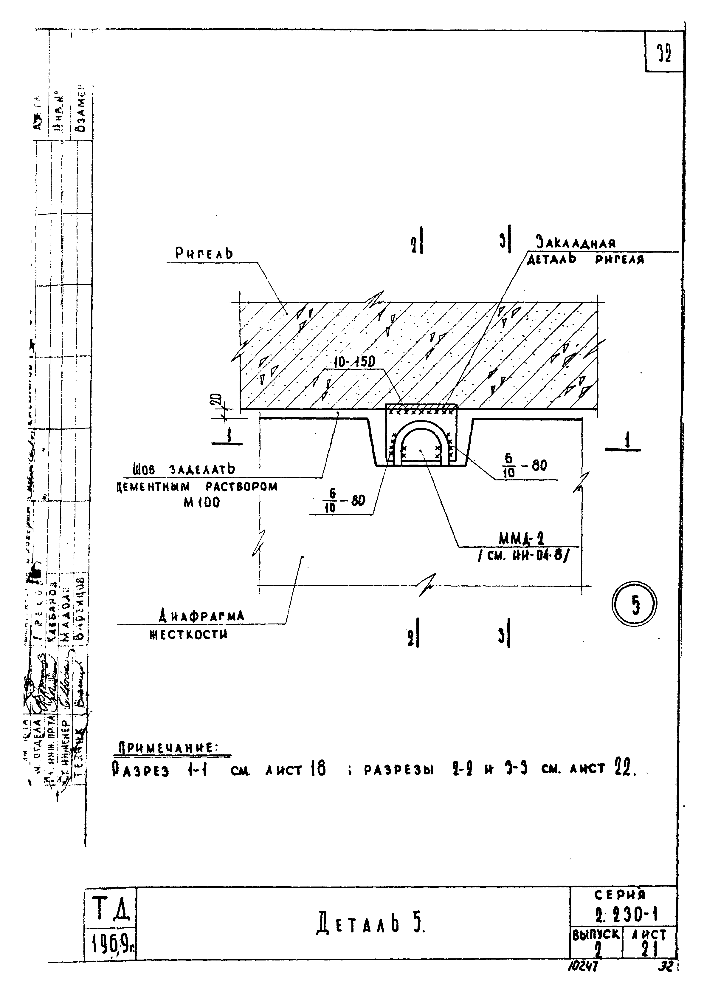
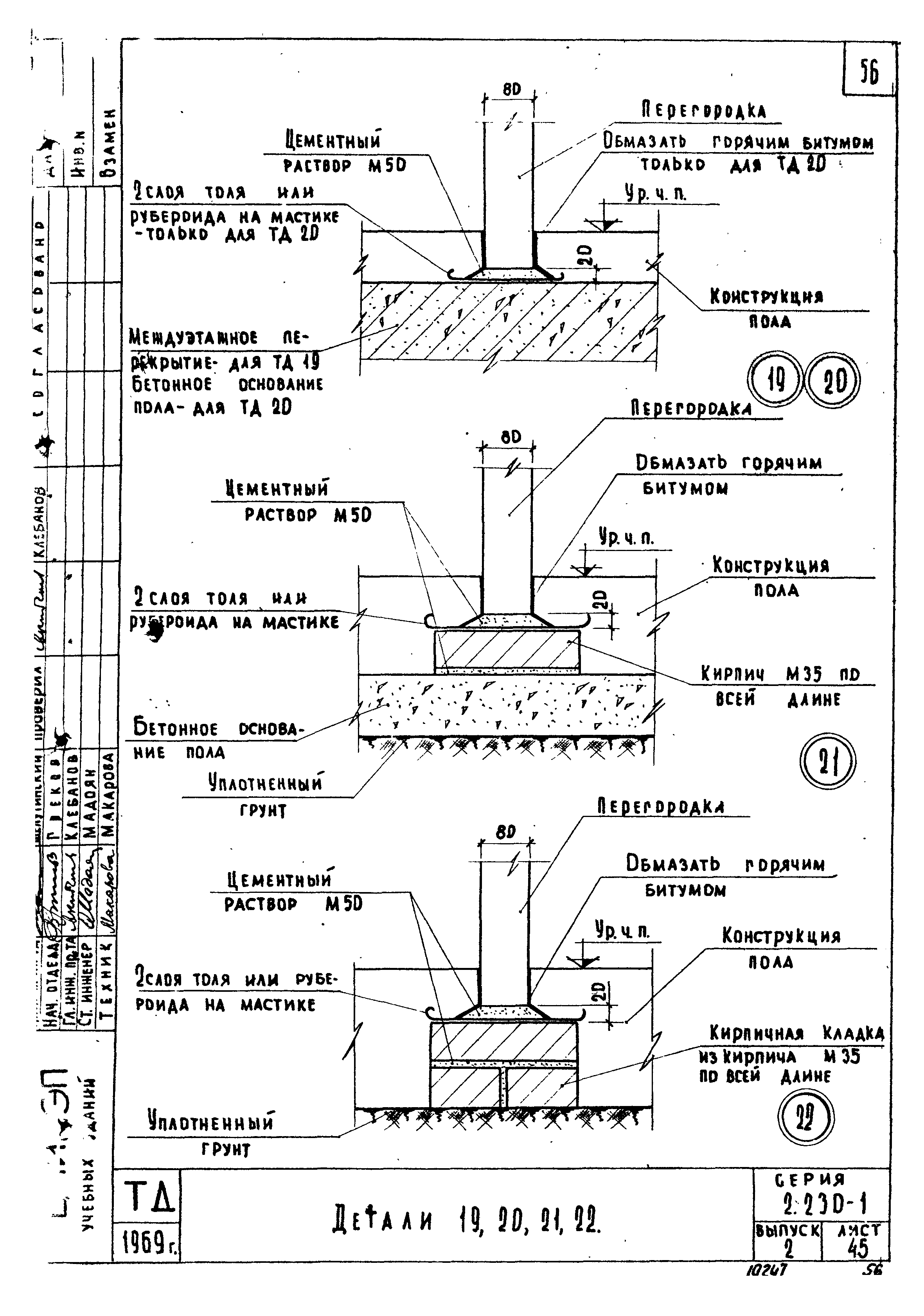
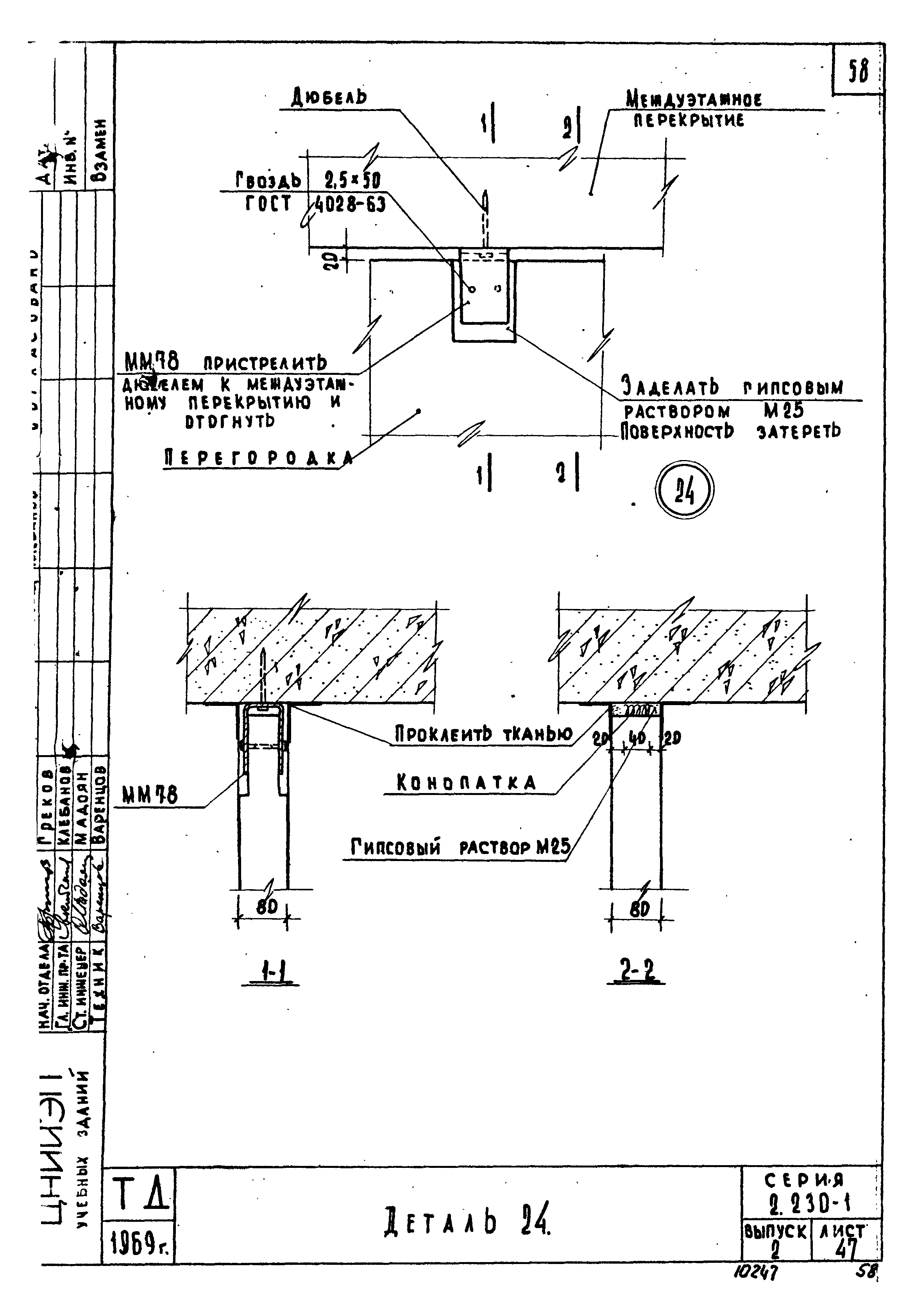
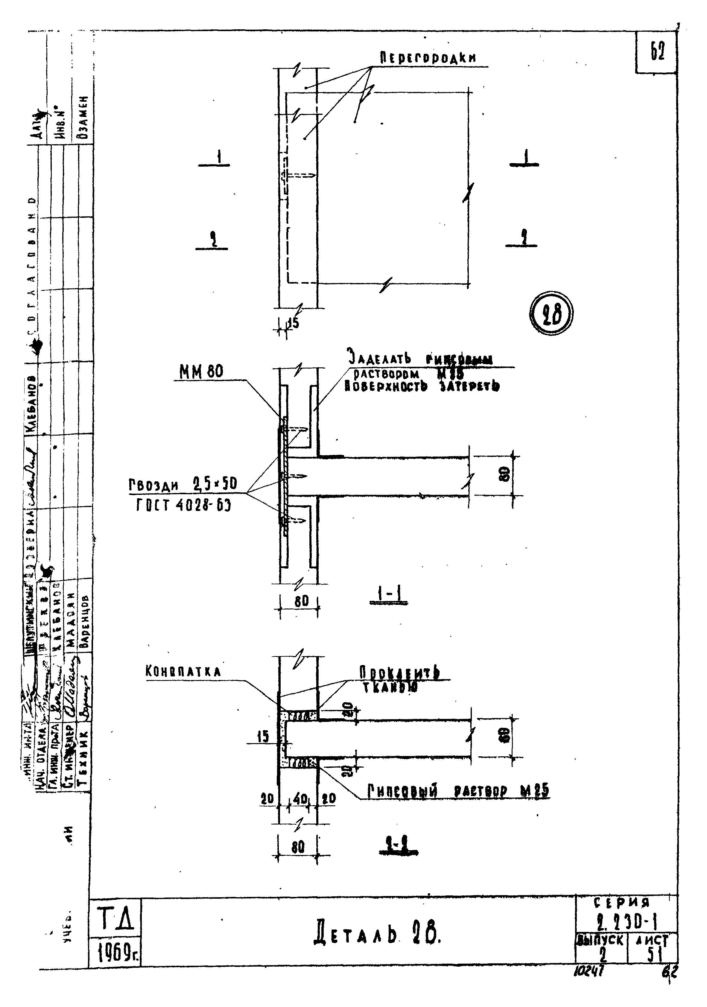
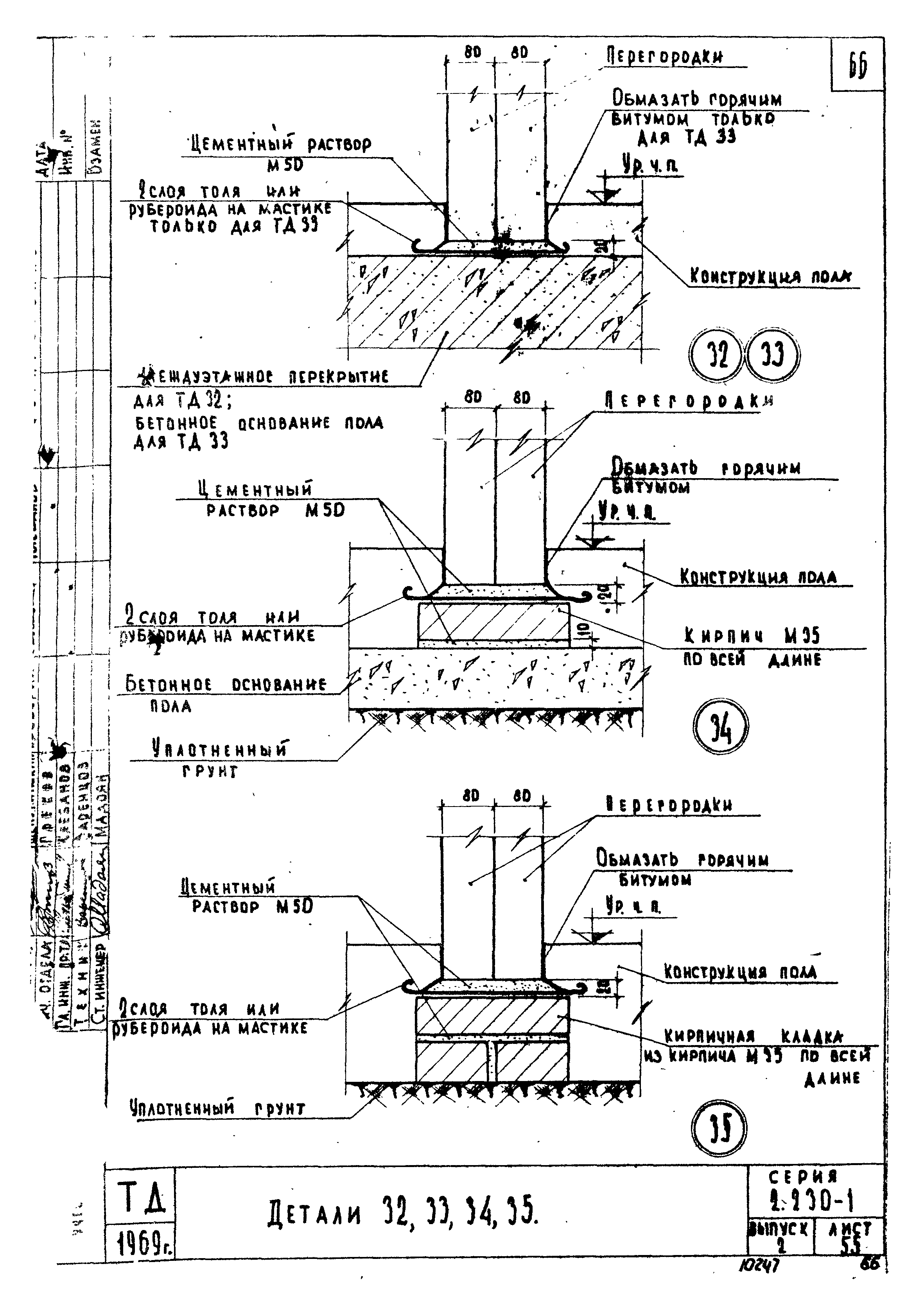
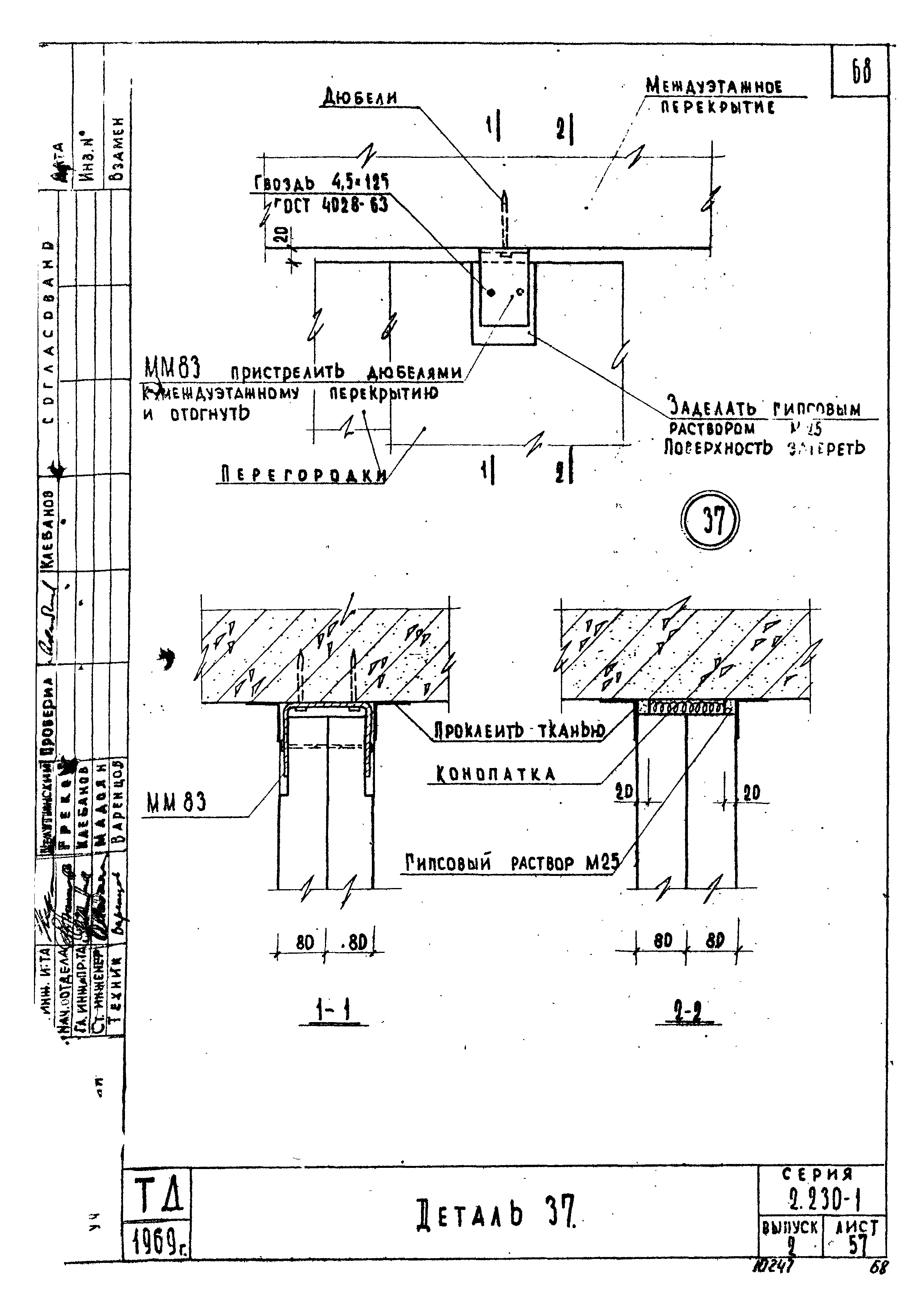
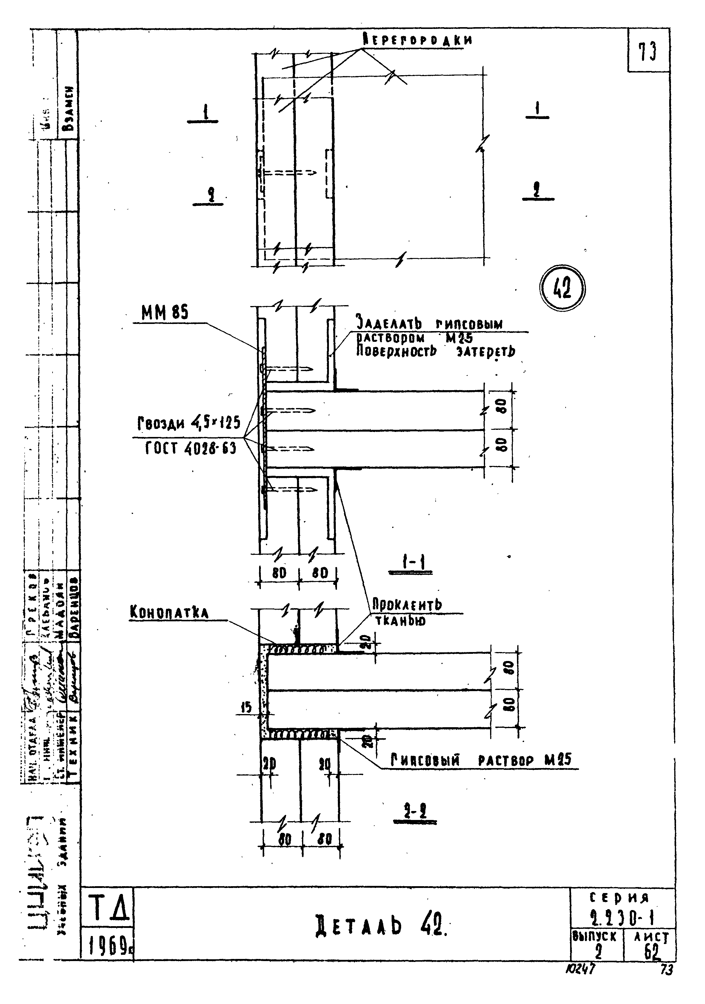
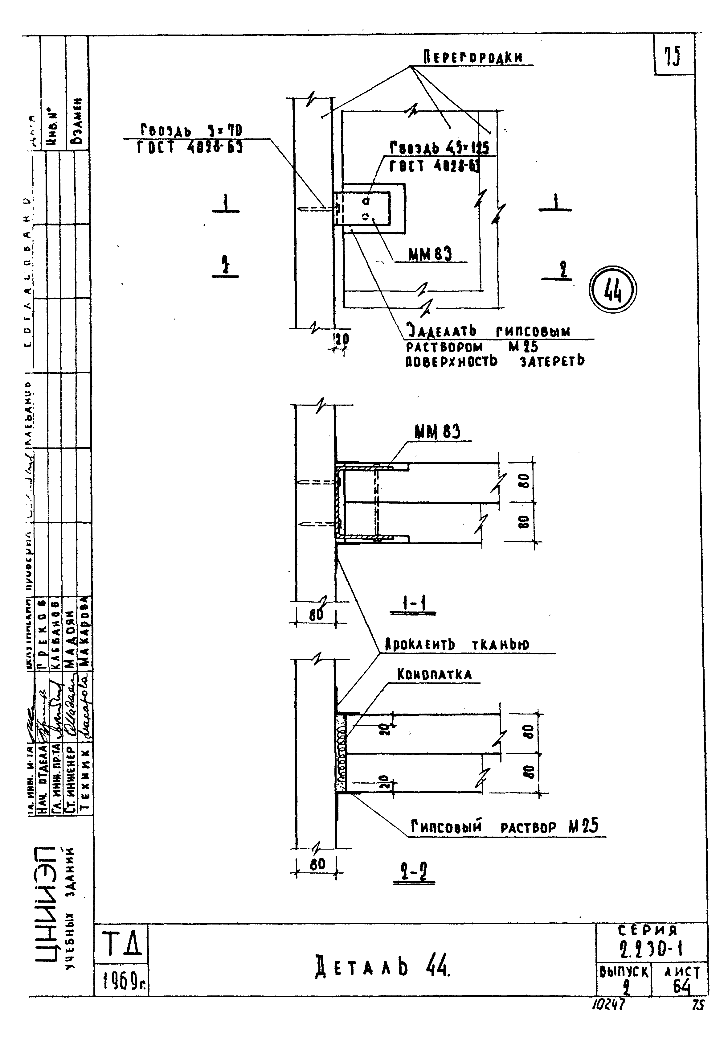
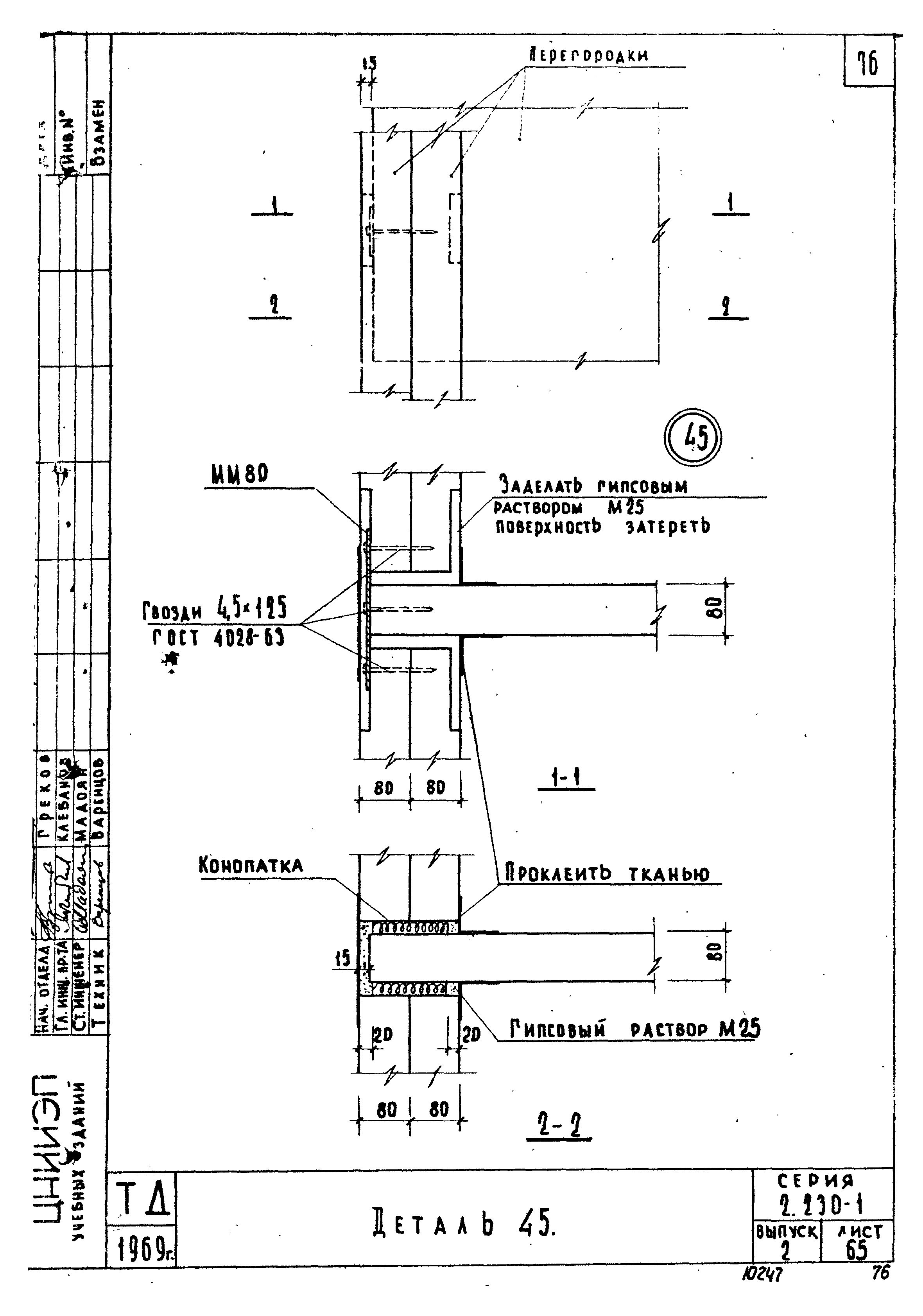
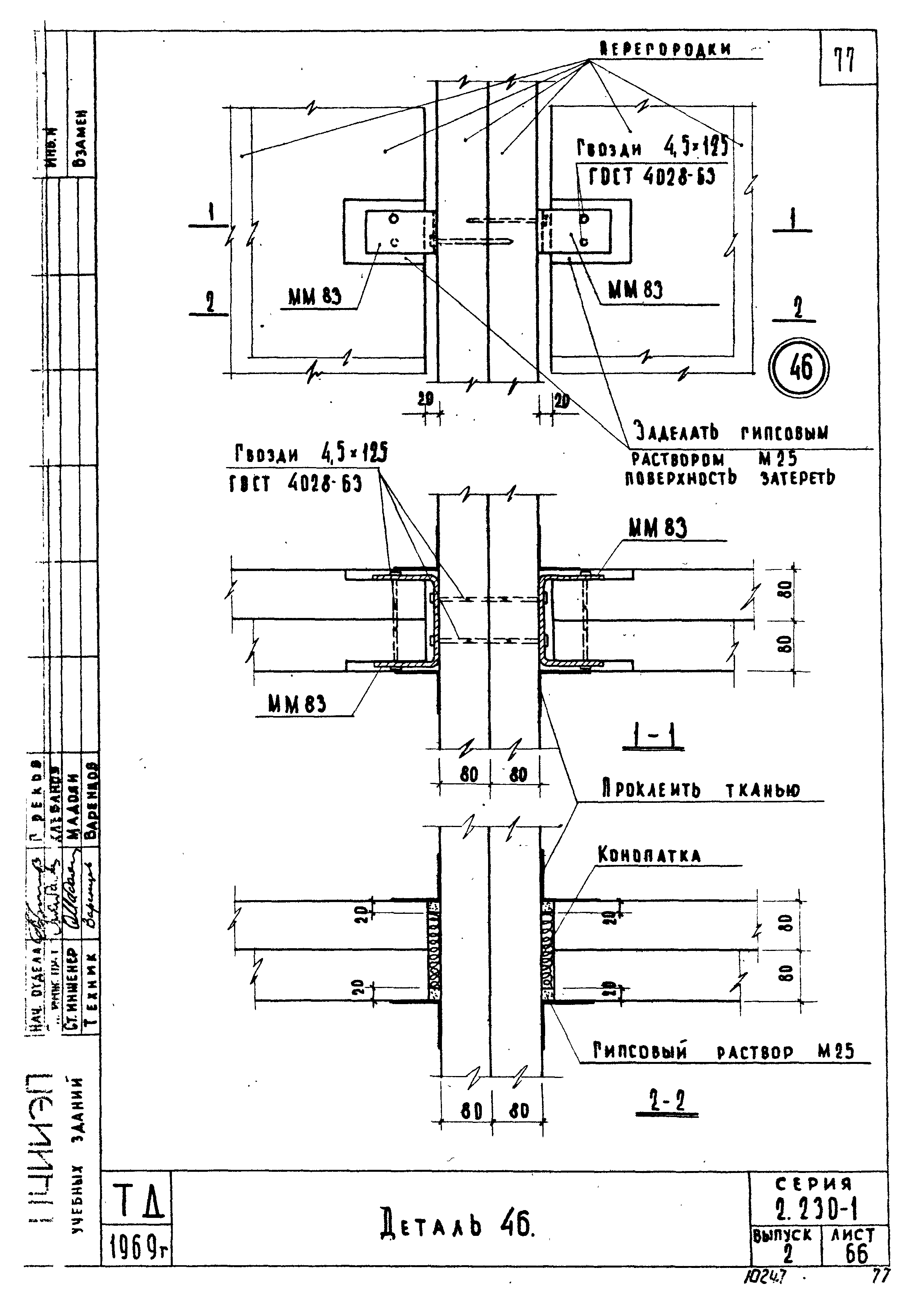
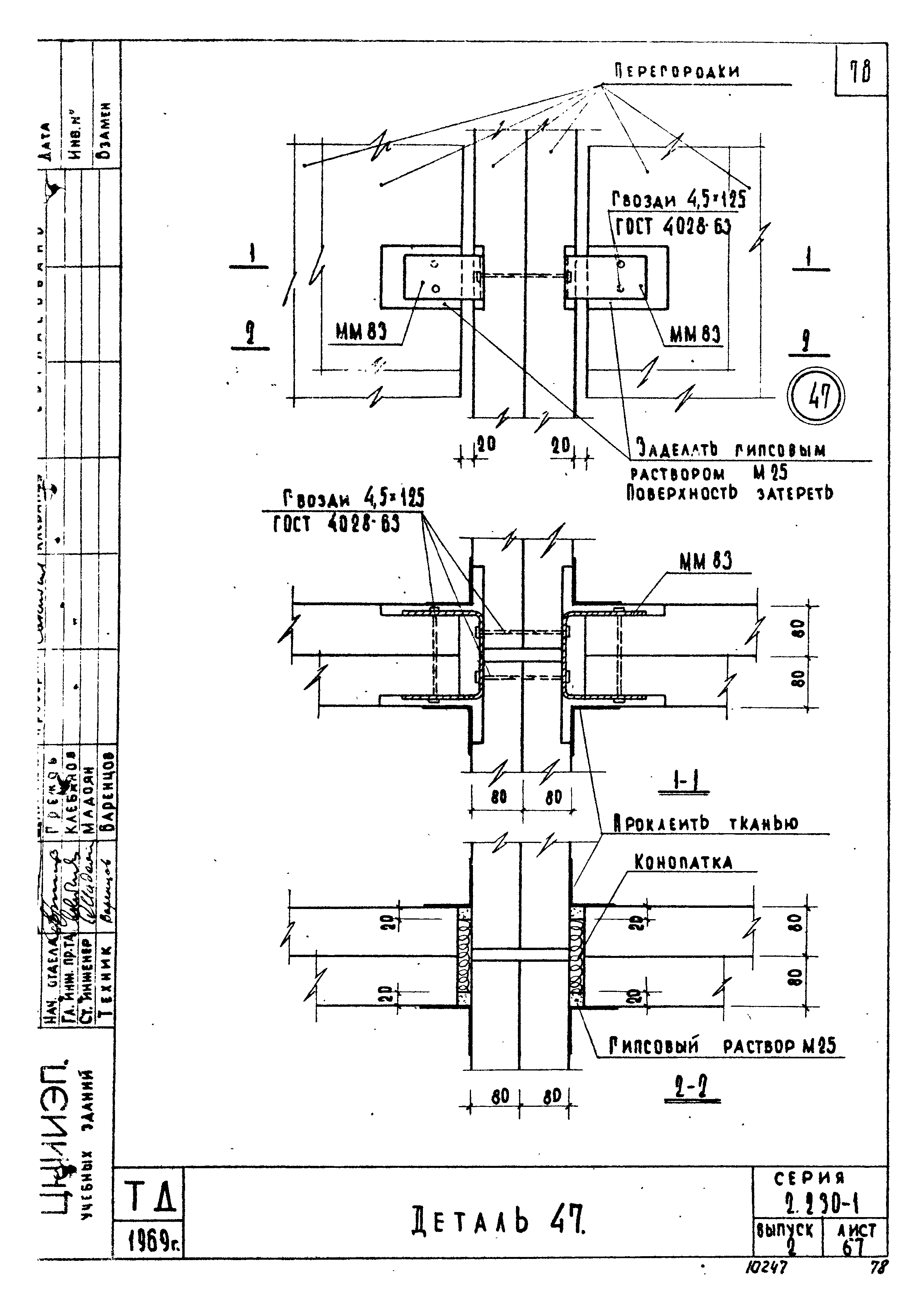
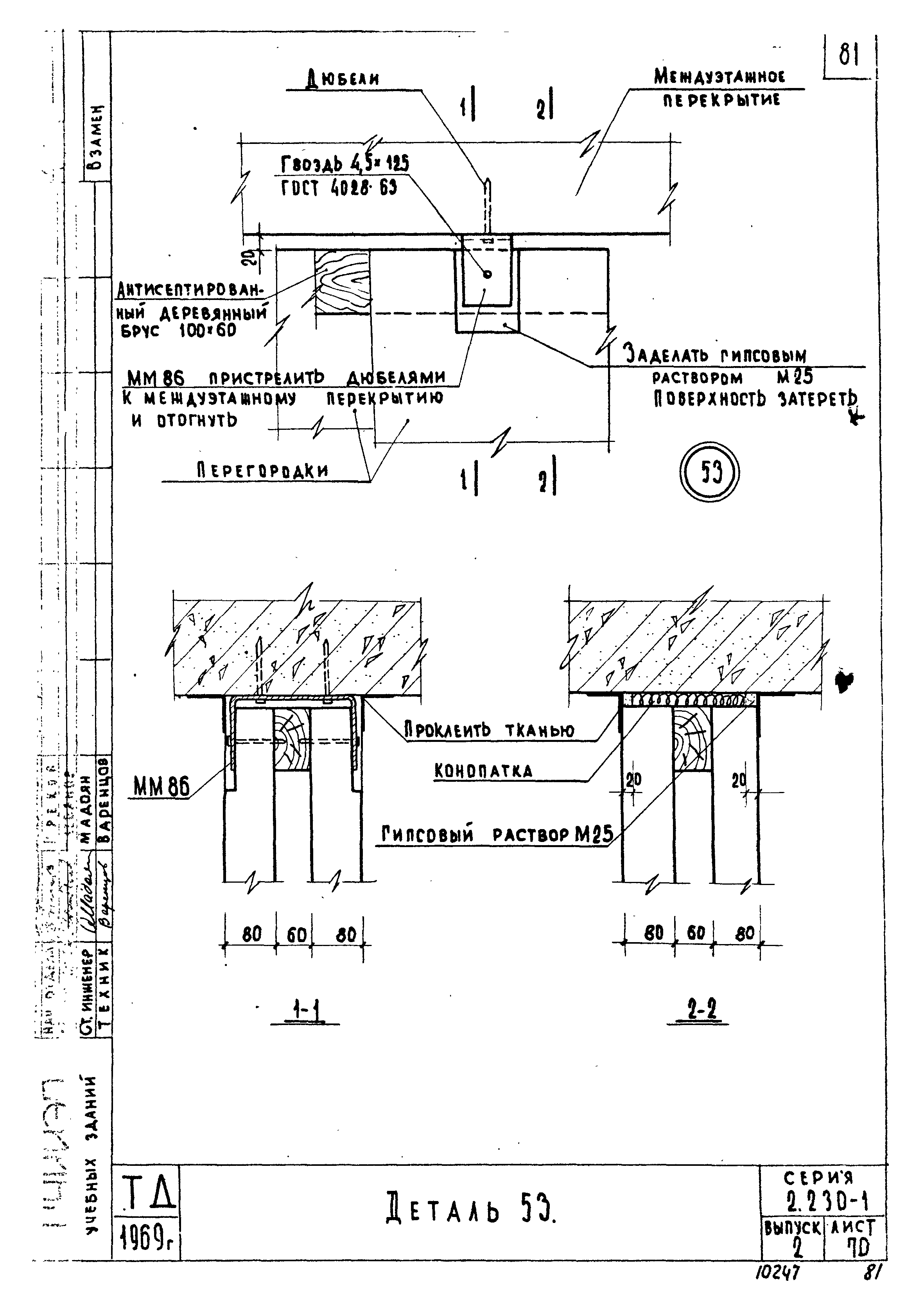
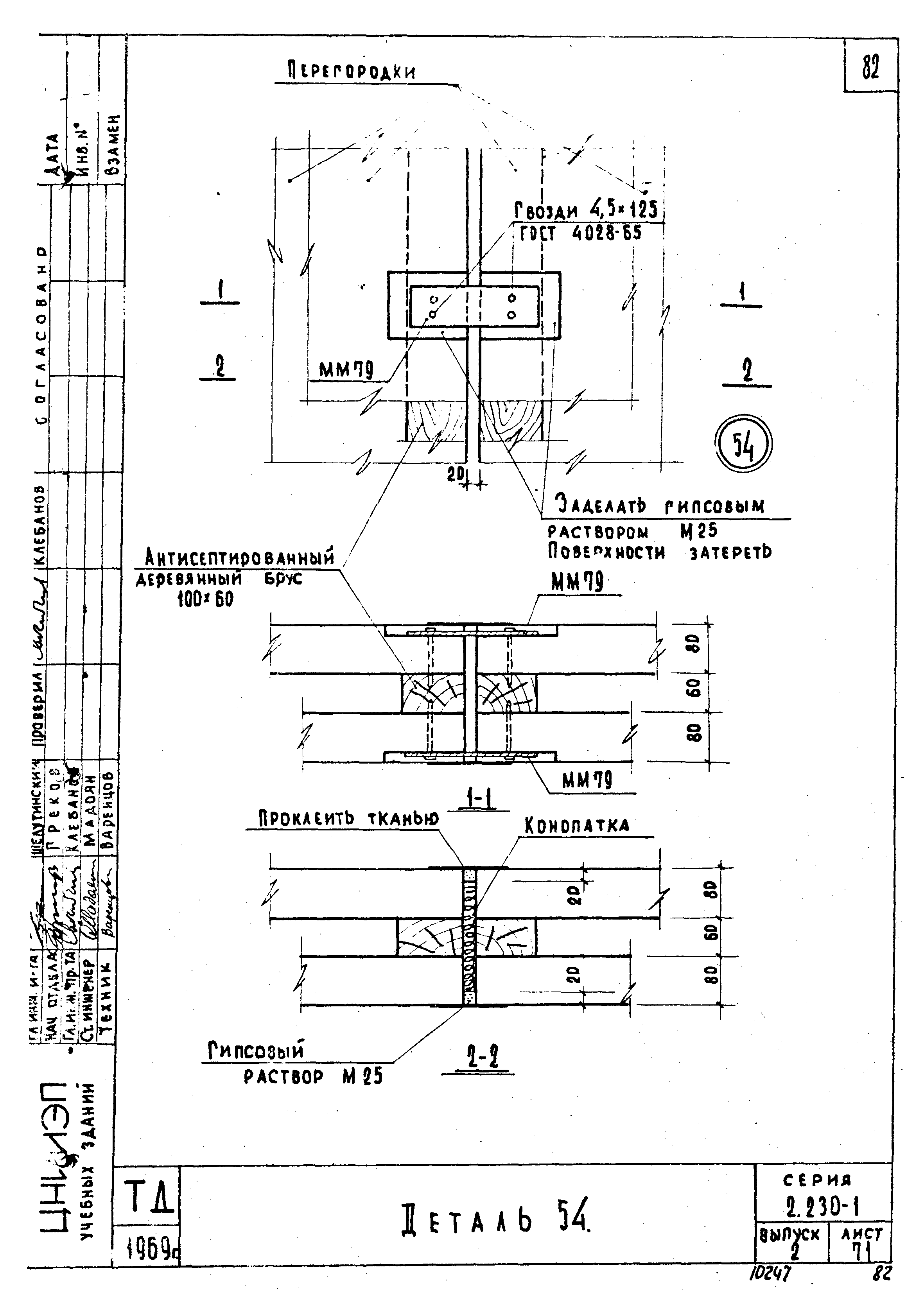
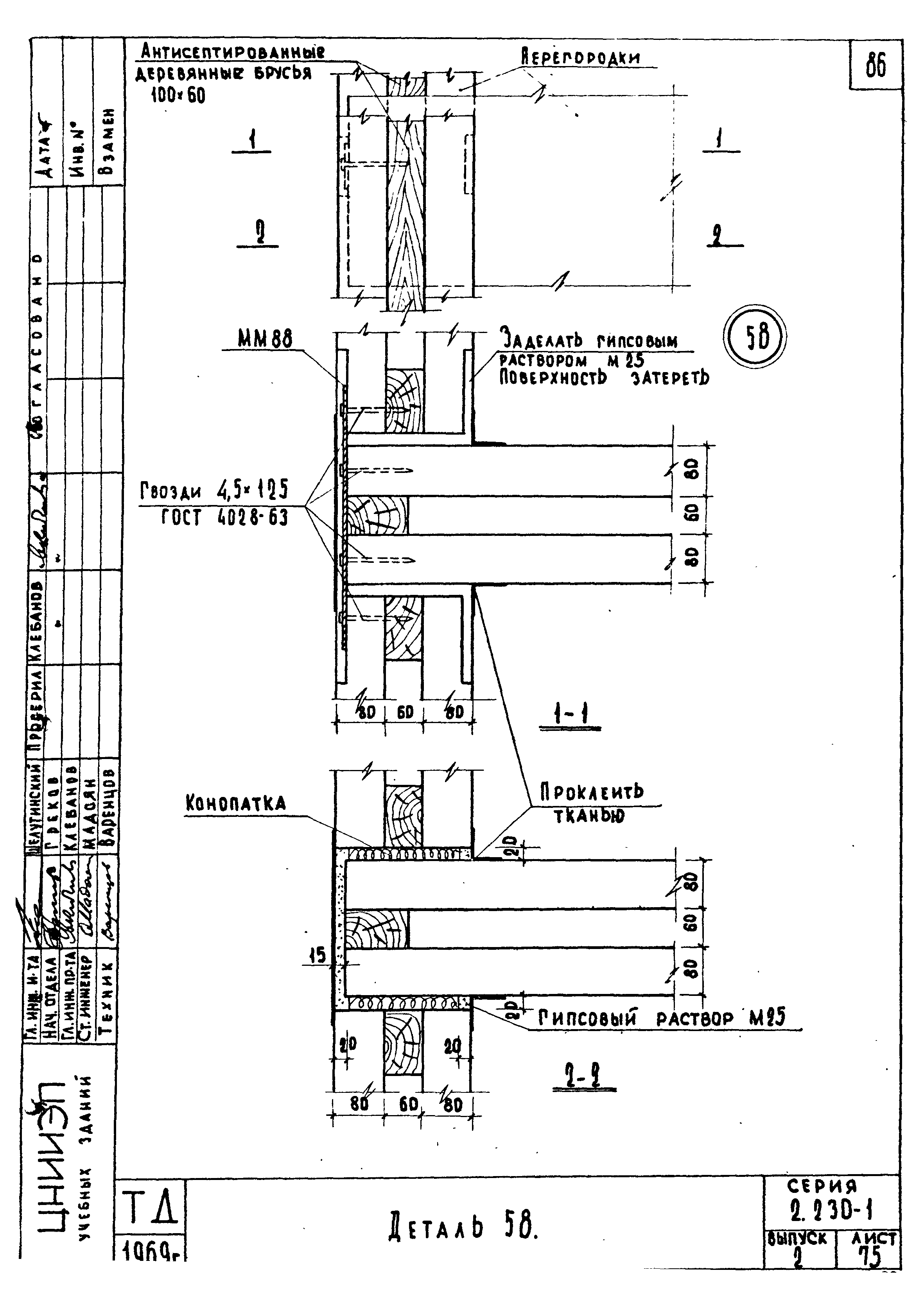
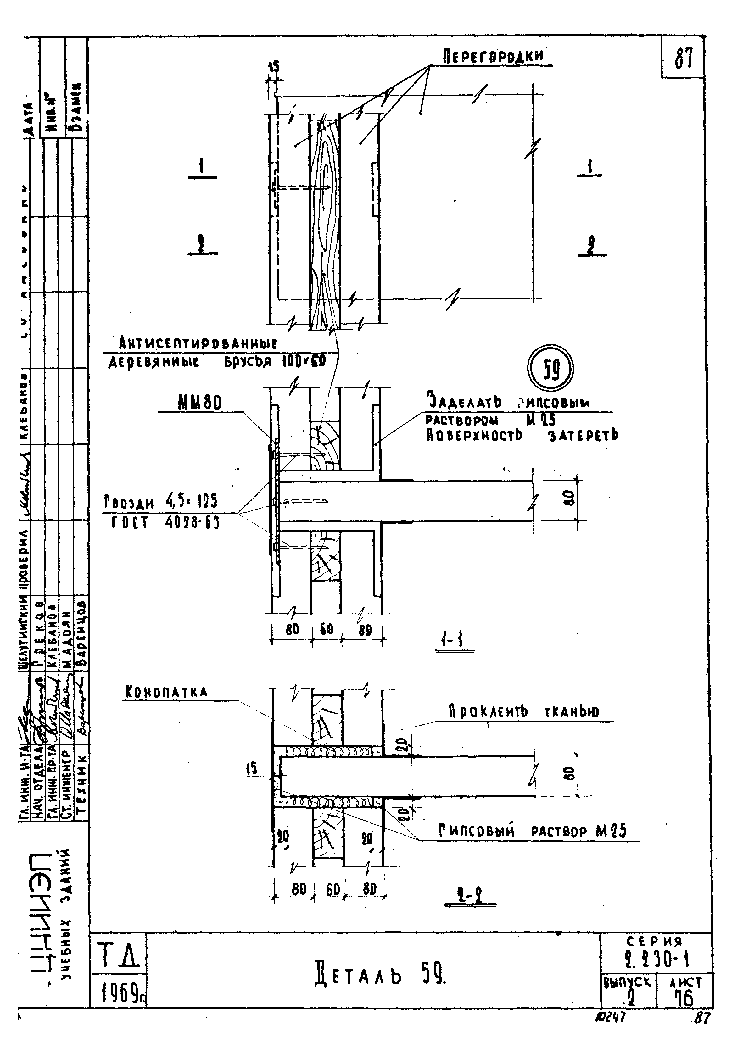
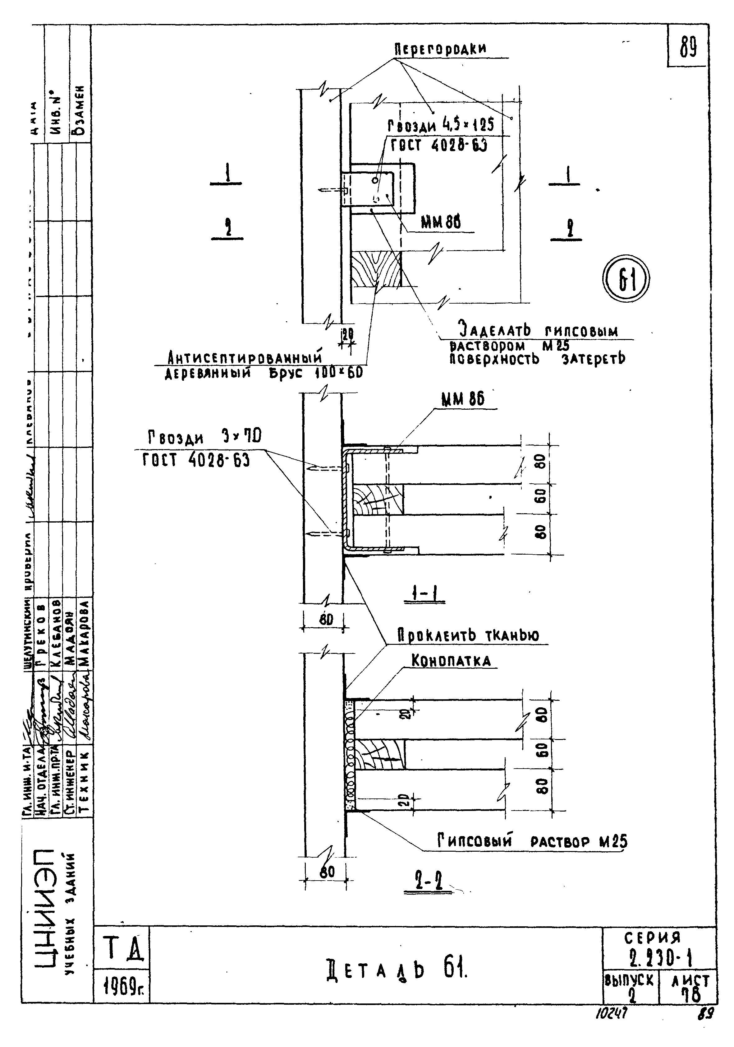
| Оглавление: | 2.230-1 Содержание 2.230-1 Пояснительная записка 2.230-1 Лист 1. Схема маркировки ТД. диафрагм жесткости при размещения диафрагм в плоскости рам каркаса 2.230-1 Лист 2. Схема маркировки ТД диафрагм жесткости при размещении диафрагм из плоскости рам каркаса 2.230-1 Лист 3. Схема маркировки ТД вентиляционных блоков 2.230-1 Лист 4. Однослойные перегородка. Схема № 1 маркировки ТД 2.230-1 Лист 5. Однослойные перегородки. Схема № 2 маркировки ТД 2.230-1 Лист 6. Однослойные перегородки. Схема № 3 маркировки ТД 2.230-1 Лист 7. Двухслойные перегородки. Схема № 4 маркировки ТД 2.230-1 Лист 8. Двухслойные перегородки. Схема № 2 маркировки ТД 2.230-1 Лист 9. Двухслойные перегородки. Схема № 3 маркировки ТД 2.230-1 Лист 10. Двухслойные перегородка с воздушным зазором. Схема № 1 маркировки ТД 2.230-1 Лист 11. Двухслойные перегородки с воздушным зазором. Схема № 2 маркировки ТД 2.230-1 Лист 12. Двухслойные перегородка с воздушным зазором. Схема № 3 маркировки ТД 2.230-1 Лист 13. Деталь 1 2.230-1 Лист 14. Деталь 1. Разрезы 1-1, 2-2 и 3-3 2.230-1 Лист 15. Деталь 2. 2.230-1 Лист 16. Деталь 2. Разрезы 1-1, 2-2 и 3-3 2.230-1 Лист 17. Деталь 3. 2.230-1 Лист 18. Деталь 3. Разрезы 1-1, 2-2 и 3-3 2.230-1 Лист 19. Деталь 4. 2.230-1 Лист 20. Деталь 4. Разрезы 2-2, 3-3 2.230-1 Лист 21. Деталь 5. 2.230-1 Лист 22. Деталь 5. Разрезы 2-2, 3-3 2.230-1 Лист 23. Деталь 6. 2.230-1 Лист 24. Деталь 6. Разрезы 2-2 и 3-3 2.230-1 Лист 25. Деталь 7. 2.230-1 Лист 26. Деталь 7. Разрезы 1-1 и 2-2 2.230-1 Лист 27. Деталь 8. 2.230-1 Лист 28. Детали 9 и 10 2.230-1 Лист 29. Детали 9 и 10. Разрез 1-1 2.230-1 Лист 30. Деталь 11 2.230-1 Лист 31. Деталь 11. Разрезы 1-1 и 2-2 2.230-1 Лист 32. Деталь 12. 2.230-1 Лист 33. Деталь 12. Разрезы 1-1 и 2-2 2.230-1 Лист 34. Деталь 13. 2.230-1 Лист 35. Деталь 13. Разрезы 1-1 и 2-2 2.230-1 Лист 36. Деталь 14. 2.230-1 Лист 37. Деталь 14. Разрезы 1-1 и 2-2 2.230-1 Лист 38. Деталь 15. 2.230-1 Лист 39. Деталь 16. 2.230-1 Лист 40. Деталь 16. Разрезы 1-1 и 2-2 2.230-1 Лист 41. Деталь 17. 2.230-1 Лист 42. Деталь 17. Разрезы 1-1 и 2-2 2.230-1 Лист 43. Деталь 18. 2.230-1 Лист 44. Деталь 18. Разрез 1-1 2.230-1 Лист 45. Детали 19; 20; 21; 22 2.230-1 Лист 46. Деталь 23. 2.230-1 Лист 47. Деталь 24. 2.230-1 Лист 48. Деталь 25. 2.230-1 Лист 49. Деталь 26. 2.230-1 Лист 50. Деталь 27. 2.230-1 Лист 51. Деталь 28. 2.230-1 Лист 52. Деталь 29. 2.230-1 Лист 53. Деталь 30. 2.230-1 Лист 54. Деталь 31. 2.230-1 Лист 55. Детали 32; 33; 34; 35 2.230-1 Лист 56. Деталь 36. 2.230-1 Лист 57. Деталь 37. 2.230-1 Лист 58. Деталь 38. 2.230-1 Лист 59. Деталь 39. 2.230-1 Лист 60. Деталь 40. 2.230-1 Лист 61. Деталь 41. 2.230-1 Лист 62. Деталь 42. 2.230-1 Лист 63. Деталь 43. 2.230-1 Лист 64. Деталь 44. 2.230-1 Лист 65. Деталь 45. 2.230-1 Лист 66. Деталь 46. 2.230-1 Лист 67. Деталь 47. 2.230-1 Лист 68. Детали 48; 49; 50; 51 2.230-1 Лист 69. Деталь 52. 2.230-1 Лист 70. Деталь 53. 2.230-1 Лист 71. Деталь 54. 2.230-1 Лист 72. Деталь 55. 2.230-1 Лист 73. Деталь 56. 2.230-1 Лист 74. Деталь 57. 2.230-1 Лист 75. Деталь 58. 2.230-1 Лист 76. Деталь 59. 2.230-1 Лист 77. Деталь 60. 2.230-1 Лист 78. Деталь 61. 2.230-1 Лист 79. Деталь 62. 2.230-1 Лист 80. Деталь 63. 2.230-1 Лист 81. Монтажные металлические детали 2.230-1 Лист 83. Монтажные металлические детали |
| Разработан: | ЦНИИЭП учебных зданий Госгражданстроя |
| Утверждён: | 01.08.1969 Государственный комитет по гражданскому строительству (161) |































































































