Скачать Серия 2.240-1 Выпуск 1. Перекрытия каркасно-панельных зданийДата актуализации: 01.01.2021
|
| Обозначение: | Серия 2.240-1 |
| Обозначение англ: | Series 2.240-1 |
| Статус: | не действует |
| Название рус.: | Выпуск 1. Перекрытия каркасно-панельных зданий |
| Дата добавления в базу: | 01.09.2013 |
| Дата актуализации: | 01.01.2021 |
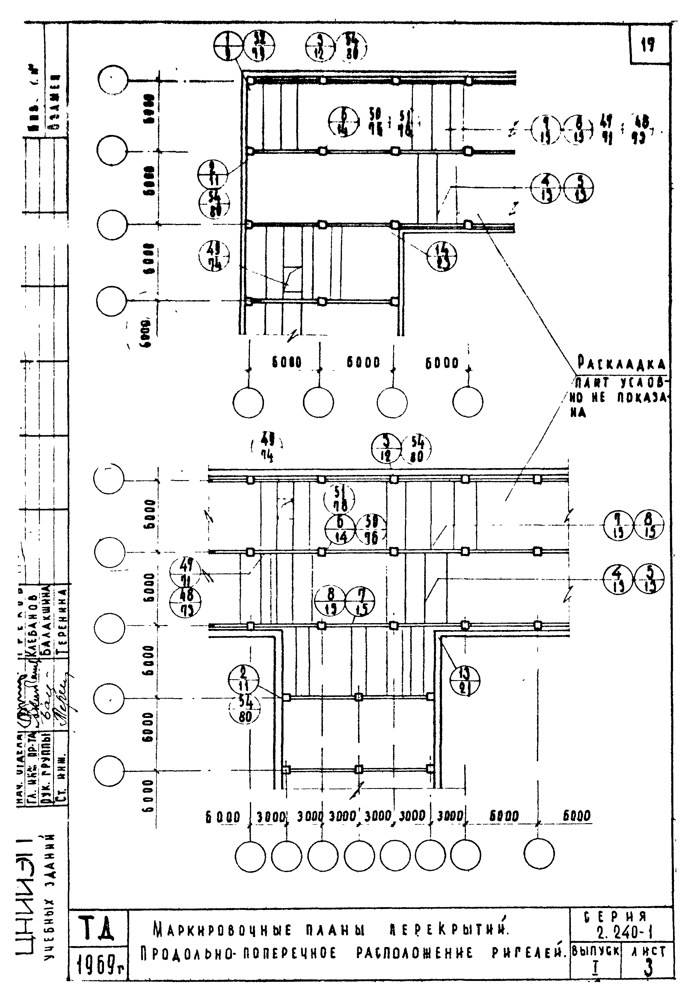
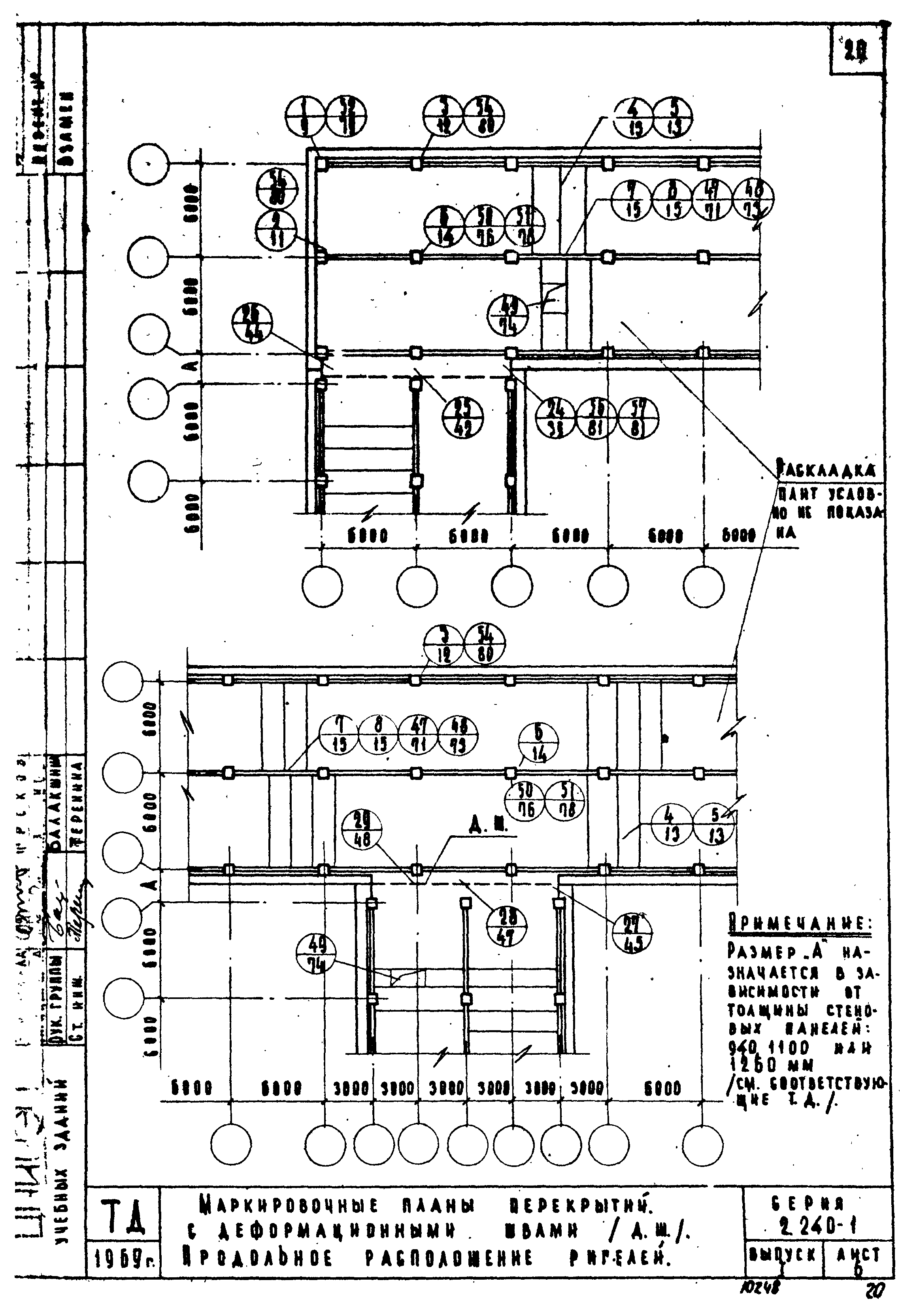
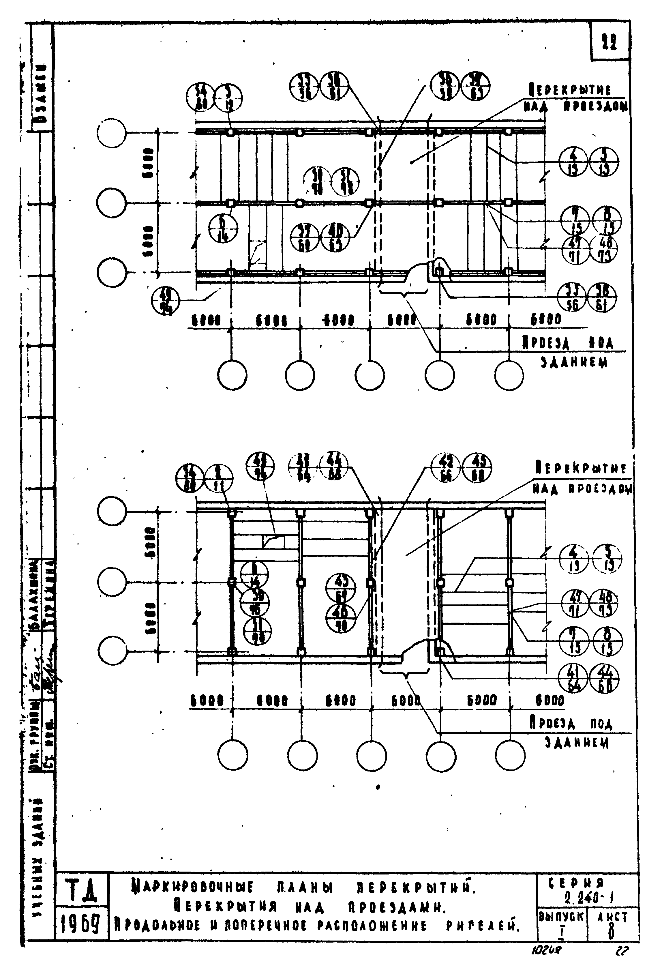
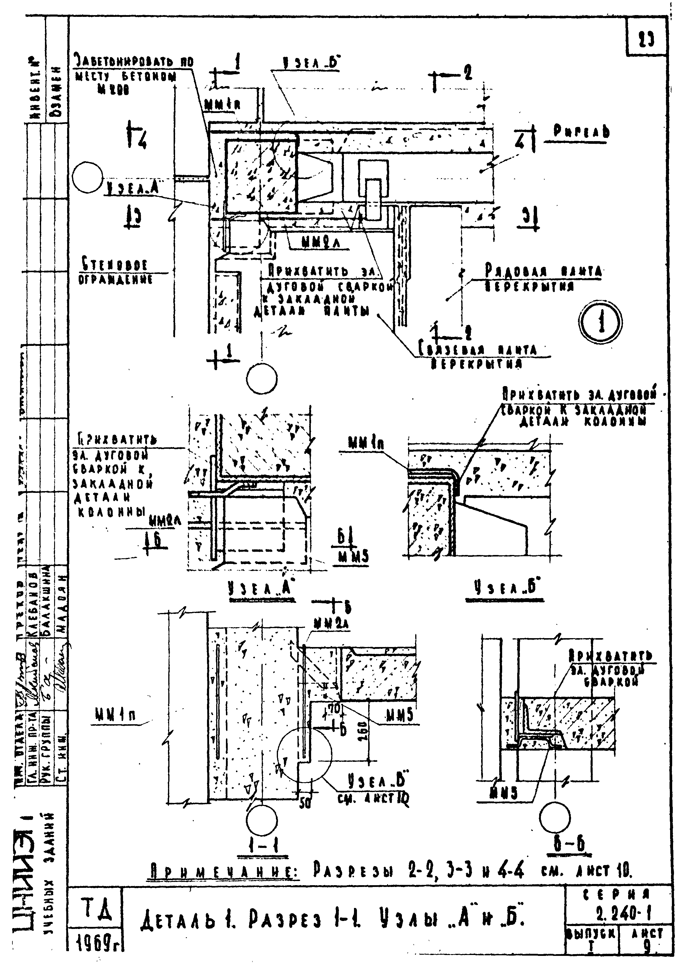
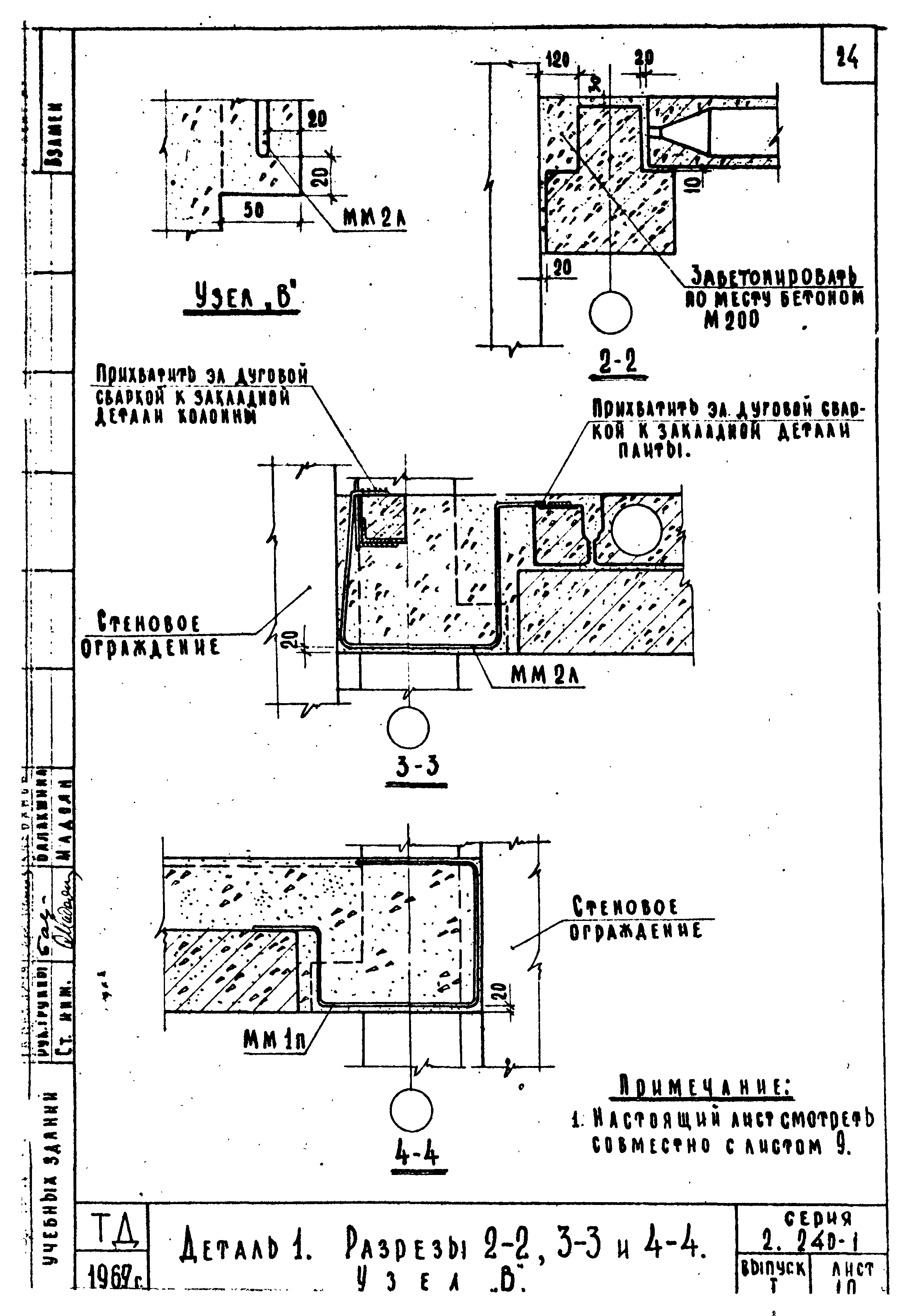
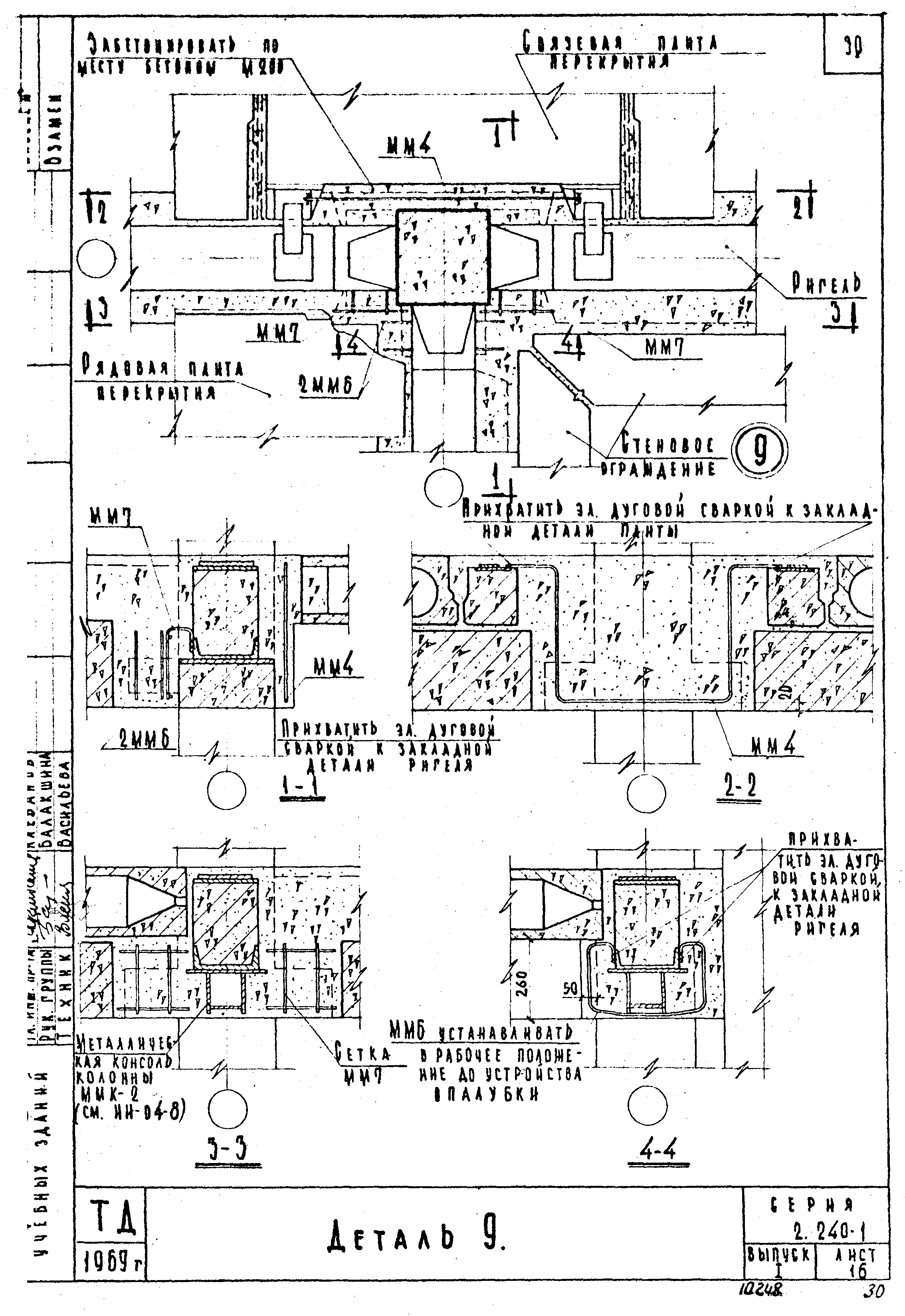
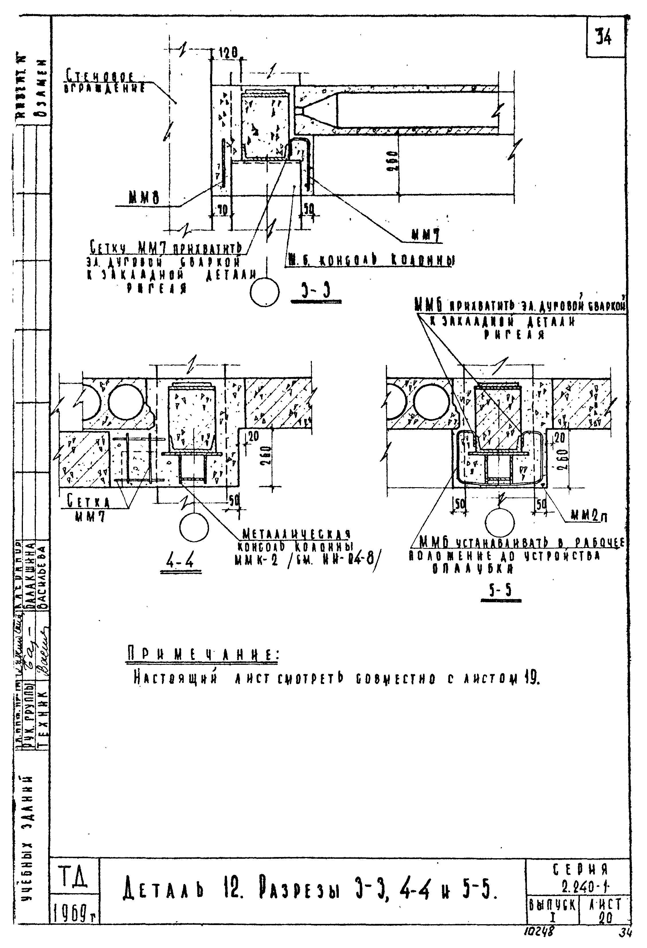
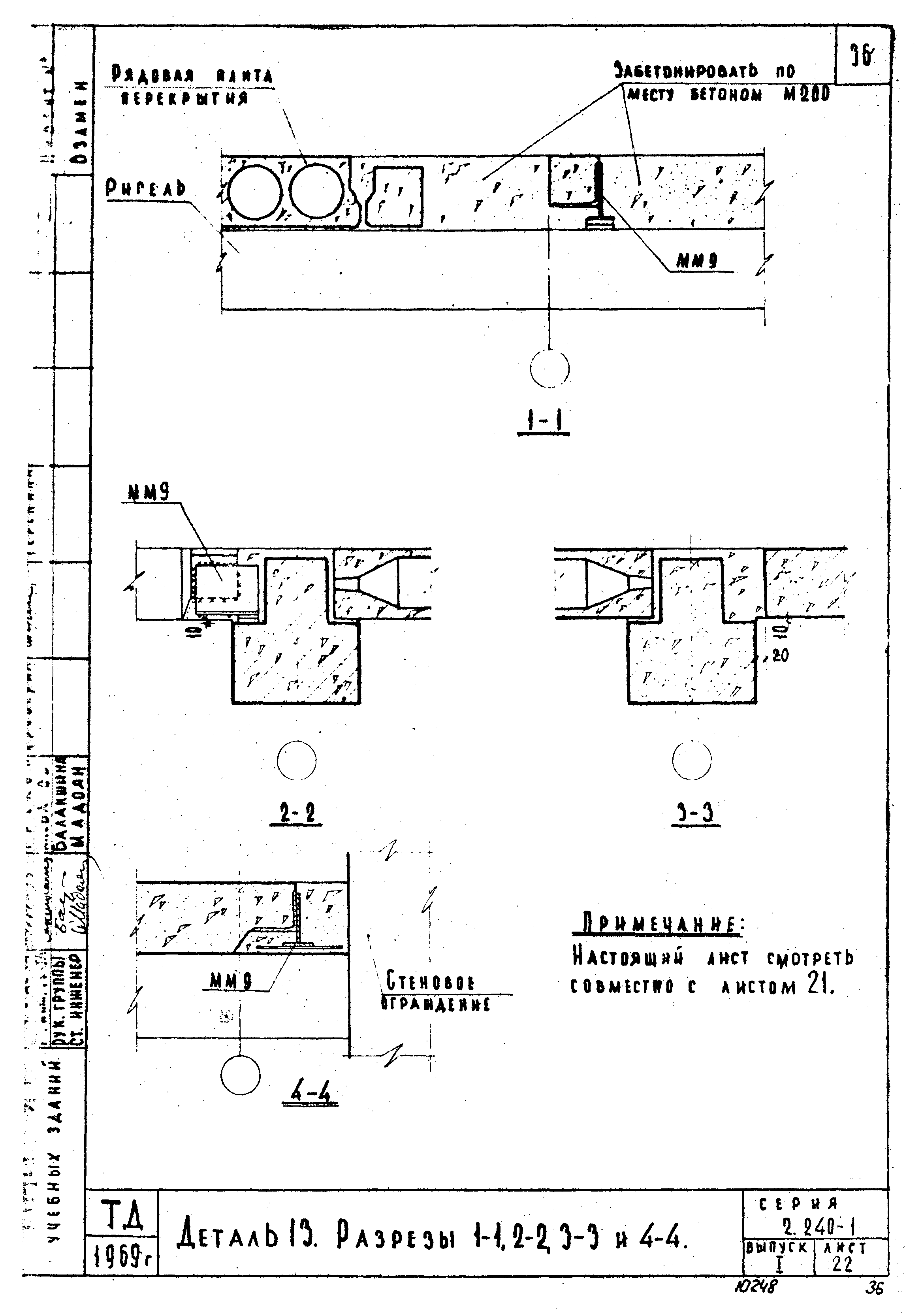
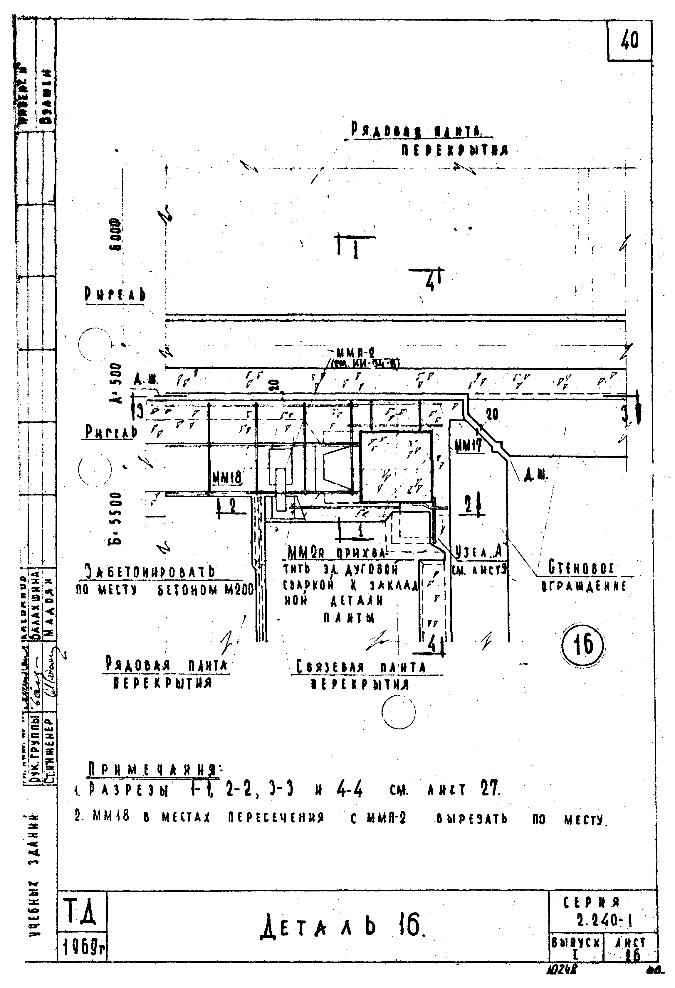
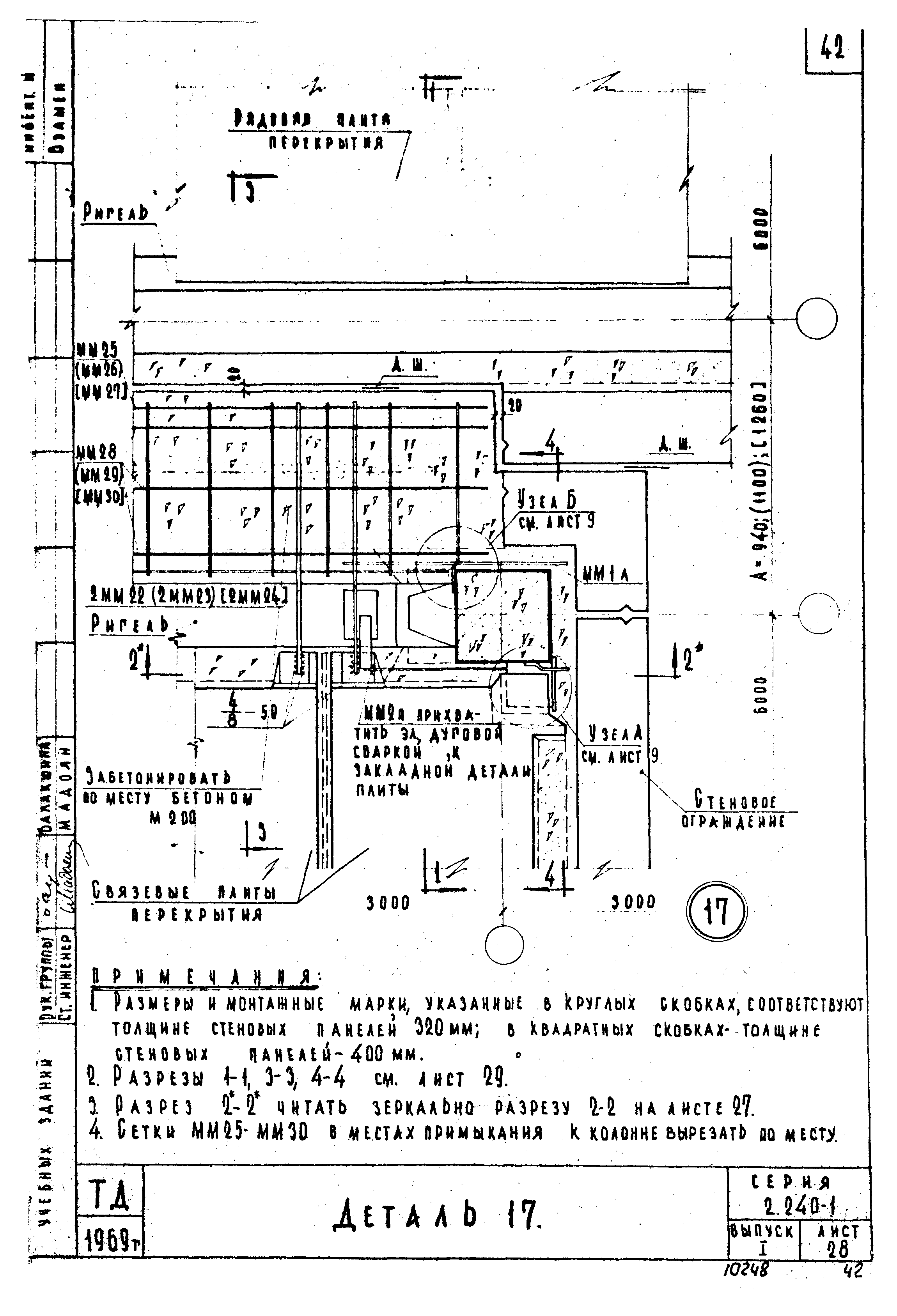
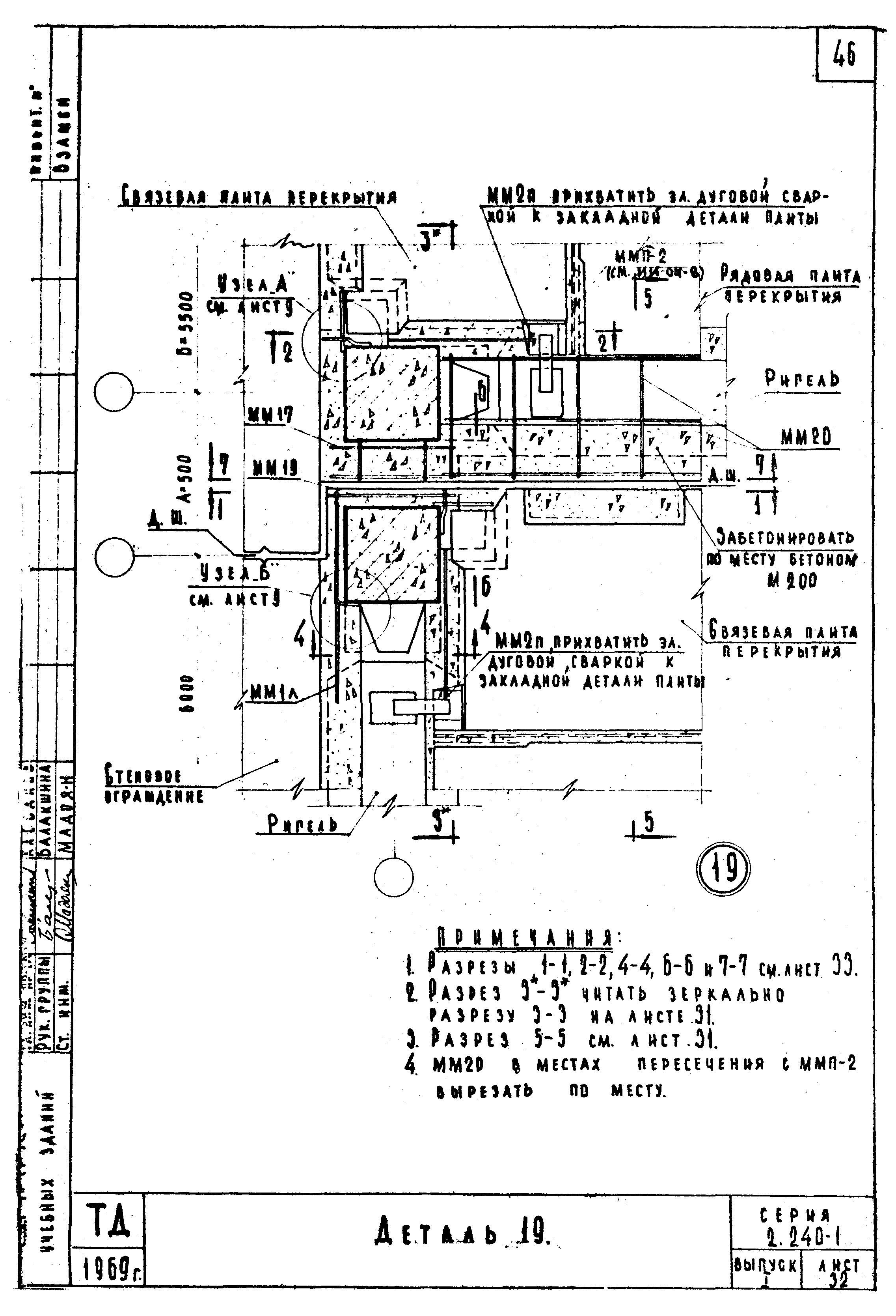
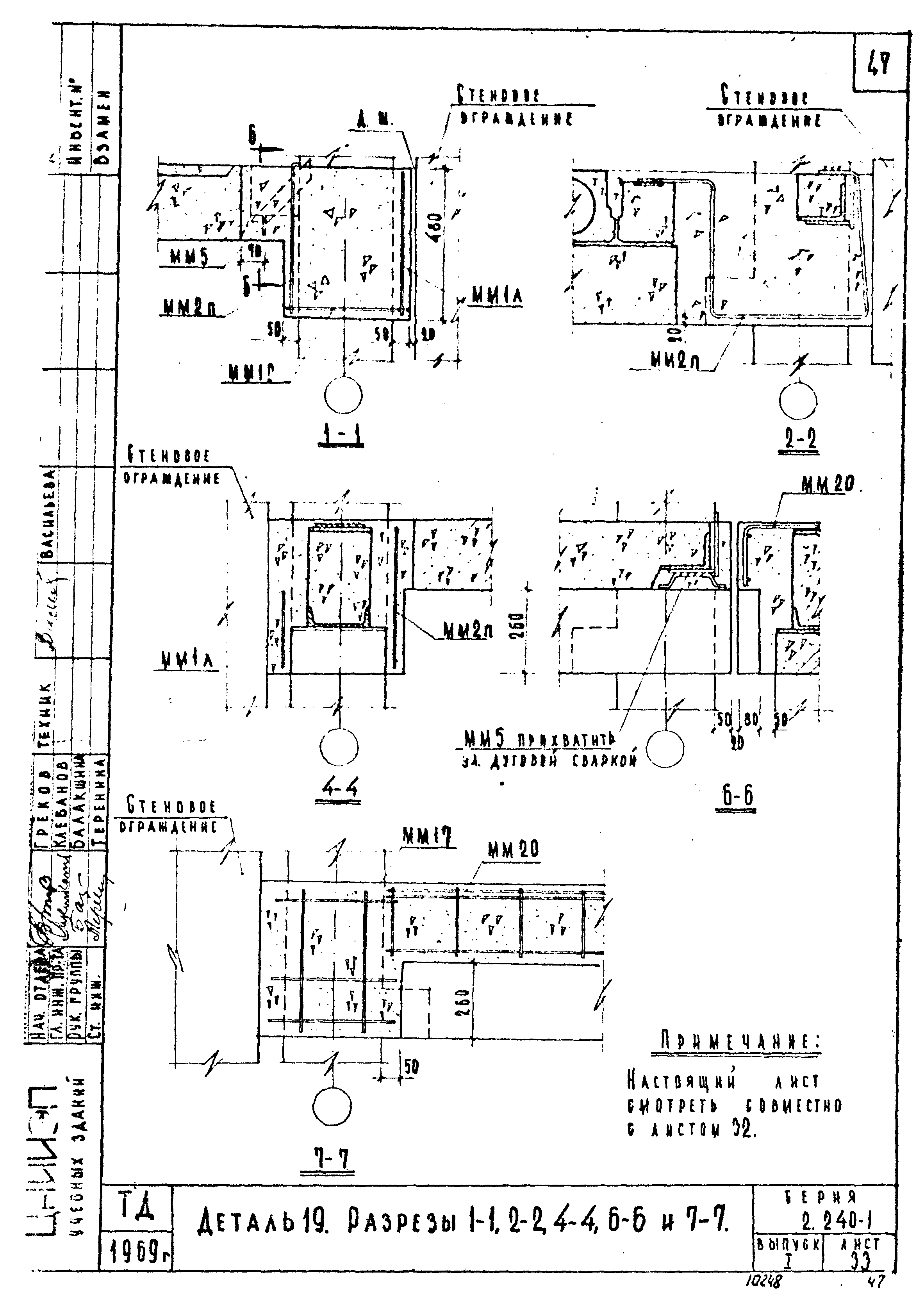
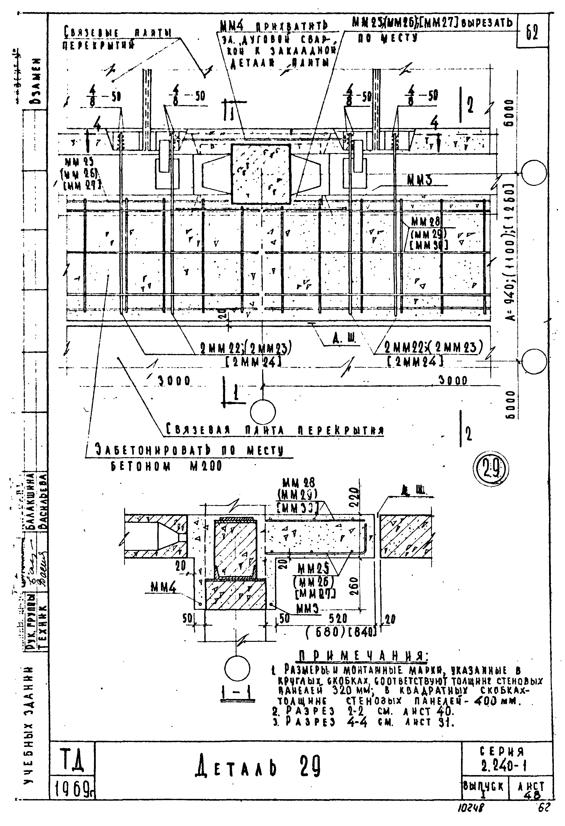
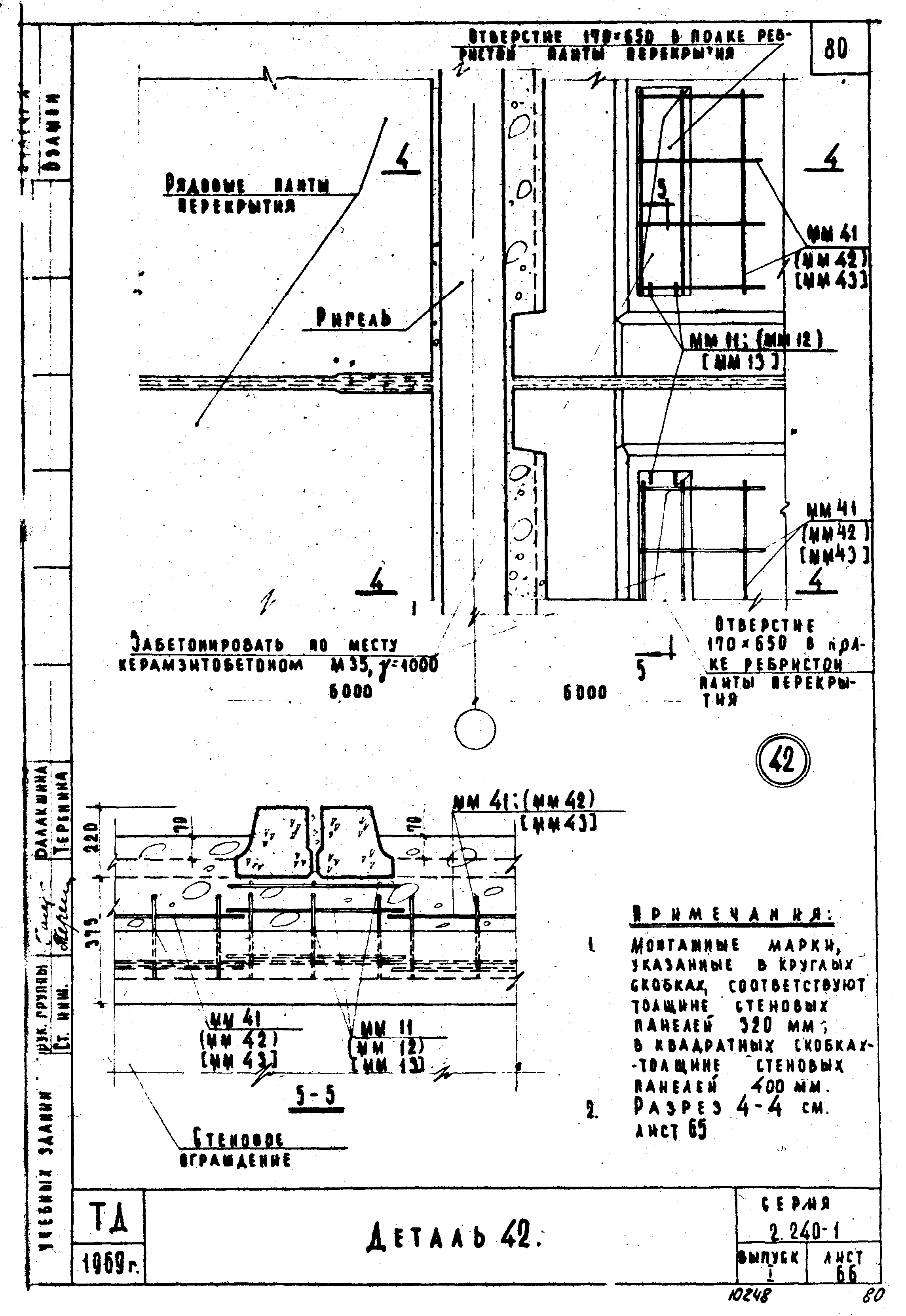
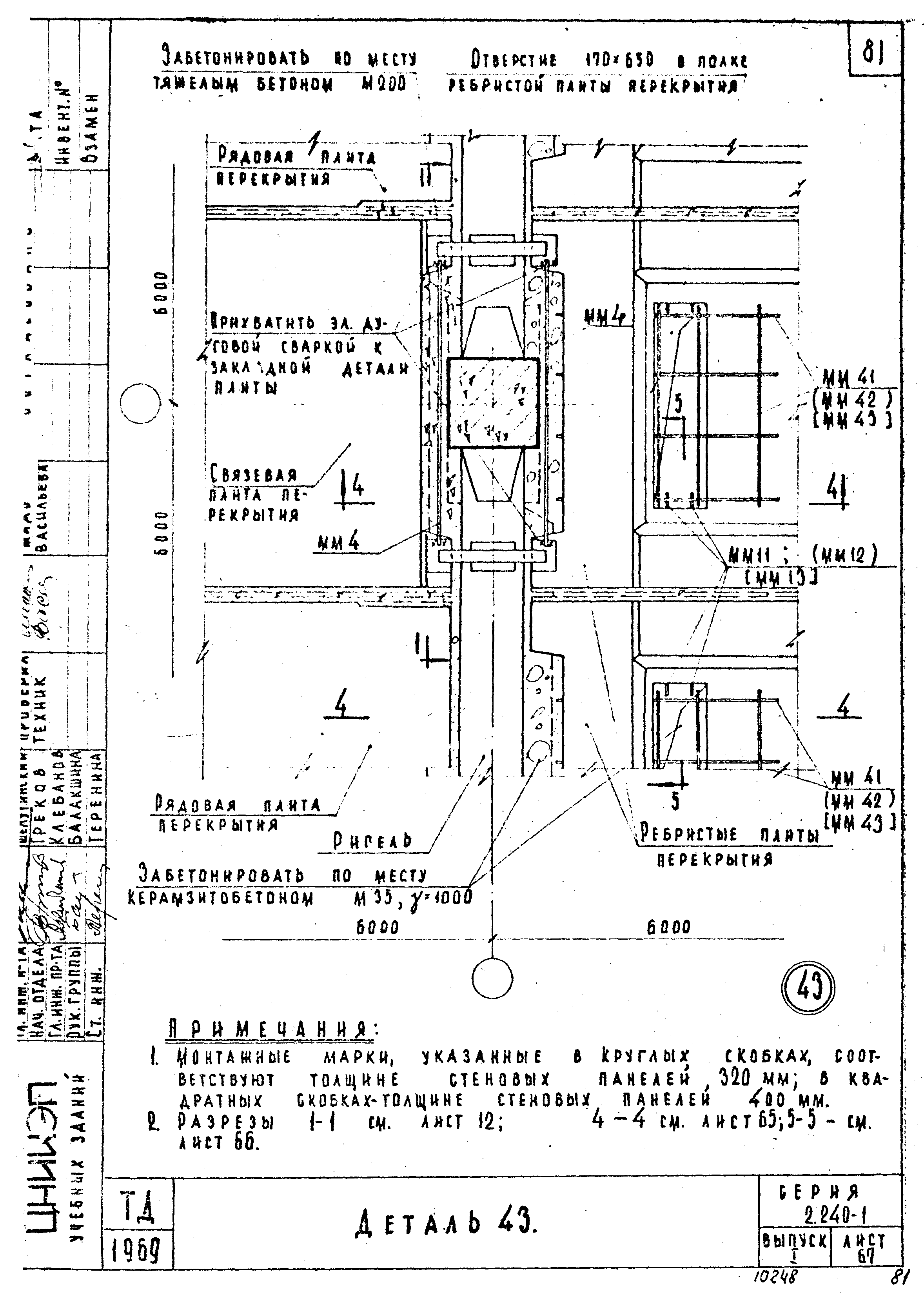
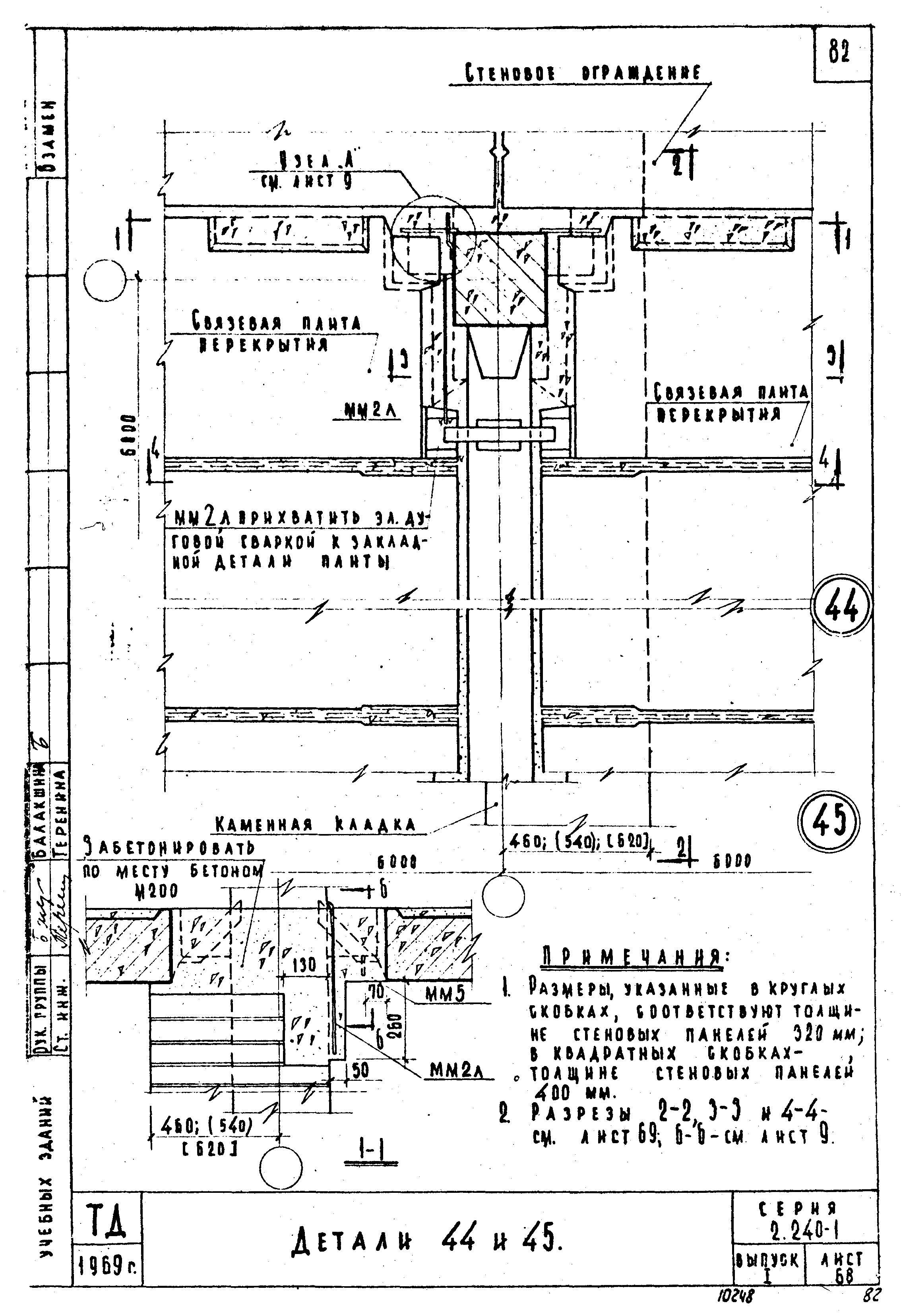
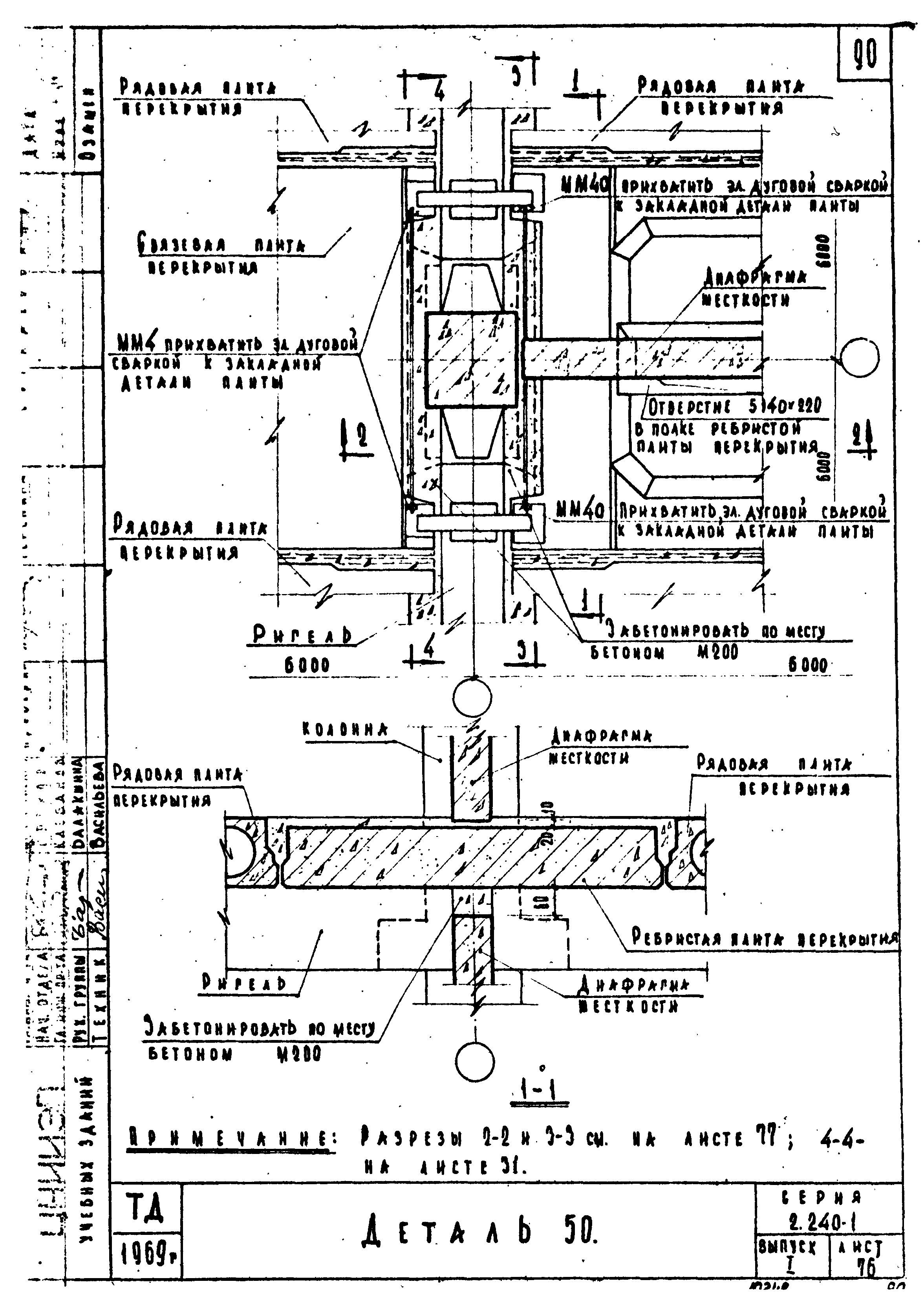
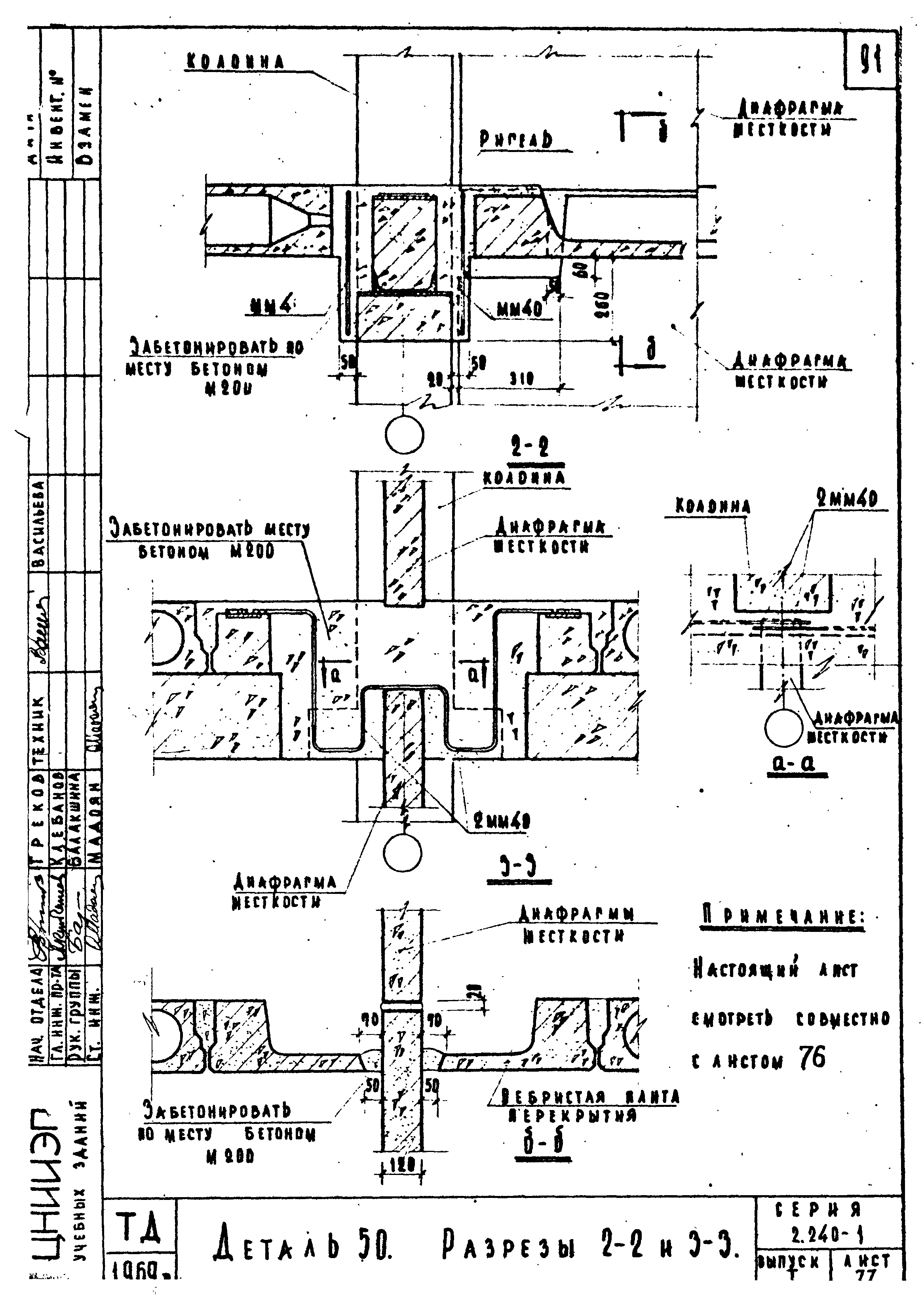
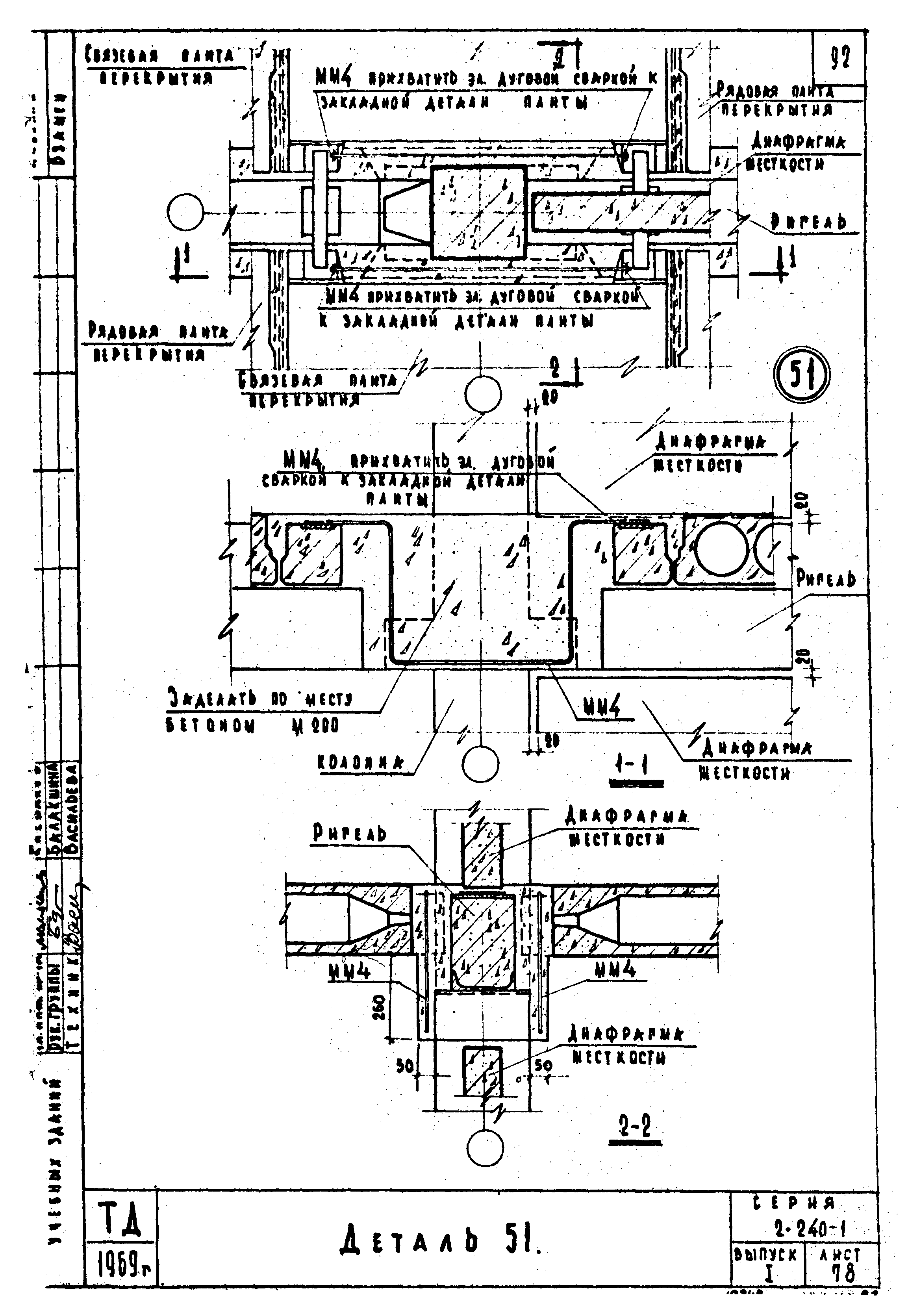
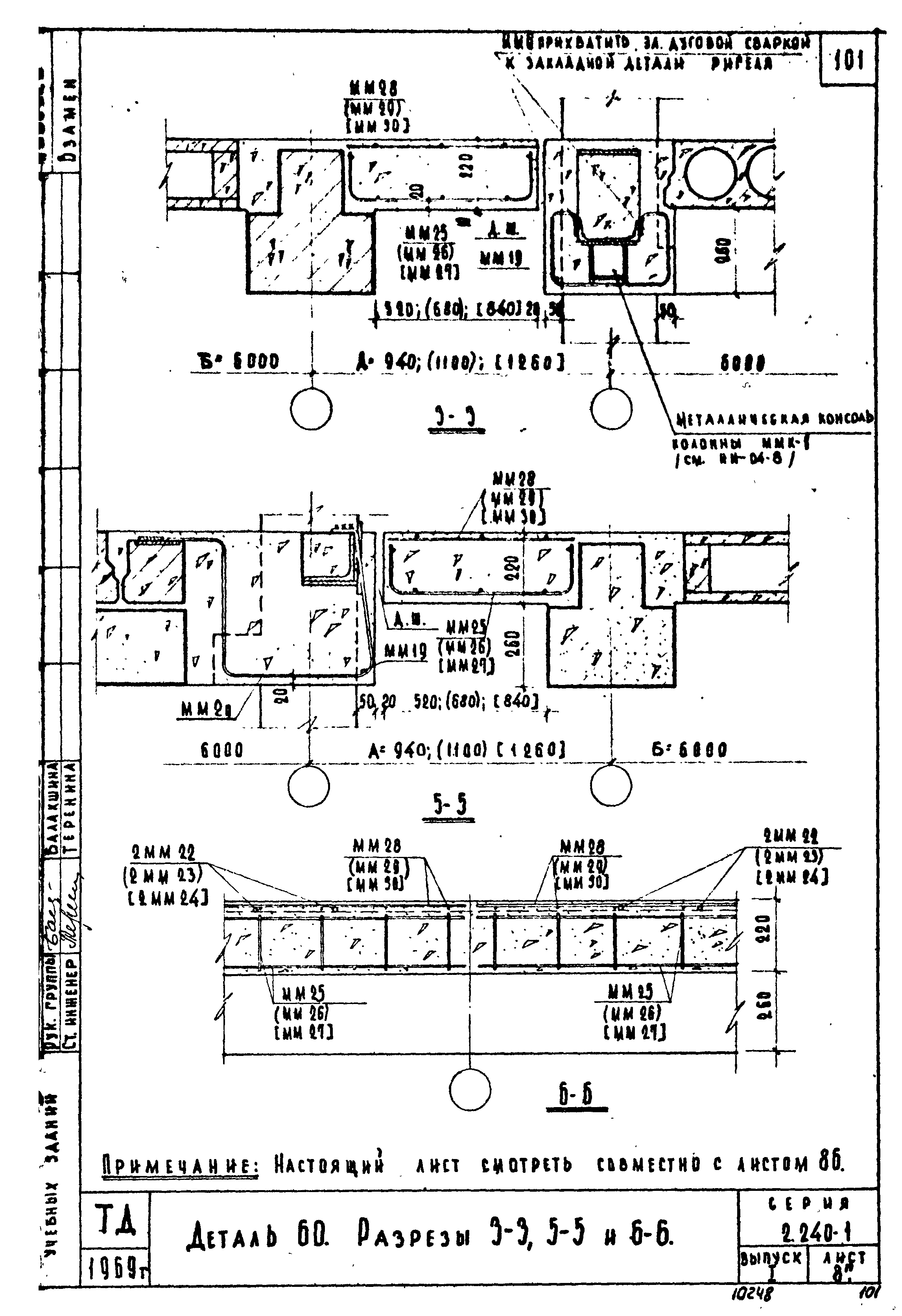
| Оглавление: | 2.240-1 Содержание 2.240-1 Пояснительная записка 2.240-1Дист 1. Маркировочные планы перекрытий. Продольное расположение ригелей. 2.240-1 Лист 2. Маркировочные планы перекрытий. Поперечное расположение ригелей. 2.240-1 Лист 3. Маркировочные планы перекрытий. Продольно-поперечное расположение ригелей. 2.240-1 Лист 4. Маркировочные планы перекрытии с деформационными швами (д.ш.). Поперечное расположение ригелей. 2.240-1 Лист 5. Маркировочные планы перекрытий с деформационными швами (д.ш.). Продольно-поперечное расположение ригелей. 2.240-1 Лист 6. Маркировочные планы перекрытий с деформационными швами (д.ш.). Продольное расположение ригелей. 2.240-1 Лист 7. Маркировочные планы перекрытий с деформационными швами (д.ш.). Продольное и поперечное расположение ригелей. 2.240-1 Лист 8. Маркировочные планы перекрытий. Перекрытия над проездами. Продольное и поперечное расположение ригелей 2.240-1 Лист 9. Деталь 1. Разрез 1-1. Узлы "А" и "Б" 2.240-1 Лист 10. Деталь 1. Разрезы 2-2, 3-3 и 4-4. Узел - "В". 2.240-1 Лист 11. Деталь 2. Разрезы 1-1 и 2-2. 2.240-1 Лист 12. Деталь 3. 2.240-1 Лист 13. Детали 4 и 5. 2.240-1 Лист 14. Деталь 6. 2.240-1 Лист 15. Детали 7 и 8. 2.240-1 Лист 16. Деталь 9. 2.240-1 Лист 17. Деталь 10. При нормативной полезной нагрузке на перекрытие до 200 кг/м² 2.240-1 Лист 18. Деталь 11. При нормативной полезной нагрузке на перекрытие более 200 кг/м². 2.240-1 Лист 19. Деталь 12. Разрезы 1-1 и 2-2. Узел "Г". 2.240-1 Лист 20. Деталь 12. Разрезы 3-3, 4-4 и 5-5. 2.240-1 Лист 21. Деталь 13. 2.240-1 Лист 22. Деталь 13. Разрезы 1-1, 2-2, 3-3, 4-4. 2.240-1 Лист 23. Деталь 14. 2.240-1 Лист 24. Деталь 15. 2.240-1 Лист 25. Деталь 15. Разрезы 1-1, 2-2, 3-3 и 4-4 2.240-1 Лист 26. Деталь 16. 2.240-1 Лист 27. Деталь 16. Разрезы 1-1, 2-2, 3-3 и 4-4 2.240-1 Лист 28. Деталь 17. 2.240-1 Лист 29. Деталь 17. Разрезы 1-1, 3-3 и 4-4 2.240-1 Лист 30. Деталь 18. 2.240-1 Лист 31. Деталь 18. Разрезы 3-3, 4-4 и 5-5 2.240-1 Лист 32. Деталь 19. 2.240-1 Лист 33. Деталь 19. Разрезы 1-1, 2-2, 4-4, 6-6 и 7-7 2.240-1 Лист 34. Деталь 20. 2.240-1 Лист 35. Деталь 20. Разрезы 1-1, 2-2 и 3-3 2.240-1 Лист 36. Деталь 21. 2.240-1 Лист 37. Деталь 22. 2.240-1 Лист 38. Деталь 23. 2.240-1 Лист 39. Деталь 24. 2.240-1 Лист 40. Деталь 24. Разрезы 1-1, 2-2 и 3-3 2.240-1 Лист 41. Деталь 24. Разрезы 5-5 и 6-6 2.240-1 Лист 42. Деталь 25. 2.240-1 Лист 43. Деталь 25. Разрезы 3-3, 5-5 и 7-7 2.240-1 Лист 44. Деталь 26. 2.240-1 Лист 45. Деталь 27. 2.240-1 Лист 46. Деталь 27. Разрезы 1-1; 2-2, 3-3 2.240-1 Лист 47. Деталь 28. 2.240-1 Лист 48. Деталь 29. 2.240-1 Лист 49. Деталь 30. 2.240-1 Лист 50. Деталь 30. Разрезы 1-1, 3-3 2.240-1 Лист 51. Деталь 31. 2.240-1 Лист 52. Деталь 32. 2.240-1 Лист 53. Деталь 33. 2.240-1 Лист 54. Деталь 33. Разрезы 2-2, 4-4 и 5-5 2.240-1 Лист 55. Деталь 34. 2.240-1 Лист 56. Деталь 35. 2.240-1 Лист 57. Деталь 35. Разрезы 1-1, 2-2 и 3-3 2.240-1 Лист 58. Деталь 35. Разрезы 4-4, 5-5 и 6-6 2.240-1 Лист 59. Деталь 36. 2.240-1 Лист 60. Деталь 37. 2.240-1 Лист 61. Деталь 38. 2.240-1 Лист 62. Деталь 38. Разрезы 2-2 , 3-3 и 4-4 2.240-1 Лист 63. Детали 39, 40 2.240-1 Лист 64. Деталь 41. 2.240-1 Лист 65. Деталь 41. Разрезы 1-1, 2-2, 4-4 2.240-1 Лист 66. Деталь 42. 2.240-1 Лист 67. Деталь 43. 2.240-1 Лист 68. Детали 44 и 45 2.240-1 Лист 69. Детали 44 и 45. Разрезы 2-2, 3-3 и 4-4 2.240-1 Лист 70. Деталь 46. 2.240-1 Лист 71. Деталь 47. 2.240-1 Лист 72. Деталь 47. Разрезы 1-1, 2-2 и 3-3 2.240-1 Лист 73. Деталь 48 . 2.240-1 Лист 74. Деталь 49. 2.240-1 Лист 75. Деталь 49. Разрезы 3-3, 4-4, 5-5 , 6-6 и 7-7 2.240-1 Лист 76. Деталь 50. 2.240-1 Лист 77. Деталь 50. Разрезы 2-2 и 3-3 2.240-1 Лист 78. Деталь 51 2.240-1 Лист 79. Детали 52 и 53. 2.240-1 Лист 80. Детали 54 и 55. 2.240-1 Лист 81. Детали 56 и 57. 2.240-1 Лист 82. Деталь 58. 2.240-1 Лист 83. Деталь 59. 2.240-1 Лист 84. Деталь 59. Разреза 1-1,2-2,3-3 2.240-1 Лист 85. Деталь 59. Разрезы 4-4, 5-5 и 6-6. 2.240-1 Лист 86. Деталь 60. 2.240-1 Лист 87. Деталь 60. Разрезы 3-3, 5-5 и 6-6. 2.240-1 Лист 88. Деталь 61. 2.240-1 Лист 89. Деталь 62. 2.240-1 Лист 90. Деталь 63. 2.240-1 Лист 91. Деталь 63. Разрезы 2-2, 3-3. 4-4. 2.240-1 Лист 92. Деталь 64. 2.240-1 Лист 93. Деталь 64. Разрезы 1-1, 2-2, 4-4. 2.240-1 Лист 94. Монтажные металлические детали. |
| Разработан: | ЦНИИЭП учебных зданий Госгражданстроя |
| Утверждён: | 01.08.1969 Государственный комитет по гражданскому строительству (161) |

















































































































