Скачать Типовой проект 902-2-346 Альбом VI. Часть 2. Нестандартизированное оборудование. ИлососДата актуализации: 01.01.2021
|
| Обозначение: | Типовой проект 902-2-346 |
| Обозначение англ: | 902-2-346 |
| Статус: | не действует |
| Название рус.: | Альбом VI. Часть 2. Нестандартизированное оборудование. Илосос |
| Дата добавления в базу: | 01.09.2013 |
| Дата актуализации: | 01.01.2021 |
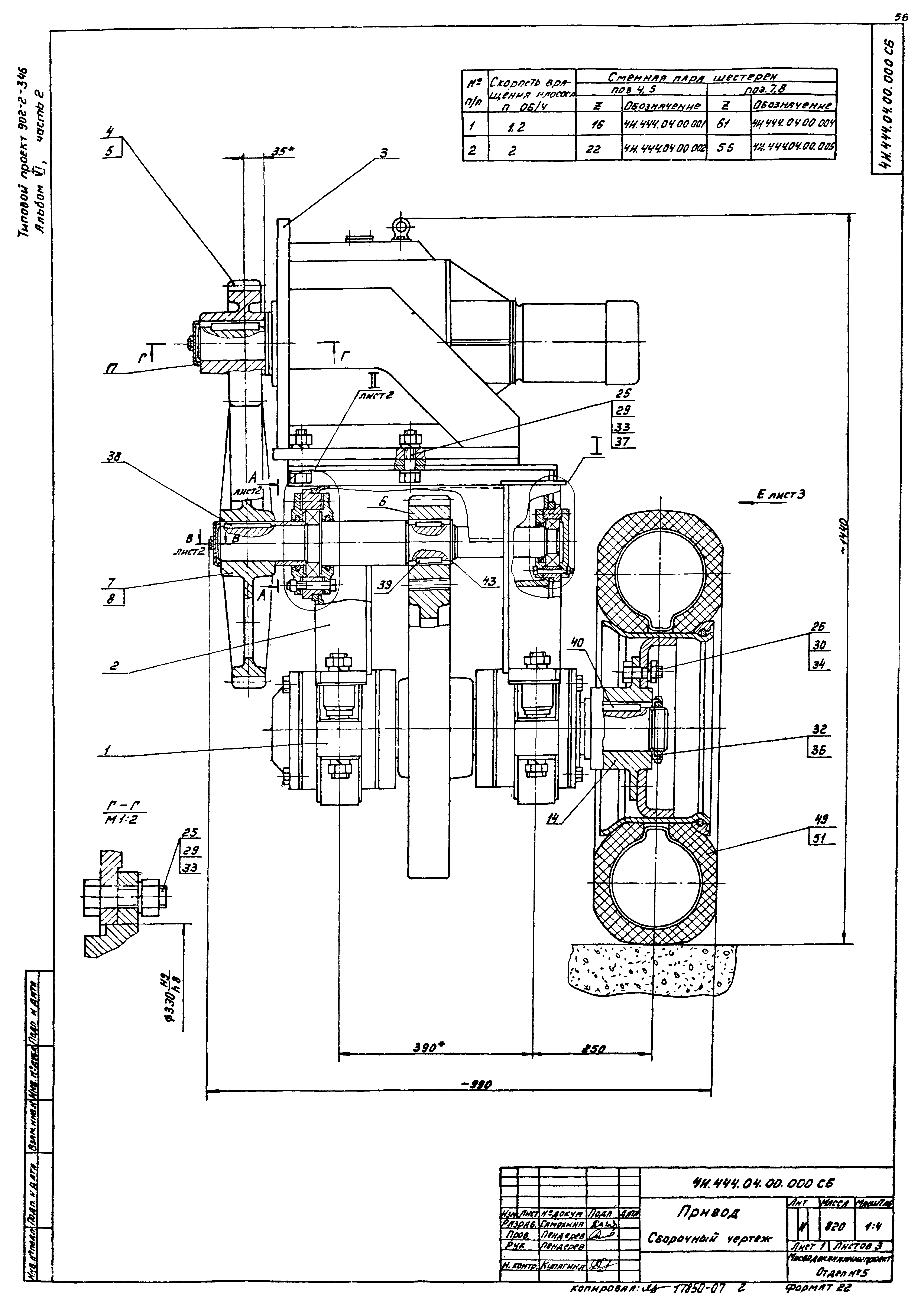
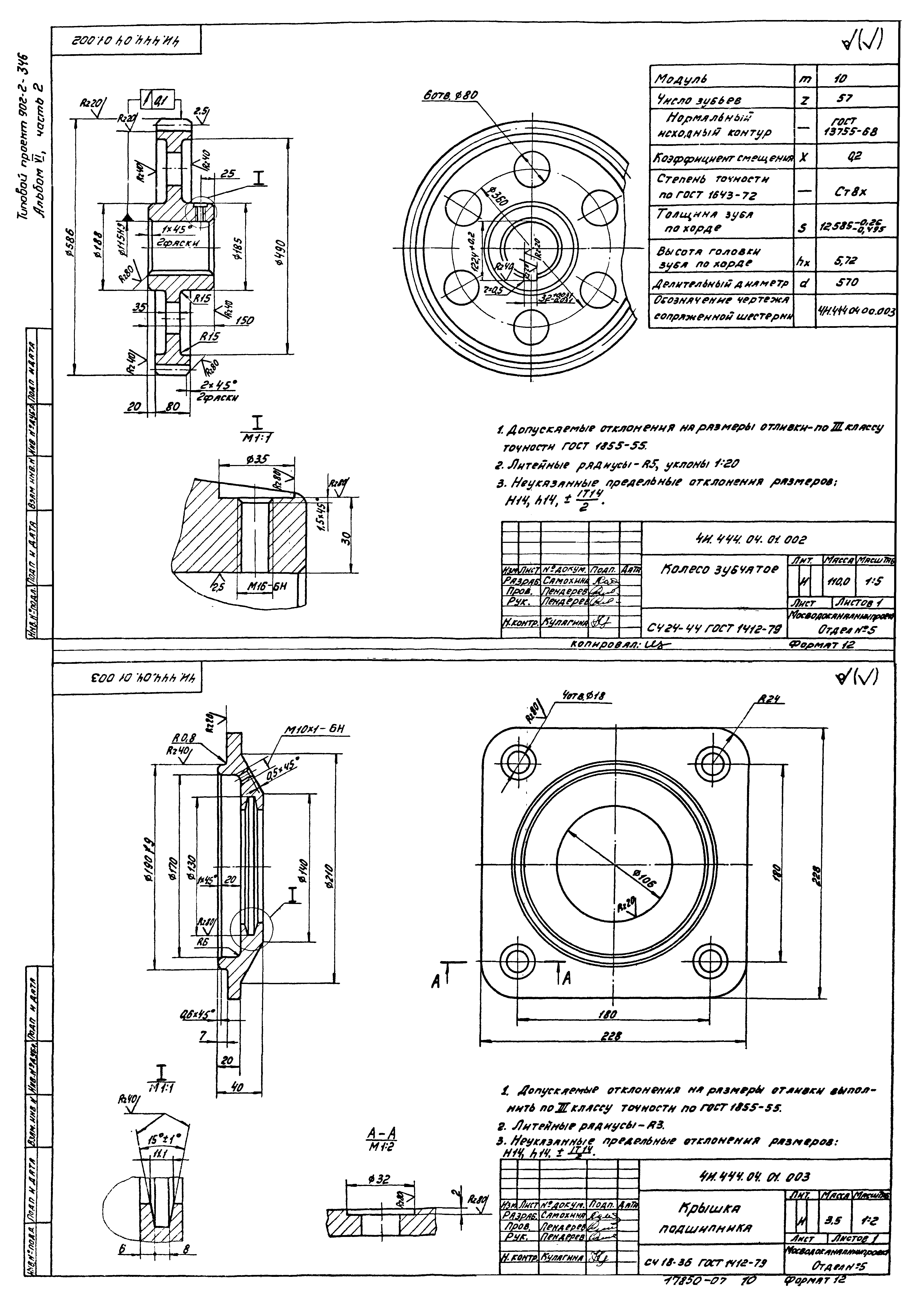
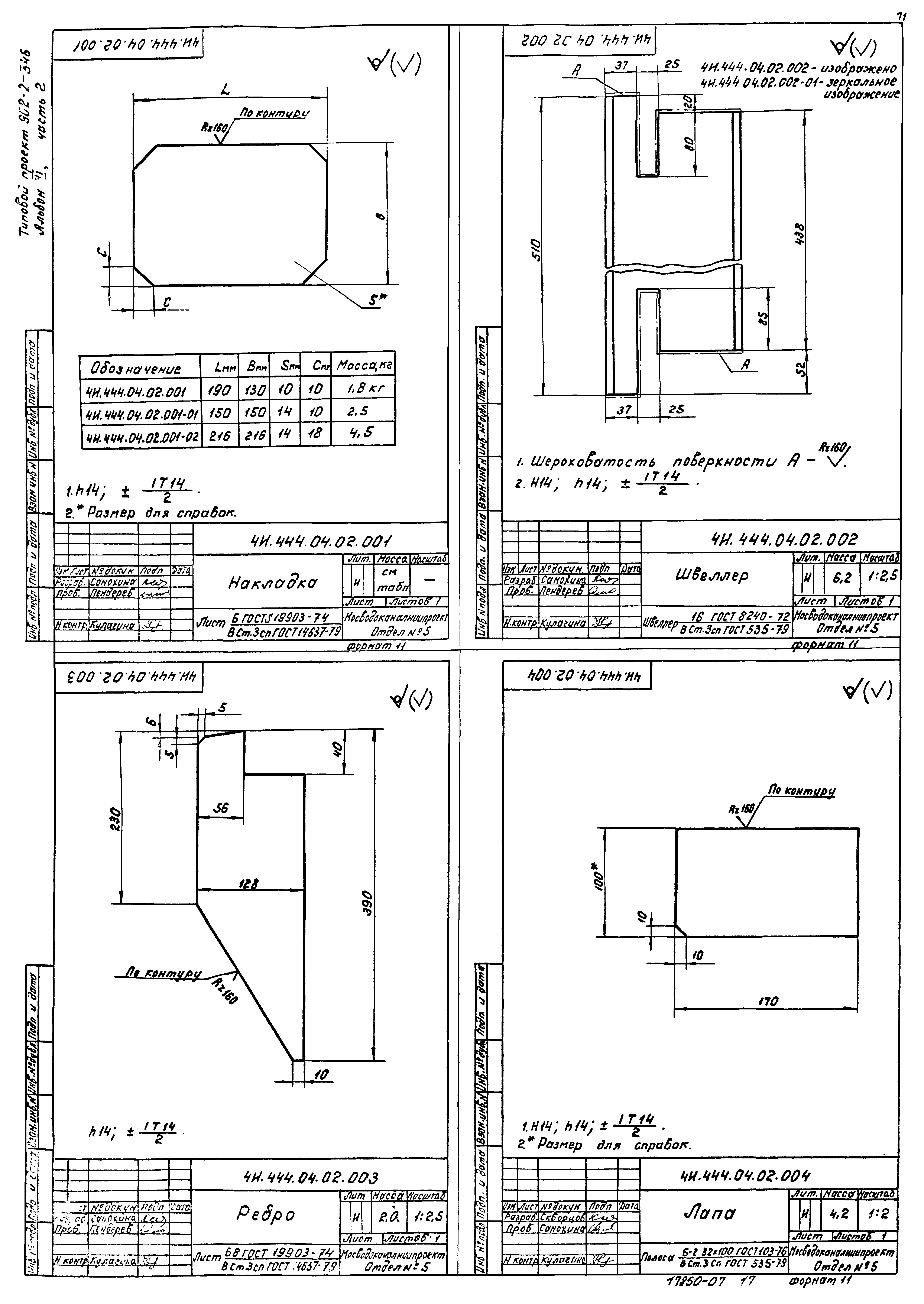
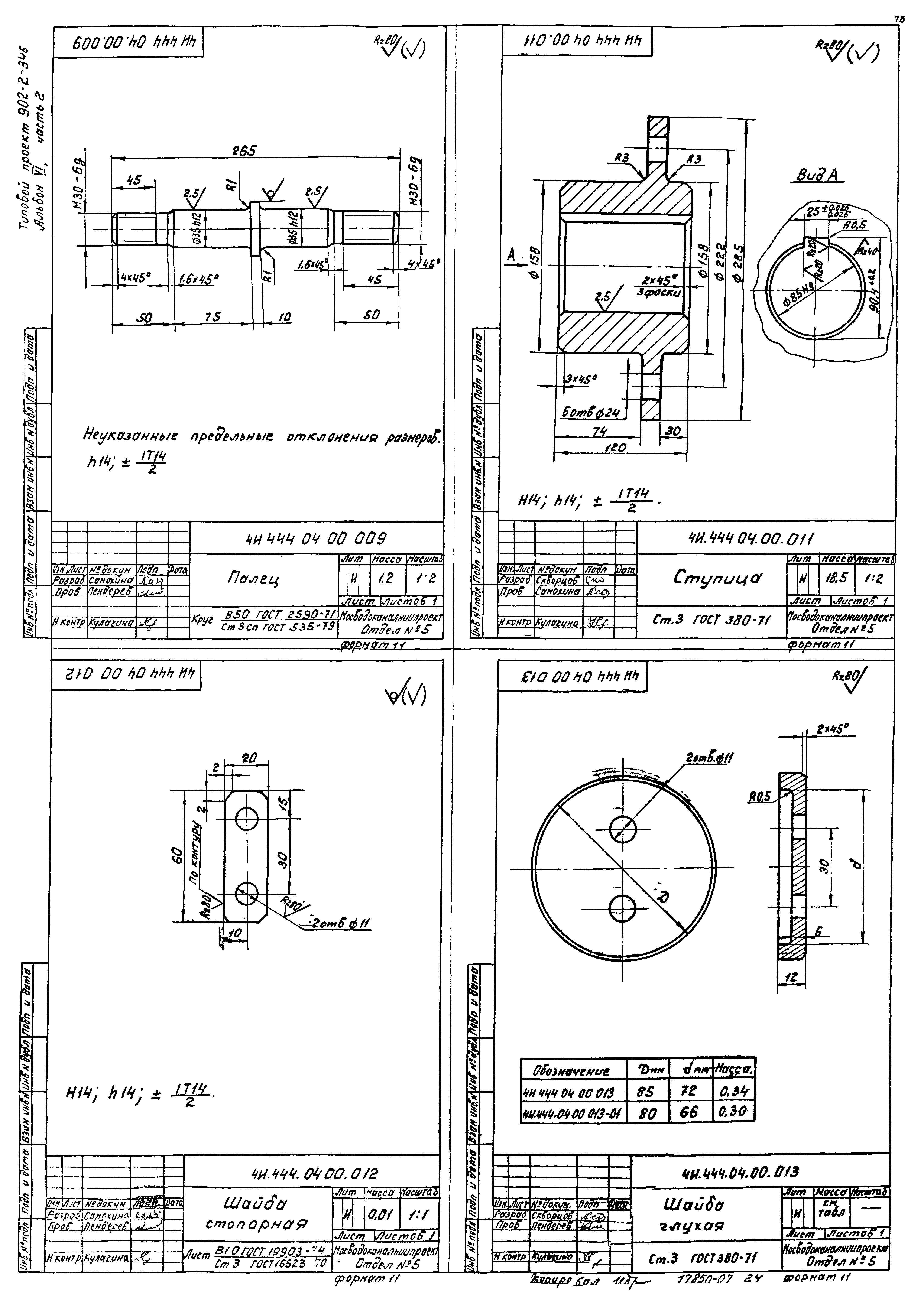
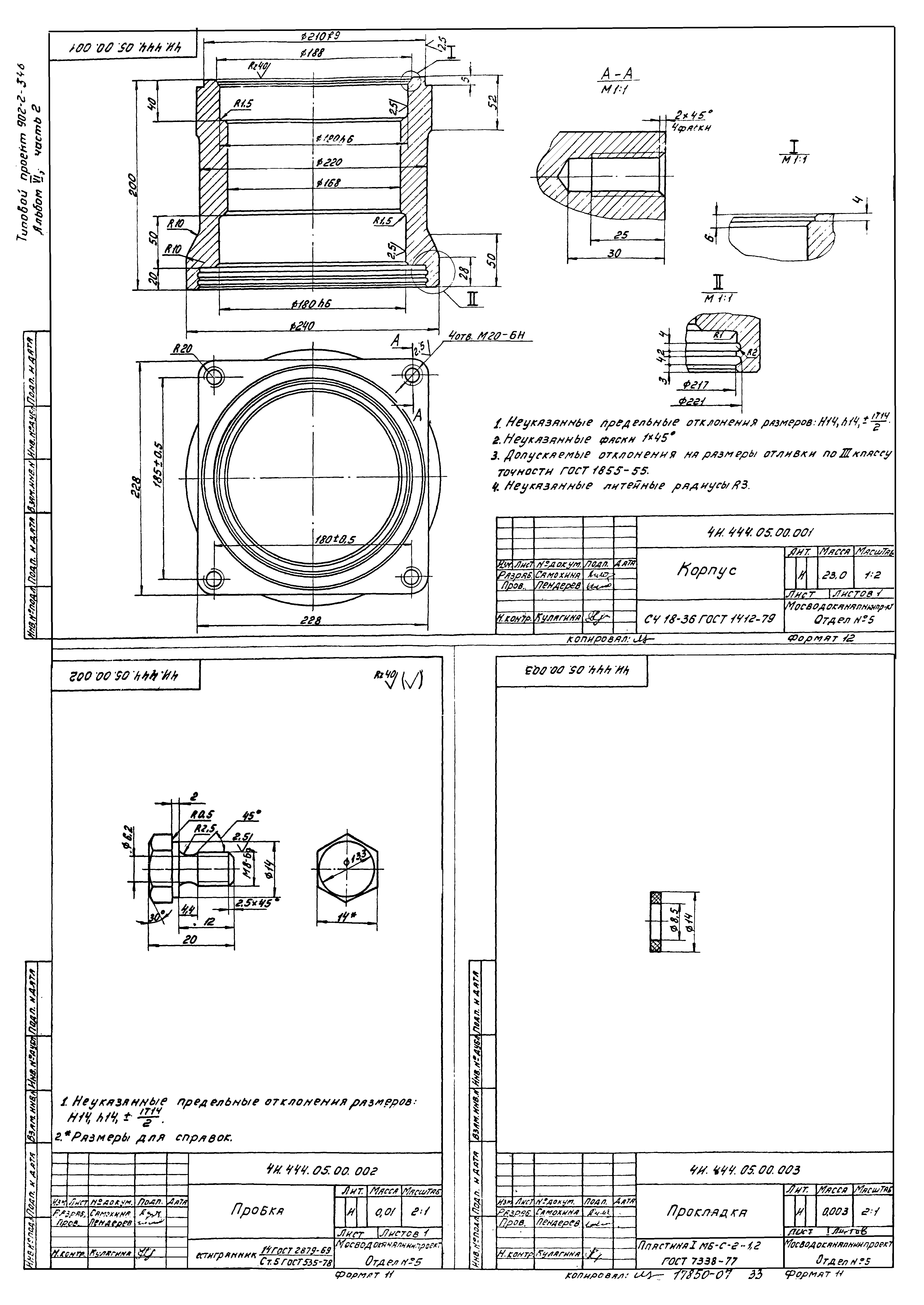
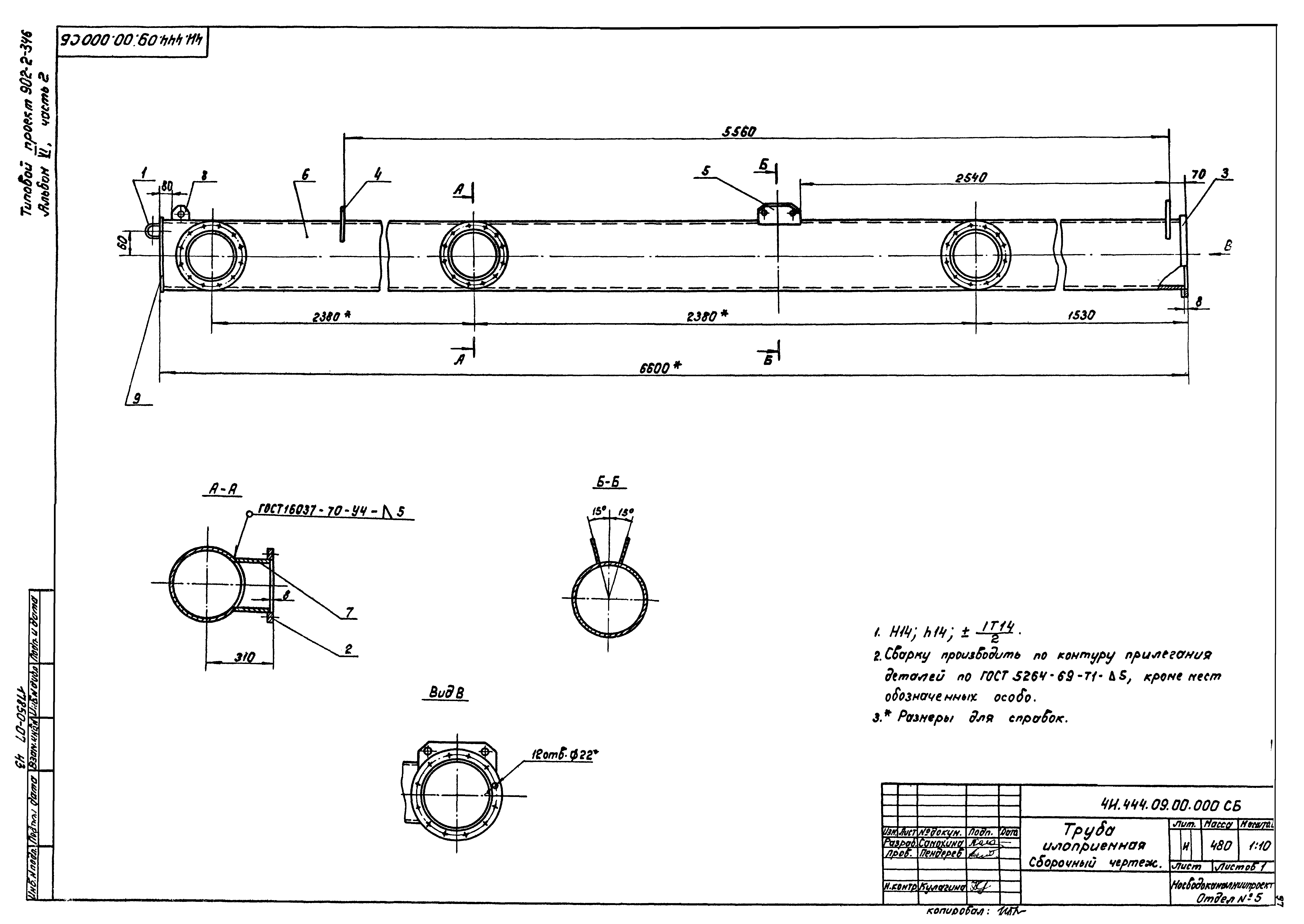
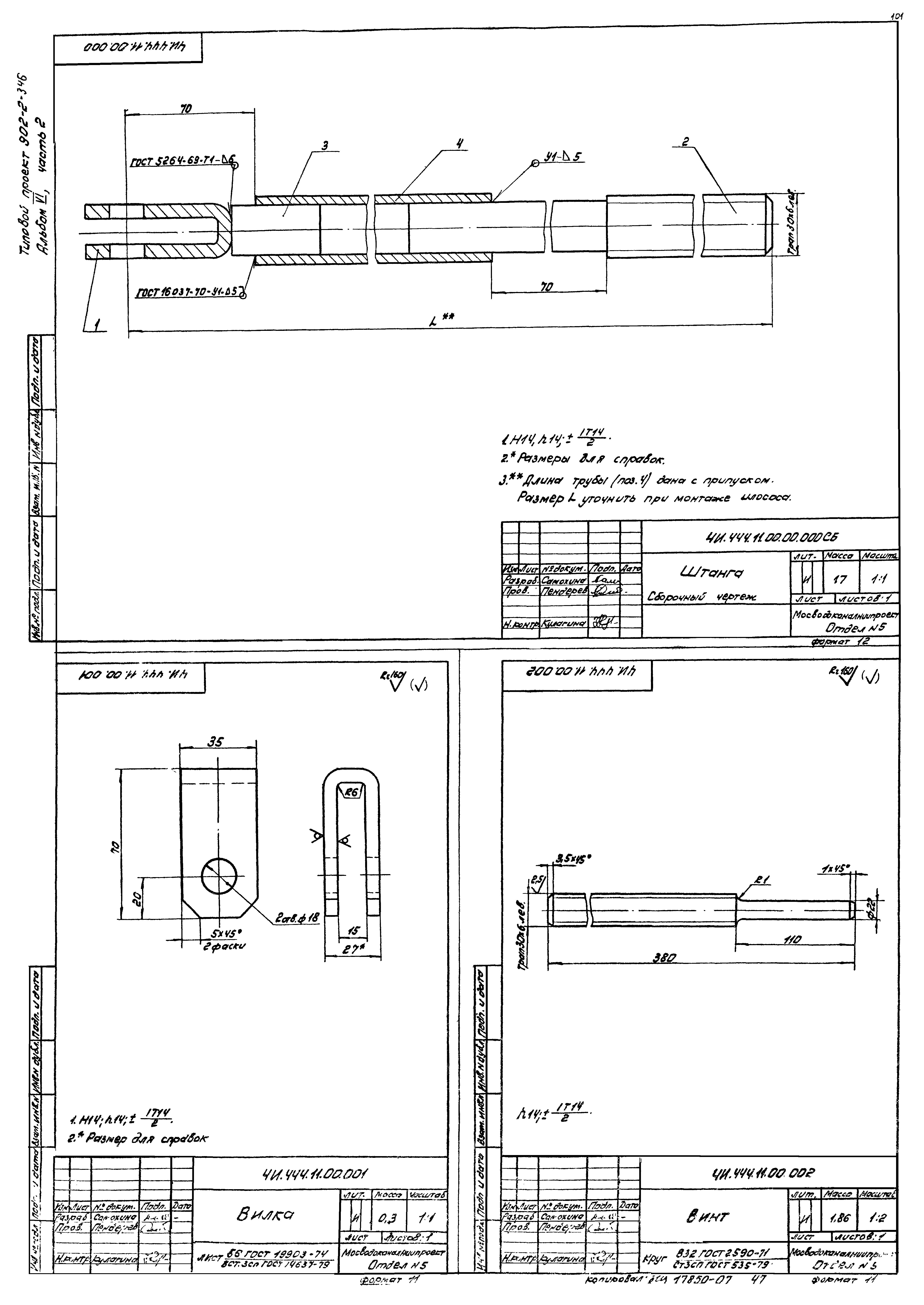
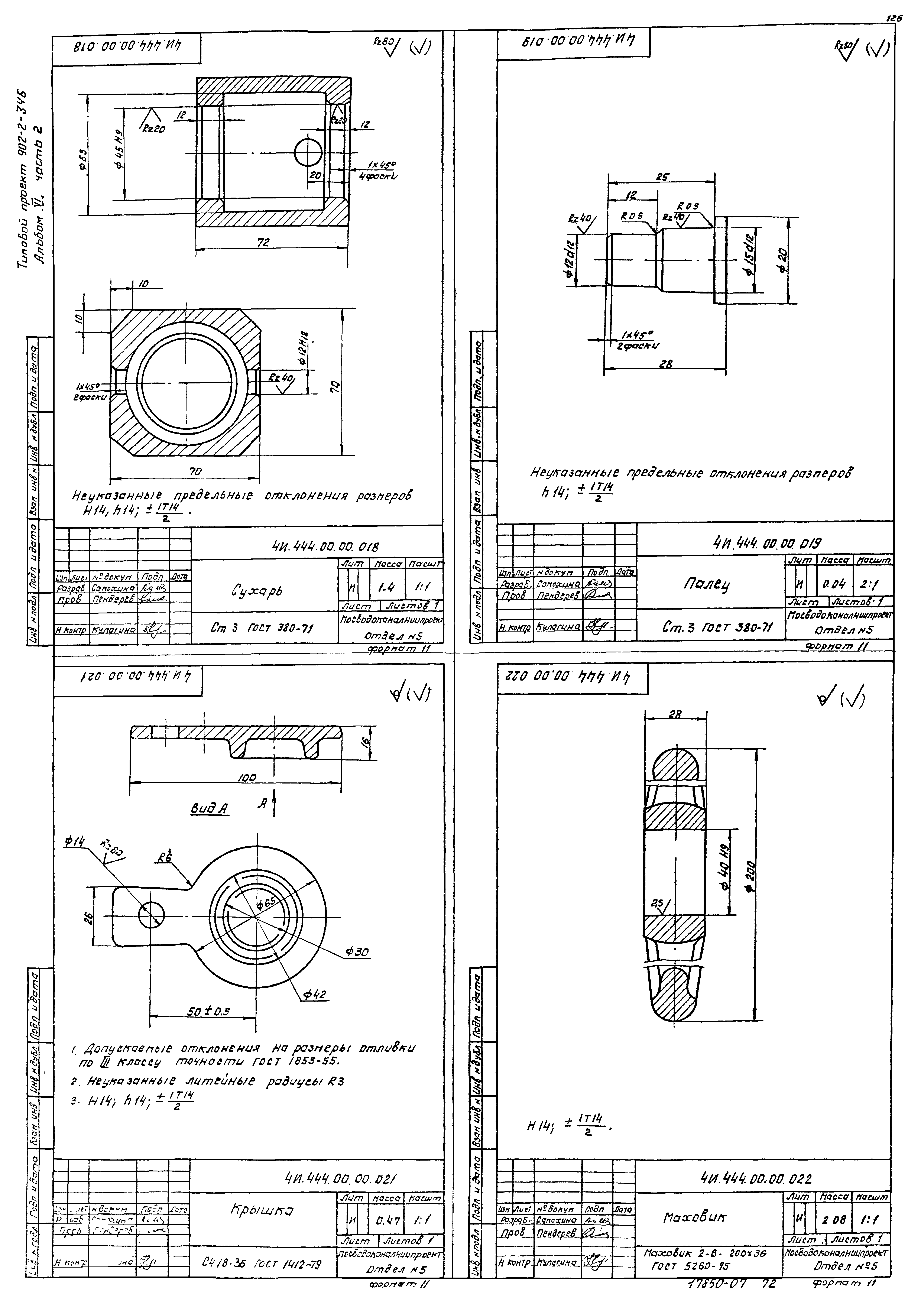
| Оглавление: | Часть 2 ТП 902-2-346 4И.444.04.00.000 СБ Привод. Сборочный чертеж. Лист 1 ТП 902-2-346 4И.444.04.00.000 СБ Привод. Сборочный чертеж. Лист 2 ТП 902-2-346 4И.444.04.00.000 СБ Привод. Сборочный чертеж. Лист 3 ТП 902-2-346 4И.444.04.00.000 Привод. Спецификация. Лист 1-4 ТП 902-2-346 4И.444.04.01.000 СБ Вал в сборе. Сборочный чертеж ТП 902-2-346 4И.444.04.01.000 Вал в сборе. Спецификация. Лист 1-2 ТП 902-2-346 4И.444.04.01.100 Траверса. Спецификация ТП 902-2-346 4И.444.04.01.101 Полоса верхняя ТП 902-2-346 4И.444.04.01.100 СБ Траверса. Сборочный чертеж ТП 902-2-346 4И.444.04.01.102 Стенка ТП 902-2-346 4И.444.04.01.103 Полоса ТП 902-2-346 4И.444.04.01.104 Обойма ТП 902-2-346 4И.444.04.01.001 Втулка ТП 902-2-346 4И.444.04.01.002 Колесо зубчатое ТП 902-2-346 4И.444.04.01.003 Крышка подшипника ТП 902-2-346 4И.444.04.01.004 Вал ТП 902-2-346 4И.444.04.01.005 Кольцо дистанционное ТП 902-2-346 4И.444.04.01.006 Прокладка ТП 902-2-346 4И.444.04.01.007 Кольцо уплотнительное ТП 902-2-346 4И.444.04.01.008 Полукольцо ТП 902-2-346 4И.444.04.01.009 Крышка подшипника ТП 902-2-346 4И.444.04.01.011 Крышка подшипника ТП 902-2-346 4И.444.04.02.000 Рама. Спецификация. Лист 1-2 ТП 902-2-346 4И.444.04.02.000 СБ Рама. Сборочный чертеж. Лист 1 ТП 902-2-346 4И.444.04.02.000 СБ Рама. Сборочный чертеж. Лист 2 ТП 902-2-346 4И.444.04.02.000 СБ Рама. Сборочный чертеж. Лист 3 ТП 902-2-346 4И.444.04.02.001 Накладка ТП 902-2-346 4И.444.04.02.002 Швеллер ТП 902-2-346 4И.444.04.02.003 Ребро ТП 902-2-346 4И.444.04.02.004 Лапа ТП 902-2-346 4И.444.04.03.000 СБ Кронштейн. Сборочный чертеж ТП 902-2-346 4И.444.04.03.000 Кронштейн. Спецификация ТП 902-2-346 4И.444.04.03.001 Фланец ТП 902-2-346 4И.444.04.03.002 Основание ТП 902-2-346 4И.444.04.03.003 Ребро ТП 902-2-346 4И.444.04.00.001 Шестеренка сменная ТП 902-2-346 4И.444.04.00.002 Шестеренка сменная ТП 902-2-346 4И.444.04.00.003 Шестеренка ТП 902-2-346 4И.444.04.00.004 Колесо зубчатое сменное ТП 902-2-346 4И.444.04.00.005 Колесо зубчатое сменное ТП 902-2-346 4И.444.04.00.006 Вал промежуточный ТП 902-2-346 4И.444.04.00.007 Прокладка ТП 902-2-346 4И.444.04.00.008 Стакан ТП 902-2-346 4И.444.04.00.009 Палец ТП 902-2-346 4И.444.04.00.011 Ступица ТП 902-2-346 4И.444.04.00.012 Шайба стопорная ТП 902-2-346 4И.444.04.00.013 Шайба глухая ТП 902-2-346 4И.444.04.00.014 Втулка дистанционная ТП 902-2-346 4И.444.04.00.015 Стакан ТП 902-2-346 4И.444.05.00.000 Шпиль. Спецификация. Лист 1-2 ТП 902-2-346 4И.444.05.00.000 СБ Шпиль. Сборочный чертеж ТП 902-2-346 4И.444.05.01.000 СБ Стойка. Сборочный чертеж ТП 902-2-346 4И.444.05.01.000 Стойка. Спецификация ТП 902-2-346 4И.444.05.01.001 Фланец ТП 902-2-346 4И.444.05.01.002 Бобышка ТП 902-2-346 4И.444.05.01.003 Кольцо накладное ТП 902-2-346 4И.444.05.02.000 СБ Крышка. Сборочный чертеж ТП 902-2-346 4И.444.05.02.000 Крышка. Спецификация ТП 902-2-346 4И.444.05.02.001 Пластина фасонная ТП 902-2-346 4И.444.05.02.002 Пластина ТП 902-2-346 4И.444.05.02.003 Щека ТП 902-2-346 4И.444.05.02.004 Козырек ТП 902-2-346 4И.444.05.03.000 Рама шарнирная. Спецификация ТП 902-2-346 4И.444.05.03.001 Бобышка ТП 902-2-346 4И.444.05.03.002 Косынка ТП 902-2-346 4И.444.05.03.000 СБ Рама шарнирная. Сборочный чертеж ТП 902-2-346 4И.444.05.00.001 Корпус ТП 902-2-346 4И.444.05.00.002 Пробка ТП 902-2-346 4И.444.05.00.003 Прокладка ТП 902-2-346 4И.444.05.00.004 Кольцо сферическое верхнее ТП 902-2-346 4И.444.05.00.005 Кольцо сферическое нижнее ТП 902-2-346 4И.444.05.00.006 Кольцо центрирующее ТП 902-2-346 4И.444.05.00.007 Палец ТП 902-2-346 4И.444.05.00.008 Ригель ТП 902-2-346 4И.444.05.00.009 Втулка переходная ТП 902-2-346 4И.444.06.00.000 СБ Козырек. Сборочный чертеж ТП 902-2-346 4И.444.06.00.000 Козырек. Спецификация ТП 902-2-346 4И.444.06.01.000 СБ Шарнир. Сборочный чертеж ТП 902-2-346 4И.444.06.01.000 Шарнир. Спецификация ТП 902-2-346 4И.444.06.01.001 Петля ТП 902-2-346 4И.444.06.01.002 Ось ТП 902-2-346 4И.444.06.01.003 Петля ТП 902-2-346 4И.444.06.00.001 Пластина ТП 902-2-346 4И.444.06.00.002 Ребро ТП 902-2-346 4И.444.07.00.000 СБ Хомут. Сборочный чертеж ТП 902-2-346 4И.444.07.00.000 Хомут. Спецификация ТП 902-2-346 4И.444.07.01.000 Полухомут. Спецификация ТП 902-2-346 4И.444.07.01.000 СБ Полухомут. Сборочный чертеж ТП 902-2-346 4И.444.07.01.001 Полукольцо ТП 902-2-346 4И.444.07.01.002 Пластина ТП 902-2-346 4И.444.07.00.001 Прокладка ТП 902-2-346 4И.444.08.00.000 Секция направляющего цилиндра. Спецификация ТП 902-2-346 4И.444.08.00.001 Обшивка ТП 902-2-346 4И.444.08.00.002 Пояс ТП 902-2-346 4И.444.08.00.000 СБ Секция направляющего цилиндра. Сборочный чертеж ТП 902-2-346 4И.444.08.00.003 Ребро ТП 902-2-346 4И.444.08.00.004 Распорка ТП 902-2-346 4И.444.08.00.005 Винт ТП 902-2-346 4И.444.09.00.000 Труба илоприемная. Спецификация ТП 902-2-346 4И.444.09.00.000 СБ Труба илоприемная. Сборочный чертеж ТП 902-2-346 4И.444.09.00.001 Петля ТП 902-2-346 4И.444.09.00.002 Фланец ТП 902-2-346 4И.444.09.00.003 Ребро ТП 902-2-346 4И.444.09.00.004 Ребро ТП 902-2-346 4И.444.09.00.005 Труба ТП 902-2-346 4И.444.09.00.006 Штуцер ТП 902-2-346 4И.444.10.00.000 СБ Стойка. Сборочный чертеж ТП 902-2-346 4И.444.10.00.000 Стойка. Спецификация ТП 902-2-346 4И.444.10.00.001 Вилка ТП 902-2-346 4И.444.10.00.002 Вставка ТП 902-2-346 4И.444.11.00.000 Штанга. Спецификация ТП 902-2-346 4И.444.11.00.000 СБ Штанга. Сборочный чертеж ТП 902-2-346 4И.444.11.00.001 Вилка ТП 902-2-346 4И.444.11.00.002 Винт ТП 902-2-346 4И.444.12.00.000 СБ Вилка. Сборочный чертеж ТП 902-2-346 4И.444.12.00.000 Вилка. Спецификация ТП 902-2-346 4И.444.12.00.001 Стенка ТП 902-2-346 4И.444.12.00.002 Стенка горизонтальная ТП 902-2-346 4И.444.12.00.003 Патрубок ТП 902-2-346 4И.444.12.00.004 Фланец ТП 902-2-346 4И.444.12.00.005 Ребро ТП 902-2-346 4И.444.13.00.000 СБ Вилка. Сборочный чертеж ТП 902-2-346 4И.444.13.00.000 Вилка. Спецификация ТП 902-2-346 4И.444.14.00.000 СБ Кронштейн. Сборочный чертеж ТП 902-2-346 4И.444.14.00.000 Кронштейн. Спецификация ТП 902-2-346 4И.444.14.00.001 Щека ТП 902-2-346 4И.444.15.00.000 СБ Сосун. Сборочный чертеж ТП 902-2-346 4И.444.15.01.000 СБ Корпус сосуна. Сборочный чертеж ТП 902-2-346 4И.444.15.00.000 Сосун. Спецификация ТП 902-2-346 4И.444.15.01.000 Корпус сосуна. Спецификация ТП 902-2-346 4И.444.15.01.001 Стенка ТП 902-2-346 4И.444.15.01.002 Днище ТП 902-2-346 4И.444.15.01.003 Лист верхний ТП 902-2-346 4И.444.15.00.001 Накладка ТП 902-2-346 4И.444.15.00.002 Фартук ТП 902-2-346 4И.444.16.00.000 СБ Кожух сменных шестерен. Сборочный чертеж ТП 902-2-346 4И.444.16.00.000 Кожух сменных шестерен. Спецификация ТП 902-2-346 4И.444.16.00.001 Лист ТП 902-2-346 4И.444.16.00.002 Кожух ТП 902-2-346 4И.444.16.00.003 Ушко ТП 902-2-346 4И.444.17.00.000 СБ Кожух колеса. Сборочный чертеж ТП 902-2-346 4И.444.17.00.000 Кожух колеса. Спецификация ТП 902-2-346 4И.444.17.00.001 Лист ТП 902-2-346 4И.444.17.00.002 Кожух ТП 902-2-346 4И.444.17.00.003 Ушко ТП 902-2-346 4И.444.18.00.000 СБ Лестница. Сборочный чертеж ТП 902-2-346 4И.444.18.00.000 Лестница. Спецификация ТП 902-2-346 4И.444.19.00.000 Стойка. Спецификация ТП 902-2-346 4И.444.19.00.000 СБ Стойка. Сборочный чертеж ТП 902-2-346 4И.444.19.00.001 Ножка ТП 902-2-346 4И.444.19.00.002 Распорка ТП 902-2-346 4И.444.20.00.000 СБ Тройник. Сборочный чертеж ТП 902-2-346 4И.444.20.00.000 Тройник. Спецификация ТП 902-2-346 4И.444.20.00.001 Ствол ТП 902-2-346 4И.444.20.00.002 Штуцер ТП 902-2-346 4И.444.21.00.000 СБ Ключ. Сборочный чертеж ТП 902-2-346 4И.444.21.00.000 Ключ. Спецификация ТП 902-2-346 4И.444.21.00.001 Ручка ТП 902-2-346 4И.444.21.00.002 Скоба ТП 902-2-346 4И.444.22.00.000 Труба стопорная. Спецификация ТП 902-2-346 4И.444.22.00.000 СБ Труба стопорная. Сборочный чертеж ТП 902-2-346 4И.444.22.00.001 Патрубок ТП 902-2-346 4И.444.22.00.002 Палец ТП 902-2-346 4И.444.22.00.003 Кольцо ТП 902-2-346 4И.444.23.00.000 СБ Штанга полая. Сборочный чертеж ТП 902-2-346 4И.444.23.00.000 Штанга полая. Спецификация ТП 902-2-346 4И.444.24.00.000 СБ Крышка. Сборочный чертеж ТП 902-2-346 4И.444.24.00.000 Крышка. Спецификация ТП 902-2-346 4И.444.24.00.001 Фланец ТП 902-2-346 4И.444.25.00.000 СБ Заслонка. Сборочный чертеж ТП 902-2-346 4И.444.25.00.000 Заслонка. Спецификация ТП 902-2-346 4И.444.25.00.001 Втулка ТП 902-2-346 4И.444.25.00.002 Стенка ТП 902-2-346 4И.444.26.00.000 СБ Отвод. Сборочный чертеж ТП 902-2-346 4И.444.26.00.001 Патрубок ТП 902-2-346 4И.444.00.00.001 Тяга ТП 902-2-346 4И.444.00.00.002 Палец ТП 902-2-346 4И.444.00.00.003 Уплотнение ТП 902-2-346 4И.444.00.00.004 Уплотнение ТП 902-2-346 4И.444.00.00.005 Прокладка ТП 902-2-346 4И.444.00.00.006 Поручень ТП 902-2-346 4И.444.00.00.007 Стойка ТП 902-2-346 4И.444.00.00.008 Труба ТП 902-2-346 4И.444.00.00.009 Стойка ТП 902-2-346 4И.444.00.00.011 Болт упорный ТП 902-2-346 4И.444.00.00.012 Ригель ТП 902-2-346 4И.444.00.00.013 Палец ТП 902-2-346 4И.444.00.00.014 Прокладка регулировочная ТП 902-2-346 4И.444.00.00.015 Наконечник ТП 902-2-346 4И.444.00.00.016 Хомут направляющий ТП 902-2-346 4И.444.00.00.017 Гайка ходовая ТП 902-2-346 4И.444.00.00.018 Сухарь ТП 902-2-346 4И.444.00.00.019 Палец ТП 902-2-346 4И.444.00.00.021 Крышка ТП 902-2-346 4И.444.00.00.022 Маховик ТП 902-2-346 4И.444.00.00.023 Скоба ТП 902-2-346 4И.444.00.00.024 Подвеска ТП 902-2-346 4И.444.00.00.025 Муфта стяжная ТП 902-2-346 4И.444.00.00.026 Накладка ТП 902-2-346 4И.444.00.00.027 Скребок ТП 902-2-346 4И.444.00.00.028 Шайба ТП 902-2-346 4И.444.00.00.029 Кольцо уплотнительное ТП 902-2-346 4И.444.00.00.031 Гайка ТП 902-2-346 4И.444.00.00.032 Кронштейн ТП 902-2-346 4И.444.00.00.033 Ролик ТП 902-2-346 4И.444.00.00.034 Ось ТП 902-2-346 4И.444.00.00.035 Накладка ТП 902-2-346 4И.444.00.00.036 Вилка ТП 902-2-346 4И.444.00.00.037 Штанга ТП 902-2-346 4И.444.00.00.000ТУ Илосос ИВР-18. Технические условия |
| Разработан: | МосводоканалНИИпроект |
| Утверждён: | 01.10.1981 МосводоканалНИИпроект (203) |












































































