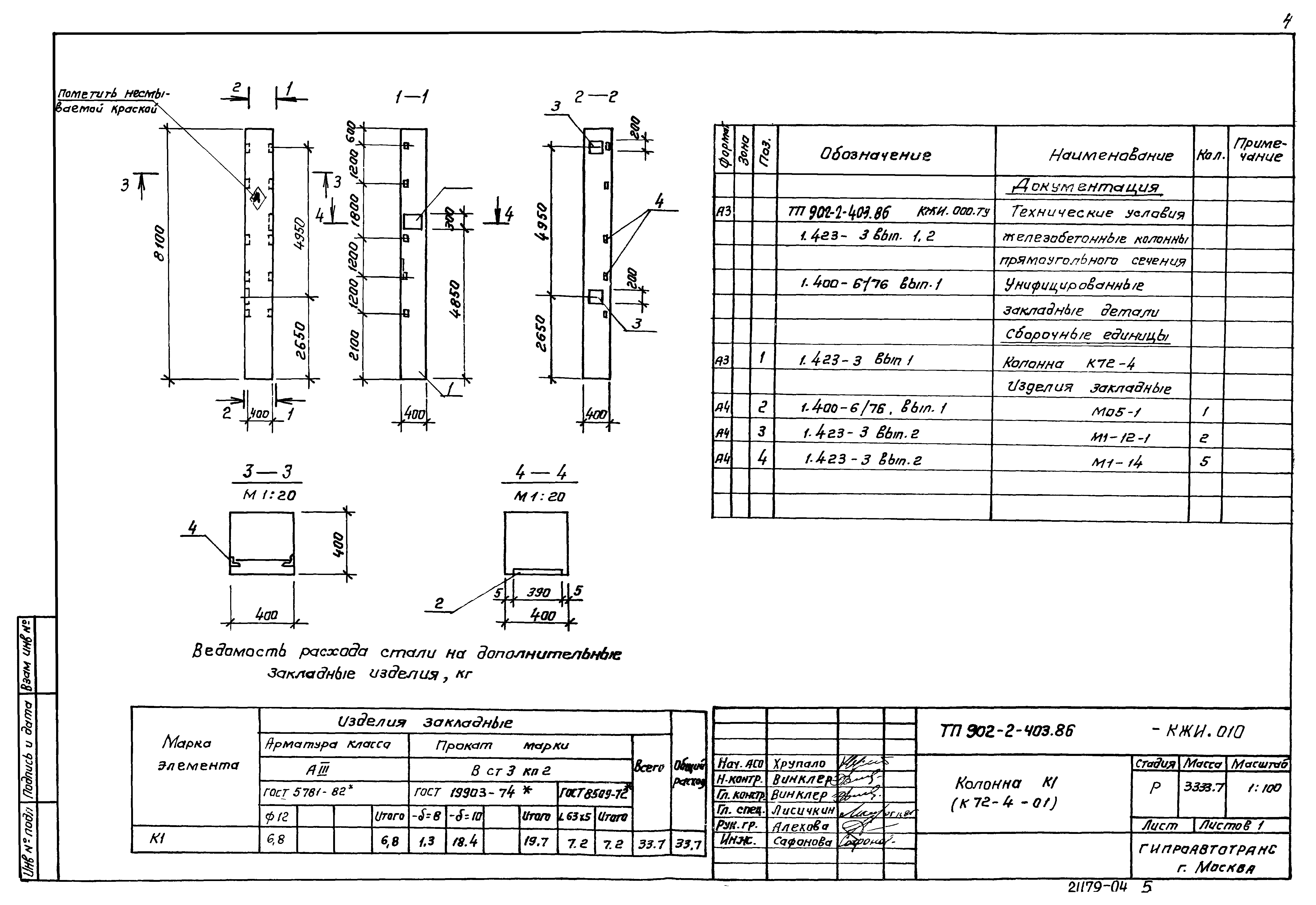
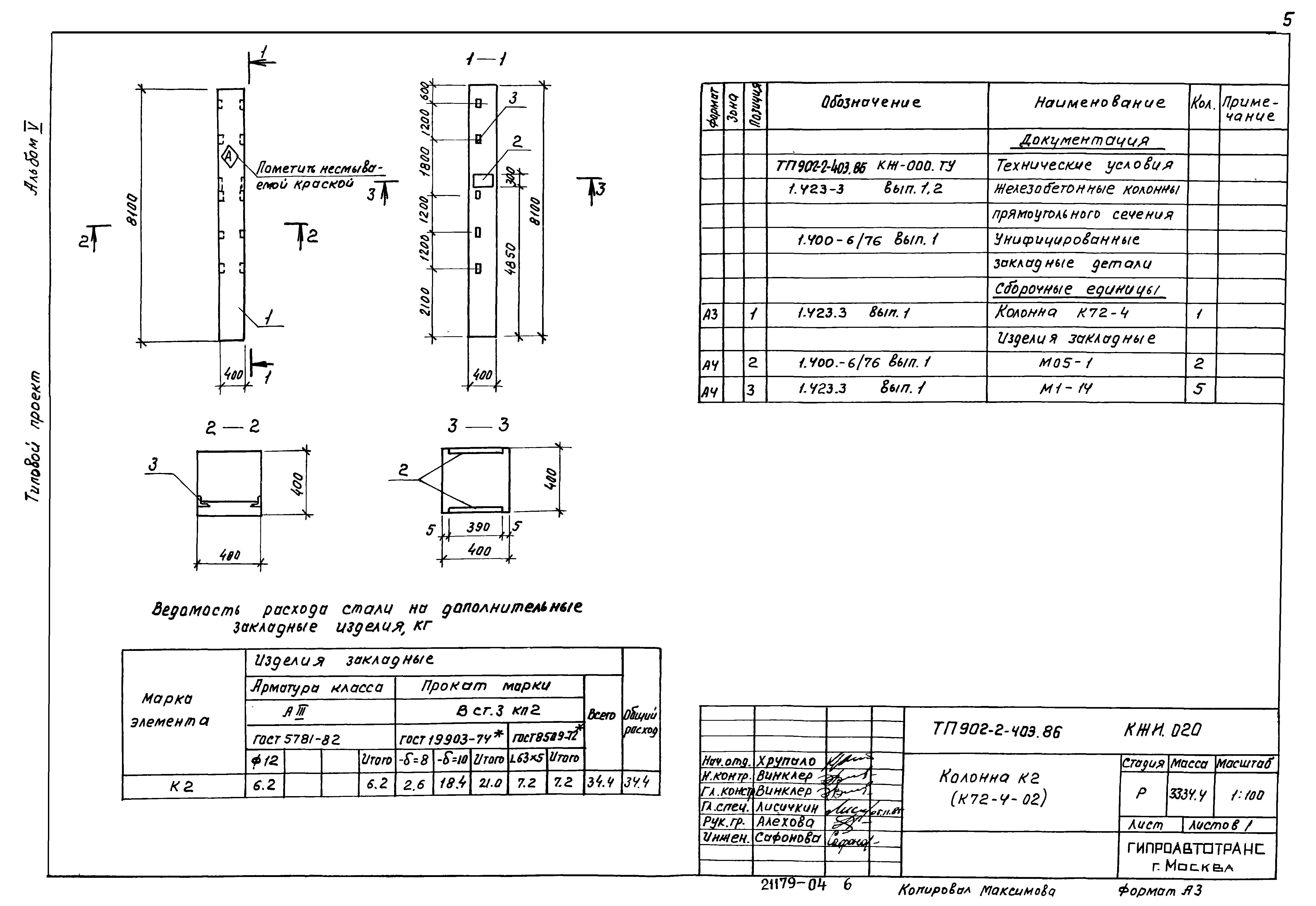
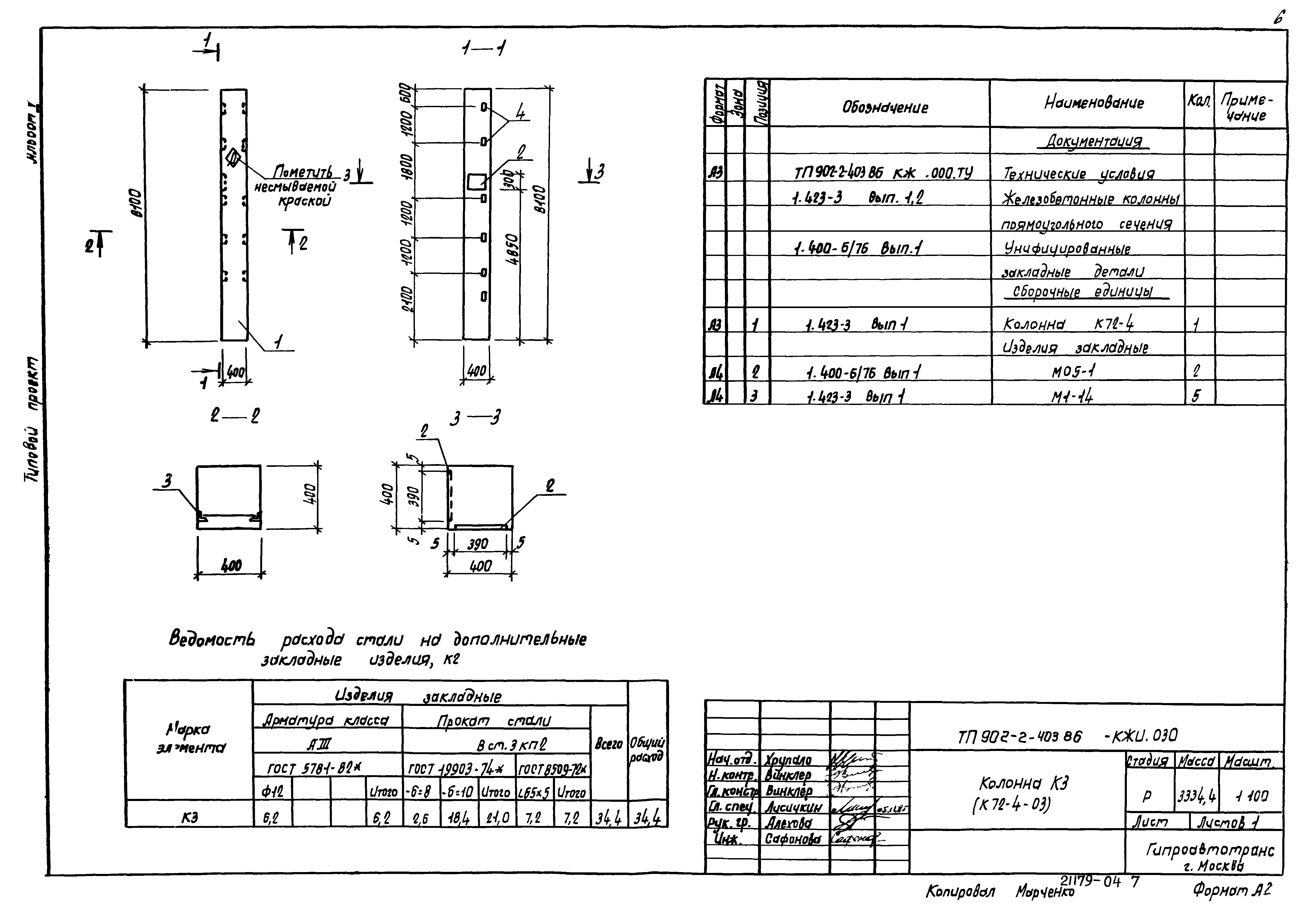
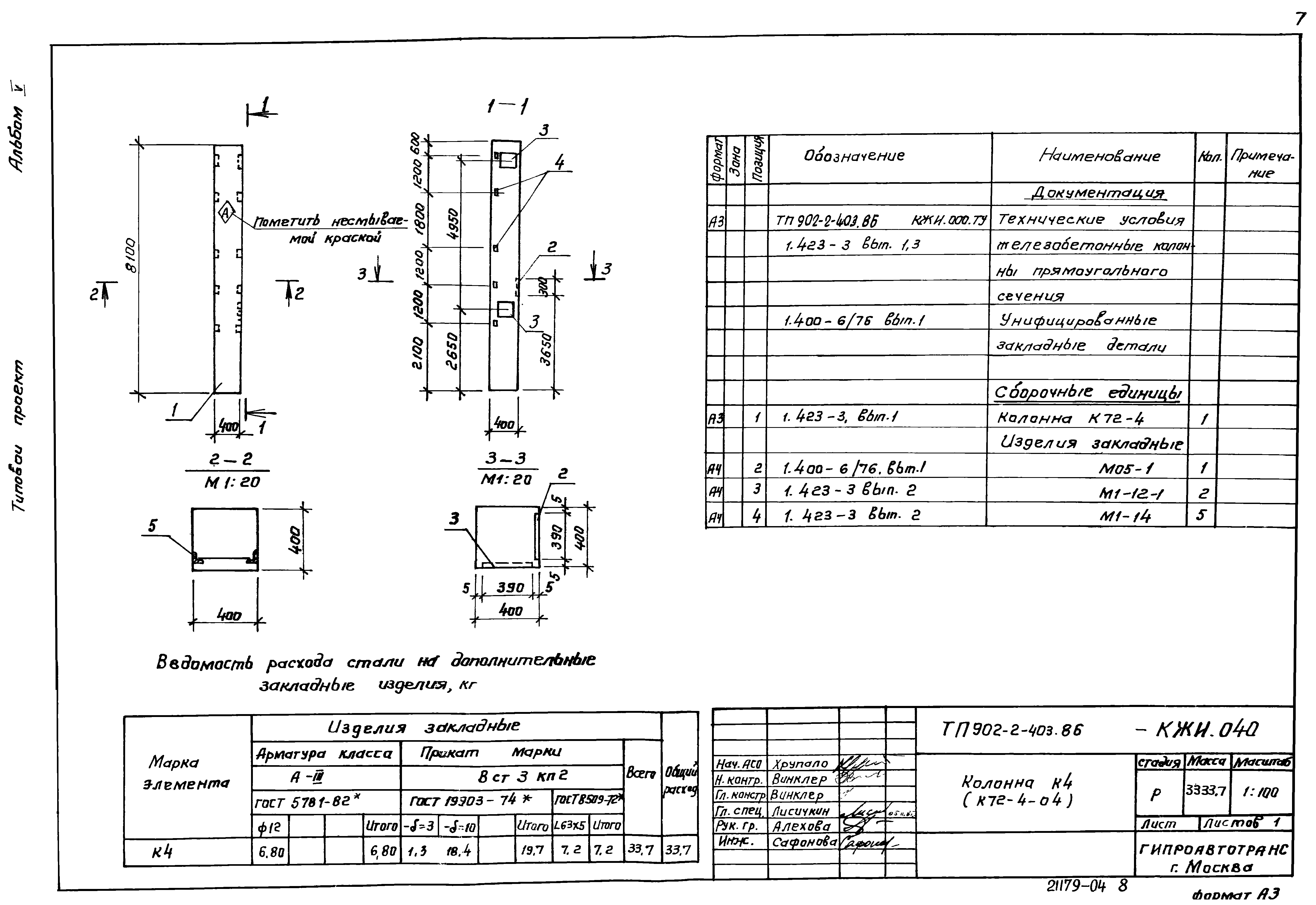
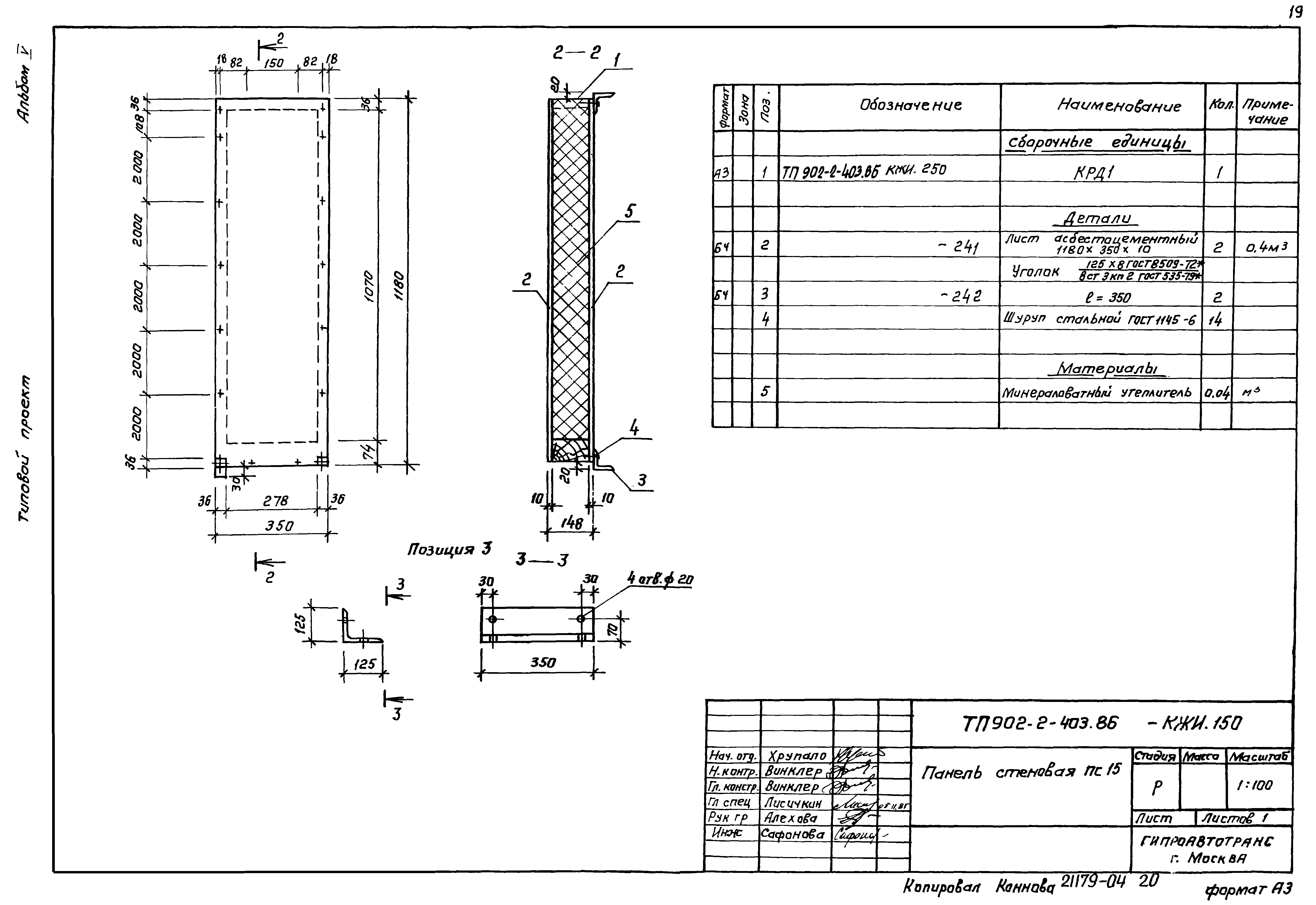
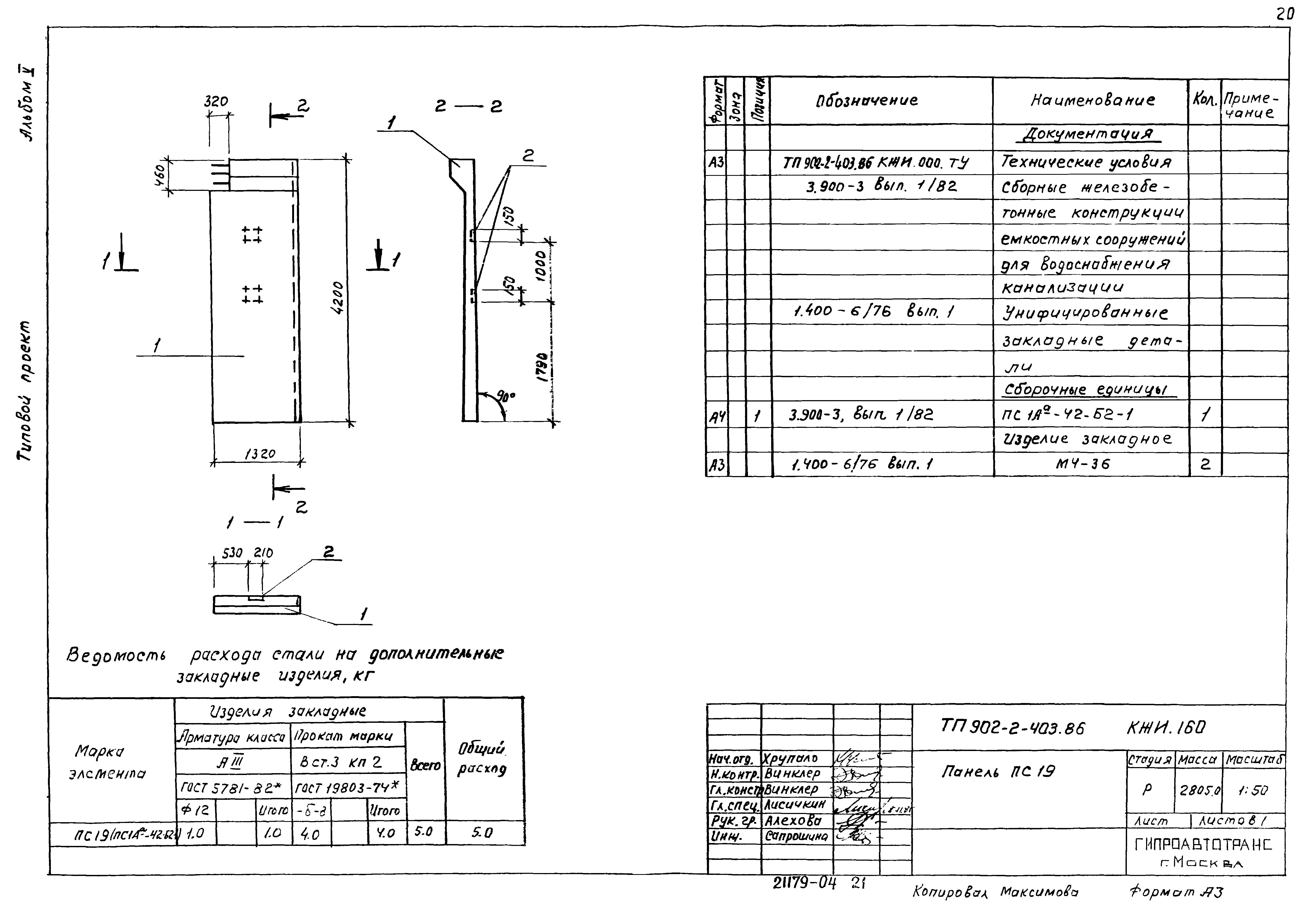
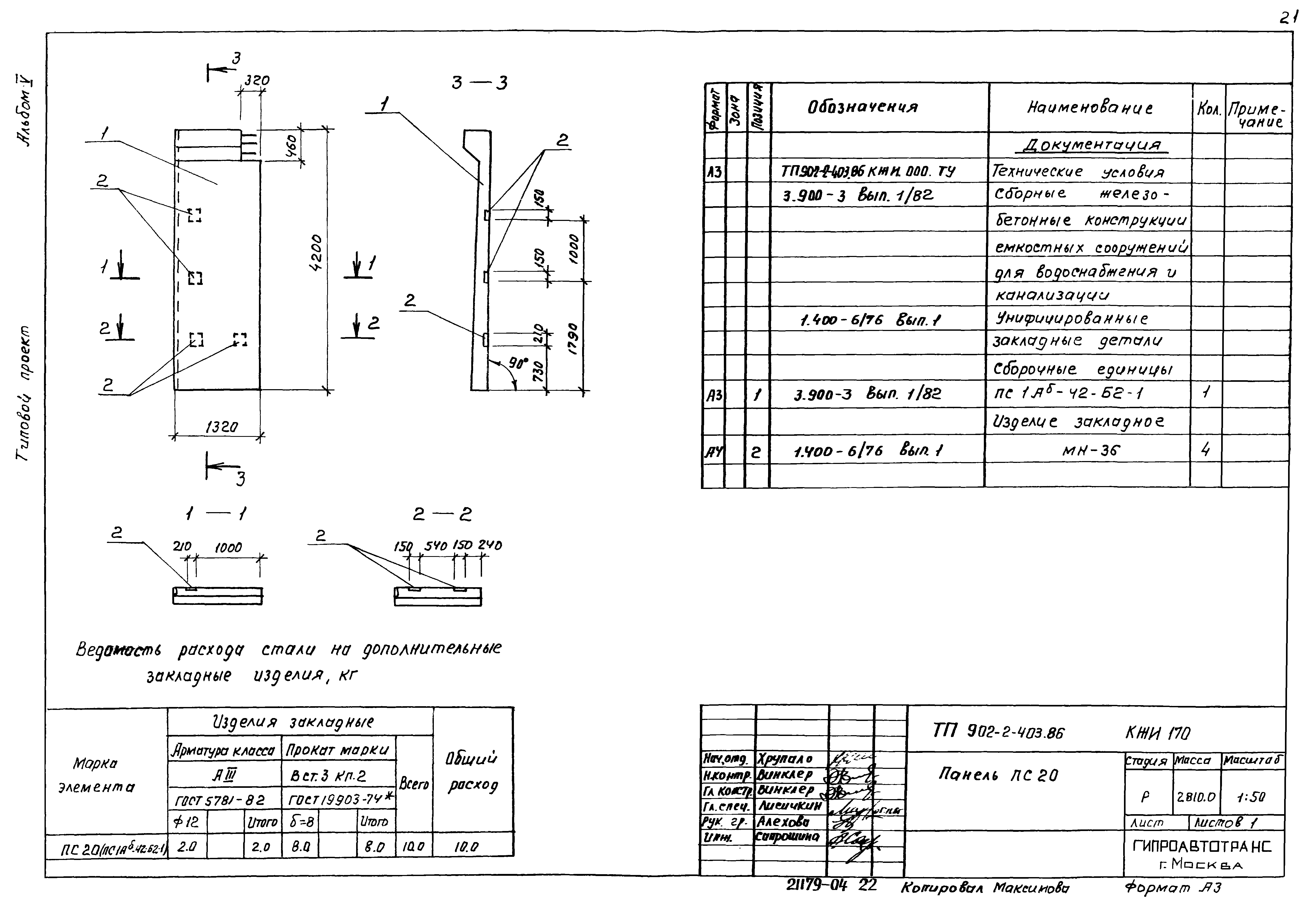
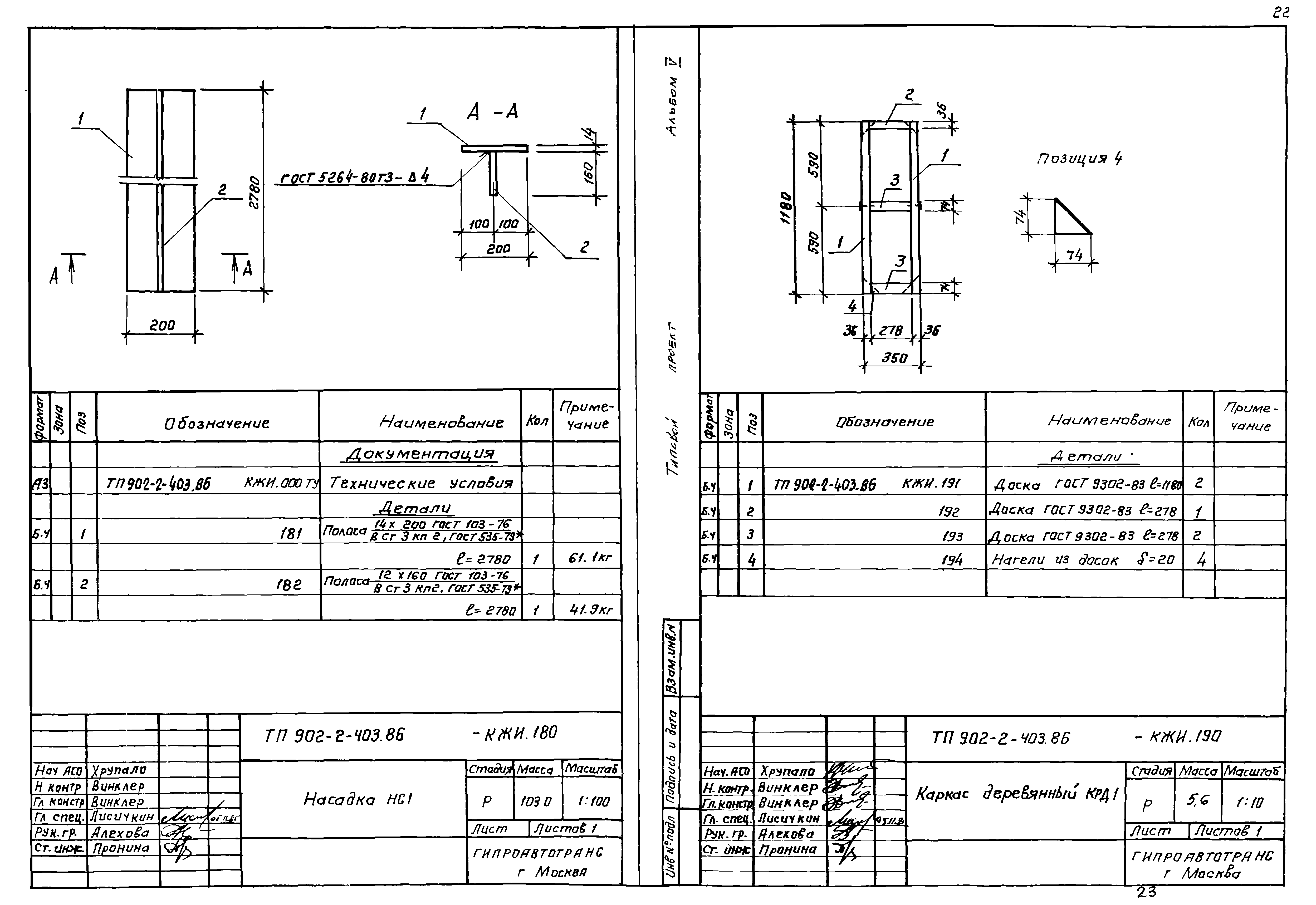
Скачать Типовой проект 902-2-403.86 Альбом V. Строительные изделияДата актуализации: 01.01.2021
|
| Обозначение: | Типовой проект 902-2-403.86 |
| Обозначение англ: | 902-2-403.86 |
| Статус: | заменен |
| Название рус.: | Альбом V. Строительные изделия |
| Дата добавления в базу: | 01.09.2013 |
| Дата актуализации: | 01.01.2021 |
| Дата введения: | 27.03.1985 |
| Дата окончания срока действия: | 01.10.1987 |
| Разработан: | Гипроавтотранс |
| Утверждён: | 27.03.1985 Минавтотранс РСФСР (Russian Federation Minavtotrans 55) |
| Чем заменён: |






























