Скачать Типовой проект 903-1-174 Альбом XIV. Монтажные чертежи автоматизацииДата актуализации: 01.01.2021
|
| Обозначение: | Типовой проект 903-1-174 |
| Обозначение англ: | 903-1-174 |
| Статус: | заменен |
| Название рус.: | Альбом XIV. Монтажные чертежи автоматизации |
| Дата добавления в базу: | 01.09.2013 |
| Дата актуализации: | 01.01.2021 |
| Дата введения: | 20.11.1979 |
| Дата окончания срока действия: | 01.11.1987 |
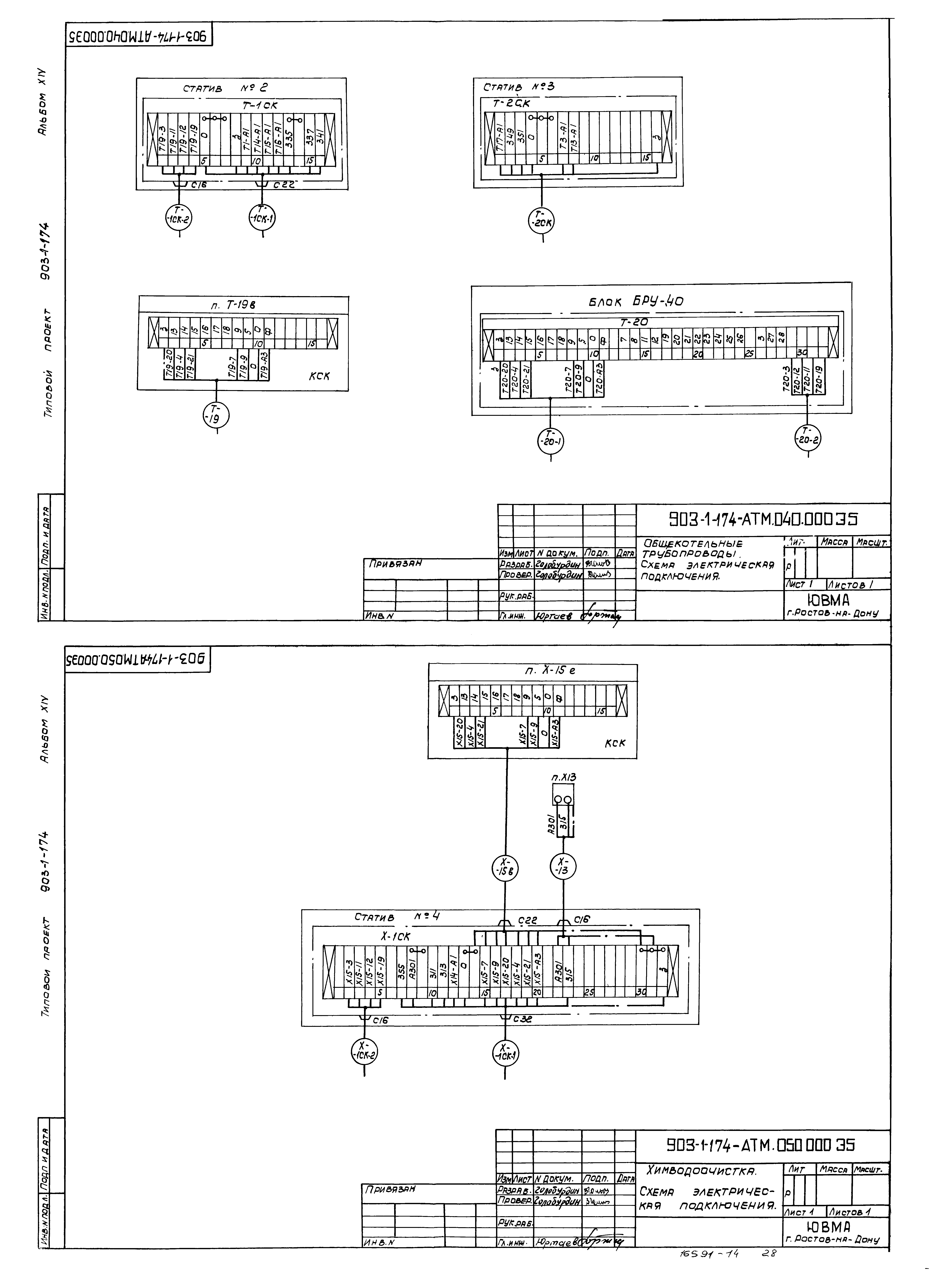
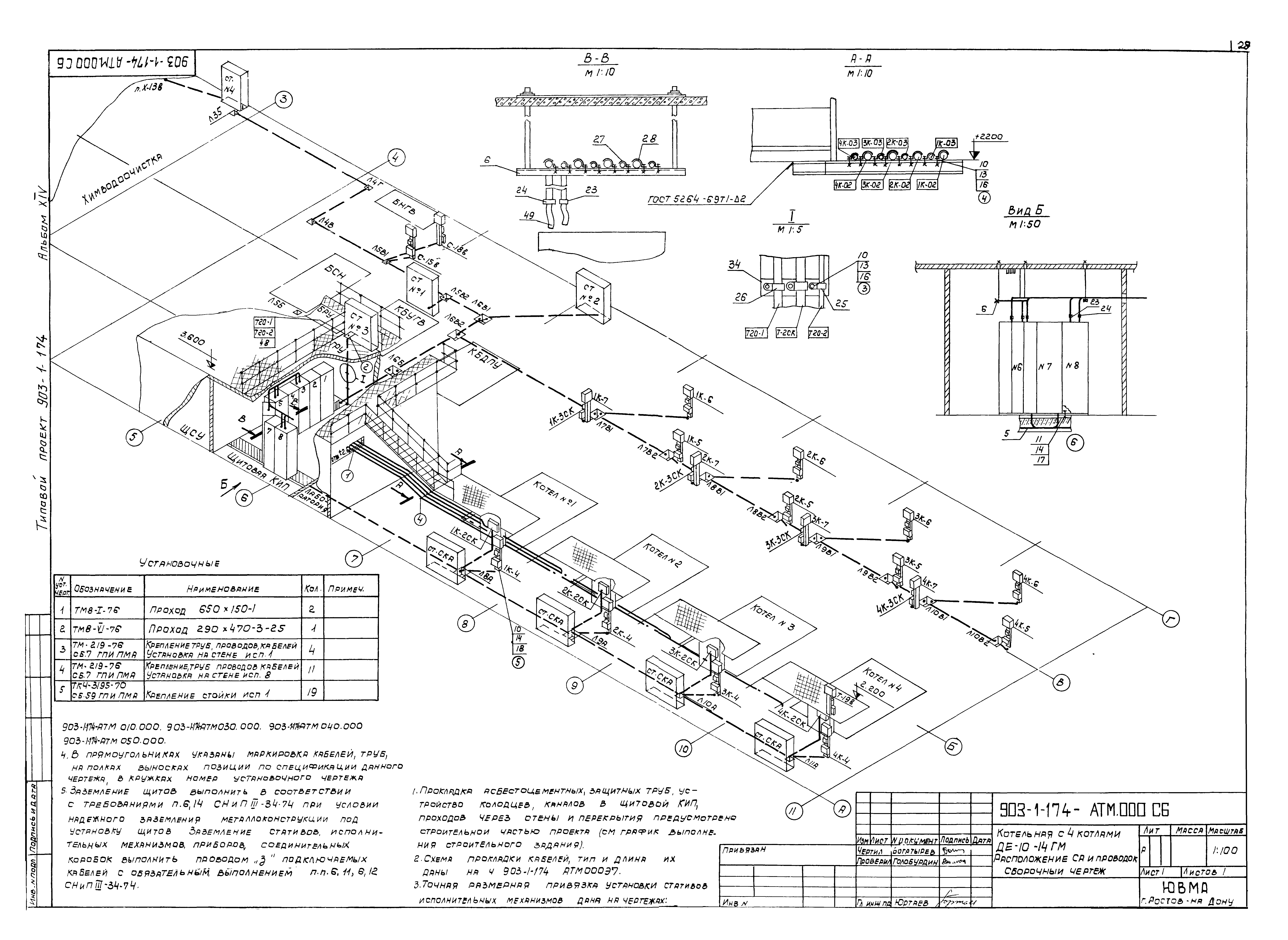
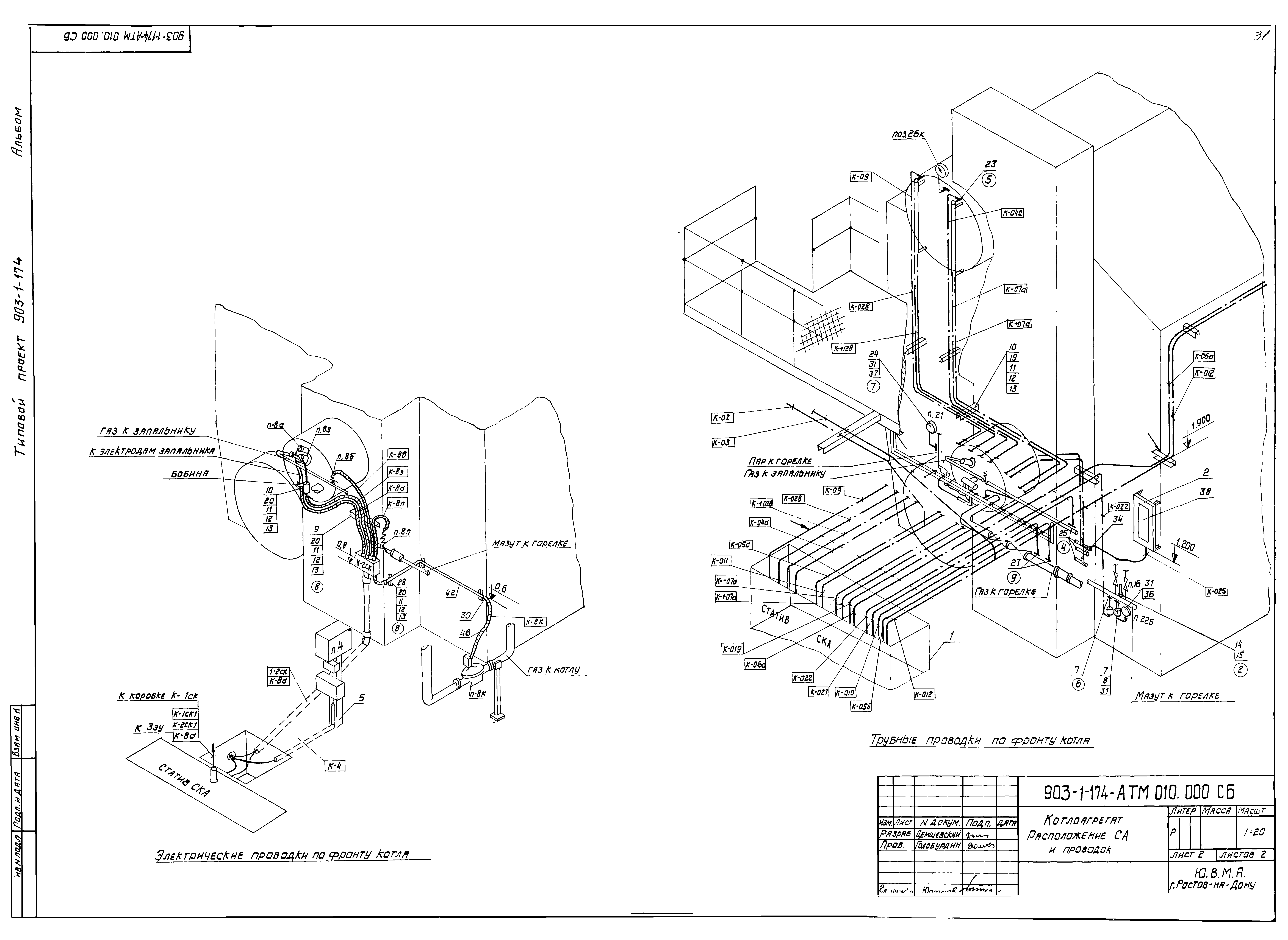
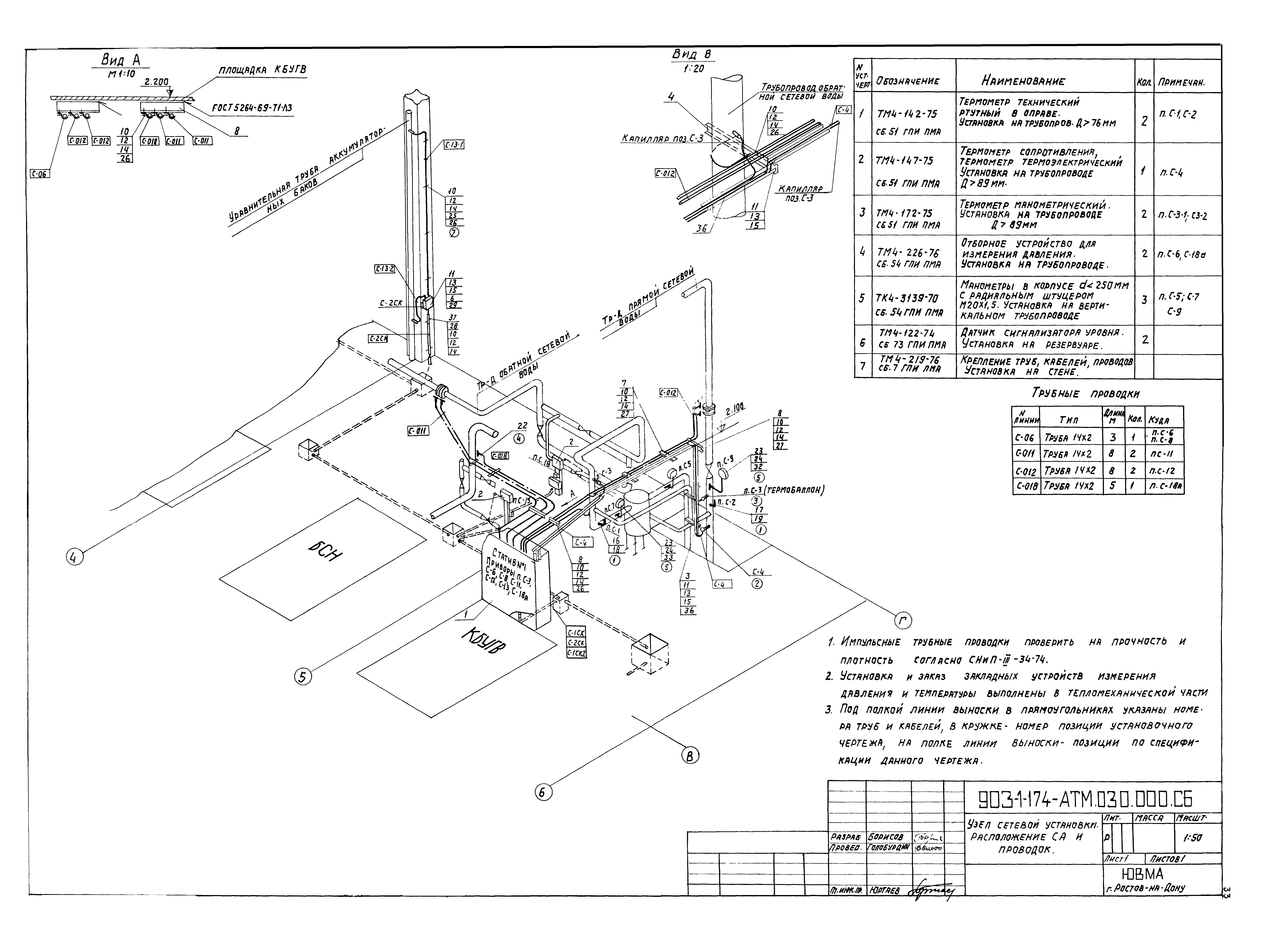
| Оглавление: | ТП 903-1-174-АТМ Титульный лист ТП 903-1-174-АТМ Общие данные ТП 903-1-174-АТМ000ПЗ Пояснительная записка ТП 903-1-174-АТМ00037 Схема расположения СА и проводок ТП 903-1-174-АТМ00035 Схема подключения кабелей ТП 903-1-174-АТМ000 Котельная с 4 котлами ДЕ-10-14ГМ. Расположение СА и проводок ТП 903-1-174-АТМ010.000 Котлоагрегат. Расположение СА и проводок ТП 903-1-174-АТМ030.000 Узел сетевой установки. Расположение СА и проводок ТП 903-1-174-АТМ040.000 Общекотельные трубопроводы. Расположение СА и проводок ТП 903-1-174-АТМ050.000 Химводоочистка. Расположение СА и проводок ТП 903-1-174-АТМ000.040 Установка разделительного сосуда на горизонтальном трубопроводе ТП 903-1-174-АТМ000.060 Установка разделительных сосудов на камерной диафрагме ТП 903-1-174-АТМ000.050 Установка разделительных сосудов на вертикальном трубопроводе |
| Разработан: | ГПИ Сантехпроект Госстроя СССР Минмонтажспецстрой СССР Проектный институт №2 ЦНИИпроектстальконструкция Госстроя |
| Утверждён: | 20.11.1979 ГПИ Сантехпроект (180) |
| Заменяет собой: | |
| Чем заменён: |










































