Скачать Типовой проект 902-1-79.83 Альбом III. Архитектурно-строительные решения. Надземная часть. Общие чертежи (из ТП 902-1-78.83)Дата актуализации: 01.01.2021
|
| Обозначение: | Типовой проект 902-1-79.83 |
| Обозначение англ: | 902-1-79.83 |
| Статус: | действует |
| Название рус.: | Альбом III. Архитектурно-строительные решения. Надземная часть. Общие чертежи (из ТП 902-1-78.83) |
| Дата добавления в базу: | 01.09.2013 |
| Дата актуализации: | 01.01.2021 |
| Дата введения: | 06.02.1984 |
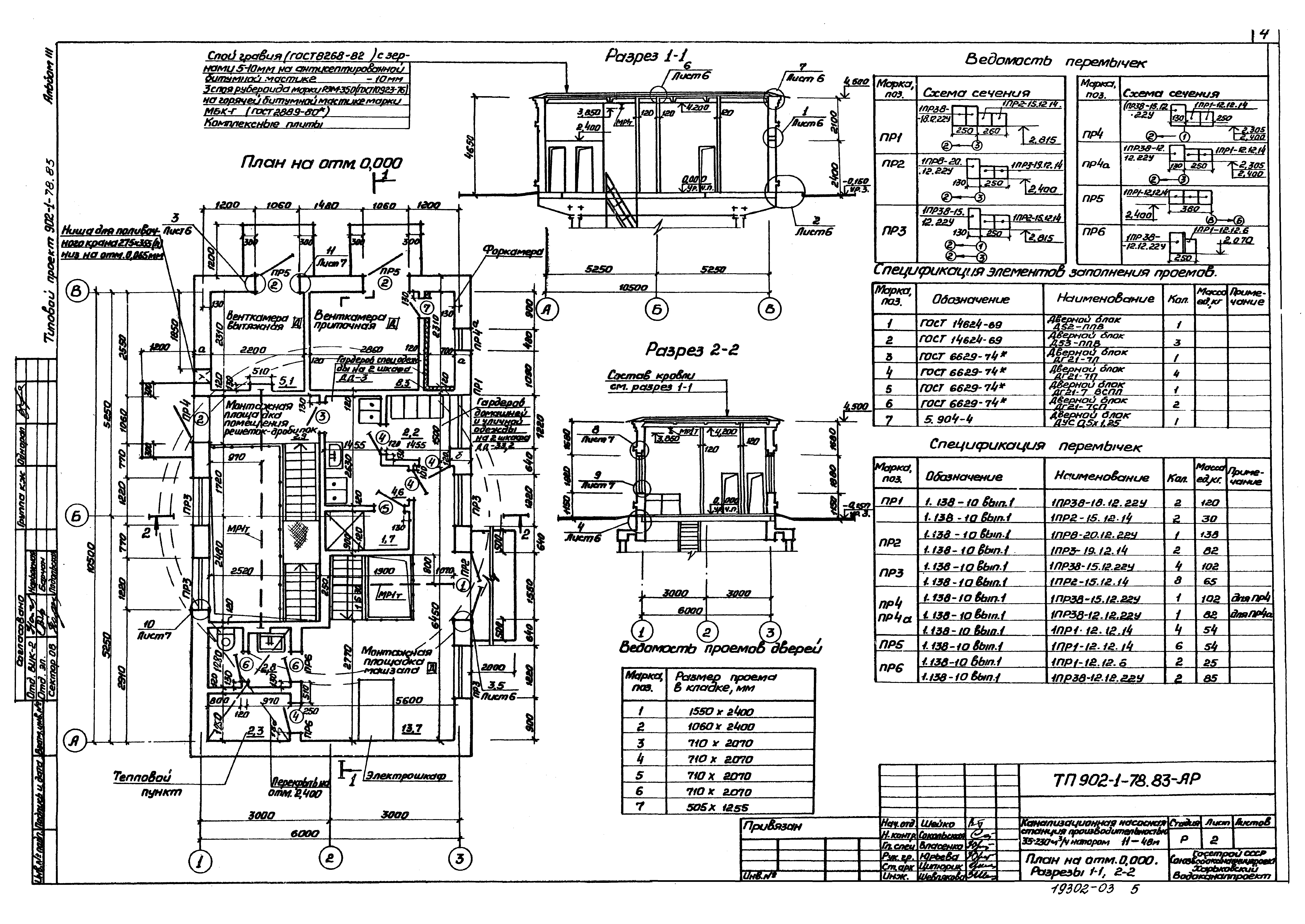
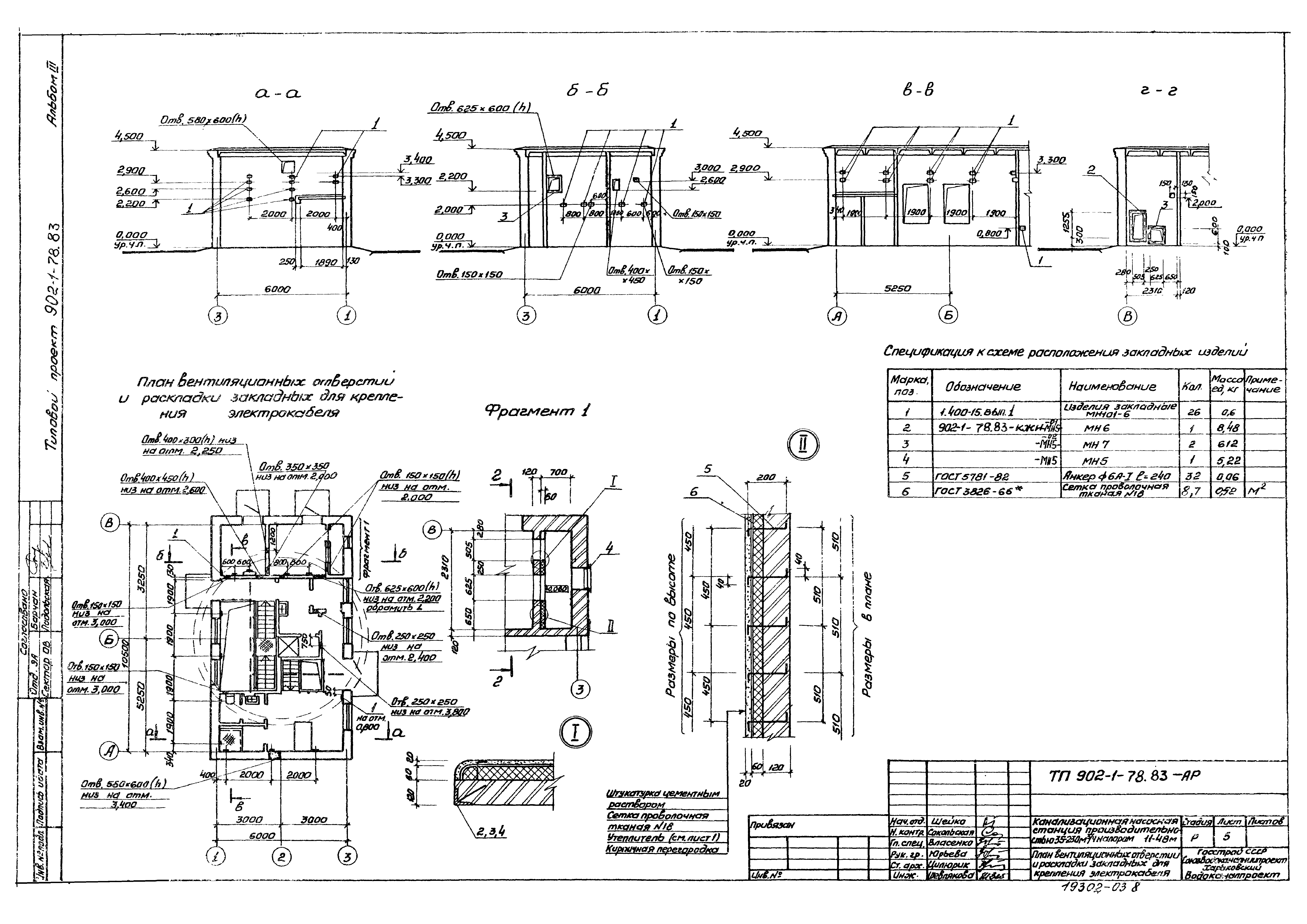
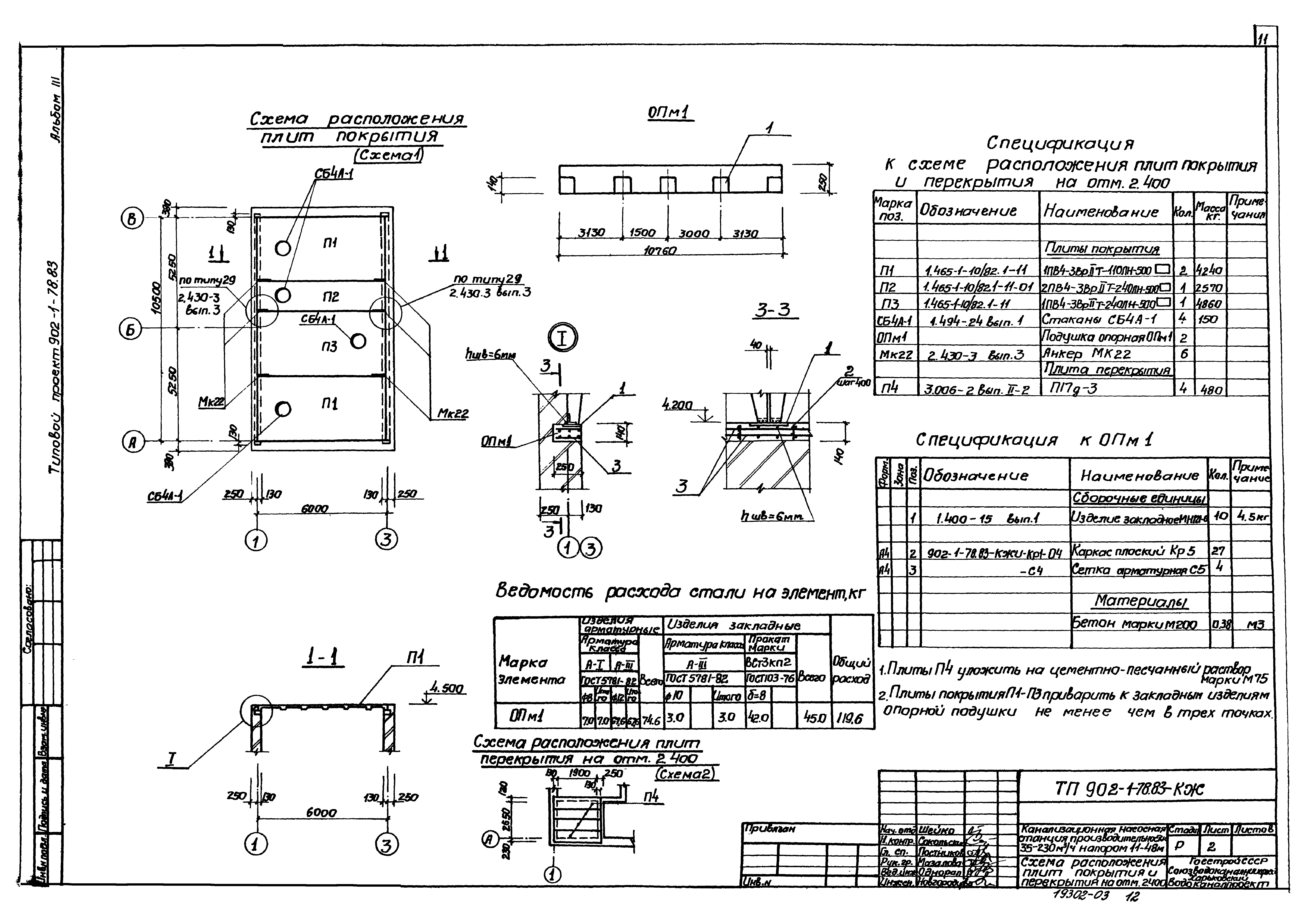
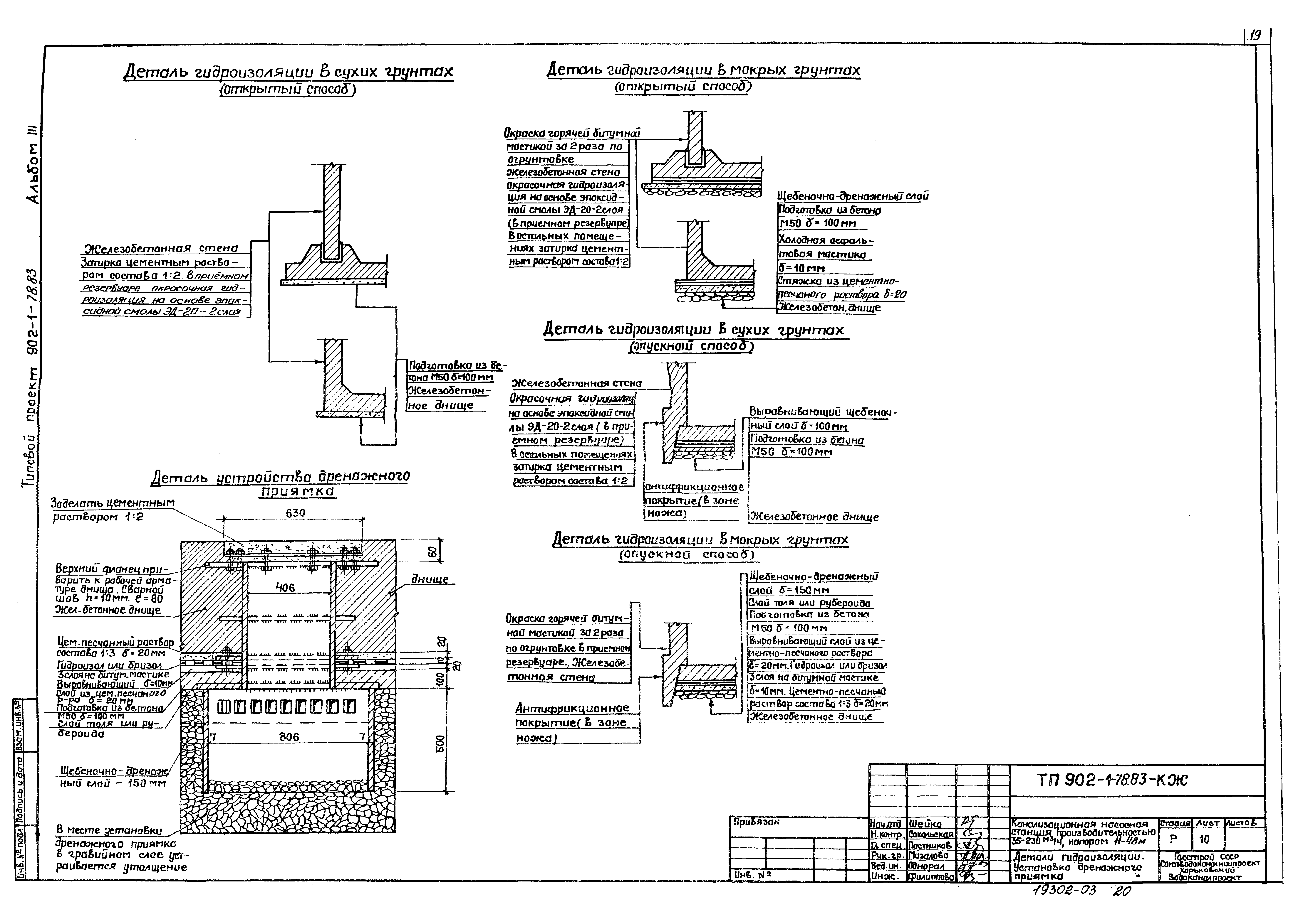
| Оглавление: | ТП 902-1-78.83 Содержание ТП 902-1-78.83-АР Основной комплект АР ТП 902-1-78.83-АР-1 Общие данные ТП 902-1-78.83-АР-2 План на отм. 0.000. Разрезы 1-1;2-2 ТП 902-1-78.83-АР-3 Фасады. Ведомость отделки помещений. Схемы расположения элементов заполнения оконных проемов ТП 902-1-78.83-АР-4 План кровли. План полов. Экспликация полов ТП 902-1-78.83-АР-5 План вентиляционных отверстий и раскладки закладных для крепления электрокабеля ТП 902-1-78.83-АР-6 Детали 1-7 ТП 902-1-78.83-АР-7 Детали 8-15 ТП 902-1-78.83-КЖ Основной комплект КЖ ТП 902-1-78.83-КЖ-1 Общие данные ТП 902-1-78.83-КЖ-2 Схема расположения плит покрытия и перекрытия на отм. 2.400 ТП 902-1-78.83-КЖ-3 Схема расположения плит перекрытия на отм. 0.000 ТП 902-1-78.83-КЖ-4 Перекрытие на отм. -0.250 РКм1. Общий вид ТП 902-1-78.83-КЖ-5 Балки БМ1-БМ5,БОМ1-БОМ3. Общие виды и схемы армирования (начало) ТП 902-1-78.83-КЖ-6 Балки БМ1-БМ5,БОМ1-БОМ3. Общие виды и схемы армирования (продолжение) ТП 902-1-78.83-КЖ-7 Балки БМ1-БМ5,БОМ1-БОМ3. Общие виды и схемы армирования (окончание) ТП 902-1-78.83-КЖ-8 Схема расположения фундаментов под оборудование ТП 902-1-78.83-КЖ-9 Обвязочная балка ОКМ1. Общий вид и схема армирования ТП 902-1-78.83-КЖ-10 Детали гидроизоляции. Установка дренажного приямка ТП 902-1-78.83-КМ Основной комплект КМ ТП 902-1-78.83-КМ-1 Общие данные ТП 902-1-78.83-КМ-2 Схема расположения монорельса в подземной части ТП 902-1-78.83-КМ-3 Схема расположения путей монорельса ТП 902-1-78.83-КЖИ Основной комплект КЖИ ТП 902-1-78.83-КЖИ-ДО Опись документов ТП 902-1-78.83-КЖИ-ТО Техническое описание ТП 902-1-78.83-КЖИ-КР1 Каркас плоский КР(КР1-КР5) ТП 902-1-78.83-КЖИ-КР1СБ Каркас плоский КР(КР1-КР5). Сборочный чертеж ТП 902-1-78.83-КЖИ-КР6 Каркас плоский КР6 ТП 902-1-78.83-КЖИ-С1 Сетка арматурная С(С1,С2) ТП 902-1-78.83-КЖИ-С1СБ Сетка арматурная С(С1,С2). Сборочный чертеж ТП 902-1-78.83-КЖИ-С3 Сетка арматурная С(С3-С5) ТП 902-1-78.83-КЖИС3СБ Сетка арматурная С(С3-С5). Сборочный чертеж ТП 902-1-78.83-КЖИ-П1 Плиты П1,П2,П4,П5 ТП 902-1-78.83-КЖИ-П6 Плиты П3,П6 ТП 902-1-78.83-КЖИ-ПР13-а Перемычка ПР13-а ТП 902-1-78.83-КЖИ-МН1 Изделие закладное МН(МН1-МН3) ТП 902-1-78.83-КЖИ-МН4 Изделие закладное МН4 ТП 902-1-78.83-КЖИ-МН5 Изделие закладное МН(МН5-МН7) ТП 902-1-78.83-КЖИ-ОП2 Опора ОП2 |
| Разработан: | Харьковский Водоканалпроект |
| Утверждён: | 27.10.1983 СоюзводоканалНИИпроект (SoyuzvodokanalNIIproject 59) |




























