Скачать Типовой проект 902-1-82.83 Альбом IV. Строительные решения. Подземная часть (опускной способ в сухих и мокрых грунтах)Дата актуализации: 01.01.2021
|
| Обозначение: | Типовой проект 902-1-82.83 |
| Обозначение англ: | 902-1-82.83 |
| Статус: | действует |
| Название рус.: | Альбом IV. Строительные решения. Подземная часть (опускной способ в сухих и мокрых грунтах) |
| Дата добавления в базу: | 01.09.2013 |
| Дата актуализации: | 01.01.2021 |
| Дата введения: | 06.02.1984 |
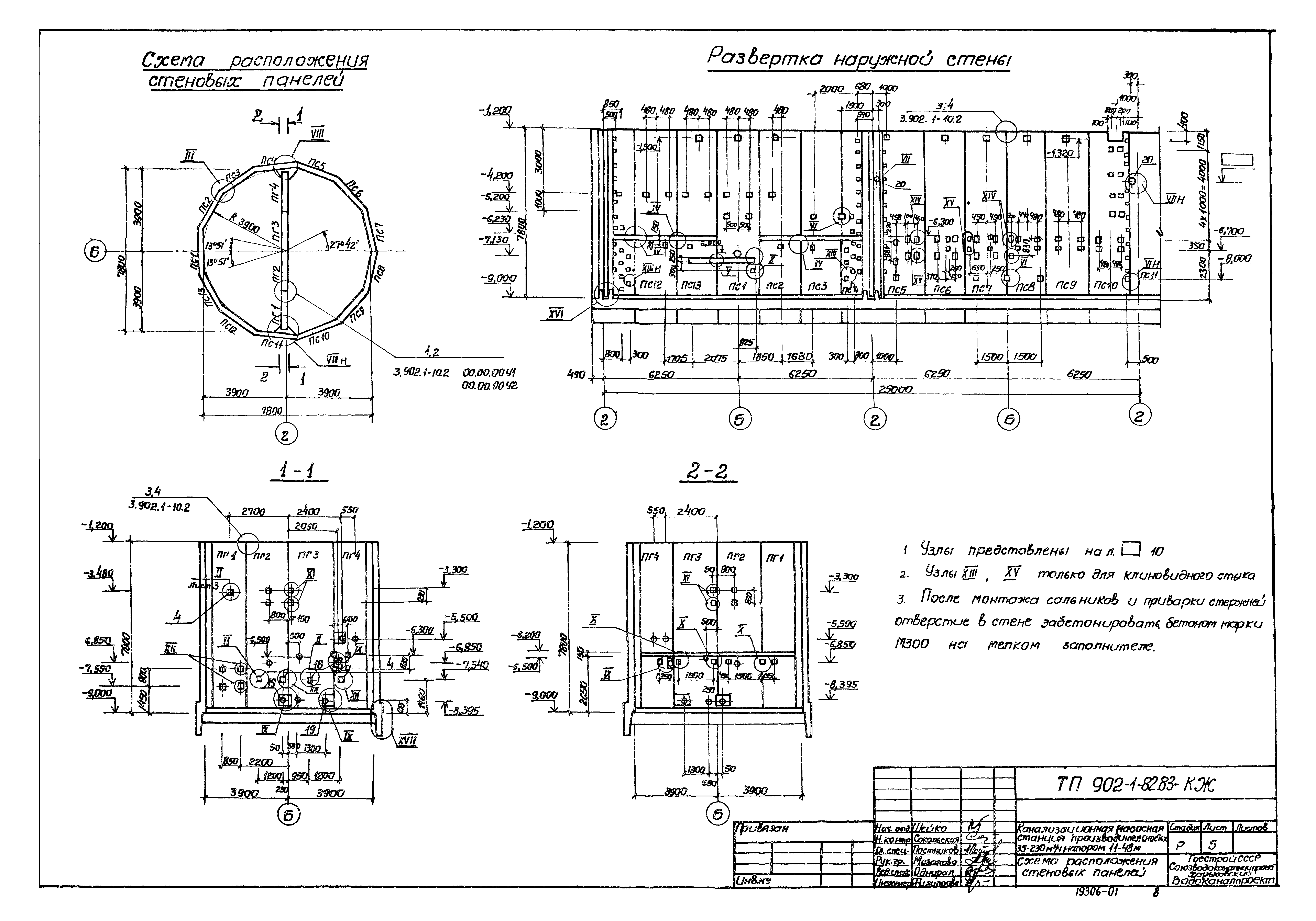
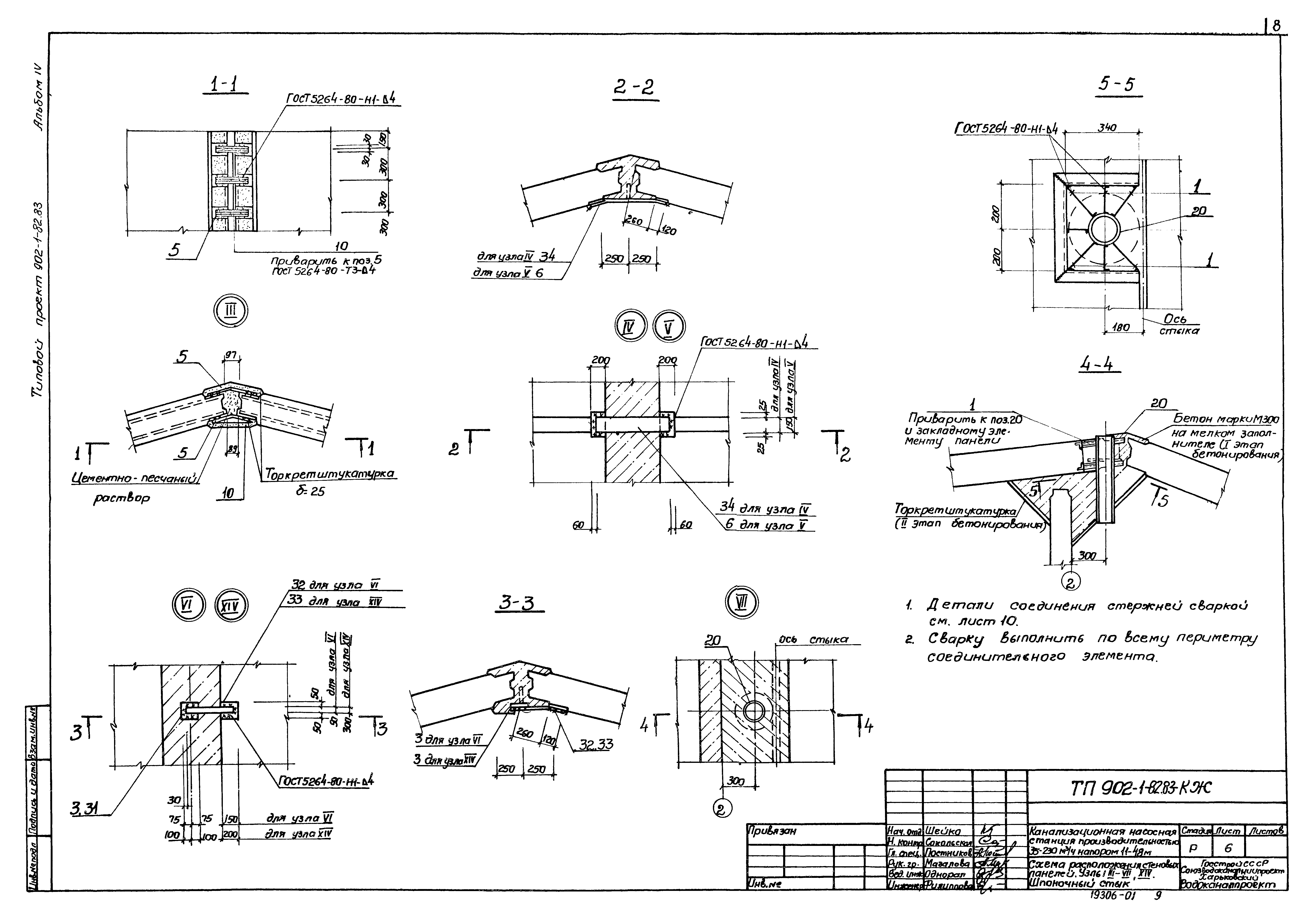
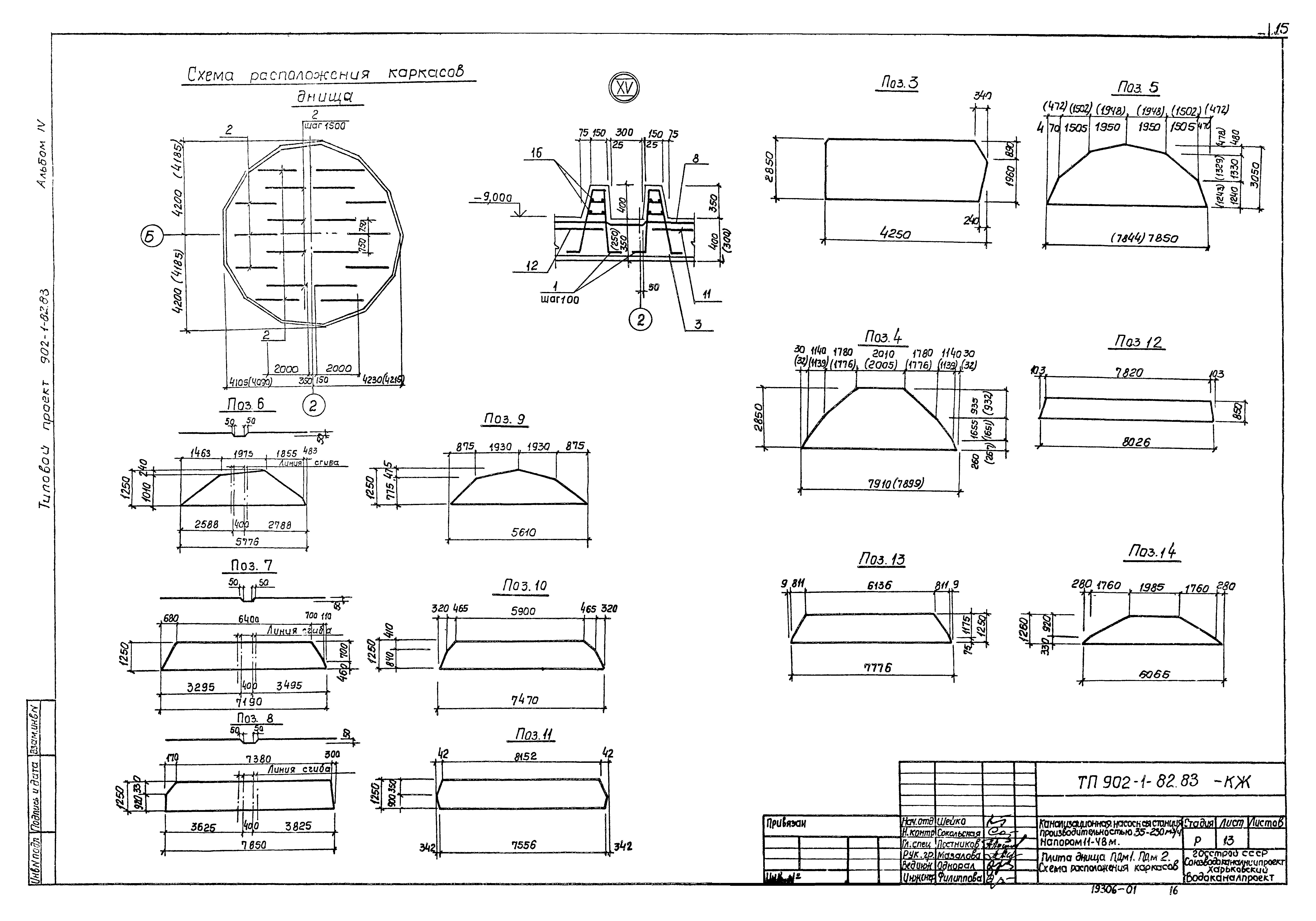
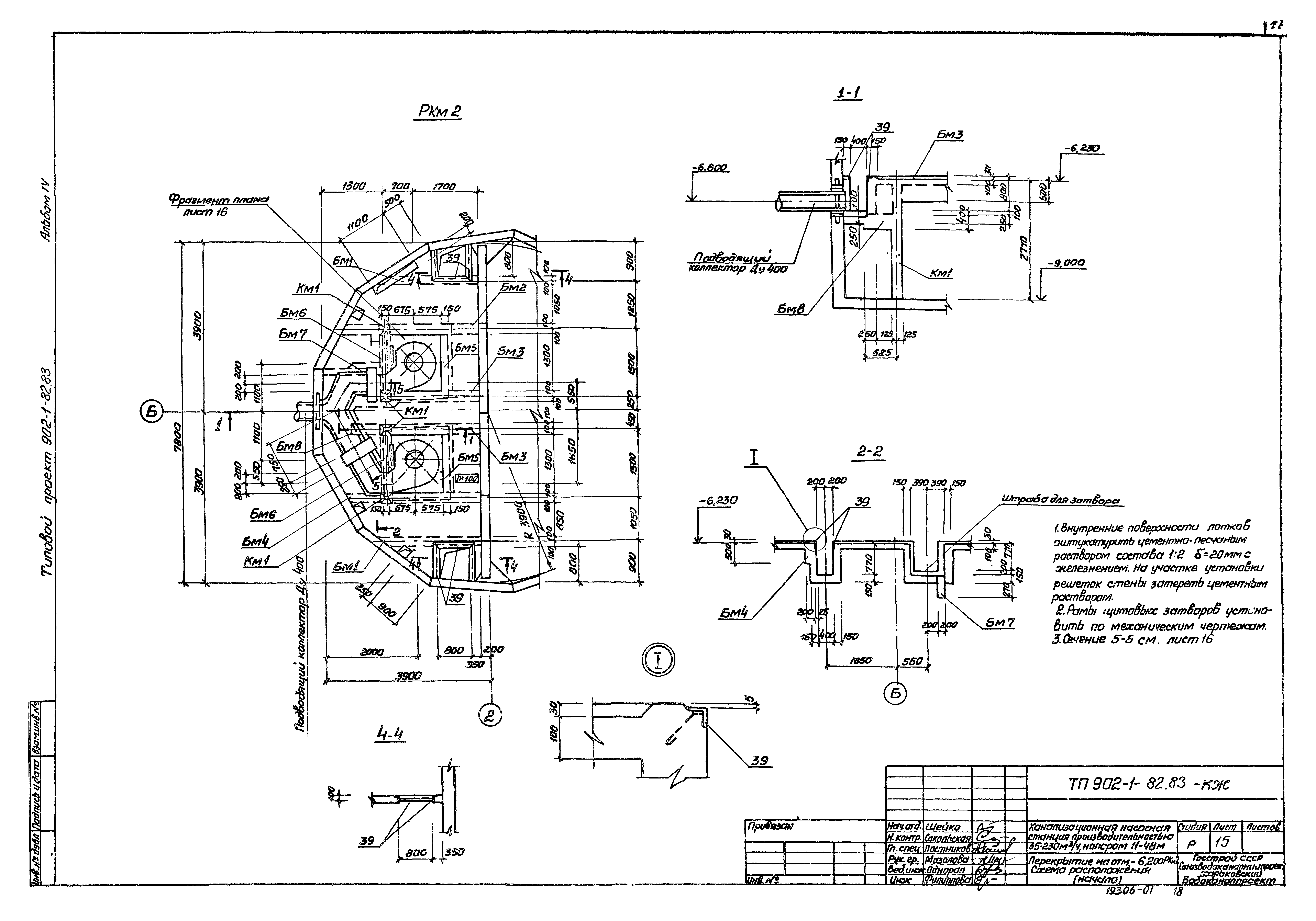
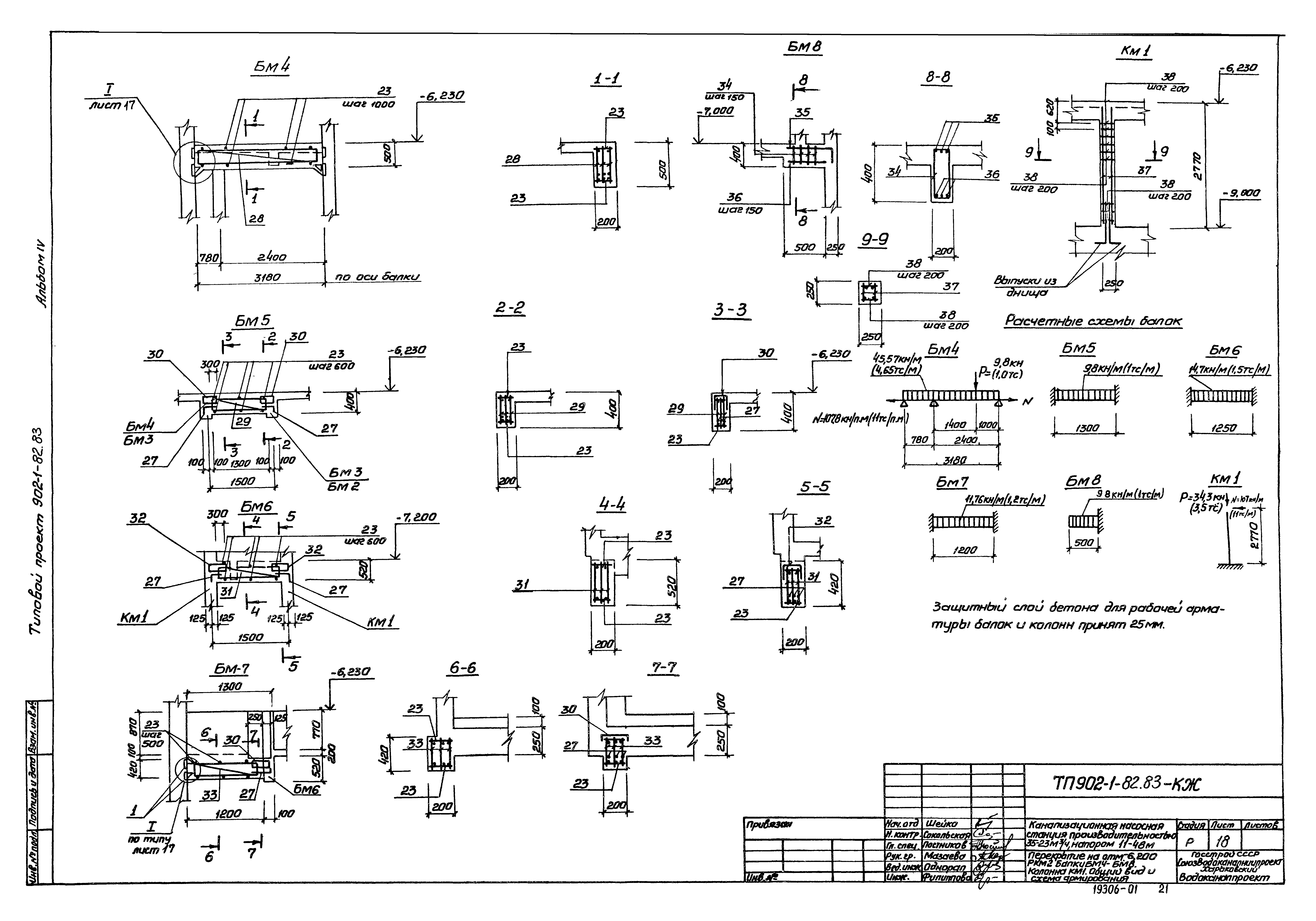
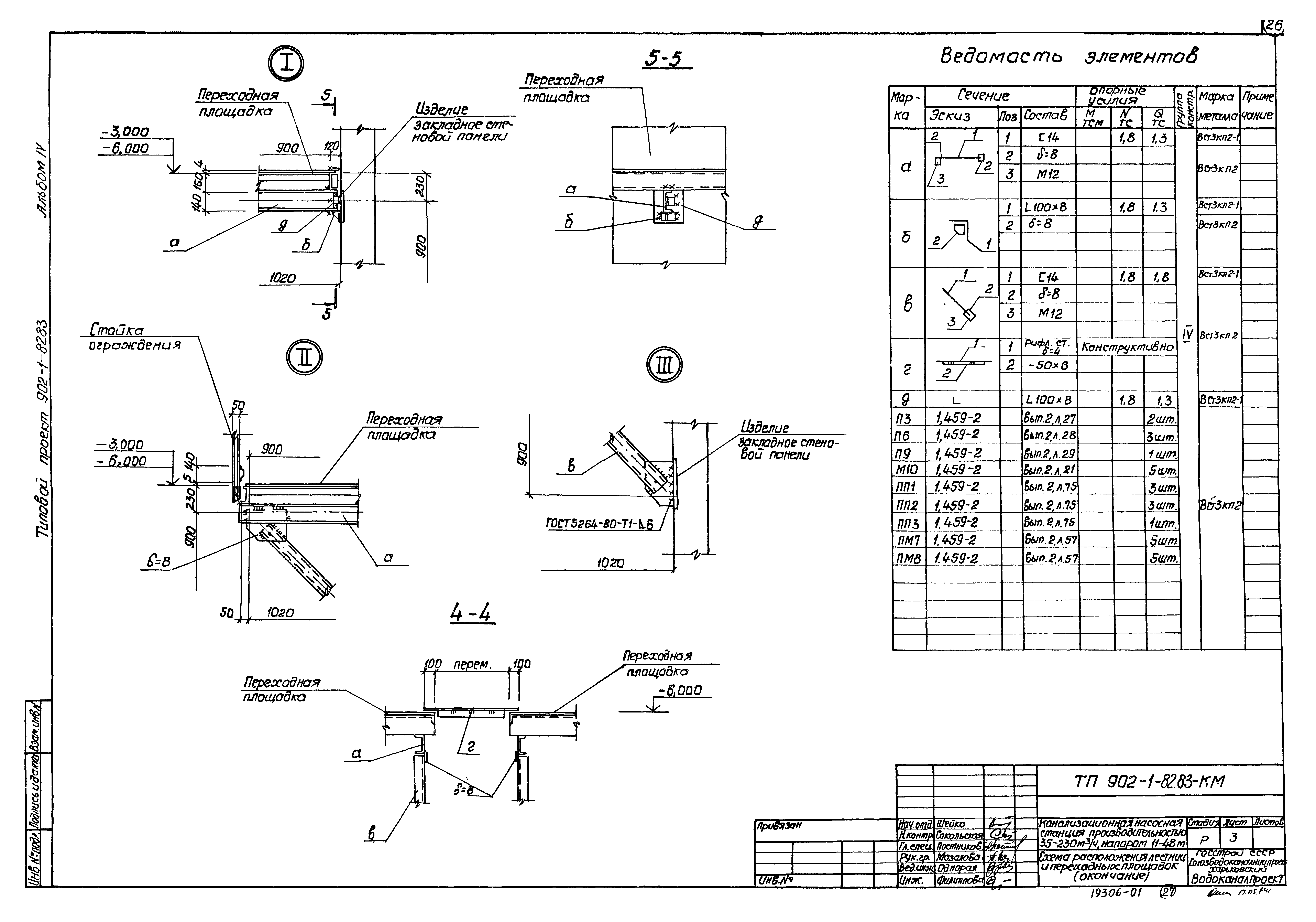
| Оглавление: | ТП 902-1-82.83 Содержание ТП 902-1-82.83-КЖ Основной комплект КЖ ТП 902-1-82.83-КЖ-1 Общие данные ТП 902-1-82.83-КЖ-2 Планы на отм. -6.000,-6.200,-8.750. Разрезы 1-1,2-2 ТП 902-1-82.83-КЖ-3 Схема расположения конструкций подземной части. Узлы 1 и 2 ТП 902-1-82.83-КЖ-4 Схема расположения опорных блоков и форшахты ТП 902-1-82.83-КЖ-5 Схема расположения стеновых панелей ТП 902-1-82.83-КЖ-6 Схема расположения стеновых панелей. Узлы 3-7,14. Шпоночный стык ТП 902-1-82.83-КЖ-7 Схема расположения стеновых панелей. Узлы 8-12. Шпоночный стык ТП 902-1-82.83-КЖ-8 Схема расположения стеновых панелей. Узлы 3-7,14,15. Клиновый стык ТП 902-1-82.83-КЖ-9 Схема расположения стеновых панелей. Узлы 8-13. Клиновый стык ТП 902-1-82.83-КЖ-10 Схема расположения стеновых панелей. Узлы 16-17 ТП 902-1-82.83-КЖ-11 Схема расположения стеновых панелей. Спецификация ТП 902-1-82.83-КЖ-12 Плита днища ПДм1;ПДм2. Общий вид и схема армирования ТП 902-1-82.83-КЖ-13 Плита днища ПДм1,ПДм2. Схема расположения каркасов ТП 902-1-82.83-КЖ-14 Плита днища ПДм1,ПДм2. Спецификация ТП 902-1-82.83-КЖ-15 Перекрытие на отм. -6.200 РКм2. Схема расположения (начало) ТП 902-1-82.83-КЖ-16 Перекрытие на отм. -4.700 РКм2. Схема расположения (окончание) ТП 902-1-82.83-КЖ-17 Перекрытие на отм. -6.200 РКм2. Плита Пм1. Балки БМ1-БМ3. Общий вид и схема армирования ТП 902-1-82.83-КЖ-18 Перекрытие на отм. -6.200 РКм2. Балки БМ4-БМ8, колонна КМ1. Общий вид и схема армирования ТП 902-1-82.83-КЖ-19 Перекрытие на отм. -6.200 РКм2. Лоток ЛМ1. Общий вид и схема армирования ТП 902-1-82.83-КЖ-20 Перекрытие на отм. -6.200 РКм2. Спецификация (начало) ТП 902-1-82.83-КЖ-21 Перекрытие на отм. -6.200 РКм2. Спецификация (окончание) ТП 902-1-82.83-КМ Основной комплект КМ ТП 902-1-82.83-КМ-1 Общие данные ТП 902-1-82.83-КМ-2 Схема расположения лестниц и переходных площадок (начало) ТП 902-1-82.83-КМ-3 Схема расположения лестниц и переходных площадок (окончание) |
| Разработан: | Харьковский Водоканалпроект |
| Утверждён: | 27.10.1983 СоюзводоканалНИИпроект (SoyuzvodokanalNIIproject 59) |


























