Скачать Типовой проект 902-1-85.84 Альбом VI. Подземная часть. ИзделияДата актуализации: 01.01.2021
|
| Обозначение: | Типовой проект 902-1-85.84 |
| Обозначение англ: | 902-1-85.84 |
| Статус: | действует |
| Название рус.: | Альбом VI. Подземная часть. Изделия |
| Дата добавления в базу: | 01.09.2013 |
| Дата актуализации: | 01.01.2021 |
| Дата введения: | 18.04.1984 |
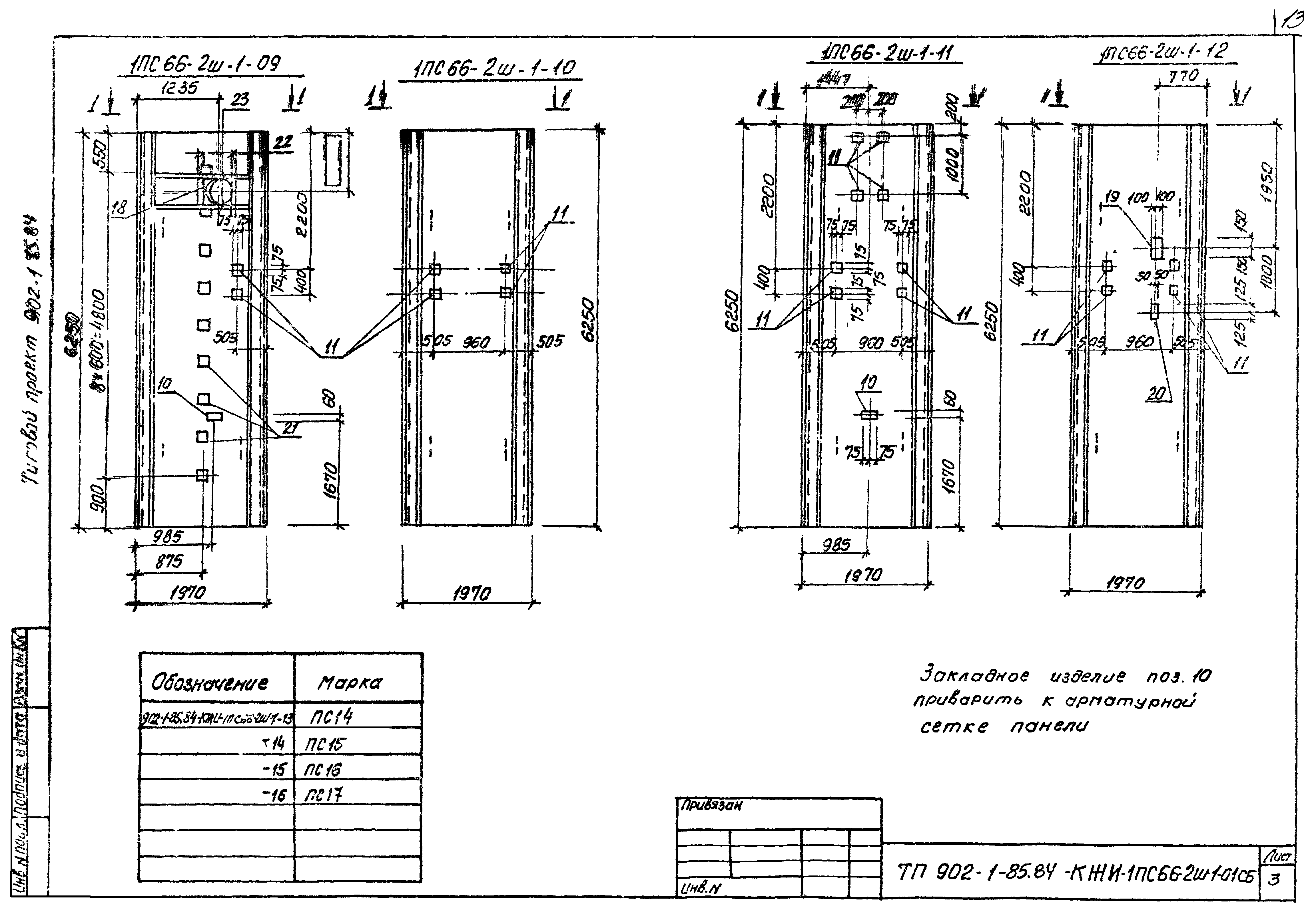
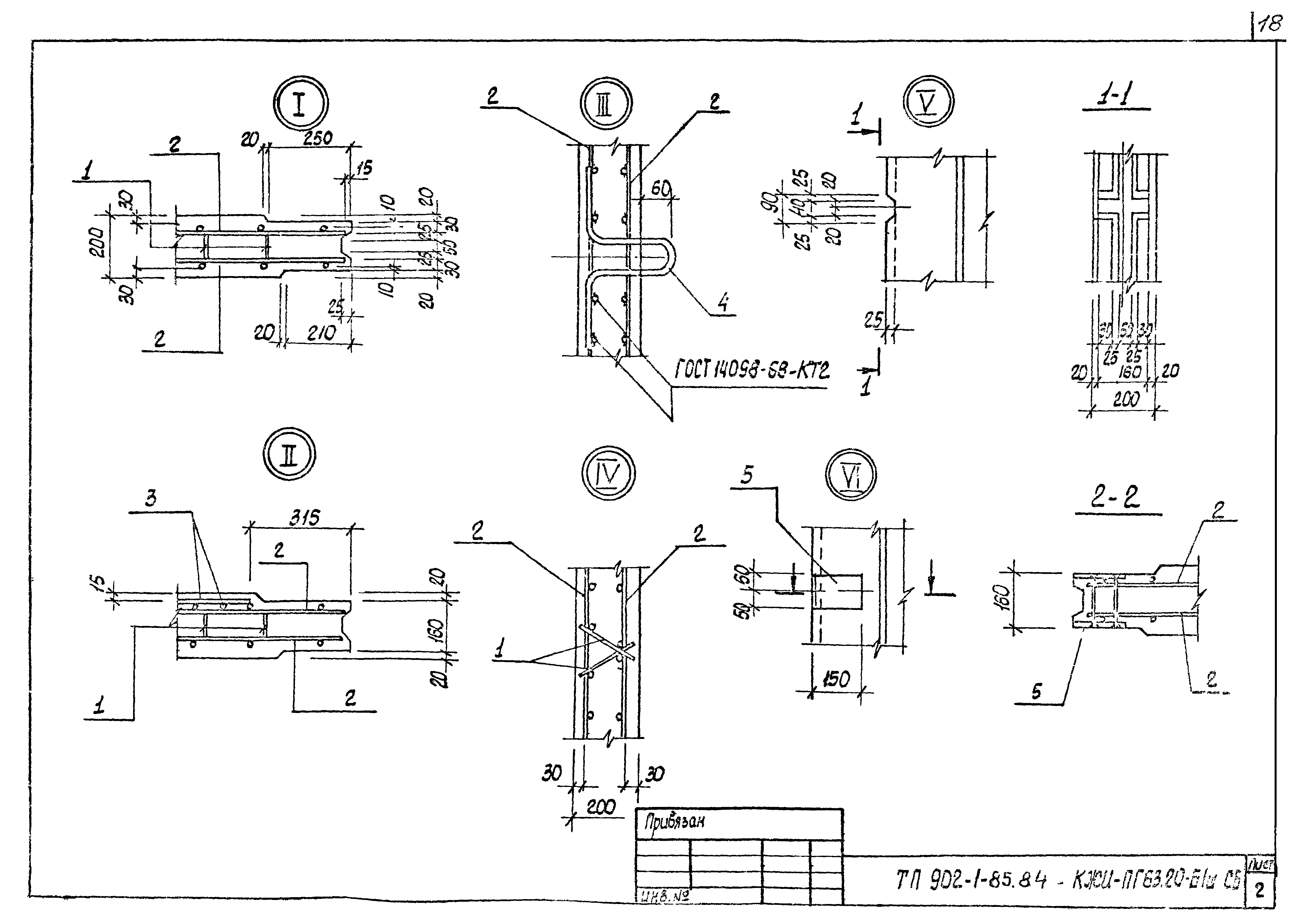
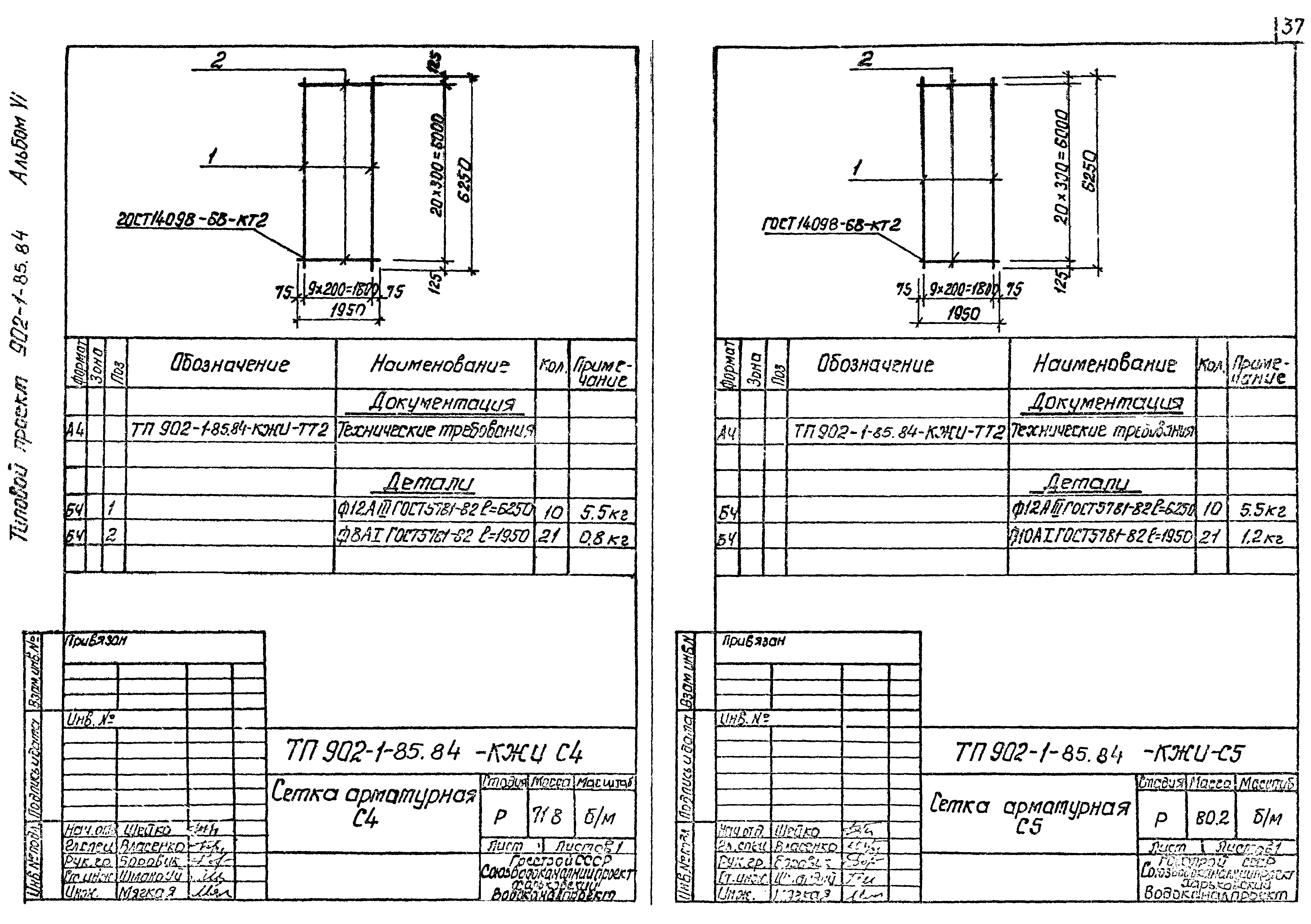
| Оглавление: | ТП 902-1-85.84-ДО Содержание листов выпуска ТП 902-1-85.84-КЖИ-ТТ1 Технические требования к изготовлению сборных железобетонных изделий ТП 902-1-85.84-КЖИ-ТТ2 Технические требования к изготовлению арматурных и закладных изделий ТП 902-1-85.84-КЖИ-1ПС66-2Ш-1 Панель стеновая 1ПС66-2Ш-1 ТП 902-1-85.84-КЖИ-ВМС1 Ведомость расхода стали ТП 902-1-85.84-КЖИ-1ПС66-2Ш-1 СБ Панель стеновая 1ПС66-2Ш-1. Сборочный чертеж ТП 902-1-85.84-КЖИ-1ПС66-2Ш-1-01 Панель стеновая (1ПС66-2Ш-1-01÷ПС66-2Ш-1-16) ТП 902-1-85.84-КЖИ-ВМС2 Ведомость расхода стали ТП 902-1-85.84-КЖИ-1ПС65-2Ш-1-01 СБ Панель стеновая (1ПС65-2Ш-1-01÷1ПС66-2Ш-1-16). Сборочный чертеж ТП 902-1-85.84-КЖИ-ПГ63.20-Б1Ш Панель перегородочная ПГ63.20-Б1Ш ТП 902-1-85.84-КЖИ-ВМС3 Ведомость расхода стали ТП 902-1-85.84-КЖИ-ПГ63.20-Б1Ш СБ Панель перегородочная ПГ63.20-Б1Ш. Сборочный чертеж ТП 902-1-85.84-КЖИ-ПГ63.20-Б1Ш СБ Панель перегородочная ПГ(ПГ63.20-Б1Ш-01÷ПГ63.20-51Ш-04). Сборочный чертеж ТП 902-1-85.84-КЖИ-ВМС4 Ведомость расхода стали ТП 902-1-85.84-КЖИ-ПГ63.20-Б1Ш-01 СБ Панель перегородочная ПГ63.20-Б1Ш-01. Сборочный чертеж ТП 902-1-85.84-КЖИ-ПГ63.20-У3Ш Панель перегородочная ПГ63.20-У3Ш ТП 902-1-85.84-КЖИ-ПГ63.20-У3Ш-1 Панель перегородочная ПГ63.20-У3Ш-1 ТП 902-1-85.84-КЖИ-ВМС5 Ведомость расхода стали ТП 902-1-85.84-КЖИ-ПГ63.20-У3Ш СБ Панель перегородочная ПГ63.20-У3Ш. Сборочный чертеж ТП 902-1-85.84-КЖИ-ПГ63.20-У3Ш-1 СБ Панель перегородочная ПГ63.20-У3Ш-1. Сборочный чертеж ТП 902-1-85.84-КЖИ-У Узел 1,2 ТП 902-1-85.84-КЖИ-КР1 Каркас плоский КР1 ТП 902-1-85.84-КЖИ-КР2 Каркас плоский КР2 ТП 902-1-85.84-КЖИ-КР3 Каркас плоский КР3 ТП 902-1-85.84-КЖИ-КР4 Каркас плоский КР4 ТП 902-1-85.84-КЖИ-КР5 Каркас плоский КР5 ТП 902-1-85.84-КЖИ-КР6 Каркас плоский КР6 ТП 902-1-85.84-КЖИ-КР7 Каркас плоский КР7 ТП 902-1-85.84-КЖИ-КР8 Каркас плоский КР8 ТП 902-1-85.84-КЖИ-КР9 Каркас плоский КР9 ТП 902-1-85.84-КЖИ-КР10 Каркас плоский КР10 ТП 902-1-85.84-КЖИ-КР12 Каркас плоский КР12 ТП 902-1-85.84-КЖИ-КР13 Каркас плоский КР13 ТП 902-1-85.84-КЖИ-КР14 Каркас плоский КР(КР14,КР15,КР16,КР17) ТП 902-1-85.84-КЖИ-КР14 СБ Каркас плоский КР(КР14,КР15,КР16,КР17). Сборочный чертеж ТП 902-1-85.84-КЖИ-С1 Сетка арматурная С1 ТП 902-1-85.84-КЖИ-С2 Сетка арматурная С2 |
| Разработан: | Харьковский Водоканалпроект |
| Утверждён: | 05.12.1983 СоюзводоканалНИИпроект (SoyuzvodokanalNIIproject 75) |








































