Скачать Типовой проект 902-3-4 Альбом II. Архитектурно-строительная часть. Вариант с хлордозаторнойДата актуализации: 01.01.2021
|
| Обозначение: | Типовой проект 902-3-4 |
| Обозначение англ: | 902-3-4 |
| Статус: | действует |
| Название рус.: | Альбом II. Архитектурно-строительная часть. Вариант с хлордозаторной |
| Дата добавления в базу: | 01.09.2013 |
| Дата актуализации: | 01.01.2021 |
| Дата введения: | 30.11.1979 |
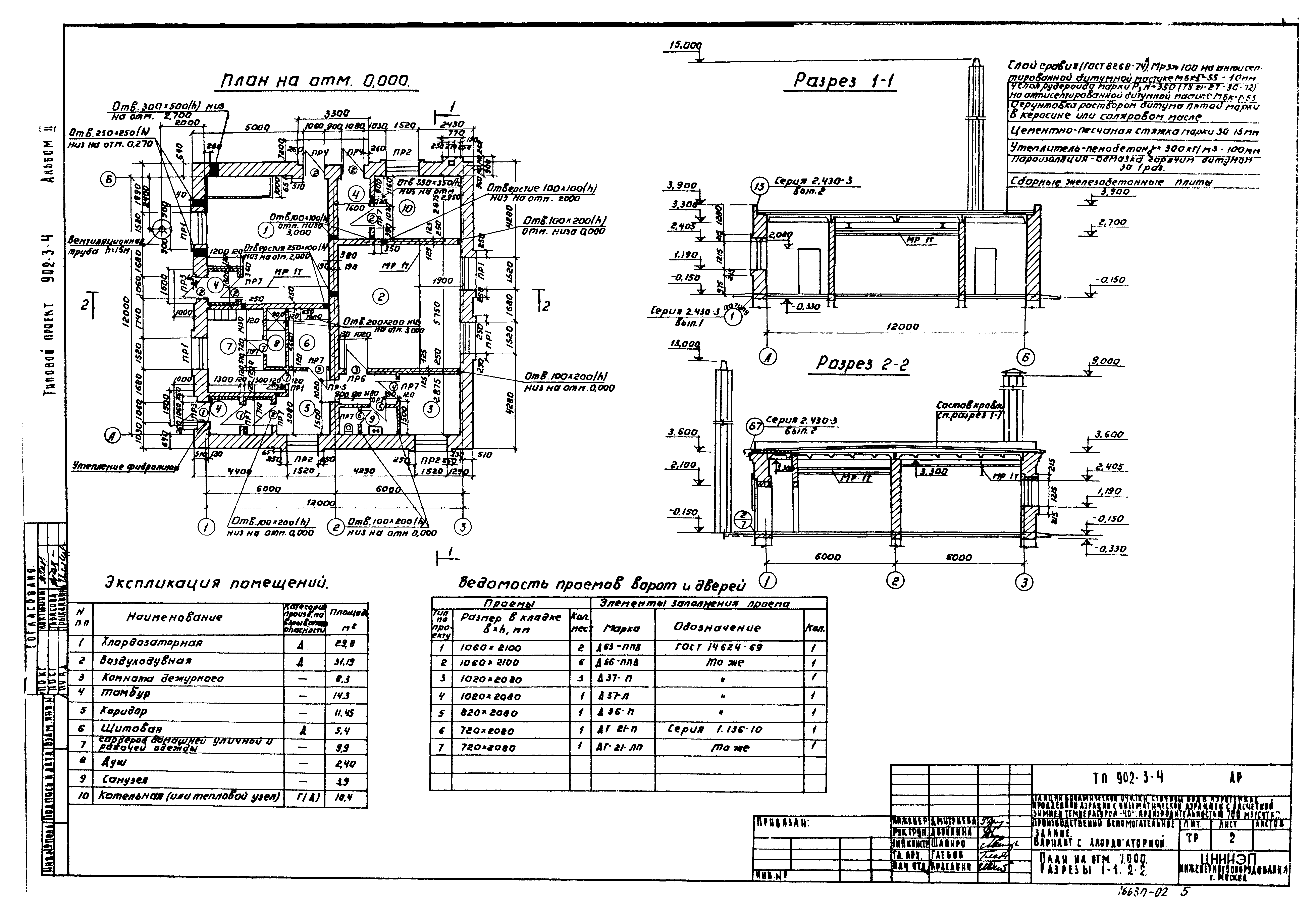
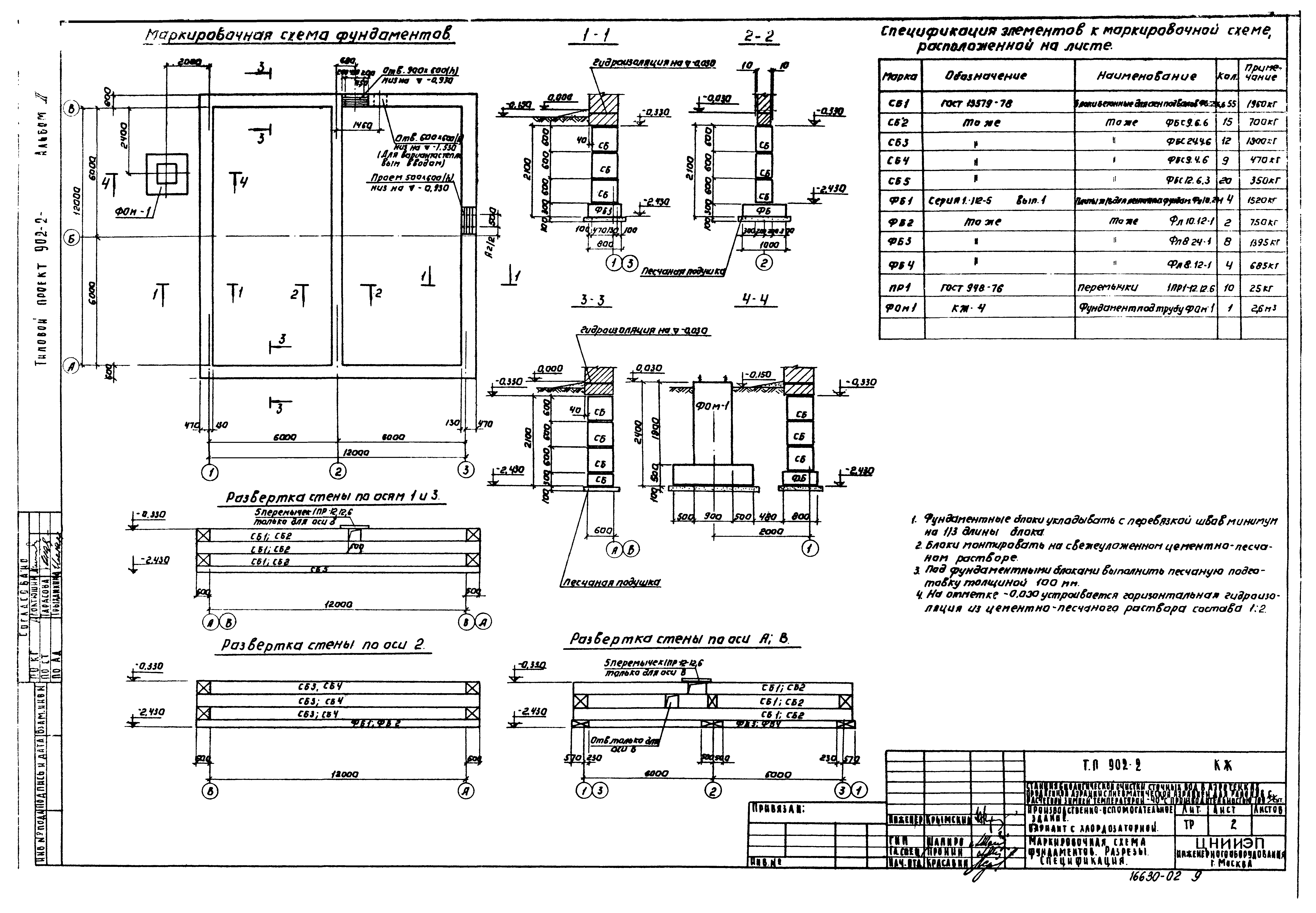
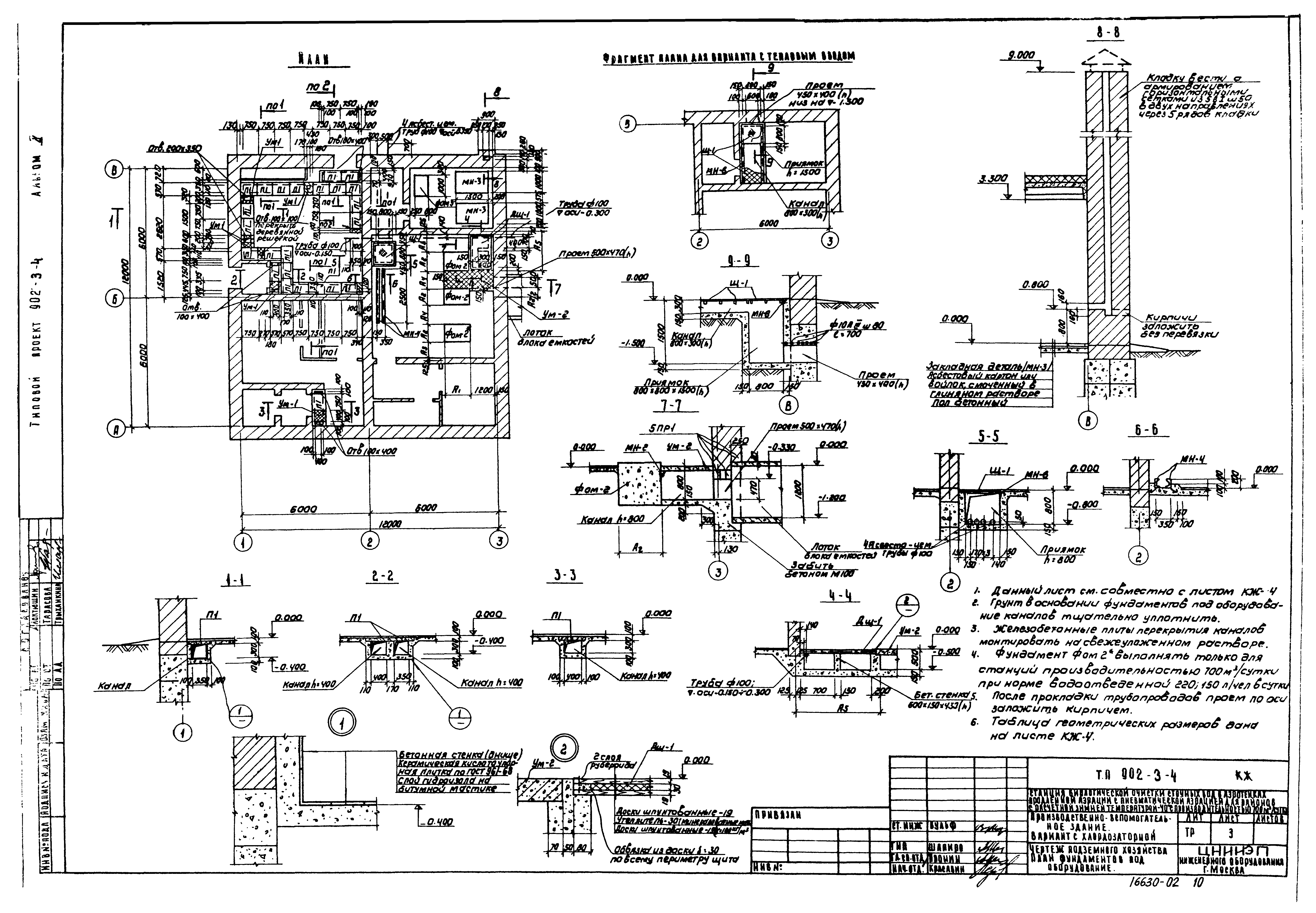
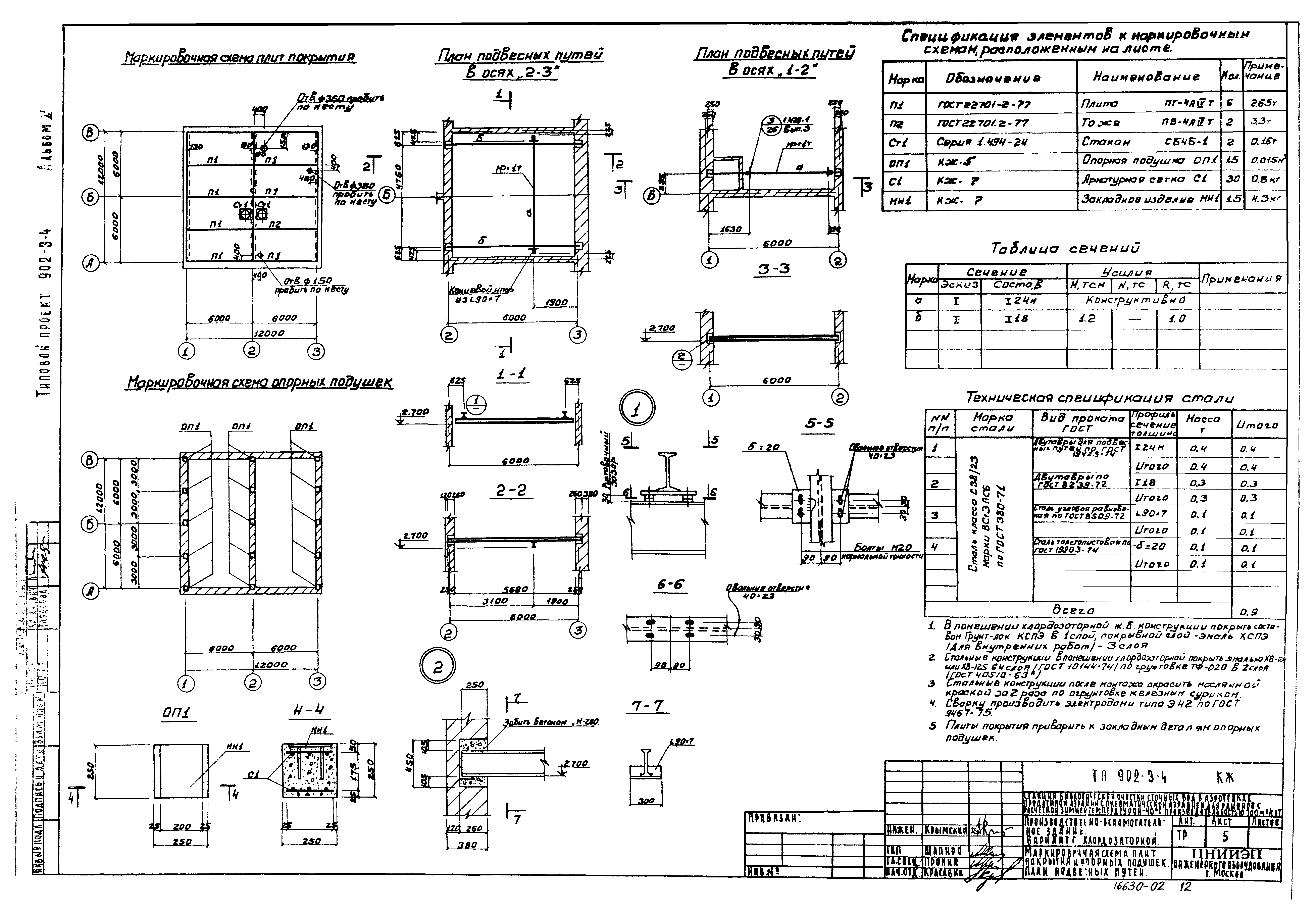
| Оглавление: | ТП 902-3-4-АР Архитектурно-строительная часть ТП 902-3-4-АР-1 Общие данные ТП 902-3-4-АР-2 План на отм. 0.000. Разрезы 1-1;2-2 ТП 902-3-4-АР-3 Фасады А-Б,Б-А,1-3,3-1 ТП 902-3-4-АР-4 Экспликация полов. План полов. План кровли. Ведомость отделки помещений ТП 902-3-4-КЖ Конструкции железобетонные ТП 902-3-4-КЖ-1 Общие данные ТП 902-3-4-КЖ-2 Маркировочная схема фундаментов. Разрезы. Спецификация ТП 902-3-4-КЖ-3 Чертеж подземного хозяйства. План фундаментов под оборудование ТП 902-3-4-КЖ-4 Чертеж подземного хозяйства. Фундаменты под оборудование ТП 902-3-4-КЖ-5 Маркировочная схема плит покрытия и опорных подушек. План подвесных путей ТП 902-3-4-КЖ-6 Вентиляционная труба ТП 902-3-4-КЖ-7 Закладные детали ТП 902-3-4-КЖ-8 Приемный клапан |
| Разработан: | ЦНИИЭП |
| Утверждён: | 06.08.1979 Госгражданстрой (Gosgrazhdanstroy 173) |














