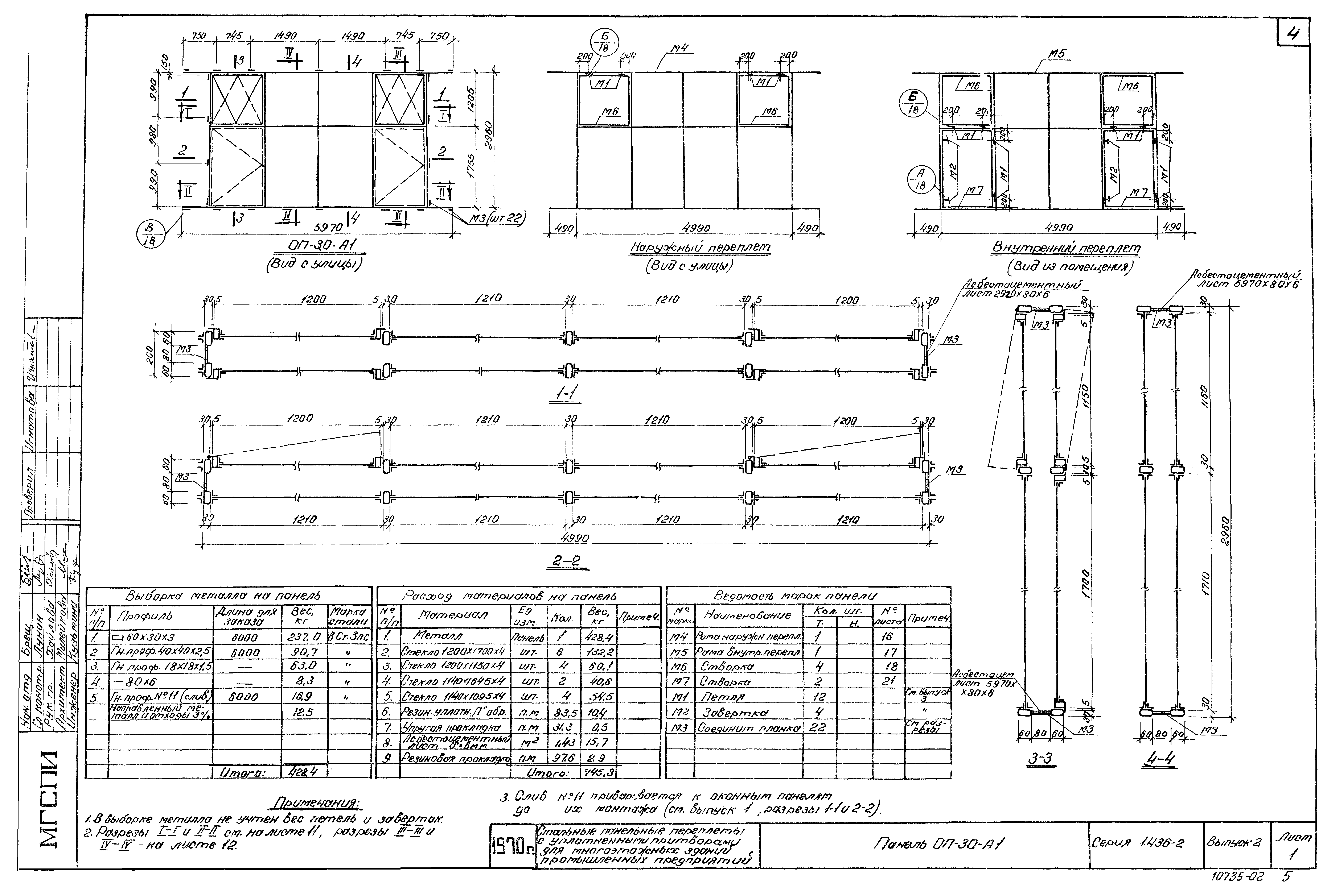
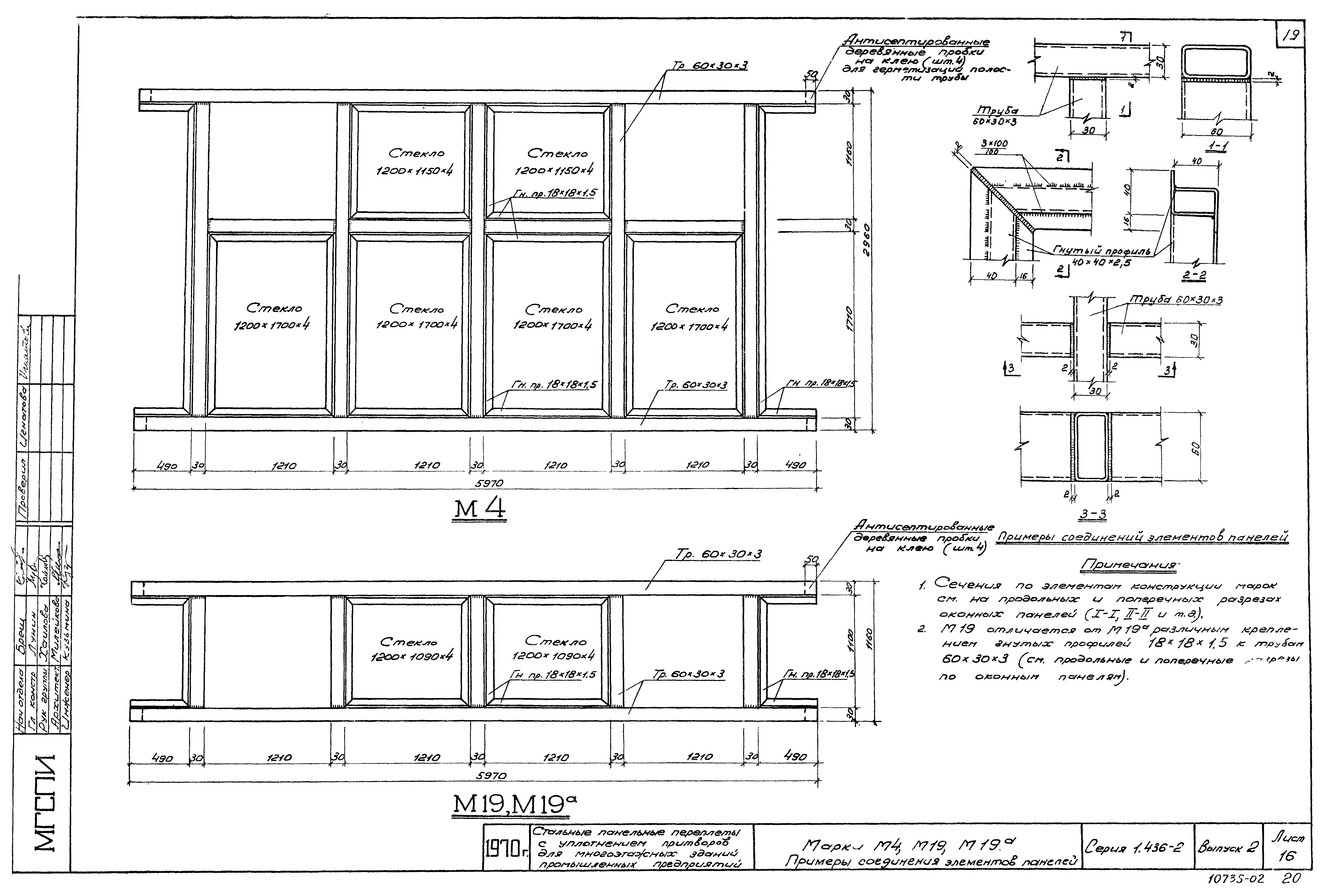
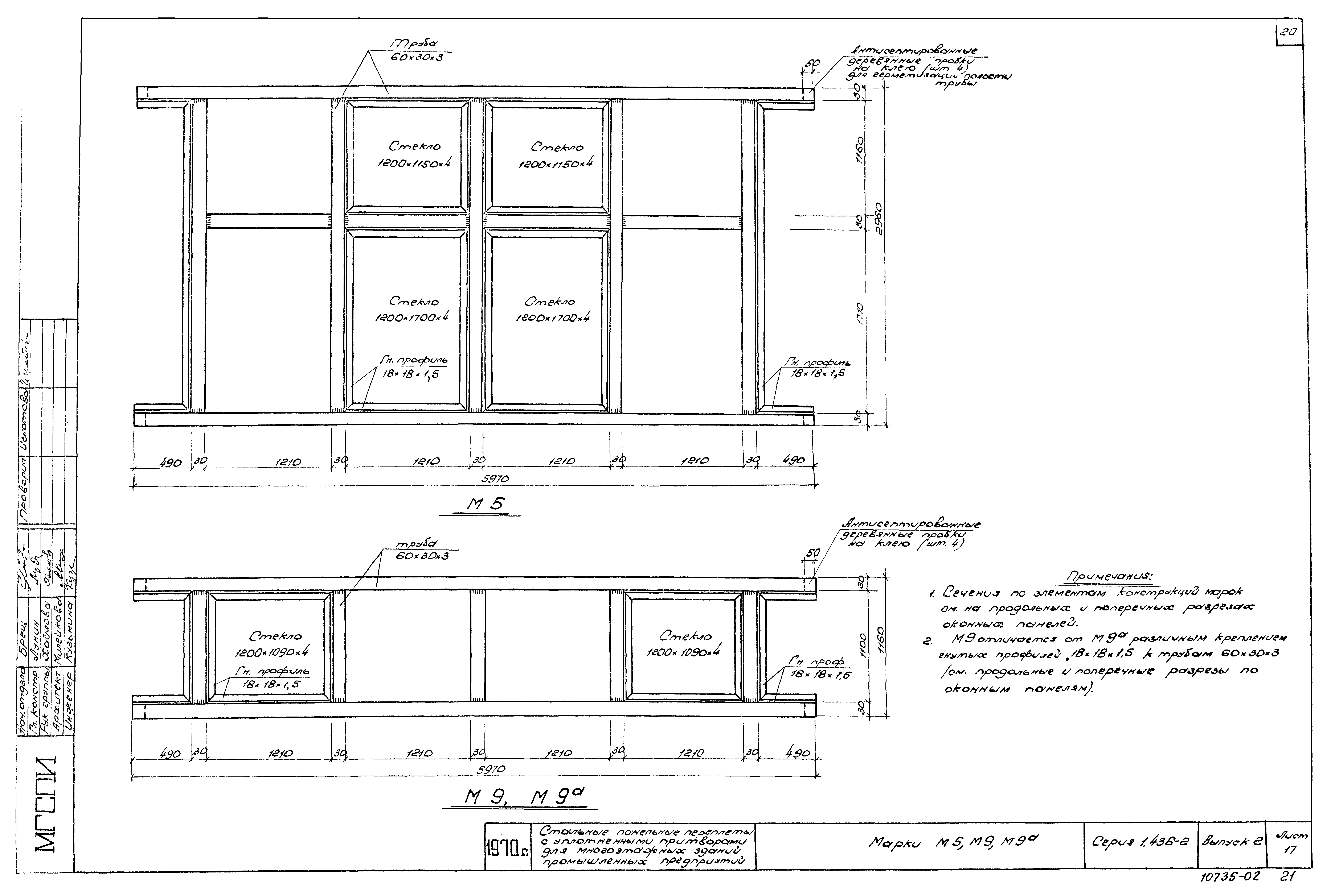
Скачать Серия 1.436-2 Выпуск 2. Стальные переплетыДата актуализации: 01.01.2021
|
| Обозначение: | Серия 1.436-2 |
| Обозначение англ: | Series 1.436-2 |
| Статус: | заменен |
| Название рус.: | Выпуск 2. Стальные переплеты |
| Дата добавления в базу: | 01.09.2013 |
| Дата актуализации: | 01.01.2021 |
| Дата окончания срока действия: | 01.09.1981 |
| Разработан: | МГСПИ |
| Утверждён: | 26.03.1976 Госстрой СССР (Государственный комитет Совета Министров СССР по делам строительства) (USSR Gosstroy ) |
| Чем заменён: |
|
























