Скачать Серия 1.436-2 Выпуск 3. Межоконные приборы, петли, ручки и защелкиДата актуализации: 01.01.2021
|
| Обозначение: | Серия 1.436-2 |
| Обозначение англ: | Series 1.436-2 |
| Статус: | не действует |
| Название рус.: | Выпуск 3. Межоконные приборы, петли, ручки и защелки |
| Дата добавления в базу: | 01.09.2013 |
| Дата актуализации: | 01.01.2021 |
| Дата окончания срока действия: | 01.09.1981 |
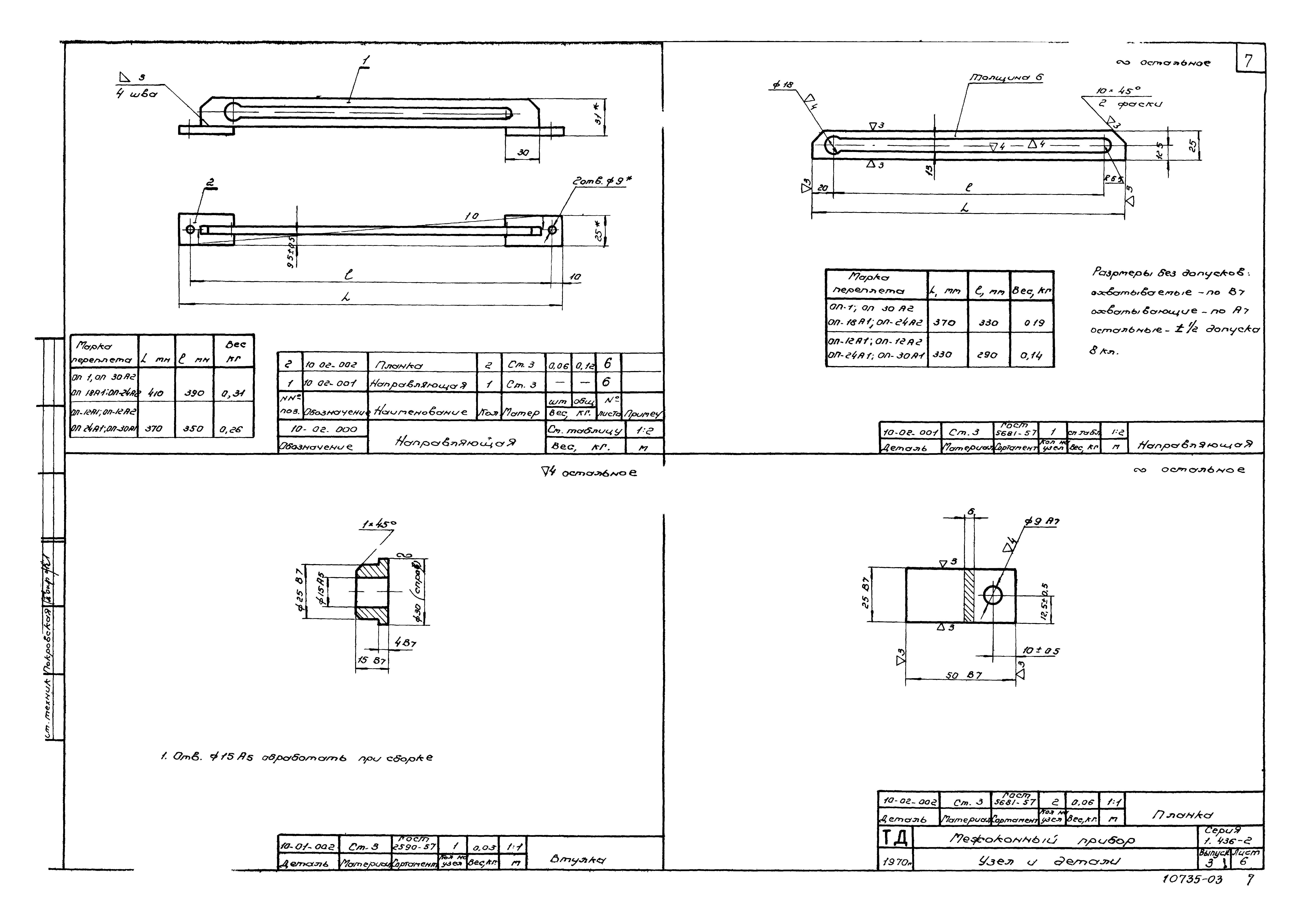
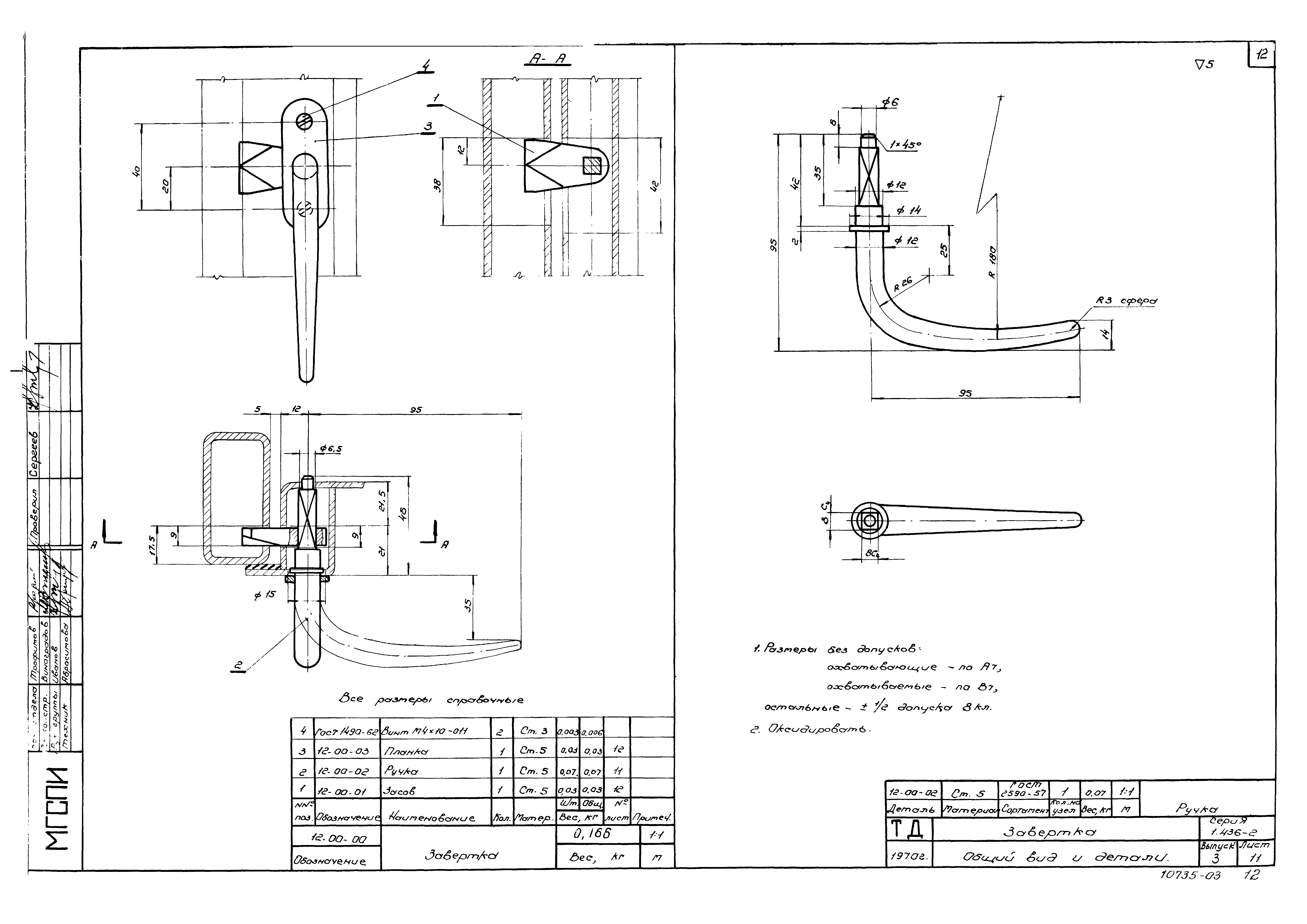
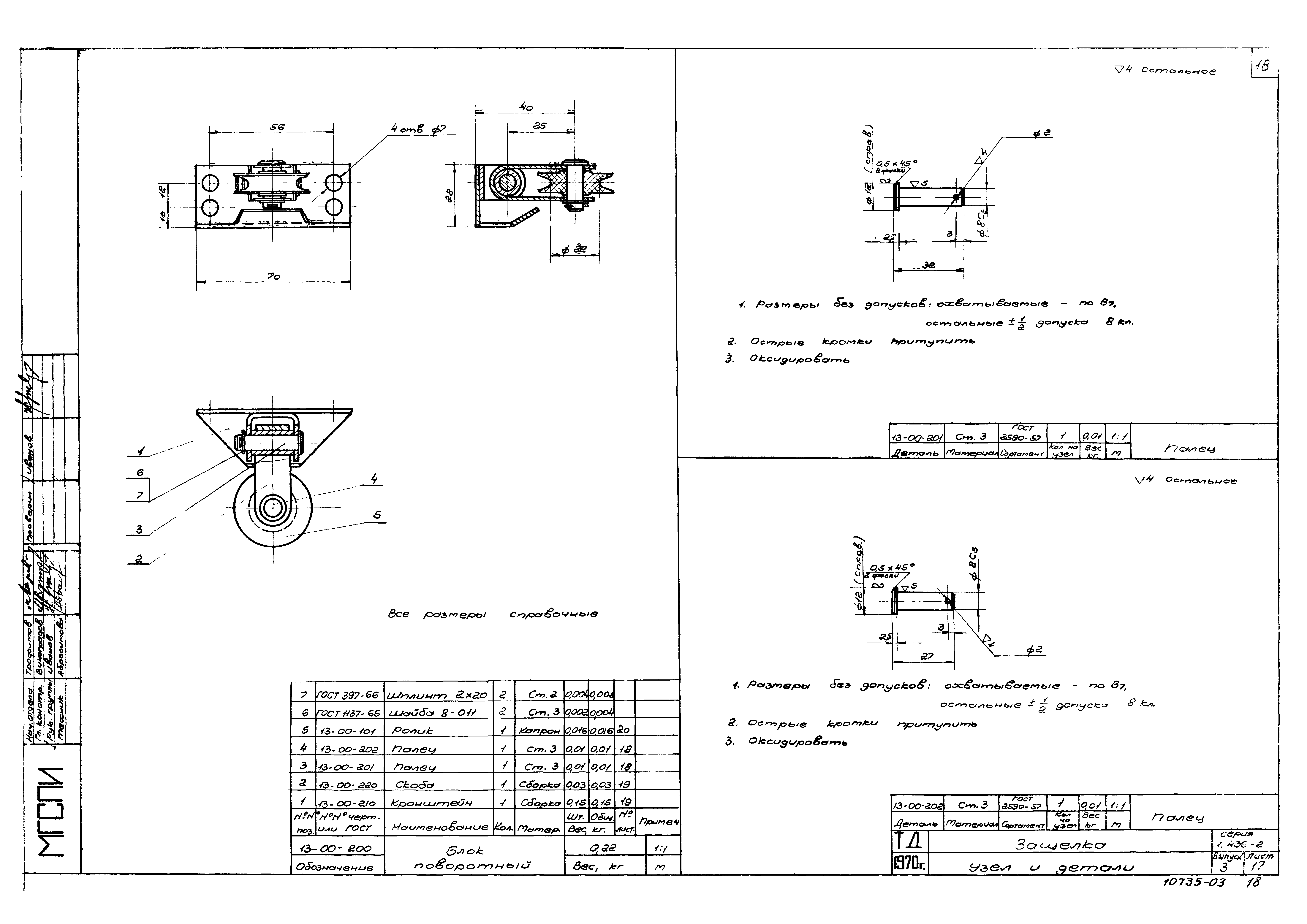
| Оглавление: | 1.436-2 Обложка 1.436-2 Титульный лист 1.436-2 Содержание выпуска. Пояснительная записка 1.436-2 Межоконный прибор. Общий вид 1.436-2 Межоконный прибор. Разрезы и сечения 1.436-2 Межоконный прибор. Узел и детали 1.436-2 Межоконный прибор. Детали 1.436-2 Петля. Общий вид и детали 1.436-2 Петля. Завертка. Детали 1.436-2 Завертка. Общий вид и детали 1.436-2 Защелка. Общий вид 1.436-2 Защелка. Узлы 1.436-2 Защелка. Детали 1.436-2 Защелка. Узел и детали |
| Разработан: | МГСПИ |
| Утверждён: | 26.03.1970 Госстрой СССР (Государственный комитет Совета Министров СССР по делам строительства) (USSR Gosstroy ) |
| Чем заменён: |
|




















