Скачать Серия 1.436-10 Выпуск 0. Указания по применению и изготовлению оконДата актуализации: 01.01.2021
|
| Обозначение: | Серия 1.436-10 |
| Обозначение англ: | Series 1.436-10 |
| Статус: | не действует |
| Название рус.: | Выпуск 0. Указания по применению и изготовлению окон |
| Дата добавления в базу: | 01.09.2013 |
| Дата актуализации: | 01.01.2021 |
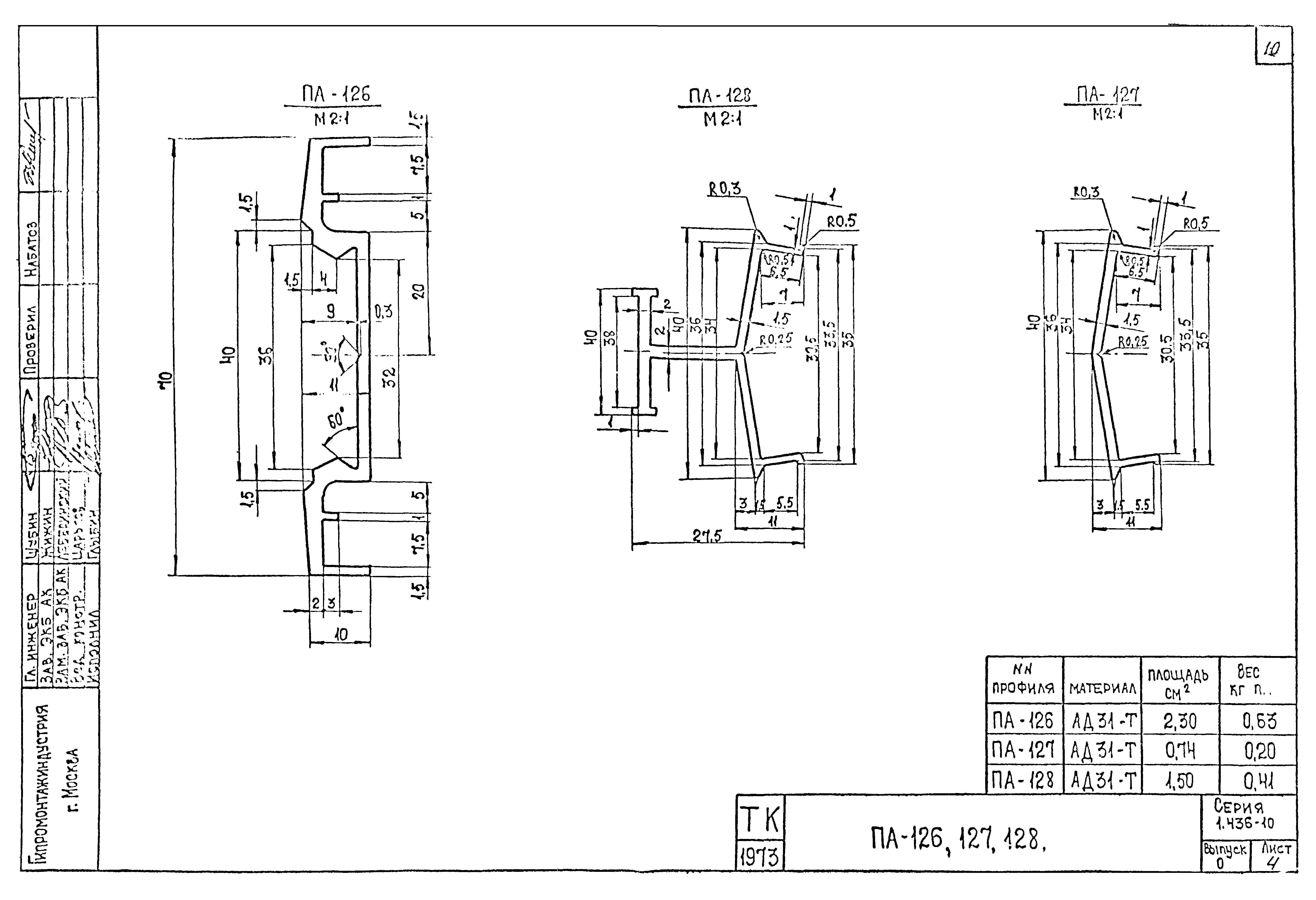
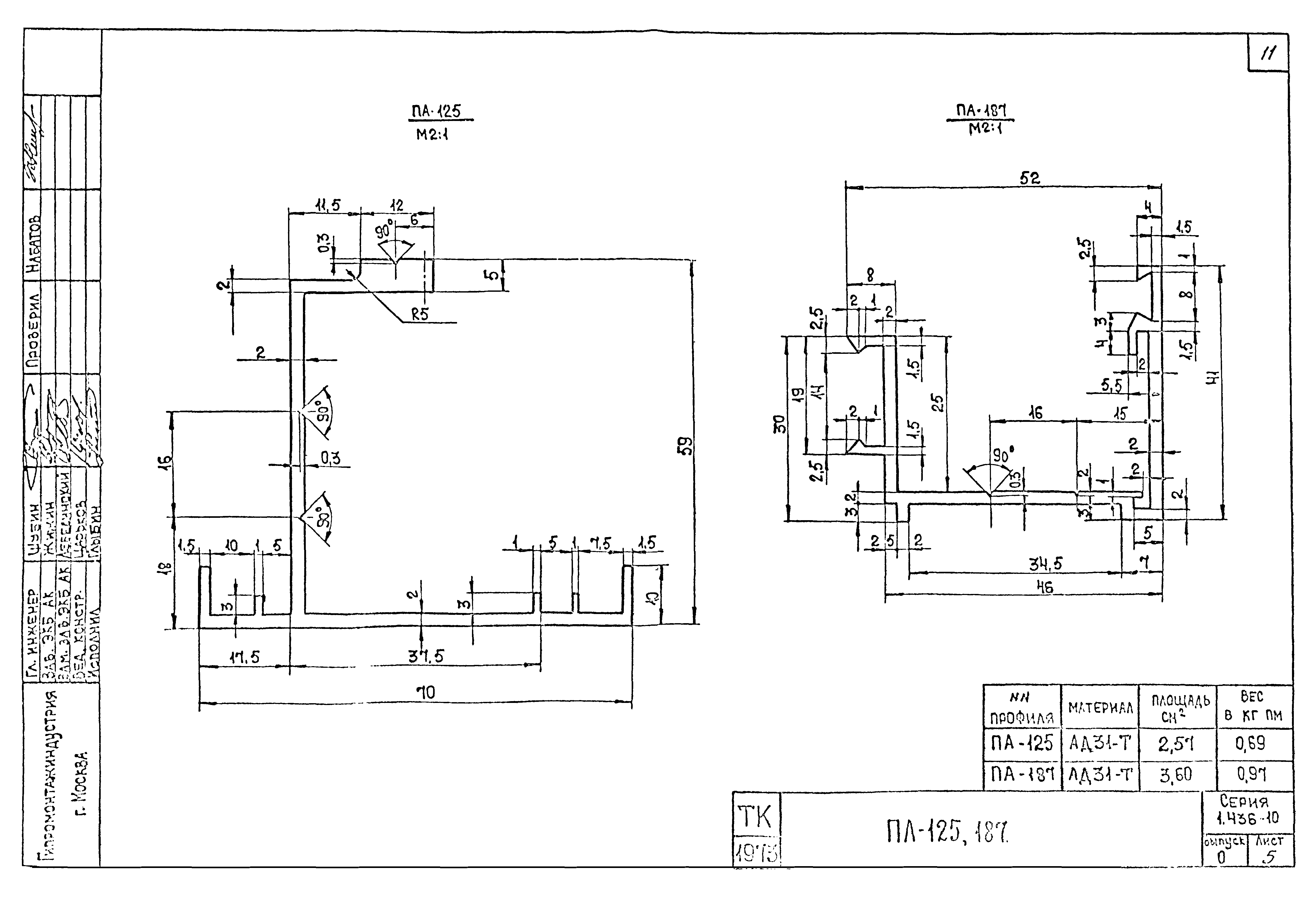
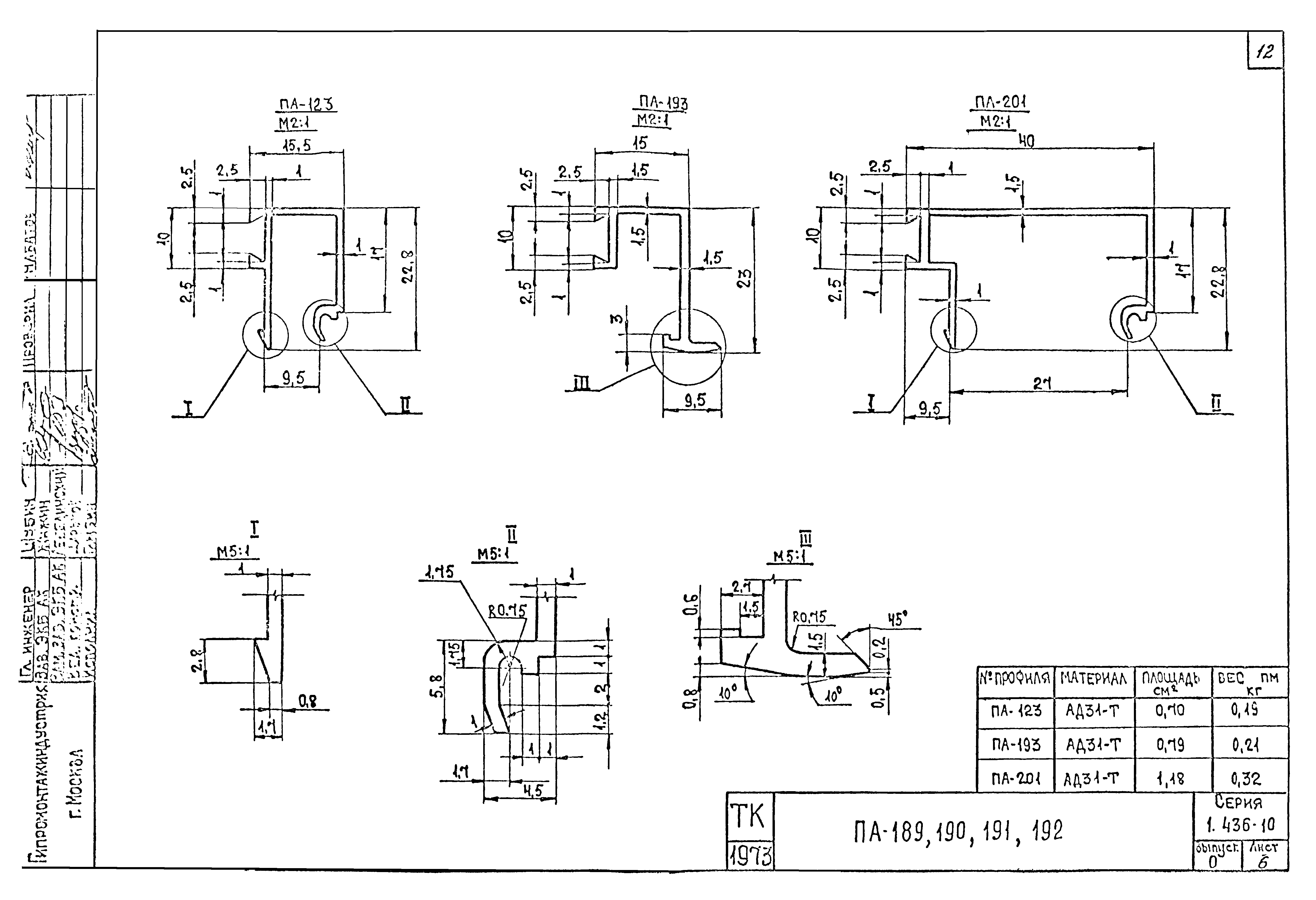
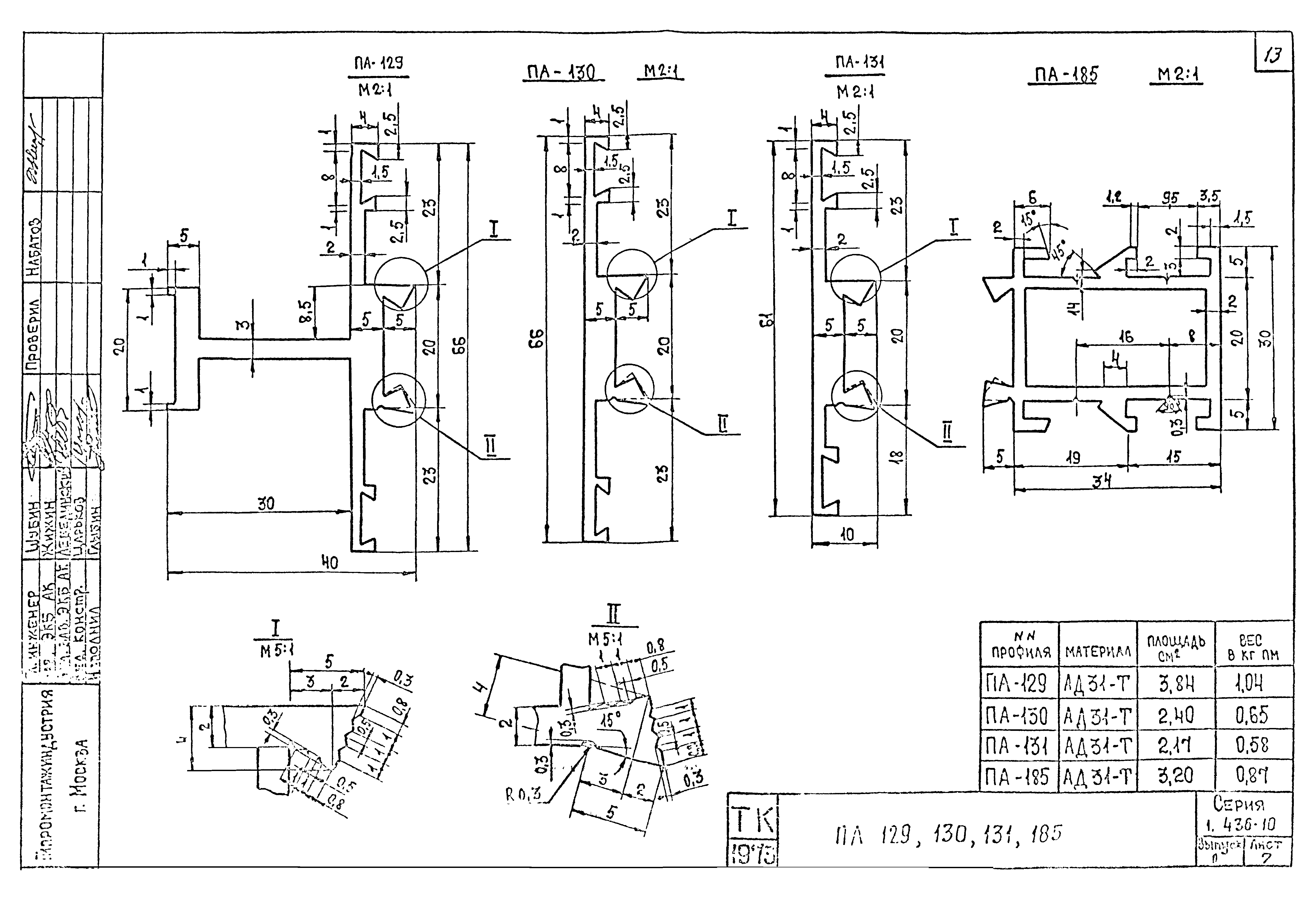
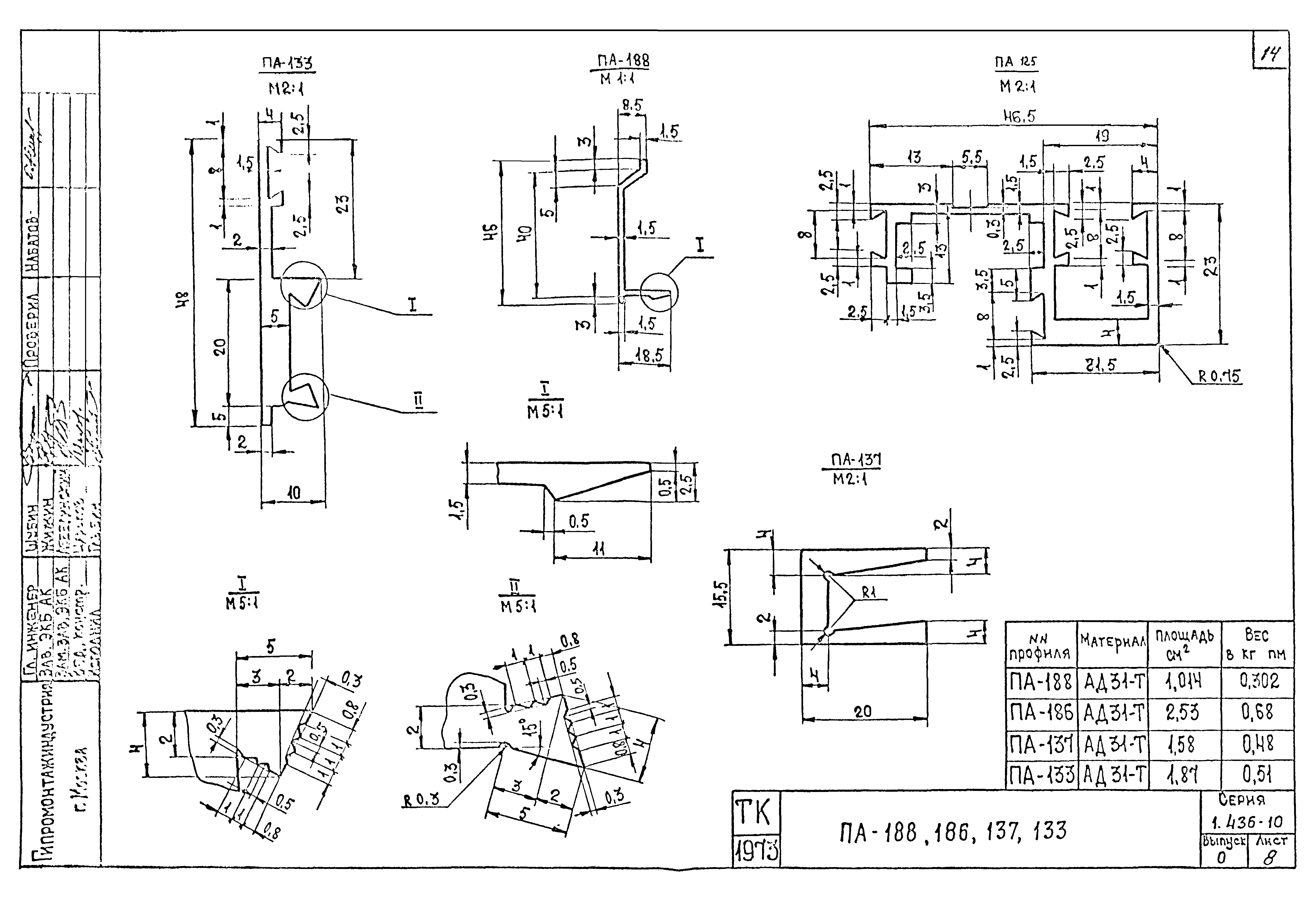
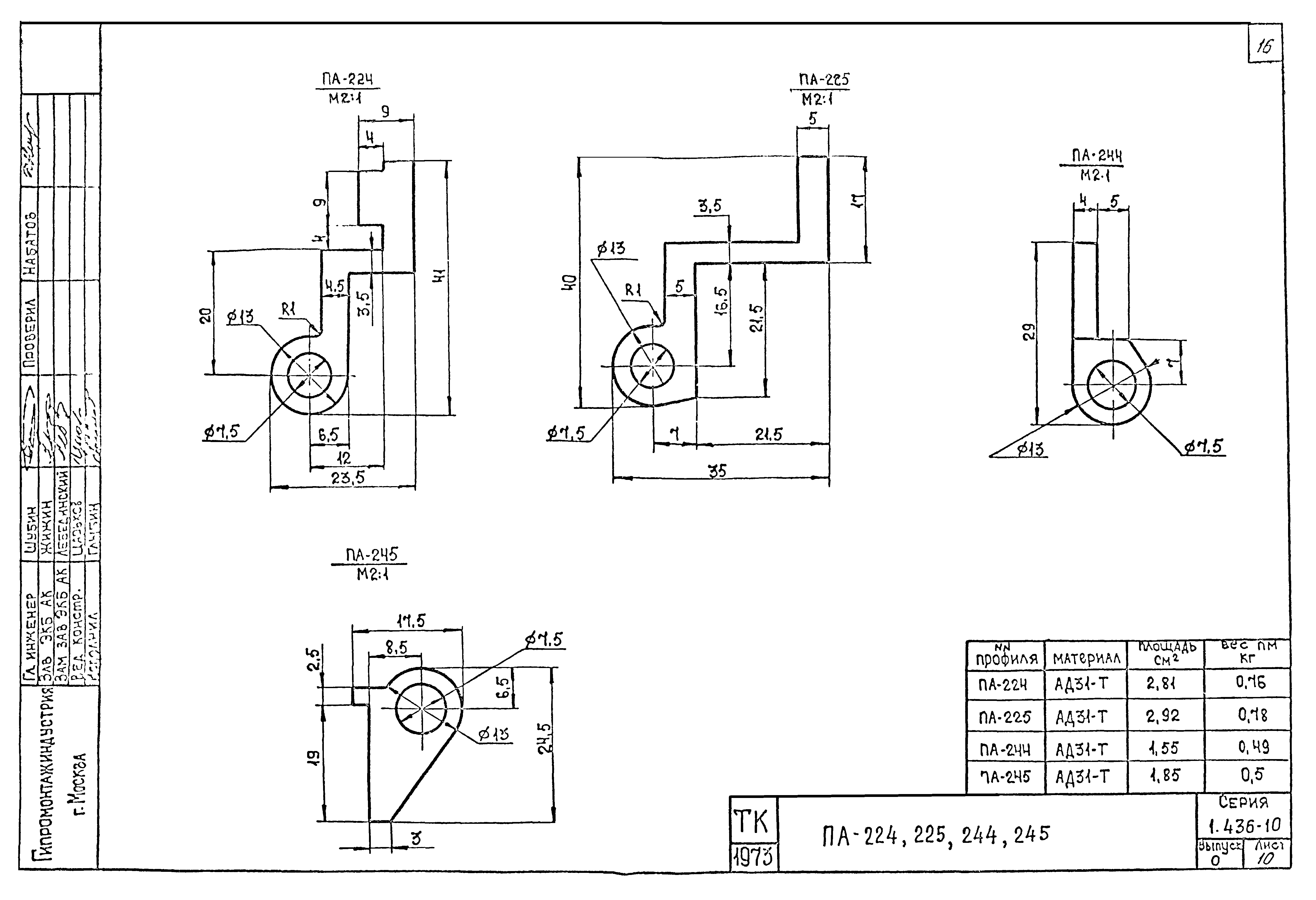
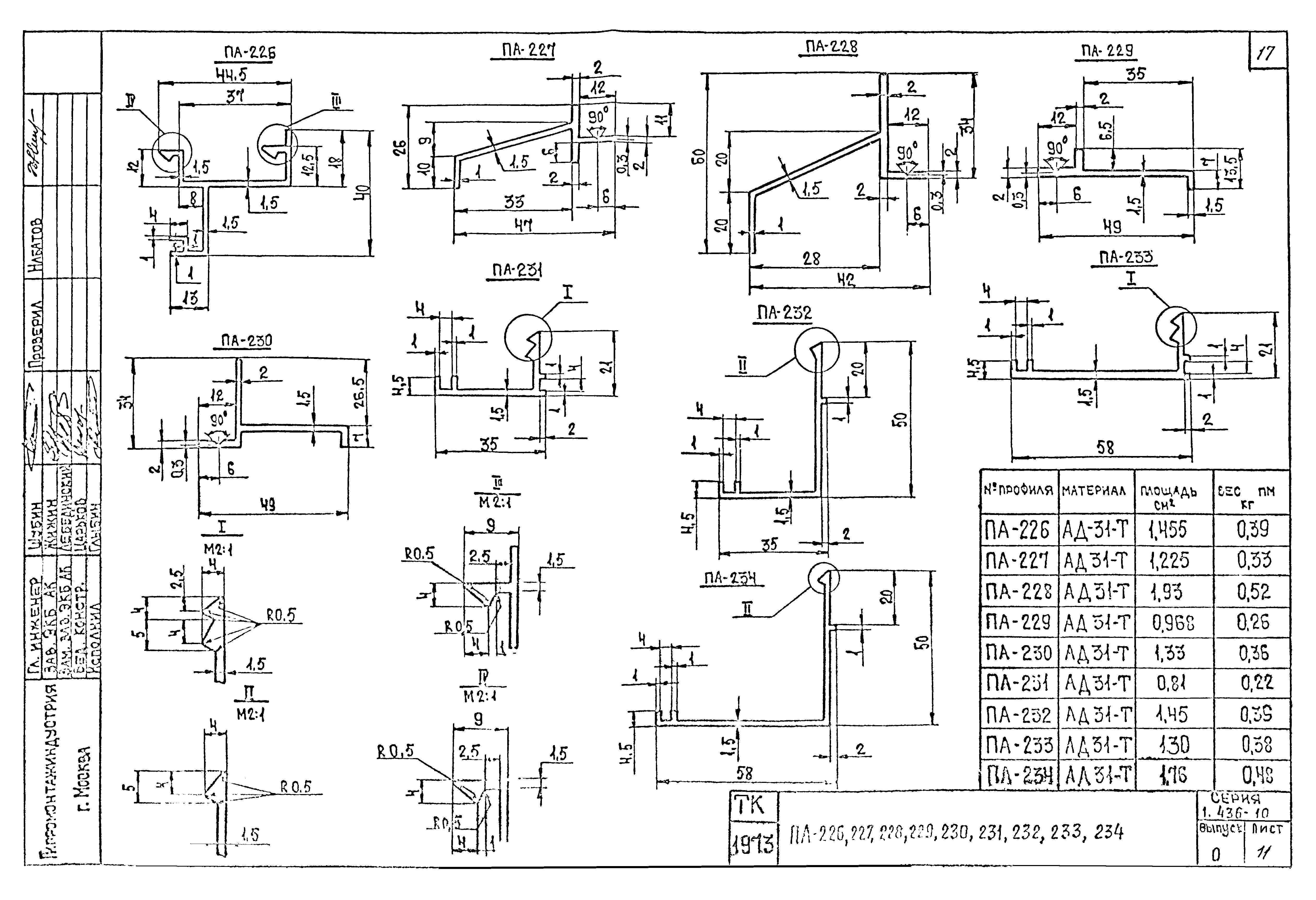
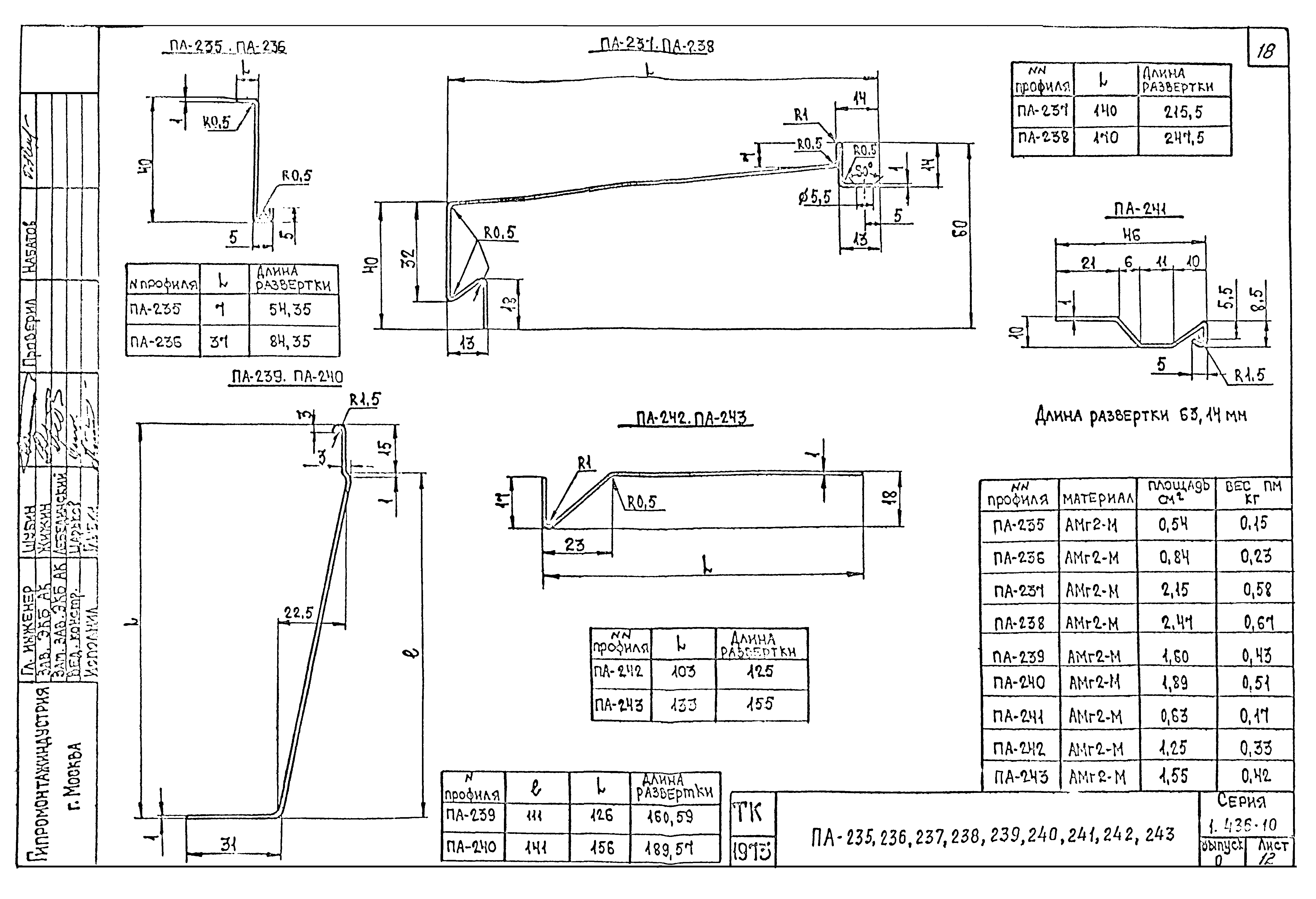
| Оглавление: | 1.436-10 Титульный лист 1.436-10 Содержание 1.436-10 Пояснительная записка 1.436-10 Условные обозначения 1.436-10 Номенклатура окон 1.436-10 Комплектация алюминиевых профилей 1.436-10 ПА-126;ПА-128;ПА-127 1.436-10 ПА-125;ПА-187 1.436-10 ПА-123;ПА-193;ПА-201 1.436-10 ПА-129;ПА-130;ПА-131;ПА-185 1.436-10 ПА-133;ПА-188;ПА-186;ПА-137 1.436-10 ПА-189;ПА-190;ПА-191;ПА-192 1.436-10 ПА-224;ПА-225;ПА-244;ПА-245 1.436-10 ПА-226;ПА-227;ПА-228;ПА-229;ПА230-;ПА-231;ПА-232;ПА-233;ПА-234 1.436-10 ПА-235;ПА-236;ПА-237;ПА-238;ПА-239;ПА-240;ПА-241;ПА-242;ПА-243 1.436-10 Комбинированные профили 1.436-10 П-3;П-4 1.436-10 ПР-26;ПР-27;ПР-33;ПР-44 |
| Разработан: | ЦНИИпромзданий Минмонтажспецстрой СССР Госстрой СССР Гипромонтажиндустрия Минмонтажспецстроя СССР Главспецлегконструкция |
| Утверждён: | 15.01.1974 Госстрой СССР (Государственный комитет Совета Министров СССР по делам строительства) (USSR Gosstroy ) |





















