Скачать Типовой проект 902-2-148 Альбом 2. Технологическая, механическая и санитарно-техническая частиДата актуализации: 01.01.2021
|
| Обозначение: | Типовой проект 902-2-148 |
| Обозначение англ: | 902-2-148 |
| Статус: | не действует |
| Название рус.: | Альбом 2. Технологическая, механическая и санитарно-техническая части |
| Дата добавления в базу: | 01.09.2013 |
| Дата актуализации: | 01.01.2021 |
| Дата введения: | 15.05.1973 |
| Дата окончания срока действия: | 01.02.1984 |
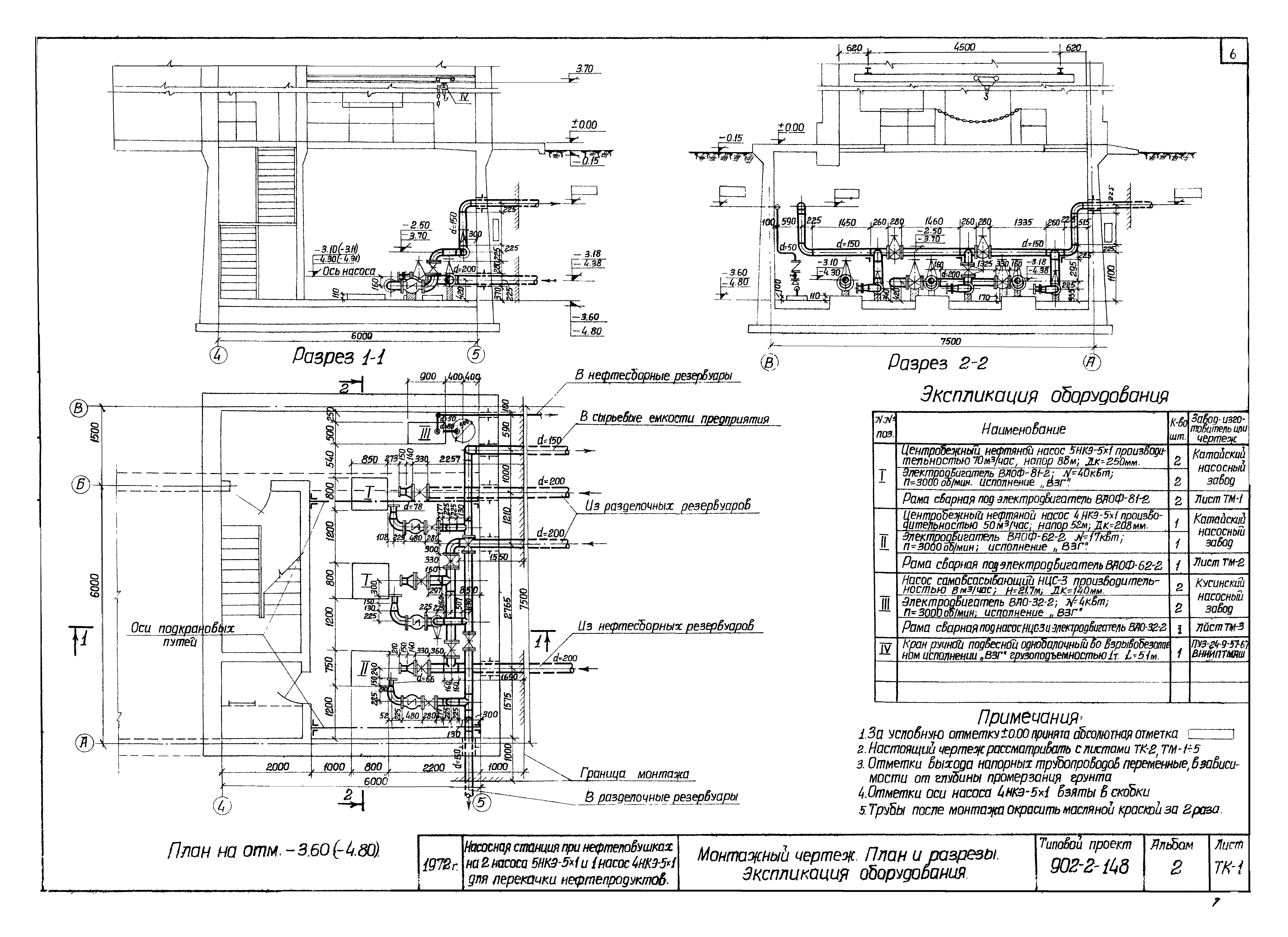
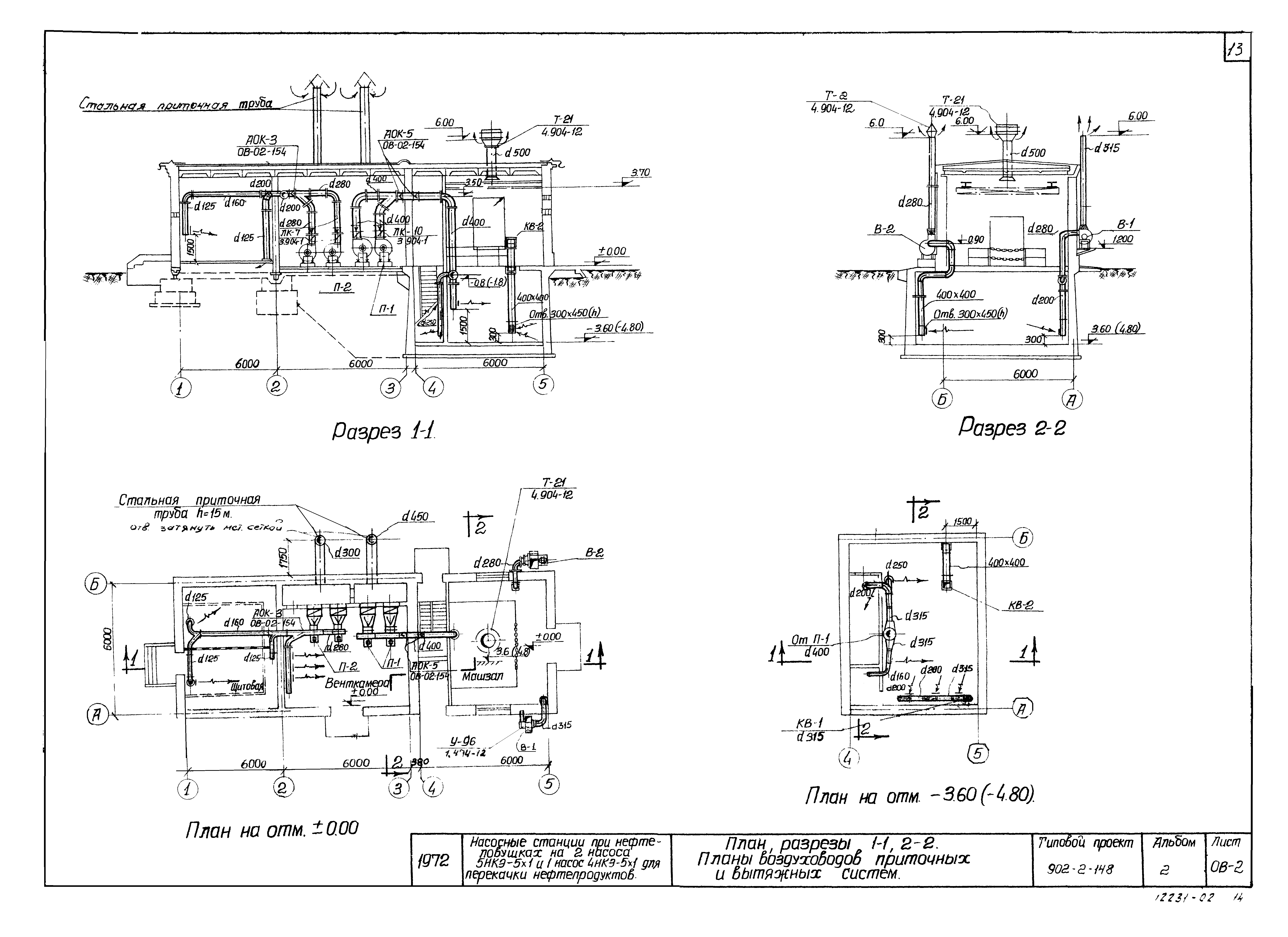
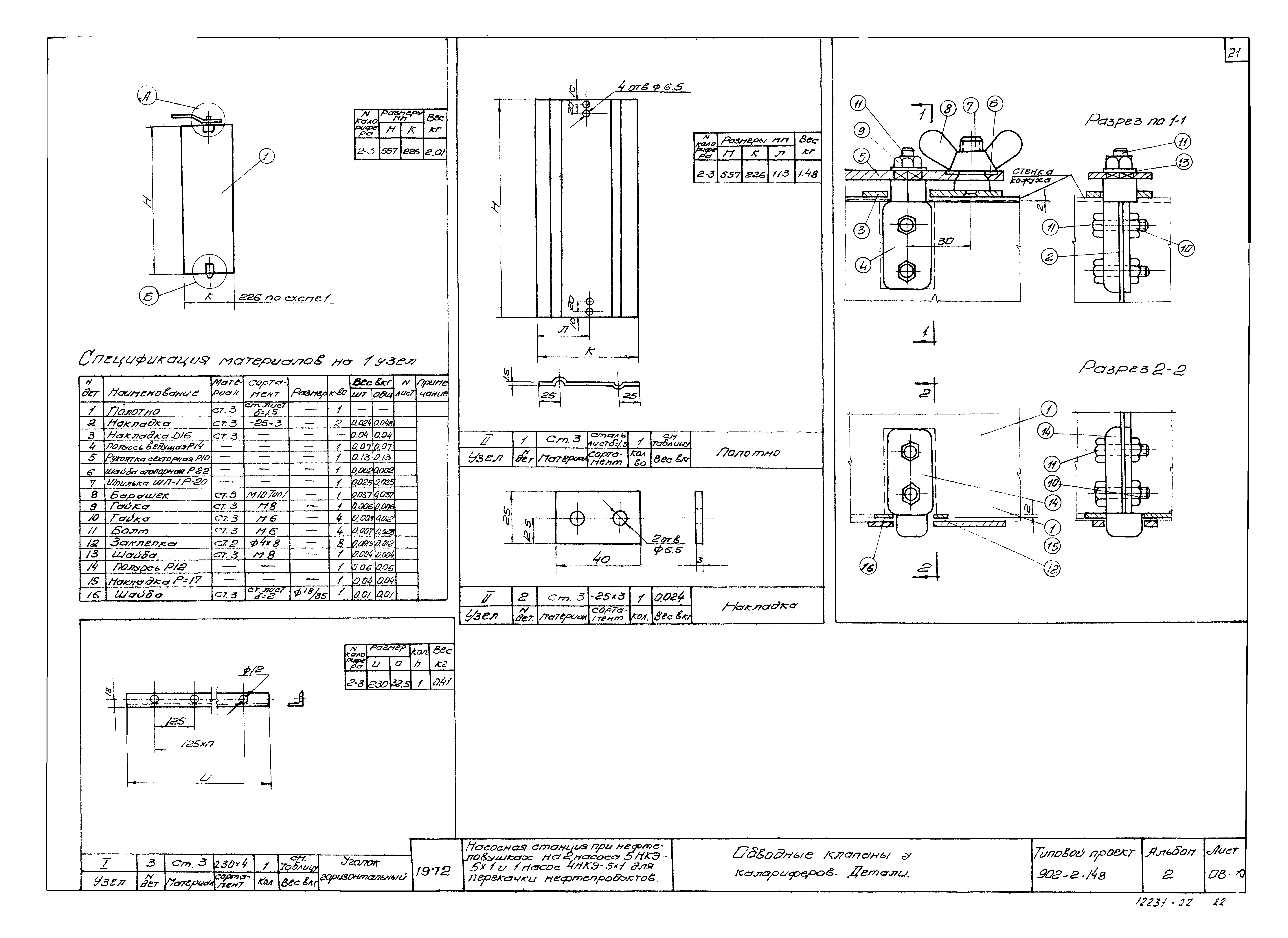
| Оглавление: | ТП 902-2-148-ПЗ-1 Содержание альбома ТП 902-2-148-ПЗ-2-4 Пояснительная записка ТП 902-2-148-ТК Технологическая часть ТП 902-2-148-ТК-1 Монтажный чертеж. План и разрезы. Экспликация оборудования ТП 902-2-148-ТК-2 Схемы технологических трубопроводов и отвода тренажных вод. Экспликация ТП 902-2-148-ВК-1 Внутренние водопровод и канализации. Экспликация ТП 902-2-148-ТМ Механическая часть ТП 902-2-148-ТМ-1 Установка насоса 5НКЭ-5х1 с электродвигателем ВАОФ-81-2 ТП 902-2-148-ТМ-2 Установка насоса 4НКЭ-5х1 с электродвигателем ВАОФ-62-2 ТП 902-2-148-ТМ-3 Установка насоса НЦС-3 с электродвигателем ВАО-32-2 ТП 902-2-148-ОВ Сантехническая часть ТП 902-2-148-ОВ-1 Характеристика отопительно-вентиляционного оборудования. Основные показатели проекта ТП 902-2-148-ОВ-2 Планы, разрезы 1-1,2-2. Планы воздуховодов приточных вытяжных систем ТП 902-2-148-ОВ-3 Схемы воздуховодов вентиляционных систем П-1,П-2,В-1,В-2 ТП 902-2-148-ОВ-4 План и разрез с нанесение приточных установок П-1 и П-2 (теплоноситель вода 150º-70º) ТП 902-2-148-ОВ-5 План и разрез с нанесение приточных установок П-1 и П-2 (теплоноситель пар Р-2ати) ТП 902-2-148-ОВ-6 План с нанесением трубопроводов и схема обвязки калориферов (теплоноситель вода 150-70º) ТП 902-2-148-ОВ-7 План с нанесением трубопроводов и схема обвязки калориферов (теплоноситель пар Р-2ати) ТП 902-2-148-ОВ-8 Рамы для крепления калориферов ТП 902-2-148-ОВ-9 Обводные клапаны у калориферов. Общий вид и детали ТП 902-2-148-ОВ-10 Обводные клапаны у калориферов. Детали ТП 902-2-148-ОВ-11 Маслоотделитель. Общий вид ТП 902-2-148-ОВ-12 Маслоотделитель. Узлы и детали ТП 902-2-148-ОВ-13 Маслоотделитель. Детали ТП 902-2-148-ОВ-14 Горизонтальный воздухосборник. Общий вид и детали |
| Разработан: | Институт Харьковский Водоканалпроект Госстроя СССР |
| Утверждён: | 23.04.1973 СоюзводоканалНИИпроект (SoyuzvodokanalNIIproject 96) |

























