Скачать Типовой проект 902-2-148 Альбом 4. Электрооборудование, автоматика и технологический контроль (задание заводу-изготовителю)Дата актуализации: 01.01.2021
|
| Обозначение: | Типовой проект 902-2-148 |
| Обозначение англ: | 902-2-148 |
| Статус: | не действует |
| Название рус.: | Альбом 4. Электрооборудование, автоматика и технологический контроль (задание заводу-изготовителю) |
| Дата добавления в базу: | 01.09.2013 |
| Дата актуализации: | 01.01.2021 |
| Дата введения: | 15.05.1973 |
| Дата окончания срока действия: | 01.02.1984 |
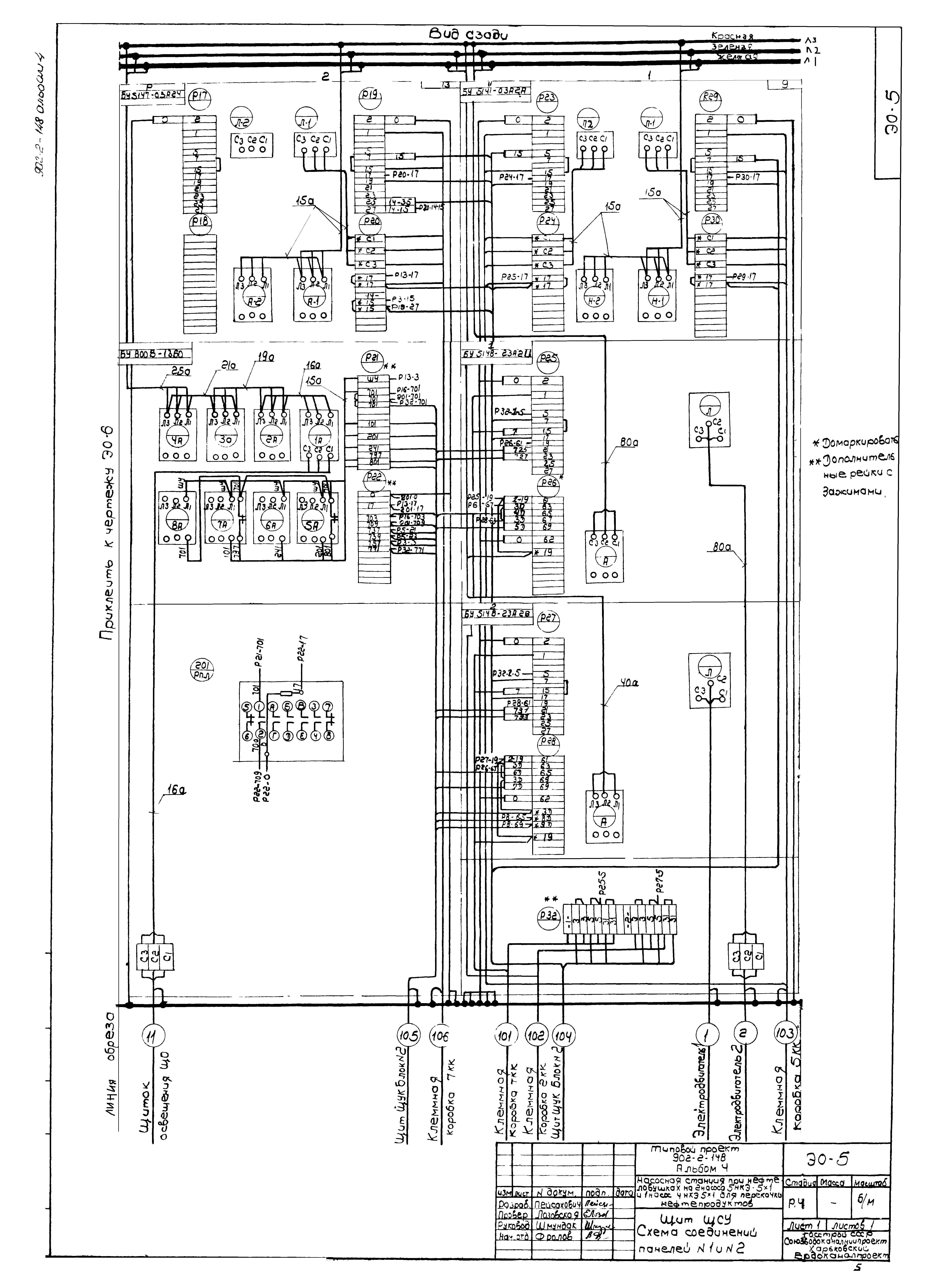
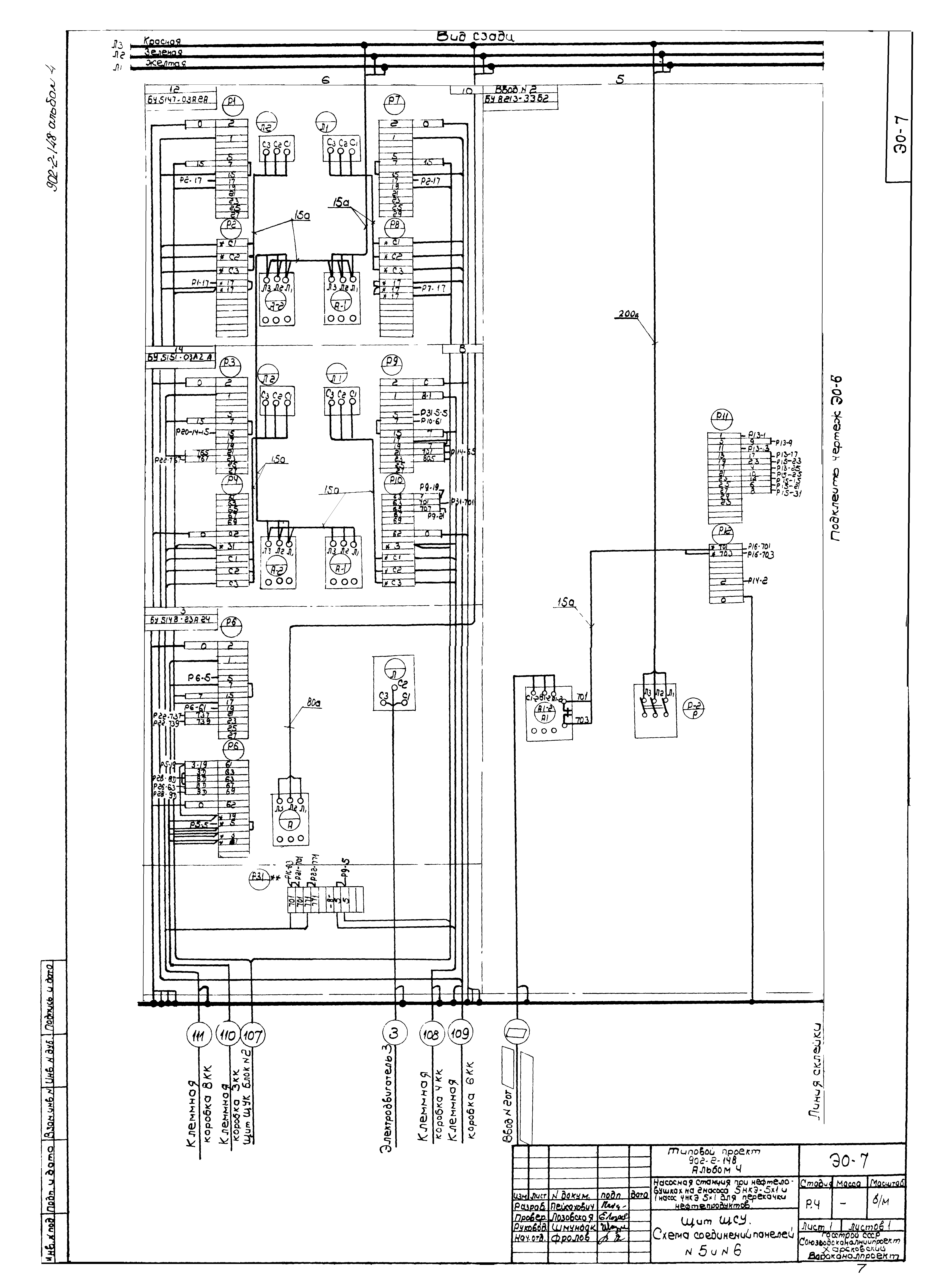
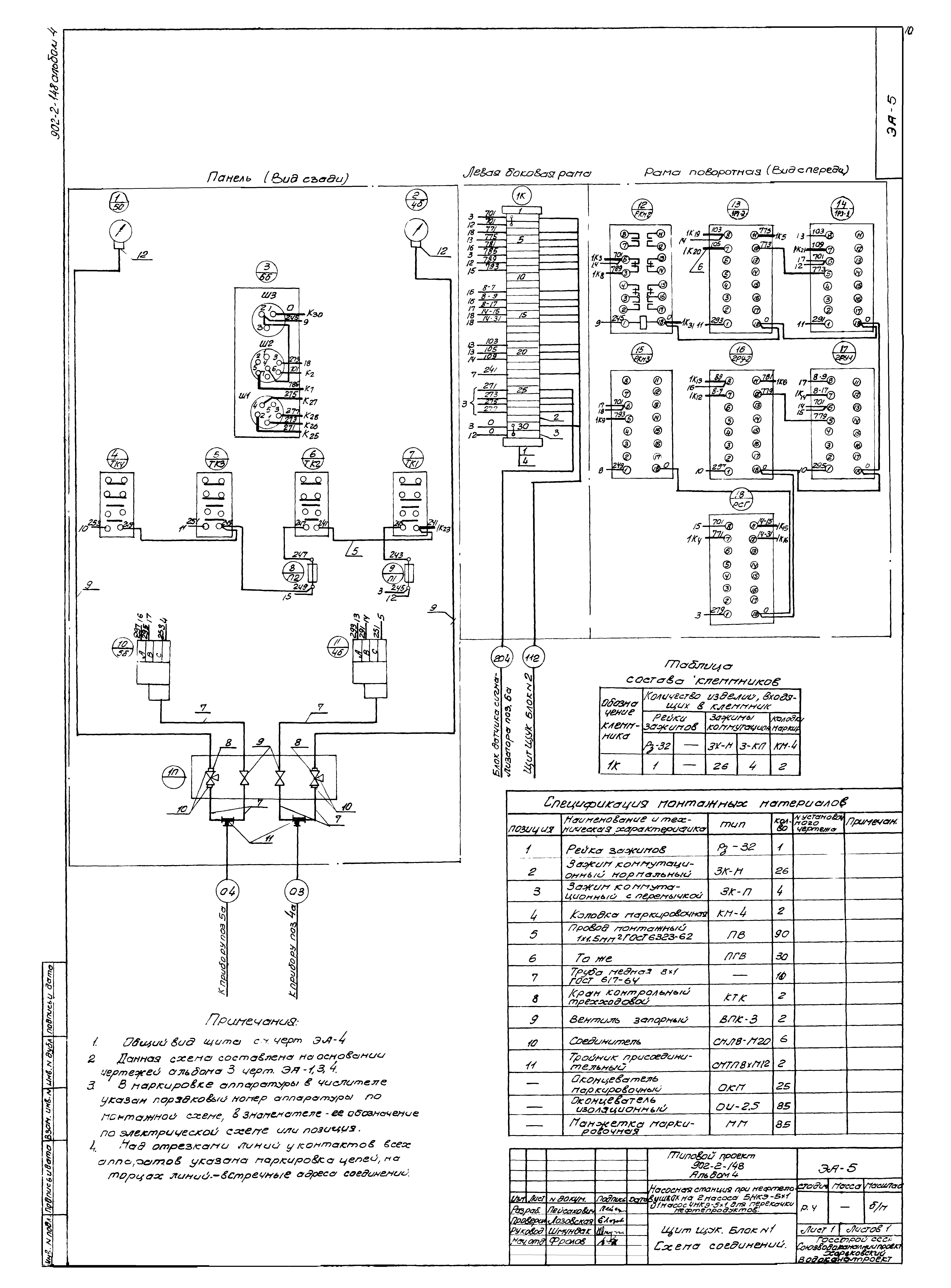
| Оглавление: | ТП 902-2-148-ЭО-1 Содержание альбома. Содержание раздела 1 ТП 902-2-148-ЭО-2 Щит ЩСУ. Общий вид ТП 902-2-148-ЭО-3 Щит ЩСУ. Таблица технических данных электрооборудования ТП 902-2-148-ЭО-4 Щит ЩСУ. Перечень надписей ТП 902-2-148-ЭО-5 Щит ЩСУ. Панели №1 и №2. Схема соединений ТП 902-2-148-ЭО-6 Щит ЩСУ. Панели №3, №4. Схема соединений ТП 902-2-148-ЭО-7 Щит ЩСУ. Панели №5 и №6. Схема соединений ТП 902-2-148-ЭА-1 Содержание раздела 2 ТП 902-2-148-ЭА-2 Заказная спецификация щитов и пультов ТП 902-2-148-ЭА-3 Щит ЩУК. Общий вид ТП 902-2-148-ЭА-4 Щит ЩУК. Общий вид ТП 902-2-148-ЭА-5 Щит ЩУК. Блок № 1. Схема соединений ТП 902-2-148-ЭА-6 Щит ЩУК. Блок № 2. Схема соединений ТП 902-2-148-ЭА-7 Щит ЩУК. Блок № 2. Схема соединений ТП 902-2-148-ЭА-8 Щит ЩУК. Блок № 2. Схема соединений ТП 902-2-148-ЭА-9 Заказная спецификация электроаппаратуры |
| Разработан: | Институт Харьковский Водоканалпроект Госстроя СССР |
| Утверждён: | 23.04.1973 СоюзводоканалНИИпроект (SoyuzvodokanalNIIproject 96) |














