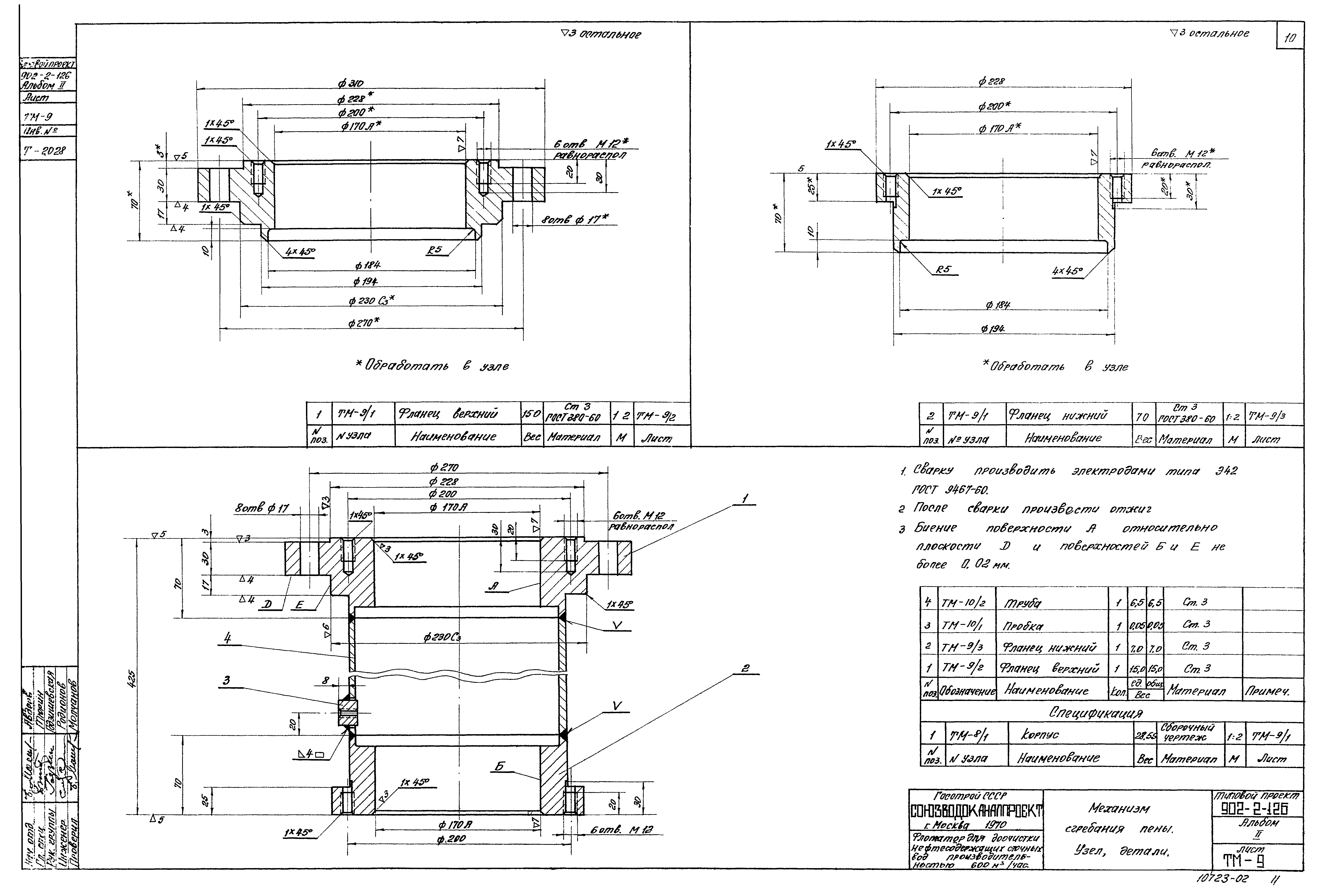
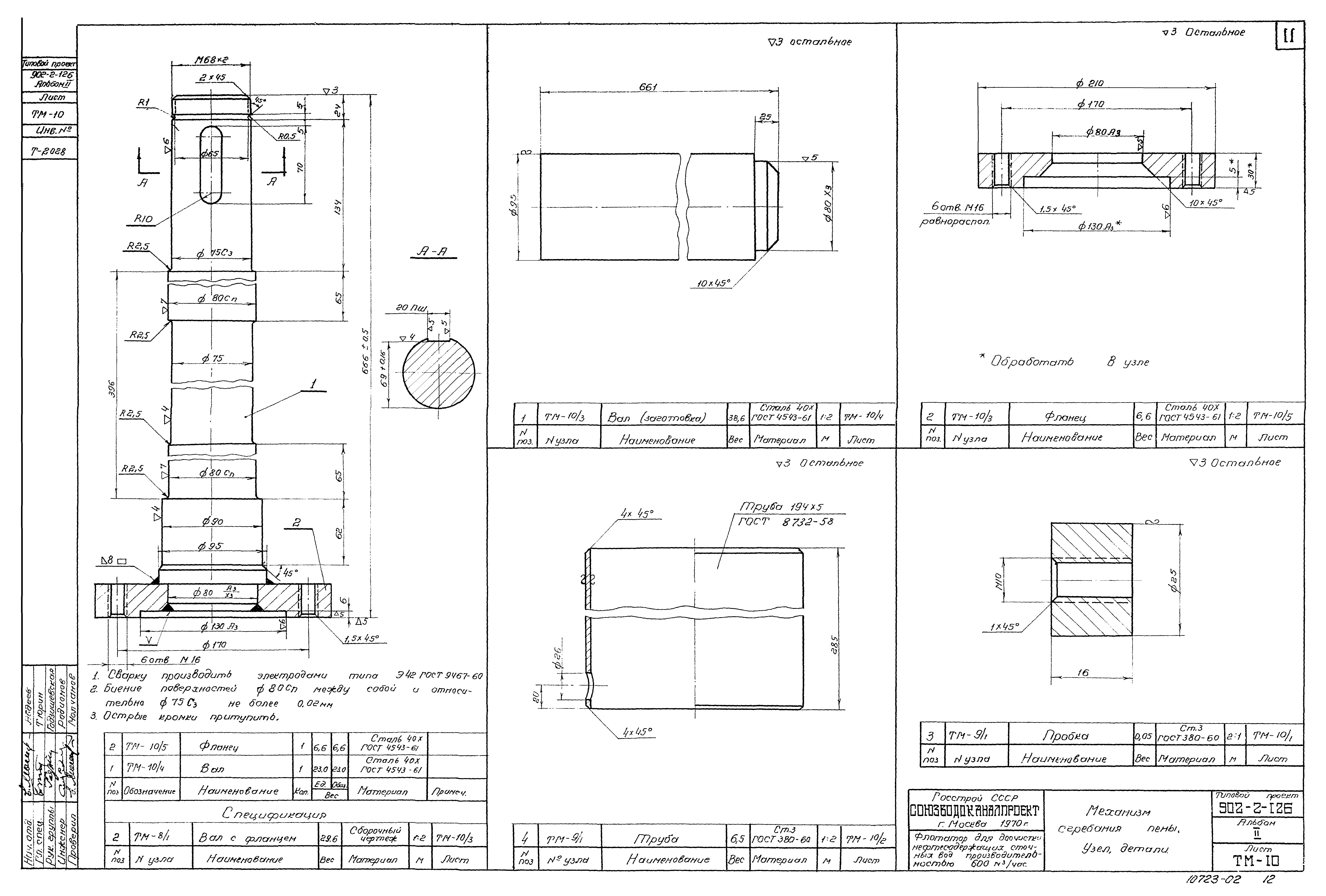
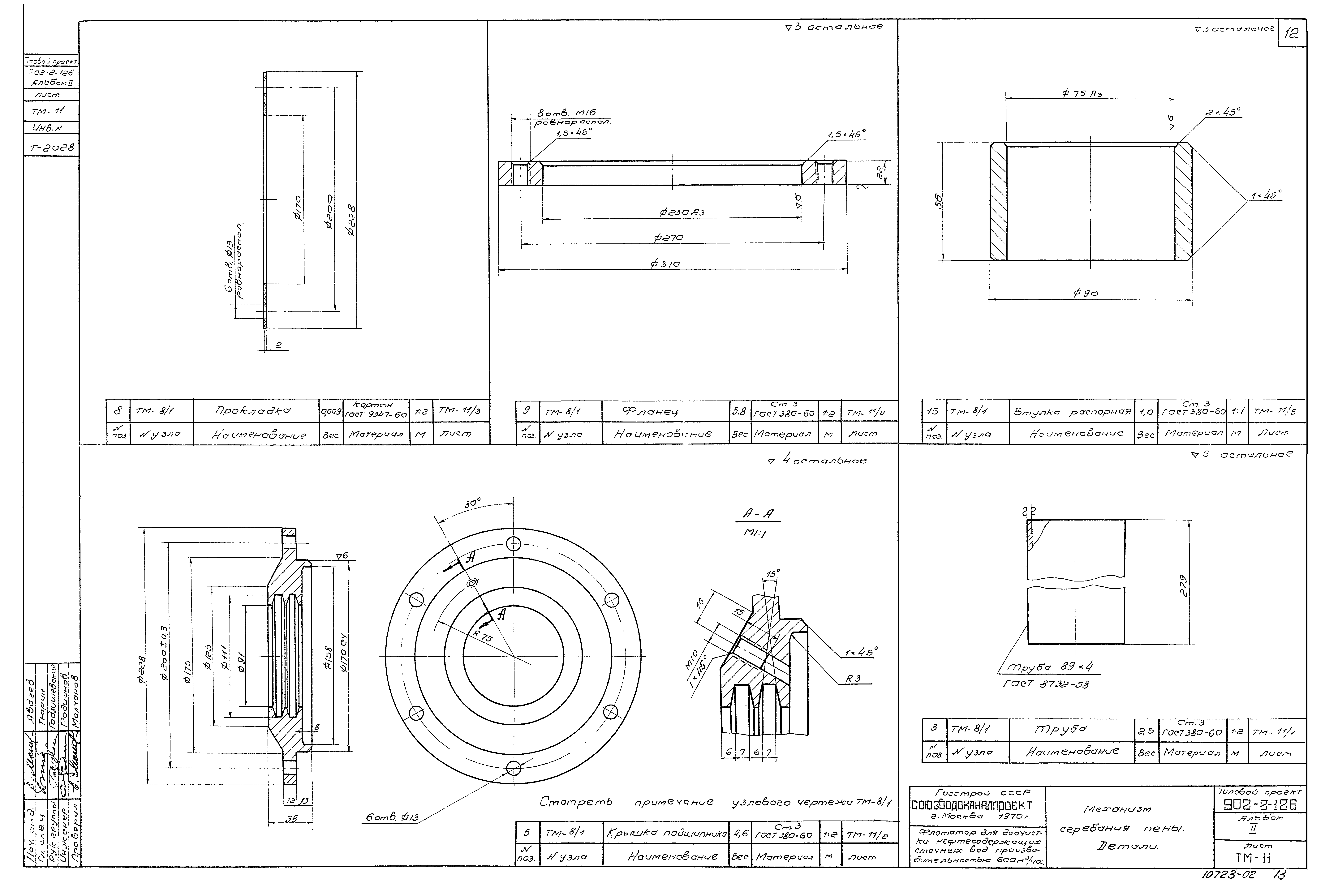
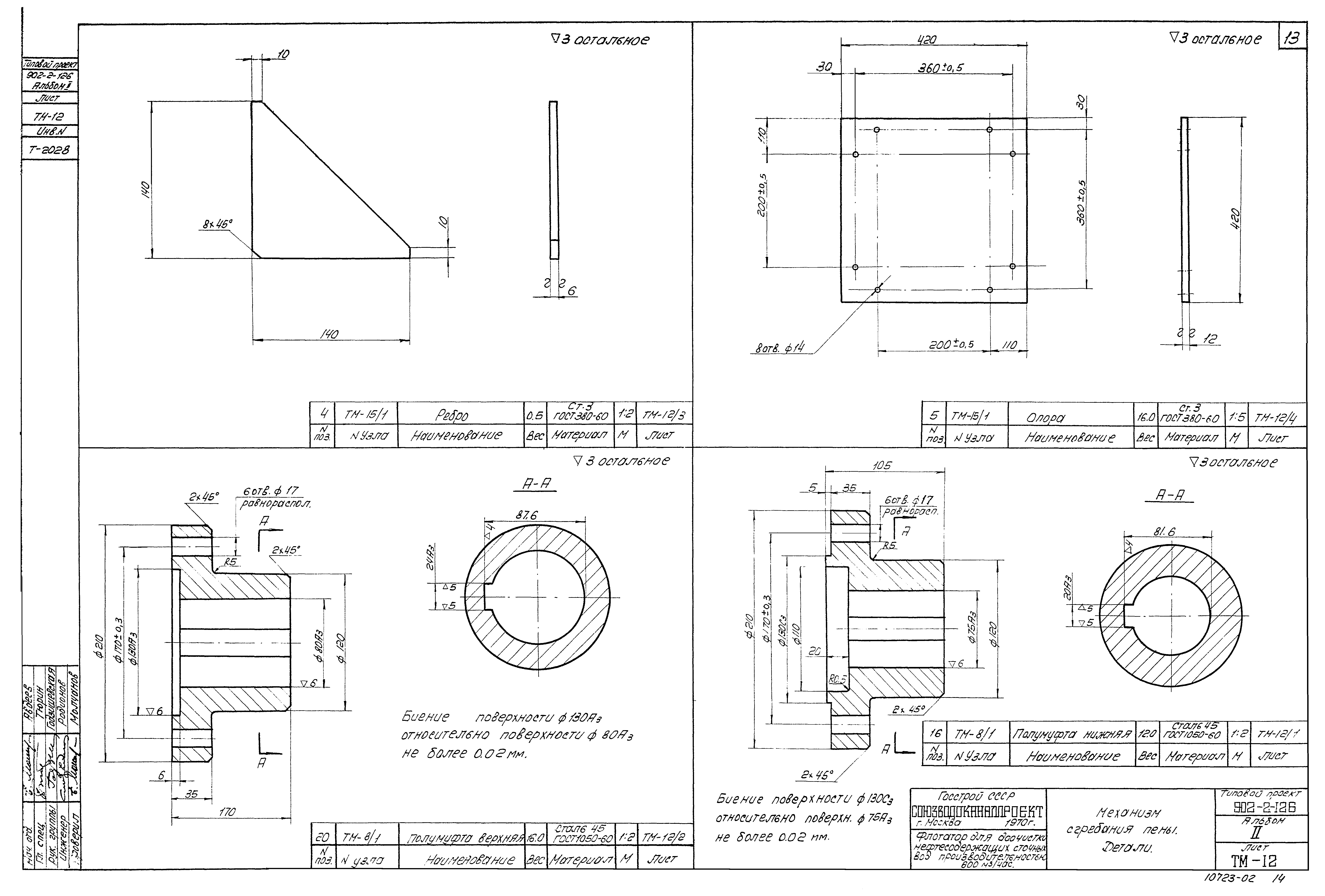
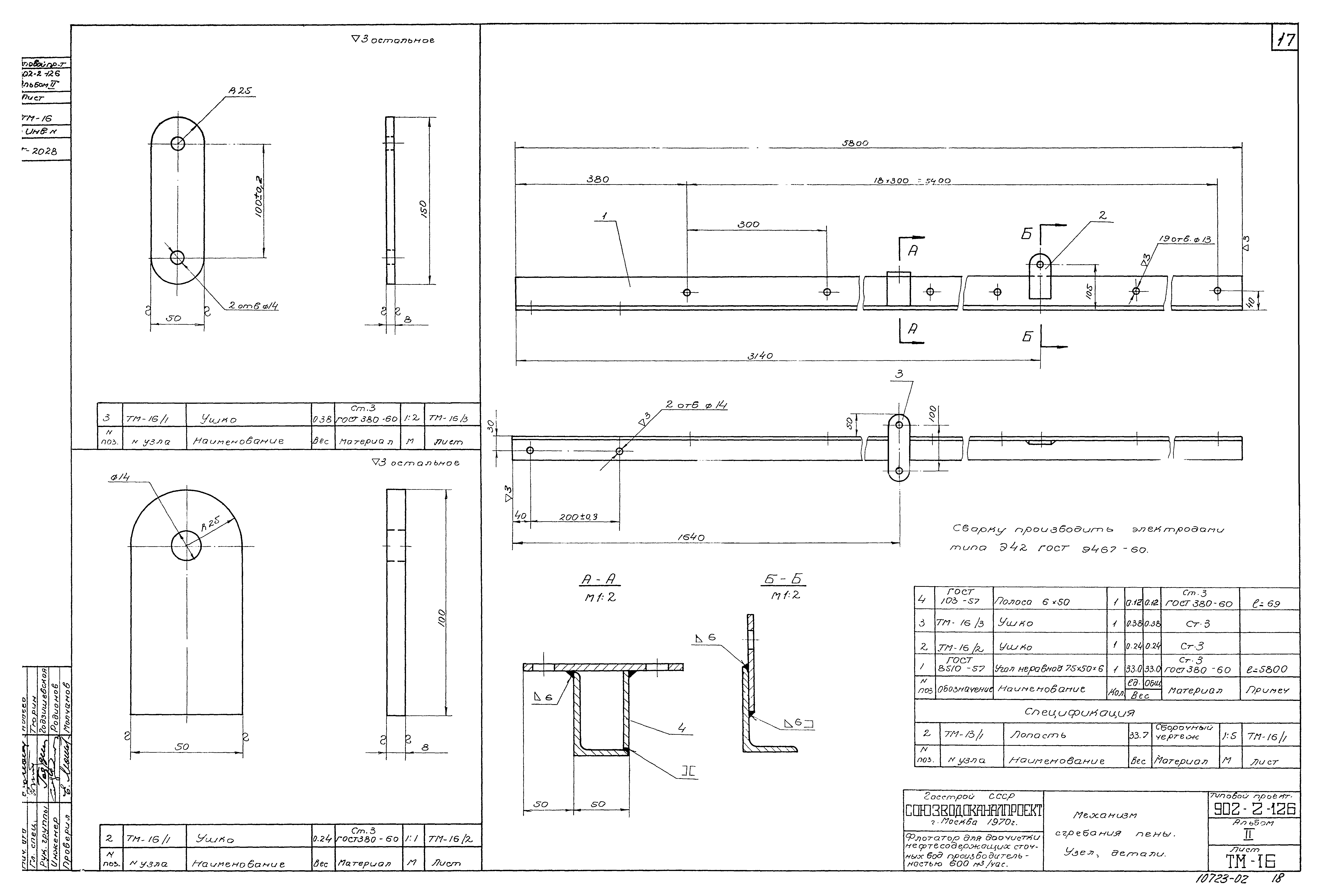
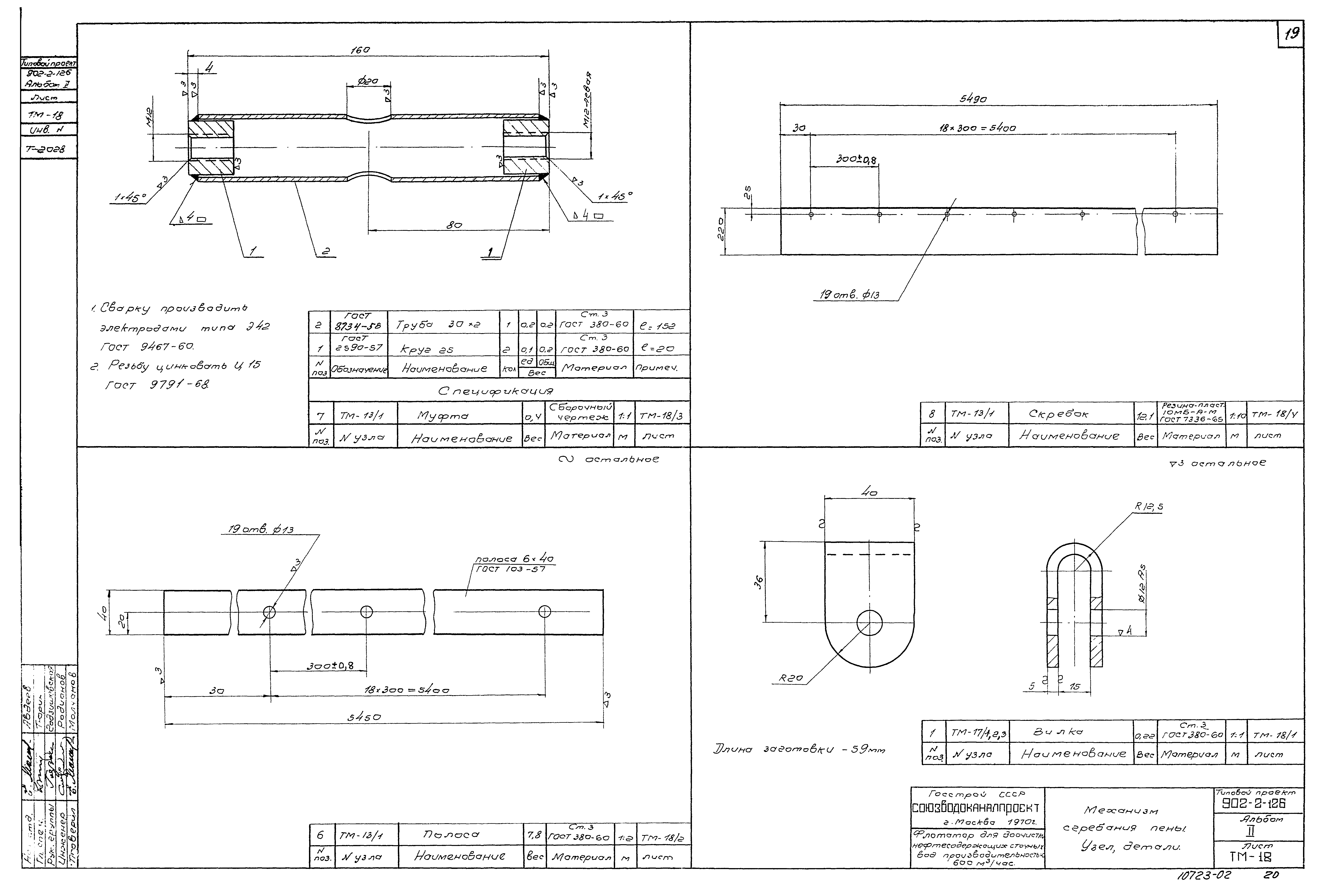
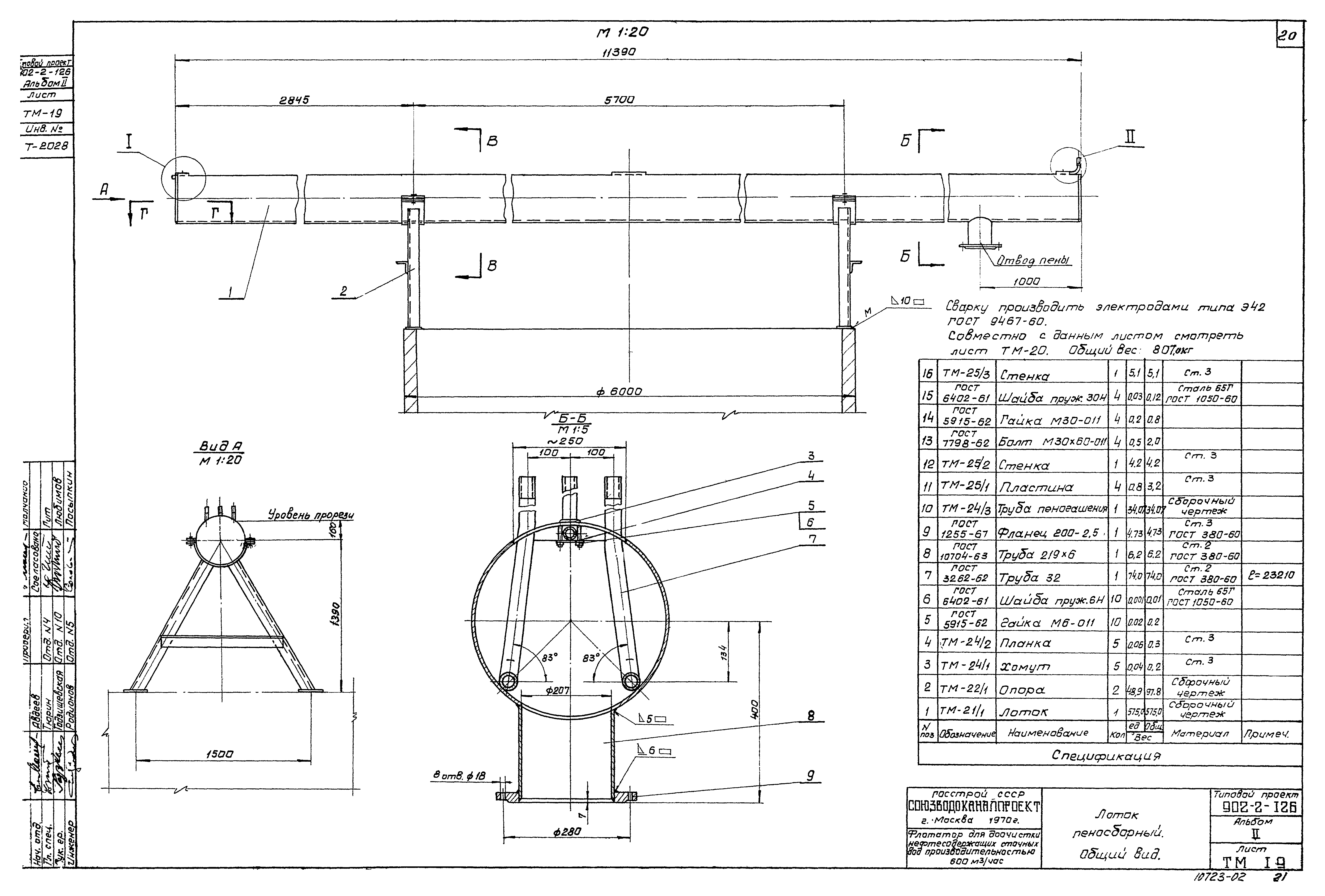
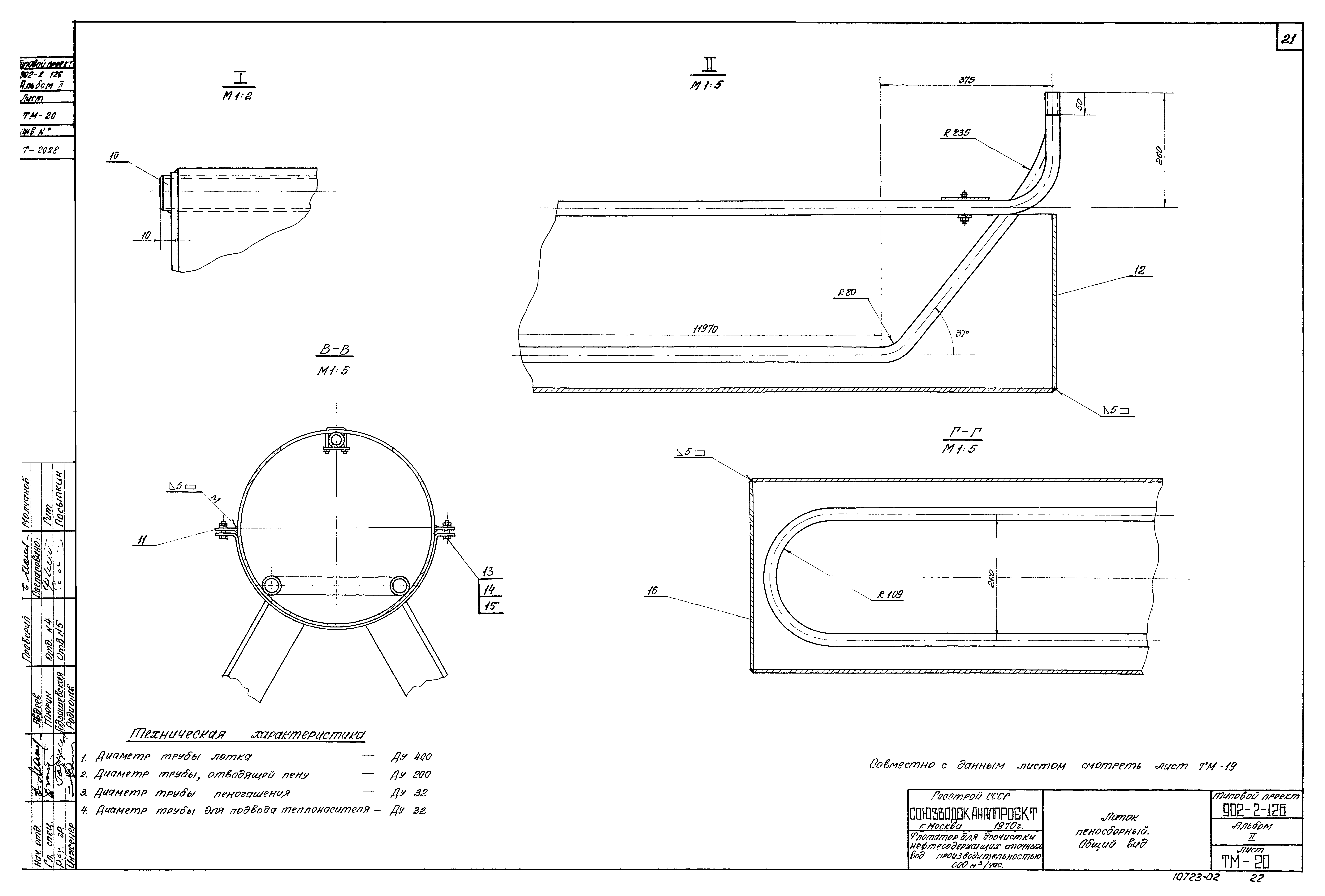
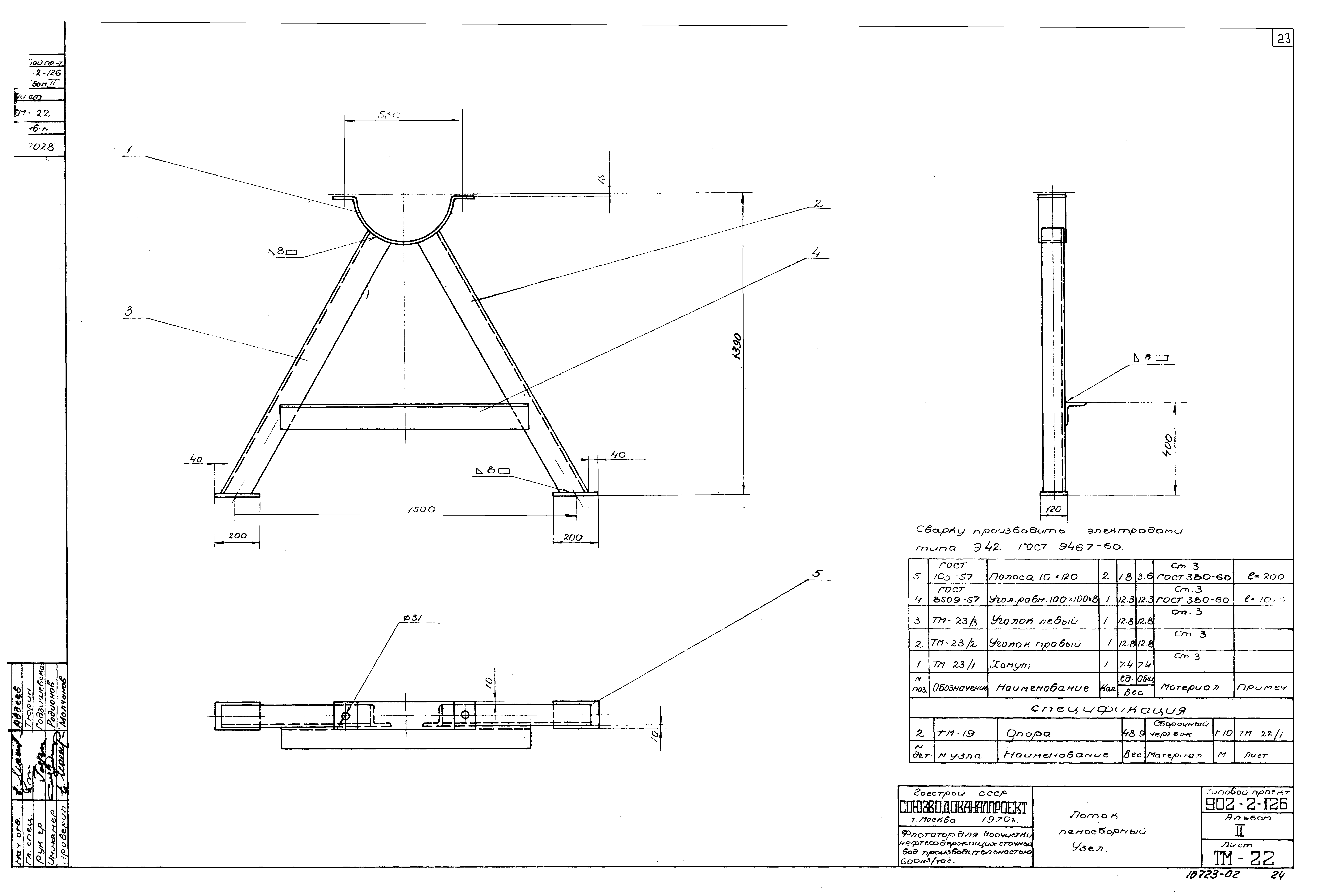
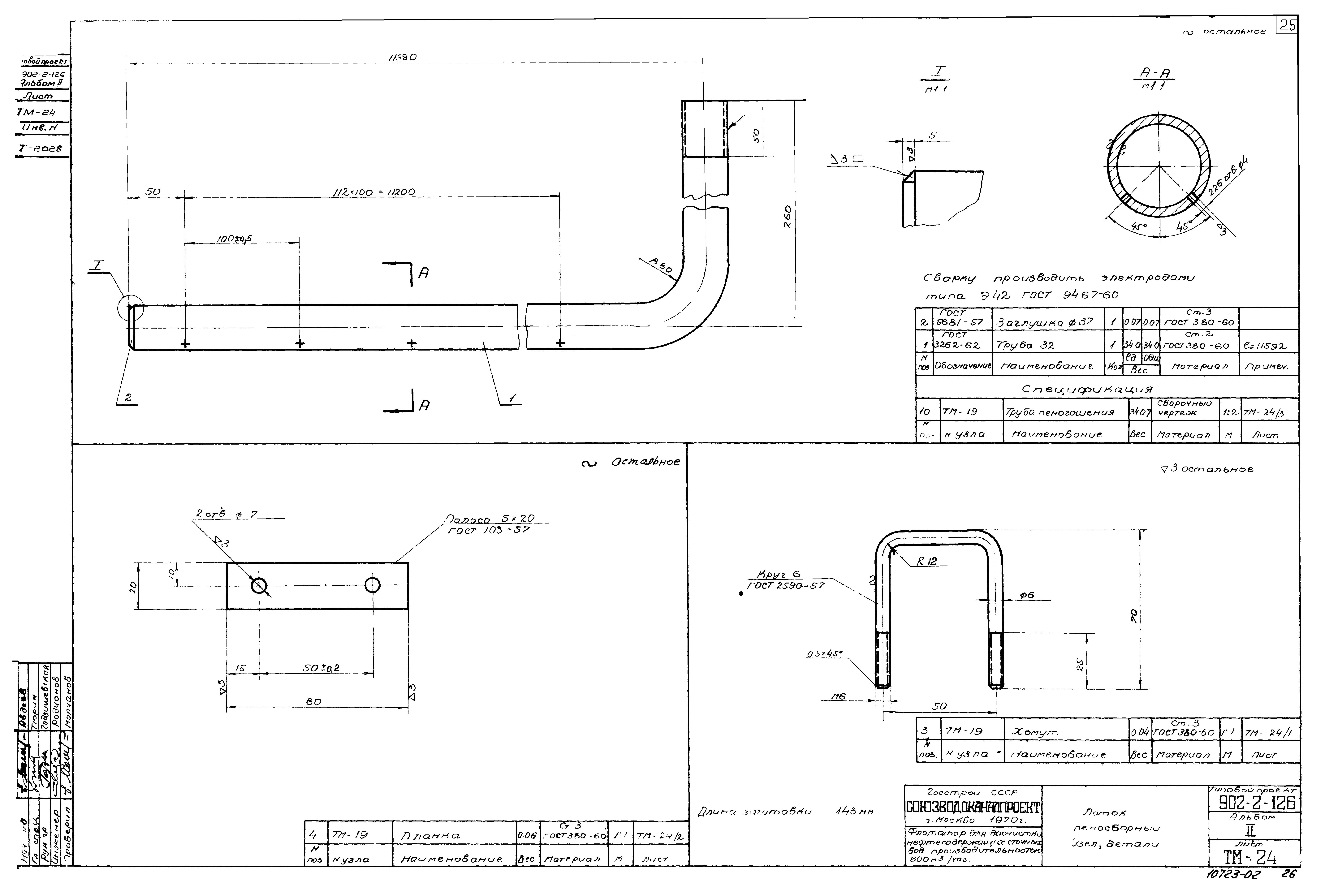
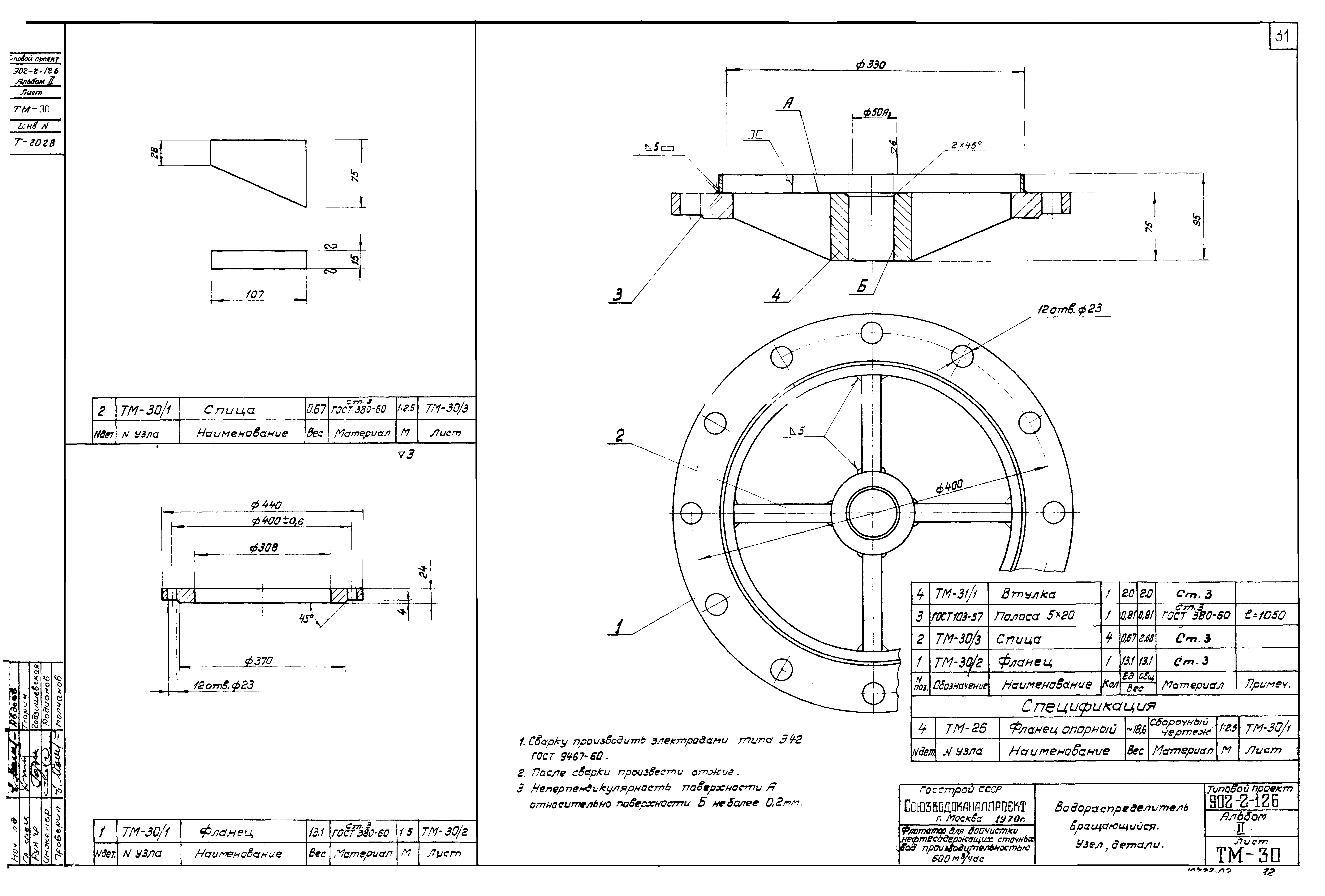
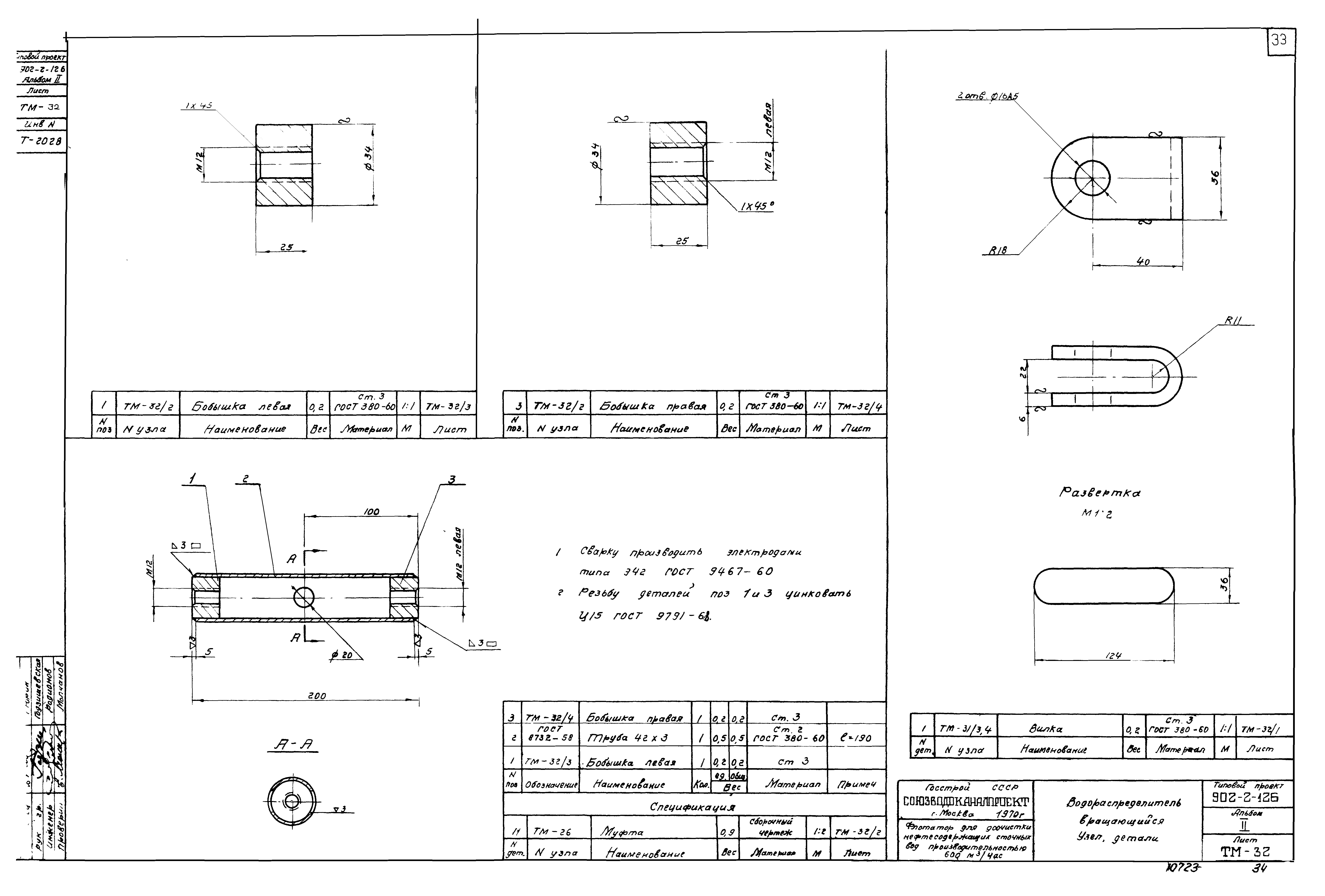
Скачать Типовой проект 902-2-126 Альбом II. Нестандартное оборудованиеДата актуализации: 01.01.2021 Типовой проект 902-2-126
Альбом II. Нестандартное оборудование| Обозначение: | Типовой проект 902-2-126 | | Обозначение англ: | 902-2-126 | | Статус: | не действует | | Название рус.: | Альбом II. Нестандартное оборудование | | Дата добавления в базу: | 01.09.2013 | | Дата актуализации: | 01.01.2021 | | Разработан: | Государственный проектный институт Союзводоканалпроект Госстроя СССР
| | Утверждён: | 03.12.1970 Союзводоканалпроект (Soyuzvodokanalproject 270)
| | Издан: | ЦИТП Госстроя СССР (CITP, Gosstroy (USSR) 1970 г. )
|
                                     
|