Скачать Серия 1.460-4 Выпуск 7. Покрытия пролетами 18 и 24 м со стропильными фермами пониженной высоты для зданий с расчетной сейсмичностью 7; 8 и 9 баллов, возводимых в районах с расчетными температурами минус 40 градусов Цельсия и вышеДата актуализации: 01.01.2021
|
| Обозначение: | Серия 1.460-4 |
| Обозначение англ: | Series 1.460-4 |
| Статус: | не действует |
| Название рус.: | Выпуск 7. Покрытия пролетами 18 и 24 м со стропильными фермами пониженной высоты для зданий с расчетной сейсмичностью 7; 8 и 9 баллов, возводимых в районах с расчетными температурами минус 40 градусов Цельсия и выше |
| Дата добавления в базу: | 01.09.2013 |
| Дата актуализации: | 01.01.2021 |
| Дата введения: | 01.06.1976 |
| Дата окончания срока действия: | 01.07.1988 |
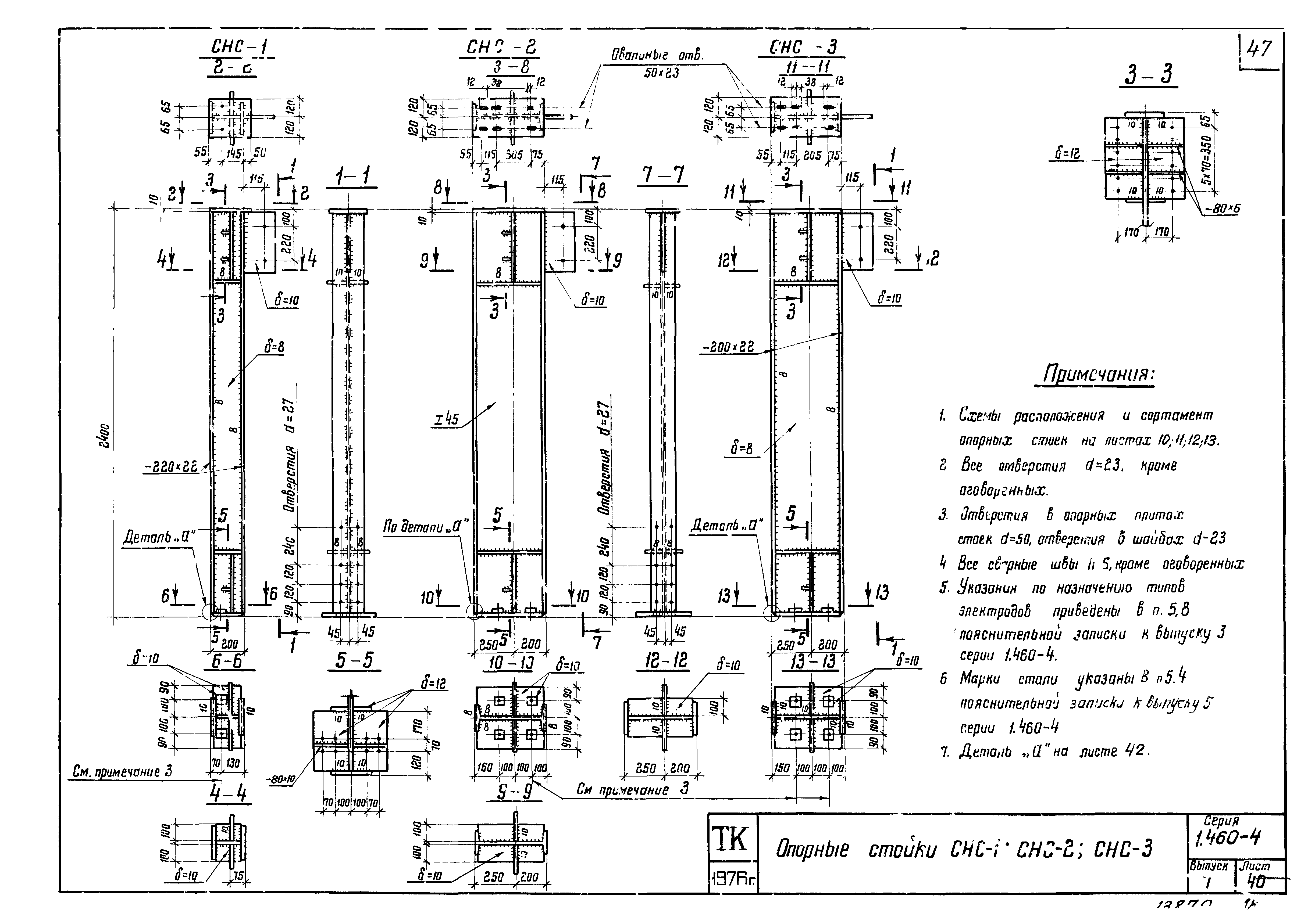
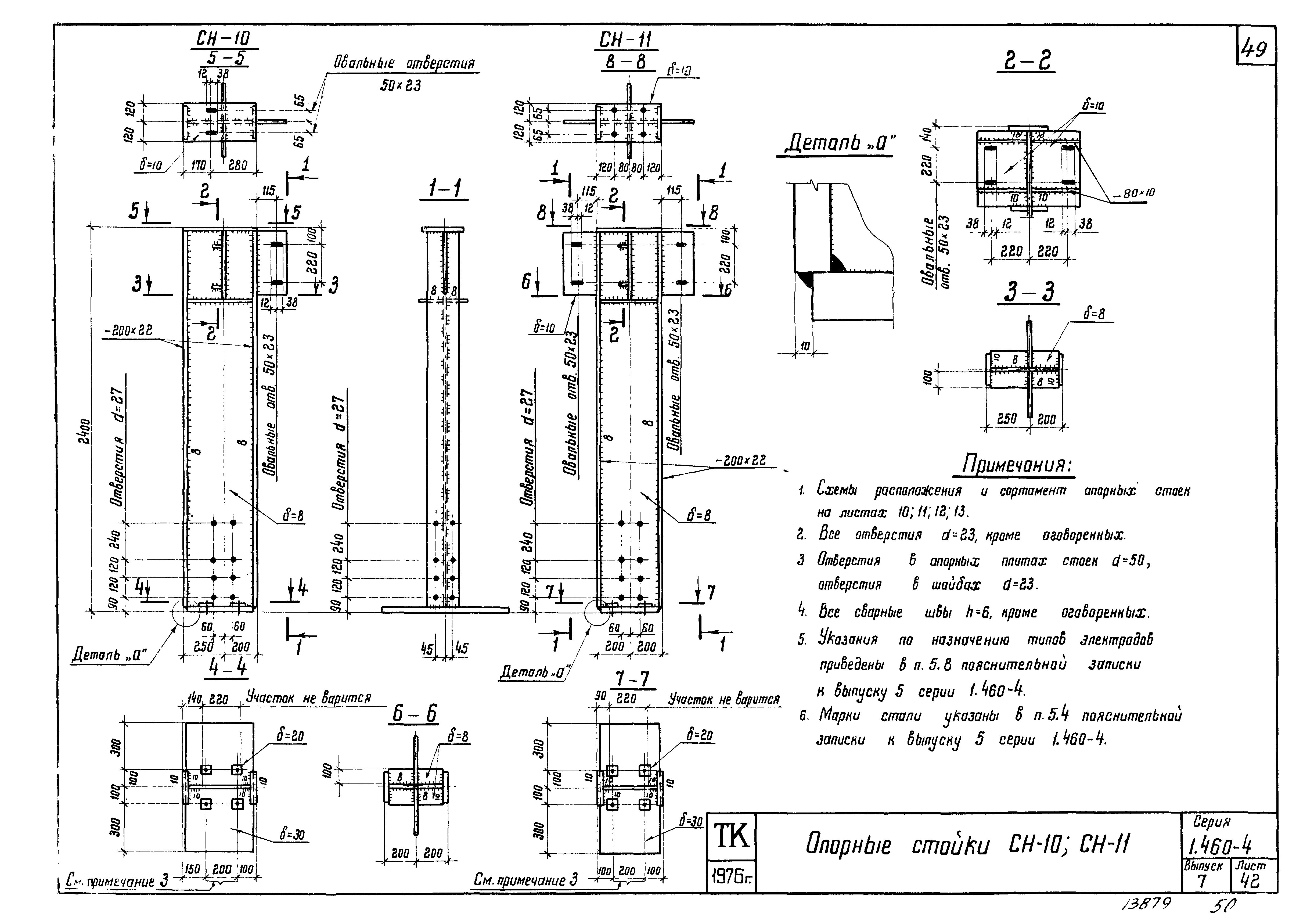
| Оглавление: | 1.460-4 Пояснительная записка 1.460-4 Схемы расположения связей и прогонов по верхним поясам стропильных ферм пролетом 18 м. Здания без фонарей и с фонарями. Шаг ферм 6 м. Шаг колонн 6 и 12 м 1.460-4 Схемы расположения связей и прогонов по верхним поясам стропильных ферм пролетом 24 м. Здания без фонарей и с фонарями. Шаг ферм 6 м. Шаг колонн 6 и 12 м 1.460-4 Схемы расположения связей и прогонов по верхним поясам стропильных ферм пролетом 18 м. Здания без фонарей и с фонарями. Шаг ферм и колонн 12 м 1.460-4 Схемы расположения связей и прогонов по верхним поясам стропильных ферм пролетом 24 м. Здания без фонарей и с фонарями. Шаг ферм и колонн 12 м 1.460-4 Пример решения схемы связей по нижним поясам стропильных ферм пролетом 18 м. Здания без фонарей и с фонарями. Шаг ферм 6 м. Шаг колонн 6 и 12 м 1.460-4 Пример решения схемы связей по нижним поясам стропильных ферм пролетом 24 м. Здания без фонарей и с фонарями. Шаг ферм 6 м. Шаг колонн 6 и 12 м 1.460-4 Пример решения схемы связей по нижним поясам стропильных ферм пролетом 18 м. Здания без фонарей и с фонарями. Шаг ферм и колонн 12 м 1.460-4 Пример решения схемы связей по нижним поясам стропильных ферм пролетом 24 м. Здания без фонарей и с фонарями. Шаг ферм и колонн 12 м 1.460-4 Схемы расположения прогонов и связей по верхним и нижним поясам ферм при наличии подстропильных ферм. Шаг ферм 6 м. Шаг колонн 12 м 1.460-4 Разрезы 5-5;6-6;7-7 по продольным рядам колонн. Колонны стальные и железобетонные в зданиях без мостовых кранов 1.460-4 Разрезы 5-5;6-6;7-7 по продольным рядам колонн. Колонны стальные в зданиях с мостовыми кранами 1.460-4 Разрезы 5-5;6-6;7-7 по продольным рядам колонн. Колонны железобетонные в зданиях с мостовыми кранами 1.460-4 Сортамент опорных стоек и примечания к плитам 10;11 и 12 1.460-4 Указания по назначению поперечных связевых ферм в плоскости верхних поясов стропильных ферм и определению их сечений 1.460-4 Указания по проверке нижних поясов стропильных ферм, входящих в состав горизонтальных связевых ферм, расположенных в торце здания, на воздействие продольной2 сейсмической силы 1.460-4 Указания по проверке раскосов и пояса связевой фермы, расположенной в плоскости нижних поясов стропильных ферм у торца здания на сейсмическую нагрузку от торцевой стены и выбору марок вертикальных связей и распорок, расположенных по рядам колонн 1.460-4 Указания по выбору марок вертикальных связей и распорок, расположенных по рядам колонн 1.460-4 Указания по проверке подстропильных ферм на продольное сейсмическое воздействие 1.460-4 Усилия от единичных нагрузок в элементах поперечных связевых ферм, расположенных в плоскости верхних поясов стропильных ферм 1.460-4 Усилия от единичных нагрузок в элементах горизонтальных связевых ферм, расположенных в плоскости нижних поясов стропильных ферм 1.460-4 Сортамент элементов связевых ферм "ГФС", расположенных по верхним поясам стропильных ферм 1.460-4 Сортамент распорок 1.460-4 Сортамент раскосов горизонтальных связей по нижним поясам стропильных ферм и растяжек 1.460-4 Сортамент вертикальных связей из электросварных труб 1.460-4 Сортамент вертикальных связей из горячекатаных профилей 1.460-4 Сортамент вертикальных связей из замкнутых гнутосварных профилей 1.460-4 Узлы 123-128 вертикальных связей из электросварных труб 1.460-4 Узлы 129-137 вертикальных связей из электросварных труб 1.460-4 Узлы 139-145 вертикальных связей из электросварных труб 1.460-4 Узлы элементов связей из электросварных труб 1.460-4 Узлы 146-150 вертикальных связей из замкнутых гнутосварных профилей 1.460-4 Узлы 151-158 вертикальных связей из замкнутых гнутосварных профилей 1.460-4 Узлы 159-165 вертикальных связей из замкнутых гнутосварных профилей 1.460-4 Узлы элементов связей из замкнутых гнутосварных профилей 1.460-4 Узлы 166-172 вертикальных связей из горячекатаных профилей 1.460-4 Узлы 173-184 вертикальных связей из горячекатаных профилей 1.460-4 Узлы элементов связей из горячекатаных и гнутых профилей 1.460-4 Опорные стойки СНС-1,СНС-2,СНС-3 1.460-4 Опорные стойки СНС-4,СНС-5 1.460-4 Опорные стойки СНС-10,СНС-11 1.460-4 Узлы 110-112 крепления связей и прогонов по верхним поясам стропильных ферм 1.460-4 Узлы 113;114 крепления связей и прогонов по верхним поясам стропильных ферм 1.460-4 Узлы 115-117 крепления связей и прогонов по верхним поясам стропильных ферм 1.460-4 Узлы 118;120;121;122 крепления связей и прогонов по верхним поясам ферм и вертикальных связей и распорок в плоскости колонн 1.460-4 Узел 119 крепления связей по верхним поясам стропильных ферм 1.460-4 Узел 185. Опорный узел подстропильных ферм и его крепление к опорным стойкам при значении сейсмической силы свыше 33 т 1.460-4 Пример назначения связей покрытия |
| Разработан: | ЦНИИпроектстальконструкция |
| Утверждён: | 30.03.1976 Госстрой СССР (Государственный комитет Совета Министров СССР по делам строительства) (USSR Gosstroy 29) 30.03.1976 Госстрой СССР (1.460-4) |






























































