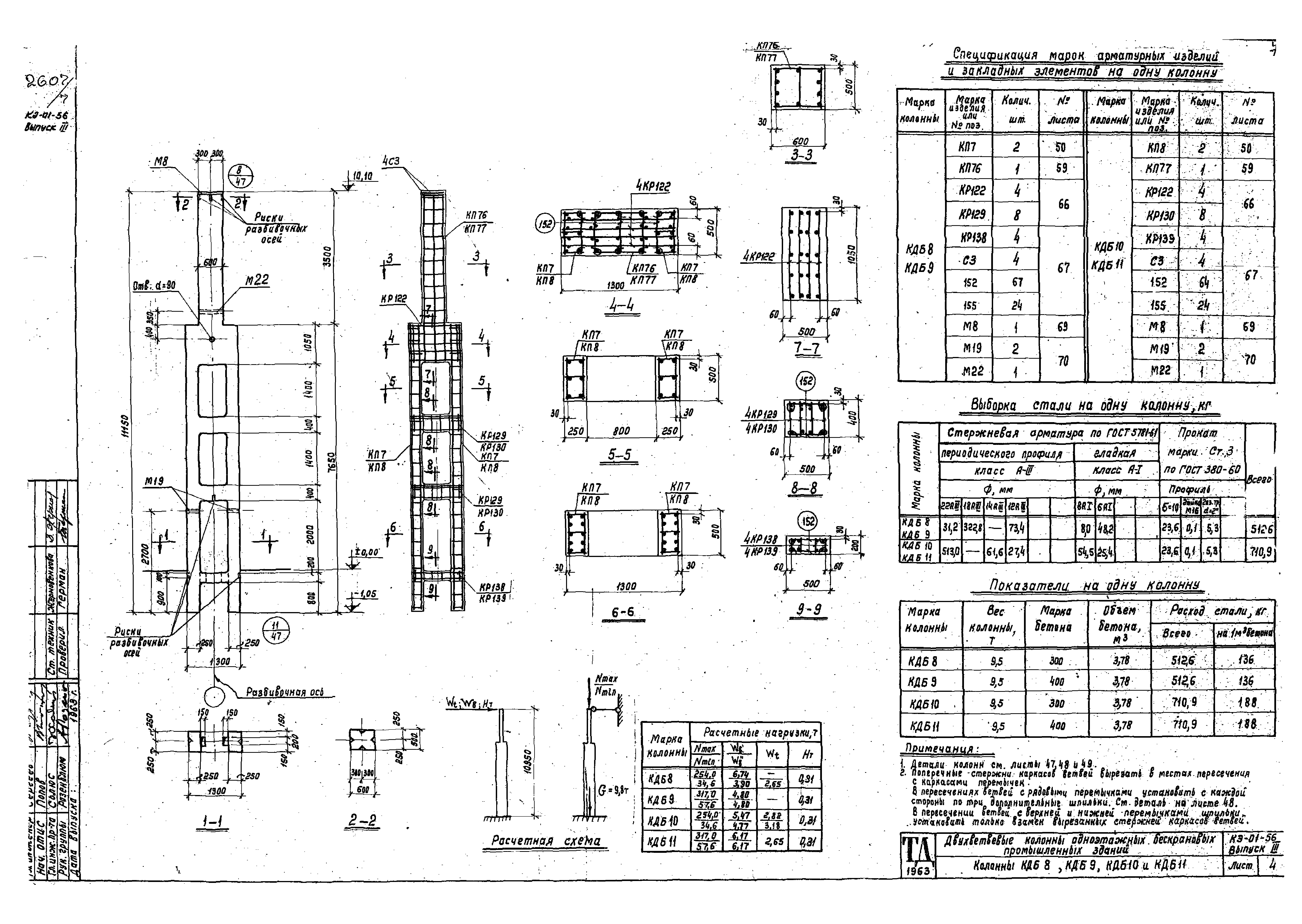
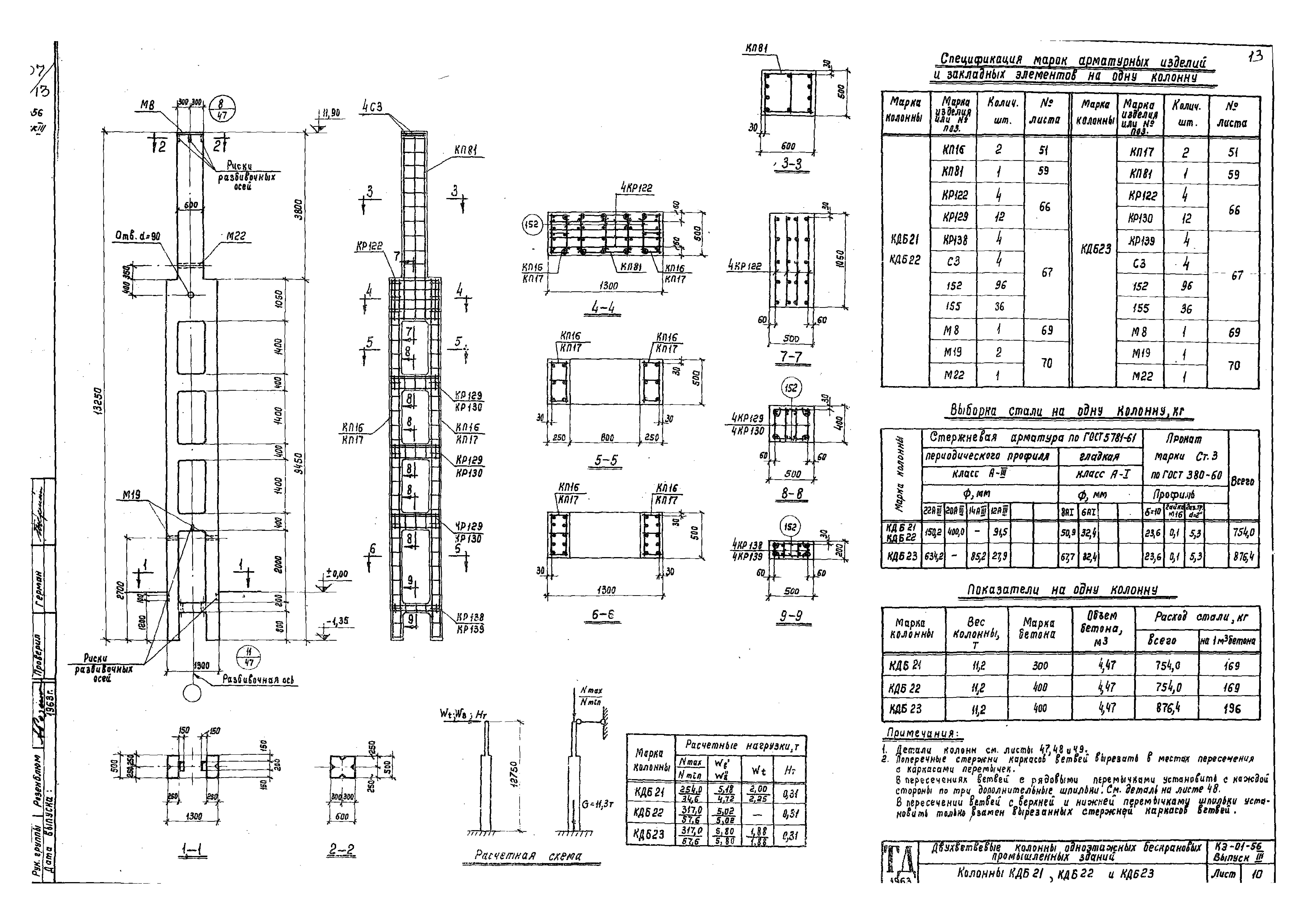
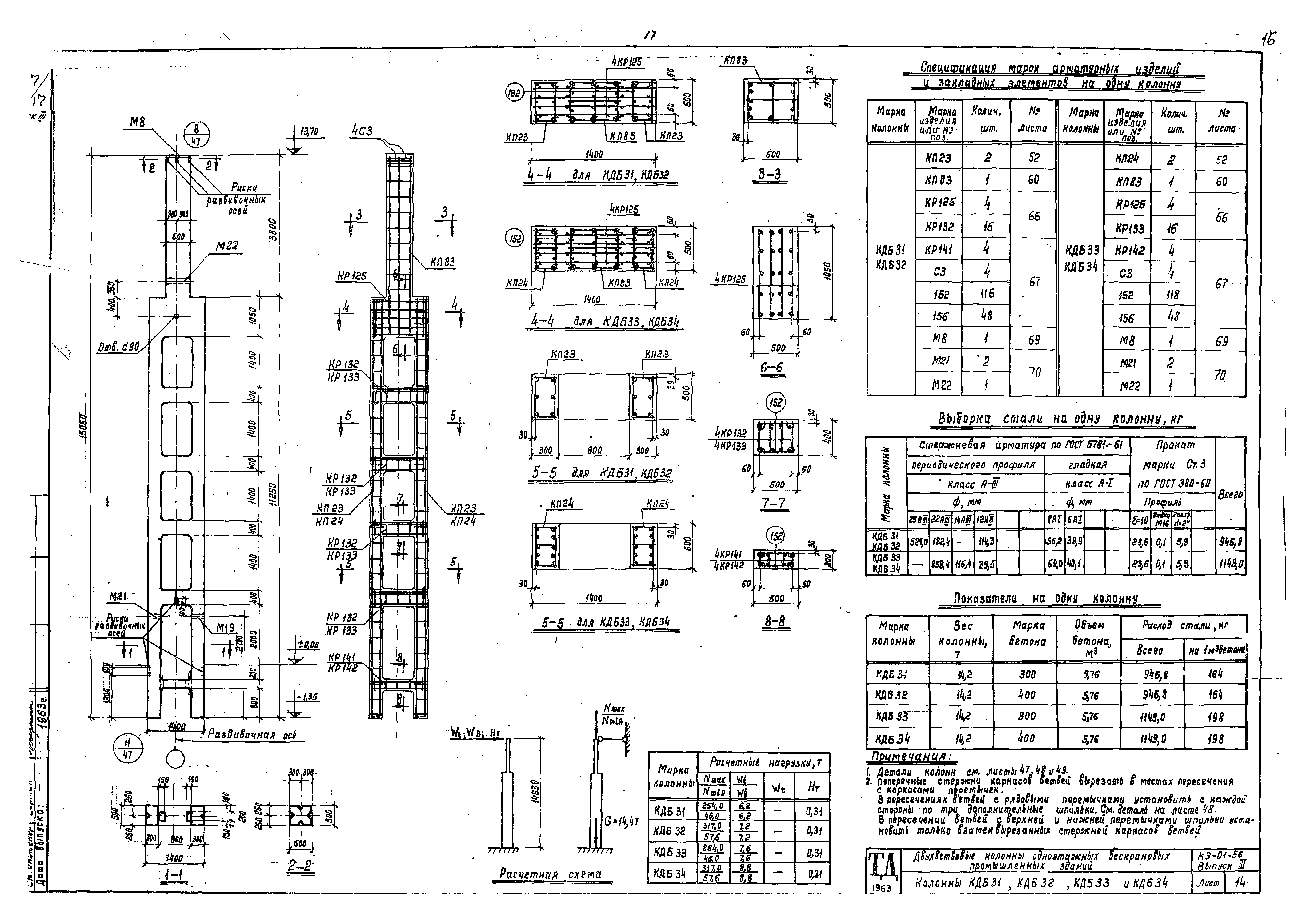
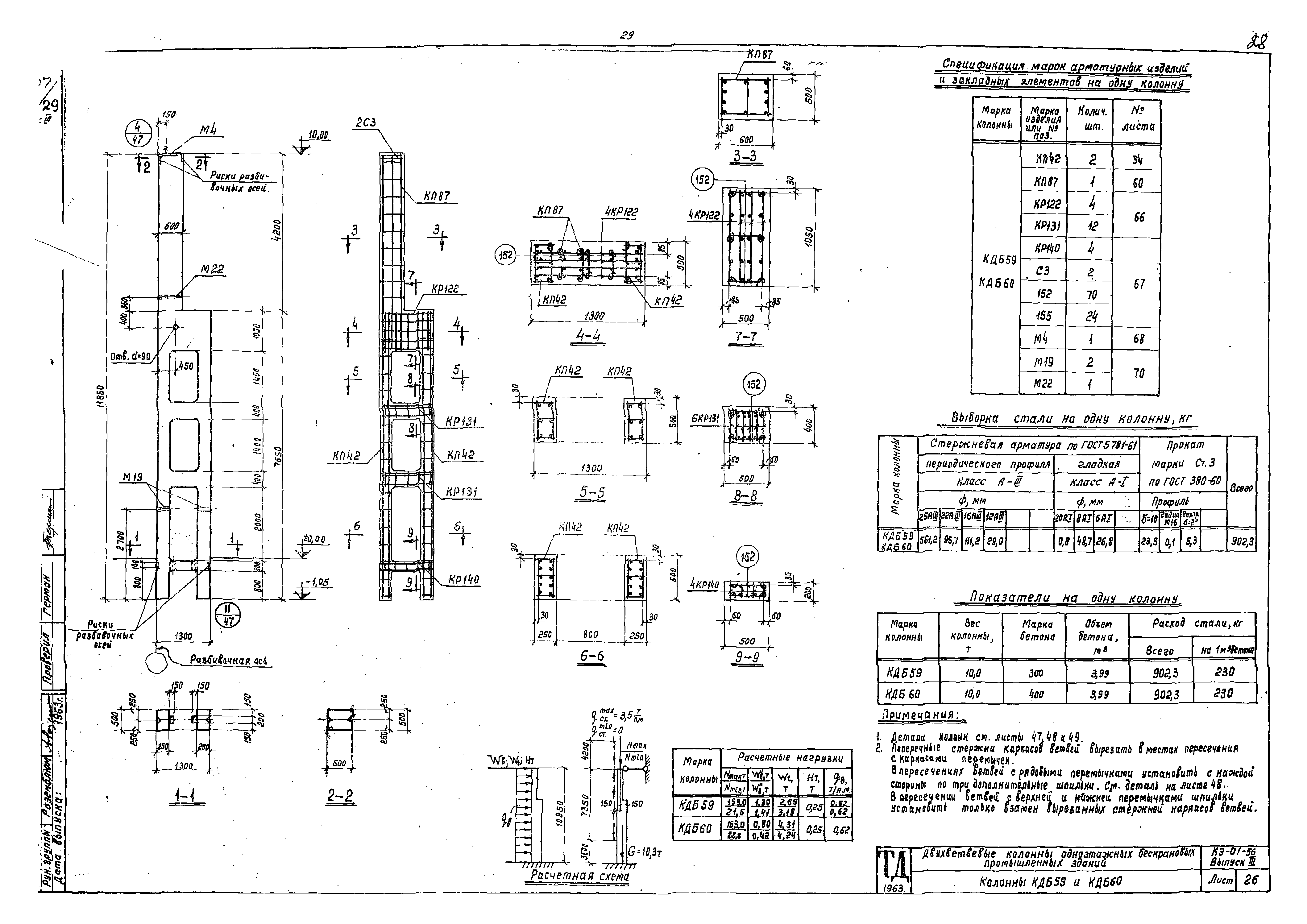
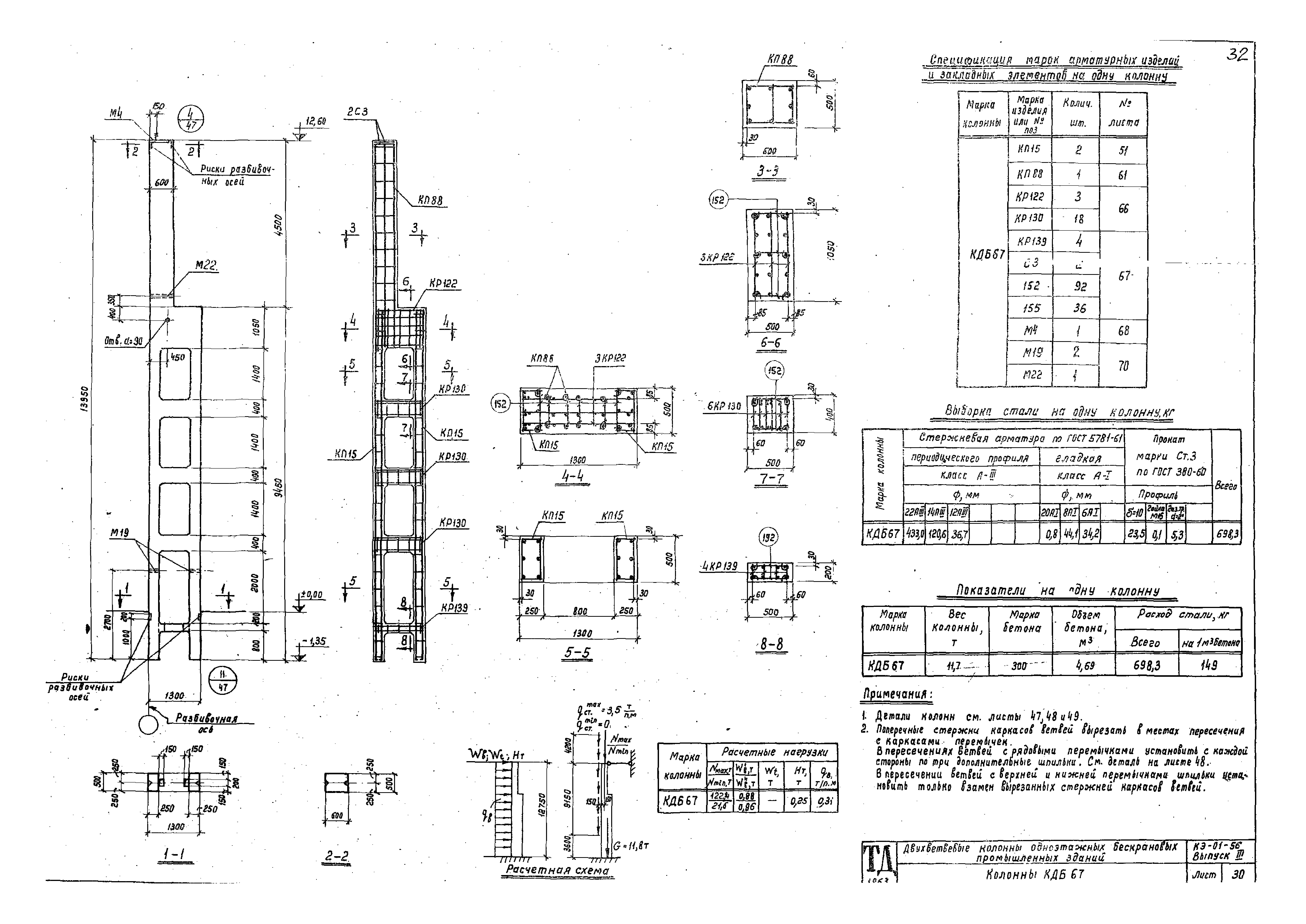
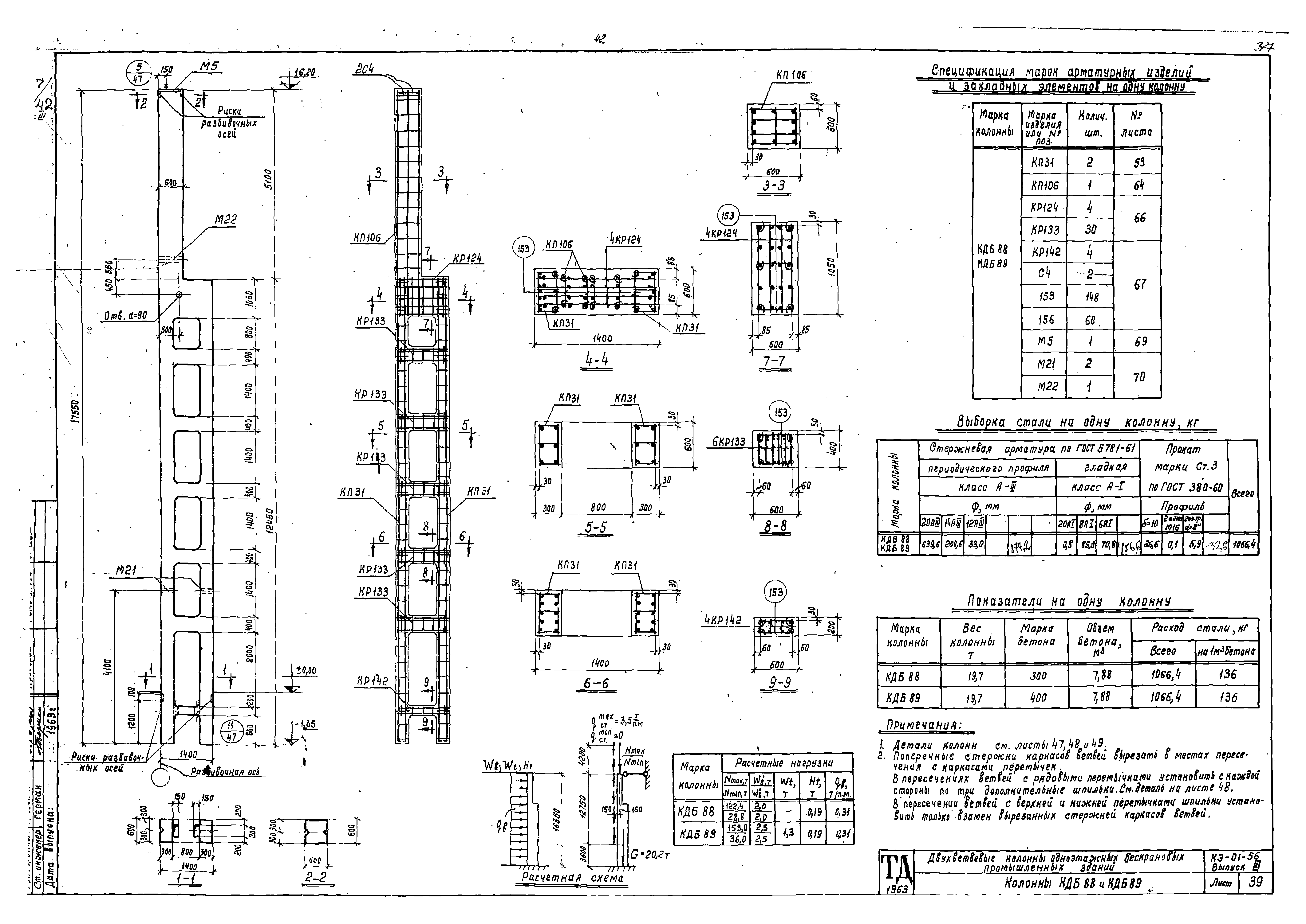
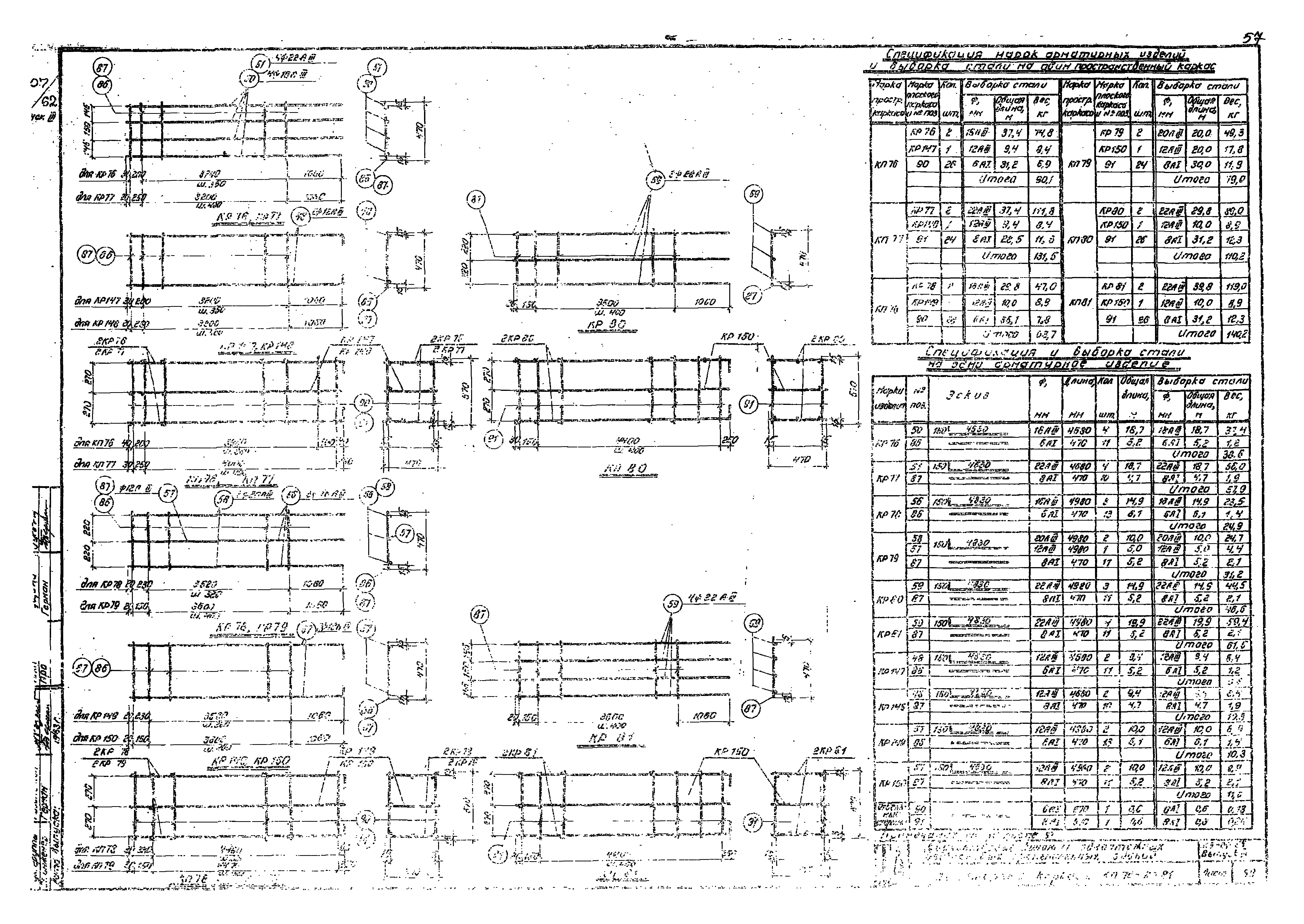
Скачать Серия КЭ-01-56 Выпуск III. Рабочие чертежи колоннДата актуализации: 01.01.2021 Серия КЭ-01-56
Выпуск III. Рабочие чертежи колонн| Обозначение: | Серия КЭ-01-56 | | Обозначение англ: | Series КЭ-01-56 | | Статус: | не действует | | Название рус.: | Выпуск III. Рабочие чертежи колонн | | Дата добавления в базу: | 01.09.2013 | | Дата актуализации: | 01.01.2021 | | Дата окончания срока действия: | 01.12.1977 | | Разработан: | ЦНИИпромзданий НИИЖБ
| | Утверждён: | 31.01.1964 Госстрой СССР (Государственный комитет Совета Министров СССР по делам строительства) (USSR Gosstroy )
| | Издан: | ЦИТП Госстроя СССР (CITP, Gosstroy (USSR) 1964 г. )
| | Чем заменён: | |
                                                                     
|