Скачать Типовой проект 902-2-340 Альбом II. Нестандартизированное оборудованиеДата актуализации: 01.01.2021
|
| Обозначение: | Типовой проект 902-2-340 |
| Обозначение англ: | 902-2-340 |
| Статус: | действует |
| Название рус.: | Альбом II. Нестандартизированное оборудование |
| Дата добавления в базу: | 01.09.2013 |
| Дата актуализации: | 01.01.2021 |
| Дата введения: | 10.08.1979 |
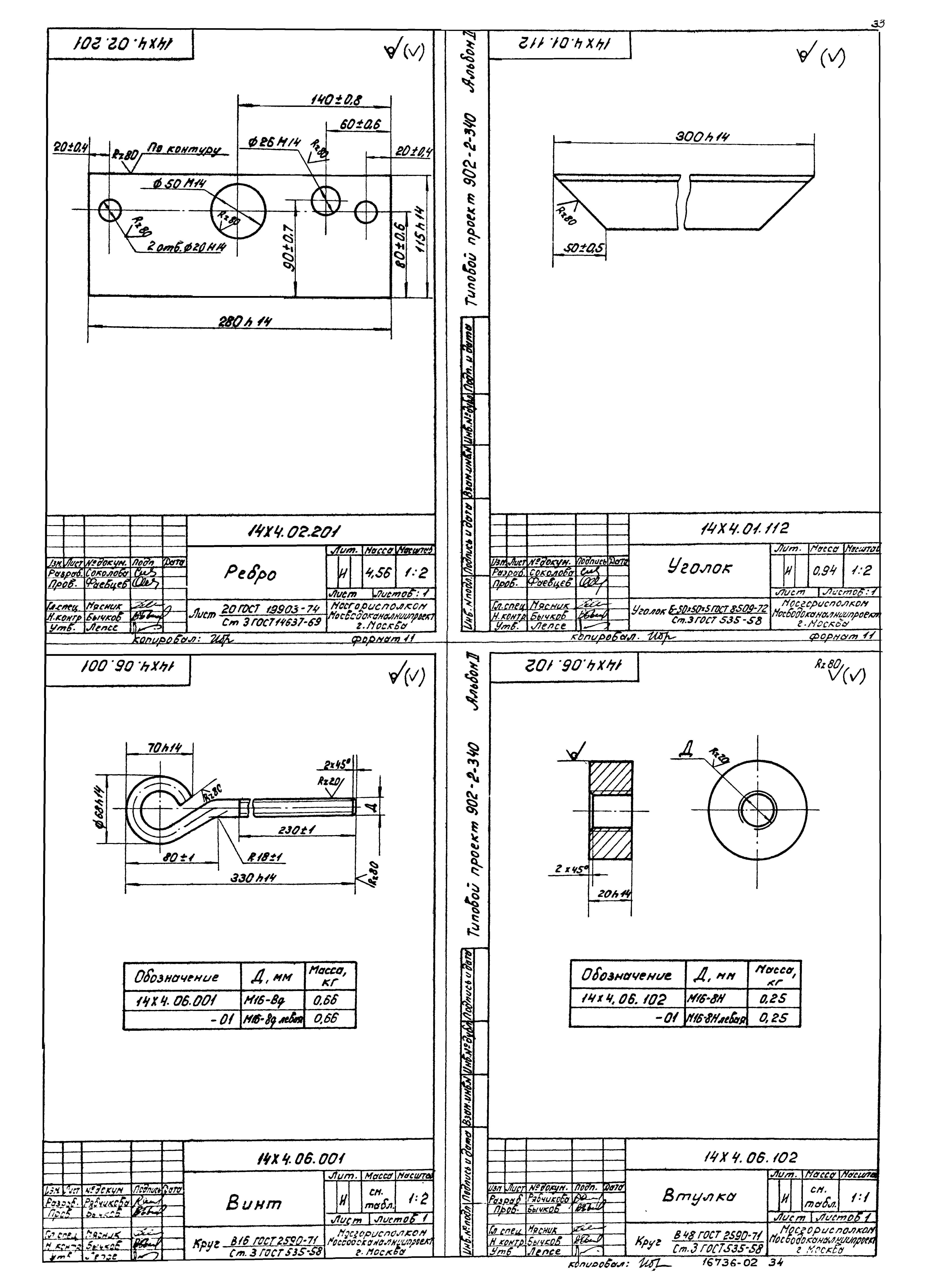
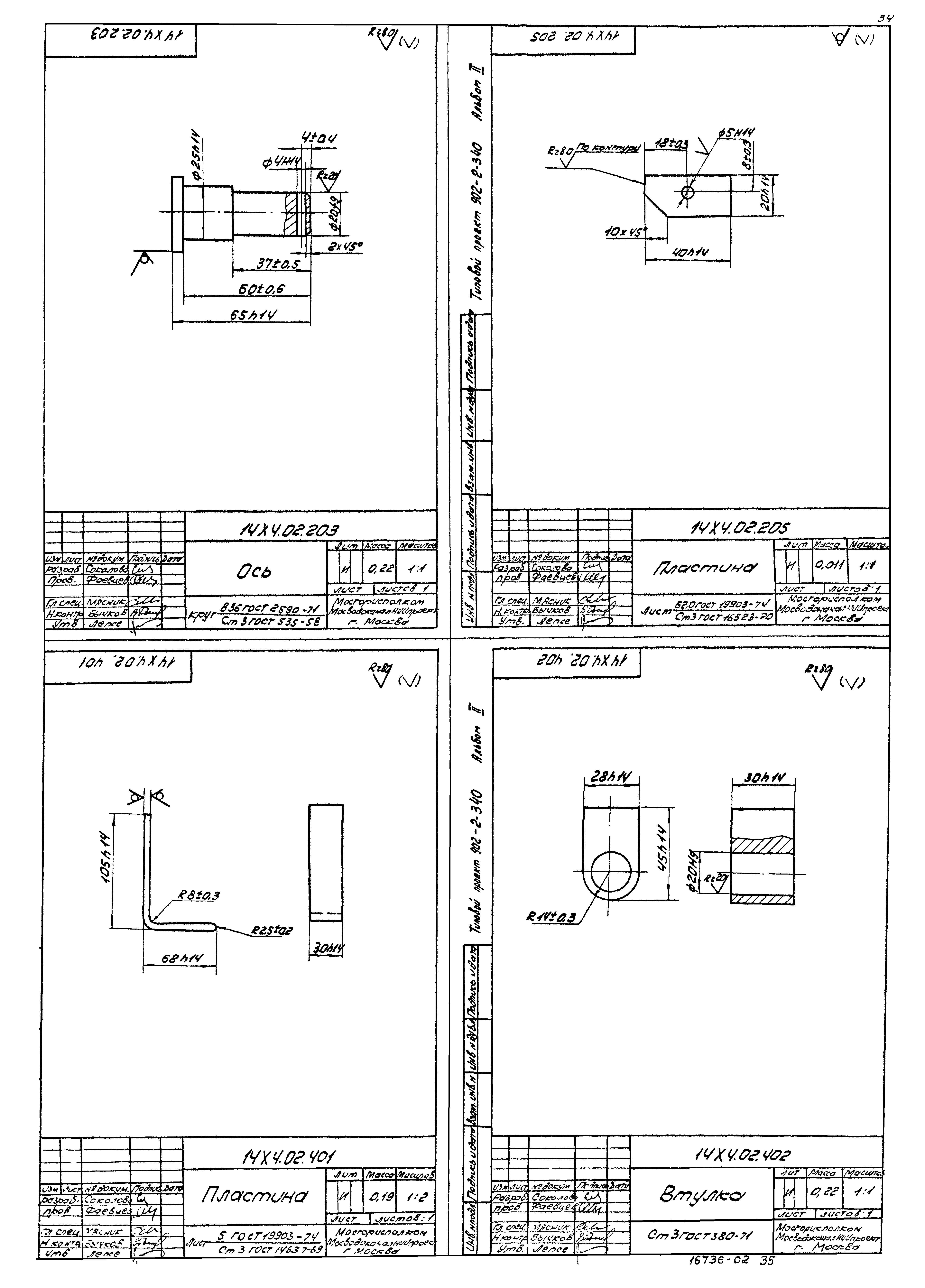
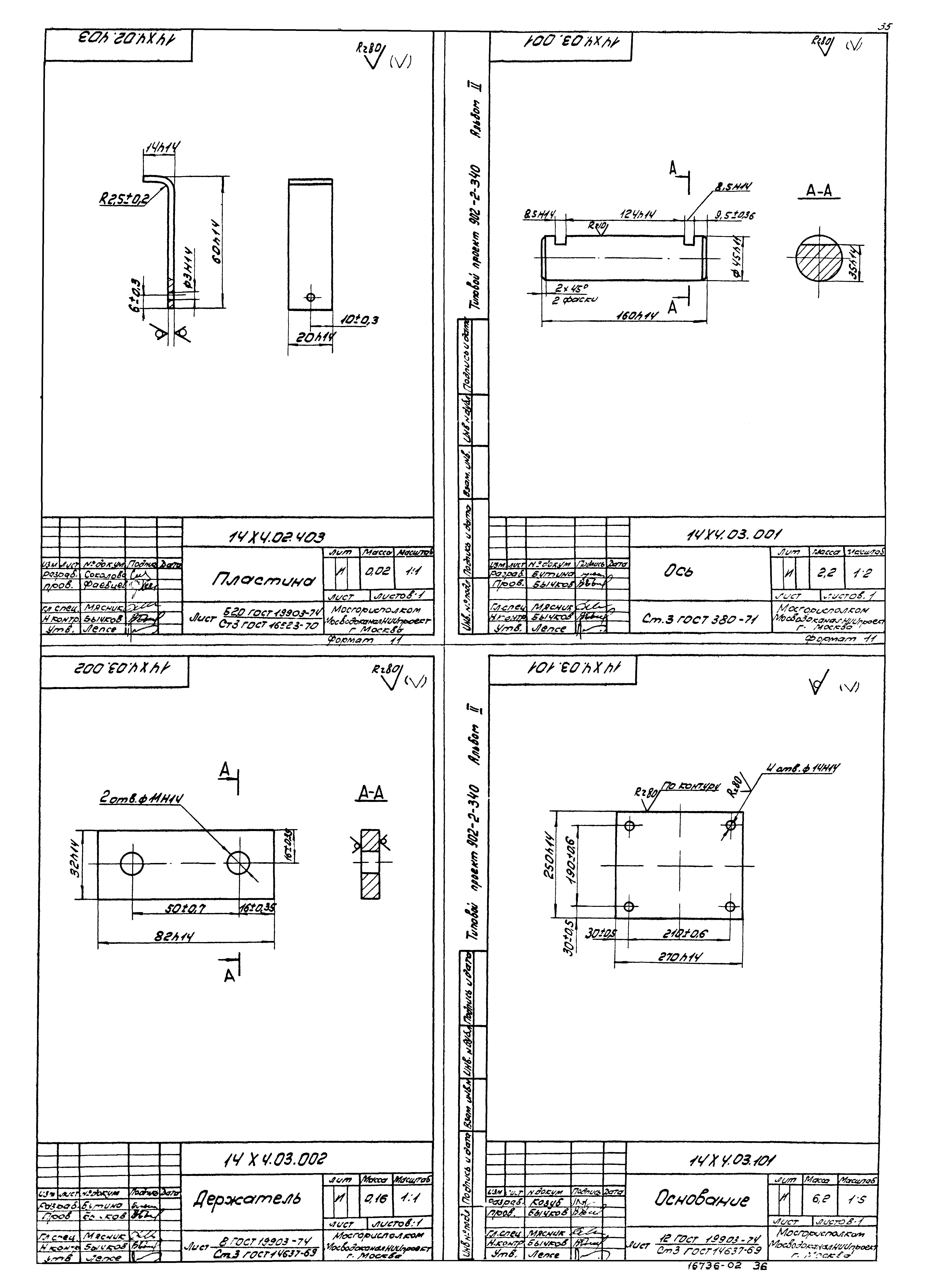
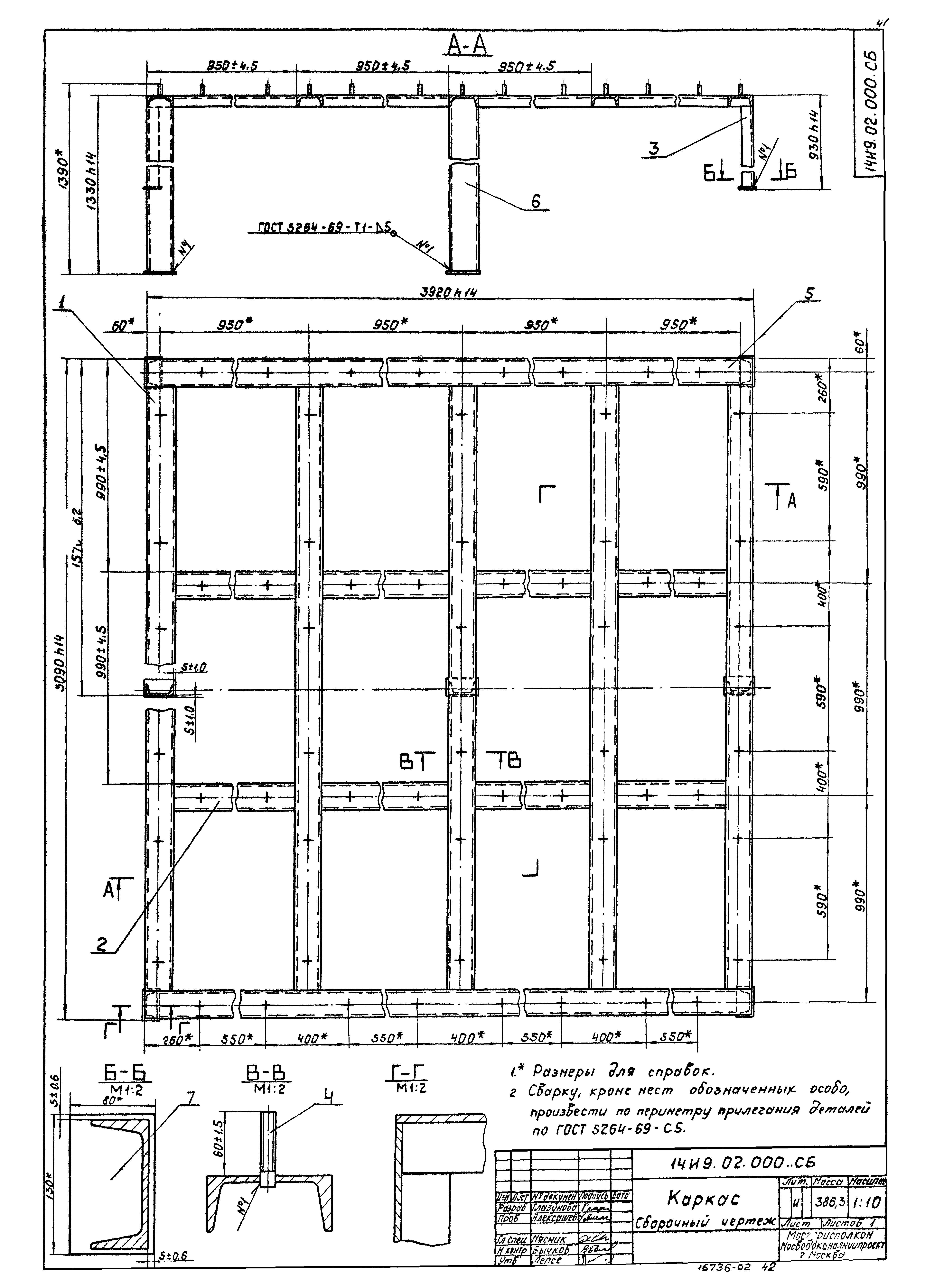
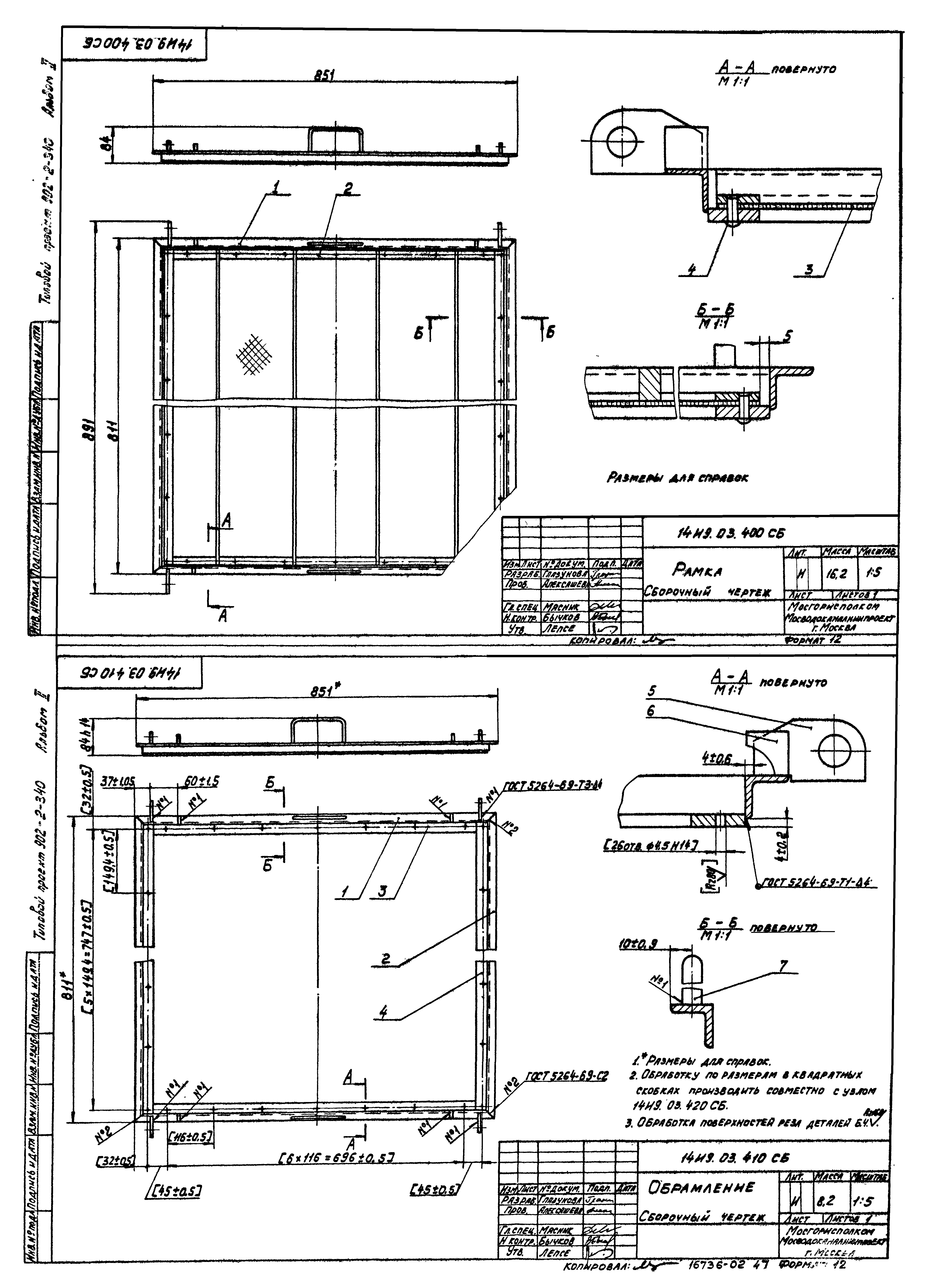
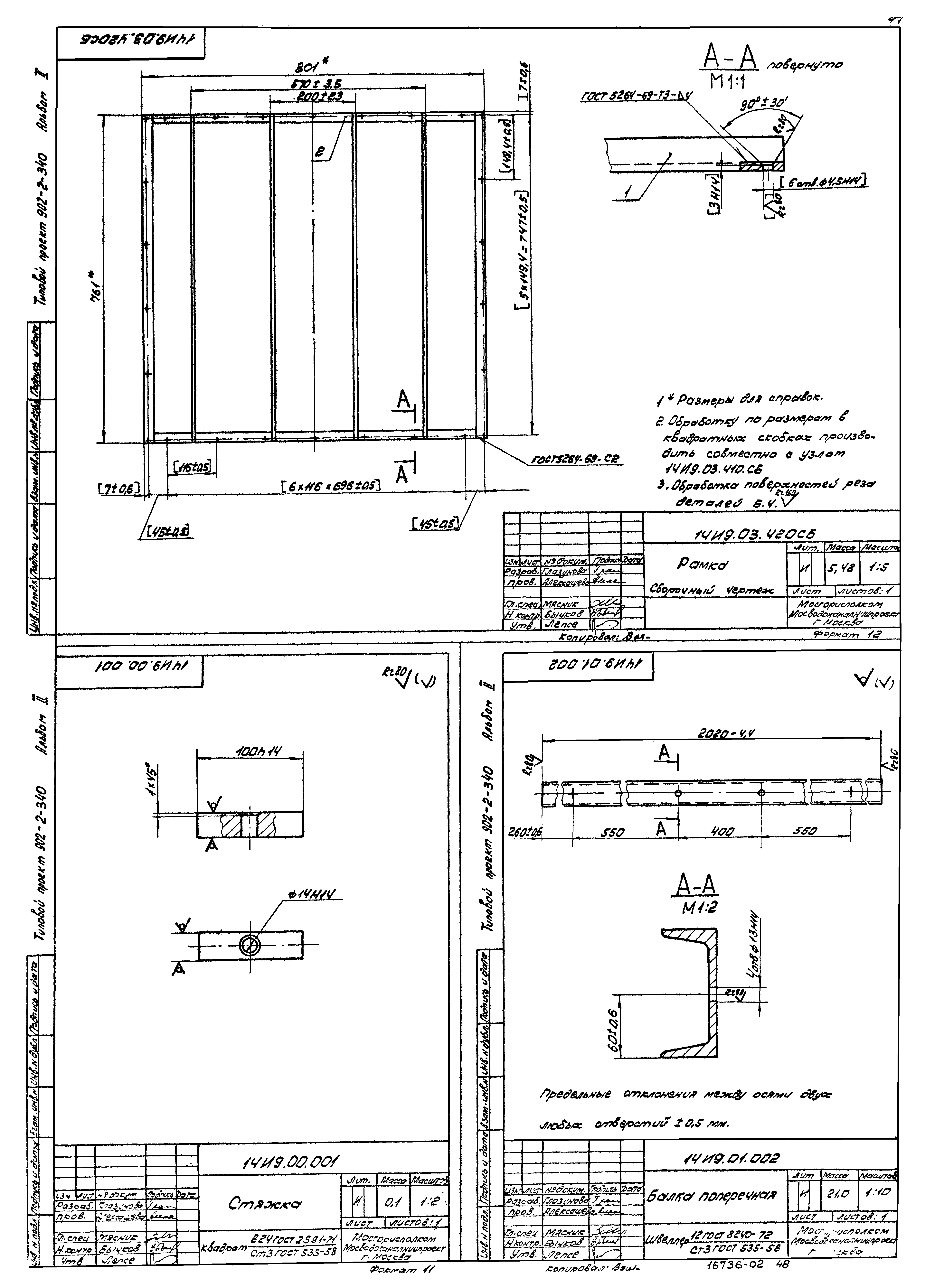
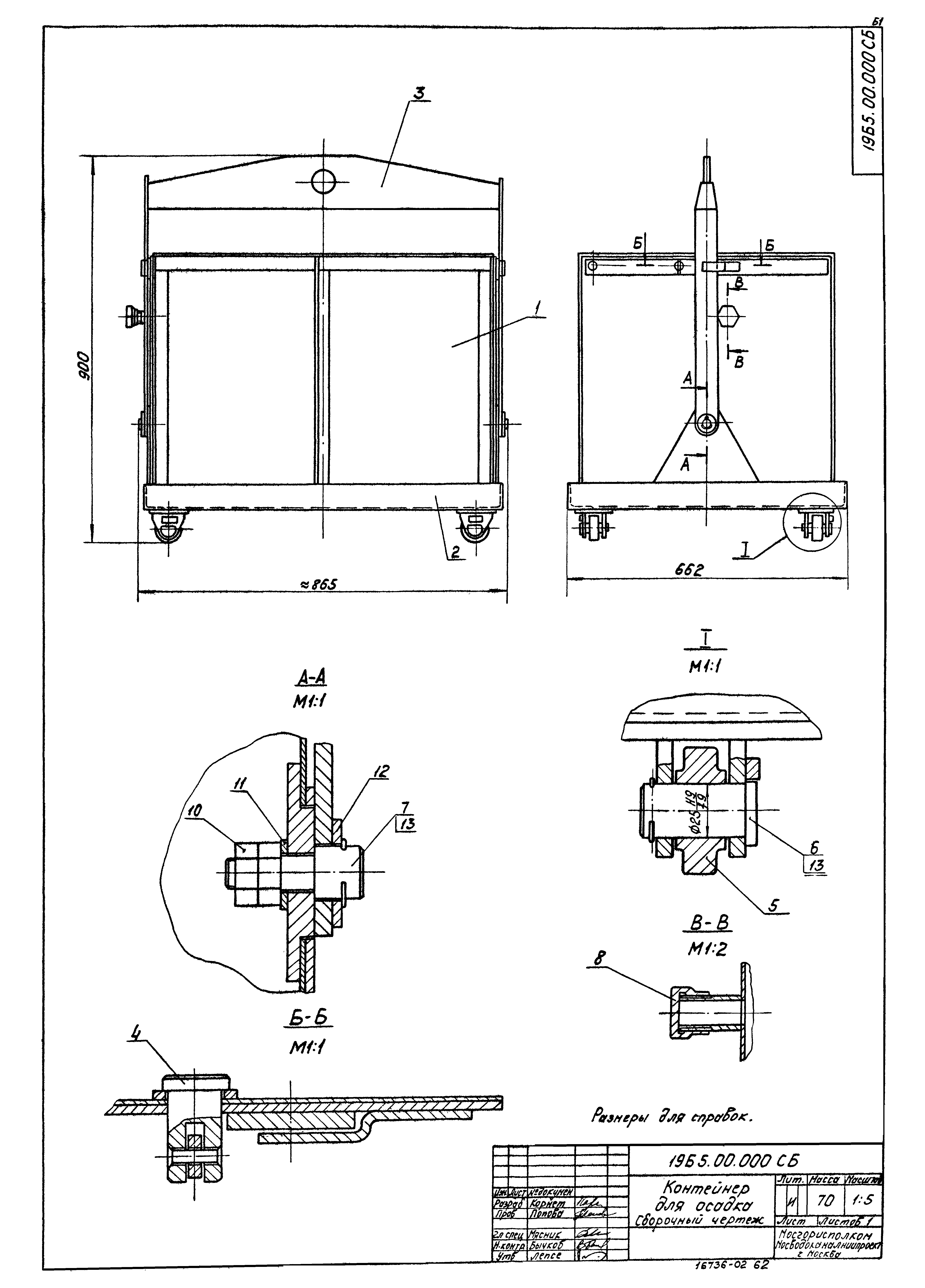
| Оглавление: | ТП 902-2-340 Содержание альбома ТП 902-2-340 14Х3.00.000 Устройство скребковое для сбора мазута ТП 902-2-340 14Х3.01.000 Привод ТП 902-2-340 14Х3.01.100 Стойка ТП 902-2-340 14Х3.01.110 Рама ТП 902-2-340 14Х3.01.200 Стойка ТП 902-2-340 14Х3.01.210 Стойка ТП 902-2-340 14Х3.01.300 Колесо замерное ТП 902-2-340 14Х3.01.400 Барабан ТП 902-2-340 14Х3.02.000 Скребок ТП 902-2-340 14Х3.02.100 Щит ТП 902-2-340 14Х3.02.200 Ползун ТП 902-2-340 14Х3.02.300 Ползун ТП 902-2-340 14Х3.02.400 Рычаг ТП 902-2-340 14Х3.03.000 Блок поддерживающий ТП 902-2-340 14Х3.03.100 Кронштейн ТП 902-2-340 14Х3.04.000 Блок отклоняющий ТП 902-2-340 14Х3.04.100 Кронштейн ТП 902-2-340 14Х3.05.000 Блок боковой ТП 902-2-340 14Х3.05.100 Кронштейн ТП 902-2-340 14Х3.06.000 Талреп ТП 902-2-340 14Х3.06.100 Стяжка ТП 902-2-340 14Х3.00.100 Упор правый ТП 902-2-340 14Х3.00.200 Упор левый ТП 902-2-340 14Х3.00.300 Струбцина ТП 902-2-340 14И8.00.000 Установка фильтров ТП 902-2-340 14И8.01.000 Каркас ТП 902-2-340 14И8.02.000 Каркас ТП 902-2-340 14И8.03.000 Фильтр ТП 902-2-340 14И8.03.100 Короб ТП 902-2-340 14И8.03.200 Поддон ТП 902-2-340 14И8.03.210 Обрамление ТП 902-2-340 14И8.03.220 Рамка ТП 902-2-340 14И8.03.300 Затвор ТП 902-2-340 14И8.03.400 Рамка ТП 902-2-340 14И8.03.410 Обрамление ТП 902-2-340 14И8.03.420 Рамка ТП 902-2-340 14И8.03.500 Фиксатор ТП 902-2-340 13Н1.00.000 Регулятор уровня ТП 902-2-340 13Н1.00.100 Цилиндр подвижной ТП 902-2-340 13Н1.00.200 Патрубок в сборе ТП 902-2-340 13Н1.00.300 Колено ТП 902-2-340 19Б5.00.000 Контейнер для осадка ТП 902-2-340 19Б5.00.100 Бункер ТП 902-2-340 19Б5.00.200 Платформа ТП 902-2-340 19Б5.00.210 Вилка ТП 902-2-340 19Б5.00.300 Траверса ТП 902-2-340 19Б5.00.400 Палец ТП 902-2-340 14Ж1.00.000 Лоток распределительный ТП 902-2-340 14Ж1.00.100 Корпус ТП 902-2-340 14Х3.00.000 СБ Устройство скребковое для сбора мазута. Сборочный чертеж ТП 902-2-340 14Х3.01.000 СБ Привод. Сборочный чертеж ТП 902-2-340 14Х3.01.100 СБ Стойка. Сборочный чертеж ТП 902-2-340 14Х3.01.110 СБ Рама. Сборочный чертеж ТП 902-2-340 14Х3.01.200 СБ Стойка. Сборочный чертеж ТП 902-2-340 14Х3.01.210 СБ Рама. Сборочный чертеж ТП 902-2-340 14Х3.01.300 СБ Колесо замерное. Сборочный чертеж ТП 902-2-340 14Х3.01.400 СБ Барабан. Сборочный чертеж ТП 902-2-340 14Х3.02.400 СБ Рычаг. Сборочный чертеж ТП 902-2-340 14Х3.02.000 СБ Скребок. Сборочный чертеж ТП 902-2-340 14Х3.02.100 СБ Щит. Сборочный чертеж ТП 902-2-340 14Х3.02.200 СБ Ползун. Сборочный чертеж ТП 902-2-340 14Х3.02.300 СБ Ползун. Сборочный чертеж ТП 902-2-340 14Х3.03.000 СБ Блок поддерживающий. Сборочный чертеж ТП 902-2-340 14Х3.03.100 СБ Кронштейн. Сборочный чертеж ТП 902-2-340 14Х3.04.000 СБ Блок отклоняющий. Сборочный чертеж ТП 902-2-340 14Х3.04.100 СБ Кронштейн. Сборочный чертеж ТП 902-2-340 14Х3.05.000 СБ Блок боковой. Сборочный чертеж ТП 902-2-340 14Х3.05.100 СБ Кронштейн. Сборочный чертеж ТП 902-2-340 14Х3.06.000 СБ Талреп. Сборочный чертеж ТП 902-2-340 14Х3.06.100 СБ Стяжка. Сборочный чертеж ТП 902-2-340 14Х3.00.100 СБ Упор правый. Сборочный чертеж ТП 902-2-340 14Х3.00.200 СБ Упор левый. Сборочный чертеж ТП 902-2-340 14Х3.00.300 СБ Струбцина. Сборочный чертеж ТП 902-2-340 14Х3.00.001 Упор ТП 902-2-340 14Х3.00.002 Кольцо ТП 902-2-340 14Х3.01.001 Вал ТП 902-2-340 14Х3.01.002 Козырек ТП 902-2-340 14Х3.01.003 Полукольцо ТП 902-2-340 14Х3.01.101 Пружина ТП 902-2-340 14Х3.01.111 Уголок ТП 902-2-340 14Х3.02.202 Основание ТП 902-2-340 14Х3.02.103 Уголок ТП 902-2-340 14Х3.01.114 Уголок ТП 902-2-340 14Х3.01.115 Косынка ТП 902-2-340 14Х3.01.211 Скоба ТП 902-2-340 14Х3.01.301 Лента мерная ТП 902-2-340 14Х3.01.302 Диск ТП 902-2-340 14Х3.01.401 Диск ТП 902-2-340 14Х3.01.403 Поводок ТП 902-2-340 14Х3.02.001 Колесо храповое ТП 902-2-340 14Х3.02.002 Колесо храповое ТП 902-2-340 14Х3.02.003 Пружина ТП 902-2-340 14Х3.02.101 Труба ТП 902-2-340 14Х3.02.102 Подвеска ТП 902-2-340 14Х3.02.201 Ребро ТП 902-2-340 14Х3.02.112 Уголок ТП 902-2-340 14Х3.06.001 Винт ТП 902-2-340 14Х3.06.102 Втулка ТП 902-2-340 14Х3.02.203 Ось ТП 902-2-340 14Х3.02.205 Пластина ТП 902-2-340 14Х3.02.401 Пластина ТП 902-2-340 14Х3.02.402 Втулка ТП 902-2-340 14Х3.02.403 Пластина ТП 902-2-340 14Х3.03.001 Ось ТП 902-2-340 14Х3.03.002 Держатель ТП 902-2-340 14Х3.03.101 Основание ТП 902-2-340 14Х3.03.003 Ролик ТП 902-2-340 14Х3.03.102 Стойка ТП 902-2-340 14Х3.04.101 Основание ТП 902-2-340 14Х3.04.102 Стойка ТП 902-2-340 14Х3.04.103 Ограничитель ТП 902-2-340 14Х3.05.101 Стойка ТП 902-2-340 14Х3.06.101 Патрубок ТП 902-2-340 14Х3.00.101 Уголок ТП 902-2-340 14Х3.00.102 Планка ТП 902-2-340 14Х3.00.201 Уголок ТП 902-2-340 14Х3.00.301 Планка верхняя ТП 902-2-340 14И8.00.000 СБ Установка фильтров. Сборочный чертеж ТП 902-2-340 14И8.01.000 СБ Каркас. Сборочный чертеж ТП 902-2-340 14И8.02.000 СБ Каркас. Сборочный чертеж ТП 902-2-340 14И8.03.000 СБ Фильтр. Сборочный чертеж ТП 902-2-340 14И8.03.100 СБ Короб. Сборочный чертеж ТП 902-2-340 14И8.03.200 СБ Поддон. Сборочный чертеж ТП 902-2-340 14И8.03.210 СБ Обрамление. Сборочный чертеж ТП 902-2-340 14И8.03.220 СБ Рамка. Сборочный чертеж ТП 902-2-340 14И8.03.300 СБ Затвор. Сборочный чертеж ТП 902-2-340 14И8.03.500 СБ Фиксатор. Сборочный чертеж ТП 902-2-340 14И8.03.400 СБ Рамка. Сборочный чертеж ТП 902-2-340 14И8.03.410 СБ Обрамление. Сборочный чертеж ТП 902-2-340 14И8.03.420 СБ Рамка. Сборочный чертеж ТП 902-2-340 14И8.00.001 Стяжка ТП 902-2-340 14И8.01.002 Балка поперечная ТП 902-2-340 14И8.01.001 Балка продольная ТП 902-2-340 14И8.01.003 Связка ТП 902-2-340 14И8.01.004 Стойка ТП 902-2-340 14И8.01.005 Шпилька ТП 902-2-340 14И8.02.001 Балка поперечная ТП 902-2-340 14И8.02.002 Стойка ТП 902-2-340 14И8.03.101 Ручка ТП 902-2-340 14И8.03.102 Прокладка ТП 902-2-340 14И8.03.104 Уголок ТП 902-2-340 14И8.03.105 Уголок ТП 902-2-340 14И8.03.108 Прокладка ТП 902-2-340 14И8.03.109 Упор ТП 902-2-340 14И8.03.112 Петля ТП 902-2-340 14И8.03.114 Проушина ТП 902-2-340 14И8.03.221 Ребро ТП 902-2-340 14И8.03.301 Шпингалет ТП 902-2-340 14И8.03.302 Ручка ТП 902-2-340 14И8.03.411 Уголок ТП 902-2-340 14И8.03.211 Уголок ТП 902-2-340 14И8.03.415 Петля ТП 902-2-340 14И8.03.417 Ручка ТП 902-2-340 13Н1.00.302 Полусектор ТП 902-2-340 14И8.03.501 Ручка ТП 902-2-340 14И8.03.502 Хомутик ТП 902-2-340 13Н1.00.000 СБ Регулятор уровня. Сборочный чертеж ТП 902-2-340 13Н1.00.100 СБ Цилиндр подвижной. Сборочный чертеж ТП 902-2-340 13Н1.00.200 СБ Патрубок в сборе. Сборочный чертеж ТП 902-2-340 13Н1.00.300 СБ Колено. Сборочный чертеж ТП 902-2-340 13Н1.00.001 Штанга ТП 902-2-340 13Н1.00.002 Втулка ТП 902-2-340 13Н1.00.003 Пластина верхняя ТП 902-2-340 13Н1.00.004 Пластина нижняя ТП 902-2-340 13Н1.00.005 Гайка ТП 902-2-340 13Н1.00.006 Прокладка ТП 902-2-340 13Н1.00.007 Крышка ТП 902-2-340 13Н1.00.101 Плита ТП 902-2-340 13Н1.00.102 Патрубок ТП 902-2-340 13Н1.00.201 Фланец ТП 902-2-340 13Н1.00.301 Пластина ТП 902-2-340 19Б5.00.004 Заглушка ТП 902-2-340 19Б5.00.101 Угольник ТП 902-2-340 19Б5.00.000 СБ Контейнер для осадка. Сборочный чертеж ТП 902-2-340 19Б5.00.100 СБ Бункер. Сборочный чертеж ТП 902-2-340 19Б5.00.200 СБ Платформа. Сборочный чертеж ТП 902-2-340 19Б5.00.210 СБ Вилка. Сборочный чертеж ТП 902-2-340 19Б5.00.300 СБ Траверса. Сборочный чертеж ТП 902-2-340 19Б5.00.400 СБ Палец. Сборочный чертеж ТП 902-2-340 19Б5.00.001 Каток ТП 902-2-340 19Б5.00.002 Ось ТП 902-2-340 19Б5.00.003 Ось ТП 902-2-340 19Б5.00.106 Косынка ТП 902-2-340 19Б5.00.108 Патрубок ТП 902-2-340 19Б5.00.111 Обечайка ТП 902-2-340 19Б5.00.112 Стяжка ТП 902-2-340 19Б5.00.113 Вкладыш ТП 902-2-340 19Б5.00.201 Балка ТП 902-2-340 19Б5.00.105 Скоба ТП 902-2-340 19Б5.00.211 Серьга ТП 902-2-340 19Б5.00.301 Тяга ТП 902-2-340 19Б5.00.302 Коромысло ТП 902-2-340 19Б5.00.401 Палец ТП 902-2-340 19Б5.00.402 Вставка ТП 902-2-340 14Ж1.00.000 СБ Лоток распределительный. Сборочный чертеж ТП 902-2-340 14Ж1.00.100 СБ Корпус. Сборочный чертеж ТП 902-2-340 14Ж1.00.101 Труба ТП 902-2-340 14Ж1.00.103 Патрубок ТП 902-2-340 14Ж1.00.104 Патрубок |
| Разработан: | МосводоканалНИИпроект |
| Утверждён: | 10.08.1979 Главпромстройпроект Госстроя СССР (19/5-3151) |







































































