Скачать Типовой проект 902-2-222 Альбом III. Нестандартизированное оборудование (из ТП 902-2-221)Дата актуализации: 01.01.2021
|
| Обозначение: | Типовой проект 902-2-222 |
| Обозначение англ: | 902-2-222 |
| Статус: | действует |
| Название рус.: | Альбом III. Нестандартизированное оборудование (из ТП 902-2-221) |
| Дата добавления в базу: | 01.09.2013 |
| Дата актуализации: | 01.01.2021 |
| Дата введения: | 20.04.1974 |
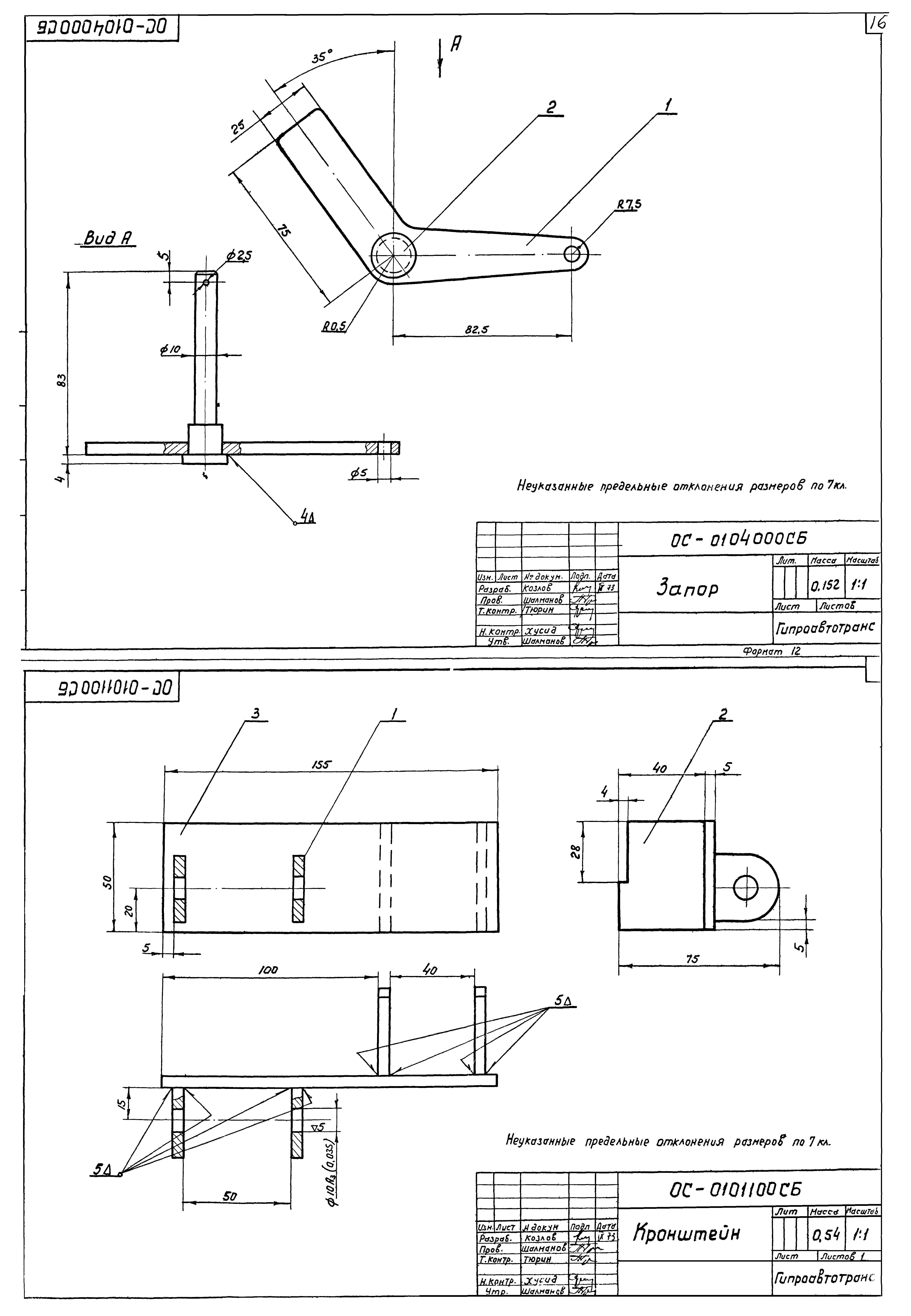
| Оглавление: | ТП 902-2-221 Содержание альбома ТП 902-2-221 ОС-0000000ВС Ведомость спецификаций ТП 902-2-221 ОС-0000000ВП Ведомость покупных деталей ТП 902-2-221 ОС-0000000 Спецификация на общий вид ТП 902-2-221 ОС-0000000СБ Общий вид ТП 902-2-221 ОС-ТУ Технические условия ТП 902-2-221 ОС-0100000 Спецификация на бадью ТП 902-2-221 ОС-0100000СБ Сборочный чертеж бадьи ТП 902-2-221 ОС-0101000 Спецификация на ванну ТП 902-2-221 ОС-0101000СБ Сборочный чертеж ванны ТП 902-2-221 ОС-0101100 Спецификация на кронштейн ТП 902-2-221 ОС-0101100СБ Чертеж кронштейна ТП 902-2-221 ОС-0101101 Чертеж щеки ТП 902-2-221 ОС-0101102 Чертеж ребра ТП 902-2-221 ОС-0101001 Чертеж оси ТП 902-2-221 ОС-0101002 Чертеж прокладки ТП 902-2-221 ОС-0101003 Чертеж уголка верхнего ТП 902-2-221 ОС-0101004 Чертеж листа бокового ТП 902-2-221 ОС-0101005 Чертеж нижнего ТП 902-2-221 ОС-0101007 Чертеж уголка ТП 902-2-221 ОС-0101009 Чертеж уголка ТП 902-2-221 ОС-0102000 Спецификация на коромысло ТП 902-2-221 ОС-0102000СБ Сборочный чертеж коромысла ТП 902-2-221 ОС-0102001 Чертеж оси коромысла ТП 902-2-221 ОС-0102002 Чертеж полки ТП 902-2-221 ОС-0103000 Спецификация штанги в сборе ТП 902-2-221 ОС-0103000СБ Сборочный чертеж штанги в сборе ТП 902-2-221 ОС-0103001 Чертеж штанги ТП 902-2-221 ОС-0103002 Чертеж втулки ТП 902-2-221 ОС-0104000 Спецификация запора ТП 902-2-221 ОС-0104000СБ Сборочный чертеж запора ТП 902-2-221 ОС-0104001 Чертеж рычага ТП 902-2-221 ОС-0104002 Чертеж оси ТП 902-2-221 ОС-0100001 Чертеж пружины ТП 902-2-221 ОС-0200000 Спецификация шибера ТП 902-2-221 ОС-0200000СБ Сборочный чертеж шибера ТП 902-2-221 ОС-0200001 Чертеж Плиты ТП 902-2-221 ОС-0200002 Чертеж ручки ТП 902-2-221 ОС-РЭ Руководство по эксплуатации ТП 902-2-221 ОС-ПС Паспорт |
| Разработан: | Гипроавтотранс Минавтотранса РСФСР |
| Утверждён: | 01.04.1974 Минавтотранс РСФСР (Russian Federation Minavtotrans 37) |





















