Скачать Типовой проект 904-1-56.84 Альбом 3. Автоматизация и КИП. ЧертежиДата актуализации: 01.01.2021
|
| Обозначение: | Типовой проект 904-1-56.84 |
| Обозначение англ: | 904-1-56.84 |
| Статус: | действует |
| Название рус.: | Альбом 3. Автоматизация и КИП. Чертежи |
| Дата добавления в базу: | 01.09.2013 |
| Дата актуализации: | 01.01.2021 |
| Дата введения: | 30.12.1983 |
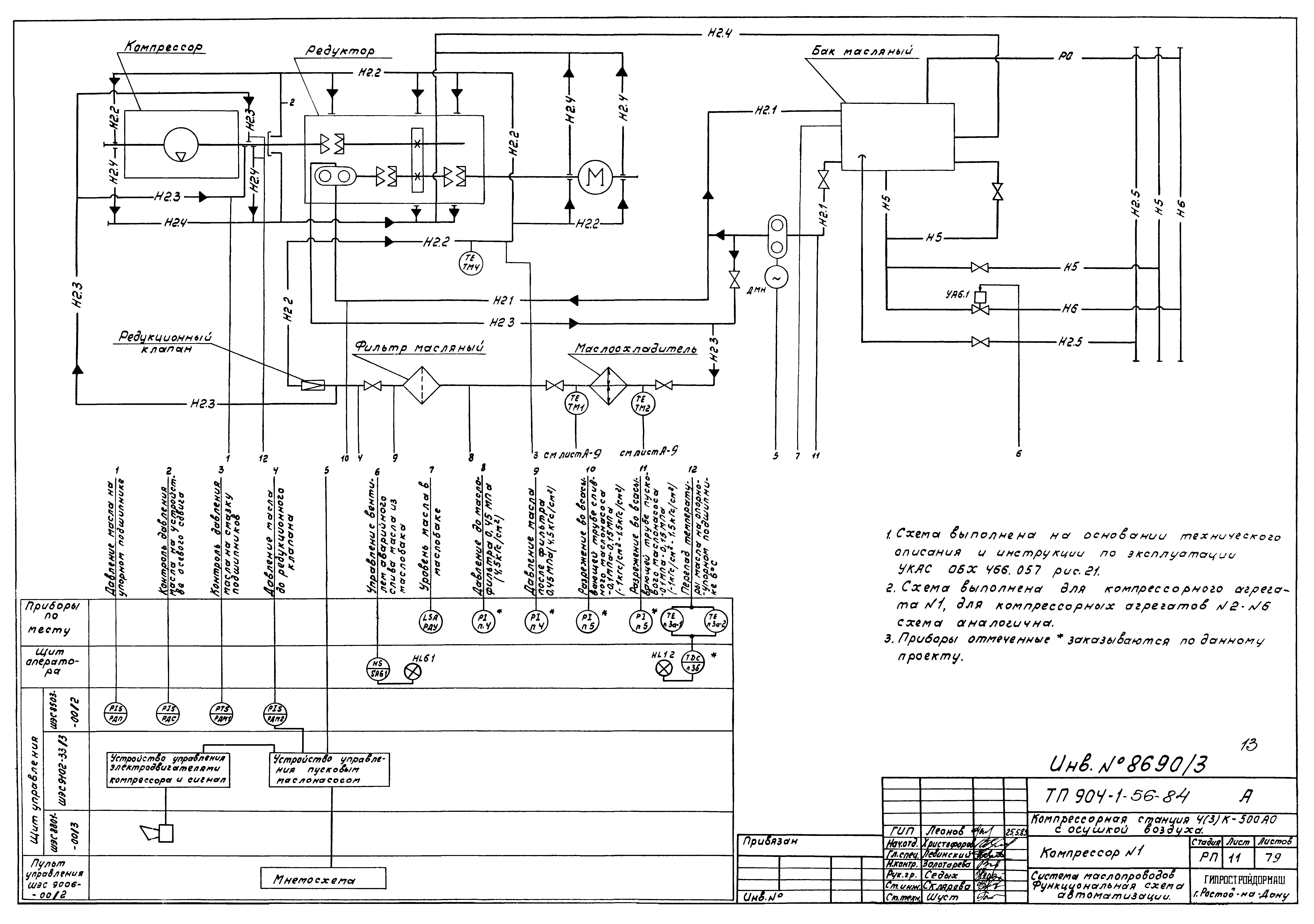
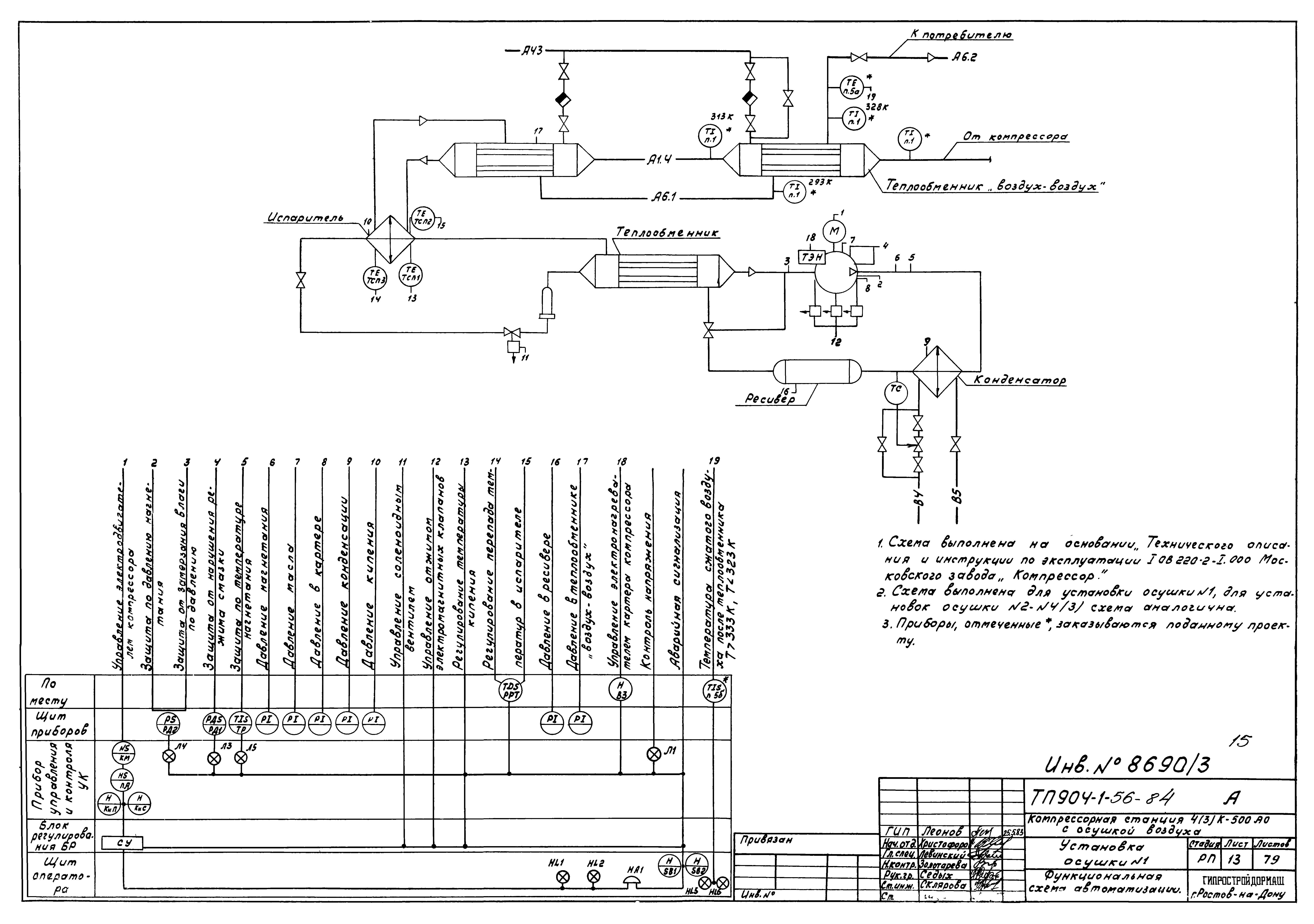
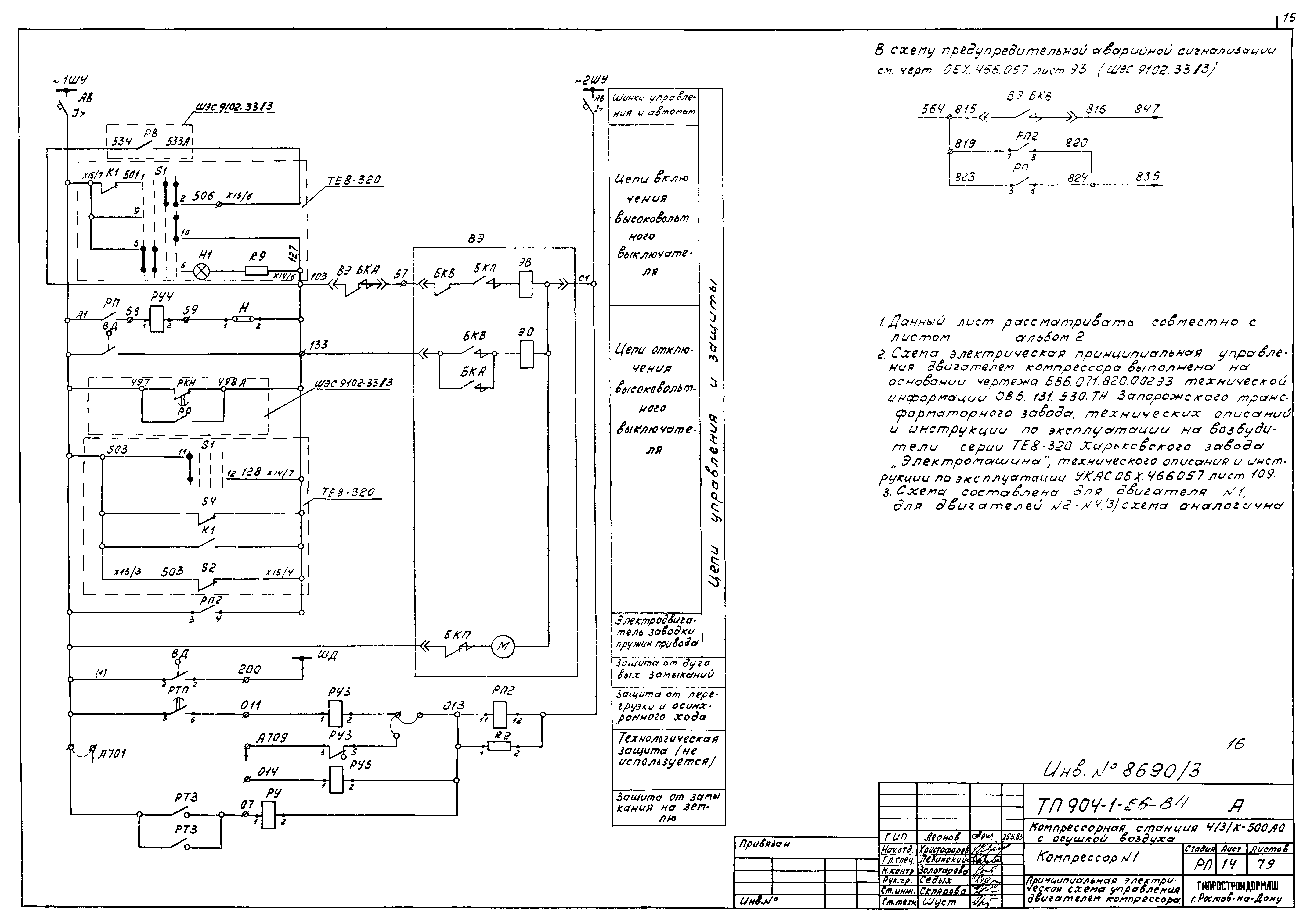
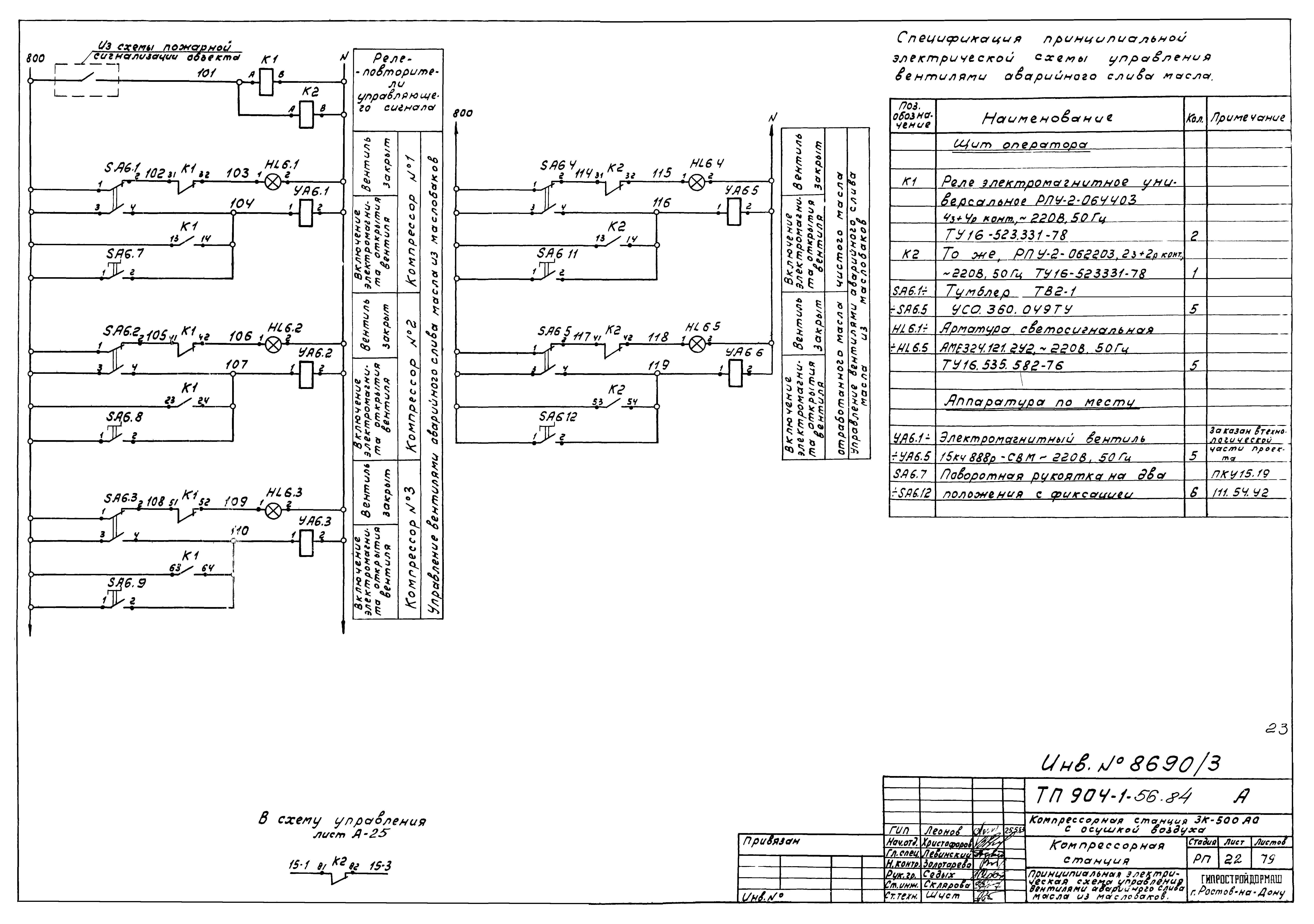
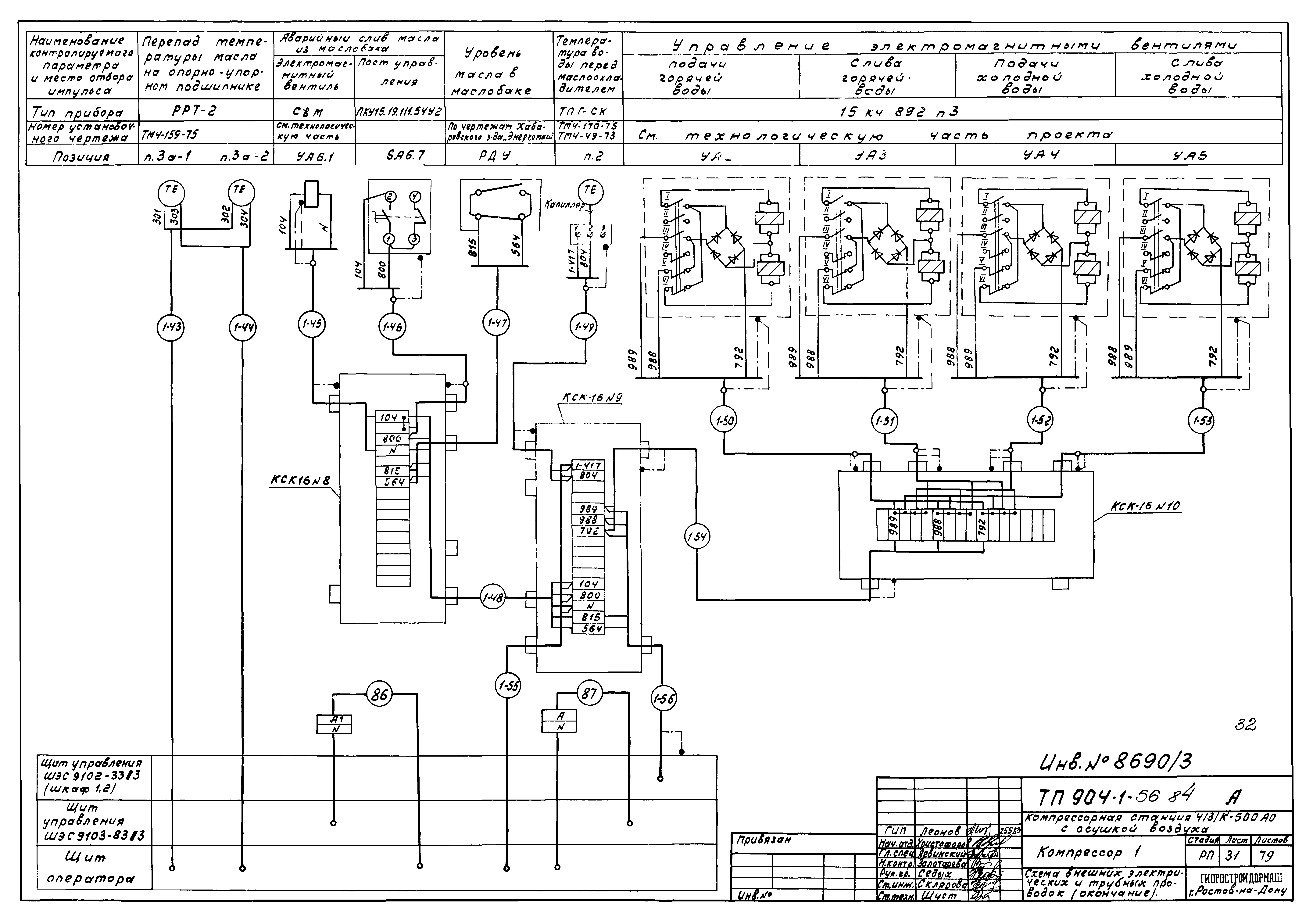
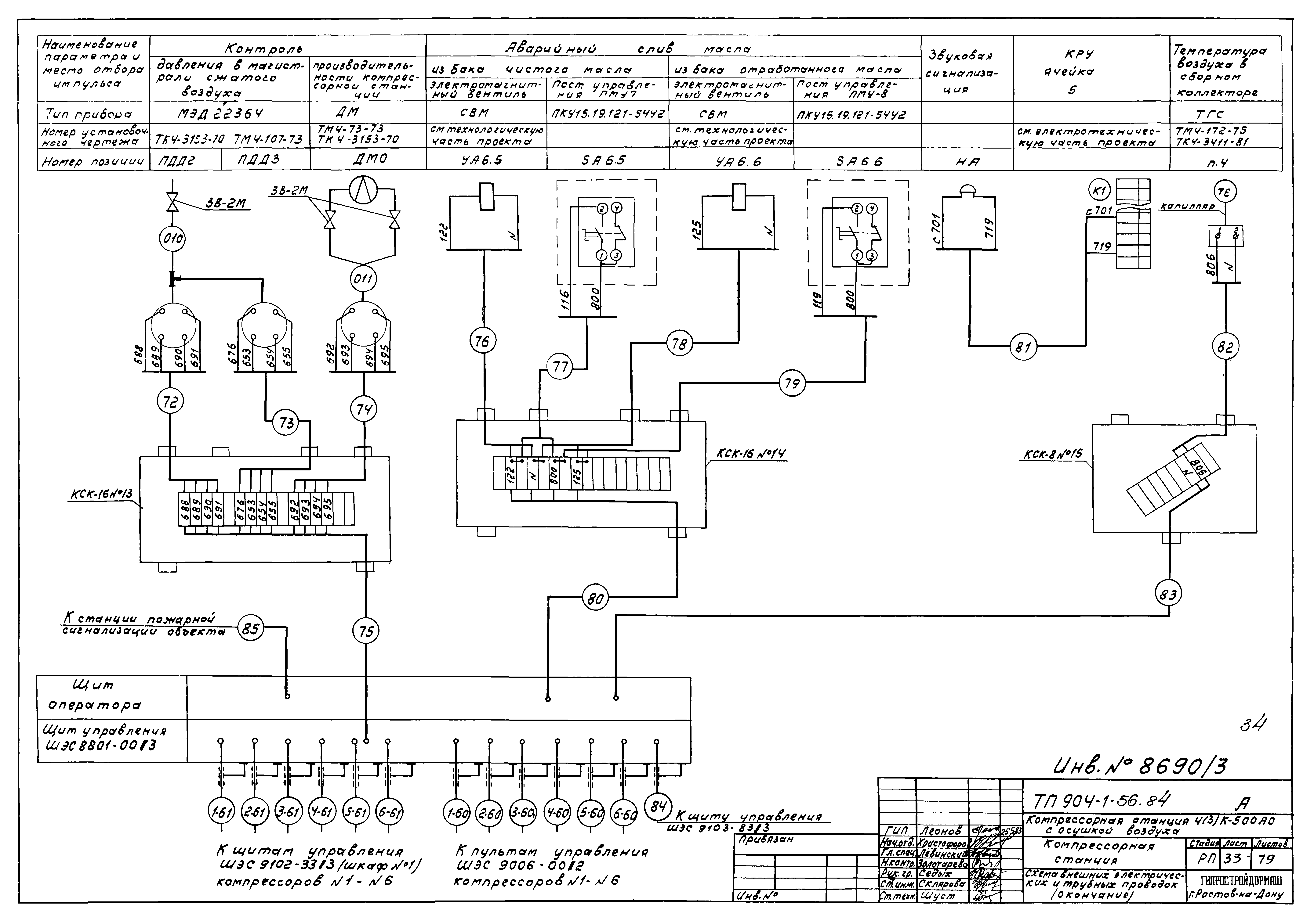
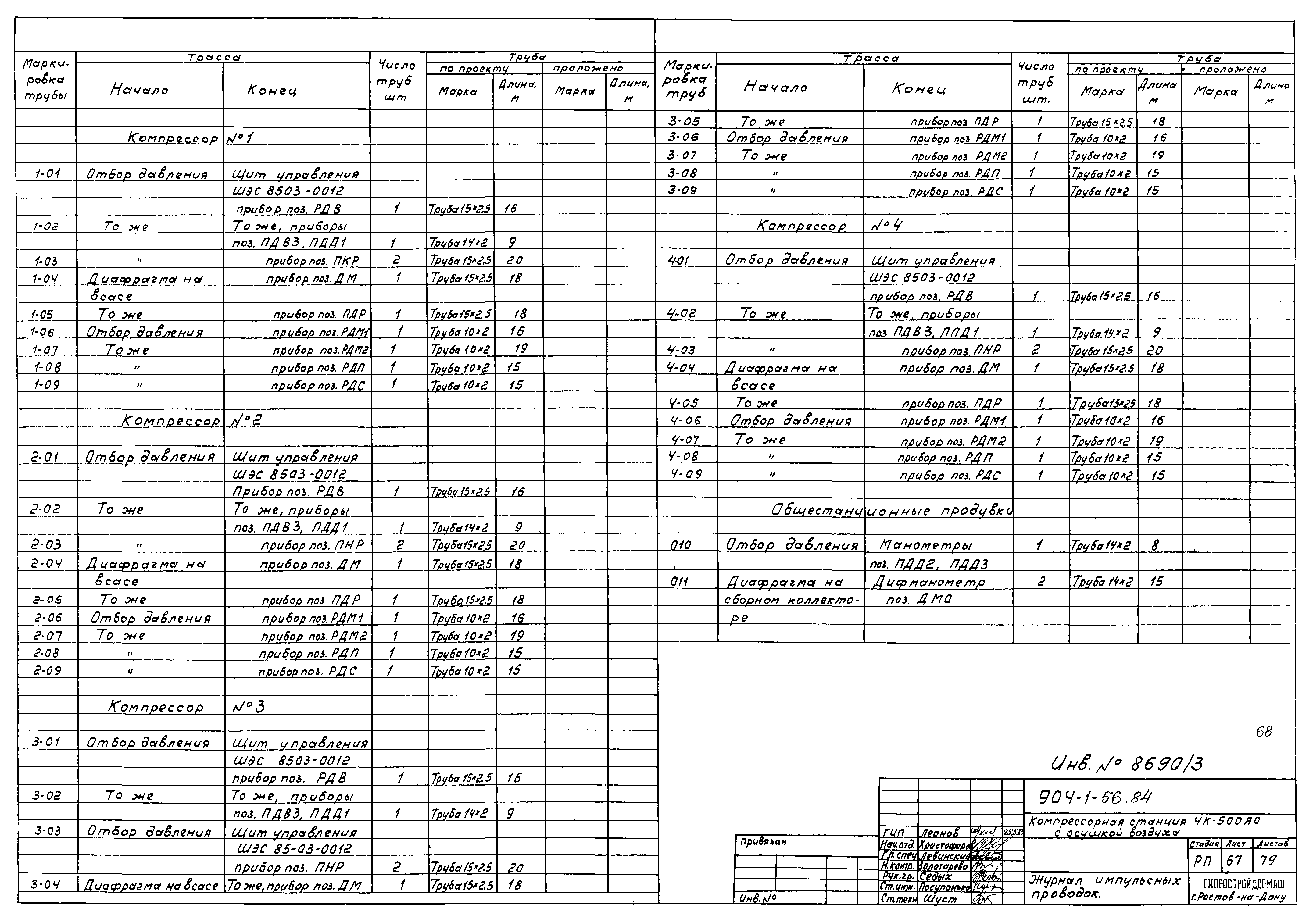
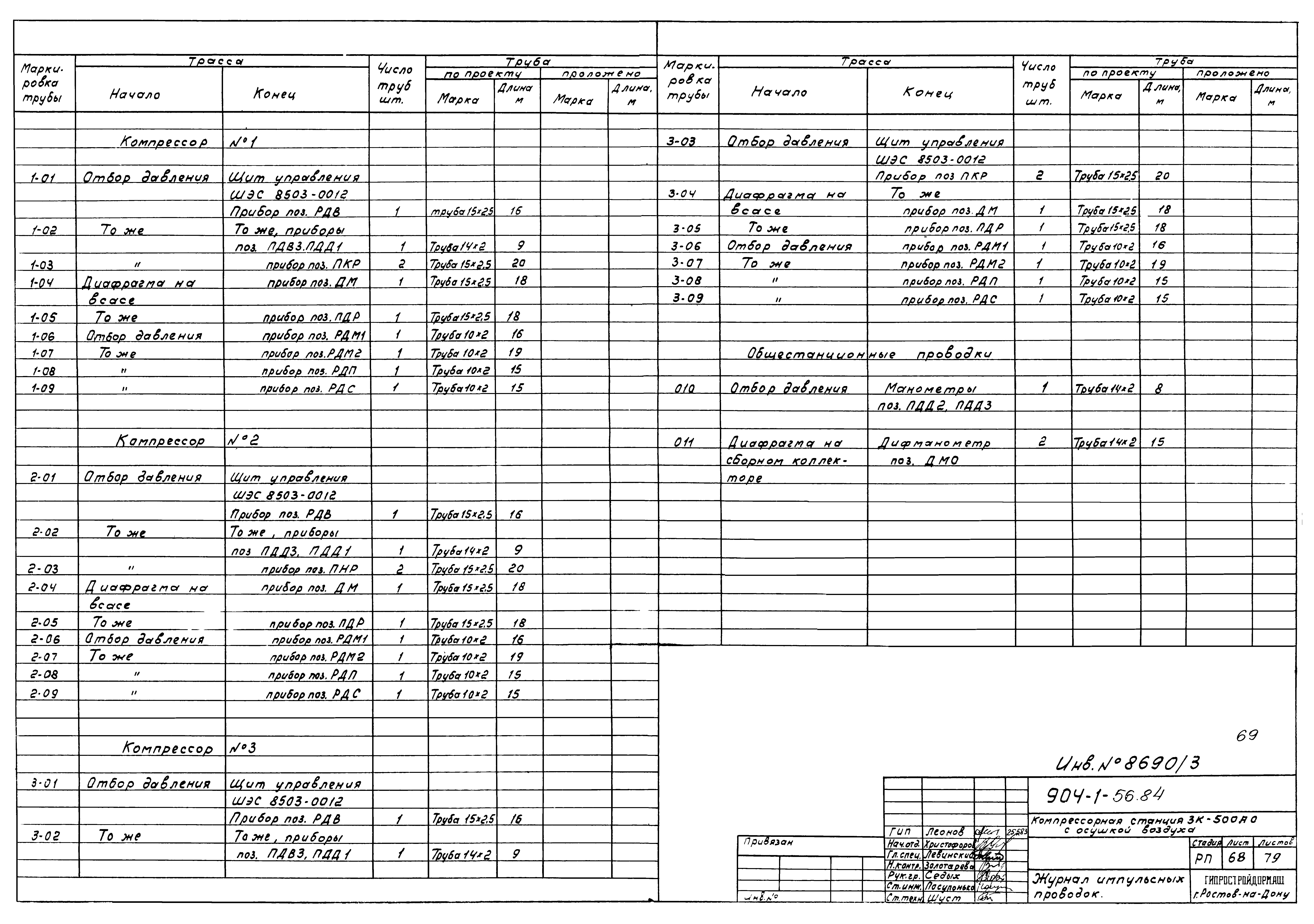
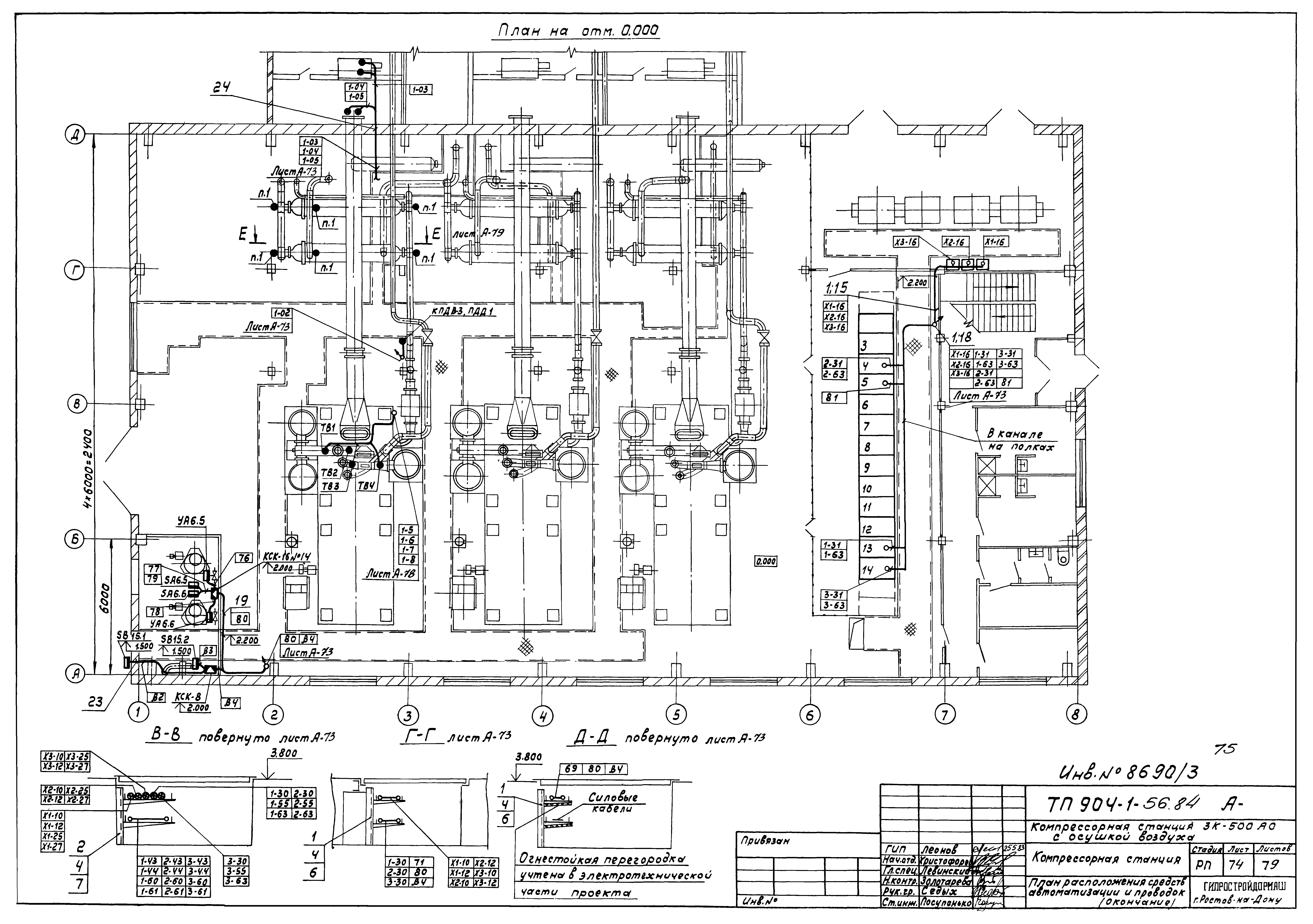
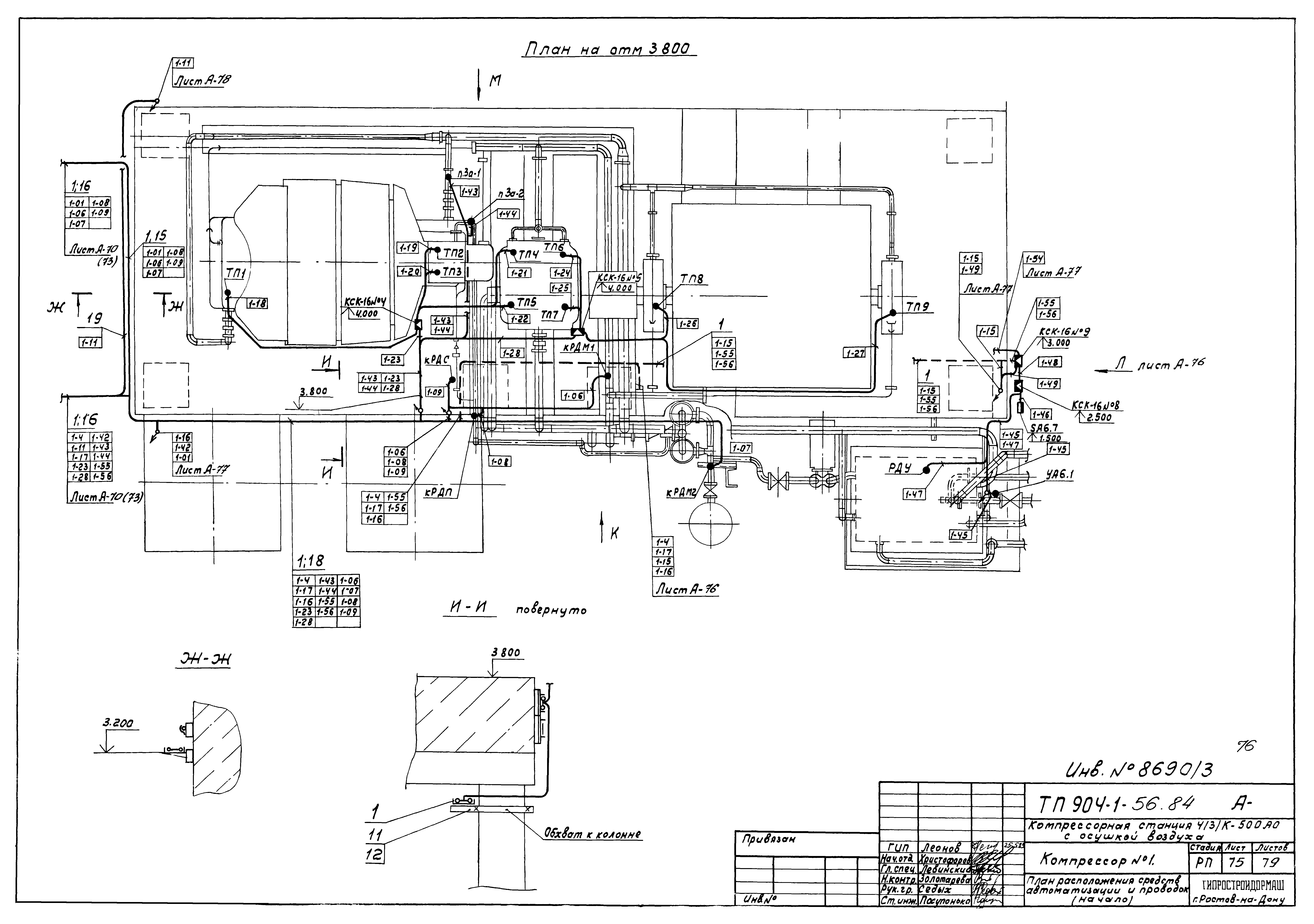
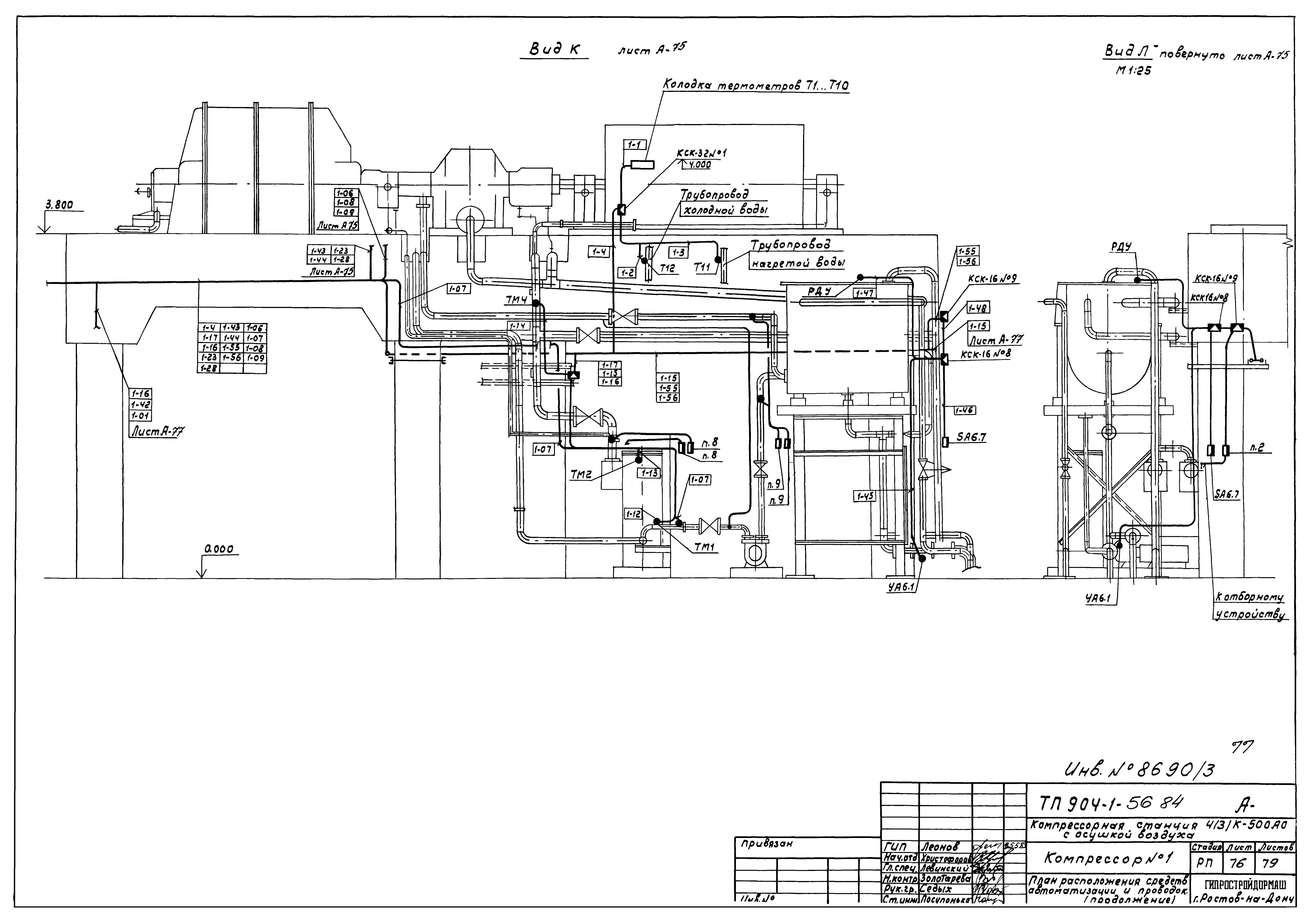
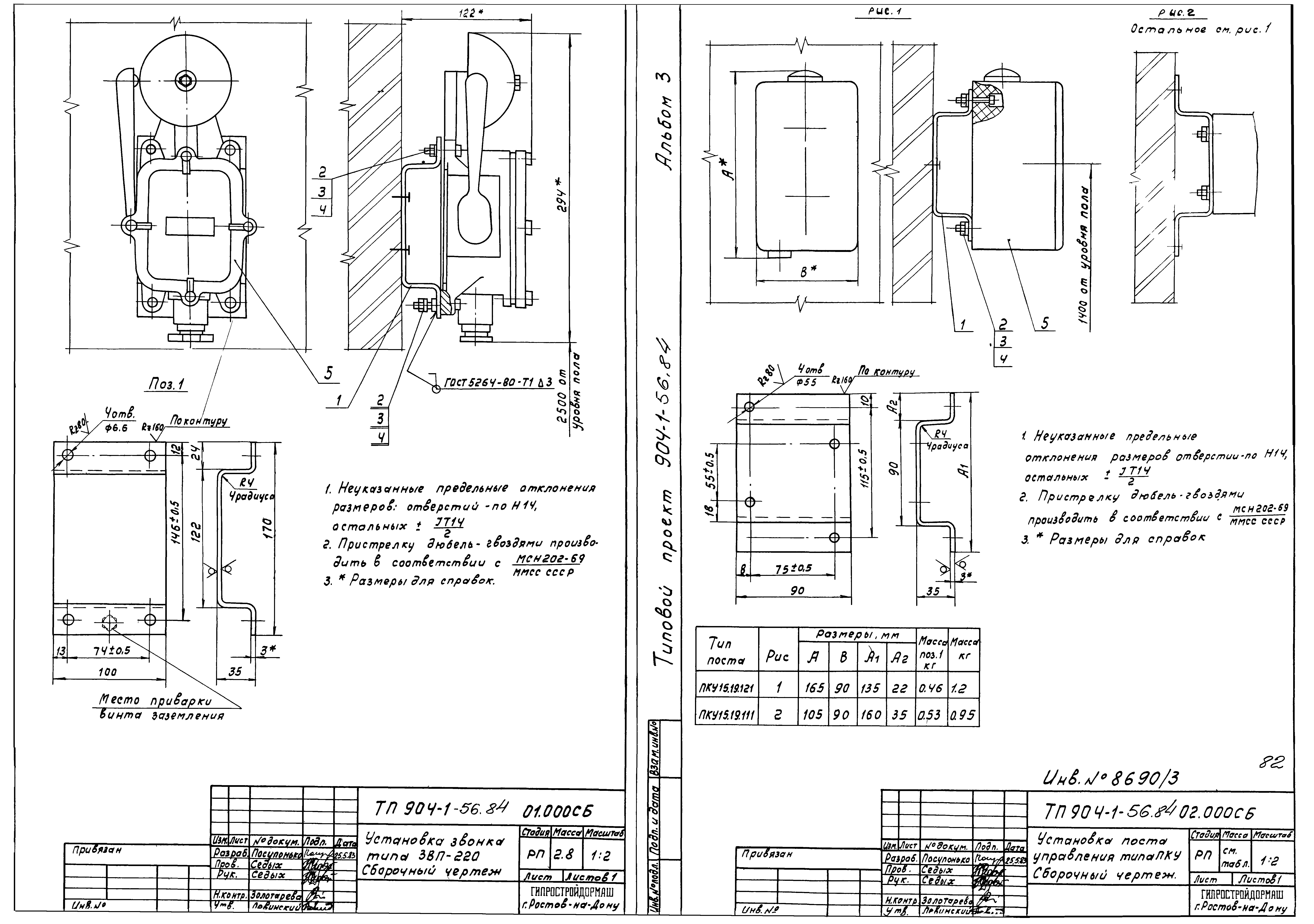
| Оглавление: | ТП 904-1-56.84-А Содержание альбома ТП 904-1-56.84-А-1-8 Общие данные ТП 904-1-56.84-А-9 Воздушный тракт. Функциональная схема автоматизации ТП 904-1-56.84-А-10 Система водопроводов. Функциональная схема автоматизации ТП 904-1-56.84-А-11 Система маслопроводов. Функциональная схема автоматизации ТП 904-1-56.84-А-12 Общестанционные проводки. Функциональная схема автоматизации ТП 904-1-56.84-А-13 Установка осушки №1. Функциональная схема автоматизации ТП 904-1-56.84-А-14 Принципиальная электрическая схема управления двигателем компрессора ТП 904-1-56.84-А-15 Схема автоматизации одиночного агрегата ТП 904-1-56.84-А-16 Принципиальная электрическая схема управления вентилем слива холодной воды ТП 904-1-56.84-А-17 Принципиальная электрическая схема управления вентилем подогрева масла ТП 904-1-56.84-А-18 Принципиальная электрическая схема управления отопительными агрегатами ТП 904-1-56.84-А-19 Компрессорная станция. Принципиальная электрическая схема питания ТП 904-1-56.84-А-20 Компрессорная станция. Принципиальная электрическая схема питания ТП 904-1-56.84-А-21 Компрессорная станция. Принципиальная электрическая схема управления вентилями аварийного слива масла из маслобаков ТП 904-1-56.84-А-22 Компрессорная станция. Принципиальная электрическая схема управления вентилями аварийного слива масла из маслобаков ТП 904-1-56.84-А-23 Установка осушки №1. Принципиальная электрическая схема сигнализации ТП 904-1-56.84-А-24 Компрессорная станция. Принципиальная электрическая схема сигнализации ТП 904-1-56.84-А-25 Вентсистема В2. Электрические схемы ТП 904-1-56.84-А-26-31 Компрессор №1. Схема внешних электрических и трубных проводок ТП 904-1-56.84-А-32-33 Компрессорная станция. Схема внешних электрических и трубных проводок ТП 904-1-56.84-А-34-35 Установка осушки №1. Схема внешних электрических и трубных проводок ТП 904-1-56.84-А-36 Щит 9102-3303 (шкаф 1,2). Схема подключения. Компрессор №1 ТП 904-1-56.84-А-37 Щит 9102-3303 (шкаф 3). Схема подключения. Компрессор №1 ТП 904-1-56.84-А-38 Щит 8503-0002, пульт 9006-0002. Схема подключения. Компрессор №1 ТП 904-1-56.84-А-39 Щит 8801-0003. Схема подключения. Компрессорная станция ТП 904-1-56.84-А-40 Установка осушки №1. Прибор управления и контроля УК. Схема подключения ТП 904-1-56.84-А-41 Установка осушки №1. Блок регулирования ШИЕ. Схема подключения ТП 904-1-56.84-А-42-43 Компрессорная станция. Щит оператора. Схема подключения ТП 904-1-56.84-А-44-45 Компрессорная станция. Щит оператора. Схема подключения ТП 904-1-56.84-А-46-55 Журнал кабельных проводок ТП 904-1-56.84-А-59-66 Журнал кабельных проводок ТП 904-1-56.84-А-67 Журнал импульсных проводок ТП 904-1-56.84-А-68 Журнал импульсных проводок ТП 904-1-56.84-А-69-71 Компрессорная станция. Расположение средств автоматизации и проводок ТП 904-1-56.84-А-72-74 Компрессорная станция. Расположение средств автоматизации и проводок ТП 904-1-56.84-А-75-78 Компрессор №1. Расположение средств автоматизации и проводок ТП 904-1-56.84-А-79 Установка осушки №1. Расположение средств автоматизации и проводок ТП 904-1-56.84 Кнопочный пост управления ПУК ТП 904-1-56.84 Кнопочные посты управления ПКЕ722-2;ПКЕ212-1 ТП 904-1-56.84 Установка постов управления ПКУ;ПКЕ722-2;ПКЕ212-1 |
| Разработан: | Гипростройдормаш |
| Утверждён: | 01.11.1983 Минстройдормаш (Minstroydormash 20/83) |




















































































