Скачать Типовой проект 903-1-204 Альбом 8.22. Котельная. Электротехническая часть. Задание заводу-изготовителю на низковольтные комплектные устройстваДата актуализации: 01.01.2021
|
| Обозначение: | Типовой проект 903-1-204 |
| Обозначение англ: | 903-1-204 |
| Статус: | действует |
| Название рус.: | Альбом 8.22. Котельная. Электротехническая часть. Задание заводу-изготовителю на низковольтные комплектные устройства |
| Дата добавления в базу: | 01.09.2013 |
| Дата актуализации: | 01.01.2021 |
| Дата введения: | 01.07.1984 |
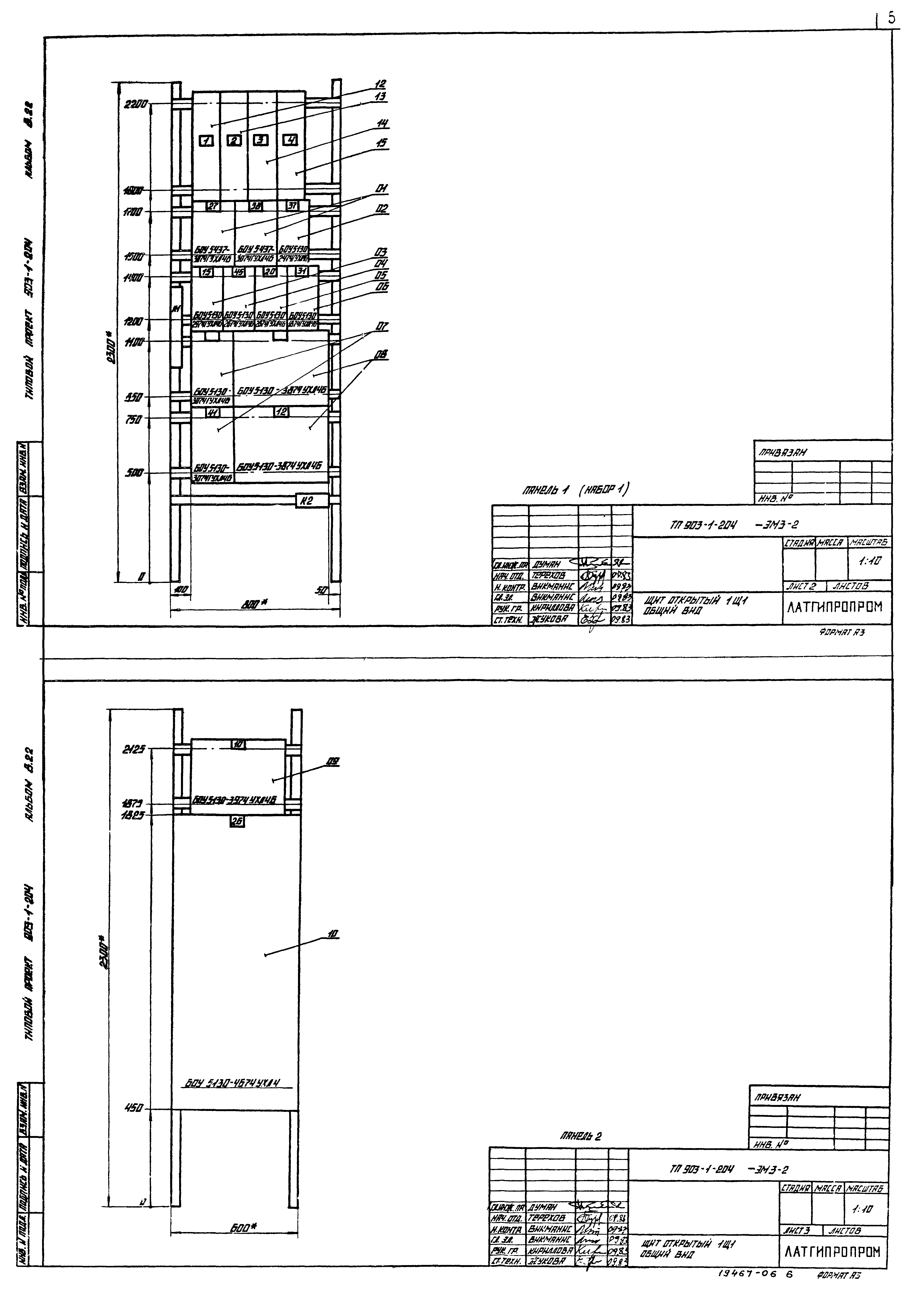
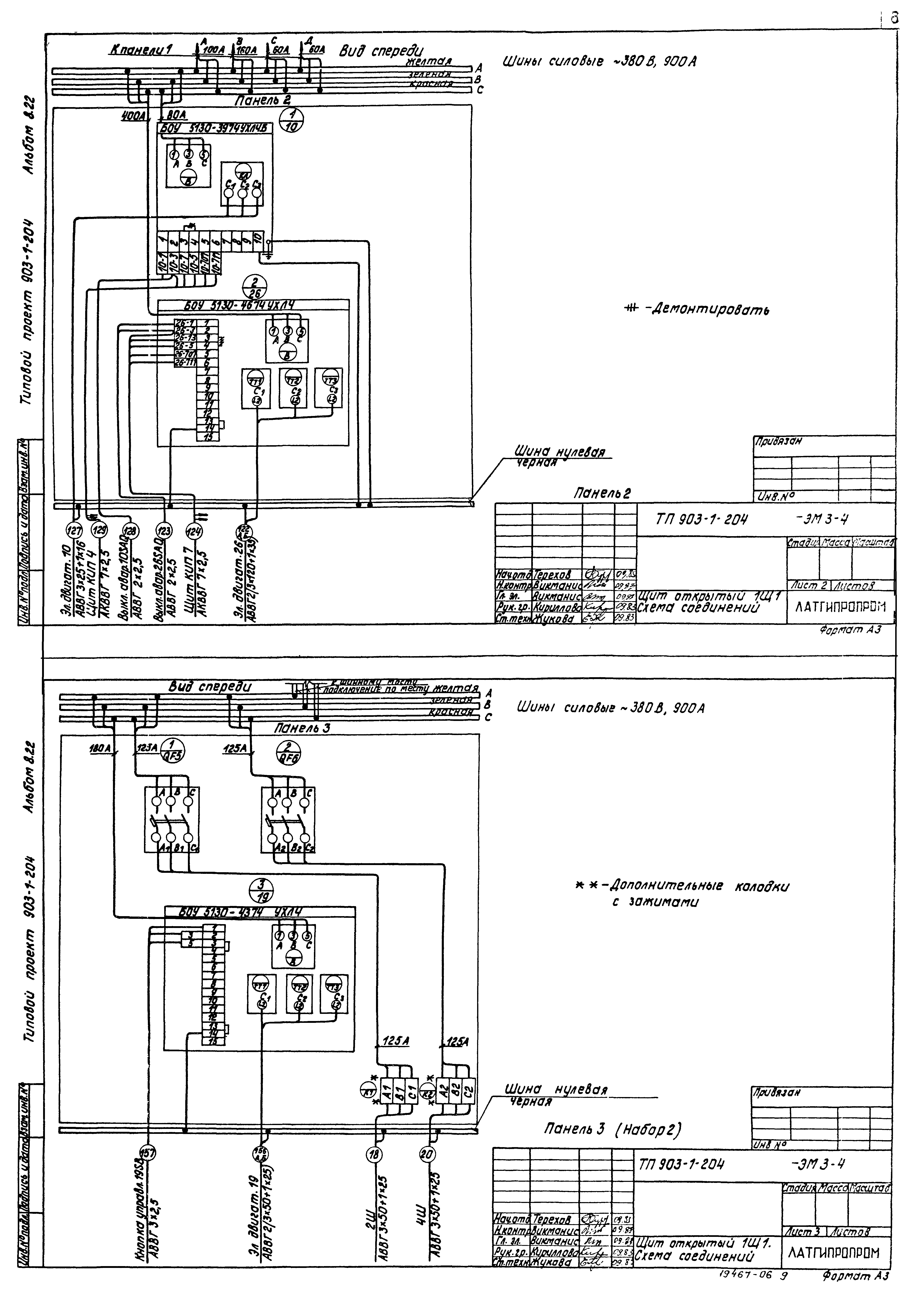
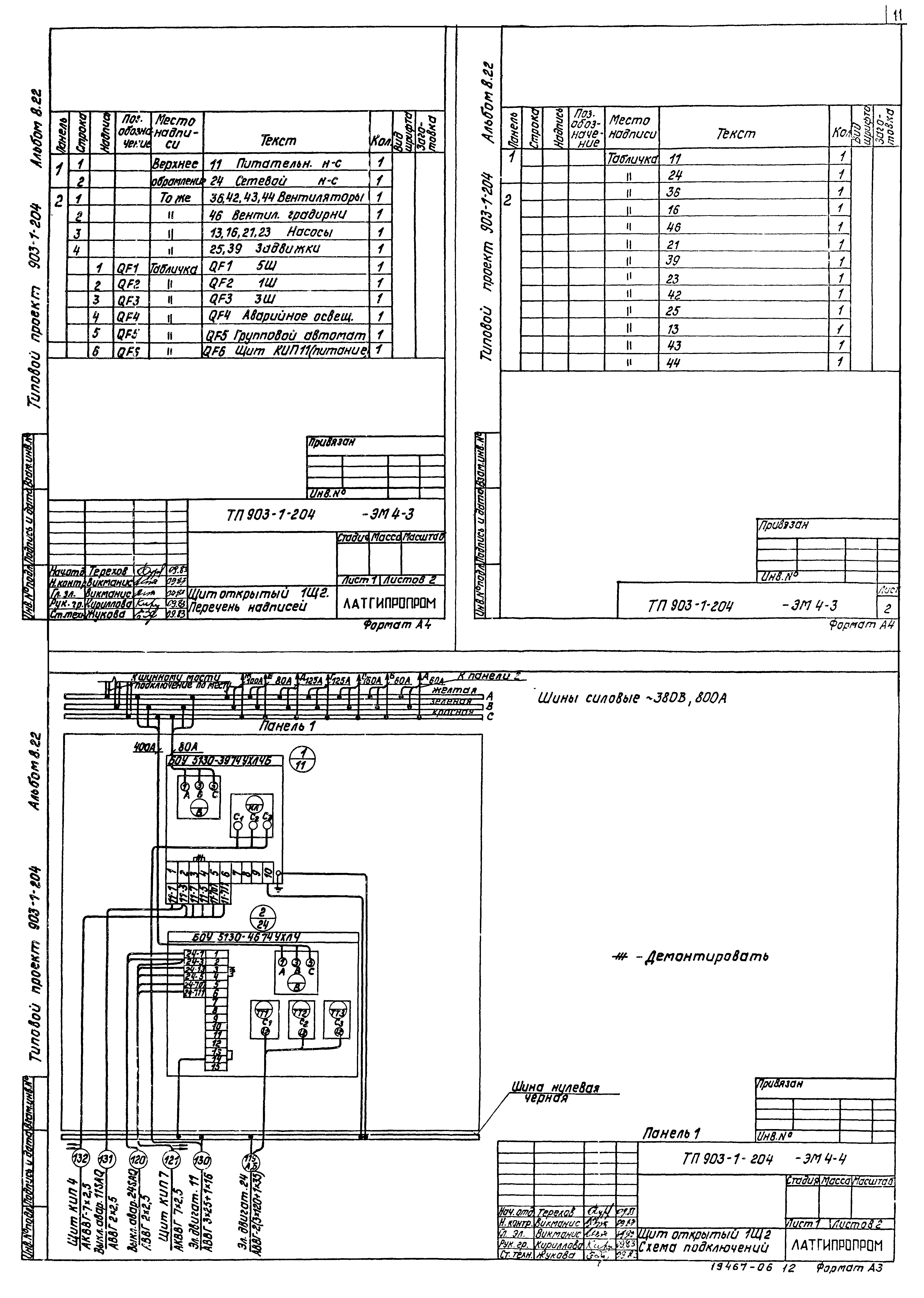
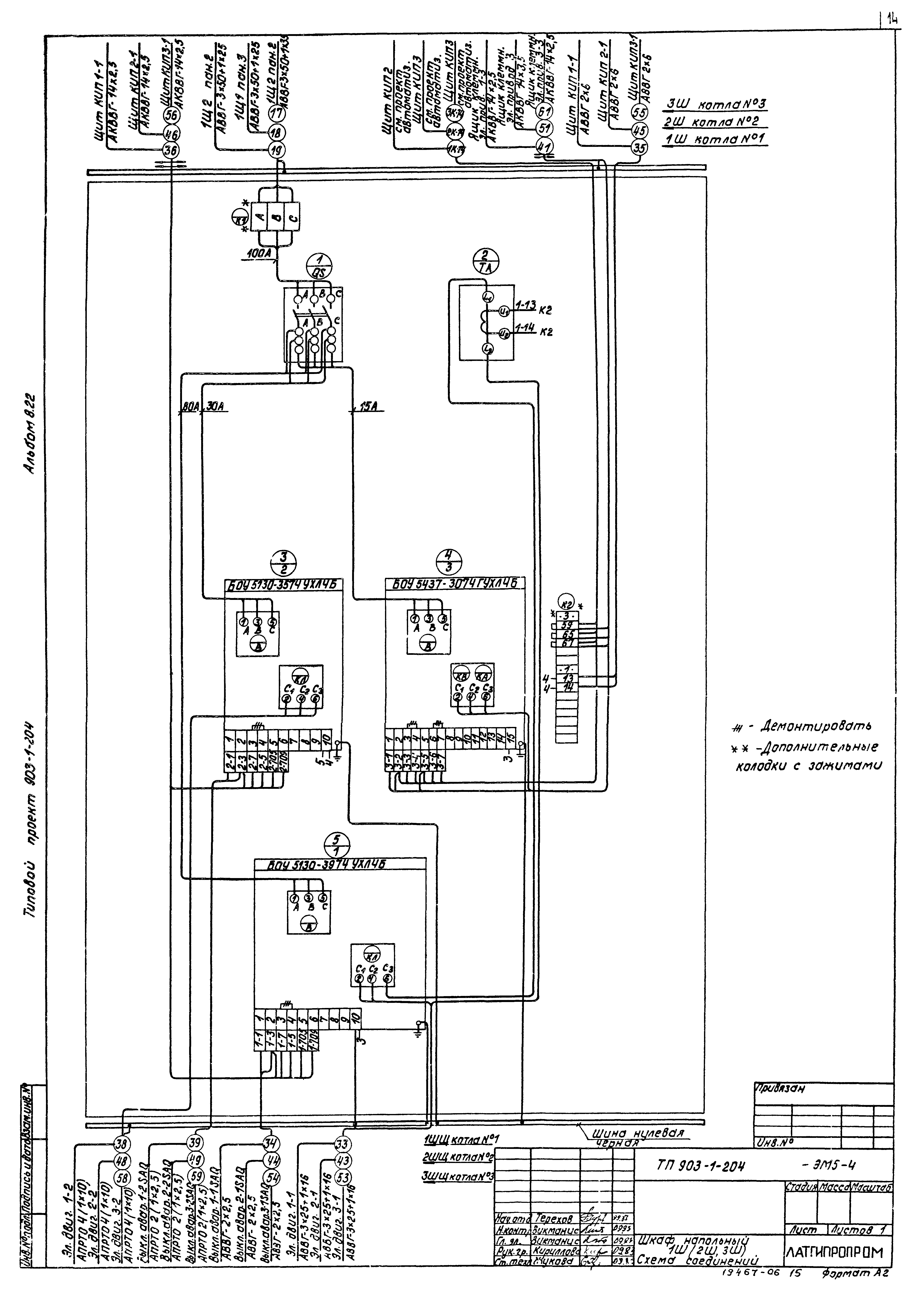
| Оглавление: | ТП 903-1-204 Содержание альбома ТП 903-1-204-ЭМ1 Низковольтные комплектные устройства. Задание заводу-изготовителю ТП 903-1-204-ЭМ2 Перечень комплектных устройств ТП 903-1-204-ЭМ3-1 Щит открытый 1Щ1. Технические данные аппаратов ТП 903-1-204-ЭМ3-2 Щит открытый 1Щ1. Общий вид ТП 903-1-204-ЭМ3-3 Щит открытый 1Щ1. Перечень надписей ТП 903-1-204-ЭМ2-4 Щит открытый 1Щ1. Схема соединений ТП 903-1-204-ЭМ4-1 Щит открытый 1Щ2. Технические данные аппаратов ТП 903-1-204-ЭМ4-2 Щит открытый 1Щ2. Общий вид ТП 903-1-204-ЭМ4-3 Щит открытый 1Щ2. Перечень надписей ТП 903-1-204-ЭМ4-4 Щит открытый 1Щ2. Схема соединений ТП 903-1-204-ЭМ5-1 Шкаф напольный 1Ш (2Ш,3Ш). Технические данные аппаратов ТП 903-1-204-ЭМ5-2 Шкаф напольный 1Ш (2Ш,3Ш). Общий вид ТП 903-1-204-ЭМ5-3 Шкаф напольный 1Ш (2Ш,3Ш). Перечень надписей ТП 903-1-204-ЭМ5-4 Шкаф напольный 1Ш (2Ш,3Ш). Схема соединений ТП 903-1-204-ЭМ6-1 Шкаф напольный 4Ш (5Ш,6Ш).. Технические данные аппаратов ТП 903-1-204-ЭМ6-2 Шкаф напольный 4Ш (5Ш,6Ш). Общий вид ТП 903-1-204-ЭМ6-3 Шкаф напольный 4Ш (5Ш,6Ш). Перечень надписей ТП 903-1-204-ЭМ6-4 Шкаф напольный 4Ш (5Ш,6Ш). Схема соединений |
| Разработан: | Латгипропром |
| Утверждён: | 10.11.1983 Главпромстройпроект Госстроя СССР (41) |

















