Скачать Типовой проект 903-1-154 Альбом I. Часть 2. Тепломеханическая часть. Трубопроводы котельной. Водоподготовительная установкаДата актуализации: 01.01.2021
|
| Обозначение: | Типовой проект 903-1-154 |
| Обозначение англ: | 903-1-154 |
| Статус: | действует |
| Название рус.: | Альбом I. Часть 2. Тепломеханическая часть. Трубопроводы котельной. Водоподготовительная установка |
| Дата добавления в базу: | 01.09.2013 |
| Дата актуализации: | 01.01.2021 |
| Дата введения: | 28.09.1978 |
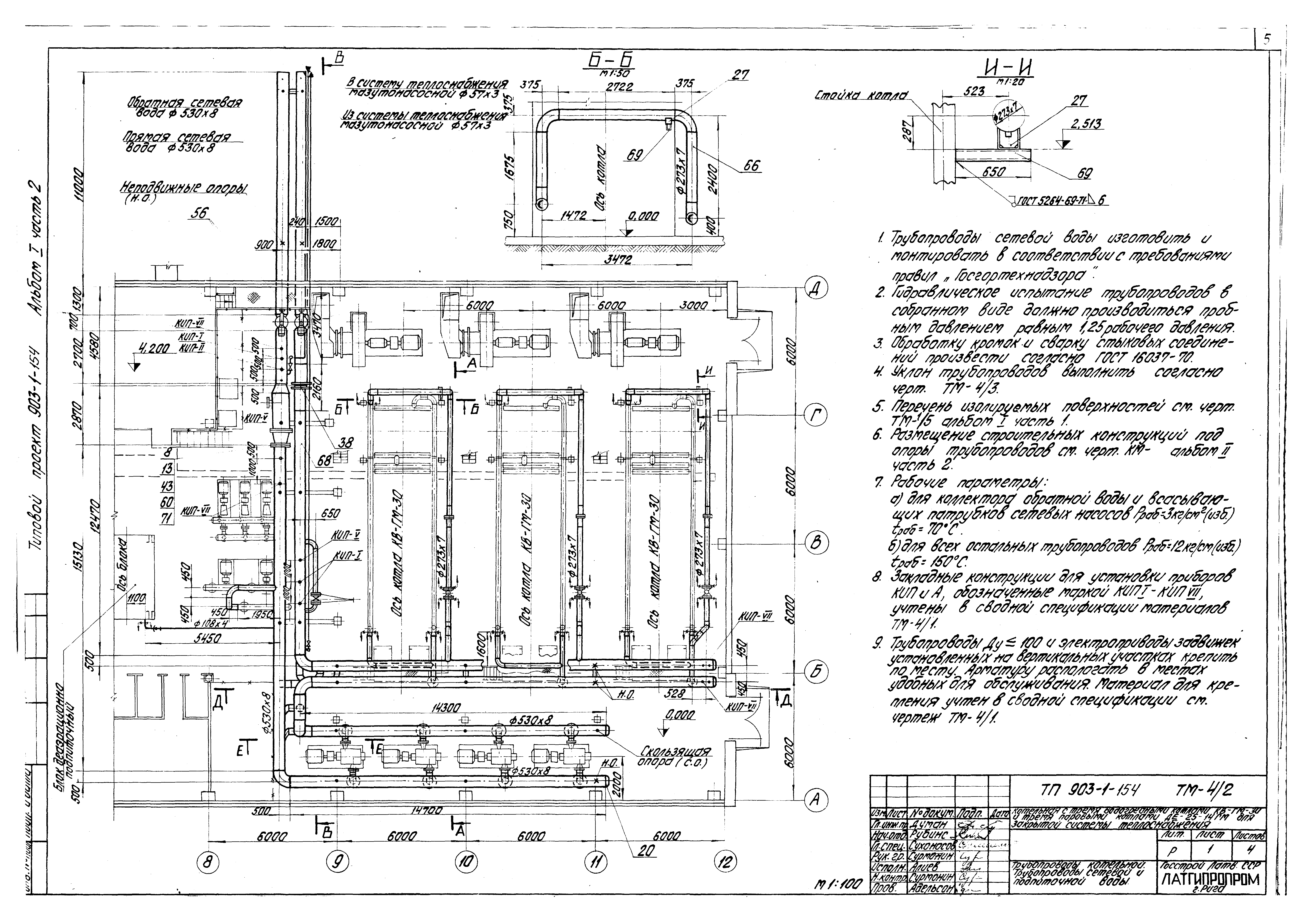
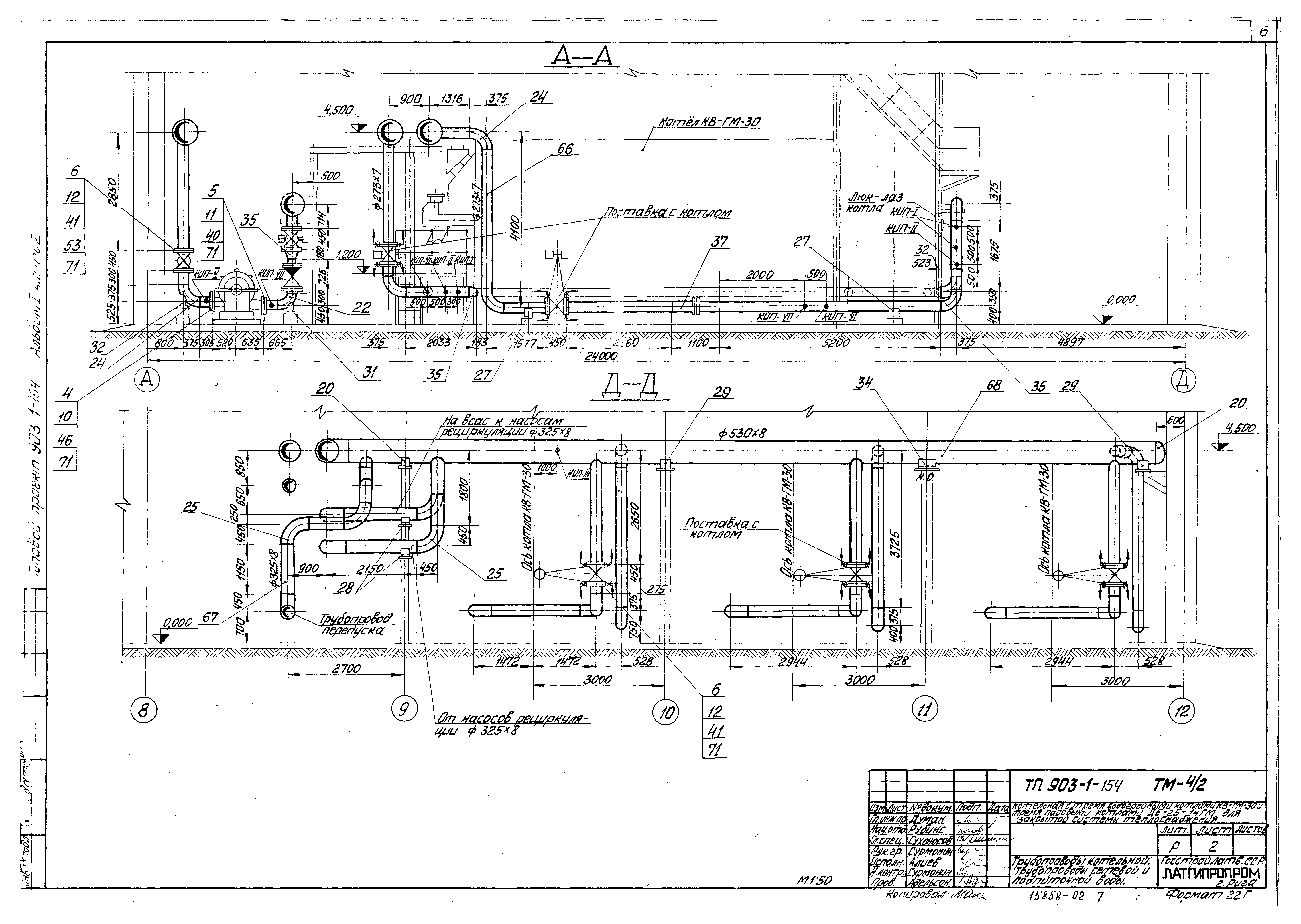
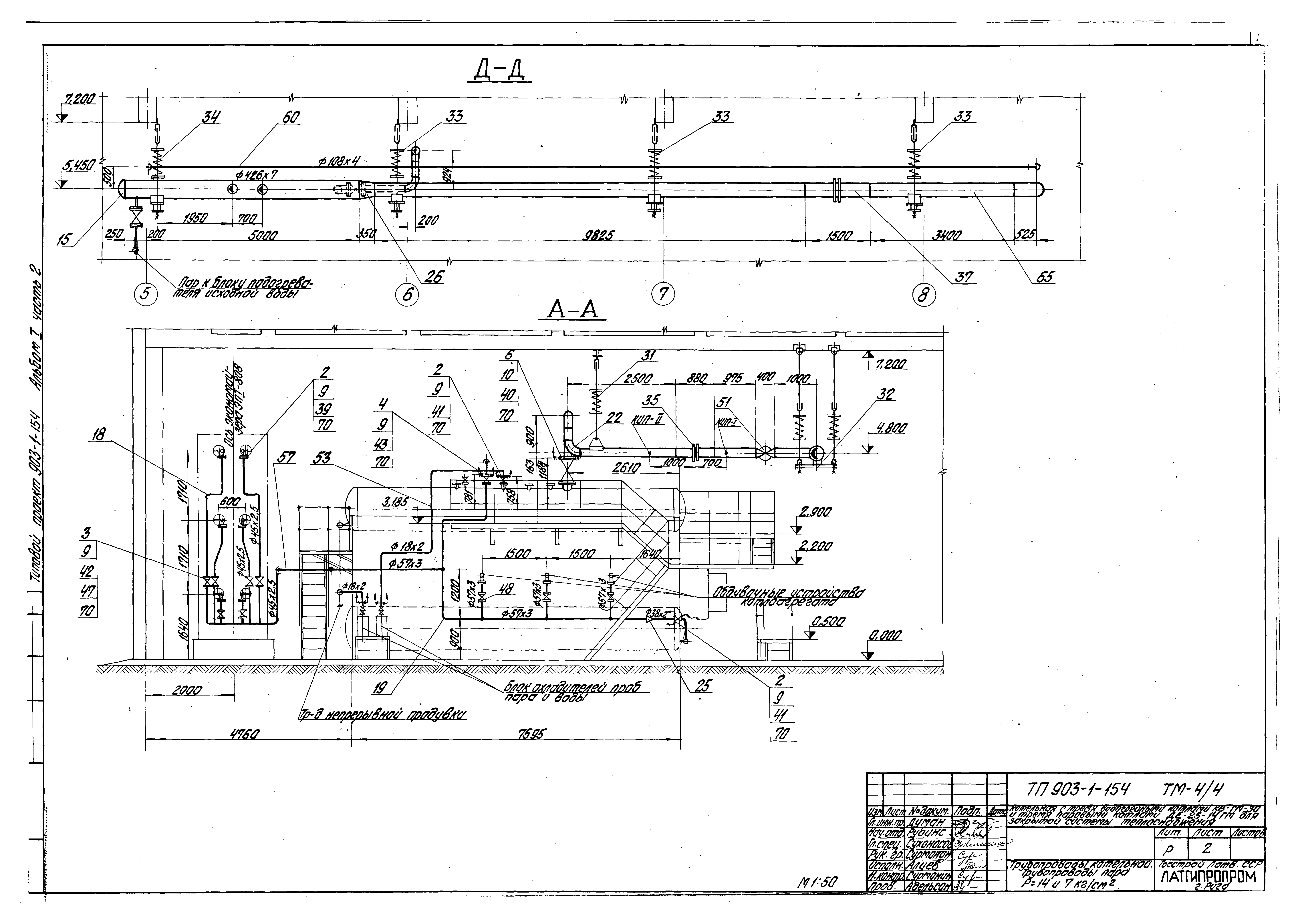
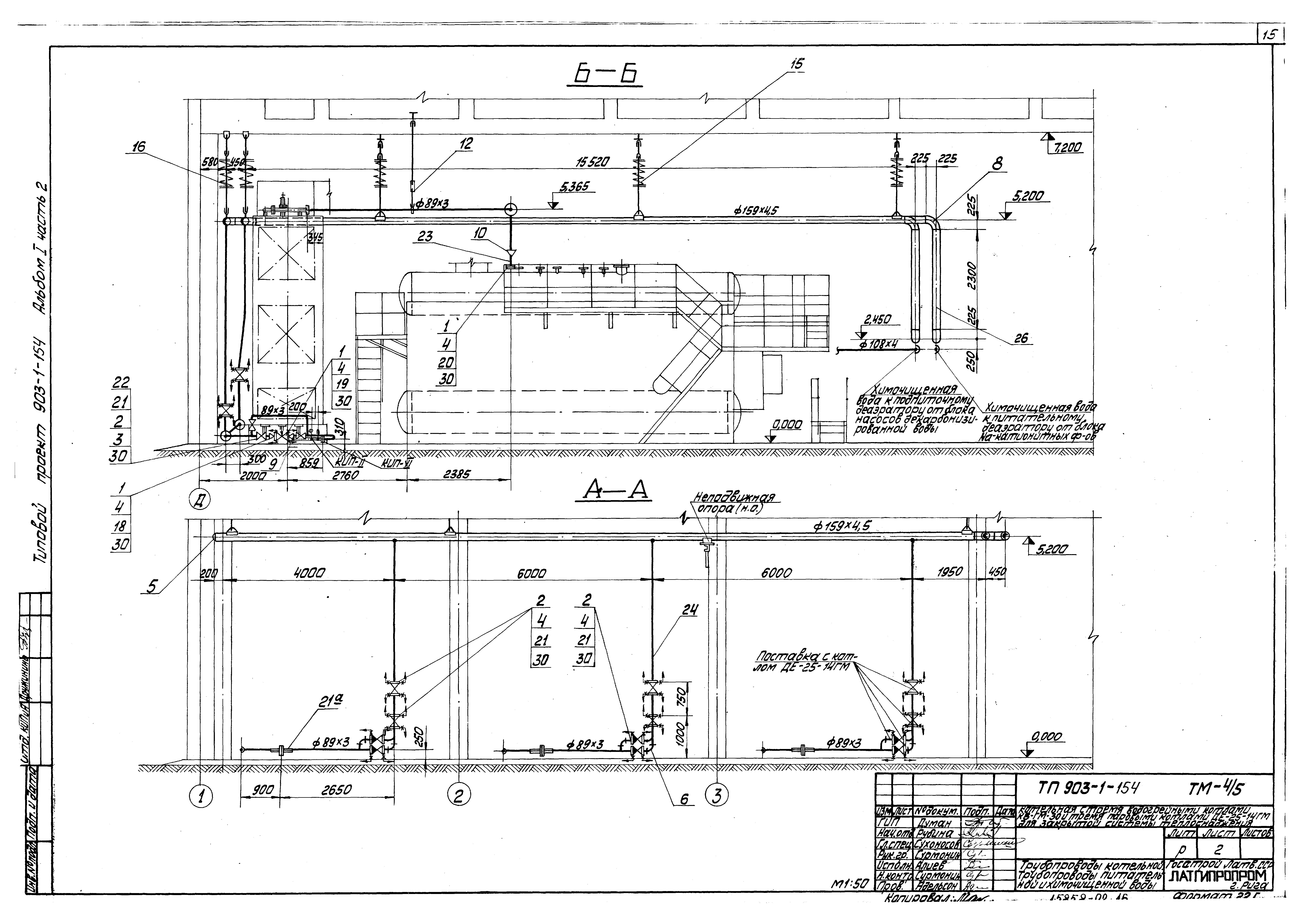
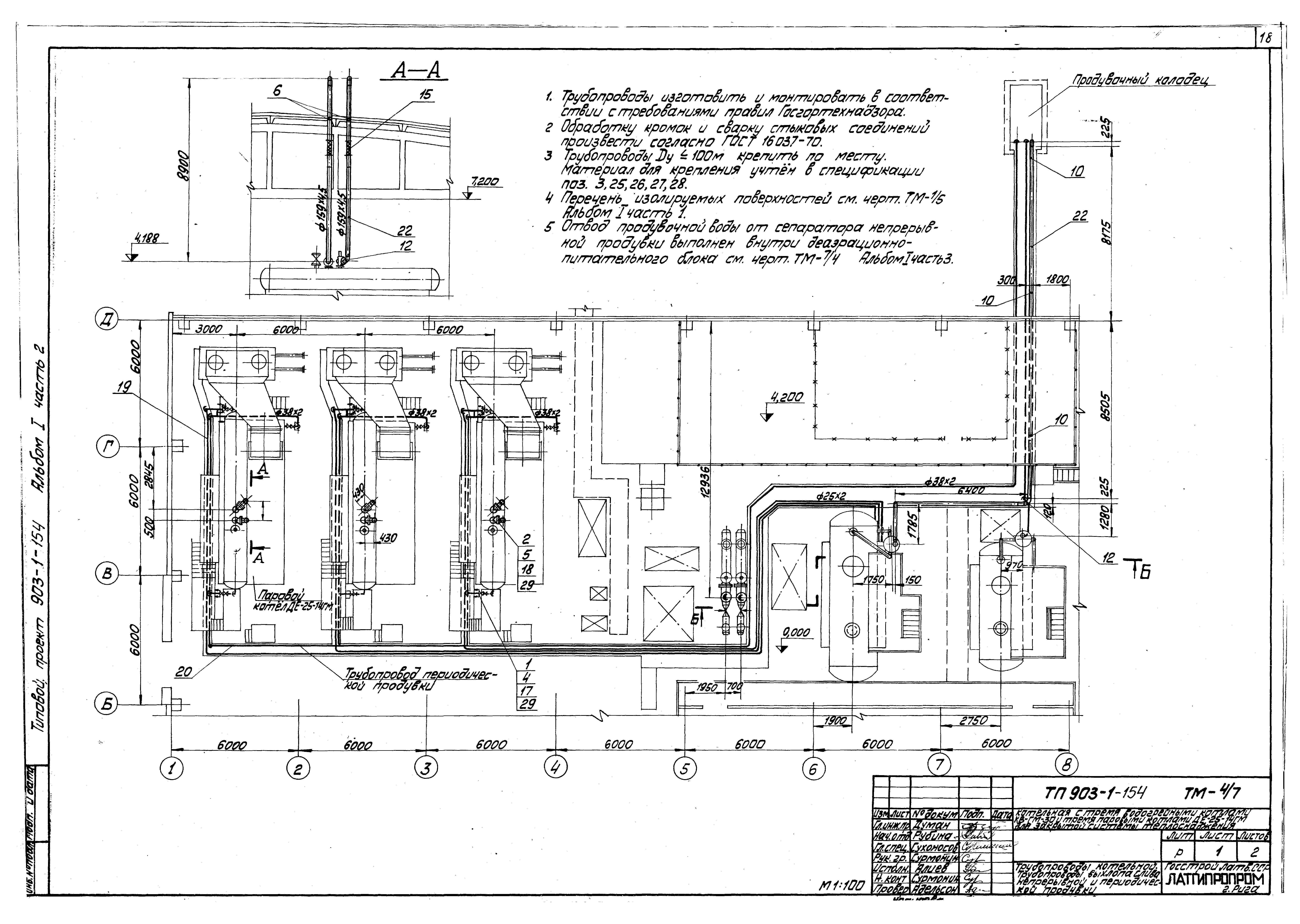
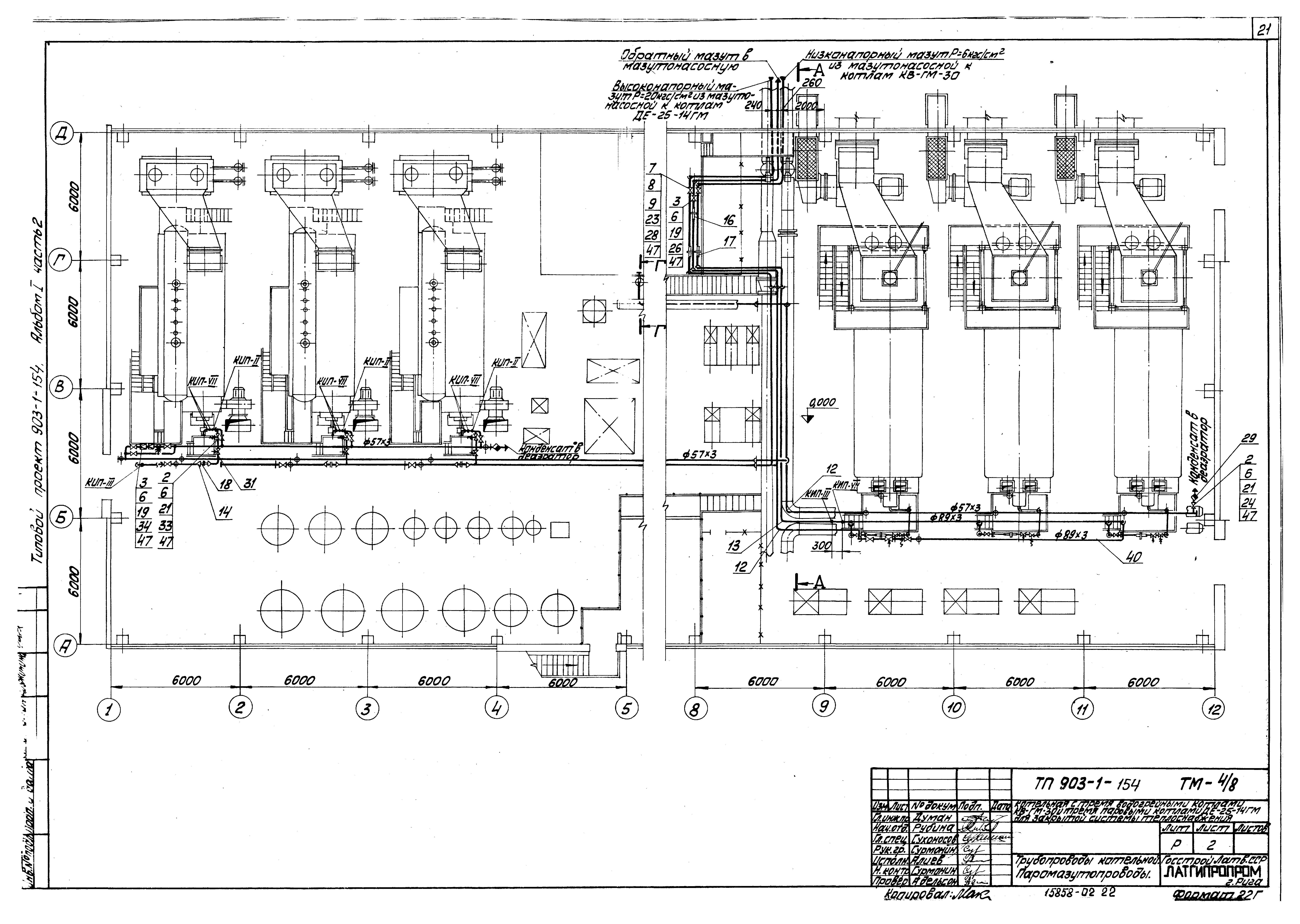
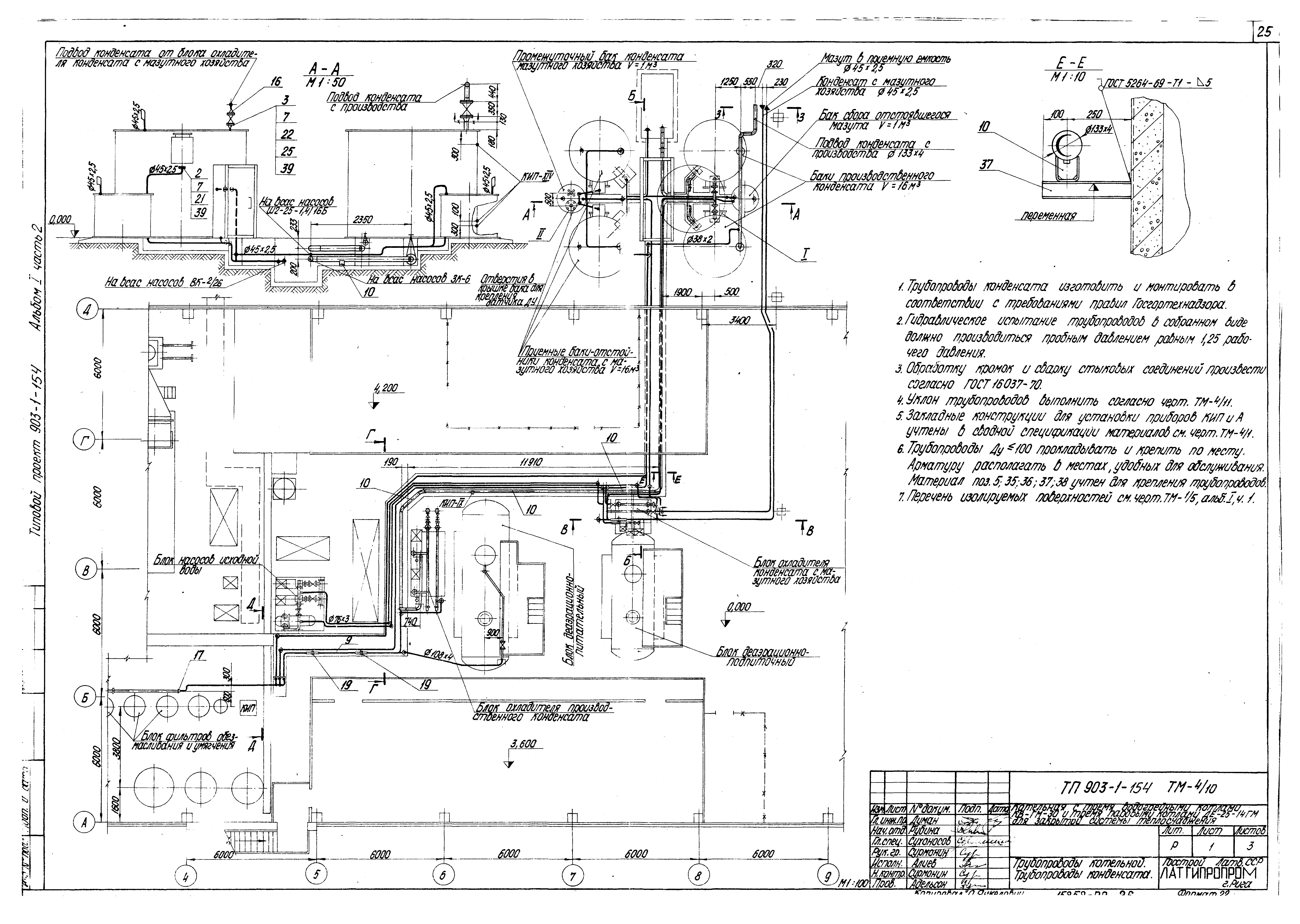
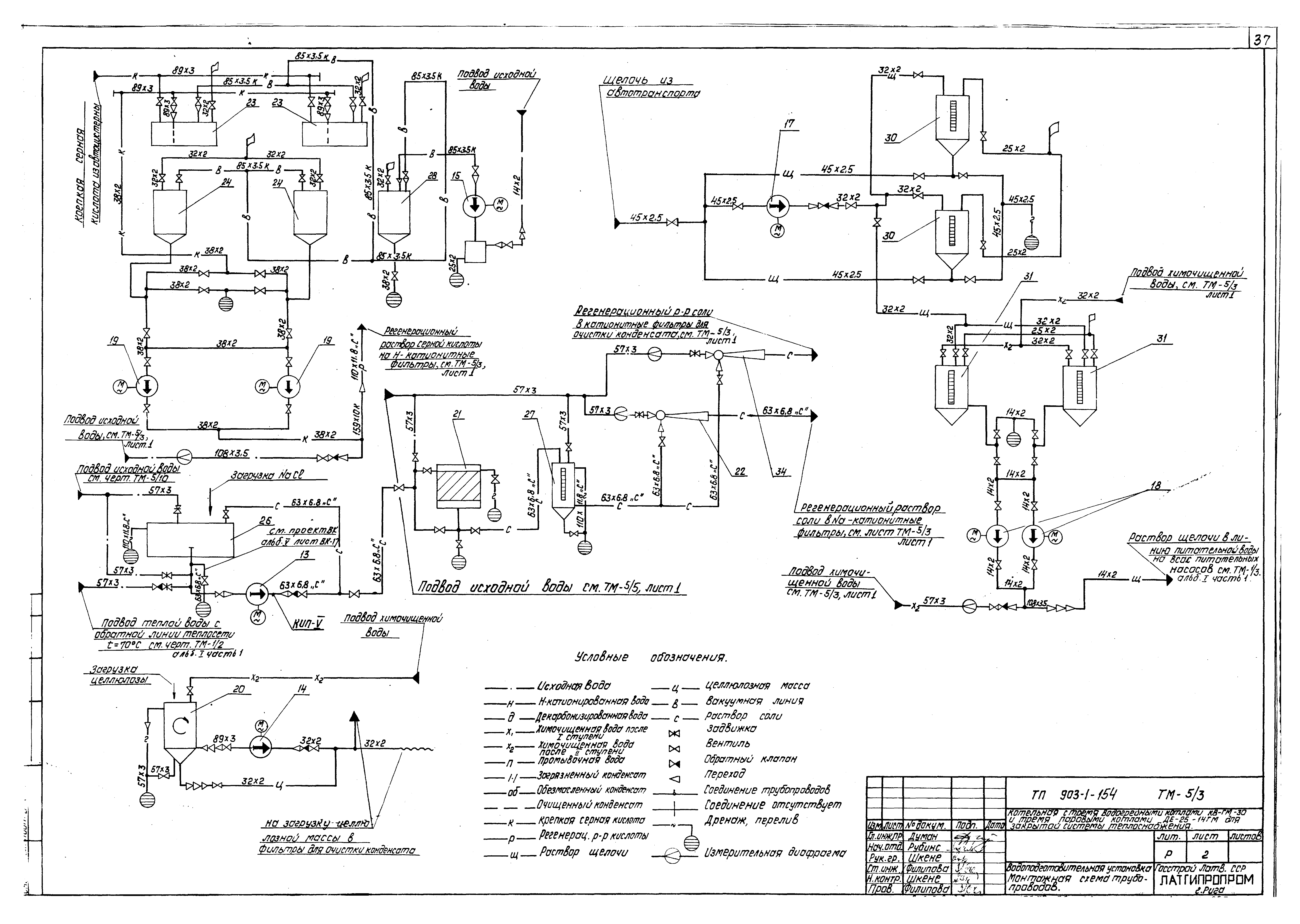
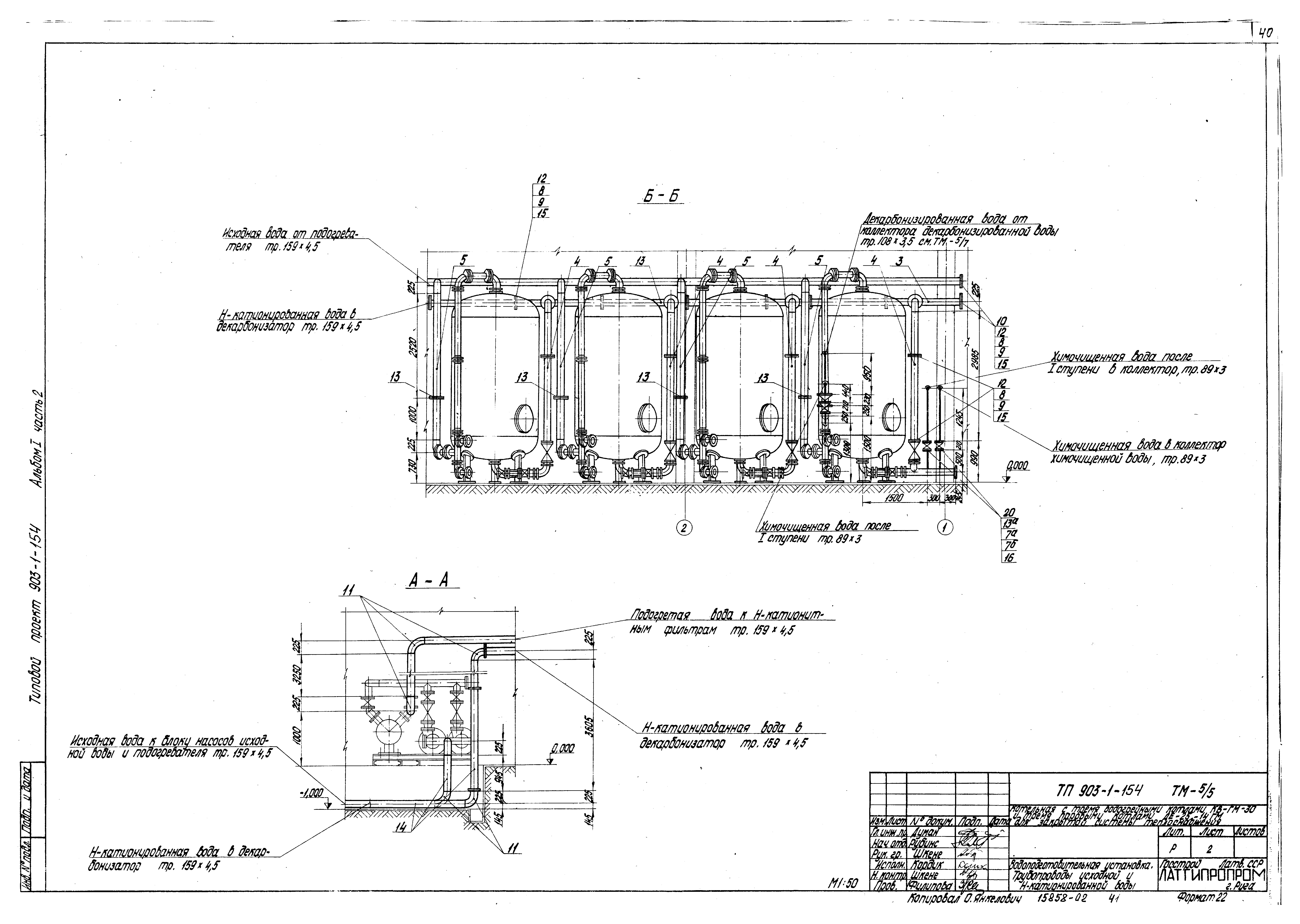
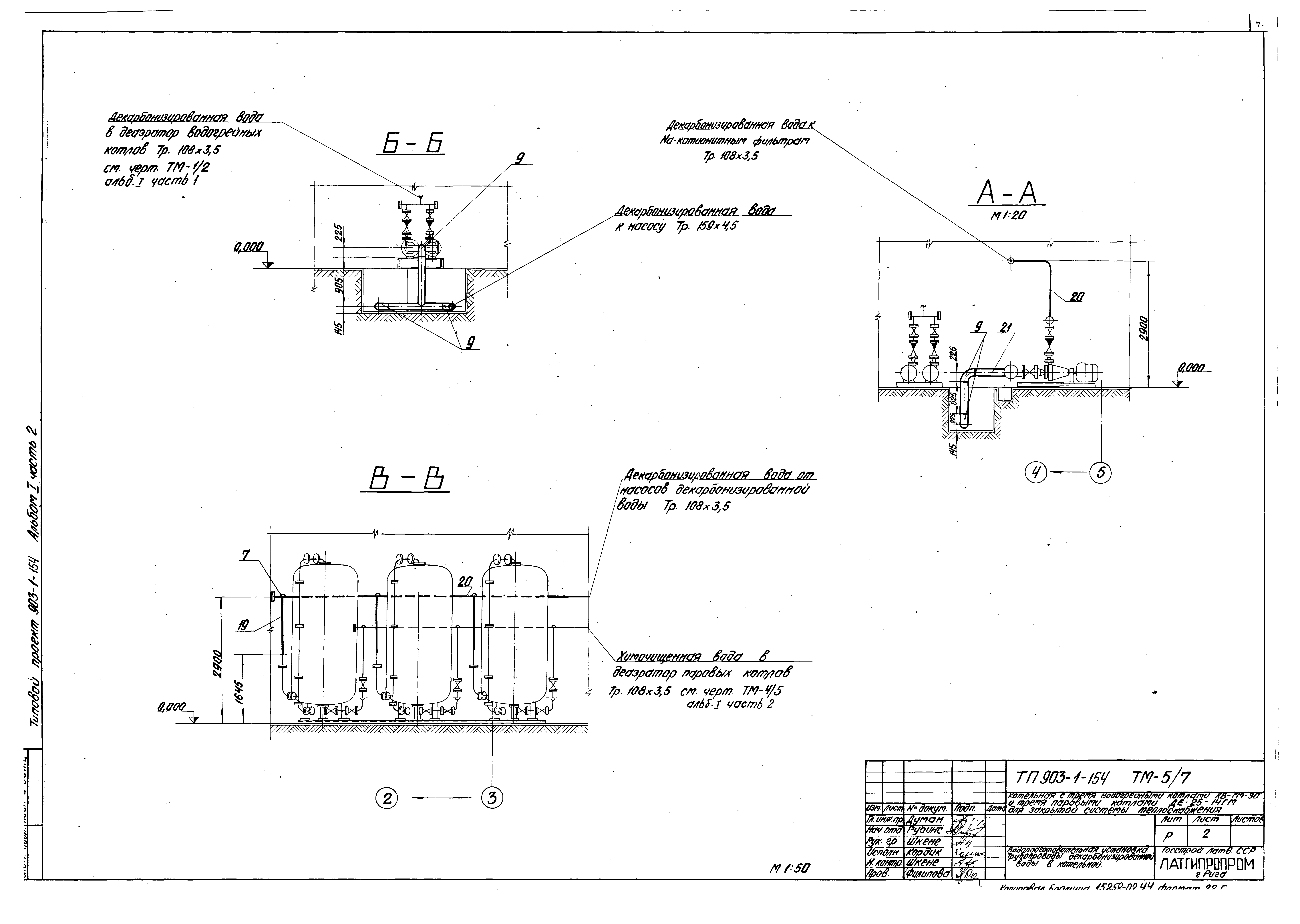
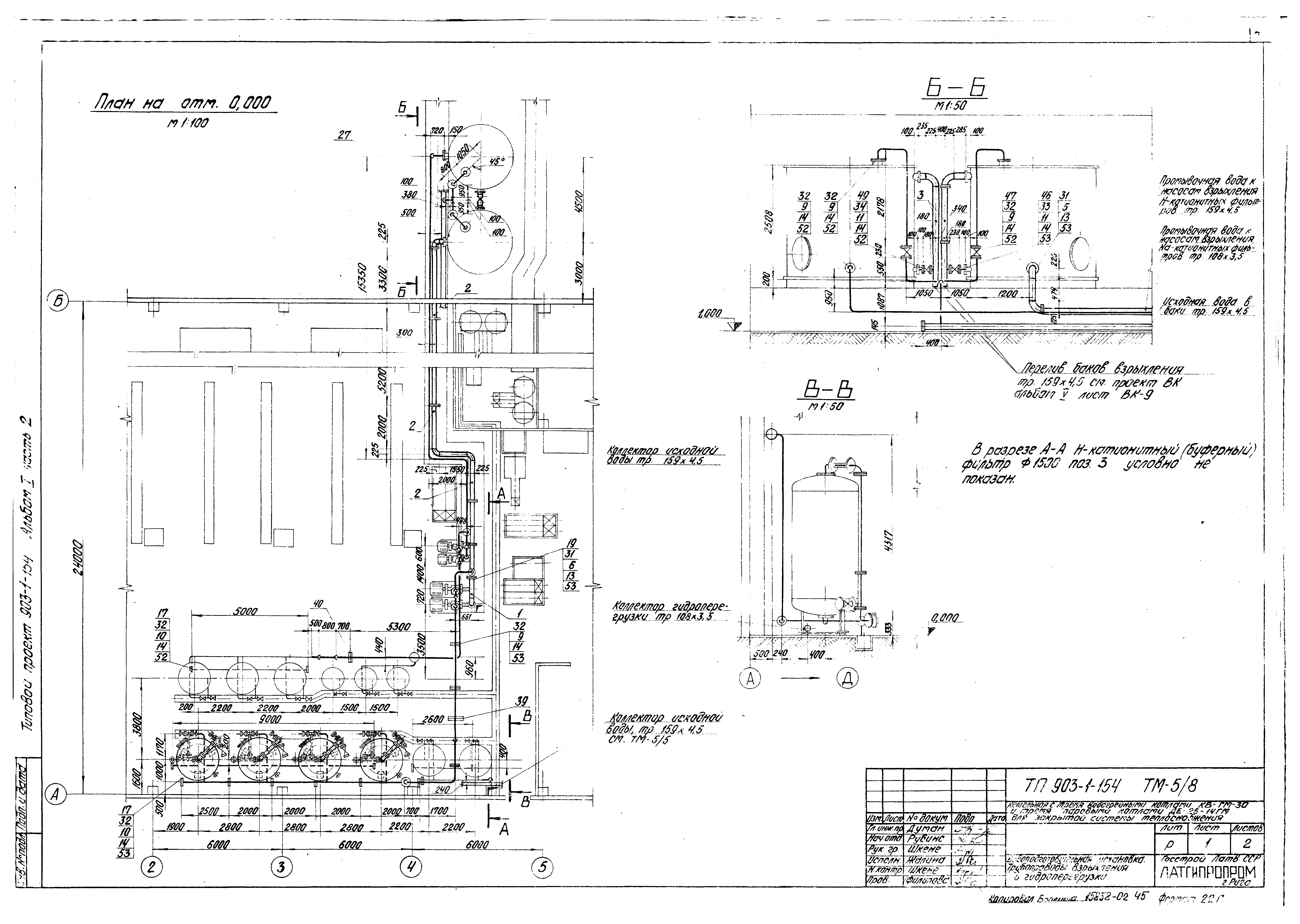
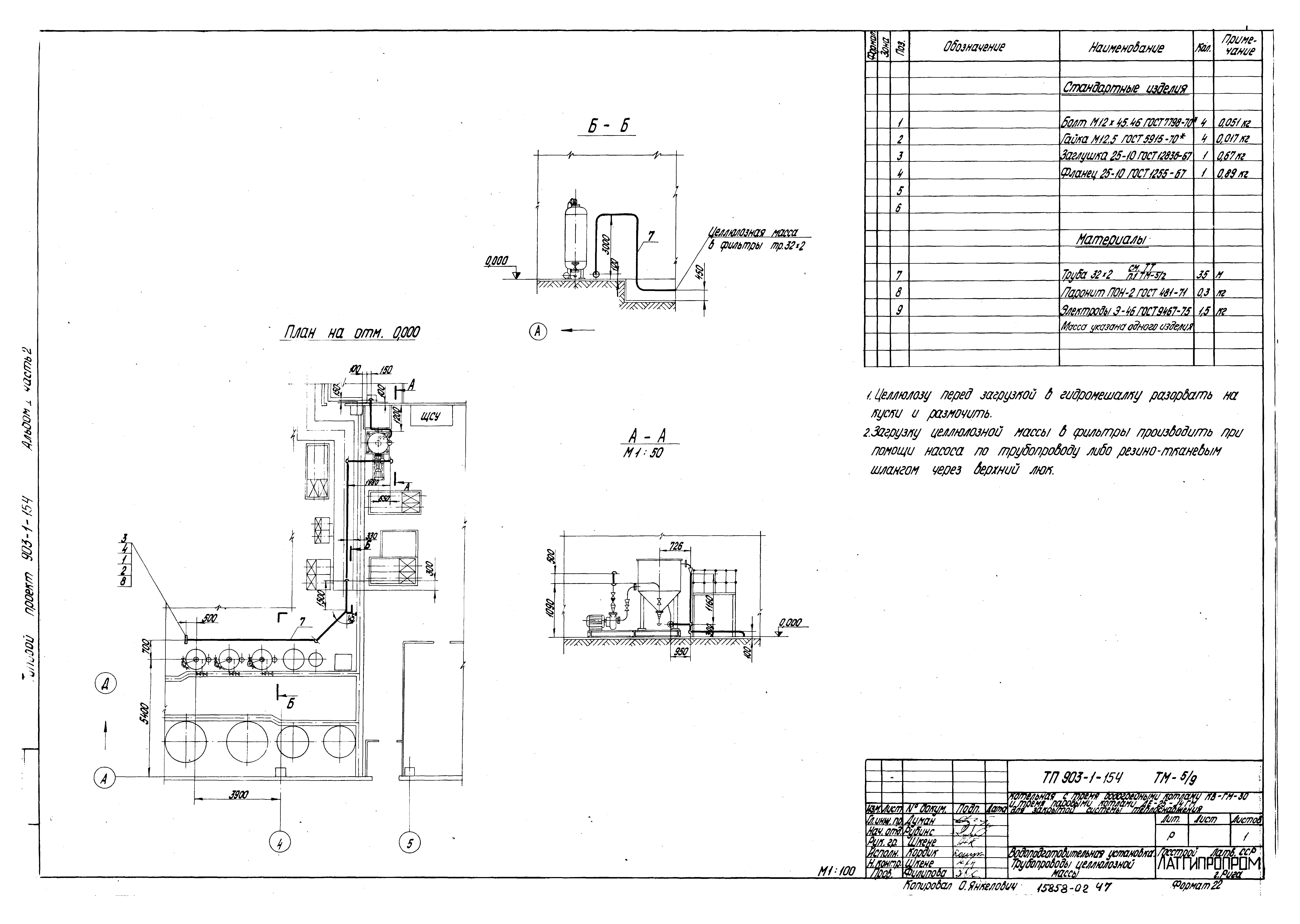
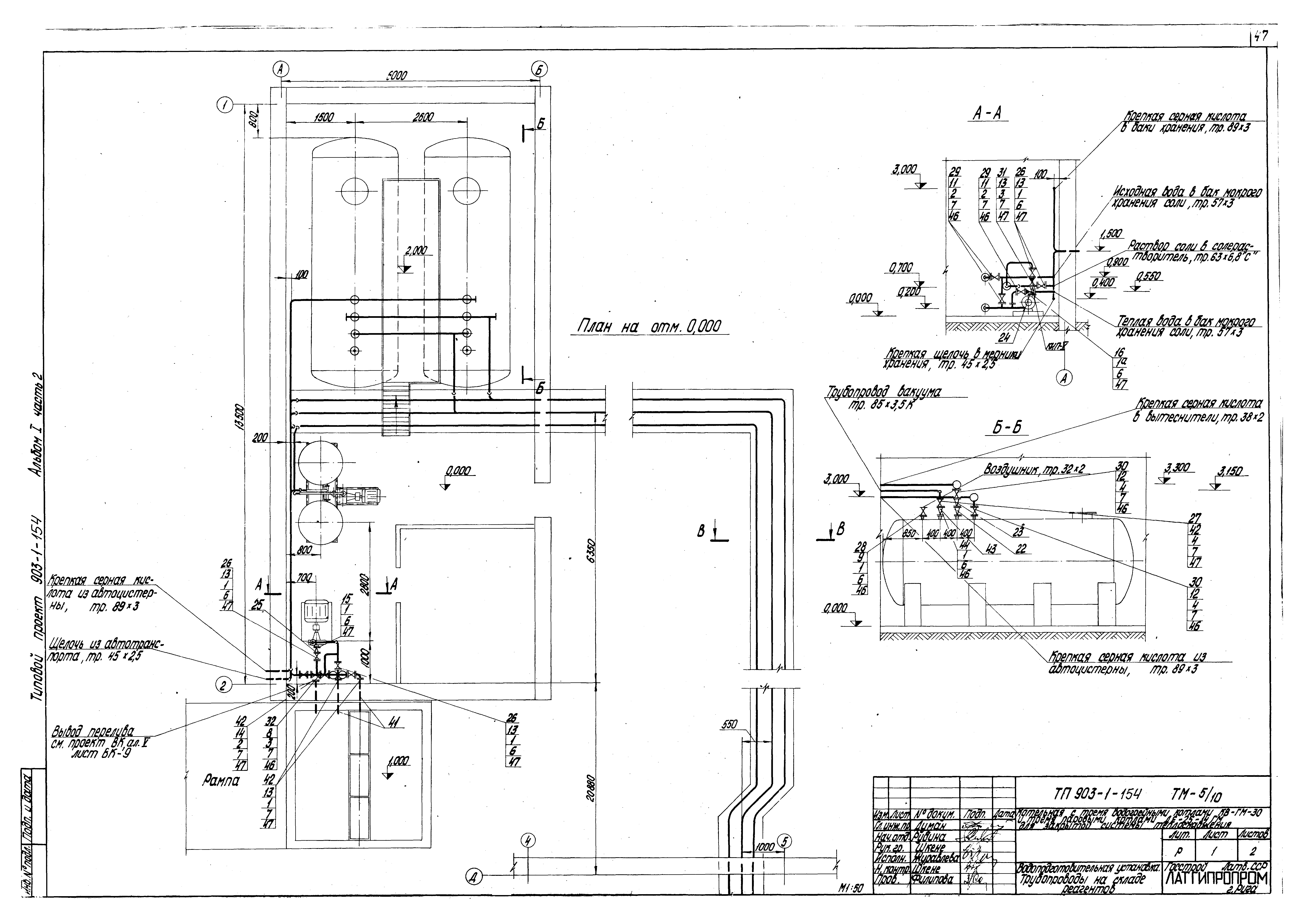
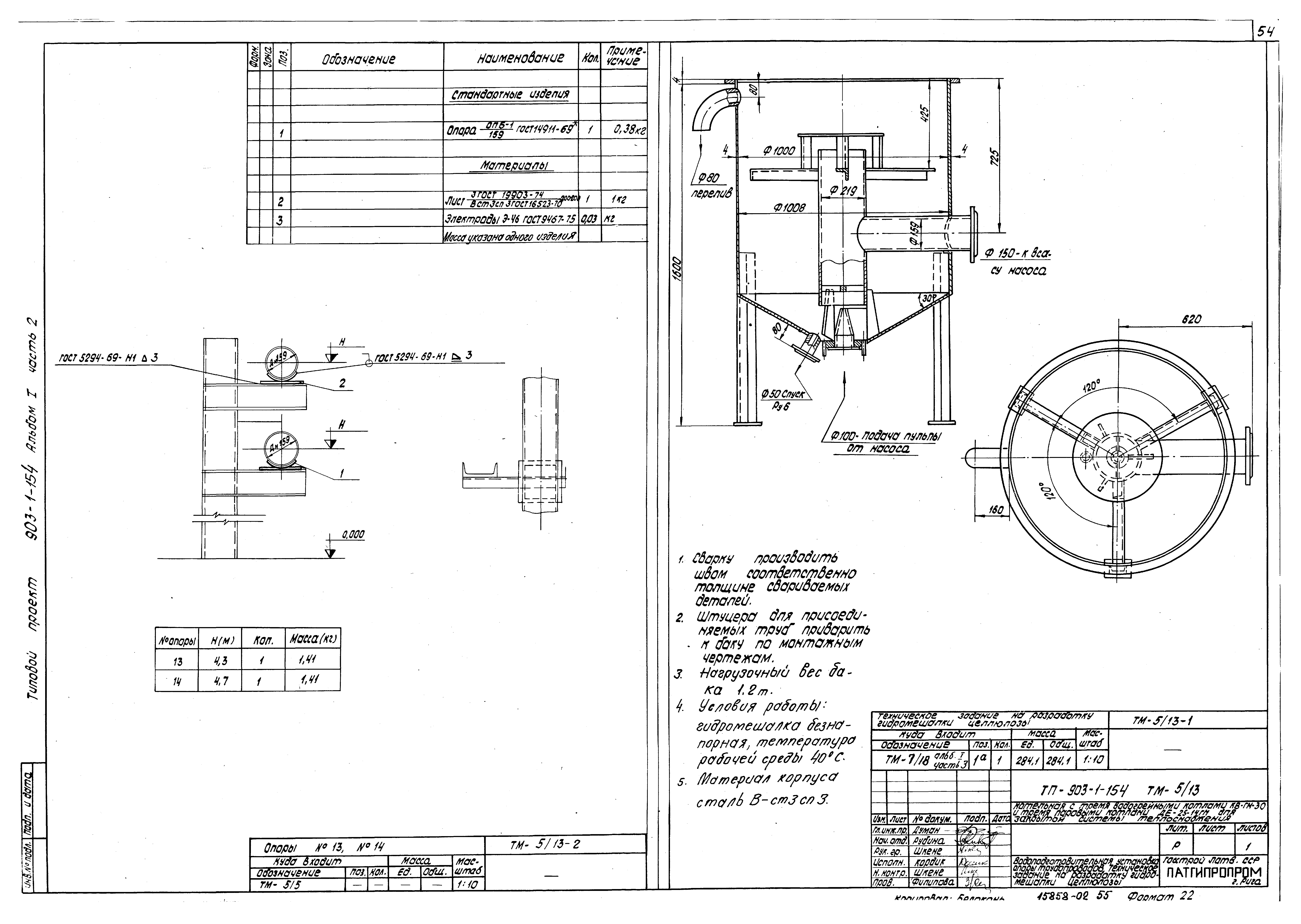
| Оглавление: | Трубопроводы котельной Общие данные Трубопроводы сетевой и подпиточной воды Схемы дренажа и продувки трубопроводов сетевой воды Трубопроводы пара Р = 14 и 7 кгс/кв. см Трубопроводы питательной и химочищенной воды Схема дренажа продувки трубопроводов пара и прочие дренажи Трубопроводы выхлопа, слива, непрерывной и периодической продувки Паромазутопроводы Продувочное устройство Ду32 Трубопроводы конденсата Схема дренажа и продувки трубопроводов конденсата Воздухопроводы к дробеочистке Трубопроводы сжатого воздуха для открывания окон Водоподготовительная установка Общие данные Сводная спецификация Монтажная схема трубопроводов Монтажная схема трубопроводов гидроперегрузки фильтрующего материала Трубопроводы исходной и Н-катионированной воды Трубопроводы Н-катионированной воды декарбонизированной воды вне котельной Трубопроводы декарбонизированной воды в котельной Трубопроводы взрыхления и гидроперегрузки Трубопроводы целлюлозной массы Трубопроводы на складе реагентов Трубопроводы реагентов в котельной Опоры трубопроводов Опоры трубопроводов. Техническое задание на разработку гидромешалки целлюлозы Техническое задание на разработку предохранительного резервуара Техническое задание на разработку гидротранспортера передвижного |
| Разработан: | Латгипропром |
| Утверждён: | 17.10.1977 Главпромстройпроект Госстроя СССР (71) |

























































