Скачать Типовой проект 903-1-154 Альбом II. Часть 3. Архитектурно-строительная часть (вариант закрытой установки дымососов)Дата актуализации: 01.01.2021
|
| Обозначение: | Типовой проект 903-1-154 |
| Обозначение англ: | 903-1-154 |
| Статус: | действует |
| Название рус.: | Альбом II. Часть 3. Архитектурно-строительная часть (вариант закрытой установки дымососов) |
| Дата добавления в базу: | 01.09.2013 |
| Дата актуализации: | 01.01.2021 |
| Дата введения: | 28.09.1978 |
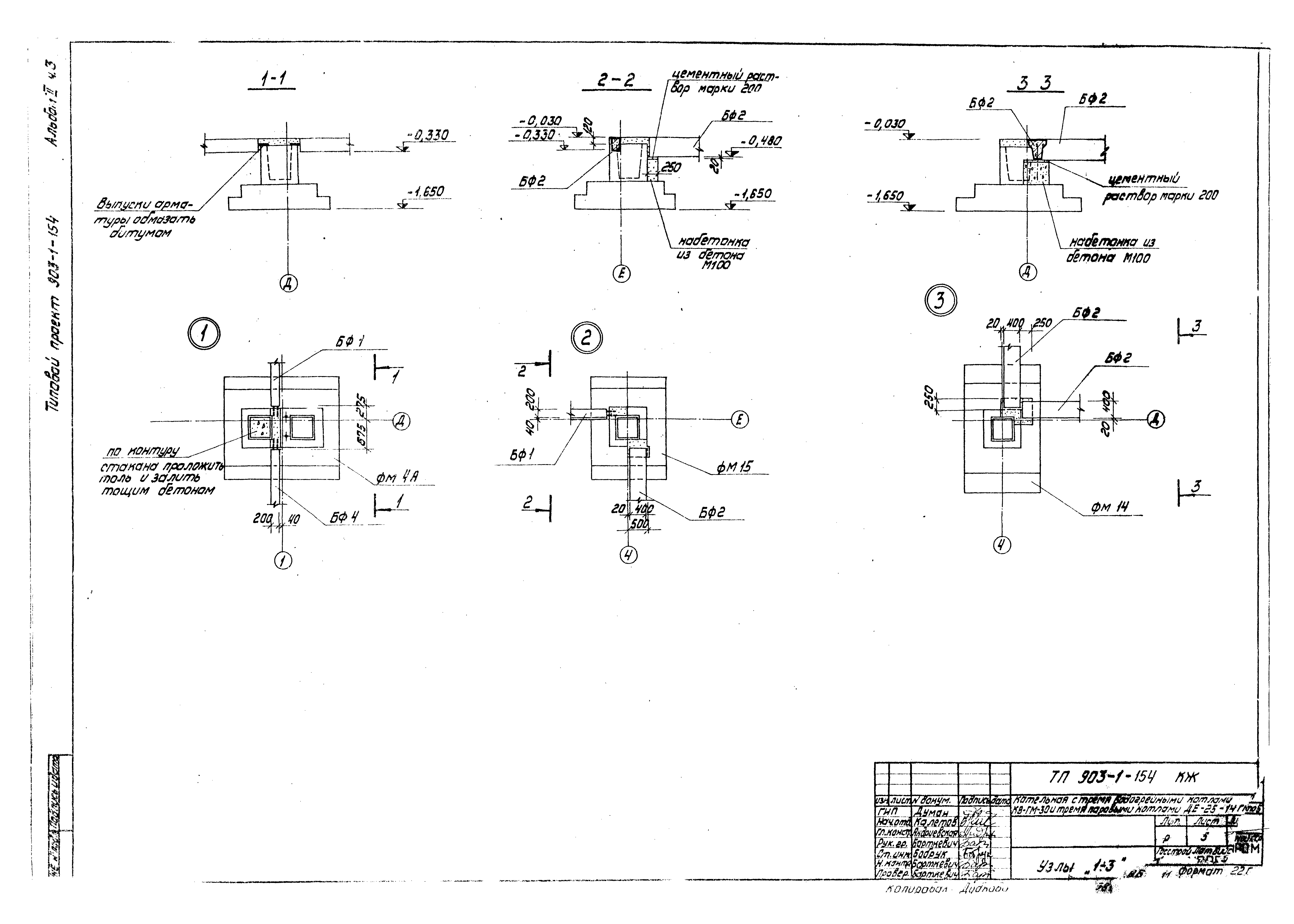
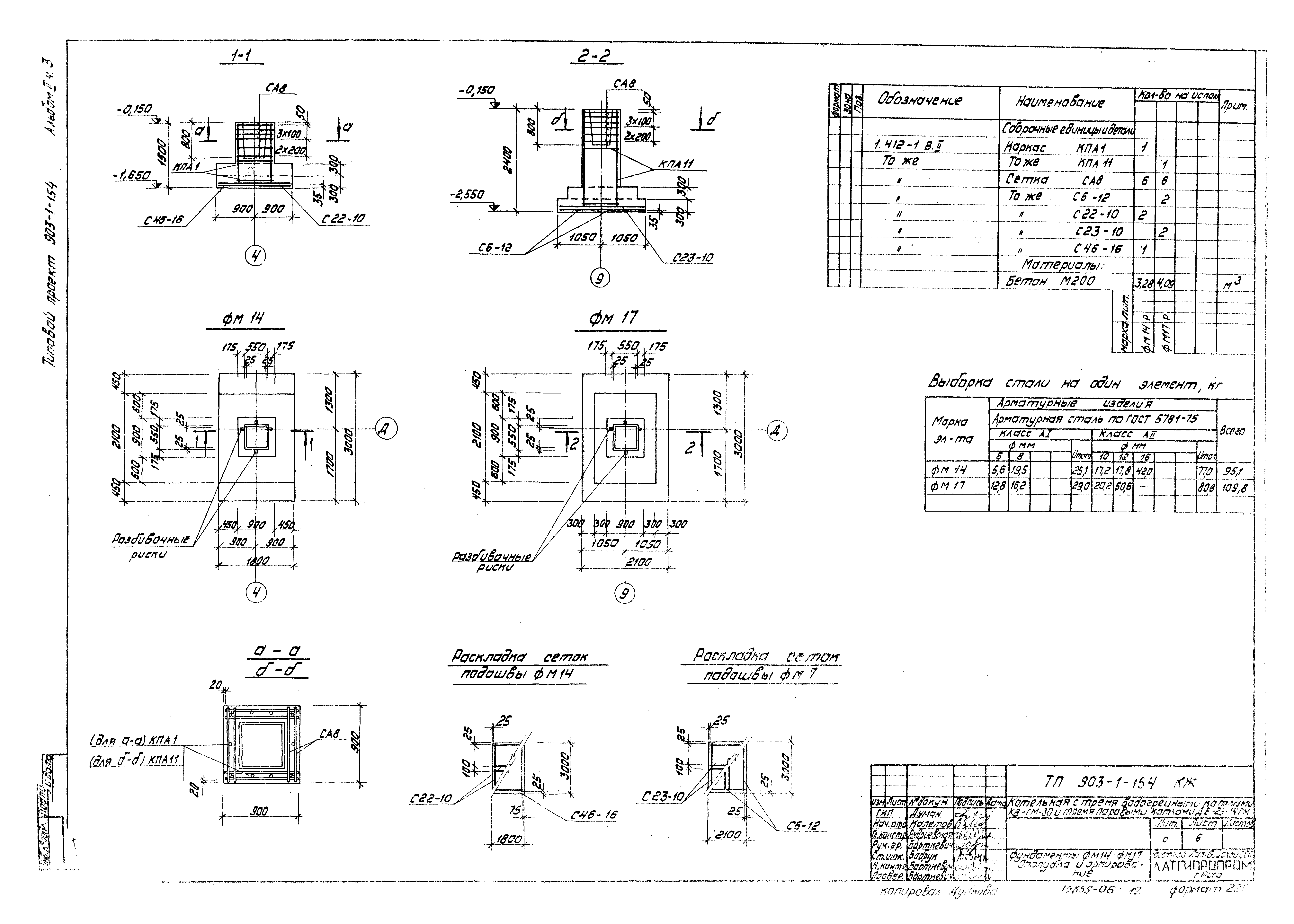
| Оглавление: | Содержание альбома Архитектурно-строительные решения Общие данные Фрагмент плана на отм. 0.000. Разрез 2-2. Фасады 1 - 12; А - Е; Е - А. Детали Конструкции железобетонные Общие данные Маркировочная схема фундаментов, фундаментных балок по осям "Д", "Е" Узлы 1 - 3 Фундаменты ФМ14, ФМ17. Опалубка и армирование Фундаменты ФМ19, ФМ19А. Опалубка и армирование Маркировочные схемы колонн, балок и плит покрытия Узел "1". Спецификация Маркировочные схемы стеновых панелей Фрагменты "21 - 28" Маркировочная схема монорельсов |
| Разработан: | Латгипропром |
| Утверждён: | 17.10.1977 Главпромстройпроект Госстроя СССР (71) |


















