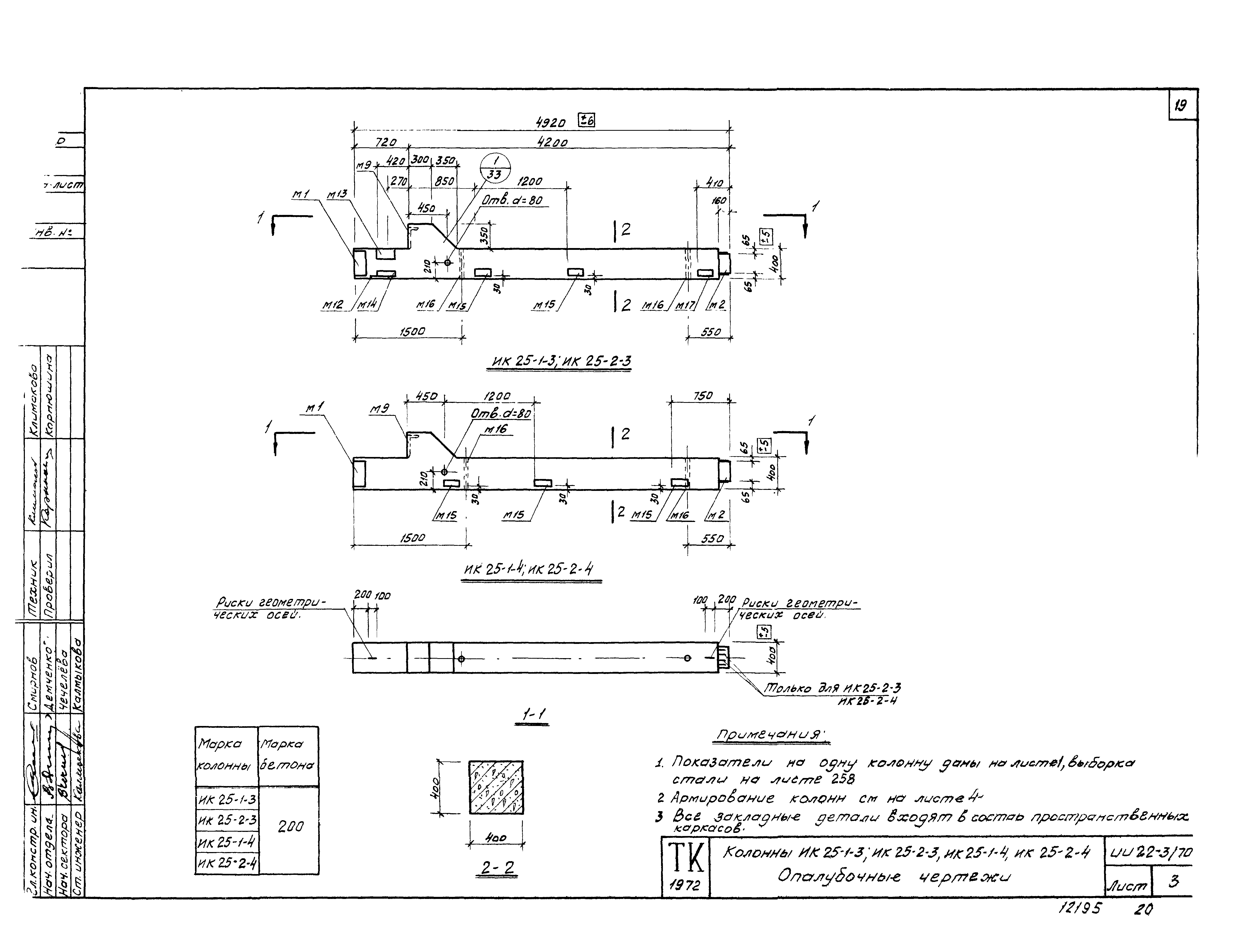
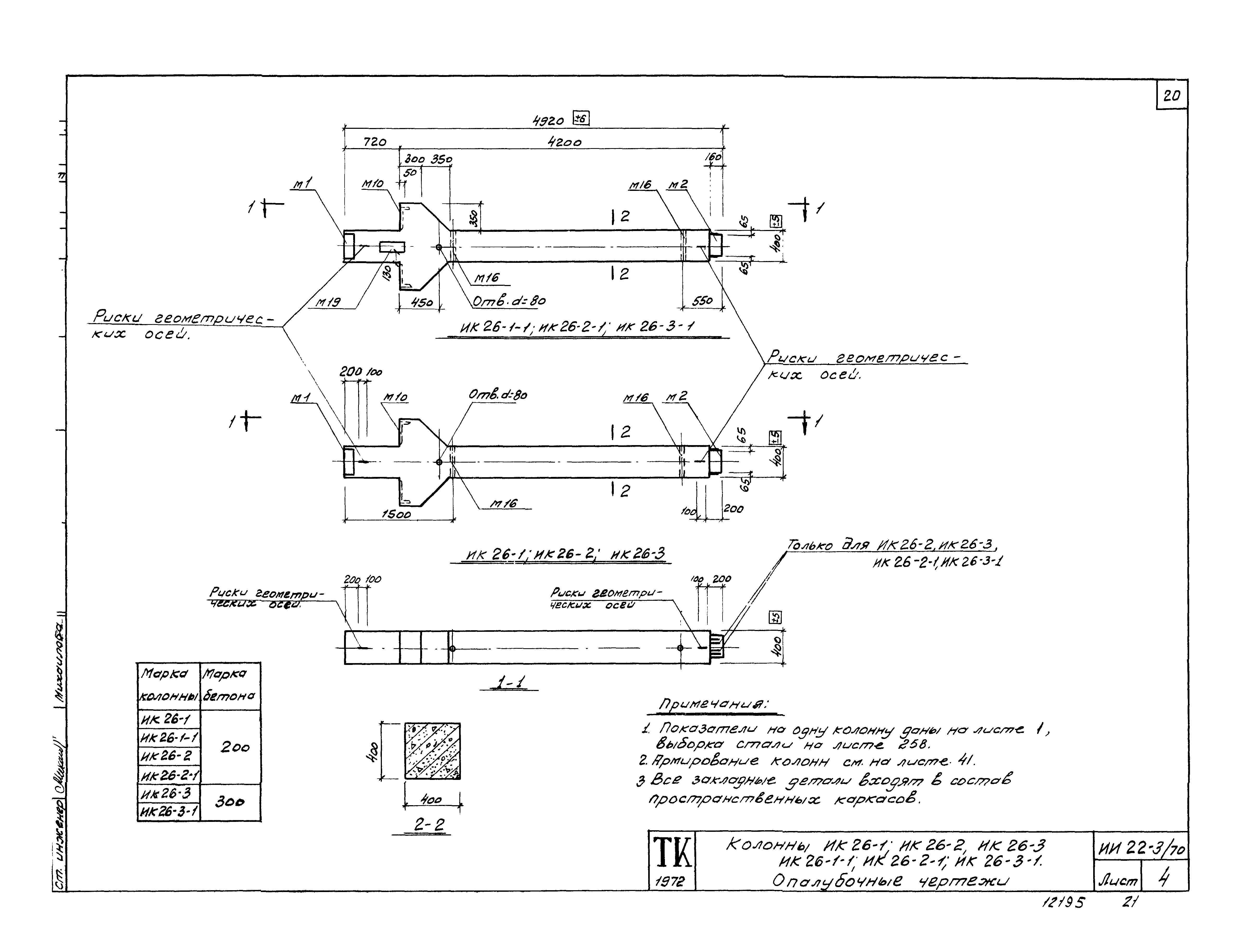
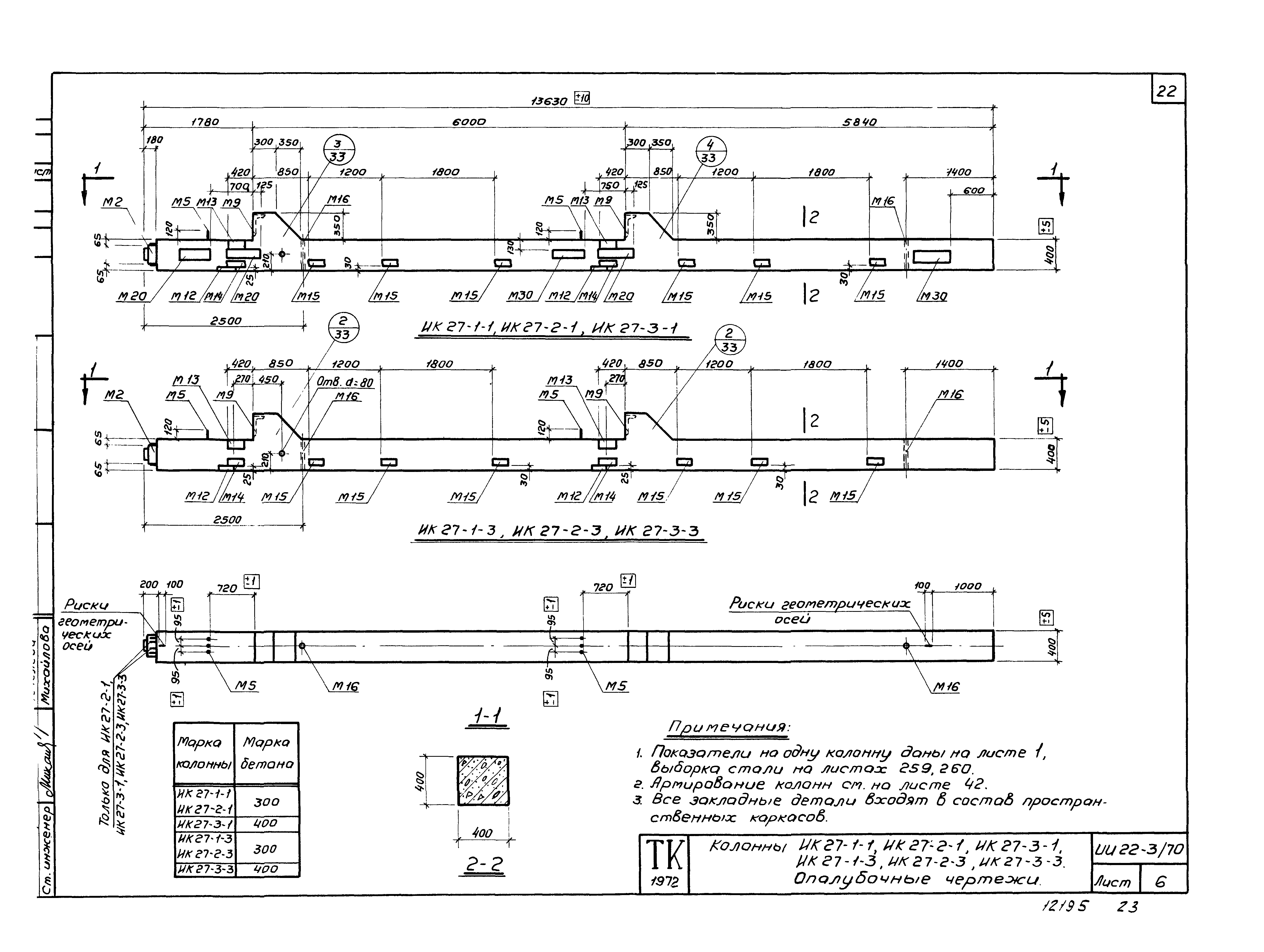
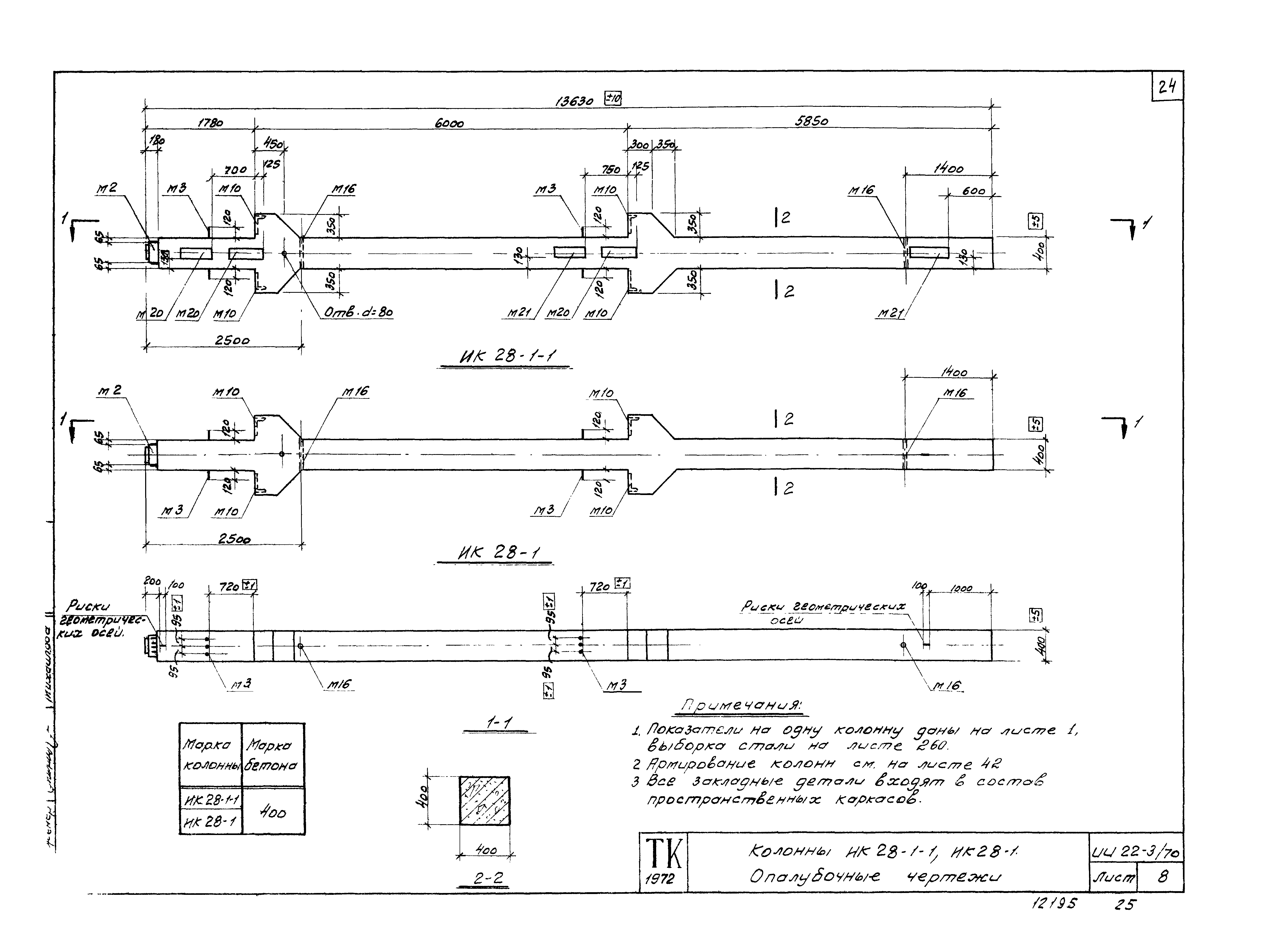
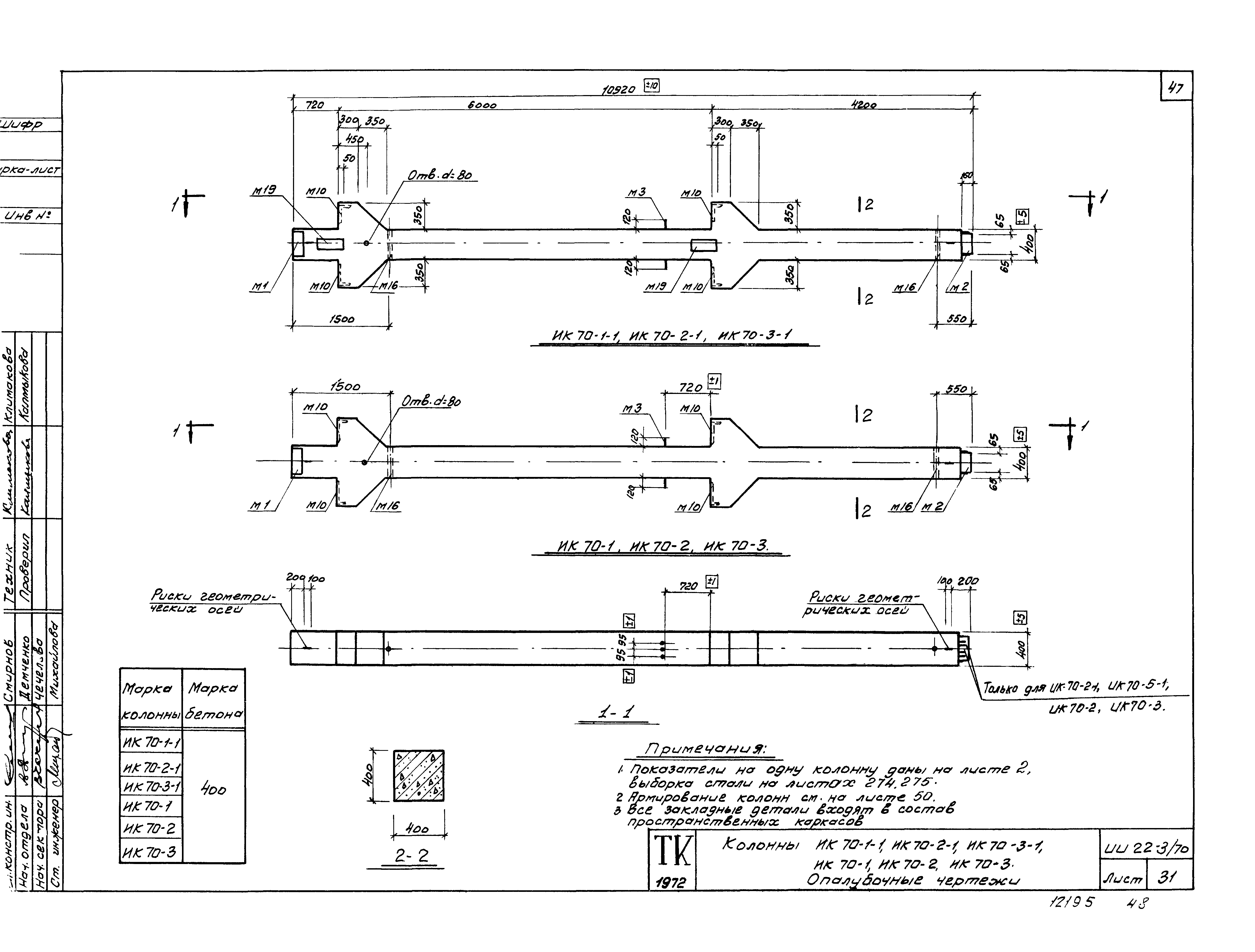
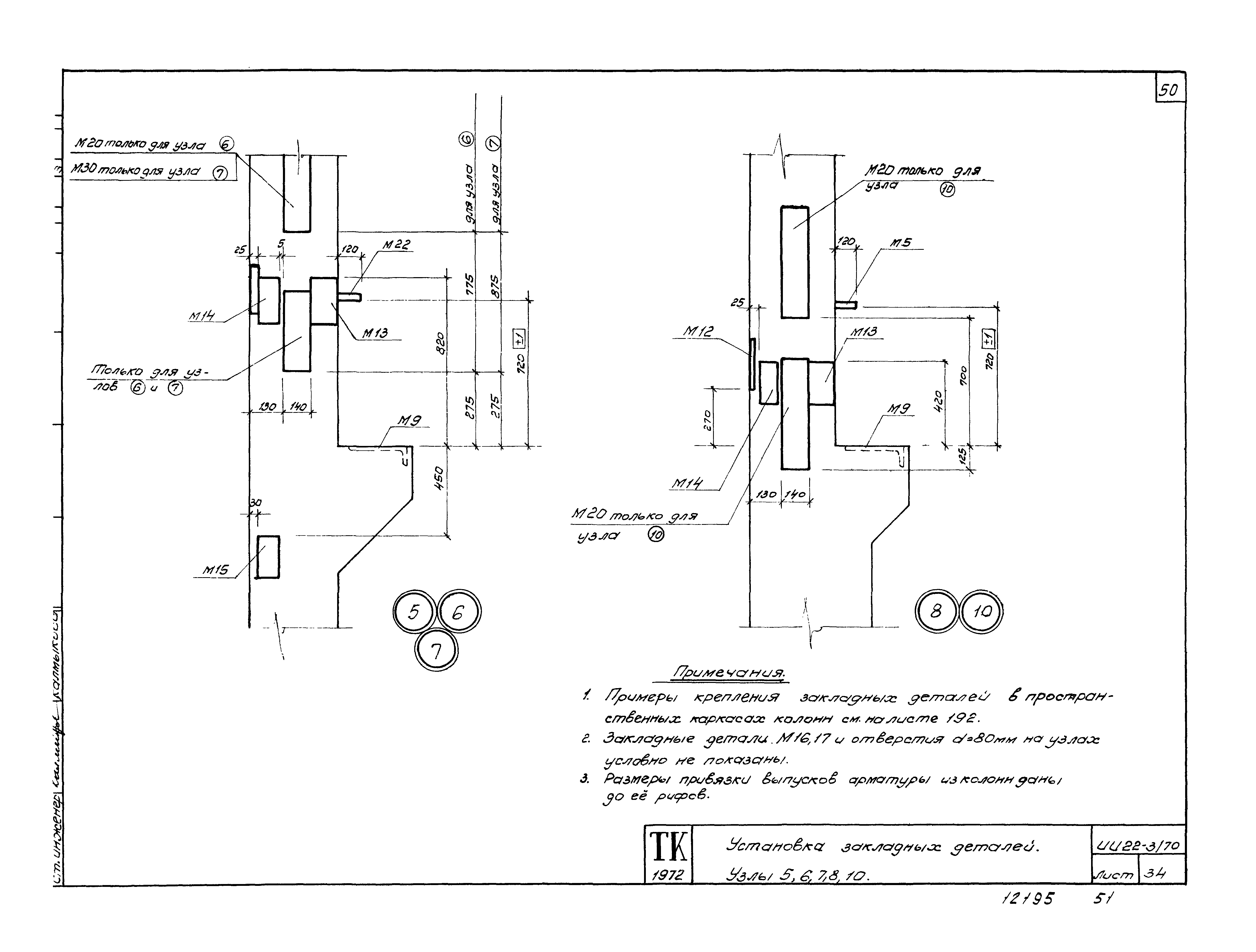
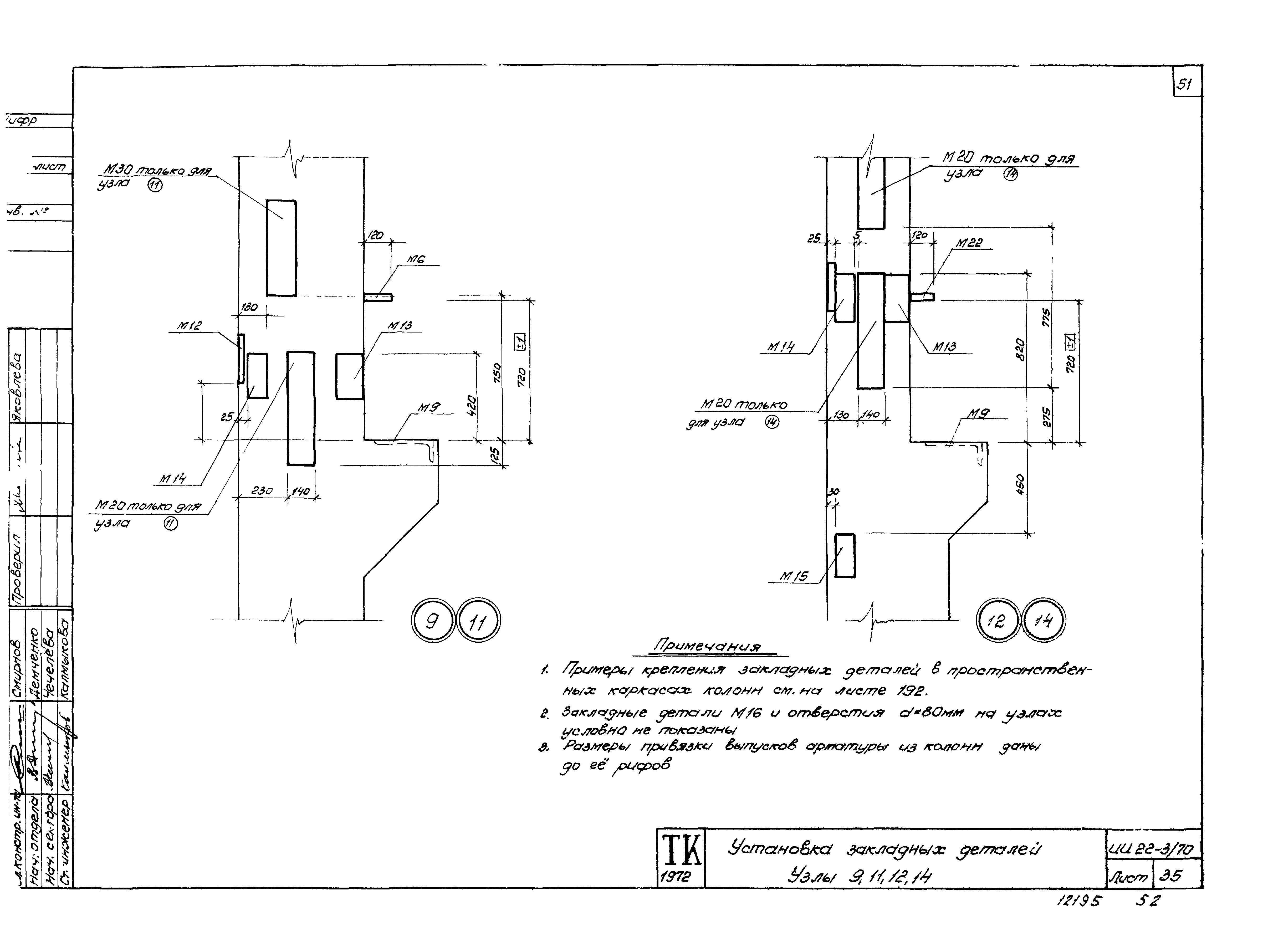
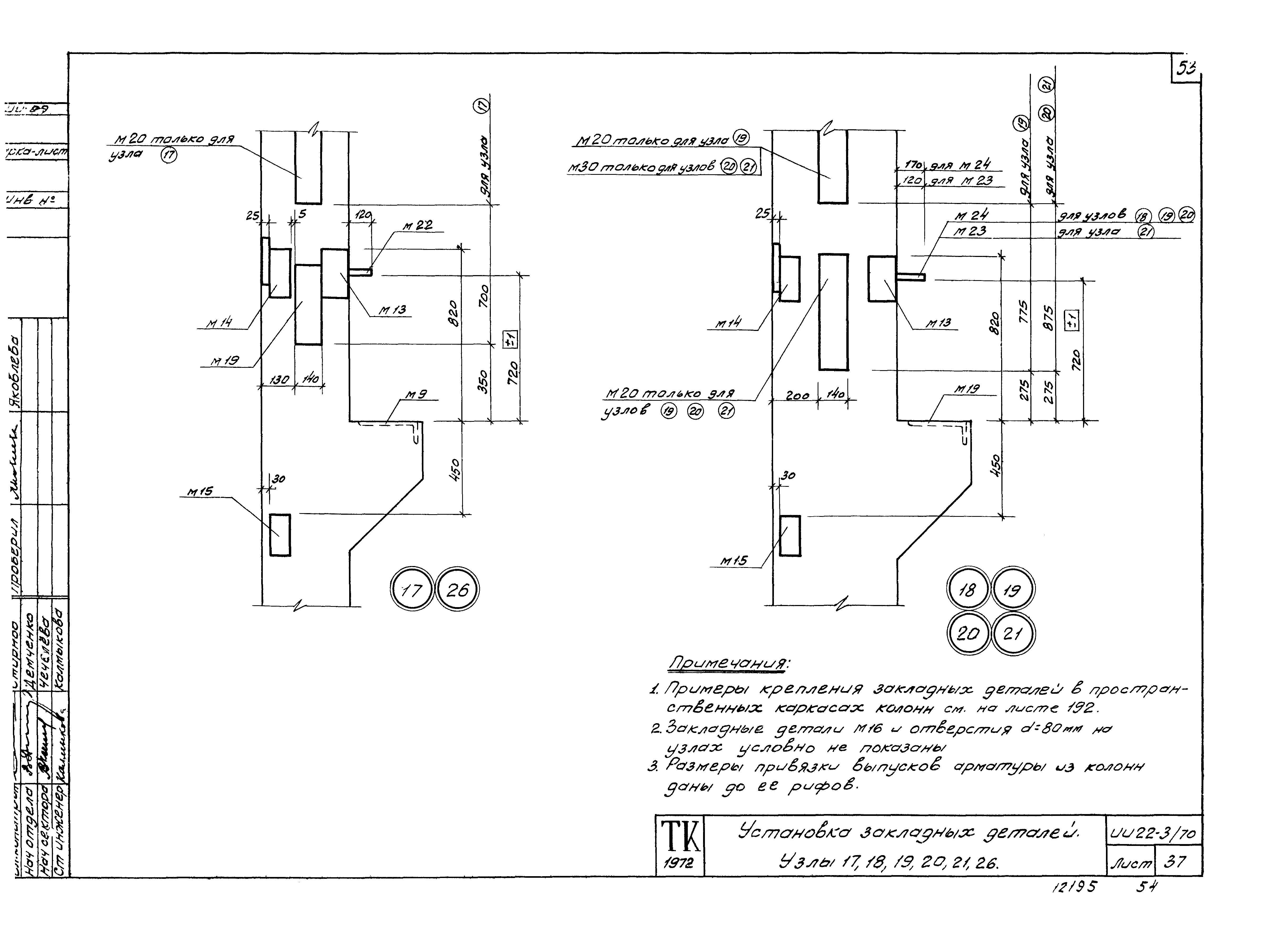
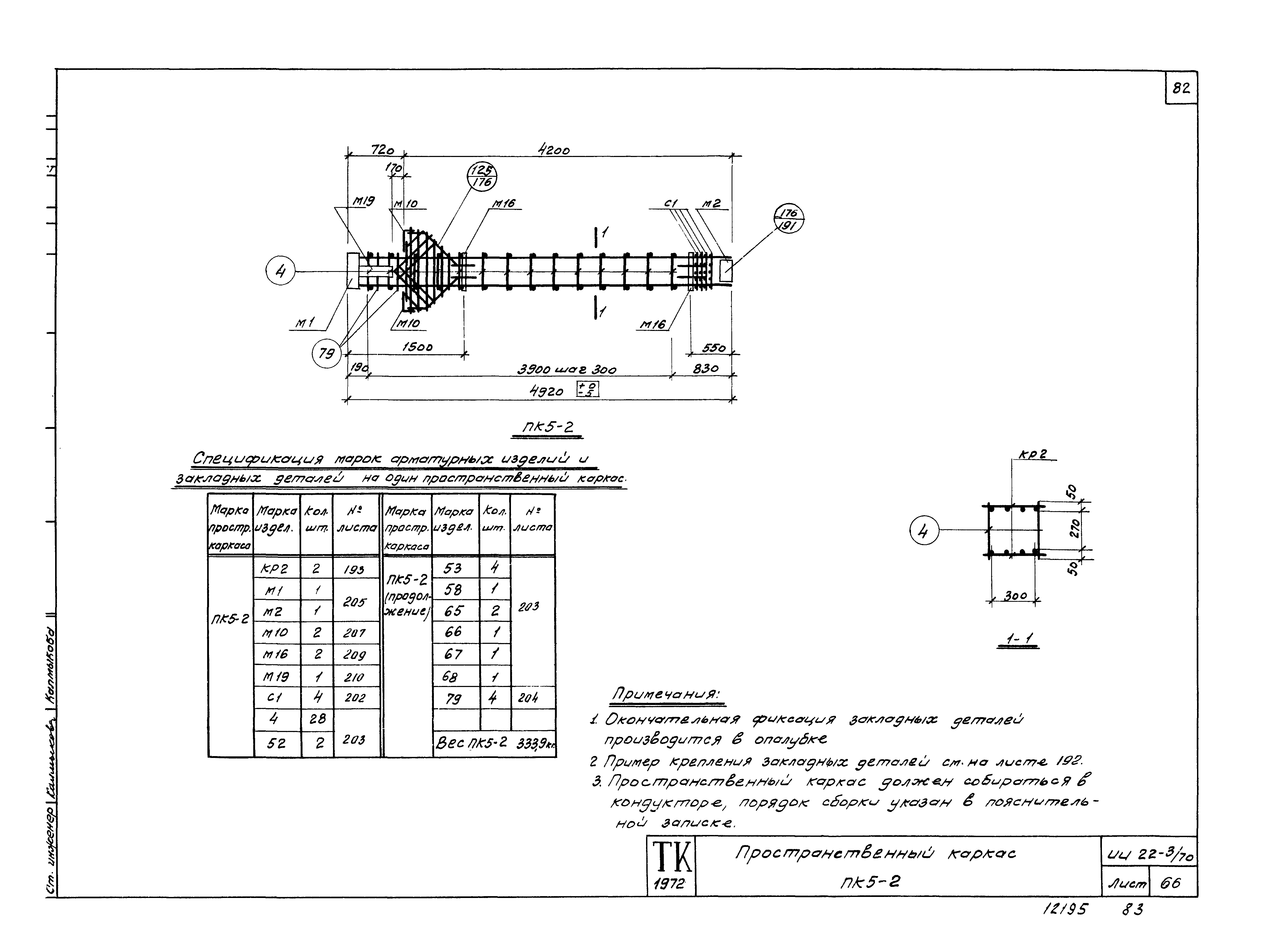
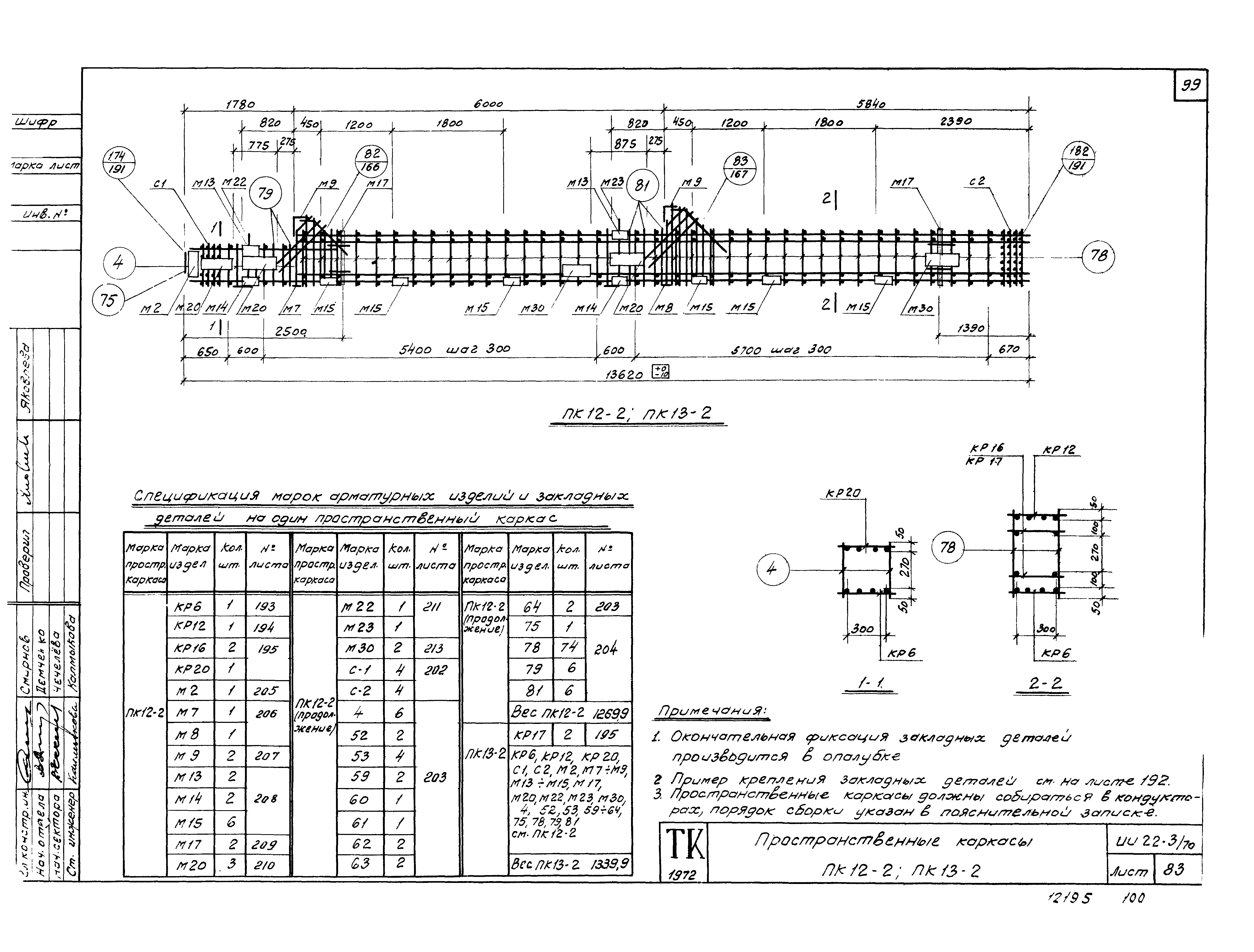
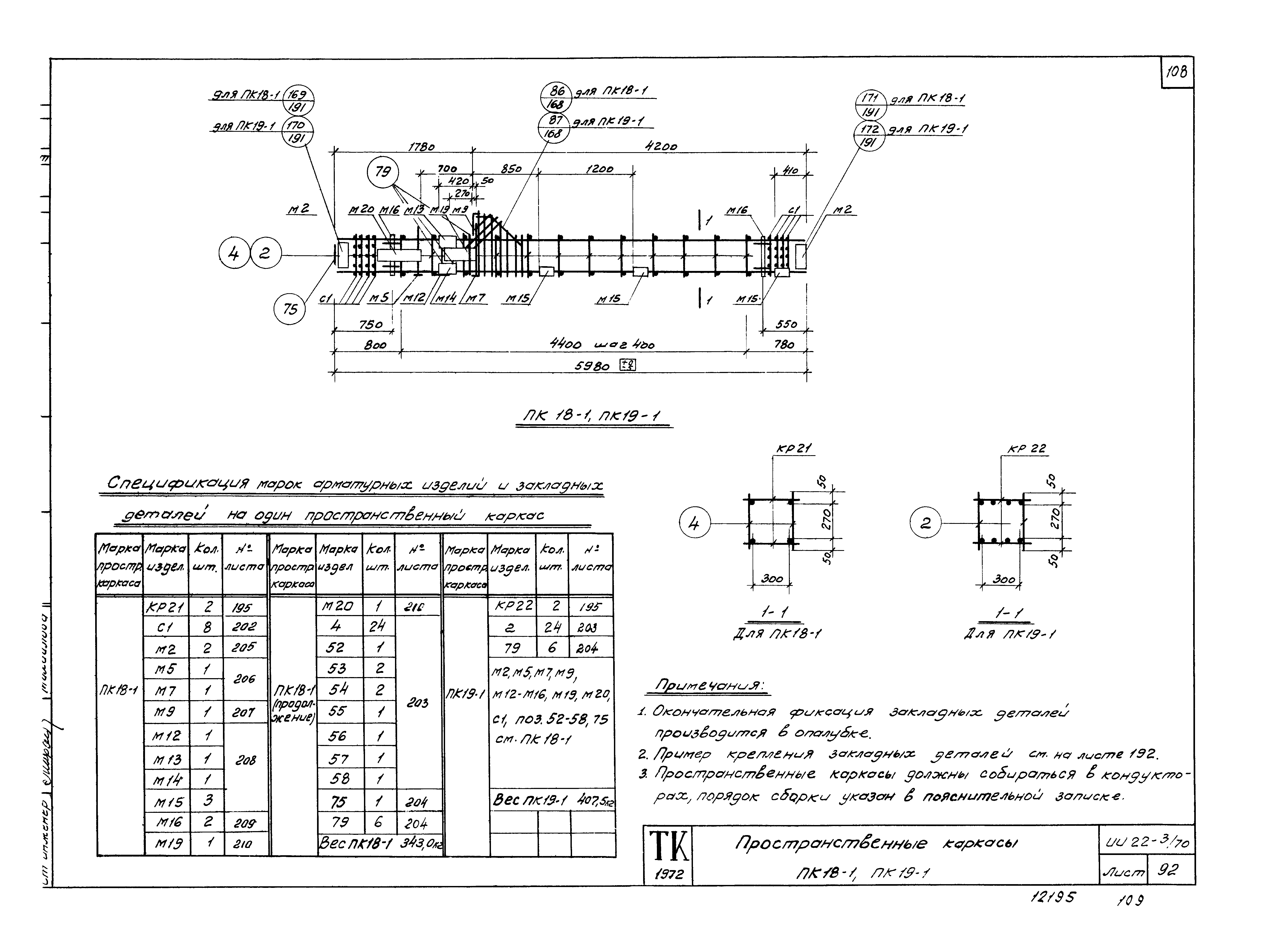
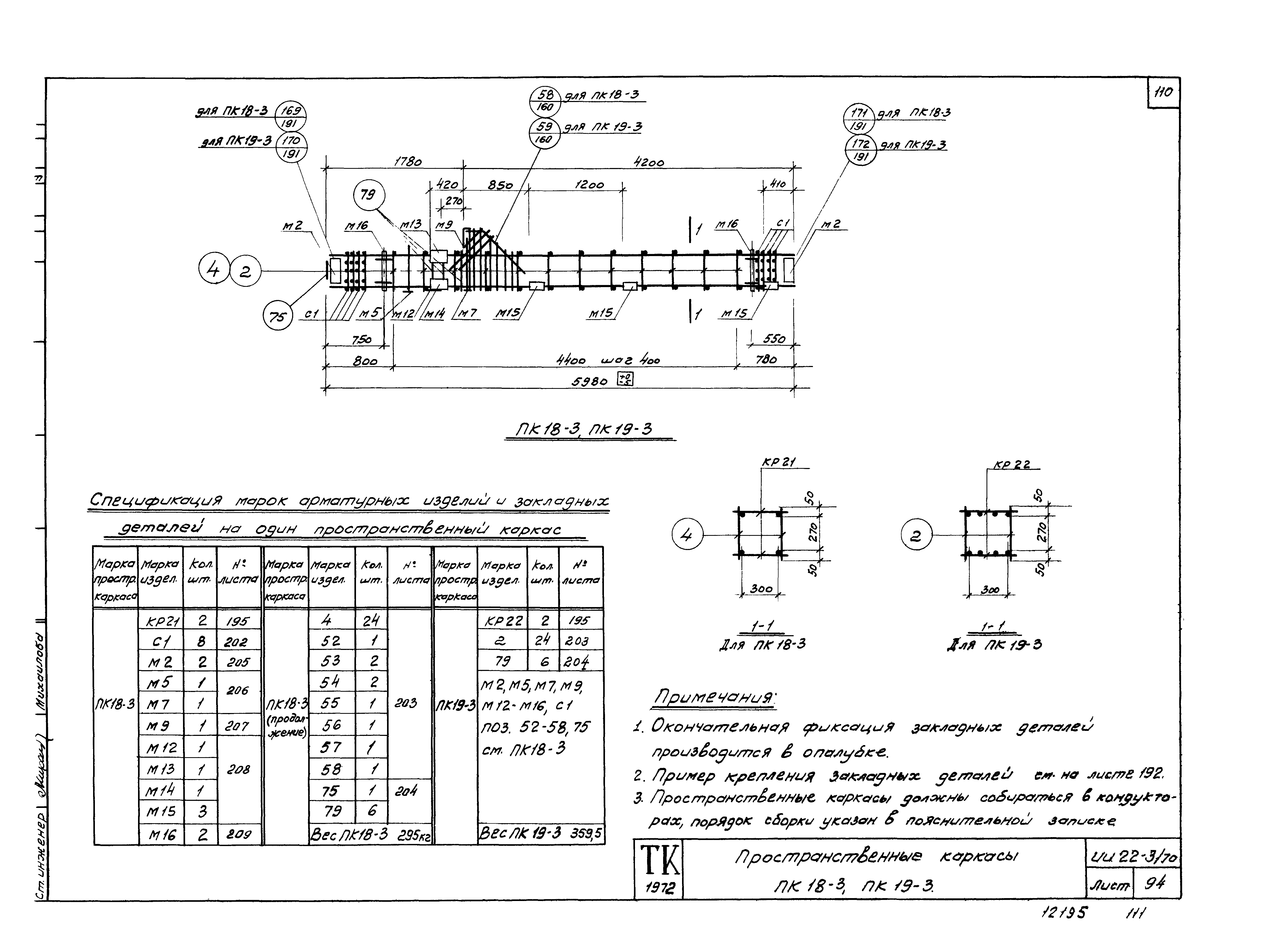
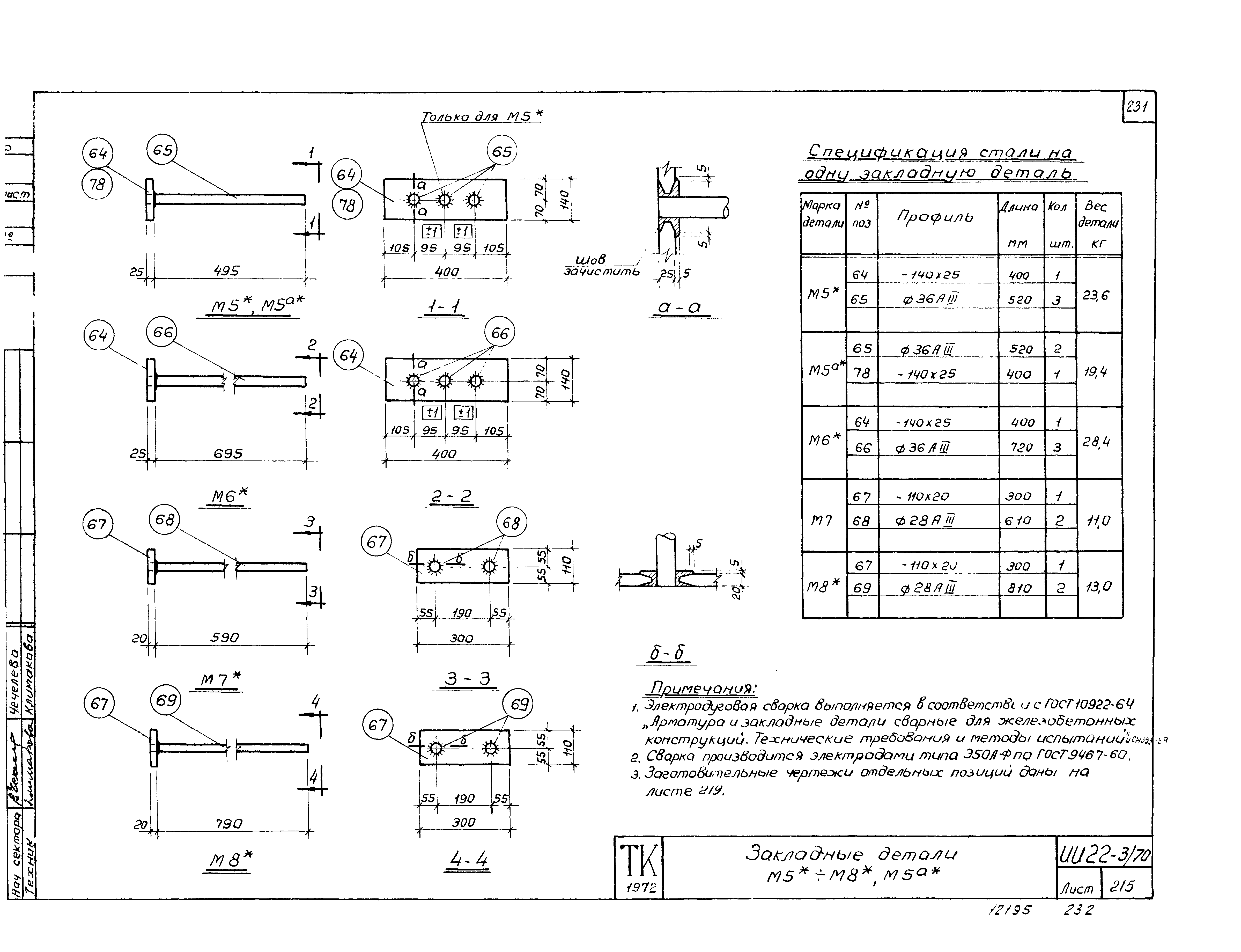
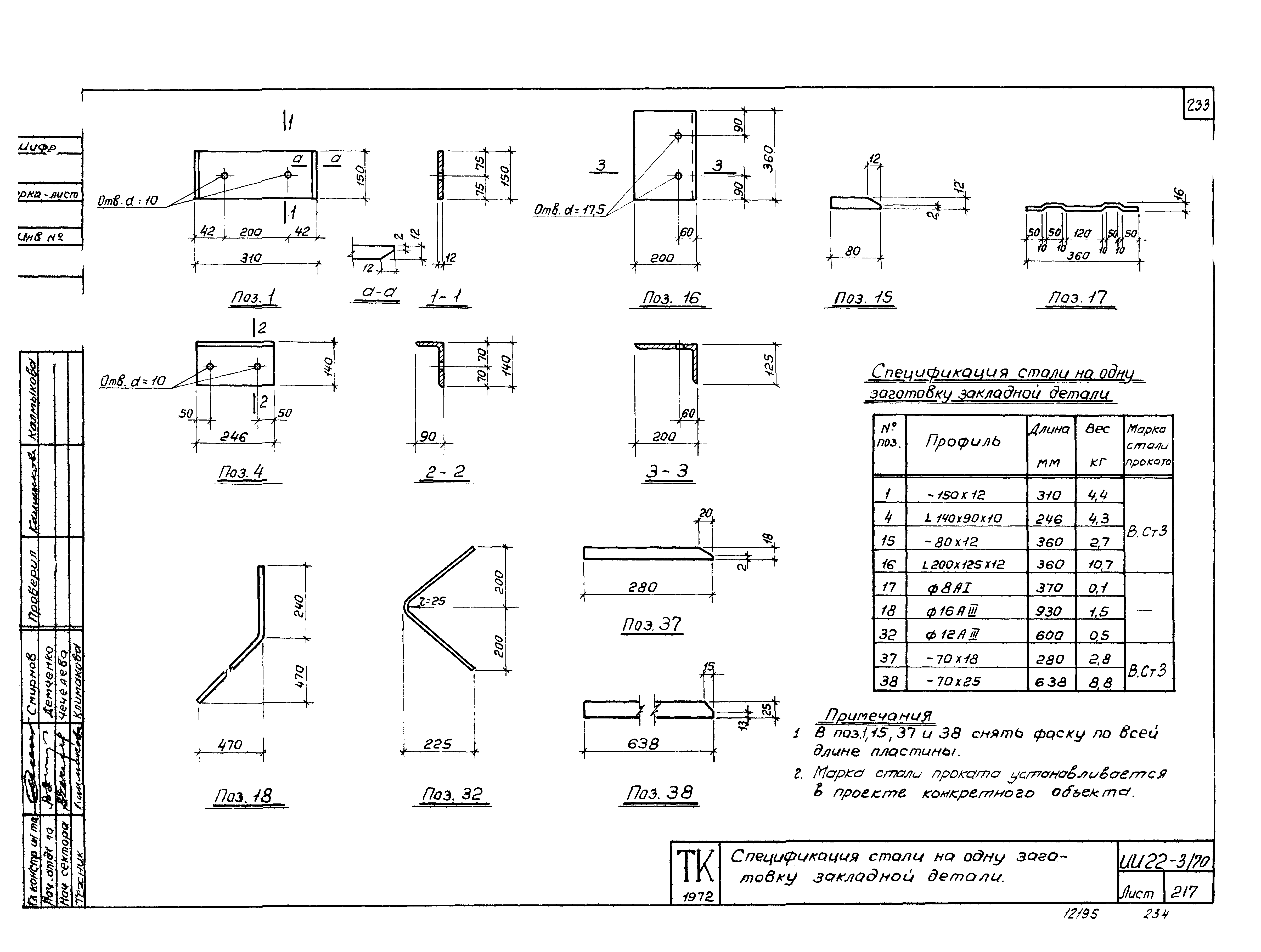
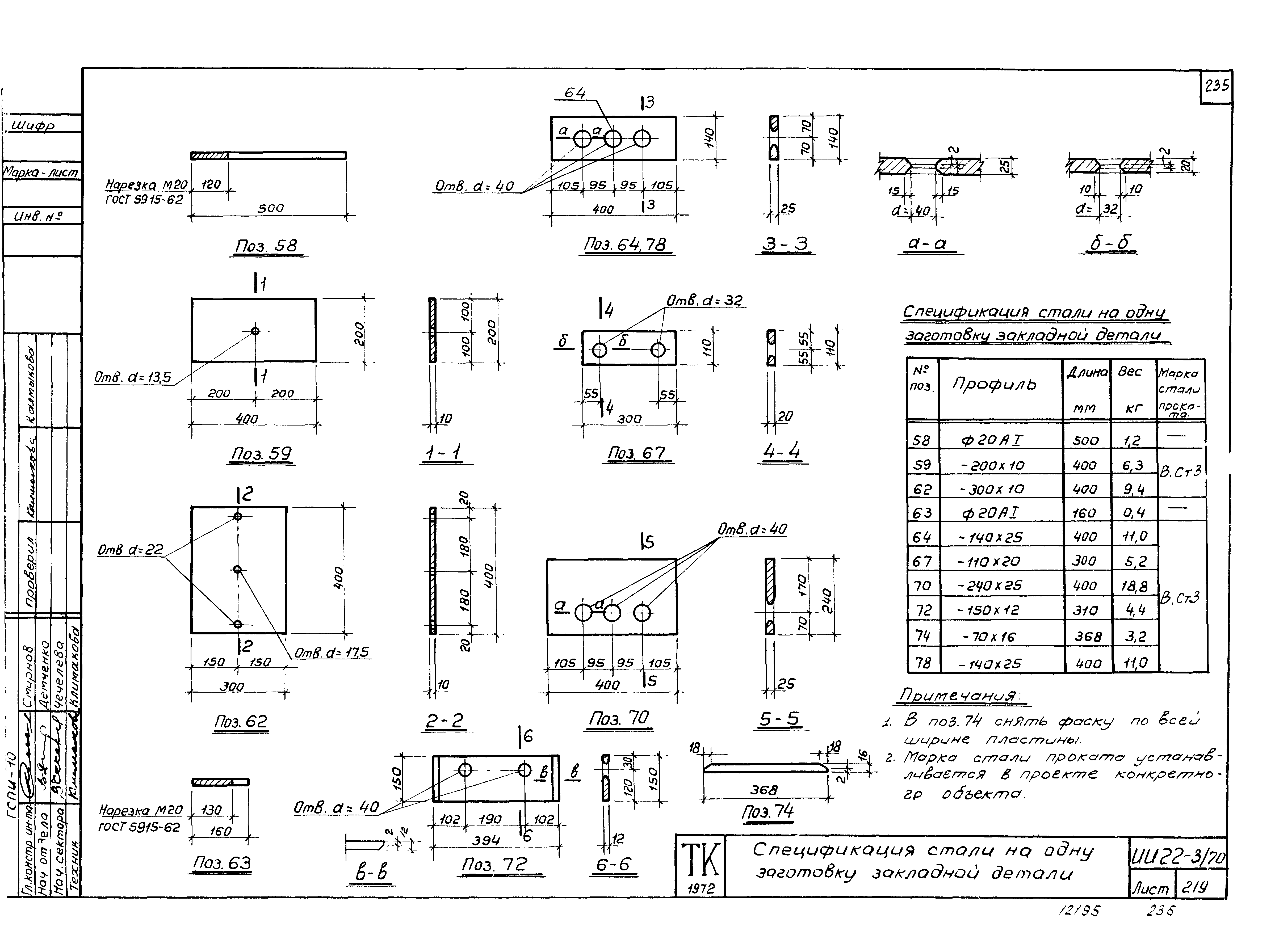
Скачать Серия ИИ22-3/70 Типовые конструкции многоэтажных производственных зданий. Железобетонные колонны высоты этажей 6,0 м, 7,2 м и 10,8 мДата актуализации: 01.01.2021
|
| Обозначение: | Серия ИИ22-3/70 |
| Обозначение англ: | Series ИИ22-3/70 |
| Статус: | не действует |
| Название рус.: | Типовые конструкции многоэтажных производственных зданий. Железобетонные колонны высоты этажей 6,0 м, 7,2 м и 10,8 м |
| Дата добавления в базу: | 01.09.2013 |
| Дата актуализации: | 01.01.2021 |
| Дата введения: | 01.07.1973 |
| Разработан: | ЦНИИпромзданий НИИЖБ ГСПИ-10 |
| Утверждён: | 28.11.1972 Госстрой СССР (Государственный комитет Совета Министров СССР по делам строительства) (USSR Gosstroy 203) |
| Издан: | ЦИТП Госстроя СССР (CITP, Gosstroy (USSR) 1975 г. ) |
| Заменяет собой: | |
| Чем заменён: |











































































































































































































































































































