Скачать Типовой проект 901-6-97.89 Альбом 1. Пояснительная записка. Технологическая частьДата актуализации: 01.01.2021
|
| Обозначение: | Типовой проект 901-6-97.89 |
| Обозначение англ: | 901-6-97.89 |
| Статус: | не определен законодательством |
| Название рус.: | Альбом 1. Пояснительная записка. Технологическая часть |
| Дата добавления в базу: | 01.09.2013 |
| Дата актуализации: | 01.01.2021 |
| Дата введения: | 17.10.1989 |
| Дата окончания срока действия: | 30.06.2003 |
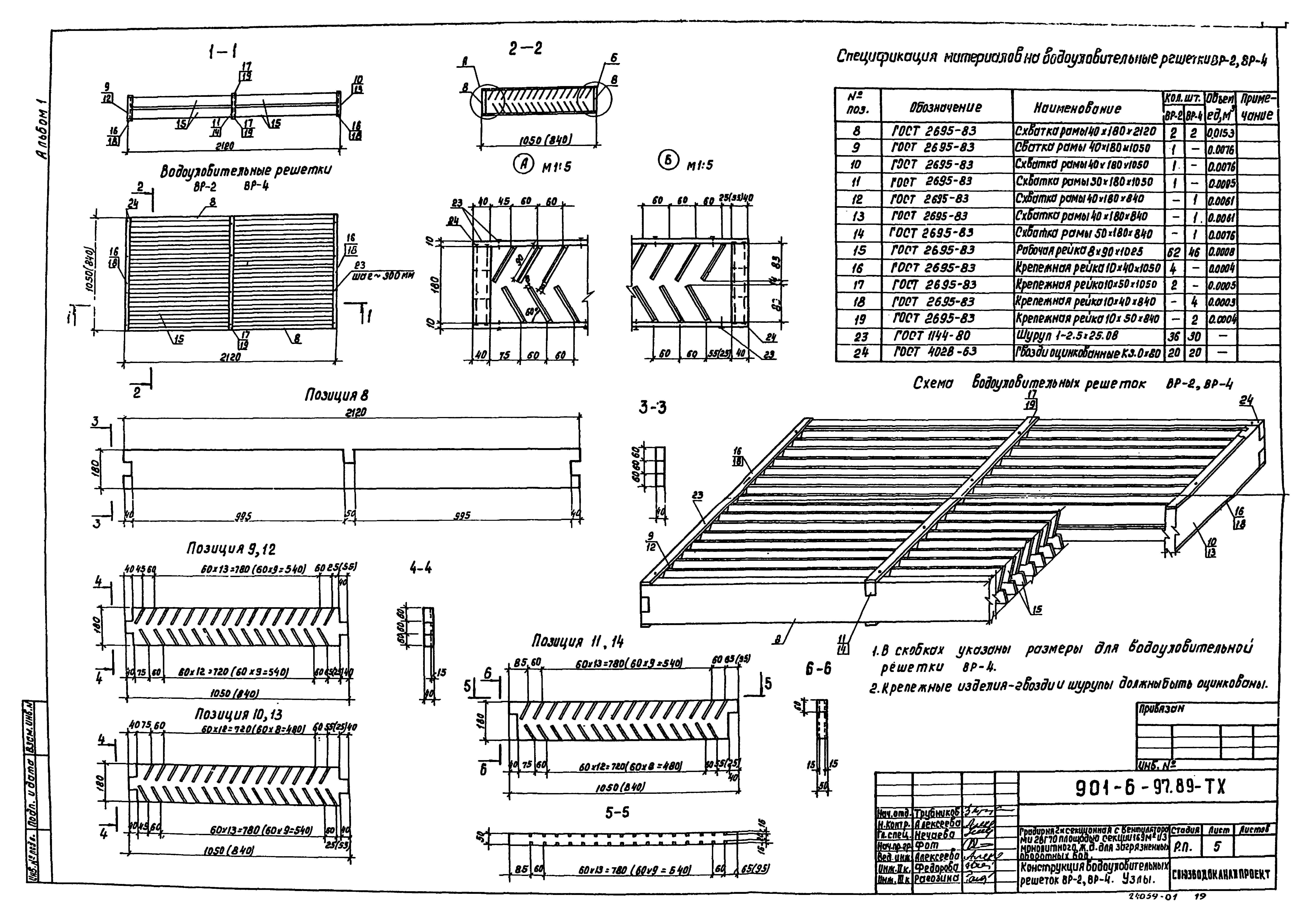
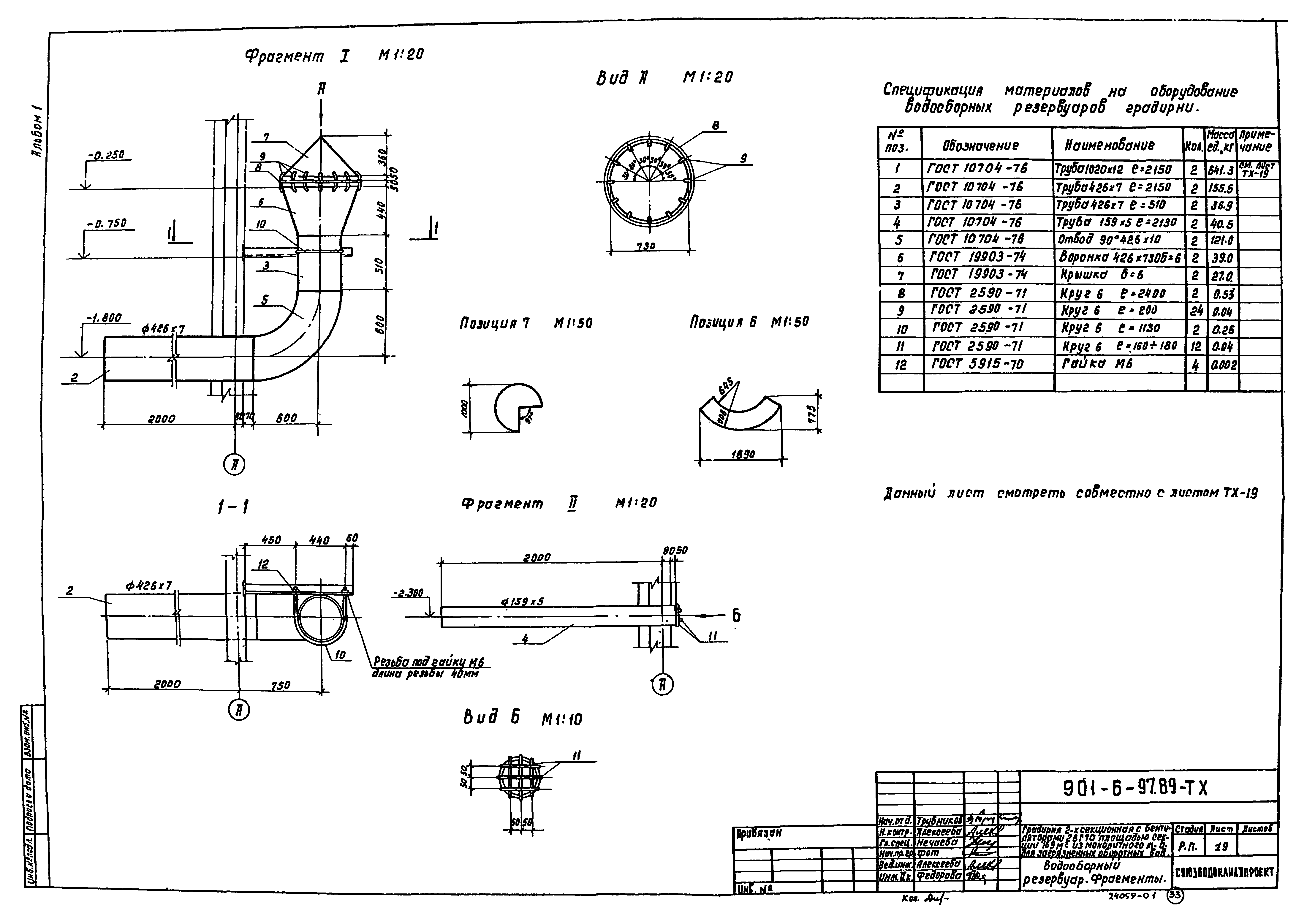
| Оглавление: | ТП 901-6-97.89 Титульный лист ТП 901-6-97.89 Содержание альбома ТП 901-6-97.89-ПЗ-1 Пояснительная записка (начало) ТП 901-6-97.89-ПЗ-2...10 Пояснительная записка (продолжение) ТП 901-6-97.89-ПЗ-11 Пояснительная записка (окончание) ТП 901-6-97.89-ТХ-1 Общие данные ТП 901-6-97.89-ТХ-2 Общий вид градирни ТП 901-6-97.89-ТХ-3 Расстановка водоуловительных решеток. План. Разрезы ТП 901-6-97.89-ТХ-4 Конструкция водоуловительных решеток ВР-1;ВР-3 и закрывающих щитов ЗЩ-1,ЗЩ-2. Узлы ТП 901-6-97.89-ТХ-5 Конструкция водоуловительных решеток ВР-2;ВР-4. Узлы ТП 901-6-97.89-ТХ-6 Водораспределительная система для гидравлической нагрузки 1500...1800 м3/4. План. Разрезы ТП 901-6-97.89-ТХ-7 Водораспределительная система для гидравлической нагрузки 1500...1800 м3/4. Фрагменты ТП 901-6-97.89-ТХ-8 Водораспределительная система для гидравлической нагрузки 2000...2300 м3/4. План. Разрезы ТП 901-6-97.89-ТХ-9 Водораспределительная система для гидравлической нагрузки 2000...2300 м3/4. Фрагменты ТП 901-6-97.89-ТХ-10 Расстановка капельного оросителя для гидравлической нагрузки 1500...1800 м3/4. План. Разрезы ТП 901-6-97.89-ТХ-11 Расстановка капельного оросителя для гидравлической нагрузки 2000...2300 м3/4. План. Разрезы ТП 901-6-97.89-ТХ-12 Блоки капельного оросителя БКО-1,БКО-2,БКО-3. Аксонометрическая схема ТП 901-6-97.89-ТХ-13 Детали блоков капельного оросителя БКО-1,БКО-2,БКО-3 ТП 901-6-97.89-ТХ-14 Расстановка воздухонаправляющих блоков. План. Разрезы ТП 901-6-97.89-ТХ-15 Конструкция воздухонаправляющих блоков ВНБ-1,ВНБ-2 ТП 901-6-97.89-ТХ-16 Детали воздухонаправляющих блоков ВНБ-1,ВНБ-2 ТП 901-6-97.89-ТХ-17 Аксонометрическая схема воздухонаправляющего блока ВНБ-1 ТП 901-6-97.89-ТХ-18 Водосборный резервуар. План на отм. 0.000. Разрезы ТП 901-6-97.89-ТХ-19 Водосборный резервуар. Фрагменты |
| Разработан: | Госхимпроект Союзводоканалниипроект |
| Утверждён: | 17.10.1989 СоюзводоканалНИИпроект (SoyuzvodokanalNIIproject 30) |
| Заменяет собой: |
































