Скачать Серия 1.462-13 Стальные решетчатые прогоны пролетом 12 м. Чертежи КМДата актуализации: 01.01.2021
|
| Обозначение: | Серия 1.462-13 |
| Обозначение англ: | Series 1.462-13 |
| Статус: | не действует |
| Название рус.: | Стальные решетчатые прогоны пролетом 12 м. Чертежи КМ |
| Дата добавления в базу: | 01.09.2013 |
| Дата актуализации: | 01.01.2021 |
| Дата введения: | 01.07.1981 |
| Дата окончания срока действия: | 01.12.1984 |
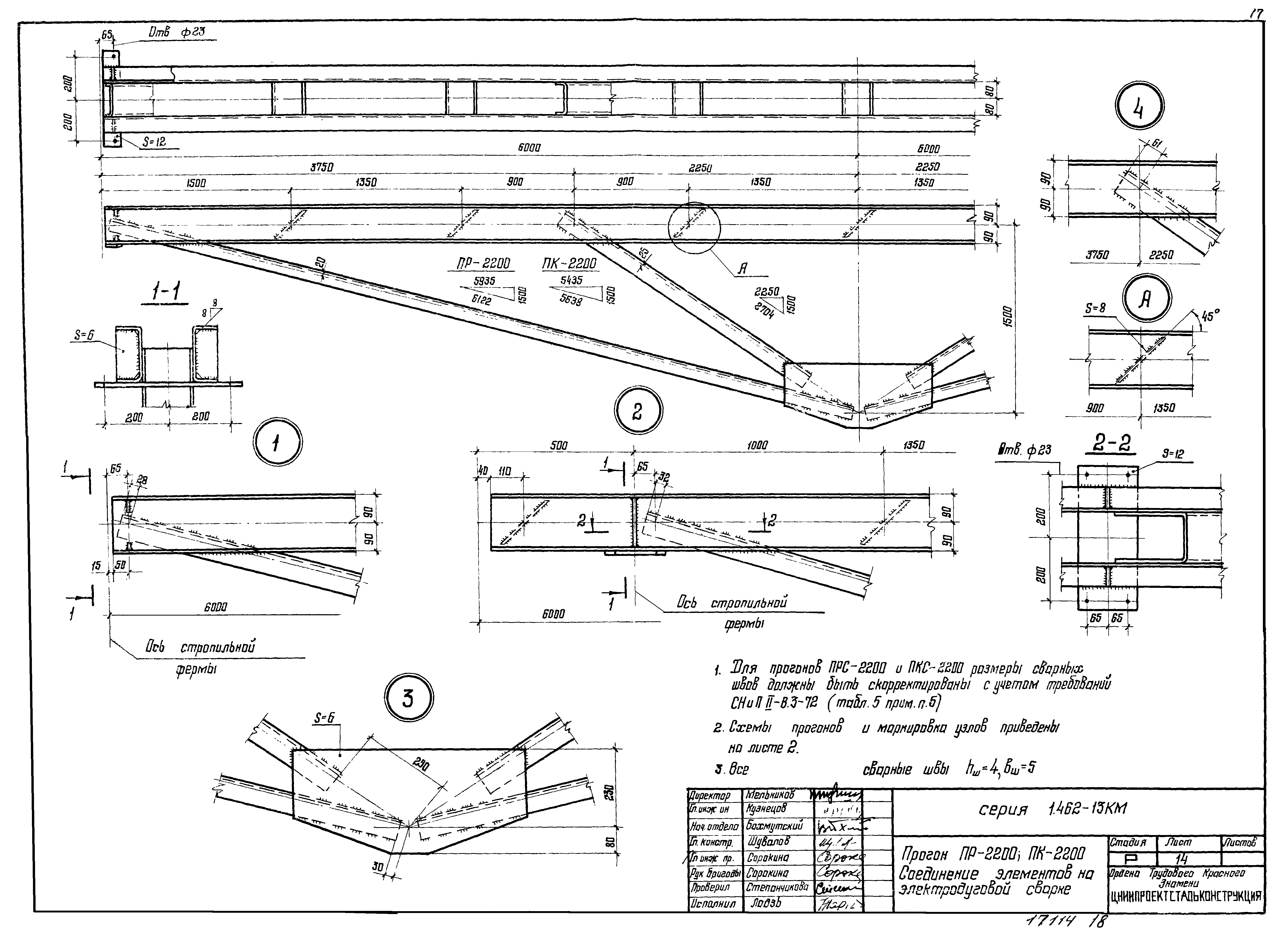
| Оглавление: | 1.462-13КМ-1.1,1.2 Пояснительная записка 1.462-13КМ-2 Сортамент прогонов 1.462-13КМ-3 Прогон ПР-750;ПК-750. Соединение элементов на контактной точечной сварке 1.462-13КМ-4 Прогон ПР-1050;ПК-1050. Соединение элементов на контактной точечной сварке 1.462-13КМ-5 Прогон ПР-1550;ПК-1550. Соединение элементов на контактной точечной сварке 1.462-13КМ-6 Прогон ПР-1800;ПК-1800. Соединение элементов на контактной точечной сварке 1.462-13КМ-7 Прогон ПР-2200;ПК-2200. Соединение элементов на контактной точечной сварке 1.462-13КМ-8 Прогон ПР-2400;ПК-2400. Соединение элементов на контактной точечной сварке 1.462-13КМ-9 Прогон ПР-2800;ПК-2800. Соединение элементов на контактной точечной сварке 1.462-13КМ-10 Прогон ПР-750;ПК-750. Соединение элементов на электродуговой сварке 1.462-13КМ-11 Прогон ПР-1050;ПК-1050. Соединение элементов на электродуговой сварке 1.462-13КМ-12 Прогон ПР-1550;ПК-1550. Соединение элементов на электродуговой сварке 1.462-13КМ-13 Прогон ПР-1800;ПК-1800. Соединение элементов на электродуговой сварке 1.462-13КМ-14 Прогон ПР-2200;ПК-2200. Соединение элементов на электродуговой сварке 1.462-13КМ-15 Прогон ПР-2400;ПК-2400. Соединение элементов на электродуговой сварке 1.462-13КМ-16 Прогон ПР-2800;ПК-2800. Соединение элементов на электродуговой сварке 1.462-13КМ-17,18 Спецификация стали на прогоны с соединением элементов на контактной точечной сварке 1.462-13КМ-19,20 Спецификация стали на прогоны с соединением элементов на электродуговой сварке 1.462-13КМ-21 Усилия в рядовых прогонах от единичной нагрузки 1.462-13КМ-22 Усилия в концевых прогонах от единичной нагрузки |
| Разработан: | ЦНИИпроектстальконструкция |
| Утверждён: | 05.12.1980 Госстрой СССР (Государственный комитет Совета Министров СССР по делам строительства) (USSR Gosstroy 186) |
| Заменяет собой: |


























