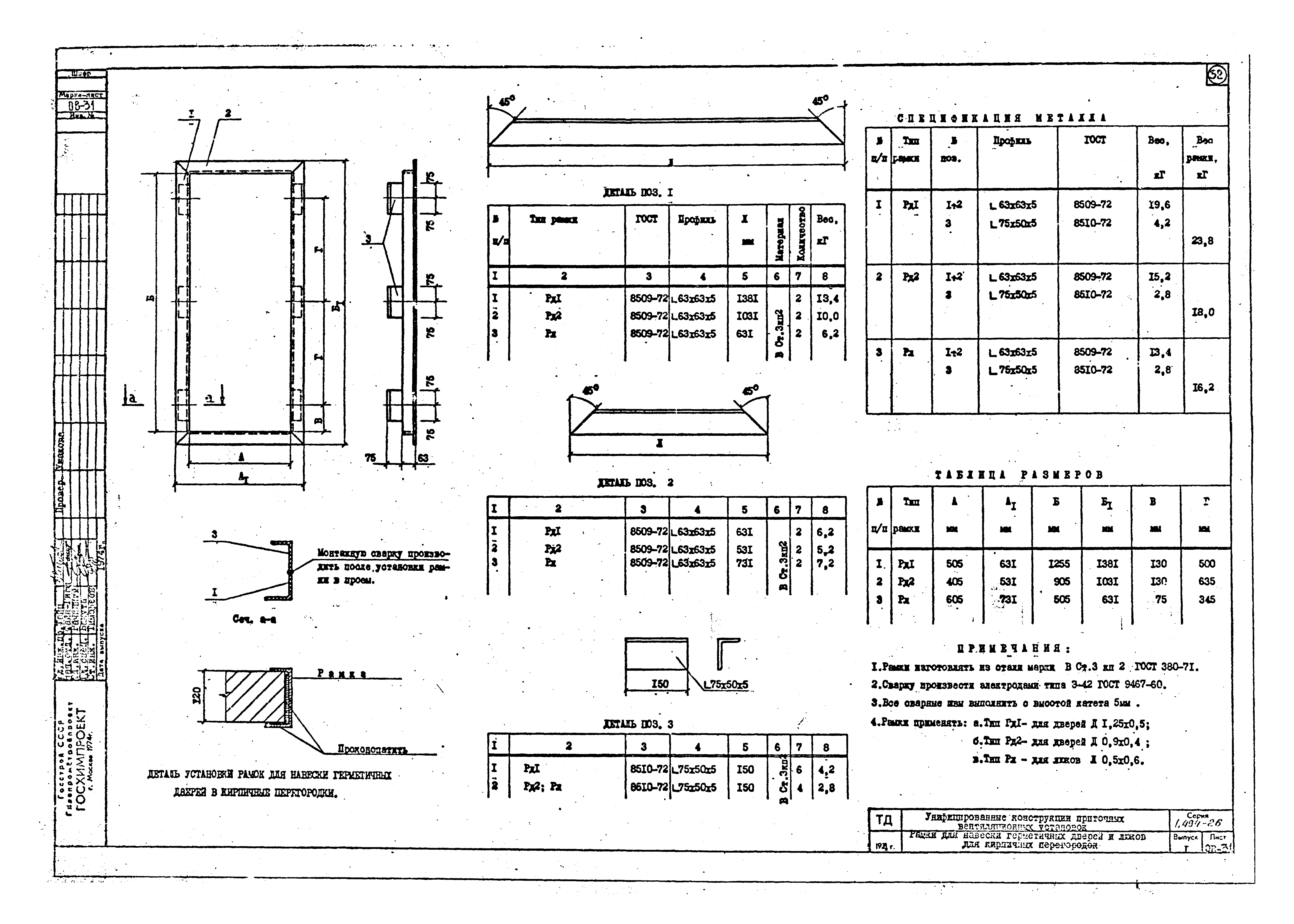
Скачать Серия 1.494-26 Выпуск 1. Коробки и диффузоры к вентиляторам, рамки и подставки для установки калориферовДата актуализации: 01.01.2021 Серия 1.494-26
Выпуск 1. Коробки и диффузоры к вентиляторам, рамки и подставки для установки калориферов| Обозначение: | Серия 1.494-26 | | Обозначение англ: | Series 1.494-26 | | Статус: | не действует | | Название рус.: | Выпуск 1. Коробки и диффузоры к вентиляторам, рамки и подставки для установки калориферов | | Дата добавления в базу: | 01.09.2013 | | Дата актуализации: | 01.01.2021 | | Дата введения: | 01.04.1976 | | Дата окончания срока действия: | 01.06.1987 | | Разработан: | ГПИ Госхимпроект Госстроя СССР
| | Утверждён: | 30.03.1976 Главпромстройпроект Госстроя СССР (16)
| | Чем заменён: | |
                             
|