Скачать Серия 10.0 КР-5 Выпуск 2. Примеры проектирования кухонь с учетом расстановки оборудованияДата актуализации: 01.01.2021
|
| Обозначение: | Серия 10.0 КР-5 |
| Обозначение англ: | Series 10.0 КР-5 |
| Статус: | не действует |
| Название рус.: | Выпуск 2. Примеры проектирования кухонь с учетом расстановки оборудования |
| Дата добавления в базу: | 01.09.2013 |
| Дата актуализации: | 01.01.2021 |
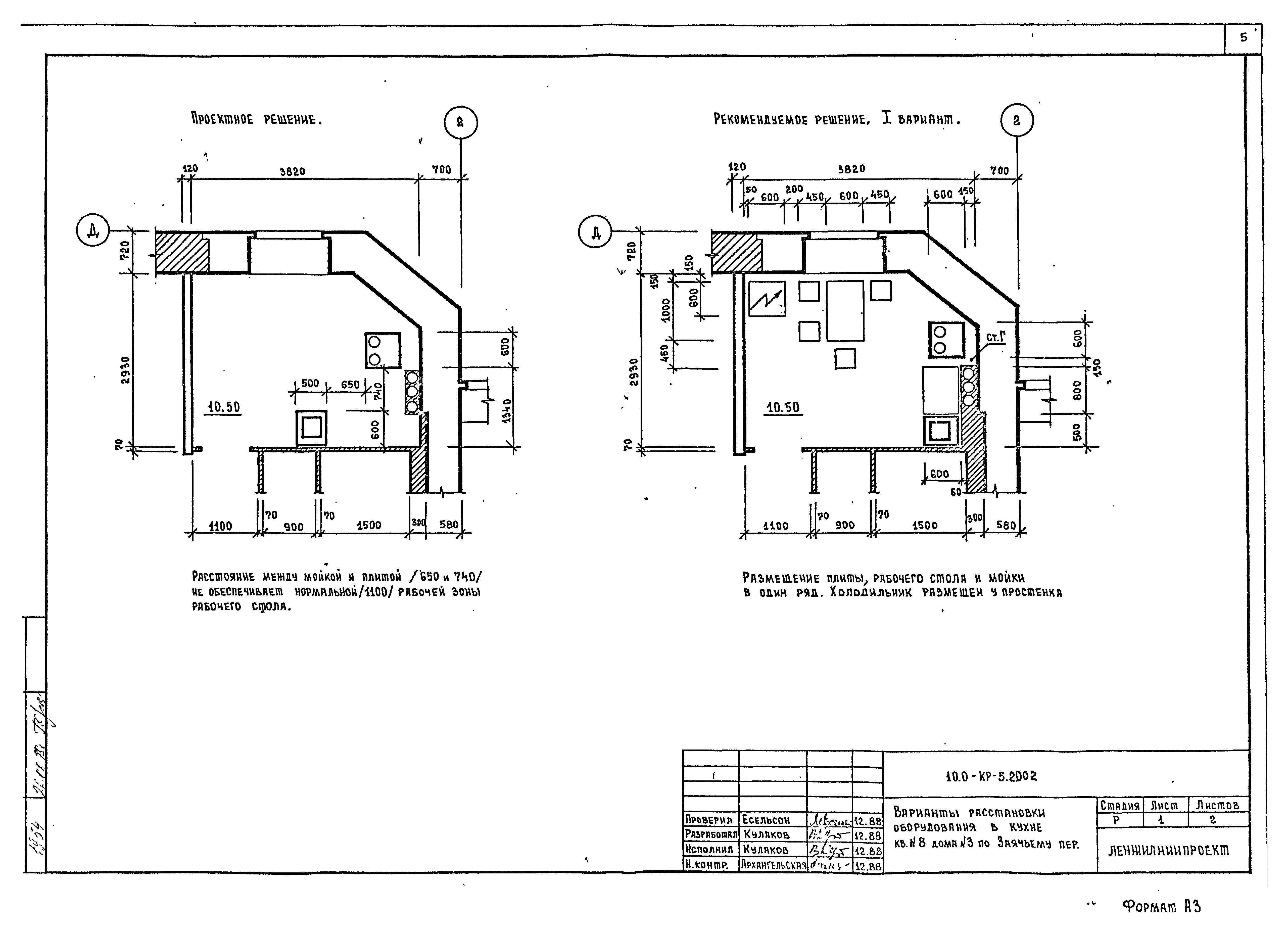
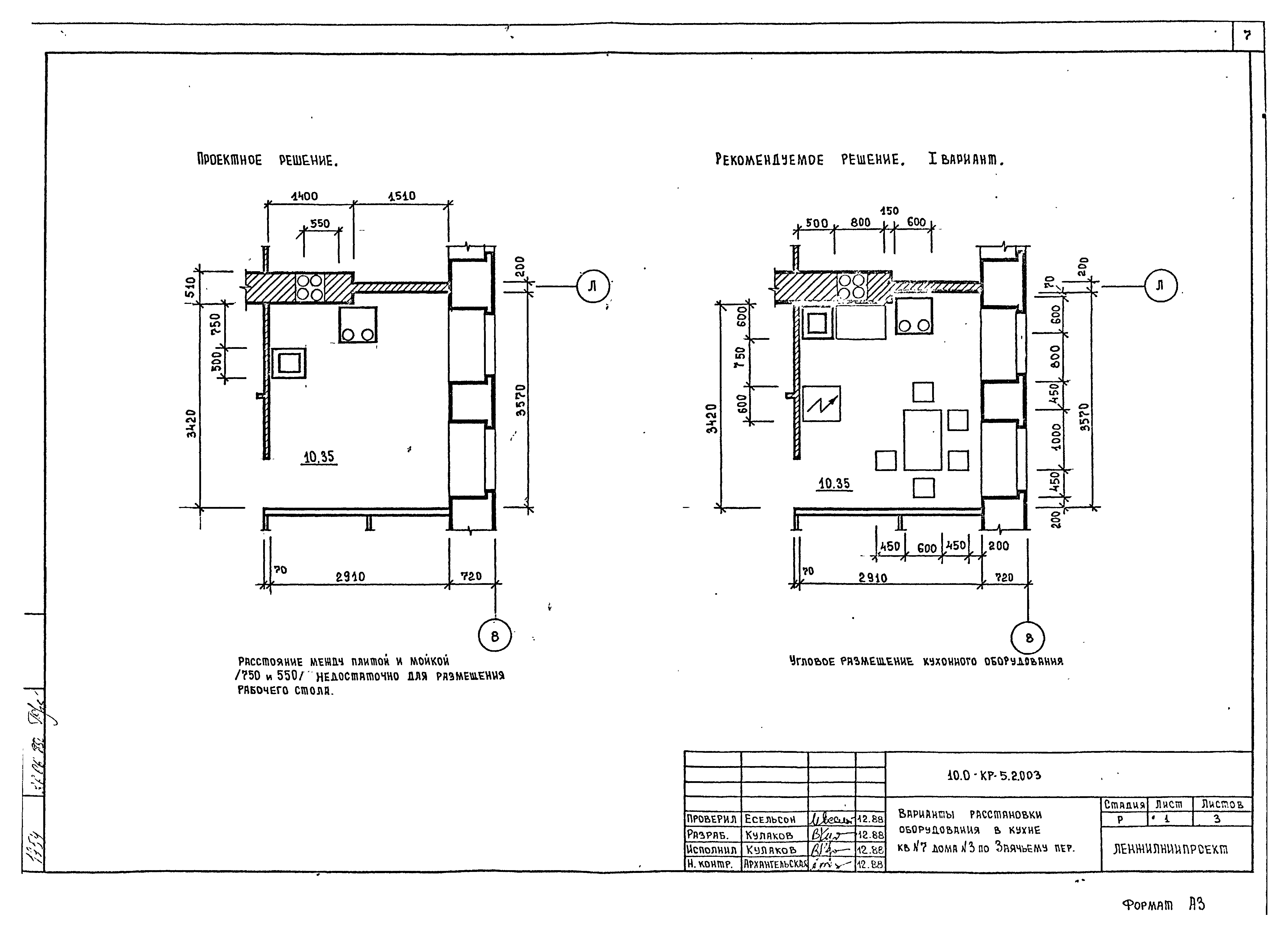
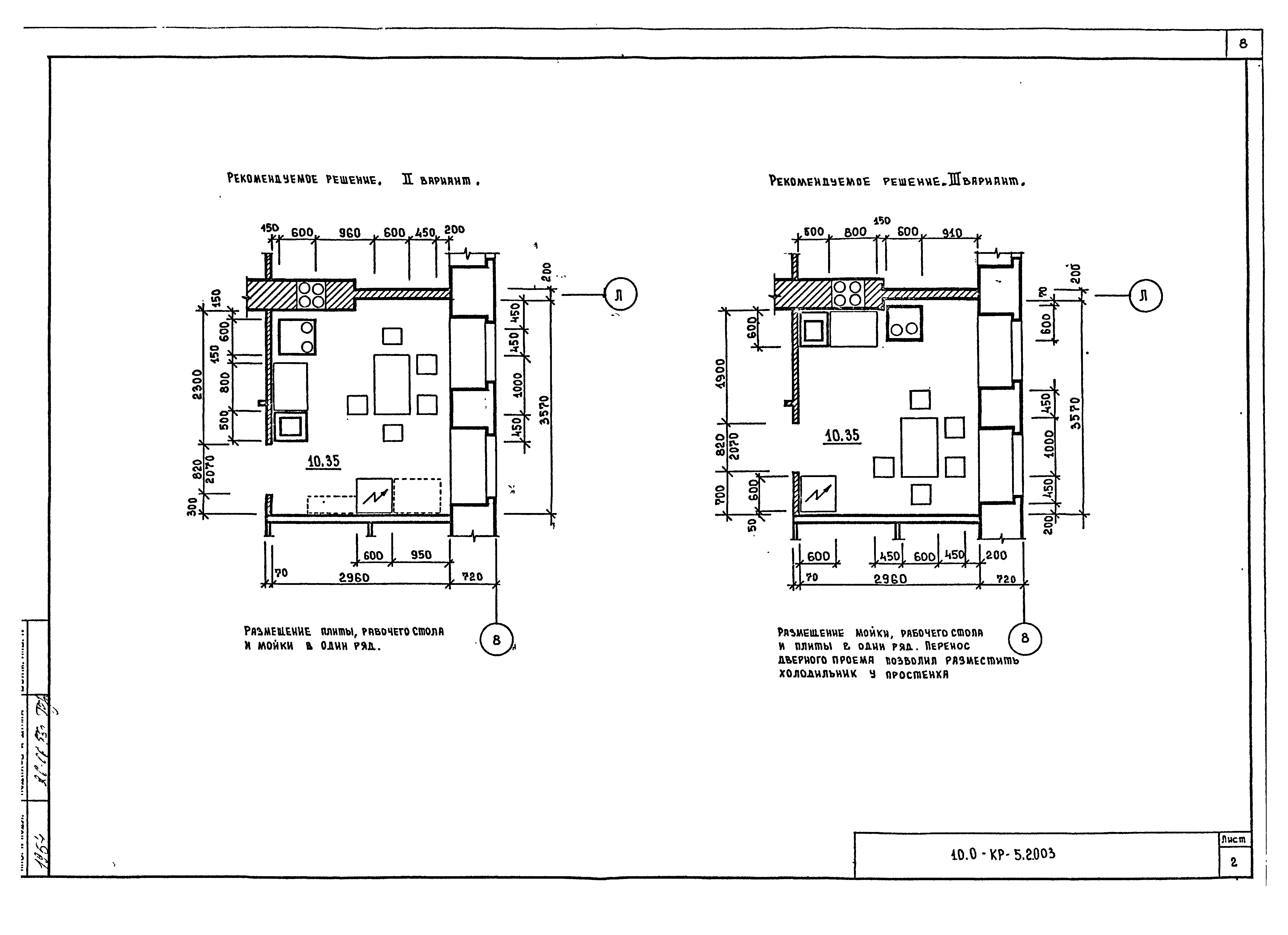
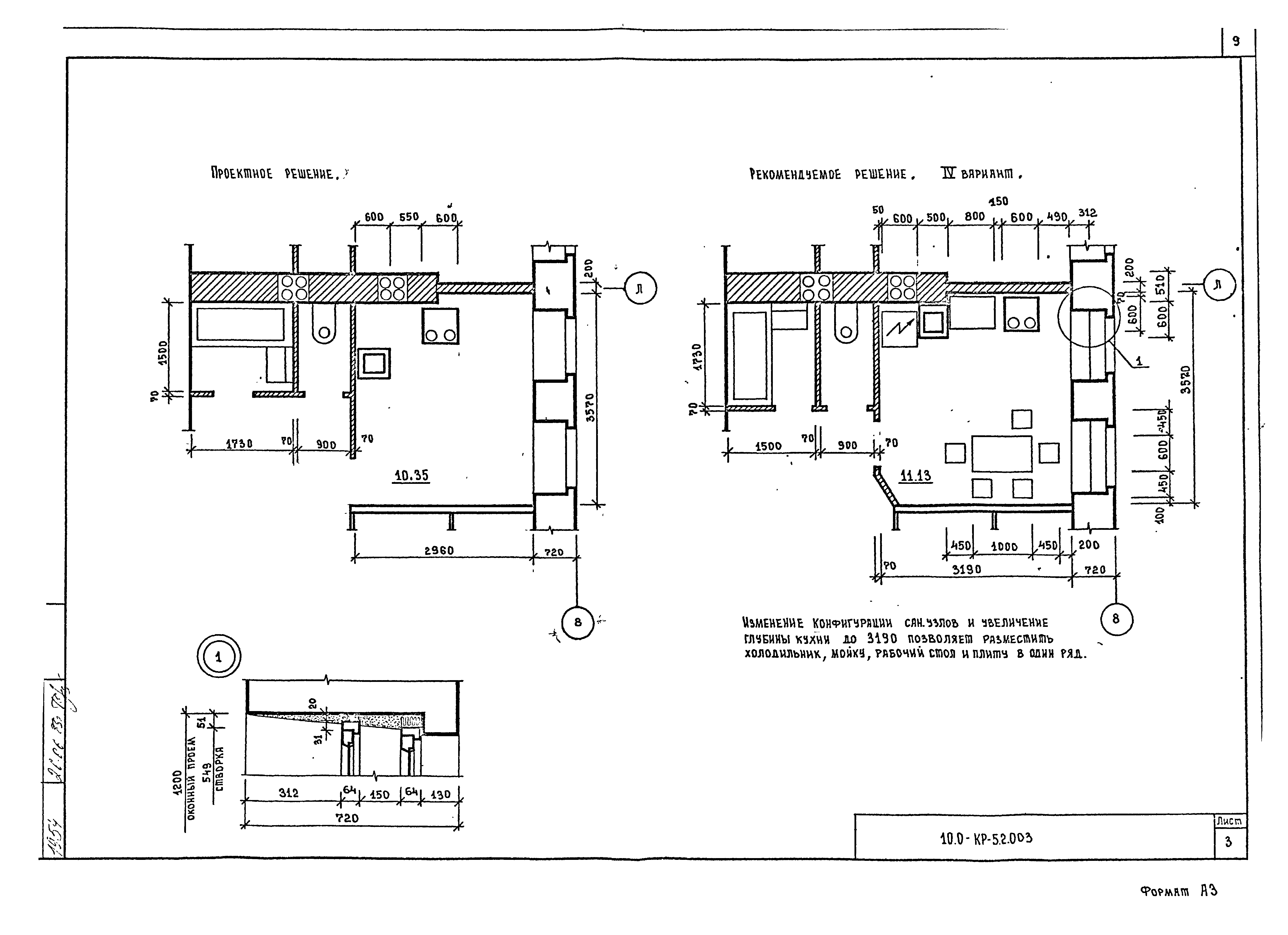
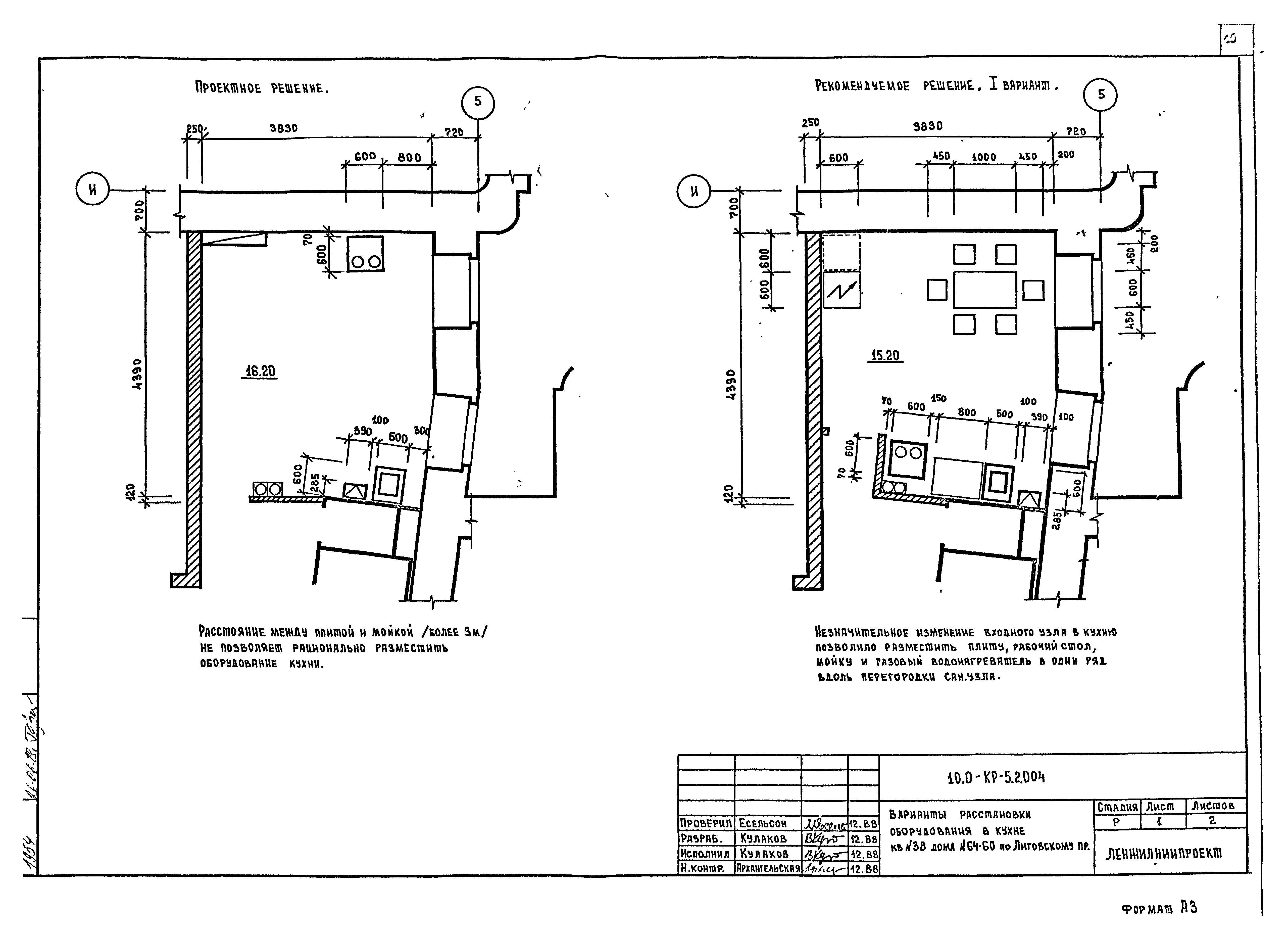
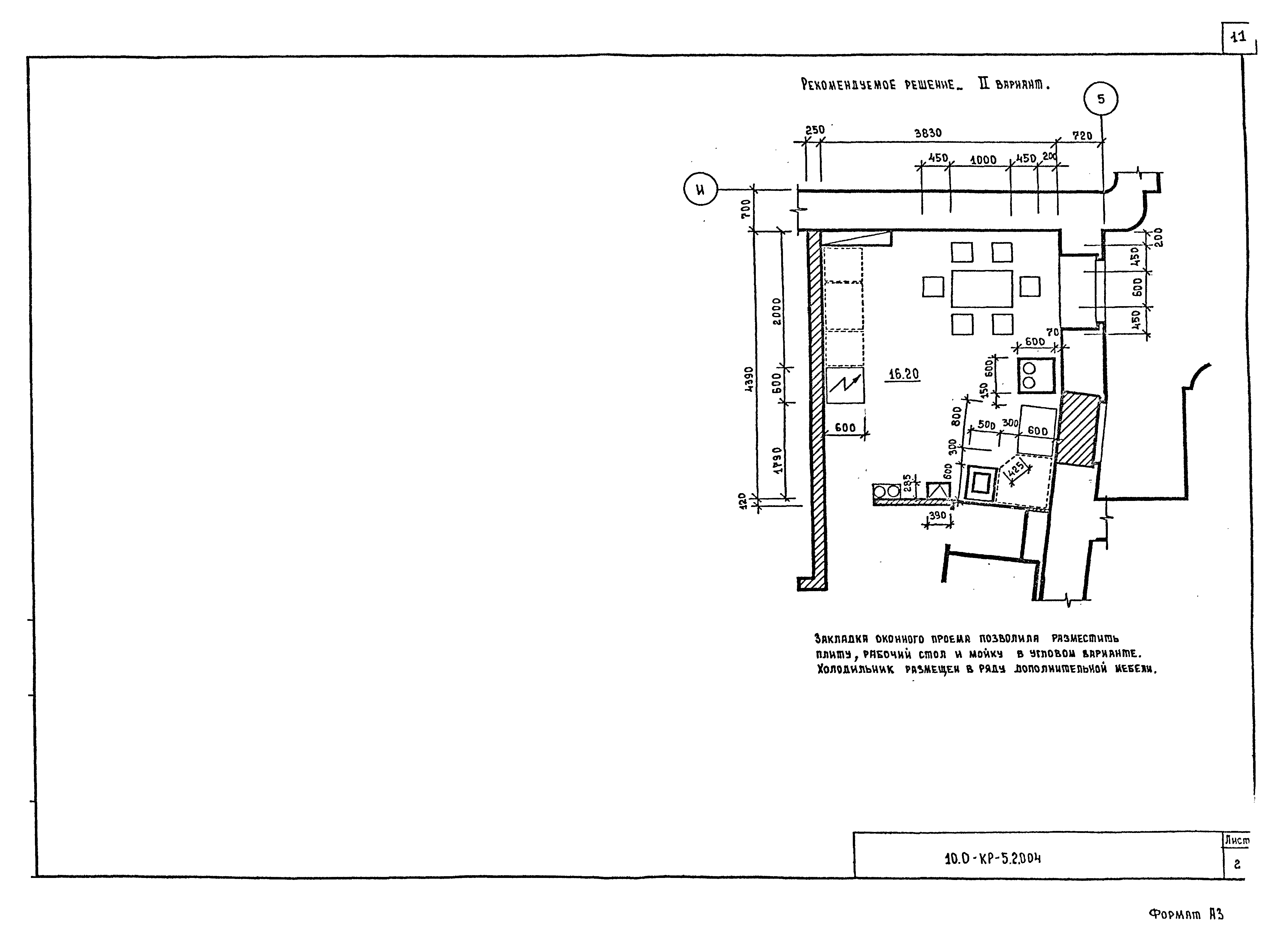
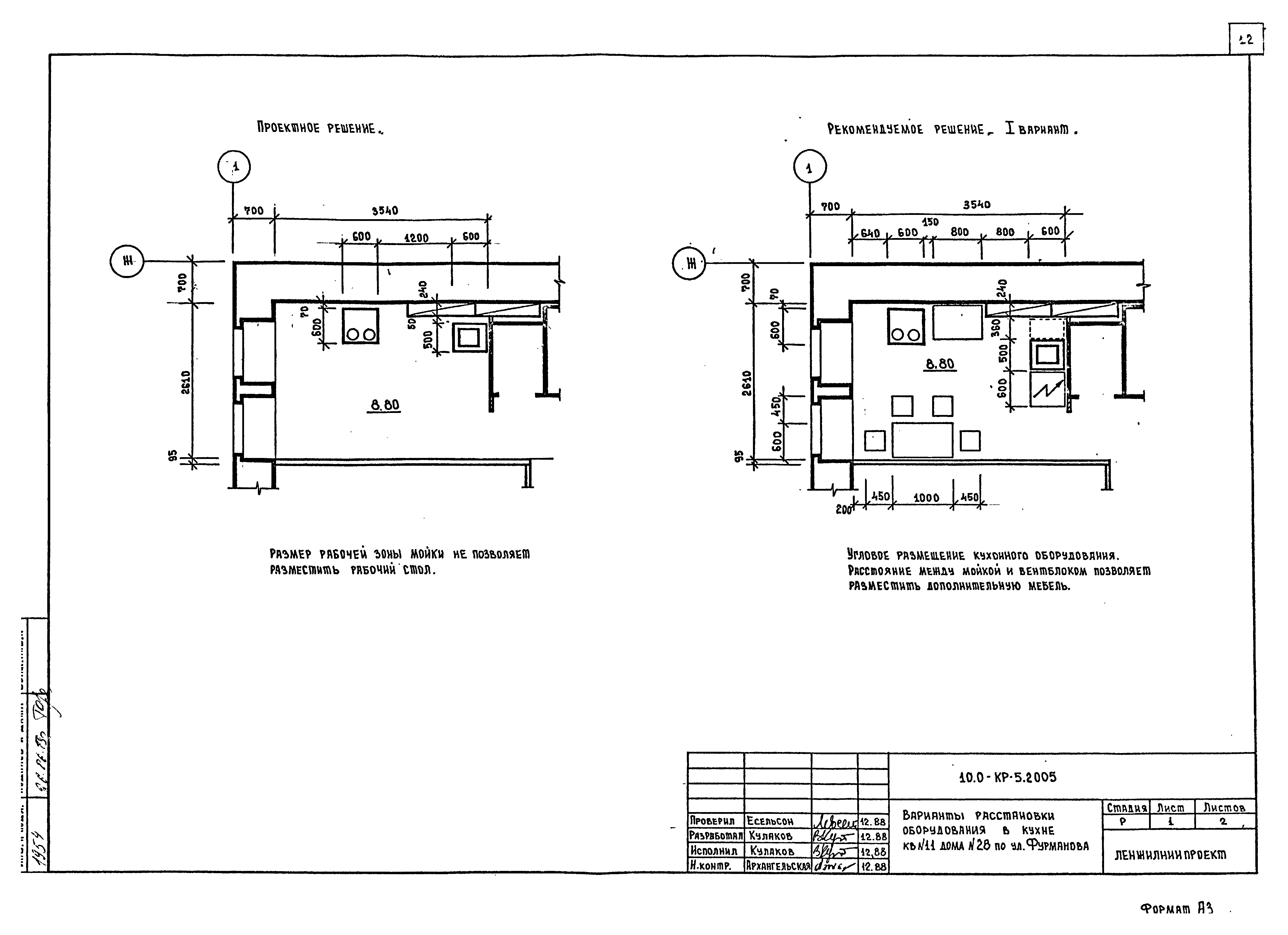
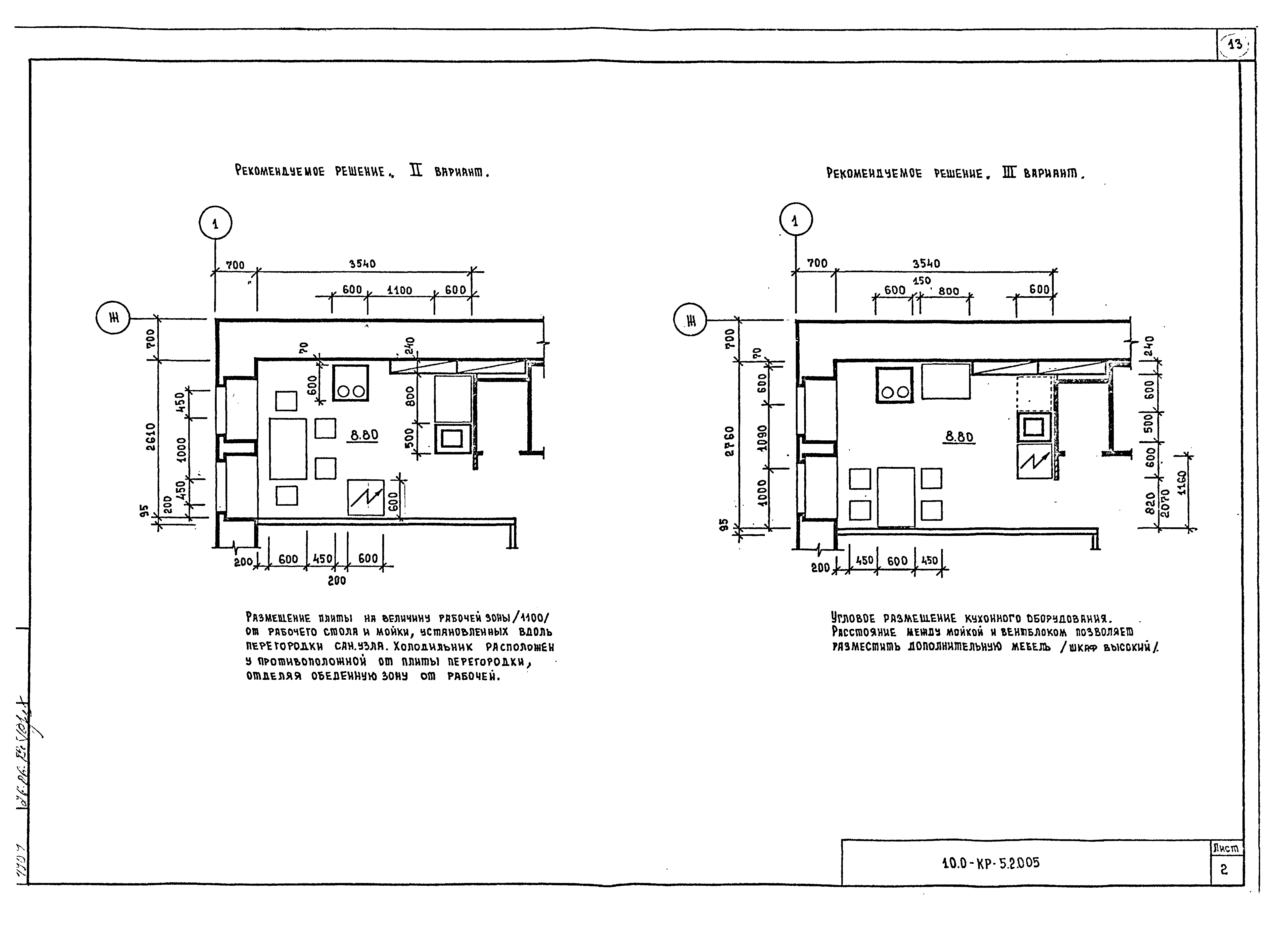
| Оглавление: | 10.0-КР-5.2.000 Содержание выпуска 10.0-КР-5.2.001 Варианты расстановки оборудования в кухне кв № 2 дома 115 по Невскому пр. 10.0-КР-5.2.002 Варианты расстановки оборудования в кухне кв № 8 дома 3 по Заячьему пер. 10.0-КР-5.2.003 Варианты расстановки оборудования в кухне кв № 7 дома 3 по Заячьему пер. 10.0-КР-5.2.004 Варианты расстановки оборудования в кухне кв № 38 дома 64-60 по Лиговскому 10.0-КР-5.2.005 Варианты расстановки оборудования в кухне кв № 11 дома 28 по ул. Фурманова |
| Разработан: | ЛенжилНИИпроект |
| Утверждён: | 29.12.1988 ЛенжилНИИпроект (41) |













