Скачать Типовой проект 213-2-183 Альбом IV. Узлы и деталиДата актуализации: 01.01.2021
|
| Обозначение: | Типовой проект 213-2-183 |
| Обозначение англ: | 213-2-183 |
| Статус: | действует |
| Название рус.: | Альбом IV. Узлы и детали |
| Дата добавления в базу: | 01.09.2013 |
| Дата актуализации: | 01.01.2021 |
| Дата введения: | 27.11.1979 |
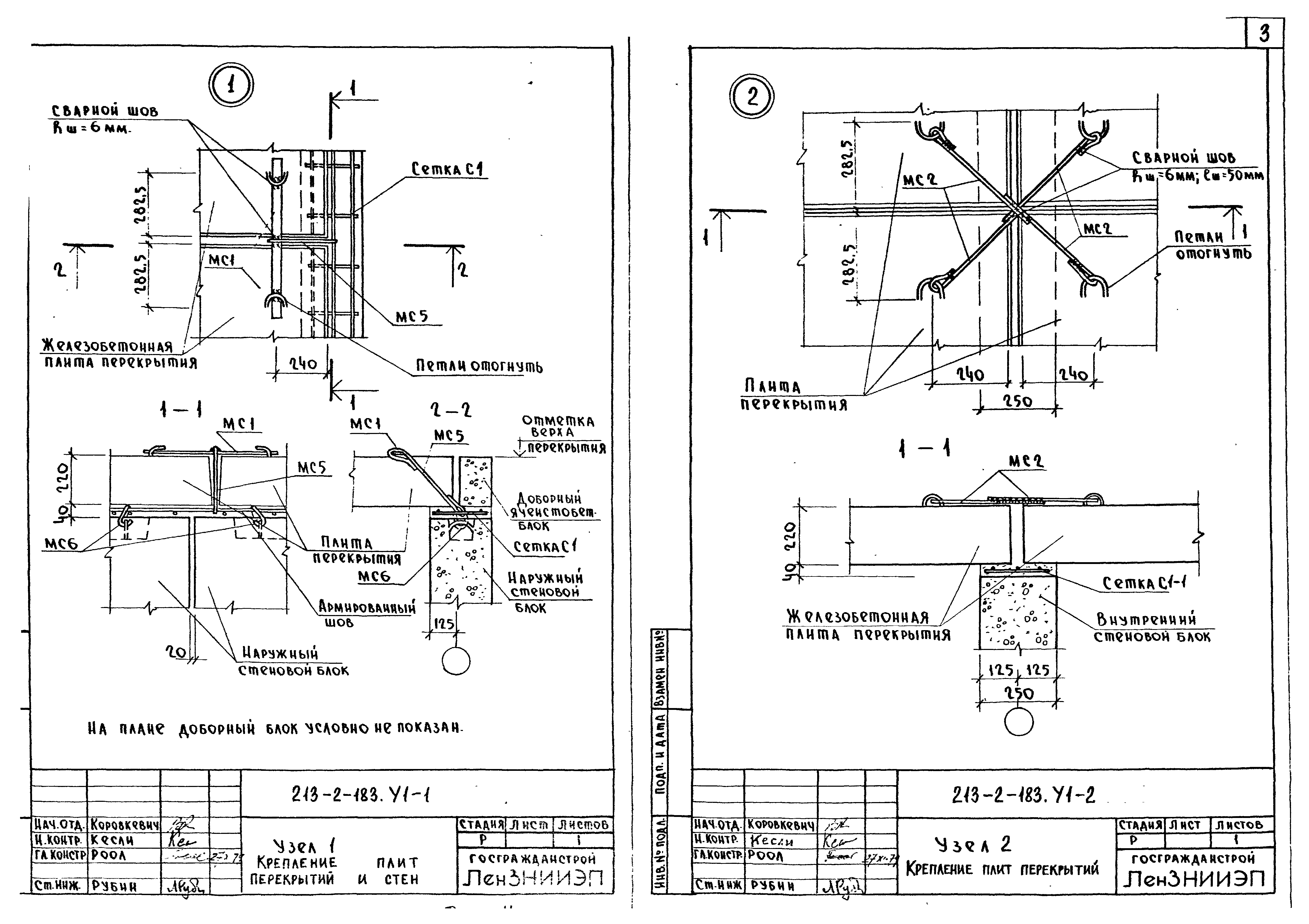
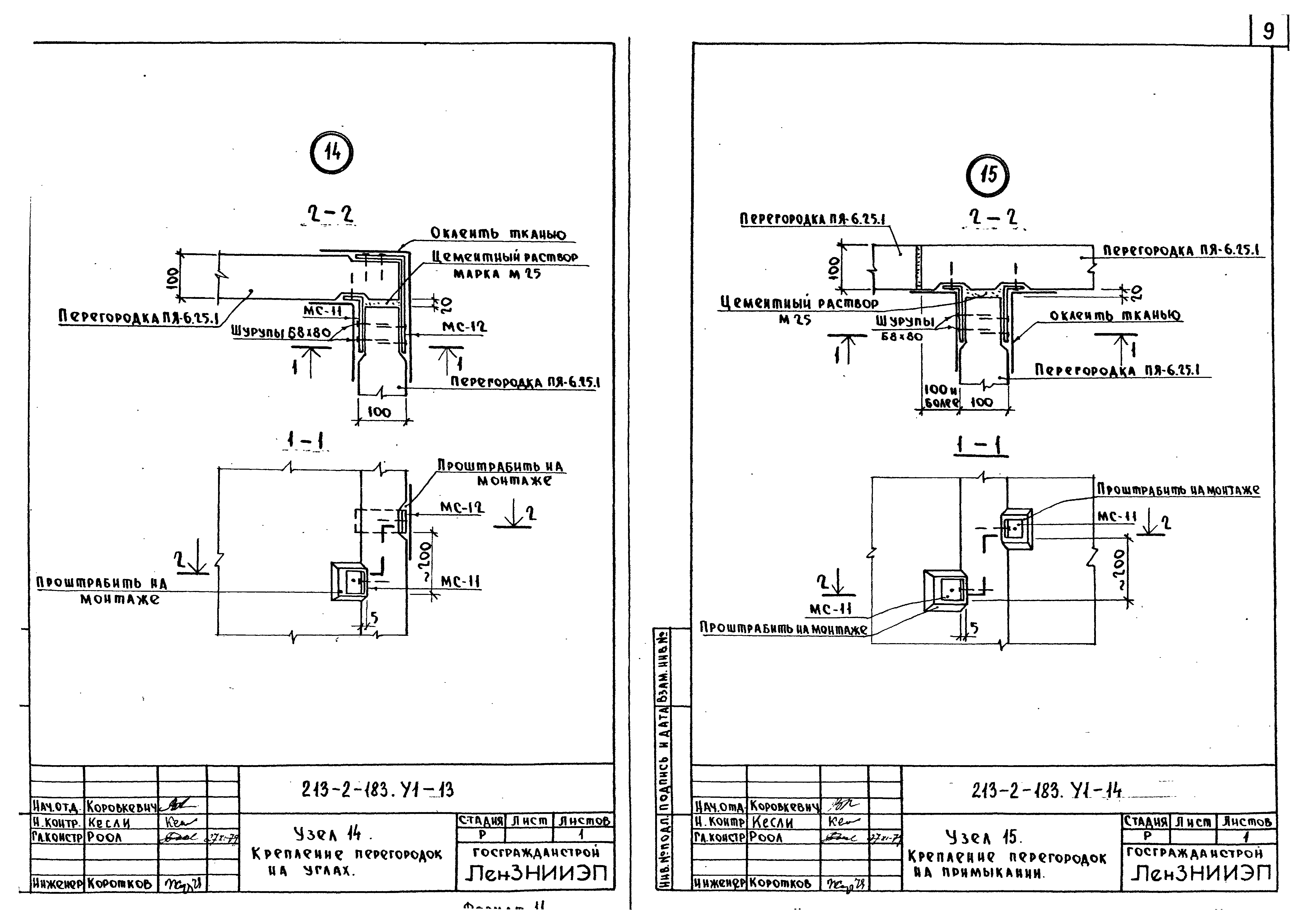
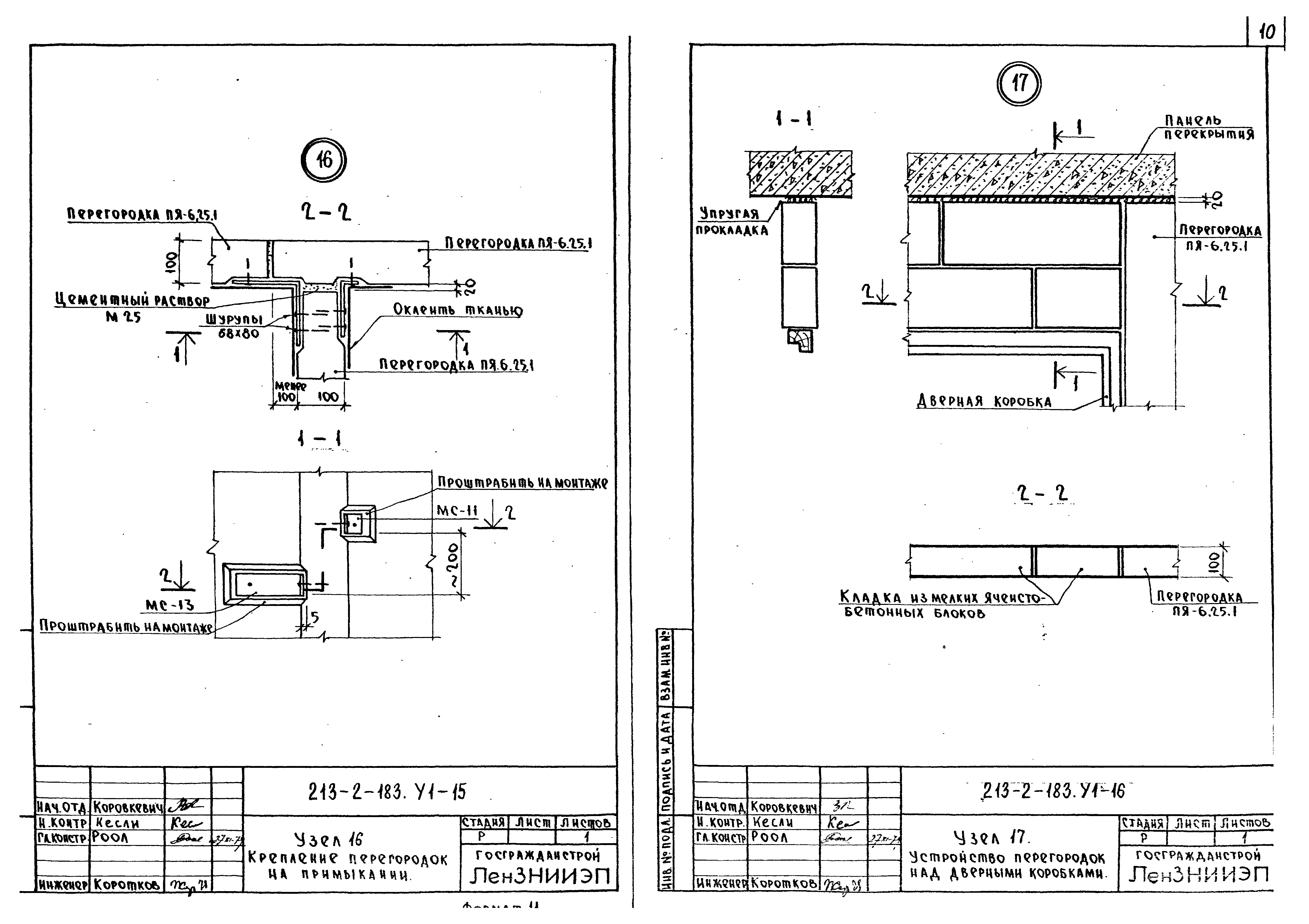
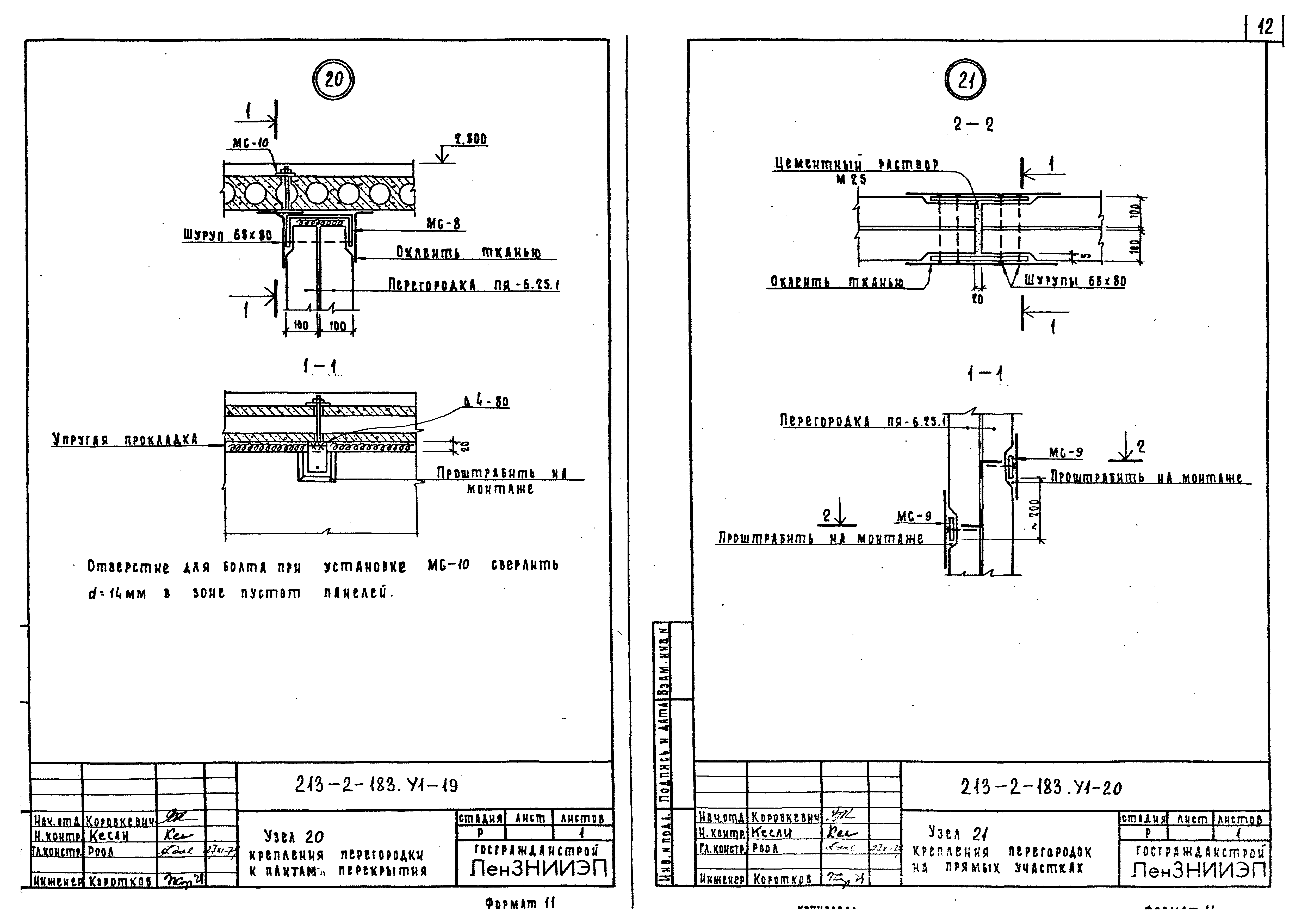
| Оглавление: | 213-2-183 Титульный лист 213-2-183 Опись альбома 213-2-183.У1-1 Узел 1. Крепление плит перекрытий и стен 213-2-183.У1-2 Узел 2. Крепление плит перекрытий 213-2-183.У1-3 Узел 3. Крепление плит перекрытий 213-2-183.У1-4 Узел 4. Угловое сопряжение стеновых блоков 213-2-183.У1-5 Узел 5. Крепление плит перекрытия над подвалом и стен 213-2-183.У1-6 Узел 6. Угловое сопряжение парапетных панелей 213-2-183.У1-7 Узел 7. Рядовое сопряжение парапетных панелей 213-2-183.У1-8 Узел 8. Сопряжение разновысоких парапетных панелей 213-2-183.У1-9 Узлы 9,10. Установка перегородок на пол 1 и 2 этажей 213-2-183.У1-10 Узел 11. Крепление перегородки к стеновым панелям 213-2-183.У1-11 Узел 12. Крепление перегородки к плитам перекрытия 213-2-183.У1-12 Узел 13. Крепление перегородок на прямых участках 213-2-183.У1-13 Узел 14. Крепление перегородок на углах 213-2-183.У1-14 Узел 15. Крепление перегородок на примыкании 213-2-183.У1-15 Узел 16. Крепление перегородок на примыкании 213-2-183.У1-16 Узел 17. Устройство перегородок над дверными коробками 213-2-183.У1-17 Узел 18. Установка перегородки на пол 1 этажа 213-2-183.У1-18 Узел 19. Крепление перегородки к стеновым панелям 213-2-183.У1-19 Узел 20. Крепление перегородки к плитам перекрытия 213-2-183.У1-20 Узел 21. Крепление перегородок на прямых участках 213-2-183.У1-21 Узлы 22,23. Устройство ограждения 213-2-183.У1-22 Узел 24. Выпуск вентиляционного короба на крышу 213-2-183.У1-23 Узел 25 213-2-183.У1-24 Узел 26 213-2-183.У1-25 Узел 27 213-2-183.У1-26 Узел 28 213-2-183.У2-1 Узел 1. Установка экранов в санузлах 213-2-183.У2-2 Узел 2. Установка ограждения радиаторов |
| Разработан: | ЛенЗНИИЭП Госгражданстроя |
| Утверждён: | 03.05.1979 Госгражданстрой (Gosgrazhdanstroy 90) |
















