Скачать Типовой проект 213-2-183 Альбом VII. Вариант двойного использования помещений I этажаДата актуализации: 01.01.2021
|
| Обозначение: | Типовой проект 213-2-183 |
| Обозначение англ: | 213-2-183 |
| Статус: | действует |
| Название рус.: | Альбом VII. Вариант двойного использования помещений I этажа |
| Дата добавления в базу: | 01.09.2013 |
| Дата актуализации: | 01.01.2021 |
| Дата введения: | 27.11.1979 |
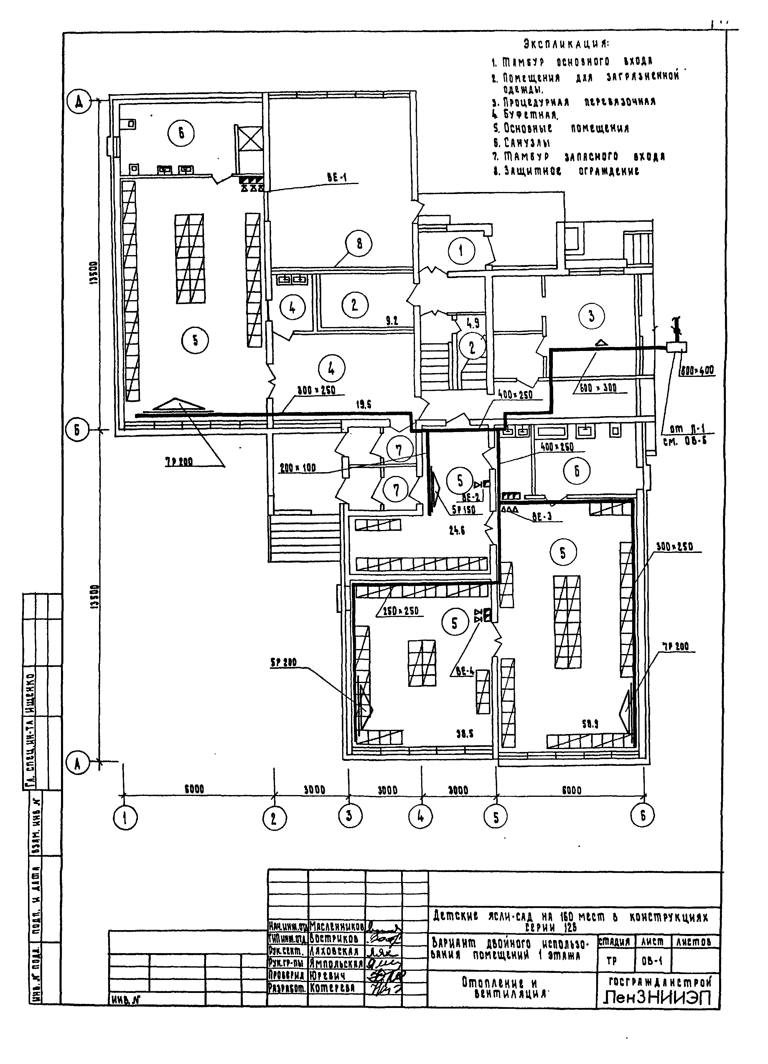
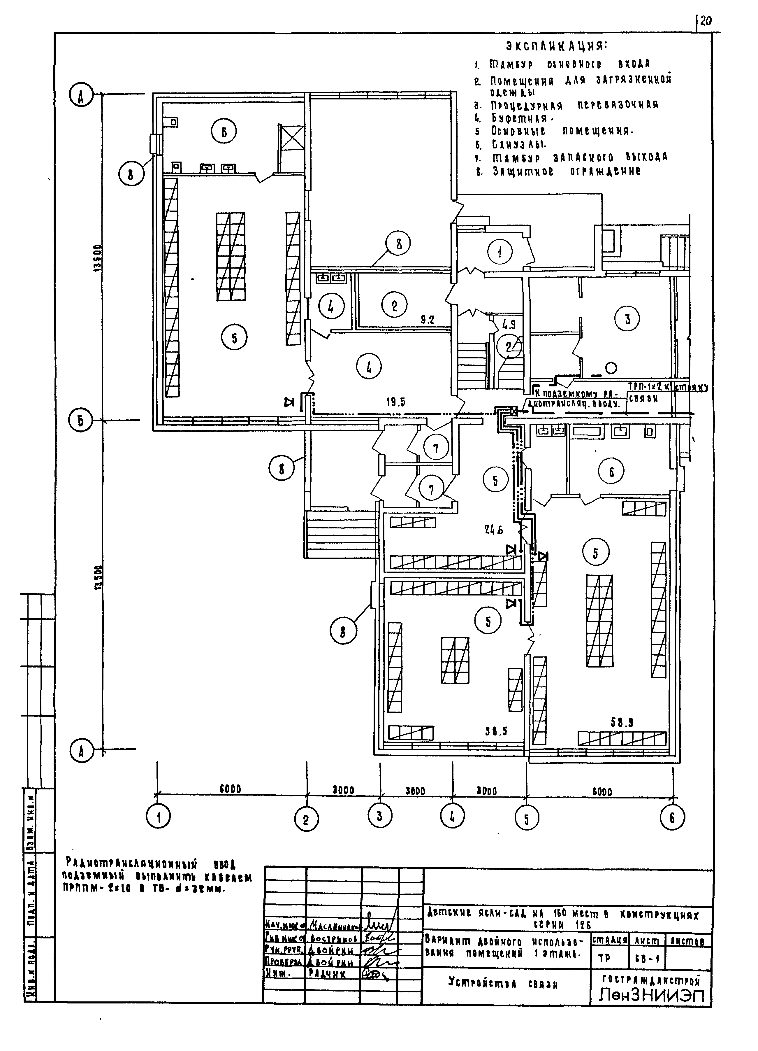
| Оглавление: | ТП Б-3-200/213-2-183 Заглавный лист ТП Б-3-200/213-2-183 Пояснительная записка ТП Б-3-200/213-2-183 Архитектурно-строительная часть ТП Б-3-200/213-2-183 Отопление и вентиляция ТП Б-3-200/213-2-183 Водопровод и канализация ТП Б-3-200/213-2-183 Электрооборудование ТП Б-3-200/213-2-183 Комплекс связи ТП Б-3-200/213-2-183-АС-1 Генплан ТП Б-3-200/213-2-183-АС-2 Вариант для наружных стен при tн=-20ºС,-30ºС. План ТП Б-3-200/213-2-183-АС-3 Вариант для наружных стен при tн=-40ºС. План ТП Б-3-200/213-2-183-АС-4 Разрезы 1-1;2-2 ТП Б-3-200/213-2-183-АС-5 Детали 1 и 2 ТП Б-3-200/213-2-183-ОВ-1 Отопление и вентиляция ТП Б-3-200/213-2-183-ВК-1 Водопровод и канализация ТП Б-3-200/213-2-183-ЭЛ-1 Электрооборудование ТП Б-3-200/213-2-183-ОВ-1 Устройства связи ТП Б-3-200/213-2-183-ОВ-2 Дополнительные спецификации по отоплению, вентиляции и связи ТП Б-3-200/213-2-183 Расчет стоимости ТП Б-3-200/213-2-183-АС Сметы |
| Разработан: | ЛенЗНИИЭП Госгражданстроя |
| Утверждён: | 03.05.1979 Госгражданстрой (Gosgrazhdanstroy 90) |

























