Скачать Серия 03.005-7 Выпуск 0-4. Конструктивные решения блоков выжимных лифтов, совмещенных с входами. Материалы для проектированияДата актуализации: 01.01.2021
|
| Обозначение: | Серия 03.005-7 |
| Обозначение англ: | Series 03.005-7 |
| Статус: | не определен законодательством |
| Название рус.: | Выпуск 0-4. Конструктивные решения блоков выжимных лифтов, совмещенных с входами. Материалы для проектирования |
| Дата добавления в базу: | 01.09.2013 |
| Дата актуализации: | 01.01.2021 |
| Дата введения: | 20.06.1991 |
| Дата окончания срока действия: | 30.06.2003 |
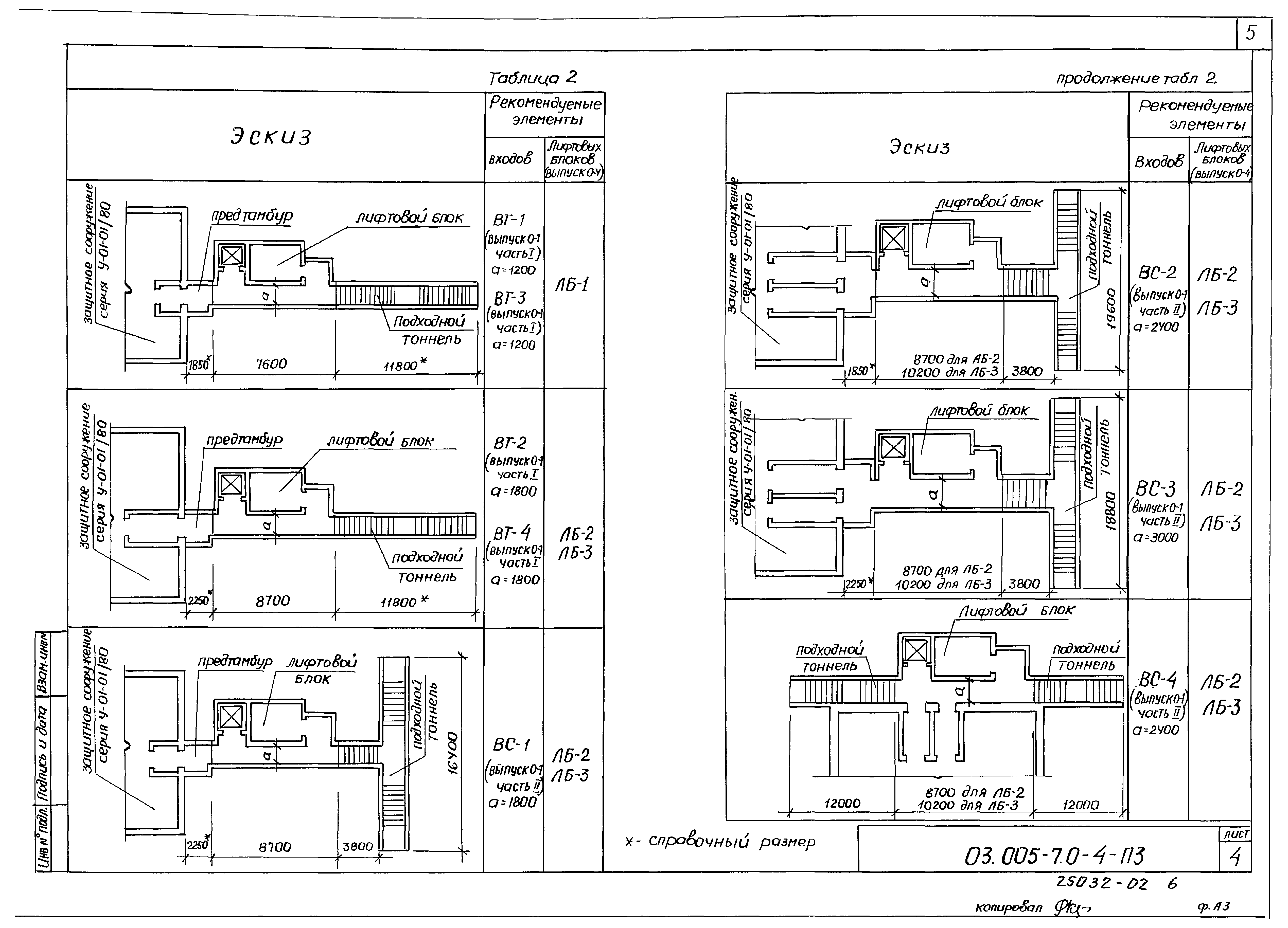
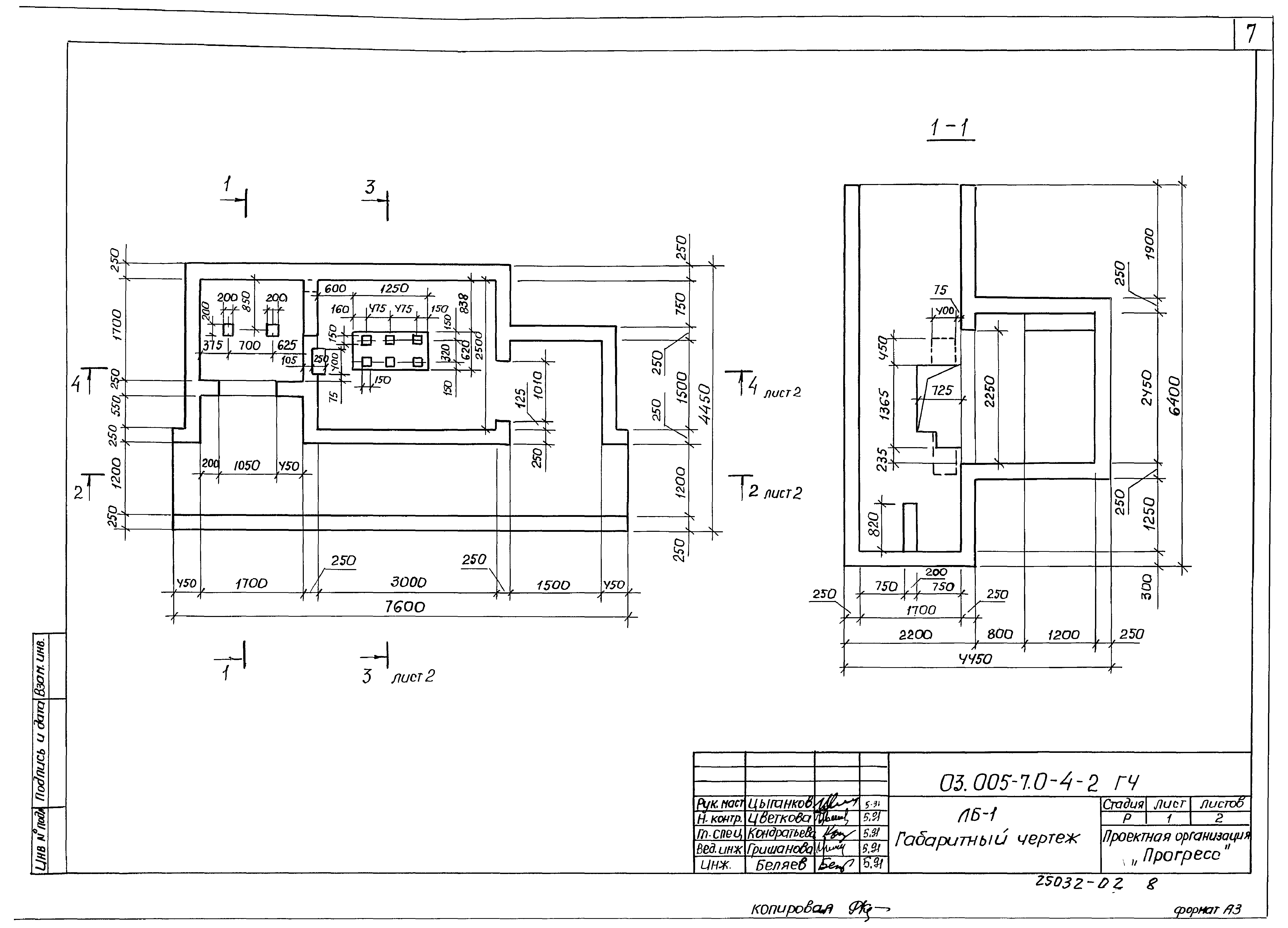
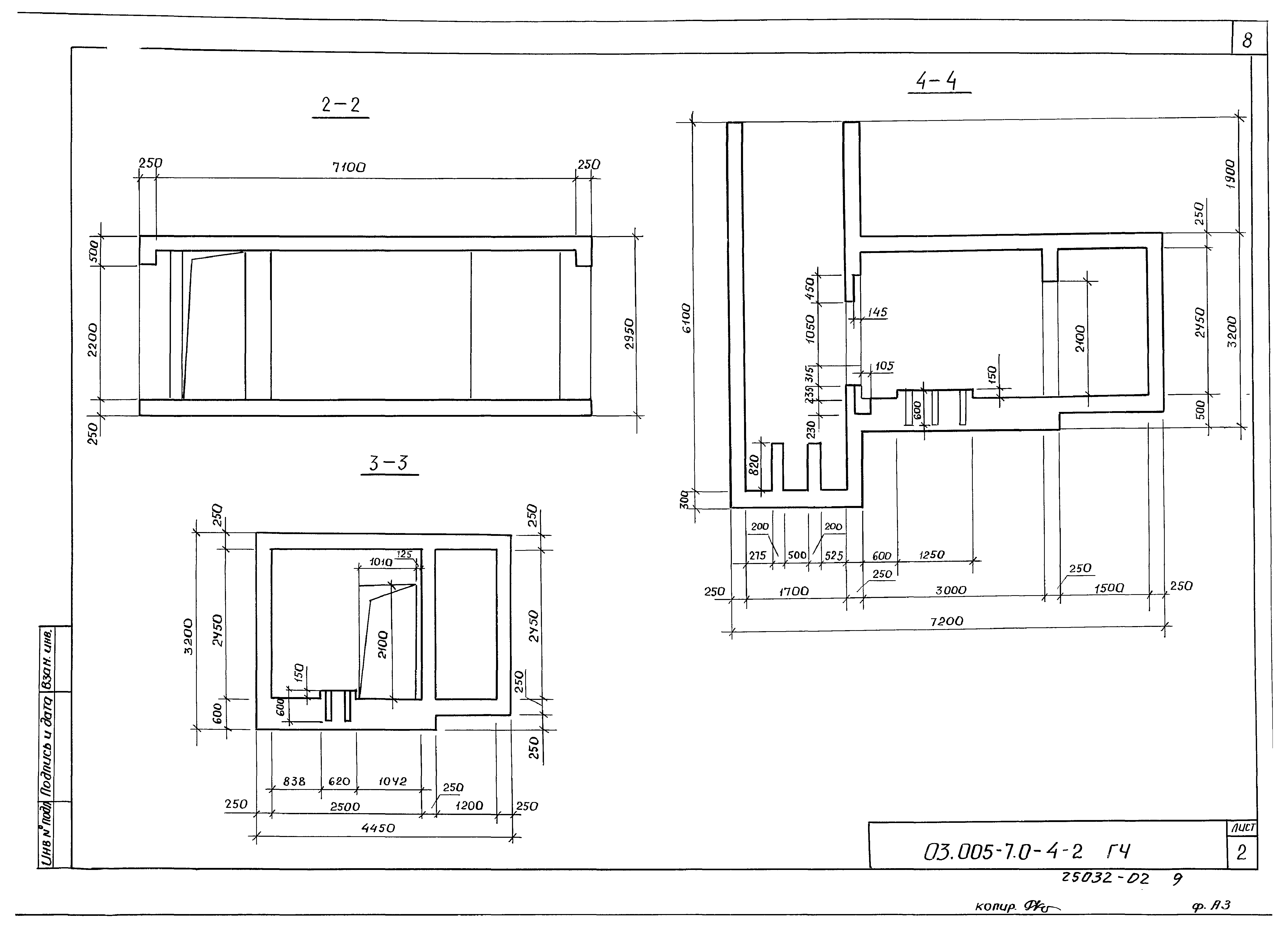
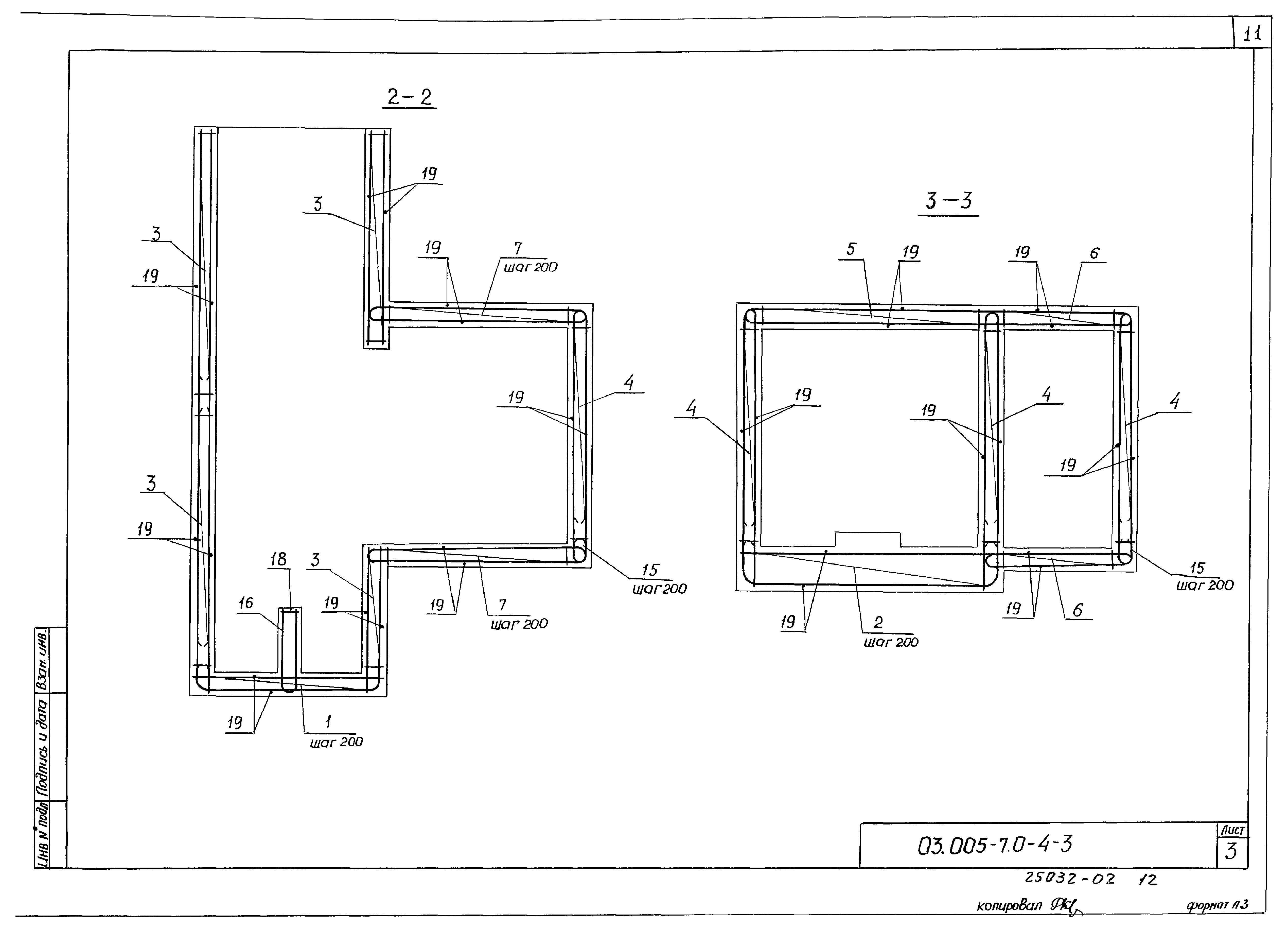
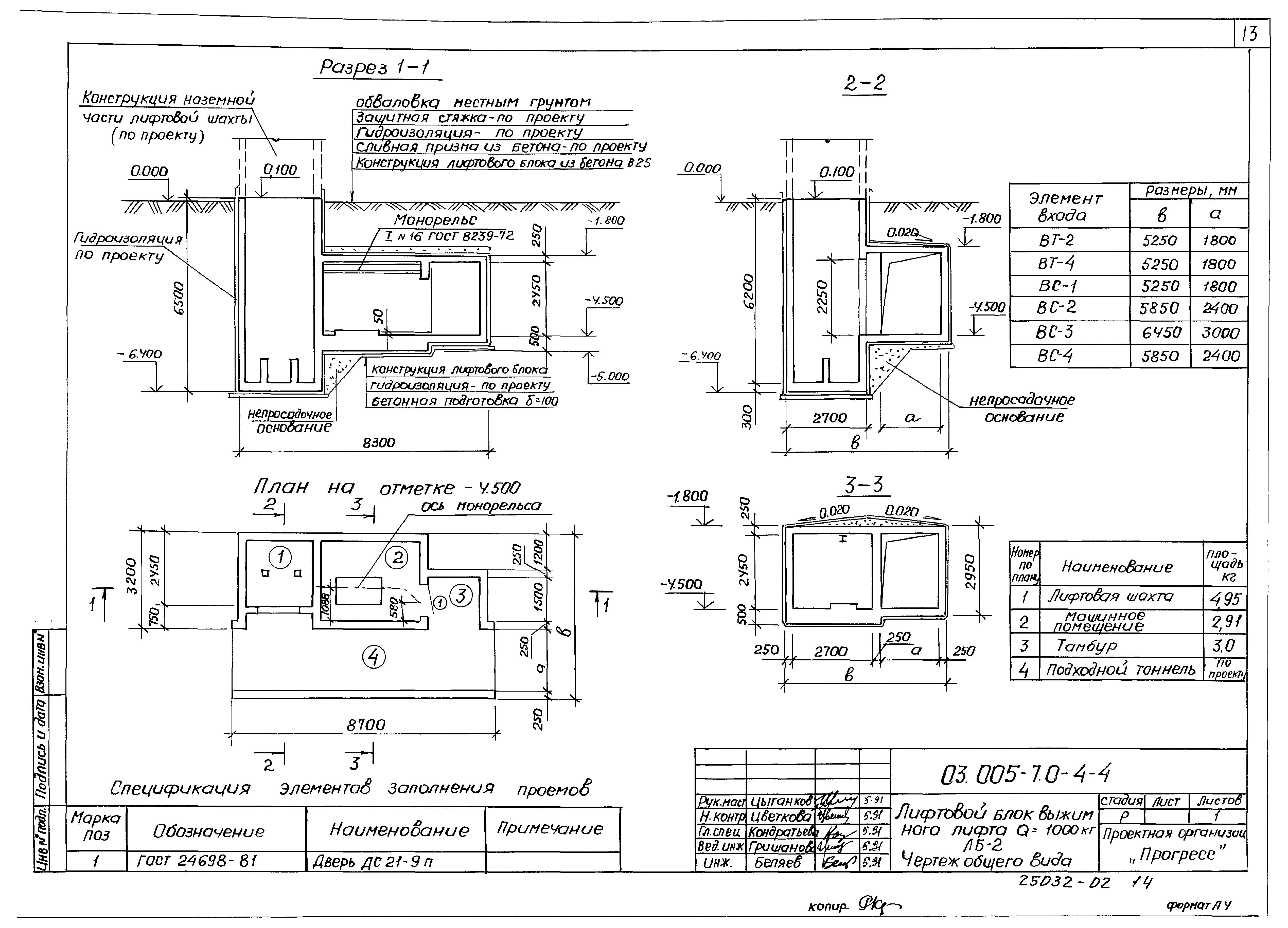
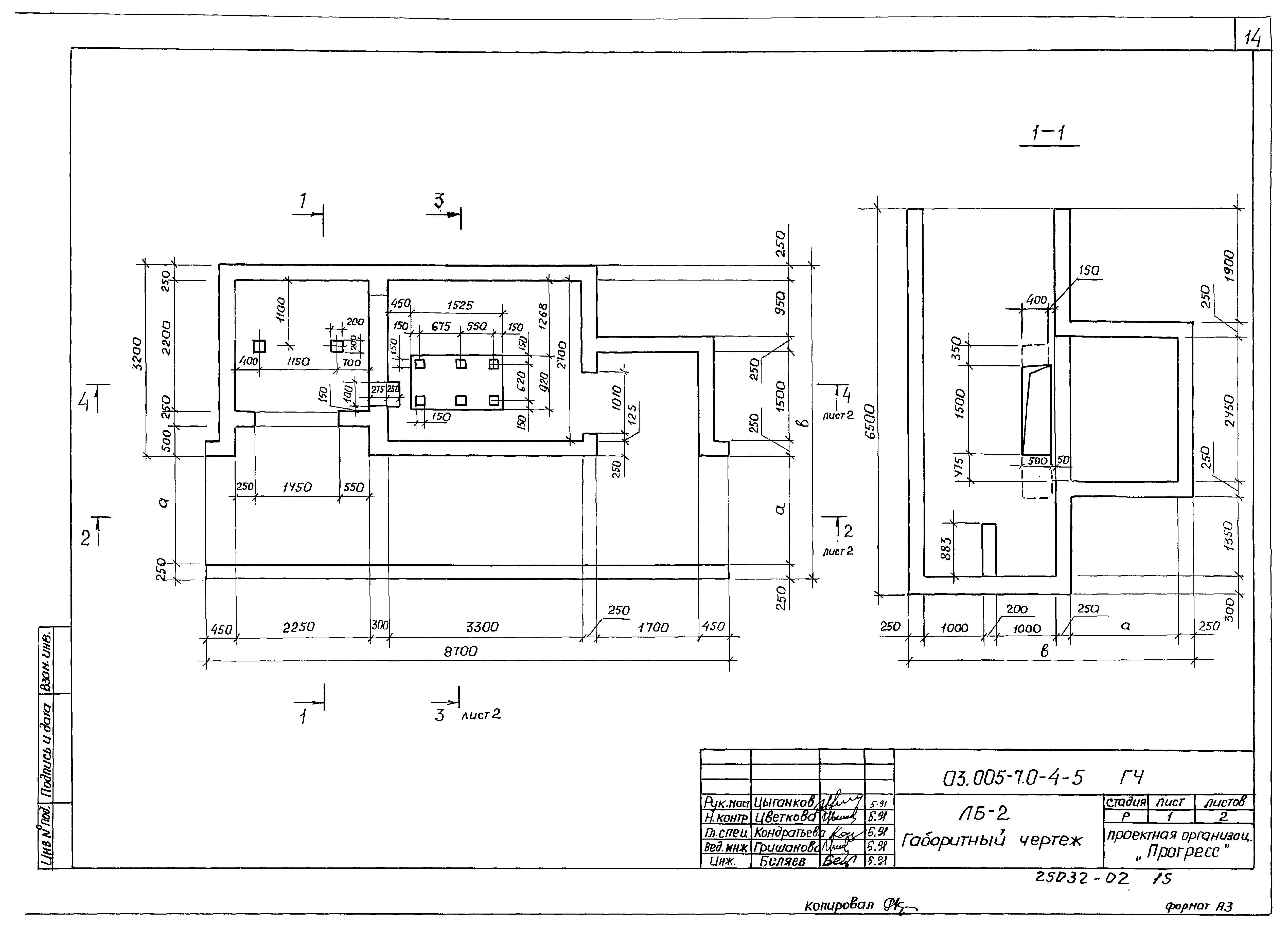
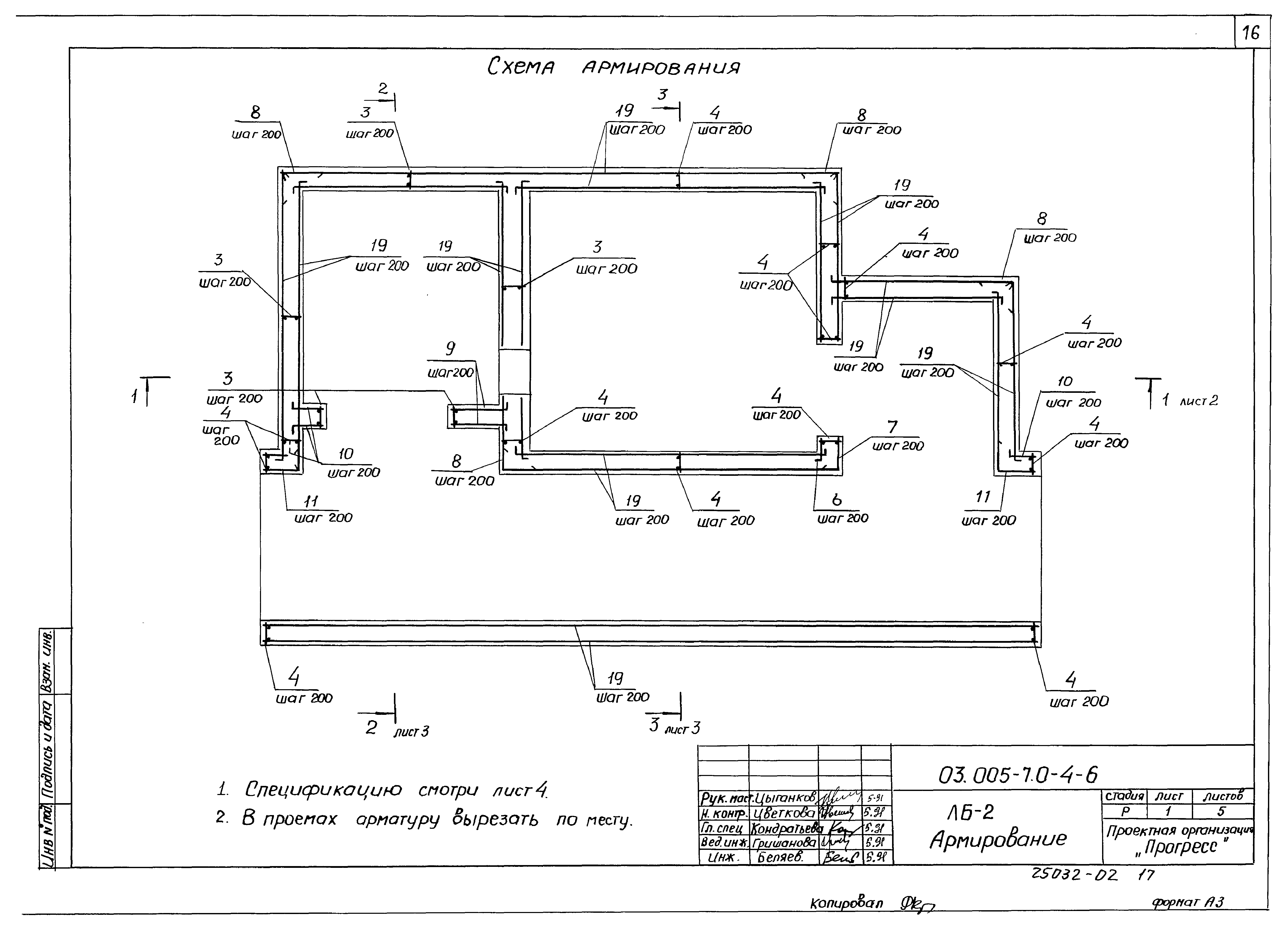
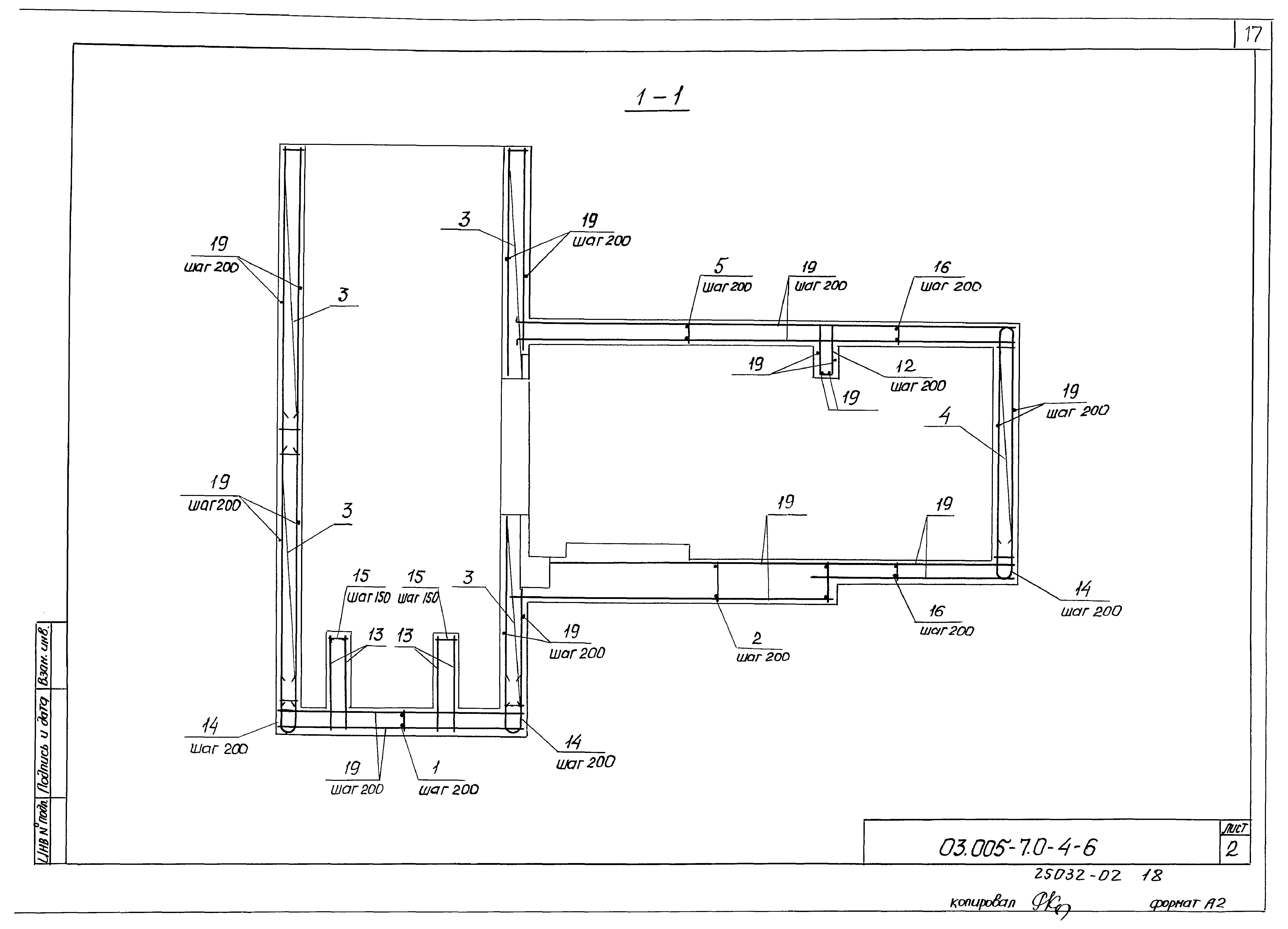
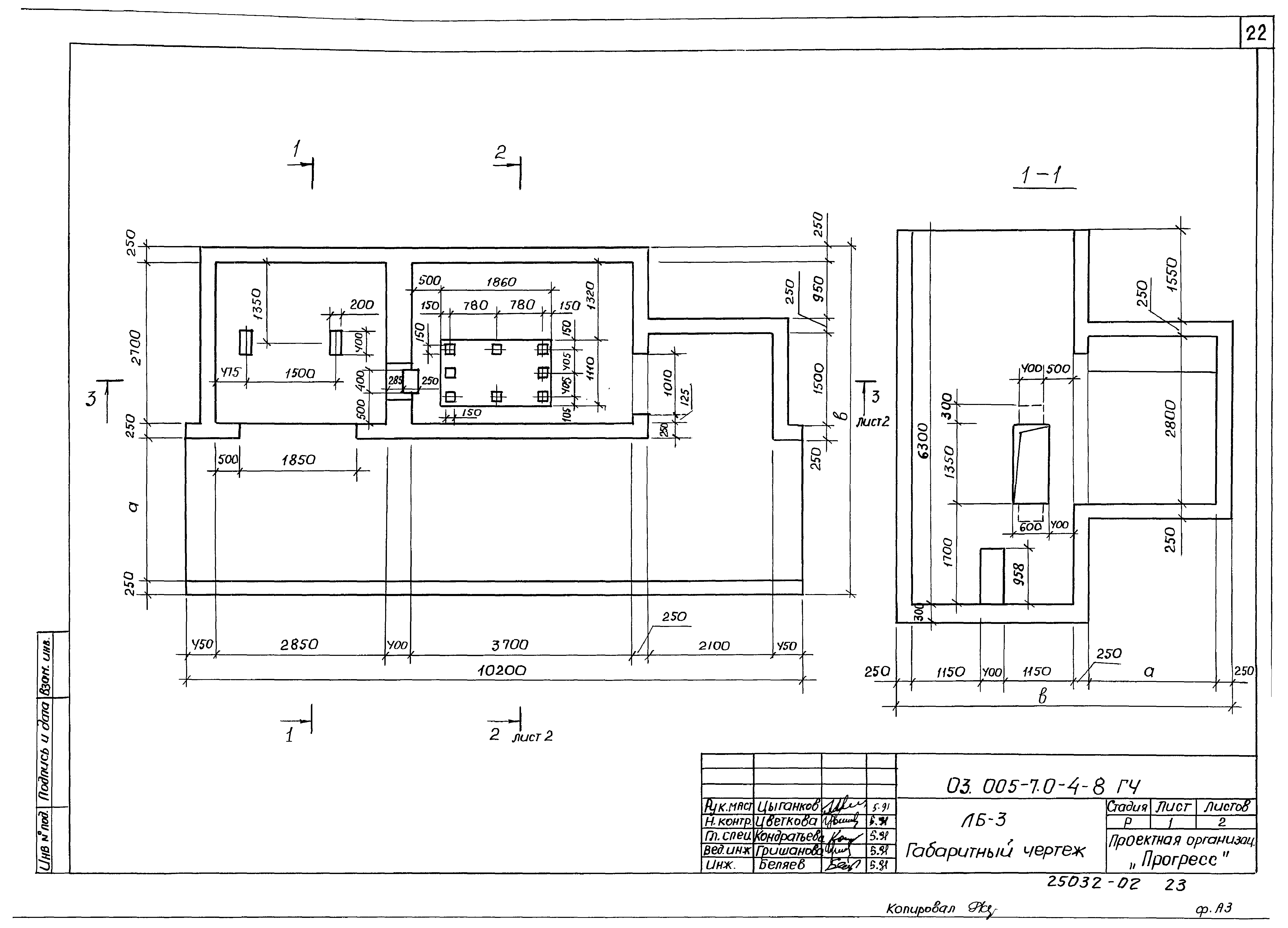
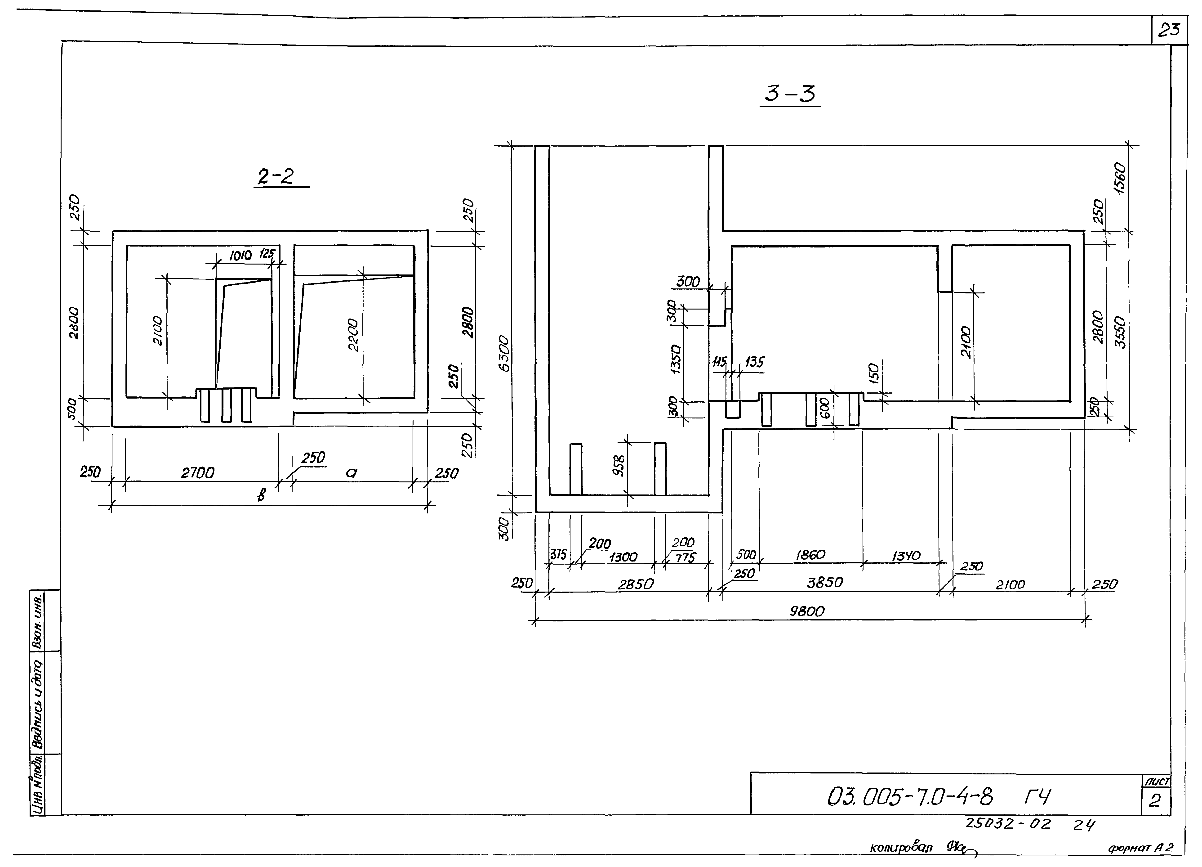
| Оглавление: | 03.005-7.0-4-ПЗ Пояснительная записка 03.005-7.0-4-1 Лифтовой блок выжимного лифта Q = 500 кг. ЛБ-1. Чертеж общего вида 03.005-7.0-4-2ГЧ ЛБ-1. Габаритный чертеж 03.005-7.0-4-3 ЛБ-1. Армирование 03.005-7.0-4-4 Лифтовой блок выжимного лифта Q = 1000 кг. ЛБ-2. Чертеж общего вида 03.005-7.0-4-5ГЧ ЛБ-2. Габаритный чертеж 03.005-7.0-4-6 ЛБ-2. Армирование 03.005-7.0-4-7 Лифтовой блок выжимного лифта Q = 2000 кг. ЛБ-3. Чертеж общего вида 03.005-7.0-4-8ГЧ ЛБ-3. Габаритный чертеж 03.005-7.0-4-9 ЛБ-3. Армирование |
| Разработан: | ПКО Прогресс Агропромстроя РСФСР |
| Утверждён: | 12.03.1991 Управление НГО СССР (48) |




























