Скачать Типовой проект 903-1-153 Альбом II.82. Чертежи индустриальных строительных конструкций и изделий котельнойДата актуализации: 01.01.2021
|
| Обозначение: | Типовой проект 903-1-153 |
| Обозначение англ: | 903-1-153 |
| Статус: | заменен |
| Название рус.: | Альбом II.82. Чертежи индустриальных строительных конструкций и изделий котельной |
| Дата добавления в базу: | 01.09.2013 |
| Дата актуализации: | 01.01.2021 |
| Дата введения: | 13.08.1982 |
| Дата окончания срока действия: | 01.01.1990 |
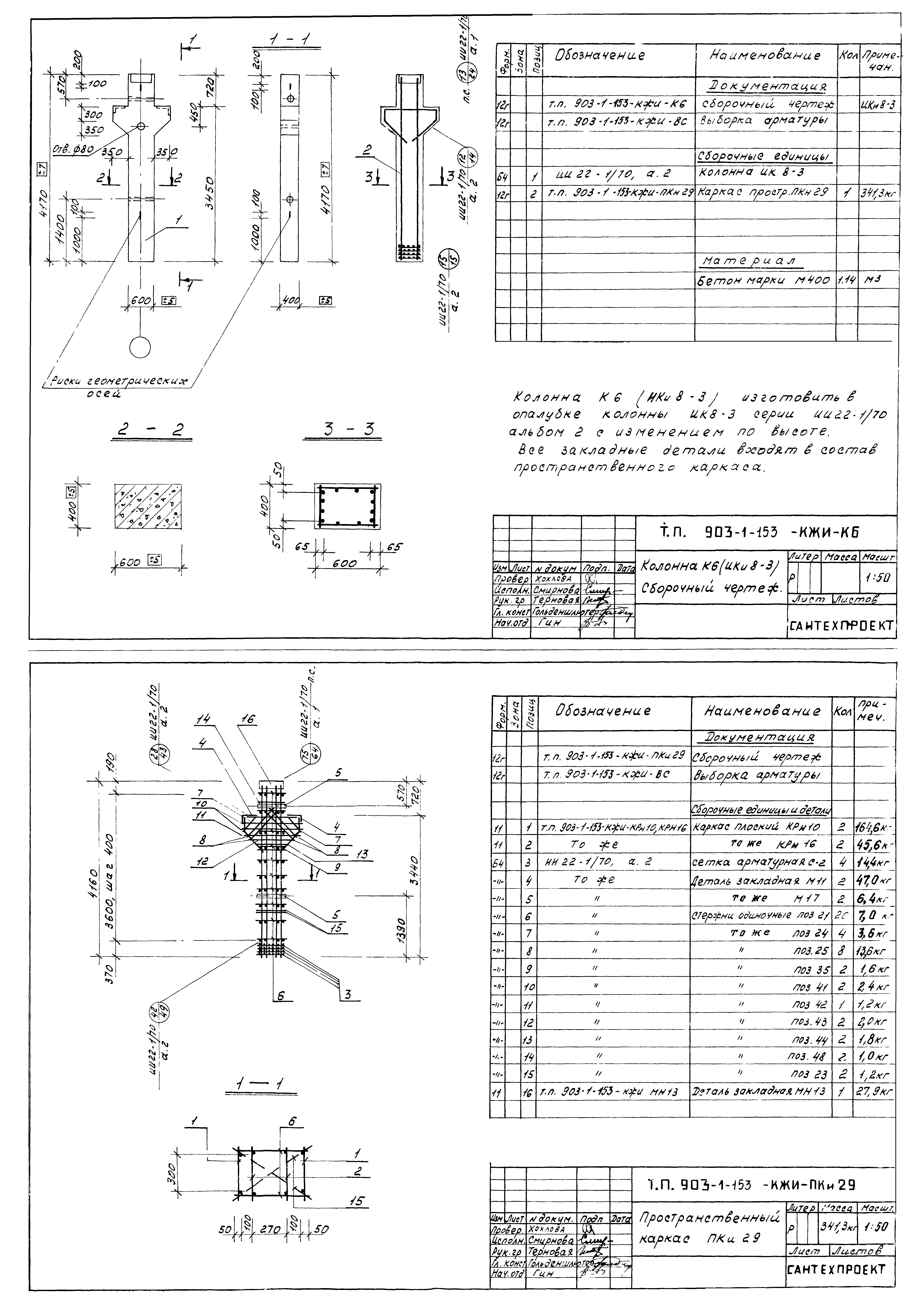
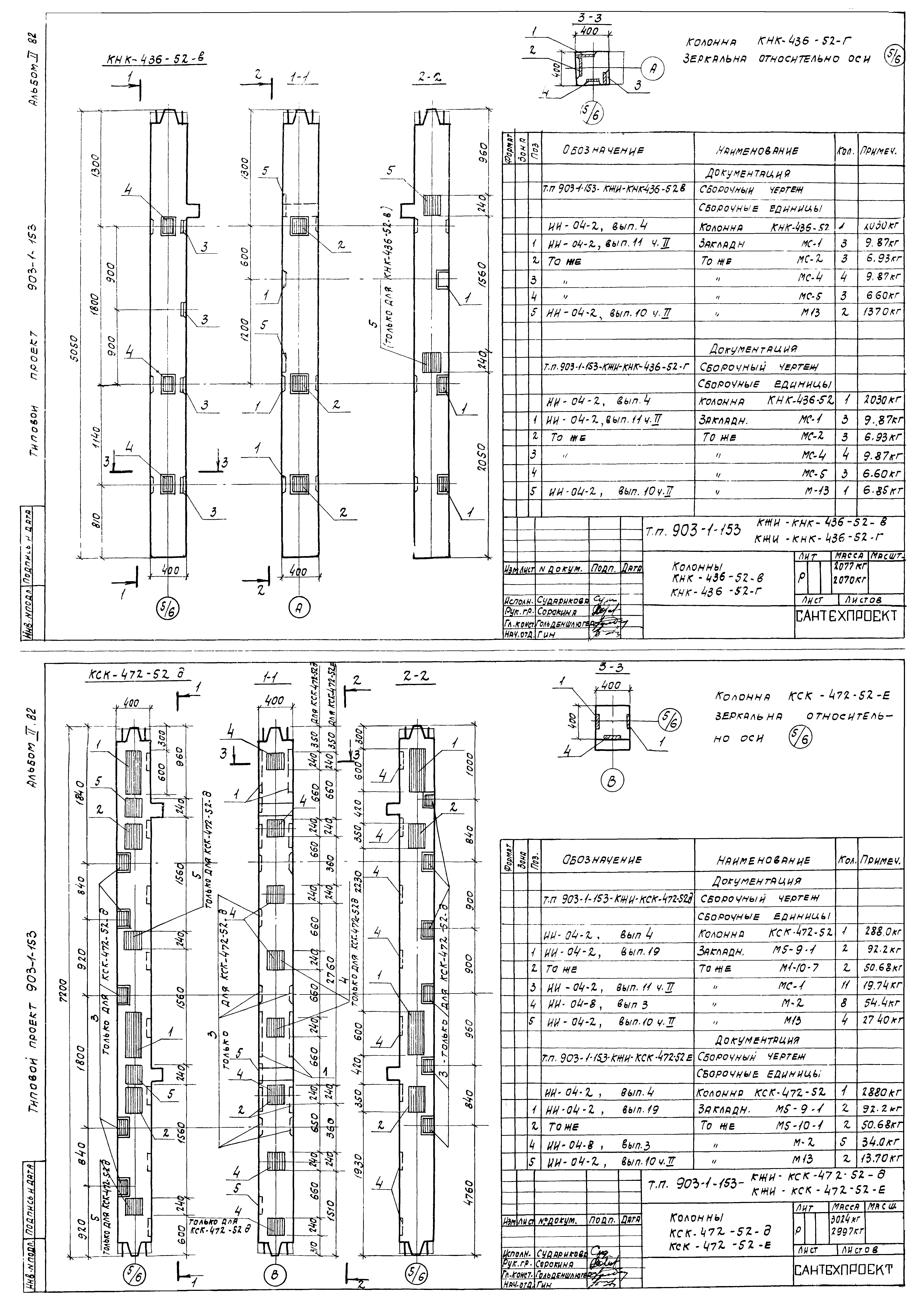
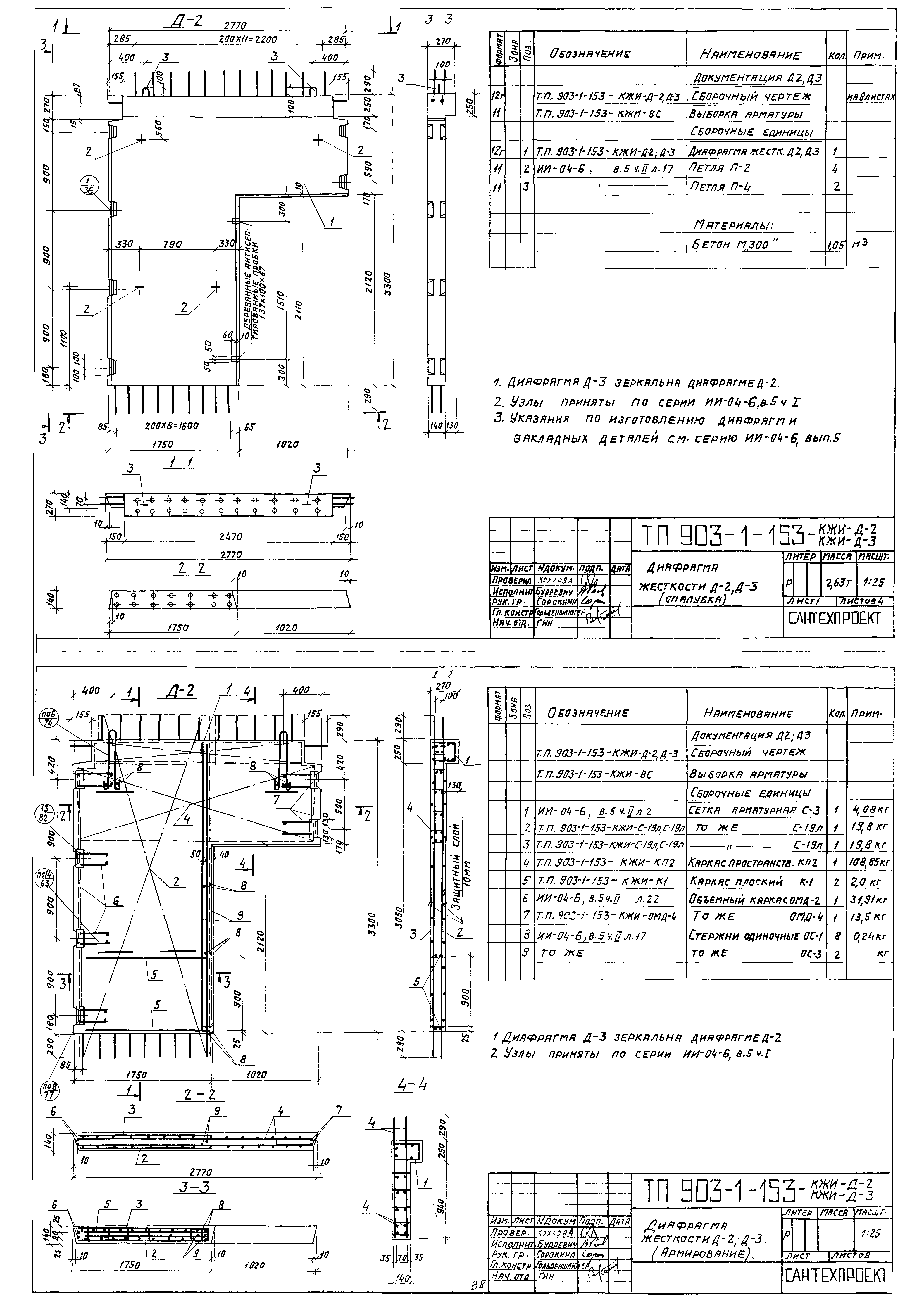
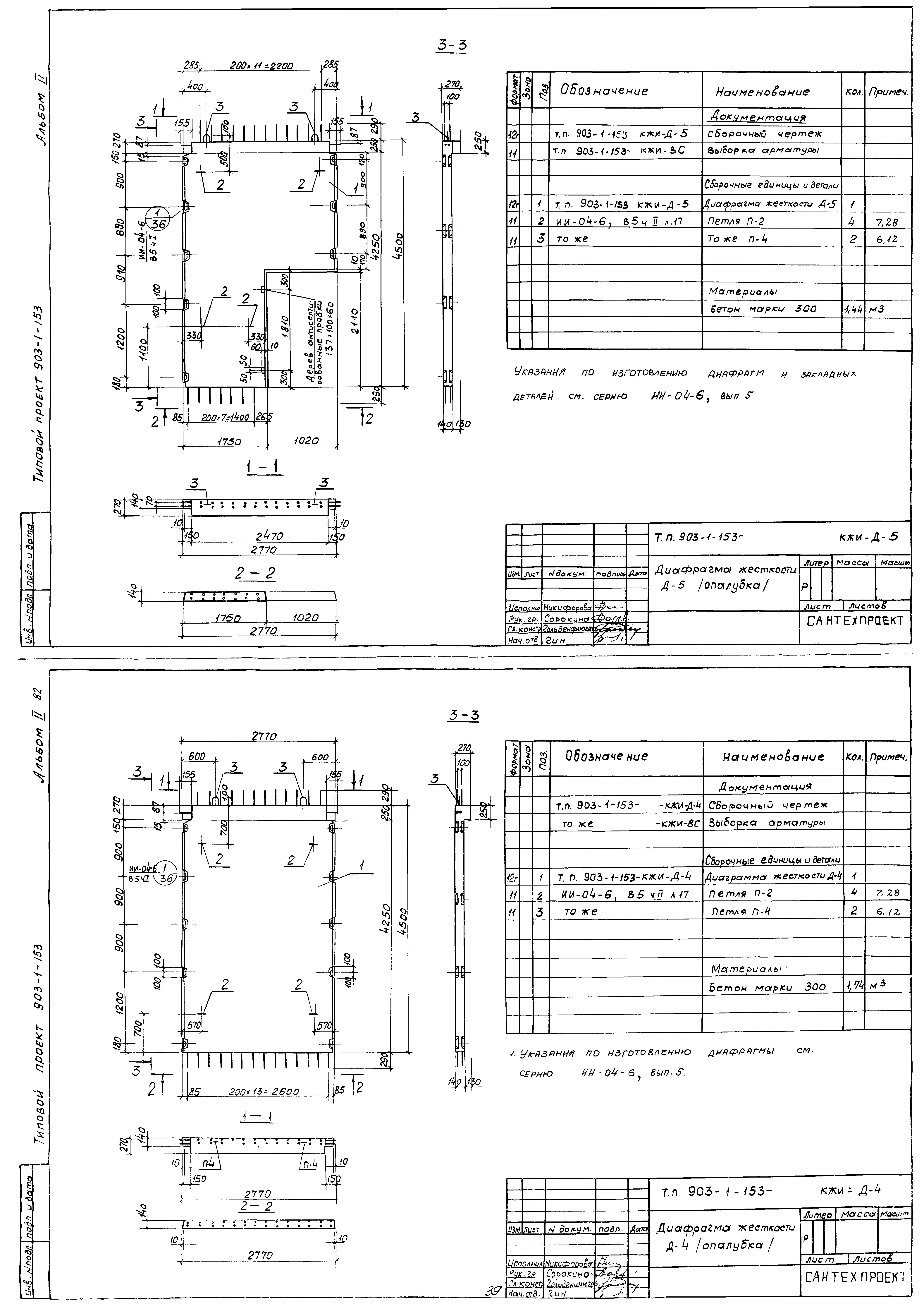
| Оглавление: | ТП 903-1-153 Титульный лист ТП 903-1-153 Содержание альбома (начало) ТП 903-1-153 Содержание альбома (окончание) ТП 903-1-153-КЖИ-ВС1 Выборка стали ТП 903-1-153-КЖИ-К1 Колонна К72-5а(К72-7а) ТП 903-1-153-КЖИ-К1а Колонна К72-5б(К72-7б) ТП 903-1-153-КЖИ-К1б Колонна К72-5в(К72-7в) ТП 903-1-153-КЖИ-К2 Колонна ИК7-1-2а ТП 903-1-153-КЖИ-К3,К3а Колонна ИК7-3-2а;ИК7-3-2б ТП 903-1-153-КЖИ-К4 Колонна ИК и 8-1-1 ТП 903-1-153-КЖИ-ПК и 19 Каркас пространственный ПК и 19 ТП 903-1-153-КЖИ-К5 Колонна ИК и 8-4-1 ТП 903-1-153-КЖИ-ПК и 33 Каркас пространственный ПК и 33 ТП 903-1-153-КЖИ-К6 Колонна ИК и 8-3 ТП 903-1-153-КЖИ-ПК и 29 Каркас пространственный ПК и 29 ТП 903-1-153-КЖИ-К7,К8 Колонна ИК8-1-1а;ИК8-4-1а ТП 903-1-153-КЖИ-К9 Колонна ИК8-3а ТП 903-1-153-КЖИ-К10,К11 Колонна ИК7-1-2б;ИК7-3-2в ТП 903-1-153-КЖИ-К11а Колонна ИК7-3-2г ТП 903-1-153-КЖИ-К12 Колонна ИК и 35-2-3 ТП 903-1-153-КЖИ-ПК и 51-3 Каркас пространственный ПК и 51-3 ТП 903-1-153-КЖИ-К12а,К13 Колонна ИК и 35-2-3а,ИК и 35-2-1 ТП 903-1-153-КЖИ-ПК и 51-3а Каркас пространственный ПК и 51-3а ТП 903-1-153-КЖИ-ПК и 51-1 Каркас пространственный ПК и 51-1 ТП 903-1-153-КЖИ-К14 Колонна ИК и 20-3-1 ТП 903-1-153-КЖИ-К15 Колонна ИК и 20-3 ТП 903-1-153-КЖИ-ПК и 35-1 Каркас пространственный ПК и 35-1 ТП 903-1-153-КЖИ-ПК и 35 Каркас пространственный ПК и 35 ТП 903-1-153-КЖИ-К16 Колонна ИК35-1-1а(ИК35-2-1а) ТП 903-1-153-КЖИ-К17 Колонна ИК35-1-3а(ИК35-2-3а) ТП 903-1-153-КЖИ-К17а Колонна ИК35-1-3б(ИК35-2-3б) ТП 903-1-153-КЖИ-К18,К18а Колонна ИК5-1-2а,ИК5-1-2б ТП 903-1-153-КЖИ-К18б,К18в Колонна ИК5-1-2в,ИК5-1-2г ТП 903-1-153-КЖИ-КНК-333-14-1-а Колонна КНК-333-14-1-а ТП 903-1-153-КЖИ-КНК-333-14-1у-б Колонна КНК-333-14-1у-б ТП 903-1-153-КЖИ-КСР-333-14а Колонна КСР-333-14а ТП 903-1-153-КЖИ-КНР-333-14а Колонна КНР-333-14а ТП 903-1-153-КЖИ-КНР-333-14-1а Колонна КНР-333-14-1а ТП 903-1-153-КЖИ-КВР-333-14-1а Колонна КВР-333-14-1а ТП 903-1-153-КЖИ-КСР-333-14б Колонна КСР-333-14б ТП 903-1-153-КЖИ-КНР-333-14б Колонна КНР-333-14б ТП 903-1-153-КЖИ-КСР-333-14-1а Колонна КСР-333-14-1а ТП 903-1-153-КЖИ-КВК-333-14-1а Колонна КВК-333-14-1а ТП 903-1-153-КЖИ-КСК-333-14-1а Колонна КСК-333-14-1а ТП 903-1-153-КЖИ-КСК-333-14-1у-б Колонна КСК-333-14-1у-б ТП 903-1-153-КЖИ-КВР-333-14-а Колонна КВР-333-14-а ТП 903-1-153-КЖИ-КВР-333-14-б Колонна КВР-333-14-б ТП 903-1-153-КЖИ-МСИ-3 Связь металлическая МСИ-3 ТП 903-1-153-КЖИ-СВ-1 Связь вертикальная СВ-1 ТП 903-1-153-КЖИ-СВ-2 Связь вертикальная СВ-2 ТП 903-1-153-КЖИ-СВ-3 Связь вертикальная СВ-3 ТП 903-1-153-КЖИ-СВ-4 Связь вертикальная СВ-4 ТП 903-1-153-КЖИ-СВ-5 Связь вертикальная СВ-5 ТП 903-1-153-КЖИ-СВ-6 Связь вертикальная СВ-6 ТП 903-1-153-КЖИ-Р40-27а Ригель Р40-27а ТП 903-1-153-КЖИ-Р2-72-27а Ригель Р2-72-27а ТП 903-1-153-КЖИ-АС-1 Анкер АС-1 ТП 903-1-153-КЖИ-КНК-436-52-б Колонна КНК-436-52-б ТП 903-1-153-КЖИ-КНК-436-52-а Колонна КНК-436-52-а ТП 903-1-153-КЖИ-КНК-436-52-в,КНК-436-52-г Колонна КНК-436-52-в,КНК-436-52-г ТП 903-1-153-КЖИ-КСК-472-52д,КСК-472-52е Колонна КСК-472-52д,КСК-472-52е ТП 903-1-153-КЖИ-КНК-436-52д Колонна КНК-436-52д ТП 903-1-153-КЖИ-КСК-436-52-1у-б,КСК-436-52-1у-в Колонна КСК-436-52-1у-б,КСК-436-52-1у-в ТП 903-1-153-КЖИ-КНК-436-52е Колонна КНК-436-52е ТП 903-1-153-КЖИ-КСК-436-52-1а,КСК-436-52-1б Колонна КСК-436-52-1а,КСК-436-52-1б ТП 903-1-153-КЖИ-КСК-472-52а,КСК-472-52б Колонна КСК-472-52а,КСК-472-52б ТП 903-1-153-КЖИ-КСК-472-52в,КСК-472-52г Колонна КСК-472-52в,КСК-472-52г ТП 903-1-153-КЖИ-К-1-а,К-1-б Колонна К-1-а,К-1-б ТП 903-1-153-КЖИ-К-1-в,К-1-г Колонна К-1-в,К-1-г ТП 903-1-153-КЖИ-К-1-д,К-1-е Колонна К-1-д,К-1-е ТП 903-1-153-КЖИ-КВК-424-24а,КВК-424-24б Колонна КВК-424-24а,КВК-424-24б ТП 903-1-153-КЖИ-К-1 Колонна К-1 (армирование) ТП 903-1-153-КЖИ-КП-1 Каркас пространственный КП-1 ТП 903-1-153-КЖИ-Б1 Балка 2БДР-18-2АIVа,2БДР-18-3АIVа ТП 903-1-153-КЖИ-Б2 Балка 2БДР-18-3АIVа,3БДР-18-4АIVа ТП 903-1-153-КЖИ-52а Балка 2БДР-18-3АIVб,3БДР-18-4АIVб ТП 903-1-153-КЖИ-Б2б Балка 2БДР-18-3АIVв,3БДР-18-4АIVв ТП 903-1-153-КЖИ-Д2,Д3 Диафрагма жесткости (опалубка) Д2,Д3 ТП 903-1-153-КЖИ-Д2,Д3 Диафрагма жесткости (армирование) Д2,Д3 ТП 903-1-153-КЖИ-Д5 (опалубка) Диафрагма жесткости (опалубка) Д5 ТП 903-1-153-КЖИ-Д4 (опалубка) Диафрагма жесткости (опалубка) Д4 ТП 903-1-153-КЖИ-Д5 (армирование) Диафрагма жесткости (армирование) Д5 ТП 903-1-153-КЖИ-Д4 (армирование) Диафрагма жесткости (армирование) Д4 ТП 903-1-153-КЖИ-ЛМ-58-14-18а Лестничный марш ЛМ-58-14-18а ТП 903-1-153-КЖИ-ЛМ-58-14-17а Лестничный марш ЛМ-58-14-17а ТП 903-1-153-КЖИ-МН30 Изделие закладное МН30 ТП 903-1-153-КЖИ-КР11 Каркас плоский КР11 ТП 903-1-153-КЖИ-МН31 Изделие закладное МН31 ТП 903-1-153-КЖИ-МИИ-1;МИИ-2 Изделие закладное МИИ-1;МИИ-2 ТП 903-1-153-КЖИ-КР19,КР20 Каркасы плоские КР19,КР20 ТП 903-1-153-КЖИ-С34 Сетка арматурная С34 ТП 903-1-153-КЖИ-МСИ1 Связь металлическая МСИ1 ТП 903-1-153-КЖИ-МСИ2 Связь металлическая МСИ2 ТП 903-1-153-КЖИ-БЛи33,БЛи51 Угловой блок БЛи33,БЛи51 ТП 903-1-153-КЖИ-БЛи36,БЛи54 Угловой блок БЛи36,БЛи54 ТП 903-1-153-КЖИ-БЛи34,БЛи52 Угловой блок БЛи34,БЛи52 ТП 903-1-153-КЖИ-ПАIV/3х6-3в;ПАIV/3х6-4в Плита ПАIV/3х6-3в;ПАIV/3х6-4в ТП 903-1-153-КЖИ-ПАIV/3х6-3а;ПАIV/3х6-4а Плита ПАIV/3х6-3а;ПАIV/3х6-4а ТП 903-1-153-КЖИ-ПАIV/3х6-5а;ПАIV/3х6-6а Плита ПАIV/3х6-5а;ПАIV/3х6-6а ТП 903-1-153-КЖИ-ПАIV-4/3х6-5а;ПАIV-4/3х6-6а Плита ПАIV-4/3х6-5а;ПАIV-4/3х6-6а ТП 903-1-153-КЖИ-ПАIV/3х6-5в;ПАIV/3х6-6в Плита ПАIV/3х6-5в;ПАIV/3х6-6в ТП 903-1-153-КЖИ-ПАIV-7/3х6-5в;ПАIV-7/3х6-6в Плита ПАIV-7/3х6-5в;ПАIV-7/3х6-6в ТП 903-1-153-КЖИ-ПАIV/3х6-3б;ПАIV/3х6-4б;ПАIV/3х6-5б;ПАIV/3х6-6б Плита ПАIV/3х6-3б;ПАIV/3х6-4б;ПАIV/3х6-5б;ПАIV/3х6-6б ТП 903-1-153-КЖИ-ПР8-58-15С-1;ПР8-58-15С-5 Плита ПР8-58-15С-1;ПР8-58-15С-5 ТП 903-1-153-КЖИ-ПР8-58-15С-2 Плита ПР8-58-15С-2 ТП 903-1-153-КЖИ-ПР8-58-15С-4 Плита ПР8-58-15С-4 ТП 903-1-153-КЖИ-ПР8-58-15С-3 Плита ПР8-58-15С-3 ТП 903-1-153-КЖИ-КР1,КР1-1 Каркас плоский КР1,КР1-1 ТП 903-1-153-КЖИ-КР2,КР2-2 Каркас плоский КР2,КР2-2 ТП 903-1-153-КЖИ-КР3,КР4 Каркас плоский КР3,КР4 ТП 903-1-153-КЖИ-КР5,КР6 Каркас плоский КР5,КР6 ТП 903-1-153-КЖИ-КР7,КР8 Каркас плоский КР7,КР8 ТП 903-1-153-КЖИ-КР9 Каркас плоский КР9 ТП 903-1-153-КЖИ-КР10 Каркас плоский КР10 ТП 903-1-153-КЖИ-С18 Сетка арматурная С18 ТП 903-1-153-КЖИ-КР12 Каркас плоский КР12 ТП 903-1-153-КЖИ-КР13,КР14 Каркас плоский КР13,КР14 ТП 903-1-153-КЖИ-КР15,КР16 Каркас плоский КР15,КР16 ТП 903-1-153-КЖИ-КР17,КР18 Каркас плоский КР17,КР18 ТП 903-1-153-КЖИ-К7 Каркас плоский К7 ТП 903-1-153-КЖИ-К1 Каркас плоский К1 ТП 903-1-153-КЖИ-К2 Каркас плоский К2 ТП 903-1-153-КЖИ-С19,С23 Сетка арматурная С19,С23 ТП 903-1-153-КЖИ-К3,ОС12 Каркас плоский К3. Одиночный стержень ОС12 ТП 903-1-153-КЖИ-К4,ОС11 Каркас плоский К4. Одиночный стержень ОС11 ТП 903-1-153-КЖИ-К5,ОС10 Каркас плоский К5. Одиночный стержень ОС10 ТП 903-1-153-КЖИ-К6 Каркас плоский К6 ТП 903-1-153-КЖИ-КР и 8;КР и 15 Каркас плоский КР и 8;КР и 15 ТП 903-1-153-КЖИ-МН13 Деталь закладная МН13 ТП 903-1-153-КЖИ-КР и 10;КР и 16 Каркас плоский КР и 10;КР и 16 ТП 903-1-153-КЖИ-КР и 17;КР и 18 Каркас плоский КР и 17;КР и 18 ТП 903-1-153-КЖИ-КР и 37 Каркас плоский КР и 37 ТП 903-1-153-КЖИ-КР и 59 Каркас плоский КР и 59 ТП 903-1-153-КЖИ-МН14;МН15 Деталь закладная МН14;МН15 ТП 903-1-153-КЖИ-поз. 3,5,9 Пластина поз. 3. Анкер поз. 5,9 ТП 903-1-153-КЖИ-СФ-10а,СФ-10б Стойка фахверка СФ-10а,СФ-10б ТП 903-1-153-КЖИ-Щ1,Щ2 Щит стальной Щ1,Щ2 ТП 903-1-153-КЖИ-МН16 Деталь закладная МН16 ТП 903-1-153-КЖИ-МС1 Изделие соединительное МС1 ТП 903-1-153-КЖИ-МС2 Изделие соединительное МС2 ТП 903-1-153-КЖИ-МС3 Изделие соединительное МС3 ТП 903-1-153-КЖИ-МС4 Изделие соединительное МС4 ТП 903-1-153-КЖИ-С1 Сетка арматурная С1 ТП 903-1-153-КЖИ-С2 Сетка арматурная С2 ТП 903-1-153-КЖИ-С3 Сетка арматурная С3 ТП 903-1-153-КЖИ-С4 Сетка арматурная С4 ТП 903-1-153-КЖИ-С5,С26 Сетка арматурная С5,С26 ТП 903-1-153-КЖИ-С6 Сетка арматурная С6 ТП 903-1-153-КЖИ-С7,С28 Сетка арматурная С7,С28 ТП 903-1-153-КЖИ-С8,С29 Сетка арматурная С8,С29 ТП 903-1-153-КЖИ-С9 Сетка арматурная С9 ТП 903-1-153-КЖИ-С10,С31 Сетка арматурная С10,С31 ТП 903-1-153-КЖИ-С11,С32 Сетка арматурная С11,С32 ТП 903-1-153-КЖИ-С12 Сетка арматурная С12 ТП 903-1-153-КЖИ-С13 Сетка арматурная С13 ТП 903-1-153-КЖИ-С14,С35 Сетка арматурная С14,С35 ТП 903-1-153-КЖИ-С15 Сетка арматурная С15 ТП 903-1-153-КЖИ-С16,С17 Сетка арматурная С16,С17 ТП 903-1-153-КЖИ-С20 Сетка арматурная С20 ТП 903-1-153-КЖИ-С22 Сетка арматурная С22 ТП 903-1-153-КЖИ-С21л,С21п Сетка арматурная С21л,С21п ТП 903-1-153-КЖИ-КП3 Каркас пространственный КП3 ТП 903-1-153-КЖИ-С19л,С19п Сетка арматурная С19л,С19п ТП 903-1-153-КЖИ-КП2 Каркас пространственный КП2 ТП 903-1-153-КЖИ-ОМД-4 Каркас объемный ОМД-4 ТП 903-1-153-КЖИ-ВС Выборка стали ВС ТП 903-1-153-КЖИ-С24 Сетка арматурная С24 ТП 903-1-153-КЖИ-С27 Сетка арматурная С27 ТП 903-1-153-КЖИ-С30 Сетка арматурная С30 ТП 903-1-153-КЖИ-С33 Сетка арматурная С33 ТП 903-1-153-КЖИ-ОМД-5 Каркас объемный ОМД-5 ТП 903-1-153-КЖИ-ОМД-6 Каркас объемный ОМД-6 ТП 903-1-153-КЖИ-МН-3 Изделие закладное МН-3 ТП 903-1-153-КЖИ-МН-4 Изделие закладное МН-4 ТП 903-1-153-КЖИ-МН-5 Изделие закладное МН-5 ТП 903-1-153-КЖИ-МН-6 Изделие закладное МН-6 ТП 903-1-153-КЖИ-МН-8,МН-9 Изделие закладное МН-8,МН-9 ТП 903-1-153-КЖИ-МН-10 Изделие закладное МН-10 ТП 903-1-153-КЖИ-МН-11 Изделие закладное МН-11 ТП 903-1-153-КЖИ-МН-12 Изделие закладное МН-12 ТП 903-1-153-КЖИ-МН-17 Изделие закладное МН-17 ТП 903-1-153-КЖИ-МН-18 Изделие закладное МН-18 ТП 903-1-153-КЖИ-МН-19 Изделие закладное МН-19 ТП 903-1-153-КЖИ-МН-21 Изделие закладное МН-21 ТП 903-1-153-КЖИ-МН-20 Изделие закладное МН-20 ТП 903-1-153-КЖИ-МН-7 Изделие закладное МН-7 ТП 903-1-153-КЖИ-МС5 Изделие соединительное МС5 ТП 903-1-153-КЖИ-МН-22 Изделие закладное МН-22 ТП 903-1-153-КЖИ-МН-23,МН-29 Изделие закладное МН-23,МН-29 ТП 903-1-153-КЖИ-МН-24 Изделие закладное МН-24 ТП 903-1-153-КЖИ-МС-6,МС-7 Изделие соединительное МС-6,МС-7 ТП 903-1-153-КЖИ-МН-25,МН-26 Изделие закладное МН-25,МН-26 ТП 903-1-153-КЖИ-МН-27 Изделие закладное МН-27 ТП 903-1-153-КЖИ-МН-28 Изделие закладное МН-28 ТП 903-1-153-КЖИ-МН-1;МН-2 Анкер МН-1;МН-2 |
| Разработан: | ГПИ Сантехпроект Госстроя СССР Минтяжмаш СССР Союзпроммеханизация |
| Утверждён: | 13.08.1982 ГПИ Сантехпроект (119) |
| Заменяет собой: | |
| Чем заменён: |







































































