Скачать Типовой проект 902-2-330 Альбом X. Электротехническая частьДата актуализации: 01.01.2021
|
| Обозначение: | Типовой проект 902-2-330 |
| Обозначение англ: | 902-2-330 |
| Статус: | не действует |
| Название рус.: | Альбом X. Электротехническая часть |
| Дата добавления в базу: | 01.09.2013 |
| Дата актуализации: | 01.01.2021 |
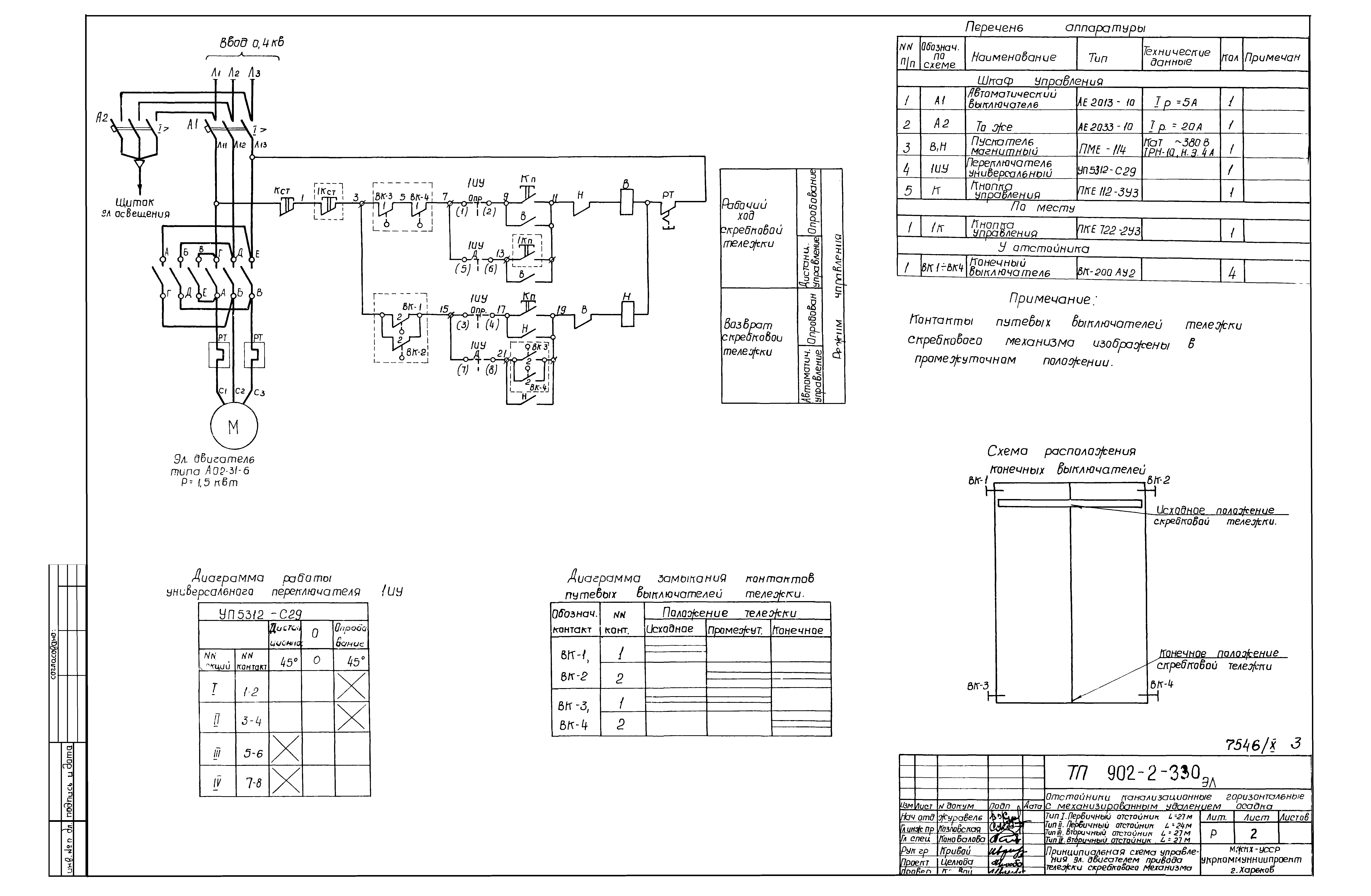
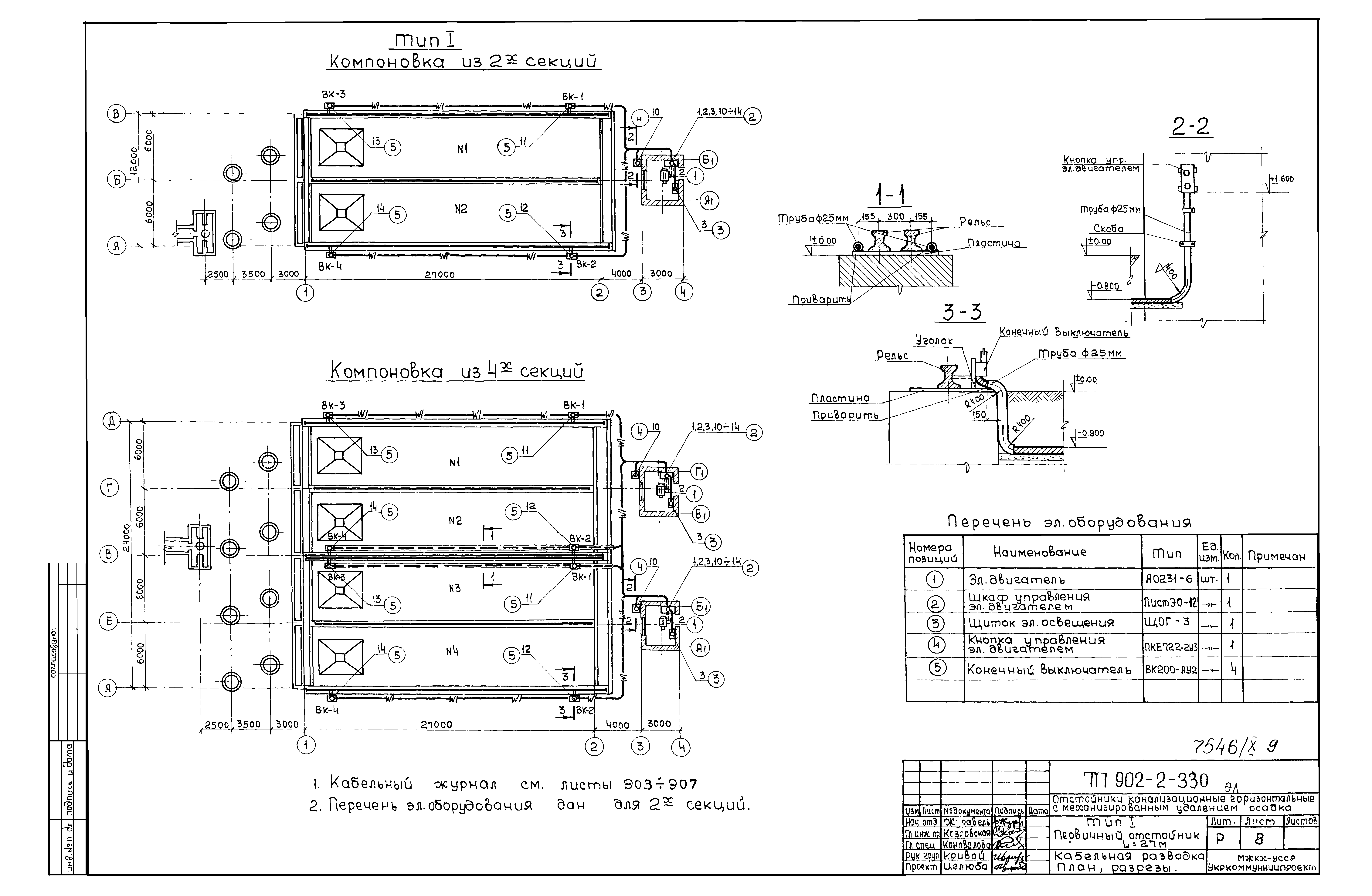
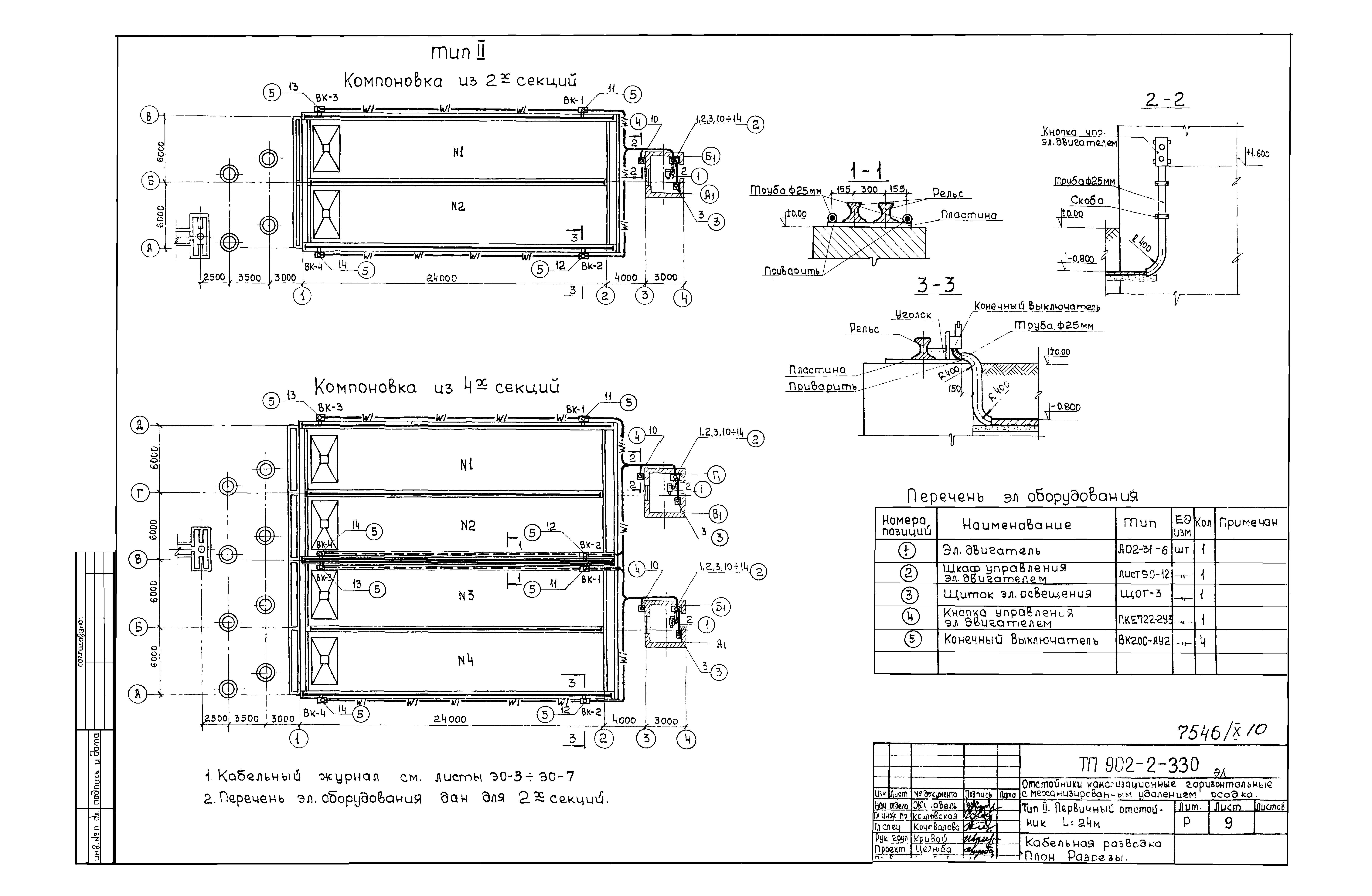
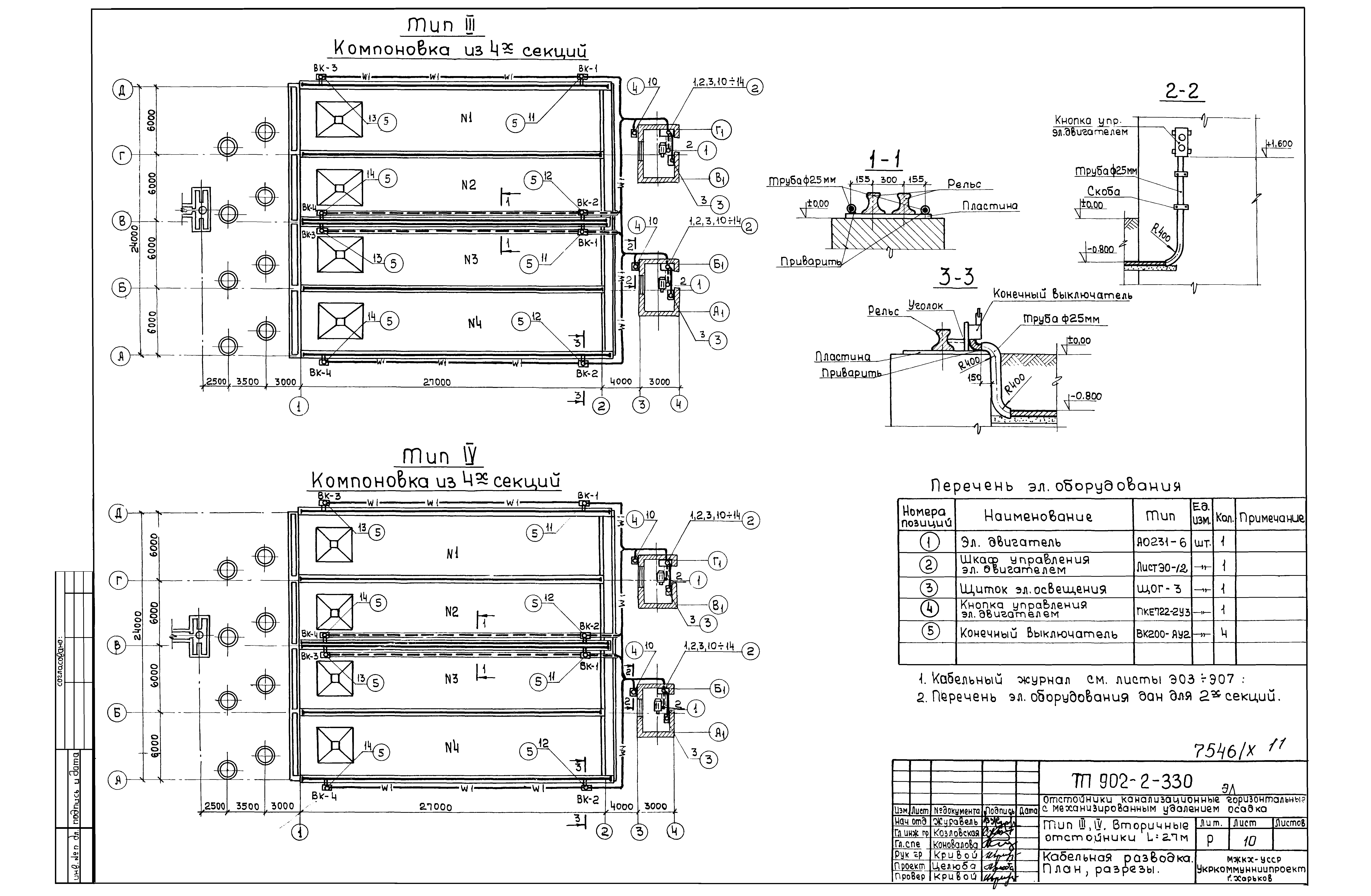
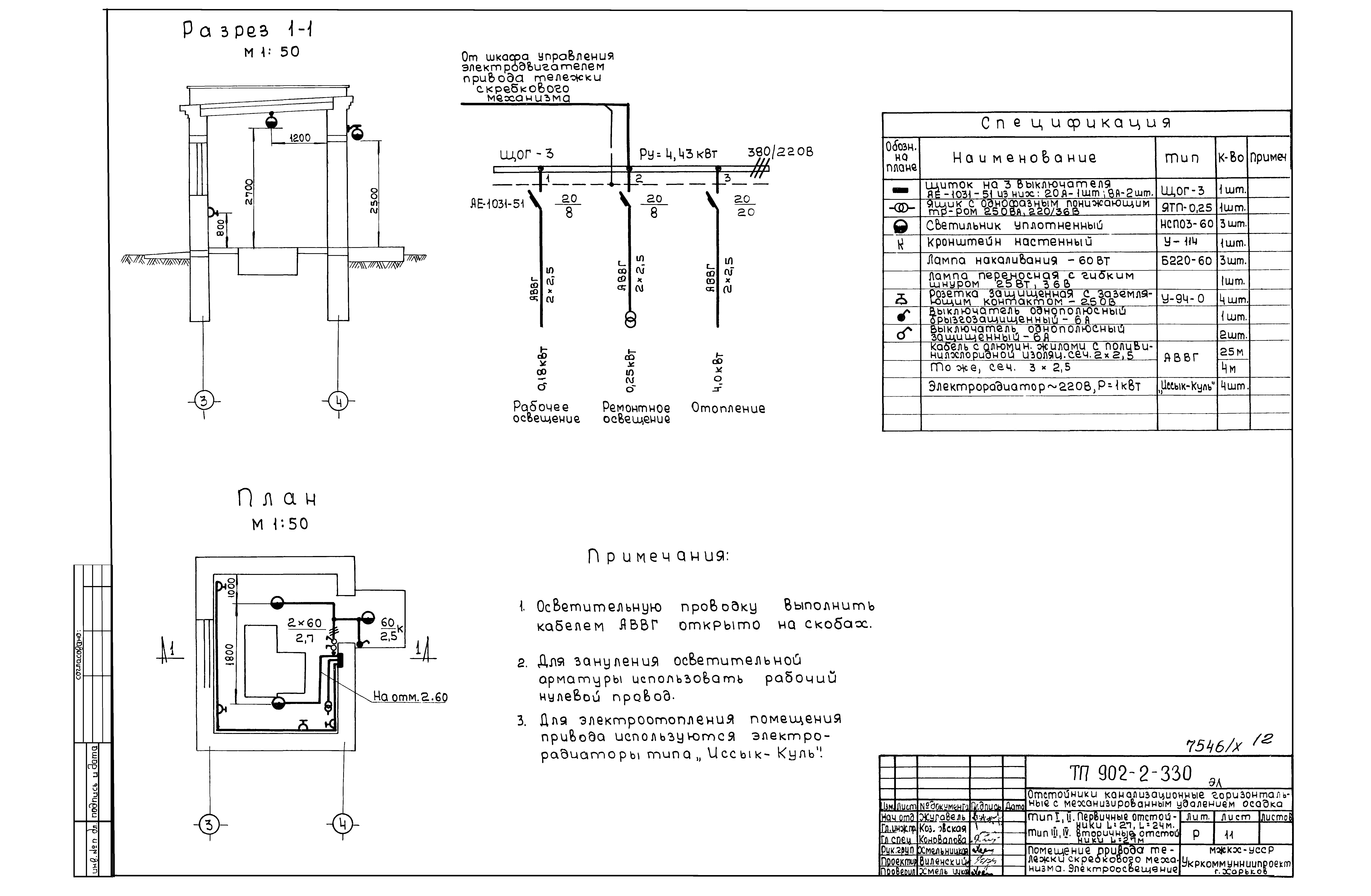
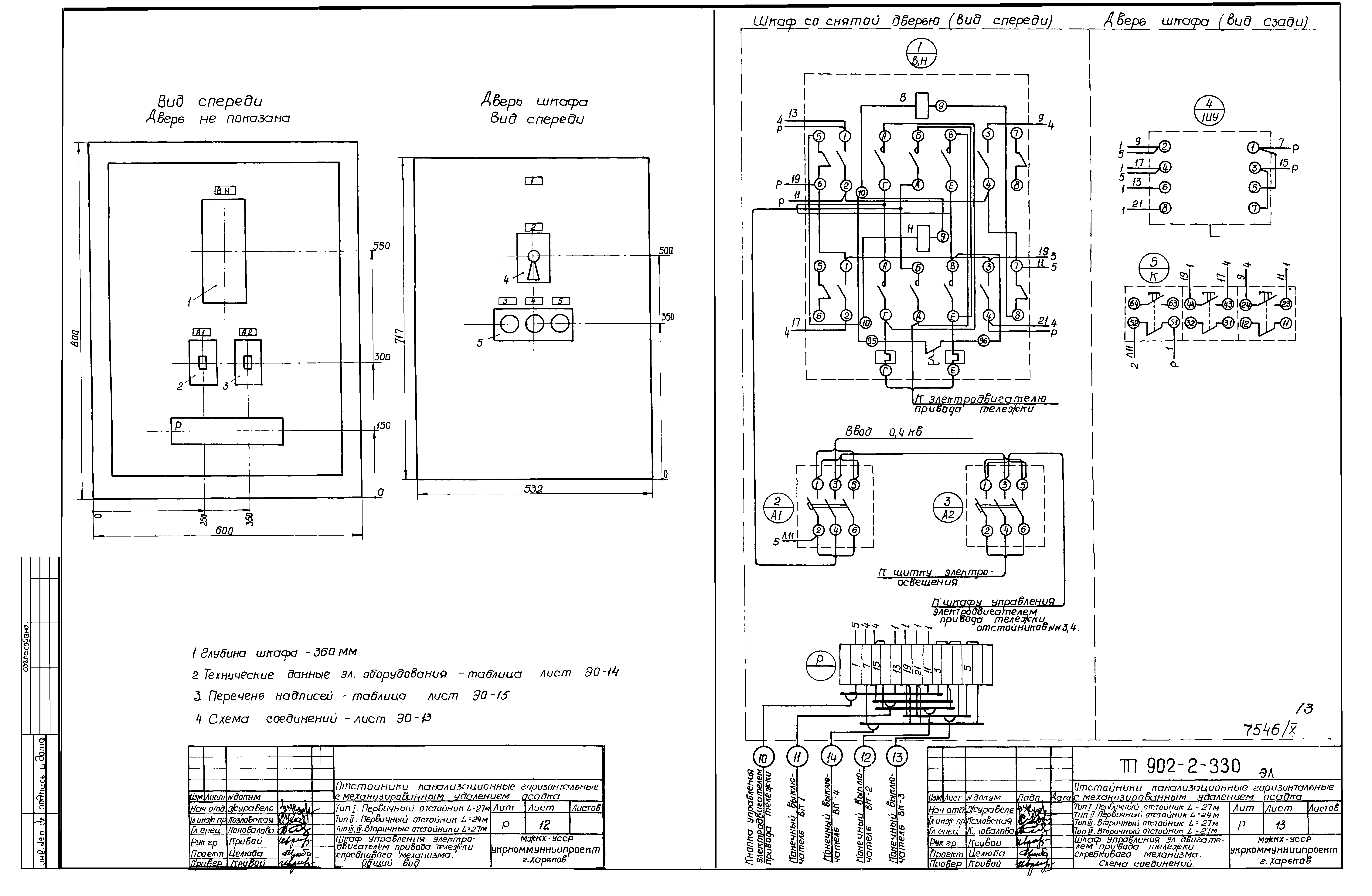
| Оглавление: | ТП 902-2-330-ЭЛ-1 Типы 1-4. Общие данные ТП 902-2-330-ЭЛ-2 Тип 1. Первичный отстойник L=27м. Тип 2. Первичный отстойник L=24м. Тип 3. Вторичный отстойник L=27м. Тип 4. Вторичный отстойник L=27м. Принципиальная схема управления электродвигателем привода тележки скребкового механизма ТП 902-2-330-ЭЛ-3 Тип 1. Первичный отстойник L=27м. Кабельно-трубный журнал на 5-ти листах ТП 902-2-330-ЭЛ-4 Тип 1. Первичный отстойник L=27м. Тип 2. Первичный отстойник L=24м. Кабельно-трубный журнал на 5-ти листах ТП 902-2-330-ЭЛ-5 Тип 2. Первичный отстойник L=24м. Кабельно-трубный журнал на 5-ти листах ТП 902-2-330-ЭЛ-6 Тип 2. Первичный отстойник L=24м. Тип 3,4. Вторичные отстойники L=27м. Кабельно-трубный журнал на 5-ти листах ТП 902-2-330-ЭЛ-7 Тип 3,4. Вторичные отстойники L=27м. Кабельно-трубный журнал на 5-ти листах ТП 902-2-330-ЭЛ-8 Тип 1. Первичный отстойник L=27м. Кабельная разводка. План, разрезы ТП 902-2-330-ЭЛ-9 Тип 2. Первичный отстойник L=24м. Кабельная разводка. План, разрезы ТП 902-2-330-ЭЛ-10 Тип 3,4. Вторичные отстойники L=27м. Кабельная разводка. План, разрезы ТП 902-2-330-ЭЛ-11 Тип 1. Первичные отстойники L=27м,L=24м. Тип 3,4. Вторичные отстойники L=27м. Помещение привода тележки скребкового механизма. Электроосвещение ТП 902-2-330-ЭЛ-12 Тип 1. Первичные отстойники L=27м,L=24м. Тип 3,4. Вторичные отстойники L=27м. Шкаф управления электродвигателем привода тележки скребкового механизма. Общий вид ТП 902-2-330-ЭЛ-13 Тип 1. Первичные отстойники L=27м,L=24м. Тип 3,4. Вторичные отстойники L=27м. Шкаф управления электродвигателем привода тележки скребкового механизма. Схема соединений ТП 902-2-330-ЭЛ-14 Тип 1. Первичные отстойники L=27м,L=24м. Тип 3,4. Вторичные отстойники L=27м. Шкаф управления электродвигателем привода тележки скребкового механизма. Технические данные электрооборудования. Таблица ТП 902-2-330-ЭЛ-15 Тип 1. Первичные отстойники L=27м,L=24м. Тип 3,4. Вторичные отстойники L=27м. Шкаф управления электродвигателем привода тележки скребкового механизма. Перечень надписей. Таблица |
| Разработан: | УкркоммунНИИпроект Минжилкомхоза УССР |
| Утверждён: | 15.06.1979 УкркоммунНИИпроект (315) |















