Скачать Типовой проект 902-1-108.87 Альбом III. Архитектурно-строительные решения. Общие чертежи. ИзделияДата актуализации: 01.01.2021
|
| Обозначение: | Типовой проект 902-1-108.87 |
| Обозначение англ: | 902-1-108.87 |
| Статус: | не определен законодательством |
| Название рус.: | Альбом III. Архитектурно-строительные решения. Общие чертежи. Изделия |
| Дата добавления в базу: | 01.09.2013 |
| Дата актуализации: | 01.01.2021 |
| Дата введения: | 18.08.1987 |
| Дата окончания срока действия: | 30.06.2003 |
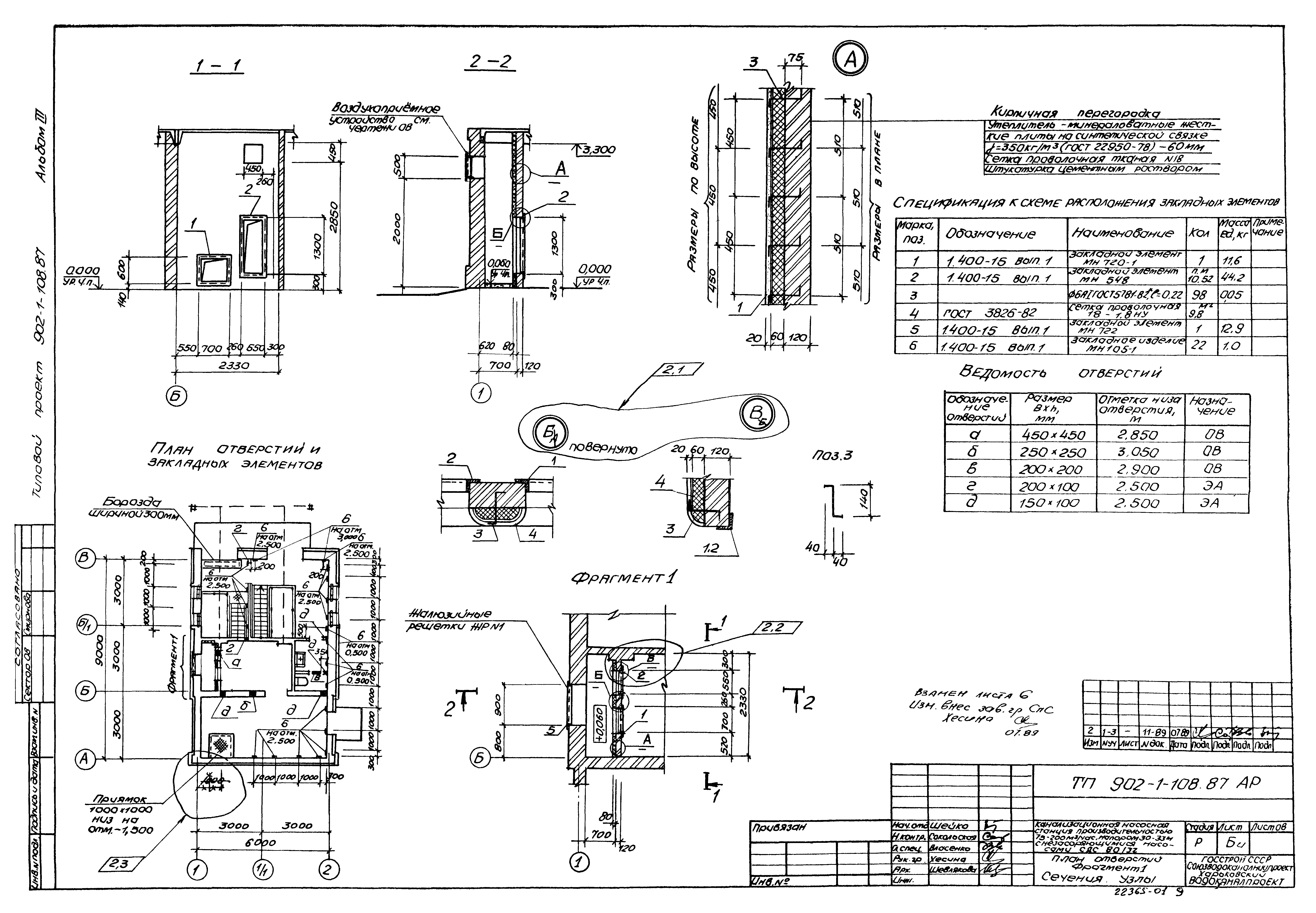
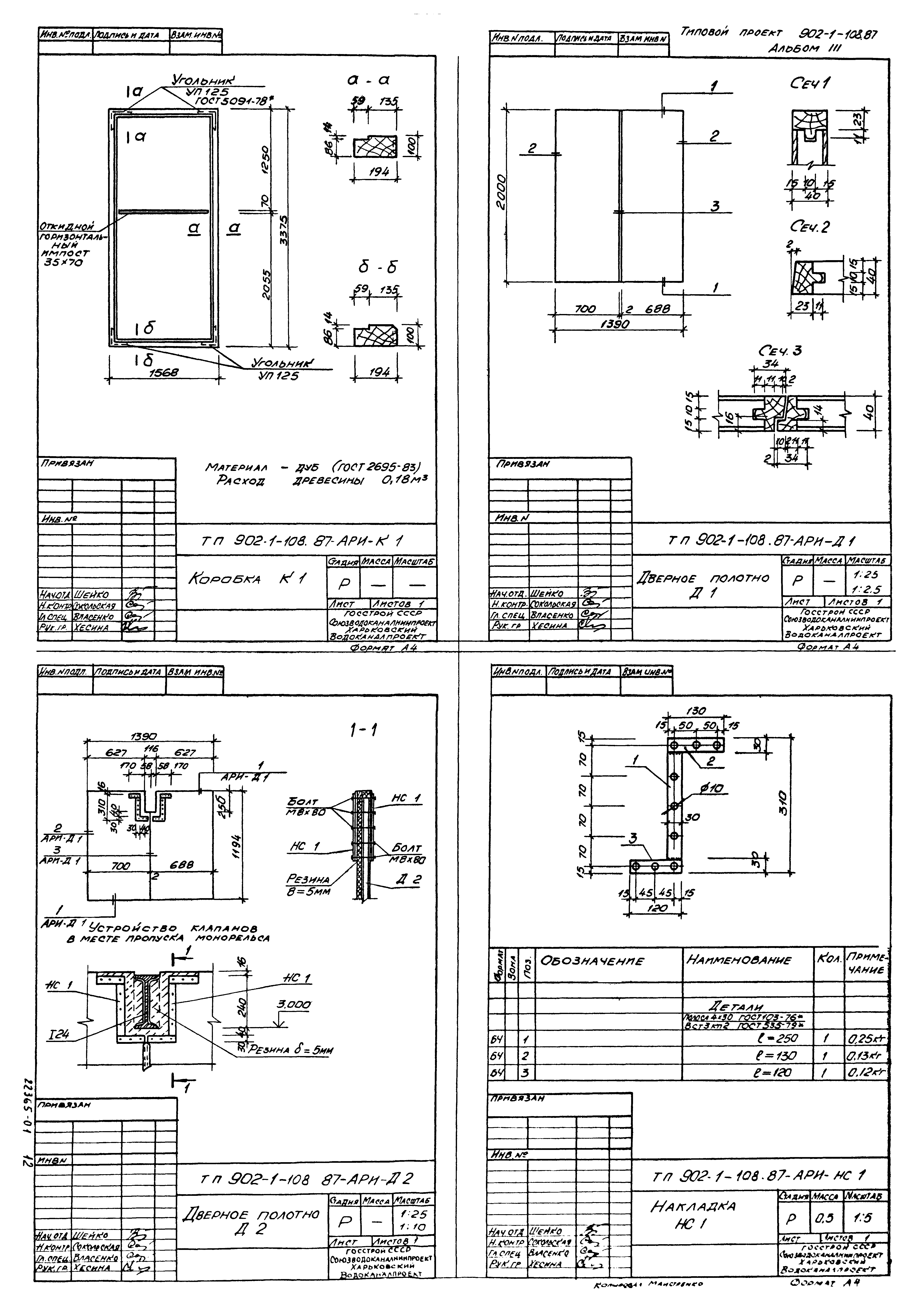
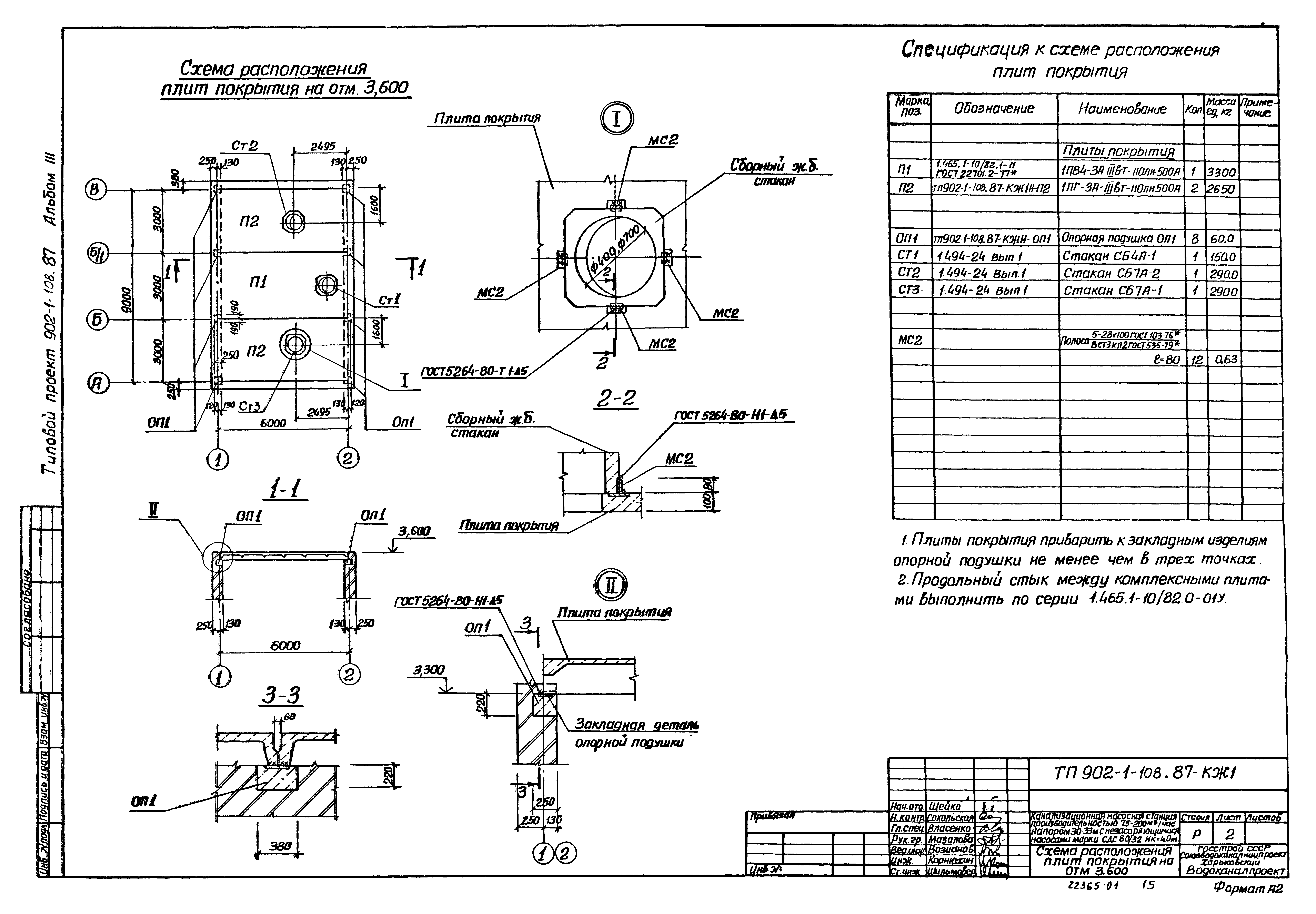
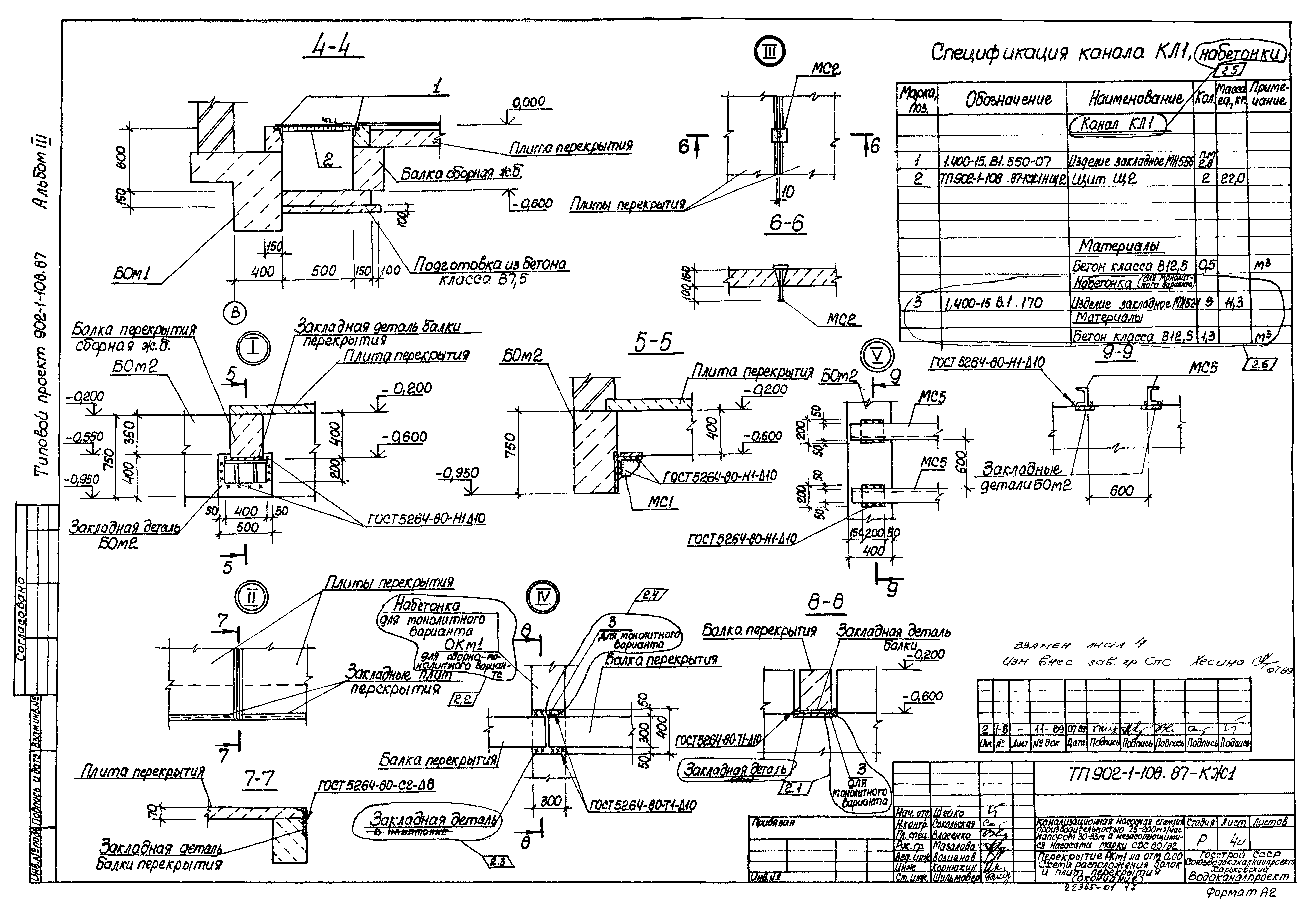
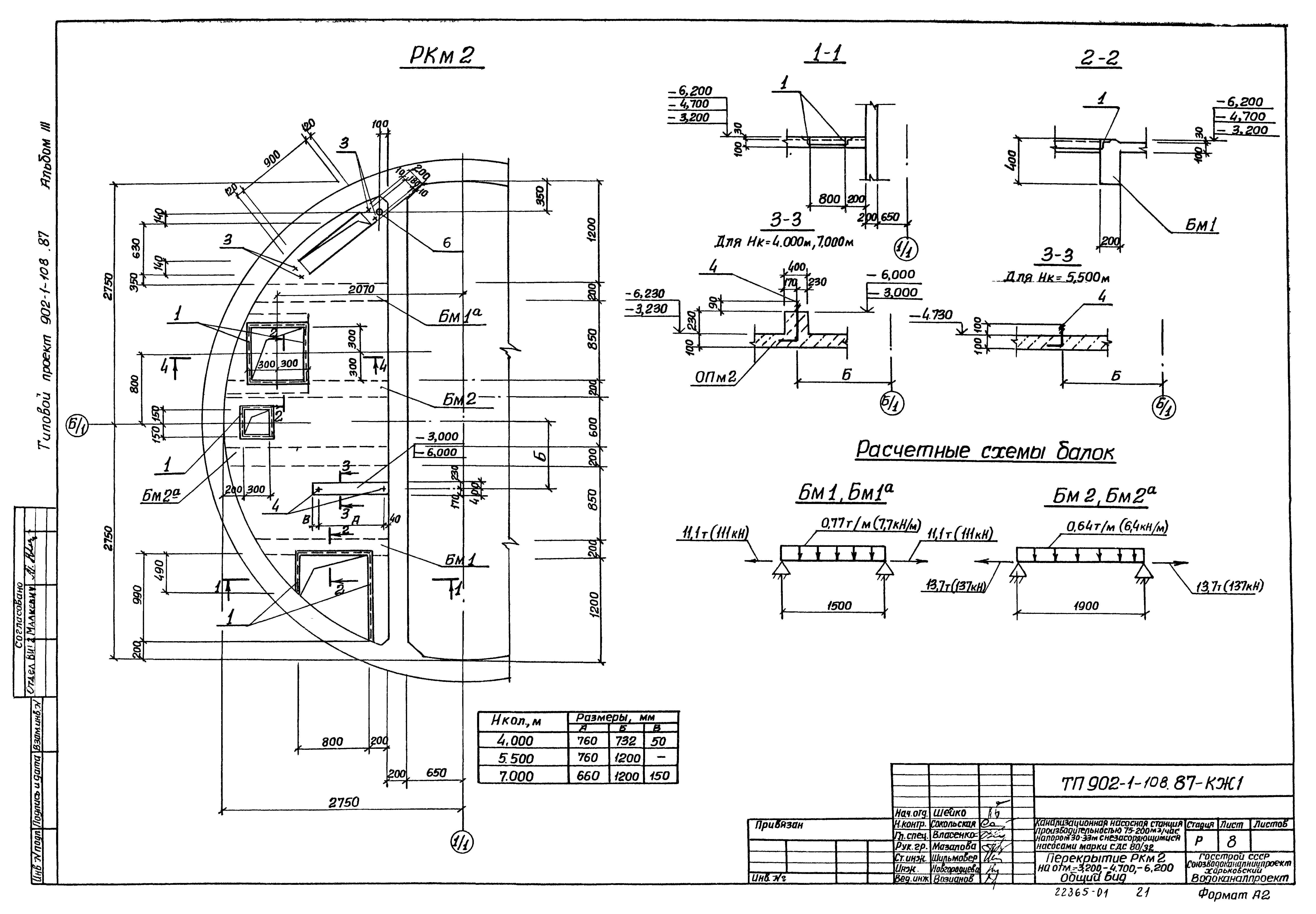
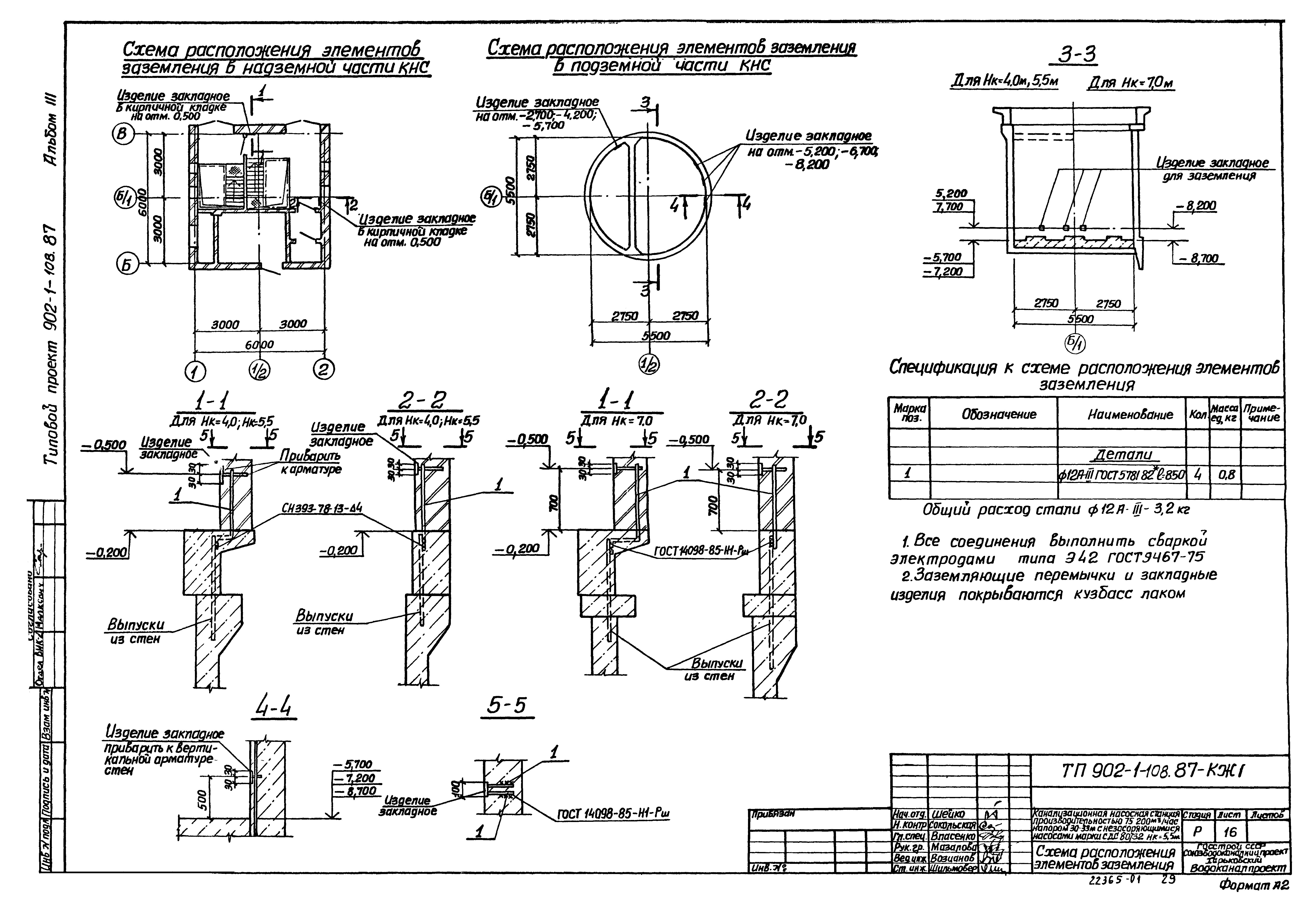
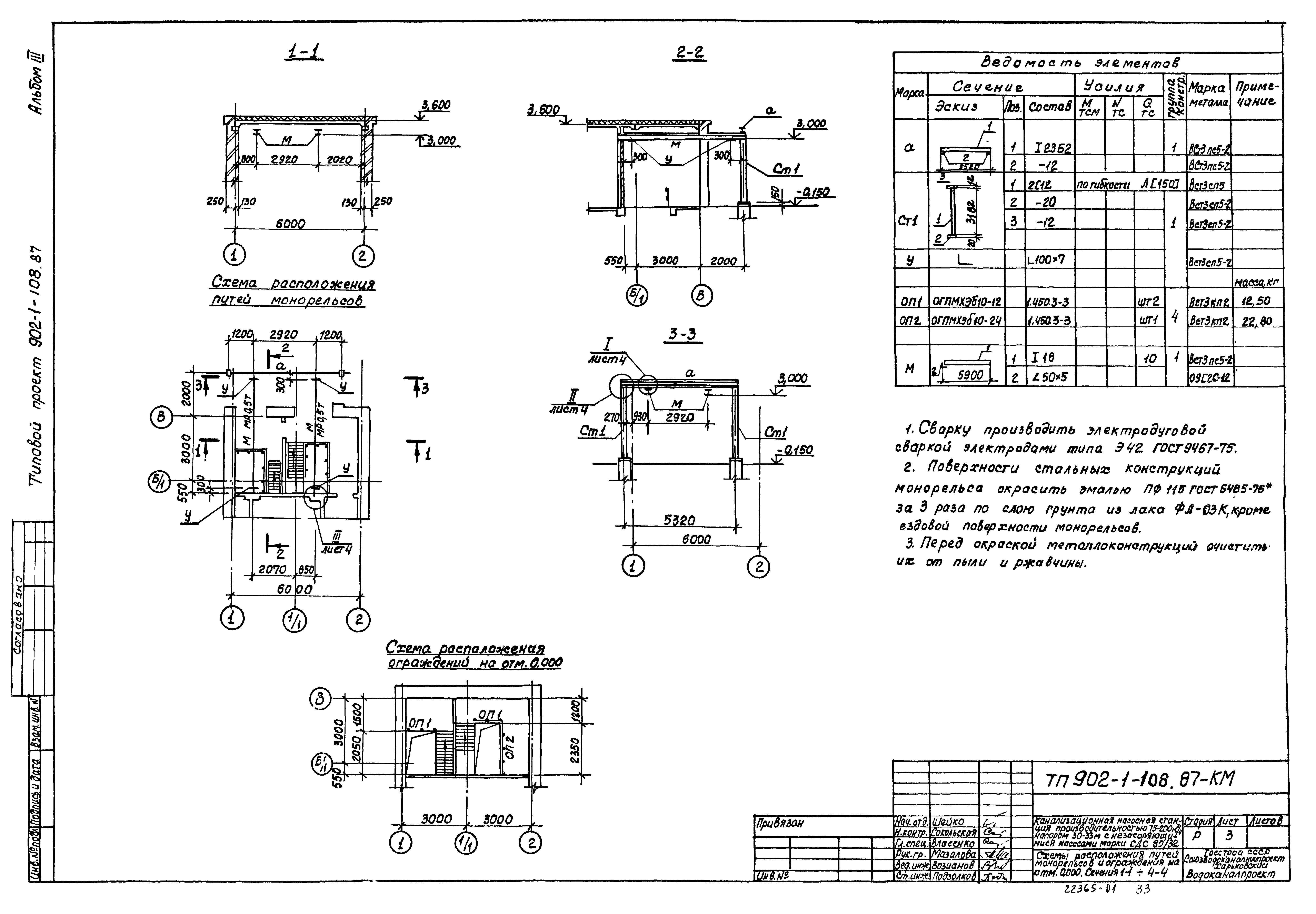
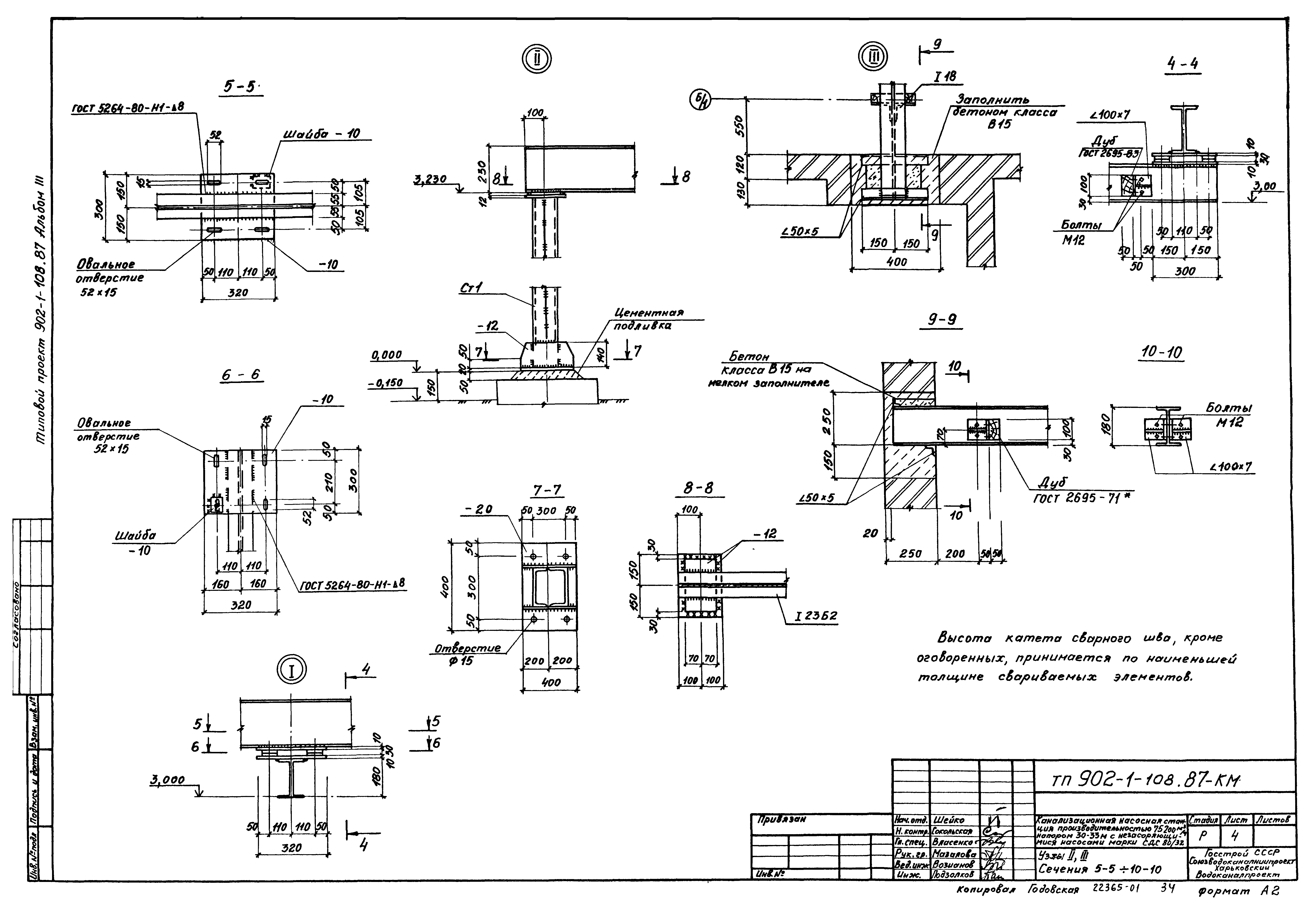
| Оглавление: | ТП 902-1-108.87 Содержание альбома ТП 902-1-108.87-АР Основной комплект марки АР ТП 902-1-108.87-АР-1и Общие данные ТП 902-1-108.87-АР-2и План на отм. 0.000 ТП 902-1-108.87-АР-3 Разрезы 1-1,2-2 ТП 902-1-108.87-АР-4 Фасады. Схемы расположения элементов заполнения оконных проемов ТП 902-1-108.87-АР-5 План кровли. План полов. Экспликация полов ТП 902-1-108.87-АР-6и План отверстий. Фрагмент 1. Сечения. Узлы ТП 902-1-108.87-АР-7и Детали 1-12 ТП 902-1-108.87-АРИ Изделия ТП 902-1-108.87-АРИ-ДО Опись документов ТП 902-1-108.87-АРИ-ИД-1 Дверной блок ИД-1 ТП 902-1-108.87-АРИ-К-1 Коробка К-1 ТП 902-1-108.87-АРИ-Д-1 Дверное полотно Д-1 ТП 902-1-108.87-АРИ-Д-2 Дверное полотно Д-2 ТП 902-1-108.87-АРИ-НС-1 Накладка НС-1 ТП 902-1-108.87-АРИ-У Узлы 1-7 ТП 902-1-108.87-КЖ1 Основной комплект марки КЖ1 ТП 902-1-108.87-КЖ1-1 Общие данные ТП 902-1-108.87-КЖ1-2 Схема расположения плит покрытия на отм. 3.600 ТП 902-1-108.87-КЖ1-3и Перекрытие РКМ1 на отм. 0.000. Схема расположения балок и плит перекрытия (начало) ТП 902-1-108.87-КЖ1-4и Перекрытие РКМ1 на отм. 0.000. Схема расположения балок и плит перекрытия (окончание) ТП 902-1-108.87-КЖ1-5 Перекрытие РКМ1 на отм. 0.000. Балки обвязочные БОМ1,БОМ4. Общий вид и схема армирования ТП 902-1-108.87-КЖ1-6 Перекрытие РКМ1 на отм. 0.000. Балки обвязочные БОМ2,БОМ3. Общий вид и схема армирования ТП 902-1-108.87-КЖ1-7 Перекрытие РКМ1 на отм. 0.000. Спецификация ТП 902-1-108.87-КЖ1-8 Перекрытие РКМ1 на отм. -3.200;-4.700;-6.200. Общий вид ТП 902-1-108.87-КЖ1-9 Перекрытие РКМ1 на отм. -3.200;-4.700;-6.200. Плита ПМ1. Балки БМ1,БМ2,БМ1а,БМ2а. Общий вид и схема армирования ТП 902-1-108.87-КЖ1-10 Перекрытие РКМ1 на отм. -3.200;-4.700;-6.200. Спецификация ТП 902-1-108.87-КЖ1-11 Схема расположения фундаментов под оборудование (начало) ТП 902-1-108.87-КЖ1-12 Схема расположения фундаментов под оборудование (окончание) ТП 902-1-108.87-КЖ1-13 Схема расположения фундаментов и фундаментных балок (начало) ТП 902-1-108.87-КЖ1-14и Схема расположения фундаментов и фундаментных балок (окончание) ТП 902-1-108.87-КЖ1-15 Схема расположения каналов и ПР1 ТП 902-1-108.87-КЖ1-16 Схема расположения элементов заземления ТП 902-1-108.87-КЖ1-17 Детали гидроизоляции ТП 902-1-108.87-КМ Основной комплект чертежей марки КМ ТП 902-1-108.87-КМ-1 Общие данные (начало) ТП 902-1-108.87-КМ-2 Общие данные (окончание) ТП 902-1-108.87-КМ-3 Схемы расположения путей монорельсов и ограждения на отм. 0.000. Сечения 1-1÷4-4 ТП 902-1-108.87-КМ-4 Узлы 2,3. Сечения 5-5÷10-10 ТП 902-1-108.87-КМ-5 Схема расположения элементов ограждения кровли и наружной лестницы ТП 902-1-108.87-КЖ1И Изделия ТП 902-1-108.87-КЖ1И-ДО Опись документов ТП 902-1-108.87-КЖ1И-ТТ Технические требования ТП 902-1-108.87-КЖ1И-ОП2 Опора ОП2 ТП 902-1-108.87-КЖ1И-П2 Плита покрытия П2 ТП 902-1-108.87-КЖ1И-Б3 Балки перекрытия Б3,Б4 ТП 902-1-108.87-КЖ1И-Б1 Балки перекрытия Б1 ТП 902-1-108.87-КЖ1И-Б2 Балка перекрытия Б2 ТП 902-1-108.87-КЖ1И-П3 СБ Плита перекрытия П(П3-П6). Сборочный чертеж ТП 902-1-108.87-КЖ1И-П3 Плита перекрытия П(П3-П6) ТП 902-1-108.87-КЖ1И-П3 ВМС Плита перекрытия П(П3-П6). Ведомость расхода стали ТП 902-1-108.87-КЖ1И-П8 Плита перекрытия П8 ТП 902-1-108.87-КЖ1И-П7 Плита перекрытия П7 ТП 902-1-108.87-КЖ1И-П9 Плита перекрытия П9 ТП 902-1-108.87-КЖ1И-П10 Плита перекрытия П10,П11 ТП 902-1-108.87-КЖ1И-ОП1 Опорная подушка ОП1 ТП 902-1-108.87-КЖ1И-С1 Сетка арматурная С1 ТП 902-1-108.87-КЖ1И-ПС1 Петля строповочная ПС1 ТП 902-1-108.87-КЖ1И-МС3 Изделие соединительное МС3 ТП 902-1-108.87-КЖ1И-КР1 Каркас плоский КР1 ТП 902-1-108.87-КЖ1И-КР2 Каркас плоский КР2 ТП 902-1-108.87-КЖ1И-МН2 Изделие закладное МН2 ТП 902-1-108.87-КЖ1И-КР3 Каркас плоский КР3 ТП 902-1-108.87-КЖ1И-КР4 Каркас плоский КР4 ТП 902-1-108.87-КЖ1И-КР5 Каркас плоский КР5 ТП 902-1-108.87-КЖ1И-КР6 Каркас плоский КР6 ТП 902-1-108.87-КЖ1И-МС1 Изделие соединительное МС1 ТП 902-1-108.87-КЖ1И-МС2 Изделие соединительное МС2 ТП 902-1-108.87-КЖ1И-Щ1 Щит Щ1 ТП 902-1-108.87-КЖ1И-Щ2 Щит Щ2 ТП 902-1-108.87-КЖ1И-КР7 СБ Каркас плоский КР(КР7-КР8). Сборочный чертеж ТП 902-1-108.87-КЖ1И-КР7 Каркас плоский КР(КР7-КР8) ТП 902-1-108.87-КЖ1И-МС4 Изделие соединительное МС4 ТП 902-1-108.87-КЖ1И-МН1 Изделие закладное МН1 |
| Разработан: | Харьковский Водоканалпроект |
| Утверждён: | 12.06.1987 Госстрой СССР (Государственный комитет Совета Министров СССР по делам строительства) (USSR Gosstroy АЧ-60) |















































