Скачать Типовой проект КС-160.11 Контактная подвеска КС-160 на жестких поперечниках. Постоянный токДата актуализации: 01.01.2021
|
| Обозначение: | Типовой проект КС-160.11 |
| Обозначение англ: | КС-160.11 |
| Статус: | не определен законодательством |
| Название рус.: | Контактная подвеска КС-160 на жестких поперечниках. Постоянный ток |
| Дата добавления в базу: | 01.09.2013 |
| Дата актуализации: | 01.01.2021 |
| Дата введения: | 09.07.2004 |
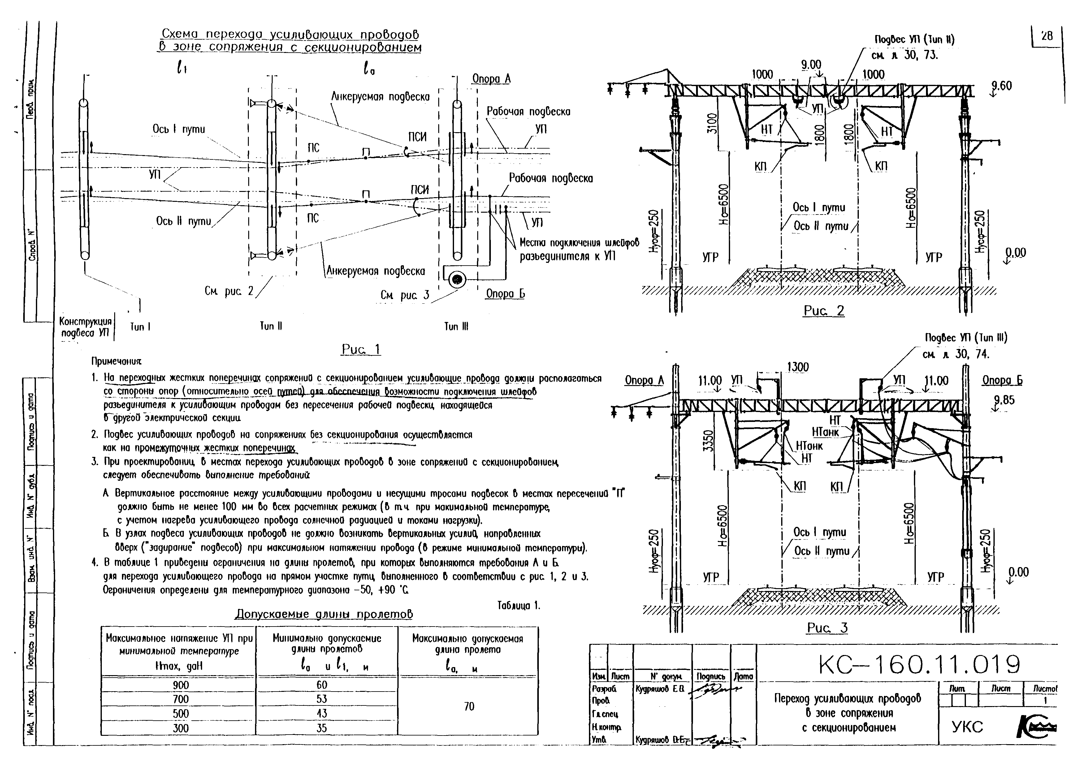
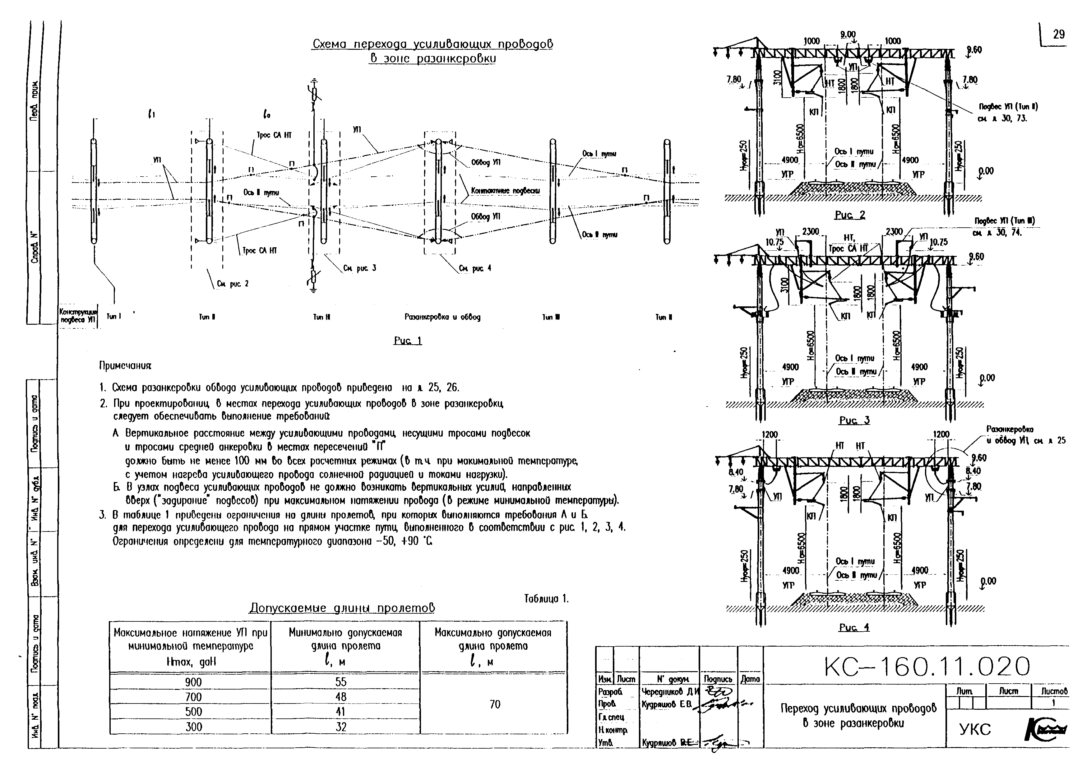
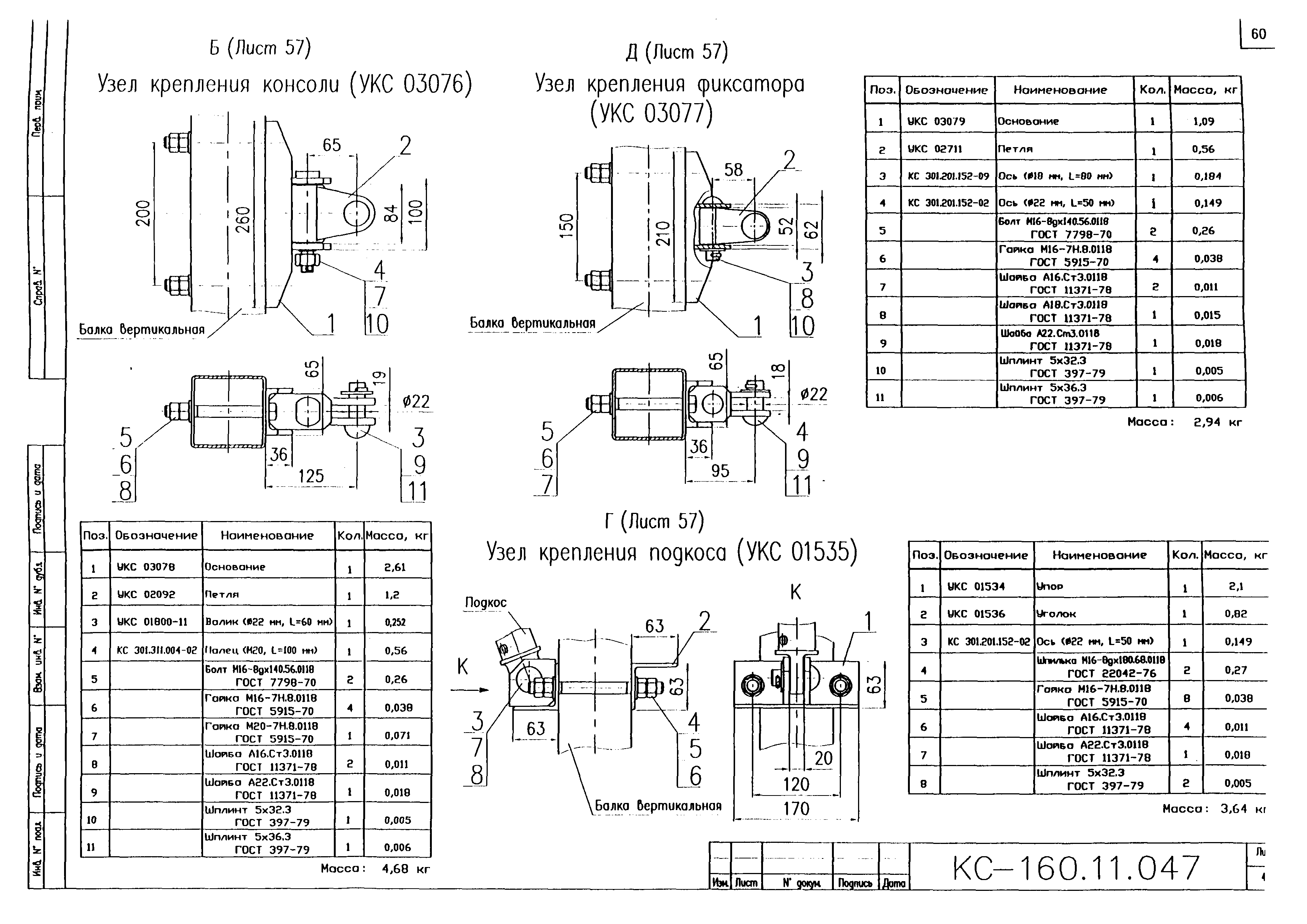
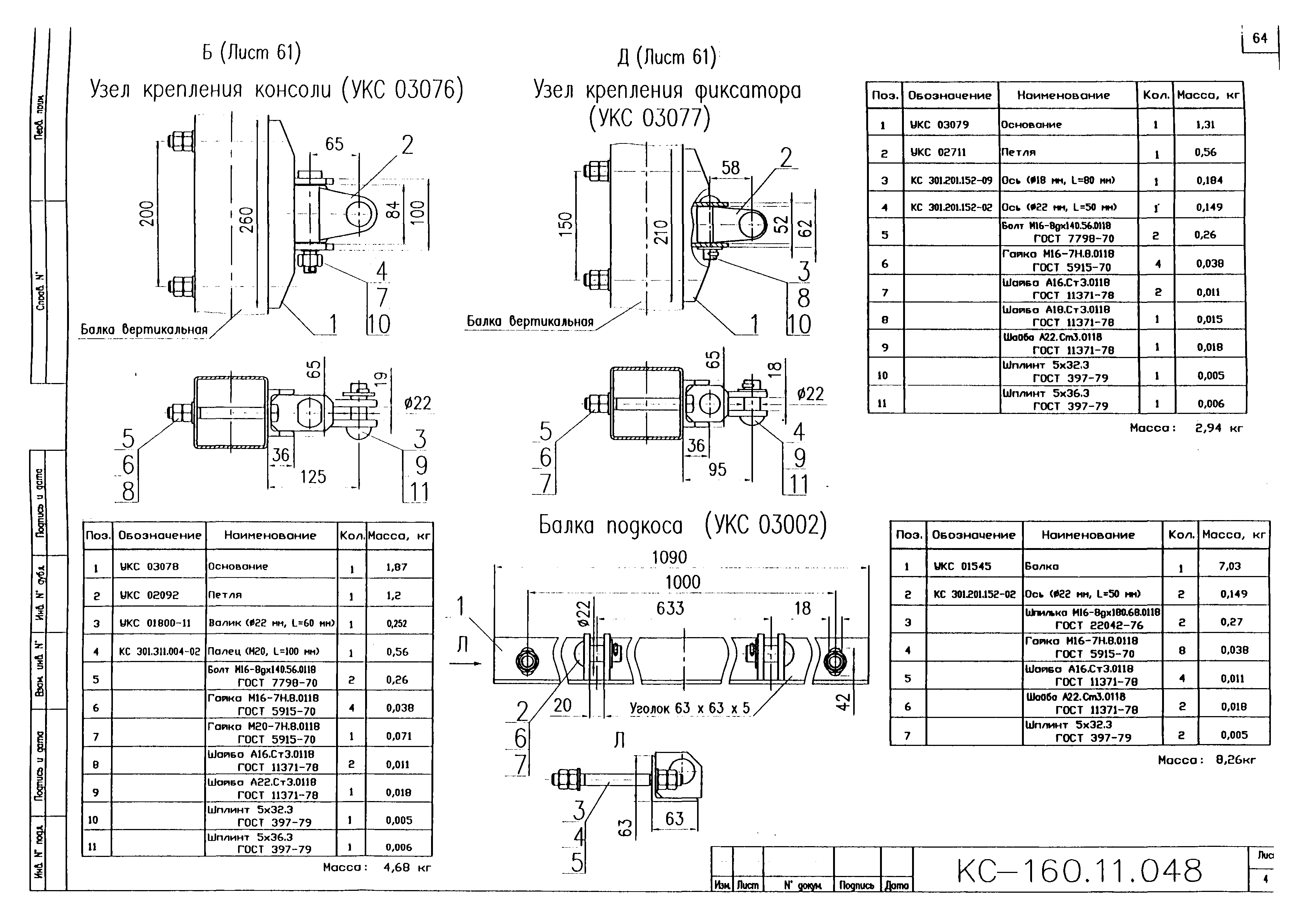
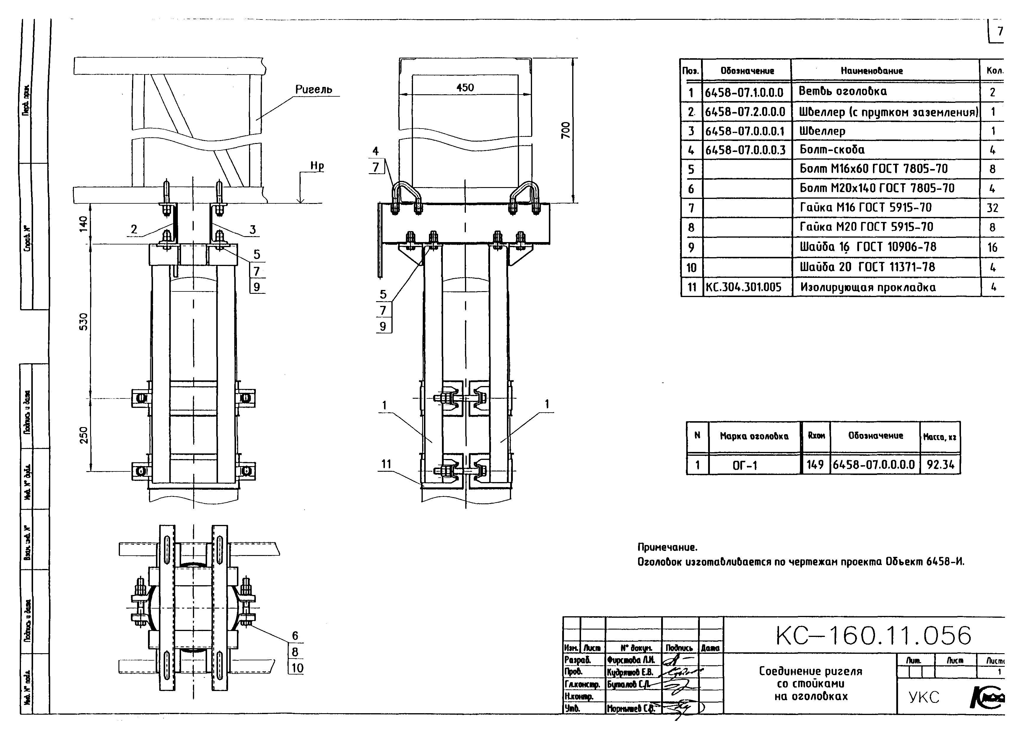
| Оглавление: | КС-160.11.113 Пояснительная записка 1. Условные схемы анкерных участков КС-160.11.001 Условные схемы анкерных участков контактной подвески на жестких поперечинах на двухпутном перегоне 2. Армировки жестких поперечин КС-160.11.002 Варианты схем установки ригелей и поддерживающих конструкций КС-160.11.003 Армировка промежуточной жесткой поперечины. Прямой участок пути КС-160.11.004 Армировка промежуточной жесткой поперечины. Кривой участок пути КС-160.11.005 Армировка жесткой поперечины па средней анкеровке КС-160.11.006 Армировка переходной жесткой поперечины на сопряжении без секционирования. Опоры "А" и "Б". Прямой участок пути КС-160.11.007 Армировка переходной жесткой поперечины на сопряжении без секционирования. Опора "В". Прямой участок пути КС-160.11.008 Армировка переходной жесткой поперечины на сопряжении без секционирования Опоры "А" и "Б". Кривой участок пути КС-160.11.009 Армировка переходной жесткой поперечины на сопряжении без секционирования. Опора "В". Кривой участок пути КС-160.11.010 Армировка переходной жесткой поперечины на сопряжении с секционированием. Опоры "А" и "Б". Прямой участок пути КС-160.11.011 Армировка переходной жесткой поперечины на сопряжении с секционированием. Опора "В". Прямой участок пути КС-160.11.012 Армировка переходной жесткой поперечины на сопряжении с секционированием. Опоры "А" и "Б". Кривой участок пути КС-160.11.013 Армировка переходной жесткой поперечины на сопряжении с секционированием. Опора "В". Кривой участок пути КС-160.11.014 Армировка жесткой поперечины па анкерных опорах компенсированной анкеровки контактной подвески КС-160.11.015 Армировка жесткой поперечины на анкерных опорах средней анкеровки КС-160.11.016 Армировка жесткой поперечины, применяемой для обеспечения достаточной прочности заделки опор КС-160.11.017 Разанкеровка и обвод усиливающих проводов на анкерной опоре средней анкеровки КС-160.11.018 Переход усиливающих проводов с консольных опор на жесткие поперечины КС-160.11.019 Переход усиливающих проводов в зоне сопряжения с секционированием КС-160.11.020 Переход усиливающих проводов в зоне разанкеровки КС-160.11.021 Варианты подвесов усиливающих проводов на жестких поперечинах 3. Схемы установки консолей на консольных стойках КС-160.11.022 Консольная стойка для промежуточных жестких поперечин. Прямая, зигзаг к стойке КС-160.11.023 Консольная стойка для промежуточных жестких поперечин. Прямая, зигзаг от стойки КС-160.11.024 Консольная стойка на средней анкеровке КС-160.11.025 Консольная стойка для промежуточных жестких поперечин. Внешняя сторона кривой КС-160.11.026 Консольная стойка для промежуточных жестких поперечин. Внутренняя сторона кривой КС-160.11.027 Консольная стойка для переходных жестких поперечин. Сопряжение без секционирования на прямой, опора "А" КС-160.11.028 Консольная стойка для переходных жестких поперечин. Сопряжение без секционирования на прямой, опора "Б" КС-160.11.029 Консольная стойка для переходных жестких поперечин. Сопряжение без секционирования на прямой, опора "В" КС-160.11.030 Консольная стойка для переходных жестких поперечин. Сопряжение без секционирования на внешней стороне кривой, опора "А" КС-160.11.031 Консольная стойка для переходных жестких поперечин. Сопряжение без секционирования на внешней стороне кривой, опора "Б" КС-160.11.032 Консольная стойка для переходных жестких поперечин. Сопряжение без секционирования на внешней стороне кривой, опора "В" КС-160.11.033 Консольная стойка для переходных жестких поперечин. Сопряжение без секционирования на внутренней стороне кривой, опора "А" КС-160.11.034 Консольная стойка для переходных жестких поперечин. Сопряжение без секционирования на внутренней стороне кривой, опора "Б" КС-160.11.035 Консольная стойка дин переходных жестких поперечин. Сопряжение без секционирования на внутренней стороне кривой, опора "В" КС-160.11.036 Консольная стойка для переходных жестких поперечин. Сопряжение с секционированием на прямой, опора "А" КС-160.11.037 Консольная стойка дня переходных жестких поперечин. Сопряжение с секционированием на прямой, опора "Б" КС-160.11.038 Консольная стойка для переходных жестких поперечин. Сопряжение с секционированием на прямой, опора "В" КС-160.11.039 Консольная стойка для переходных жестких поперечин. Сопряжение с секционированием на внешней стороне кривой, опора "А" КС-160.11.040 Консольная стойка для переходных жестких поперечин. Сопряжение с секционированием на внешней стороне кривой, опора "Б" КС-160.11.041 Консольная стойка для переходных жестких поперечин. Сопряжение с секционированием на внешней стороне кривой, опора "В" КС-160.11.042 Консольная стойка для переходных жестких поперечин. Сопряжение с секционированием на внутренней стороне кривой, опора "А" КС-160.11.043 Консольная стойка для переходных жестких поперечин. Сопряжение с секционированием на внутренней стороне кривой, опора "В" КС-160.11.044 Консольная стойка для переходных жестких поперечин. Сопряжение с секционированием на внутренней стороне кривой, опора "В" КС-160.11.045 Основные установочные параметры при монтаже КС-160.11.046 Графики регулировки положения консолей на переходных жестких поперечинах 4. Конструктивные решения КС-160.11.047 Стойки консольные для промежуточных жестких поперечин. Обозначения консольных стоек КС-160.11.048 Стойки консольные для переходных жестких поперечин КС-160.11.049 Консоли для жестких поперечин тип НЖ-3,0. Обозначения консолей КС-160.11.050 Фиксаторы сочлененные прямые, тип ФПЖ-3,0 (ФПЖГ-3,0). Обозначения фиксаторов КС-160.11.051 Фиксаторы сочлененные обратные, тип ФОЖ-3,0 (ФОЖГ-3,0) КС-160.11.052 Фиксаторы контактных проводов анкеруемой ветви, тип ФАЖ-3.0 КС-160.11.053 Подвес усиливающих проводов на одном изоляторе (Тип I) КС-160.11.054 Подвес усиливающих проводов на двух изоляторах (Тип II) КС-160.11.055 Подвес усиливающих проводов на Г-образной надставке (Тип III) КС-160.11.056 Соединение ригеля со стойками на оголовках КС-160.11.057 Соединение ригеля со стойками на опорных столиках КС-160.11.058 Фиксаторы подвесного изолятора несущего троса 5. Допустимые расчетные нагрузки КС-160.11.059 Допустимые расчетные нагрузки на консольные стойки КС-160.11.060 Допустимые расчетные нагрузки на консоли КС-160.11.061 Допустимые расчетные нагрузки на фиксаторы 6. Таблицы применения КС-160.11.062 Таблица применения консольных стоек КС-160.11.063 Таблица применения консолей на консольных стойках КС-160.11.064 Таблица применения фиксаторов на консольных стойках КС-160.11.065 Нумерации регулировочных отверстий в кронштейнах и тягах консолей КС-160.11.066 Таблица номеров отверстий для установки регулировочных элементов консолей КС-160.11.067 Привязка консольных стоек к оси пути КС-160.11.068 Определение расчетных длин ригелей КС-160.11.069 Максимальные расчетные моменты, действующие на ригели жестких поперечин с консольными стойками |
| Разработан: | Универсал-контактные сети |
| Утверждён: | 09.07.2004 ОАО РЖД |

































































































