Скачать Типовой проект 902-2-158 Альбом I. Все частиДата актуализации: 01.01.2021
|
| Обозначение: | Типовой проект 902-2-158 |
| Обозначение англ: | 902-2-158 |
| Статус: | не определен законодательством |
| Название рус.: | Альбом I. Все части |
| Дата добавления в базу: | 01.09.2013 |
| Дата актуализации: | 01.01.2021 |
| Дата введения: | 18.03.1971 |
| Дата окончания срока действия: | 30.06.2003 |
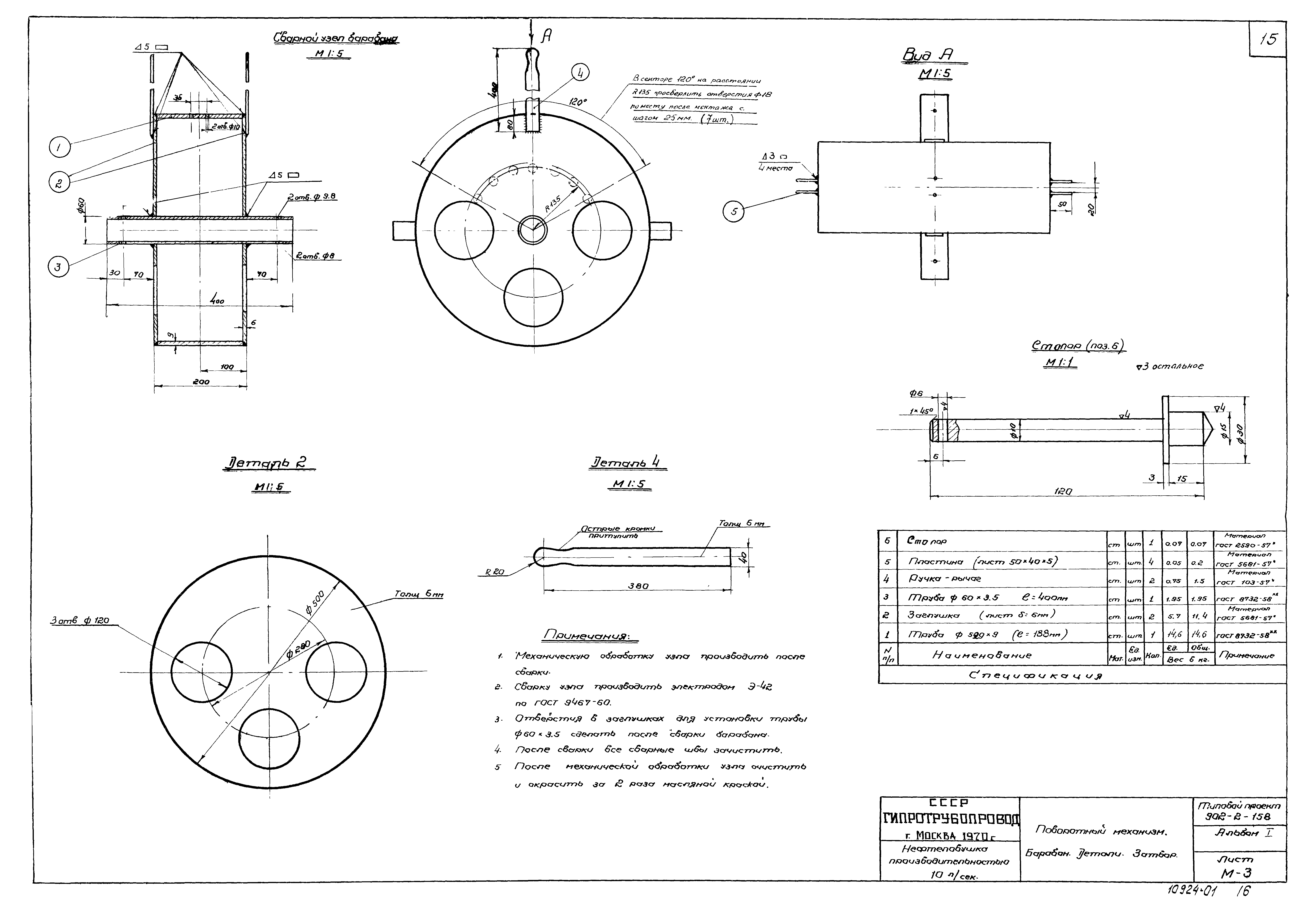
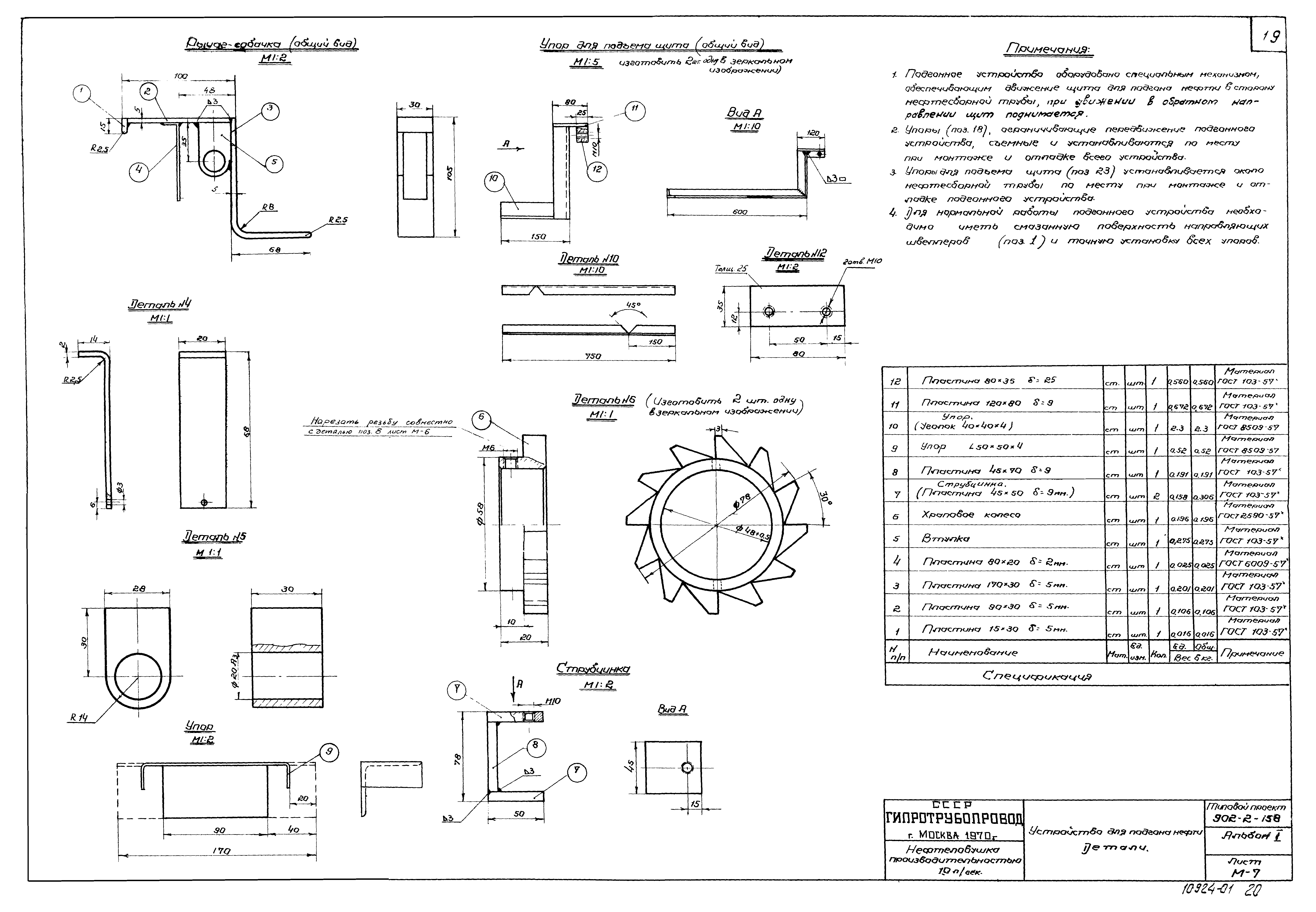
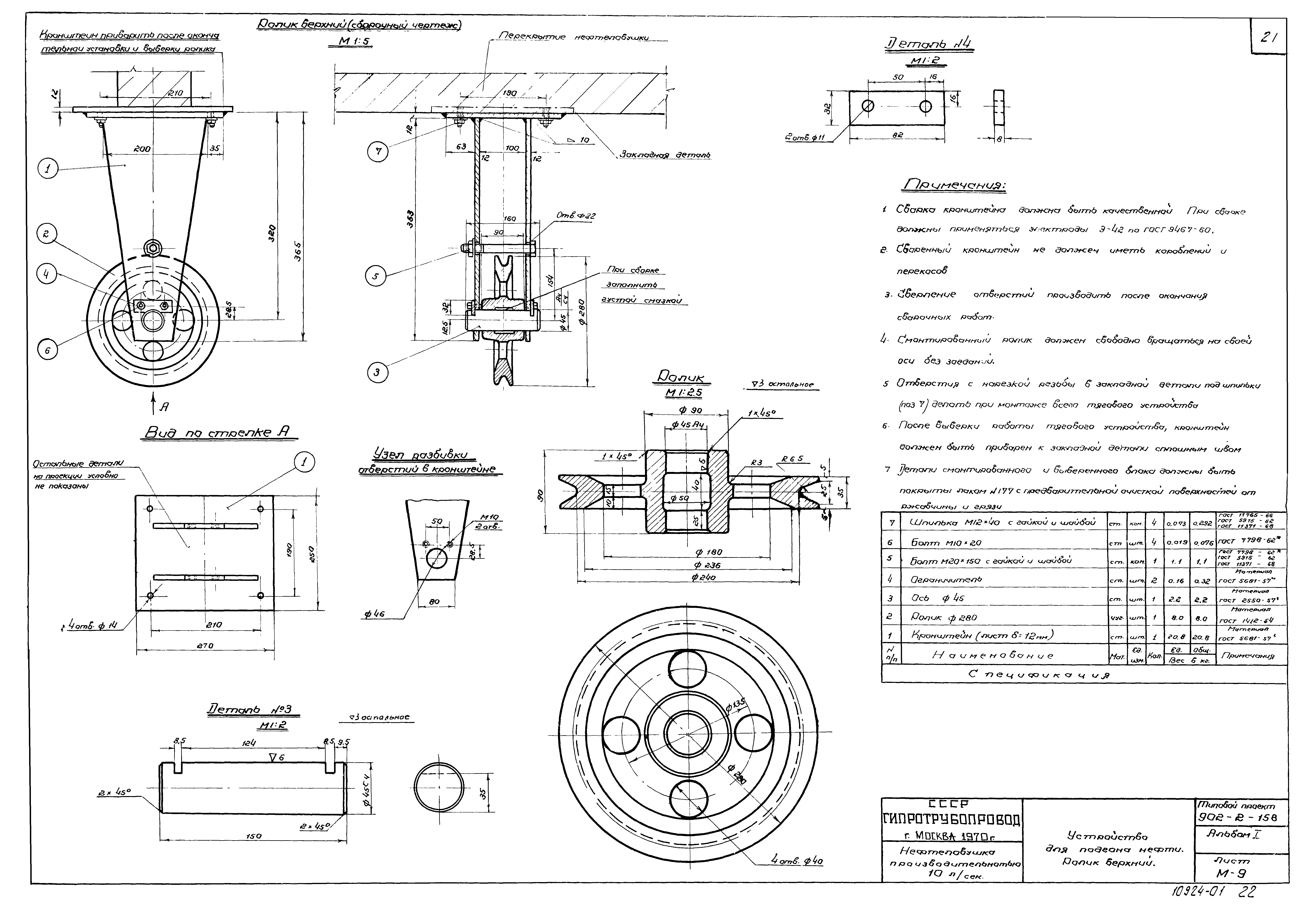
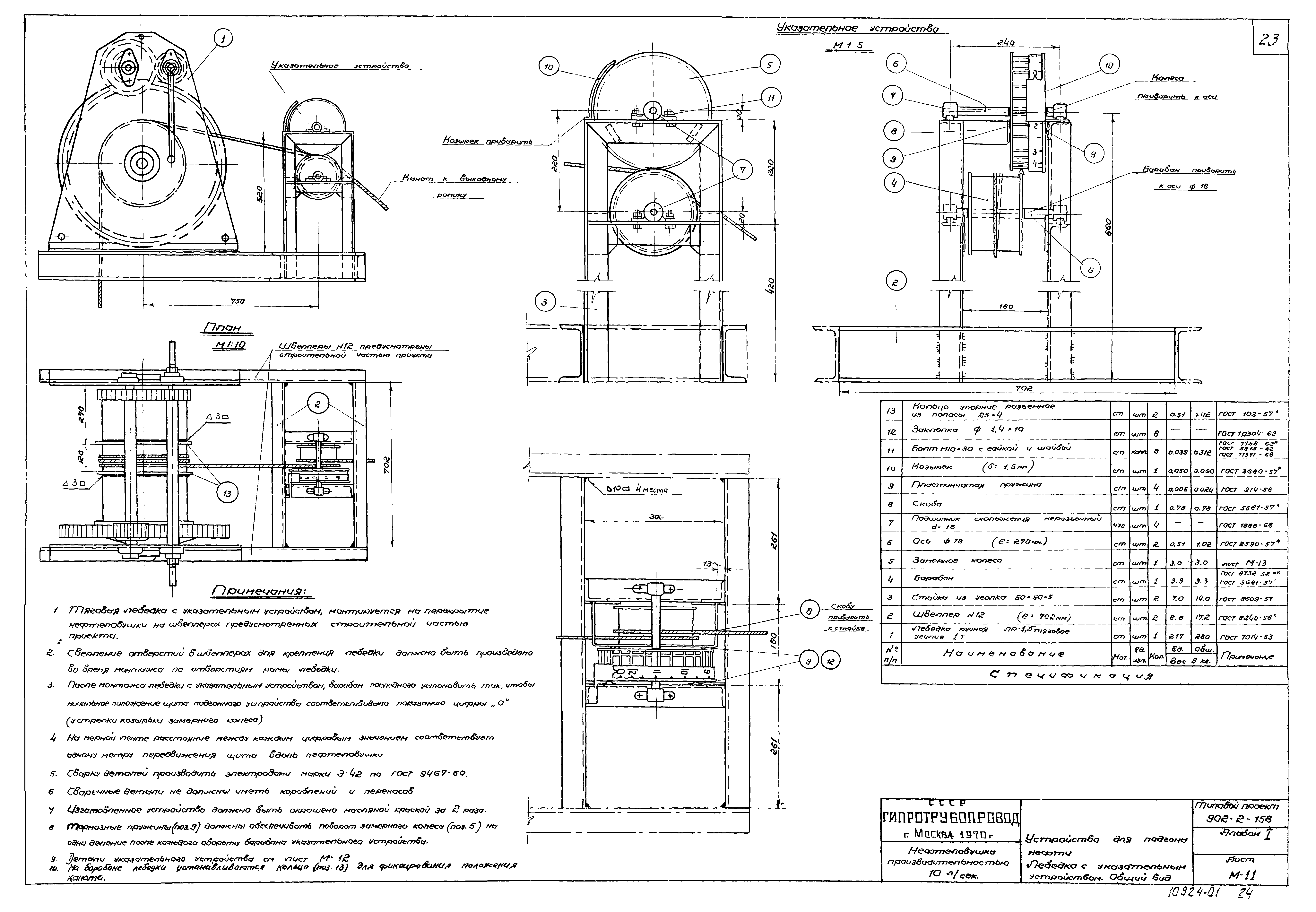
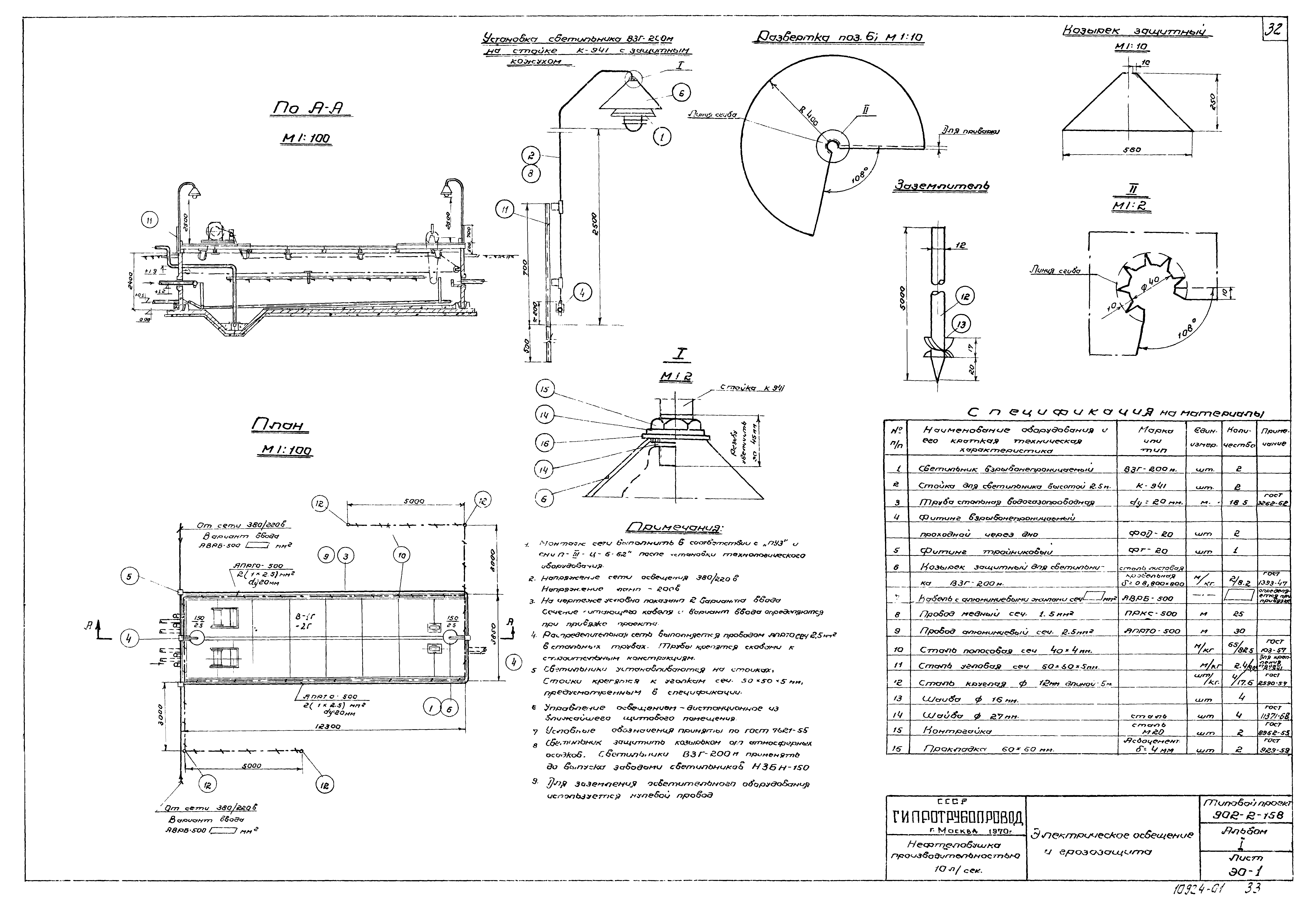
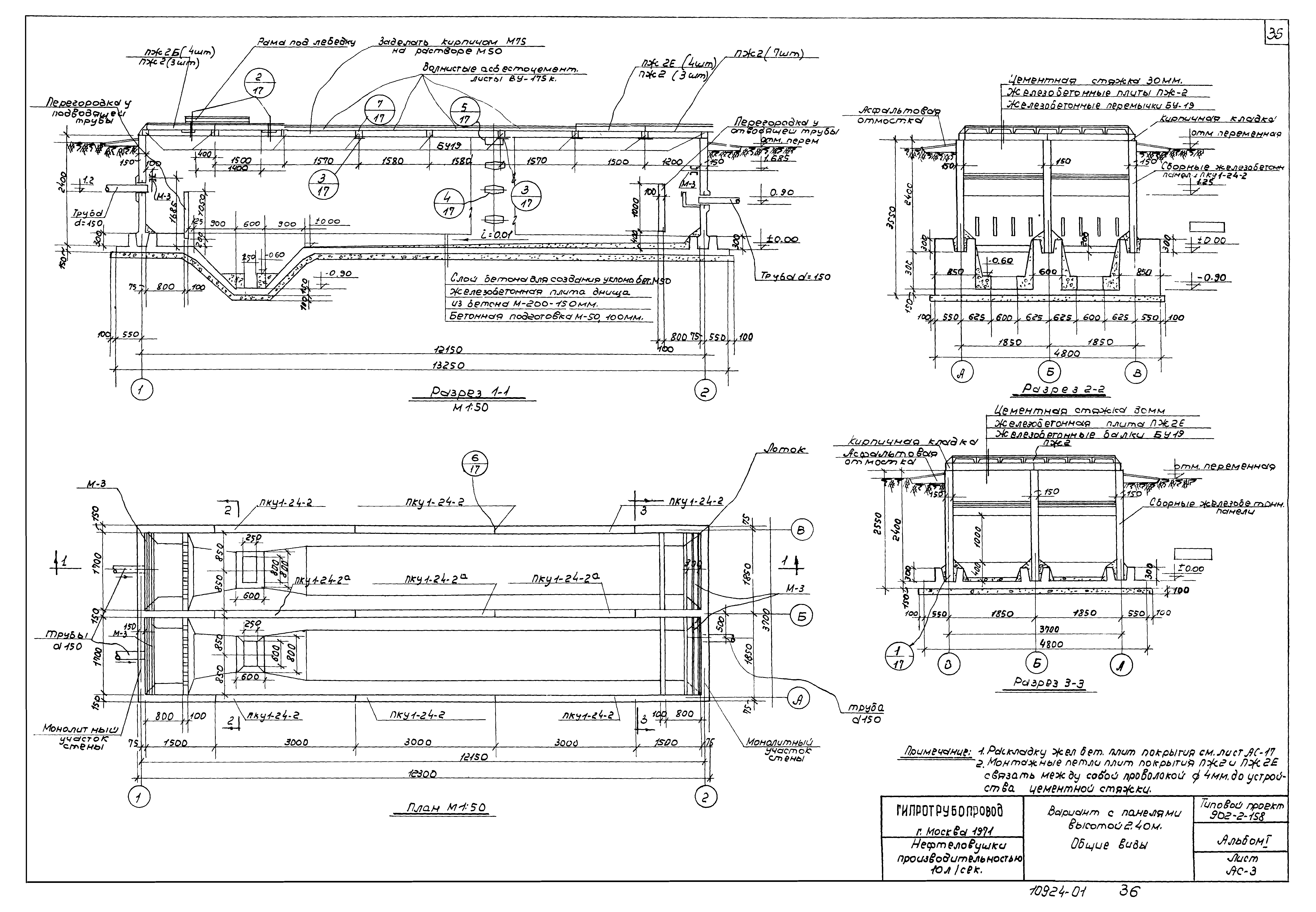
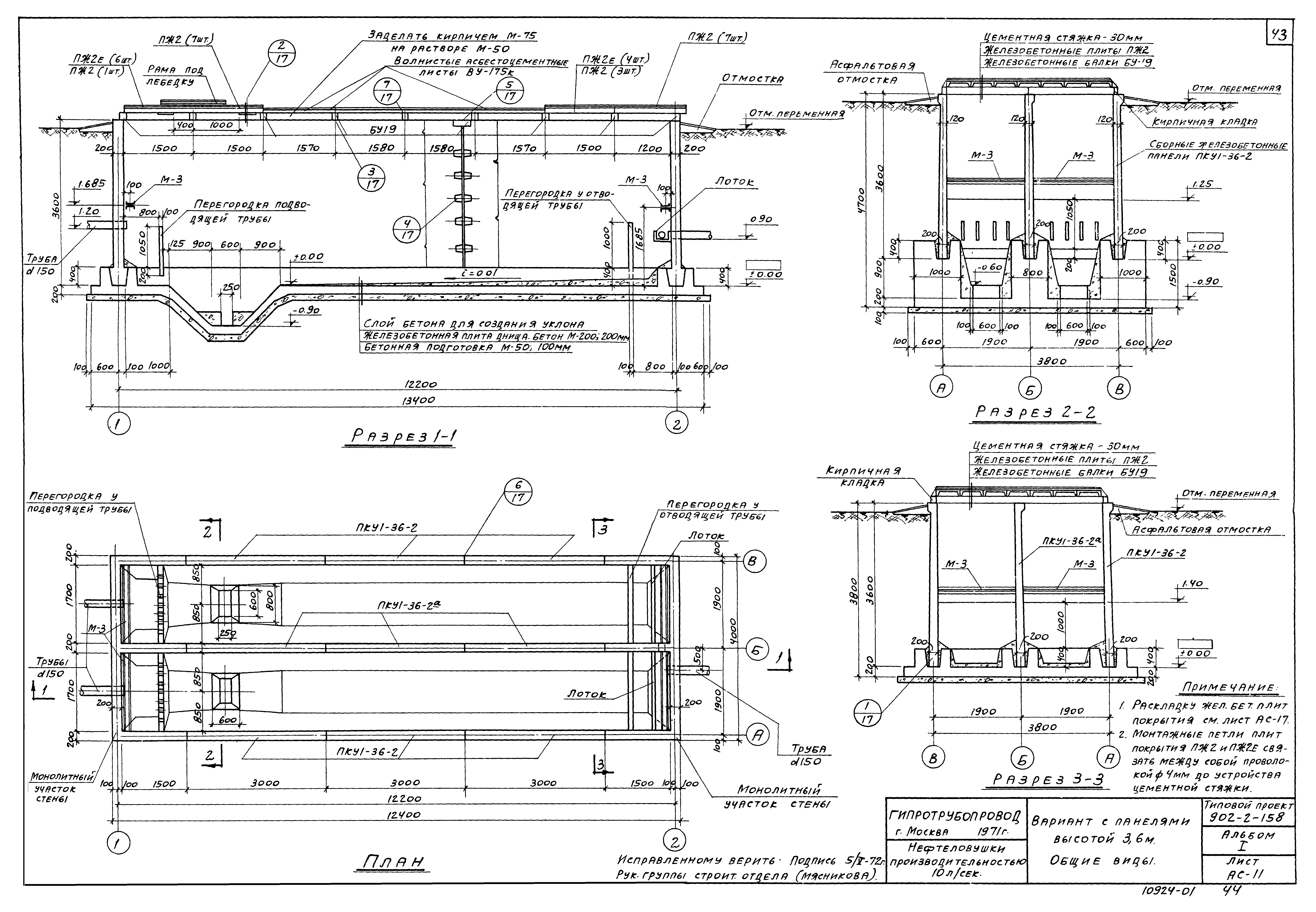
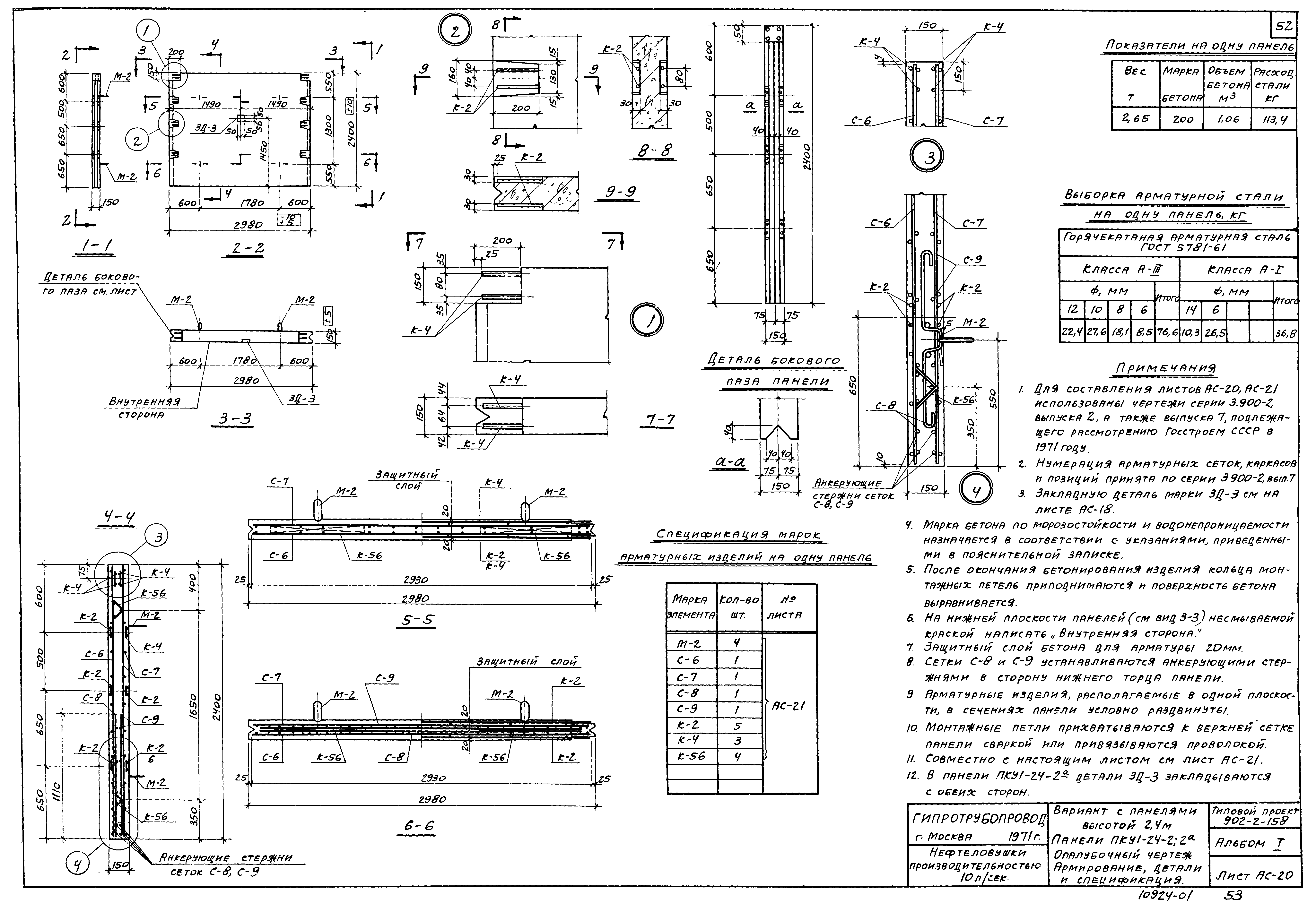
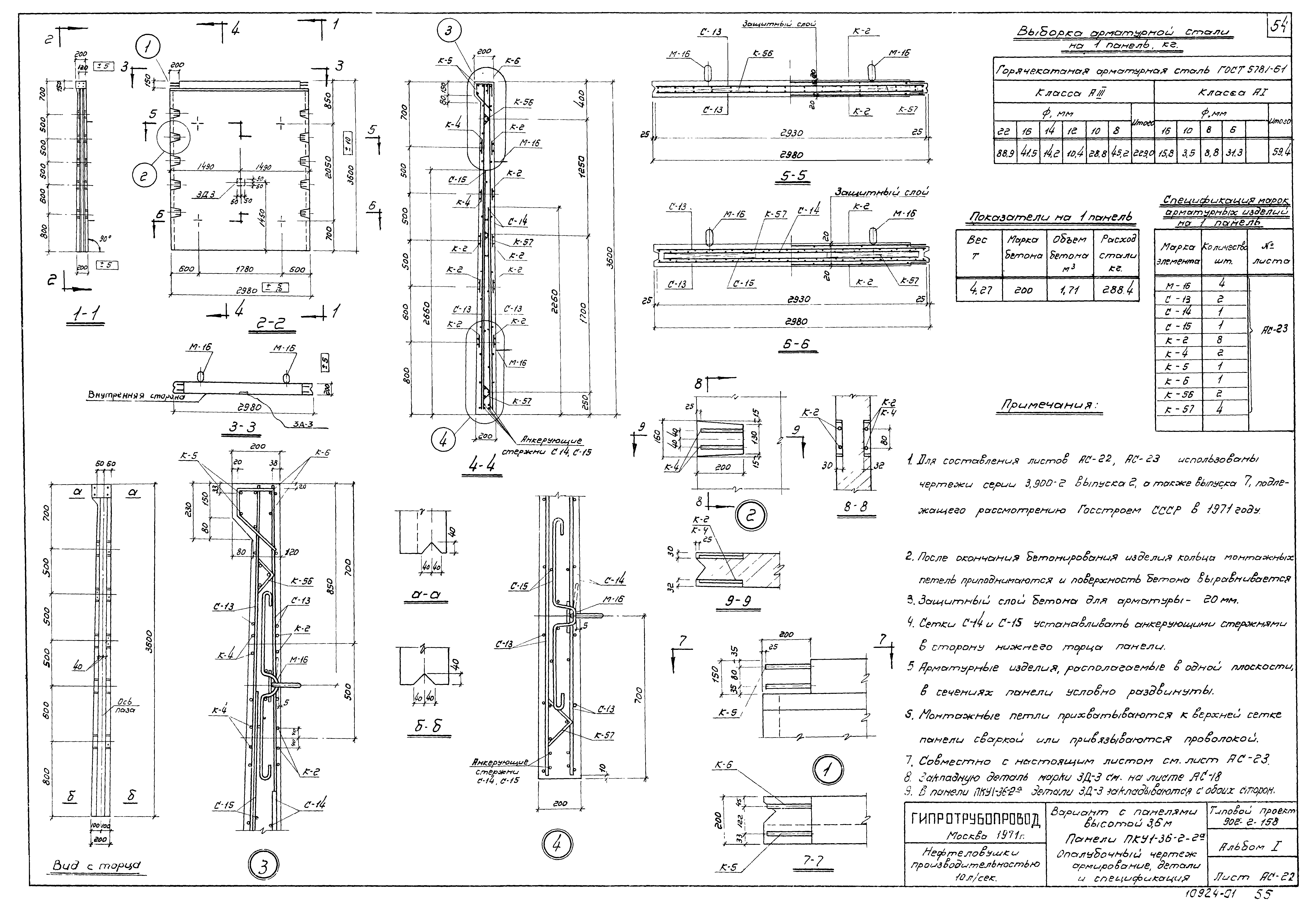
| Оглавление: | ТП 902-2-158 Обложка ТП 902-2-158 Титульный лист ТП 902-2-158-С-1 Содержание альбома ТП 902-2-158-ПЗ1÷ПЗ-7 Пояснительная записка ТП 902-2-158-ПЗ-8 Заказная спецификация на оборудование, арматуру и др. материалы по технологической и механической частям теплоснабжения, электротехнической частью ТП 902-2-158-ВК-1 Общий вид оборудования нефтеловушек ТП 902-2-158-ВК-2 Распределительная труба. Размывающая головка. Детали. ТП 902-2-158-М-1 Оборудование нефтеловушек поворотным механизмом, устройством для подгона нефти и нефтесборным устройством ТП 902-2-158-М-2 Поворотный механизм. Общий вид. Разрезы ТП 902-2-158-М-3 Поворотный механизм. Барабан. Детали. Затвор ТП 902-2-158-М-4 Поворотный механизм. Стойка. Стяжки. Хомут ТП 902-2-158-М-5 Устройство для подгона нефти. Общий вид ТП 902-2-158-М-6 Устройство для подгона нефти. Ползун. Щит ТП 902-2-158-М-7 Устройство для подгона нефти. Детали ТП 902-2-158-М-8 Устройство для подгона нефти. Ролик боковой ТП 902-2-158-М-9 Устройство для подгона нефти. Ролик верхний ТП 902-2-158-М-10 Устройство для подгона нефти. Ролик выходной ТП 902-2-158-М-11 Устройство для подгона нефти. Лебедка с указательным устройством. Общий вид ТП 902-2-158-М-12 Устройство для подгона нефти. Лебедка с указательным устройством. Детали ТП 902-2-158-М-13 Устройство для подгона нефти. Лебедка с указательным устройством. Замерное колесо ТП 902-2-158-М-14 Нефтесборное устройство. Общий вид ТП 902-2-158-М-15 Нефтесборное устройство. Узлы, сечения, детали и спецификация ТП 902-2-158-М-16 Нефтесборное устройство. Детали ТП 902-2-158-М-17 Нефтесборное устройство. Детали ТП 902-2-158-ТВ-1 Обогрев нефтеловушки. План, разрезы, схема ТП 902-2-158-ТВ-2 Обогрев нефтеловушки. Детали крепления трубопроводов ТП 902-2-158-ЭО-1 Электрическое освещение и грозозащита ТП 902-2-158-АС-1 Вариант с панелями высотой 2,4 м. Заглавный лист ТП 902-2-158-АС-2 Вариант с панелями высотой 2,4 м. Заказ стали ТП 902-2-158-АС-3 Вариант с панелями высотой 2,4 м. Общие виды ТП 902-2-158-АС-4 Вариант с панелями высотой 2,4 м. Монолитные участки стен ТП 902-2-158-АС-5 Вариант с панелями высотой 2,4 м. Армирование днища. План раскладки арматурных сеток, каркасов и пакетов ТП 902-2-158-АС-6 Вариант с панелями высотой 2,4 м. Армирование днища. Разрезы ТП 902-2-158-АС-7 Вариант с панелями высотой 2,4 м. Армирование днища. Спецификация арматуры ТП 902-2-158-АС-8 Вариант с панелями высотой 2,4 м. Армирование днища. Арматурные пакеты ПК-1;ПК-2;РК-3;ПК-4 ТП 902-2-158-АС-9 Вариант с панелями высотой 3,6 м. Заглавный лист ТП 902-2-158-АС-10 Вариант с панелями высотой 3,6 м. Заказ стали ТП 902-2-158-АС-11 Вариант с панелями высотой 3,6 м. Общие виды ТП 902-2-158-АС-12 Вариант с панелями высотой 3,6 м. Монолитные участки стен ТП 902-2-158-АС-13 Вариант с панелями высотой 3,6 м. План раскладки арматурных сеток, каркасов и пакетов. Армирование днища ТП 902-2-158-АС-14 Вариант с панелями высотой 3,6 м. Армирование днища. Разрезы ТП 902-2-158-АС-15 Вариант с панелями высотой 3,6 м. Армирование днища. Спецификация арматуры ТП 902-2-158-АС-16 Вариант с панелями высотой 3,6 м. Армирование днища. Арматурные пакеты ПК-5,ПК-6,ПК-7,ПК-8 ТП 902-2-158-АС-17 Вариант с панелями высотой 2,4 и 3,6 м. Маркировочный план закладных и накладных деталей. Узлы и детали ТП 902-2-158-АС-18 Вариант с панелями высотой 2,4 и 3,6 м. Закладные и накладные металлические детали ТП 902-2-158-АС-19 Вариант с панелями высотой 2,4 и 3,6 м. Железобетонные перегородки у подводящей и отводящей трубы. Железобетонный монолитный лоток ТП 902-2-158-АС-20 Вариант с панелями высотой 2,4. Панели ПКУ1-24-2,2а. Опалубочные чертежи, армирование, детали и спецификация ТП 902-2-158-АС-21 Вариант с панелями высотой 2,4. Панели ПКУ1-24-2,2а. Сварные сетки, каркасы, монтажная петля. Спецификация ТП 902-2-158-АС-22 Вариант с панелями высотой 3,6. Панели ПКУ1-36-2,2а. Опалубочные чертежи, армирование, детали и спецификация ТП 902-2-158-АС-23 Вариант с панелями высотой 3,6 Панели ПКУ1-36-2,2а. Сварные сетки, каркасы, монтажная петля. Спецификация |
| Разработан: | Гипротрубопровод Миннефтепрома (Giprotruboprovod, Minnefteprom ) |
| Утверждён: | 02.03.1971 Миннефтепром (Minnefteprom ) |






















































