Скачать ОСТ 1 00818-86 Системы электроснабжения самолетов и вертолетов. Общие требования к структуре типовых системДата актуализации: 01.01.2021
|
| Обозначение: | ОСТ 1 00818-86 |
| Обозначение англ: | 00818-86 |
| Статус: | действует |
| Название рус.: | Системы электроснабжения самолетов и вертолетов. Общие требования к структуре типовых систем |
| Дата добавления в базу: | 01.09.2013 |
| Дата актуализации: | 01.01.2021 |
| Дата введения: | 01.01.1987 |
| Область применения: | Стандарт распространяется на бортовые первичные и вторичные системы электроснабжения самолетов и вертолетов и устанавливает общие требования к их структуре, органам управления и индикации, системам распределения электроэнергии, аппаратуре первичных и централизованных вторичных систем генерирования, а также характеристики аппаратуры первичных источников электроэнергии. |
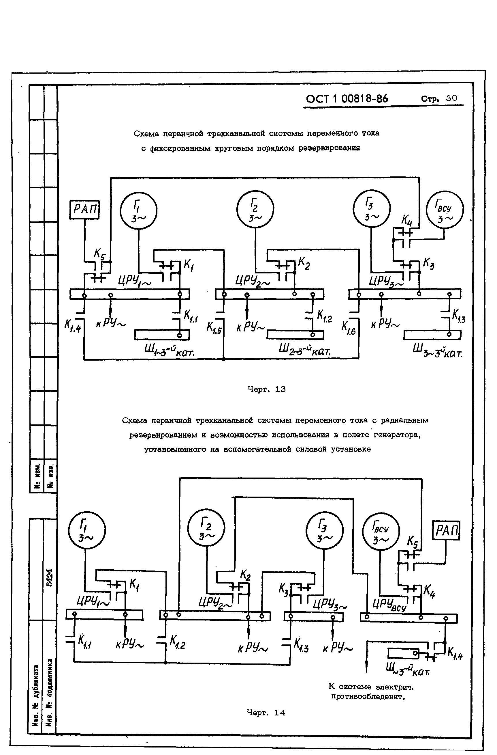
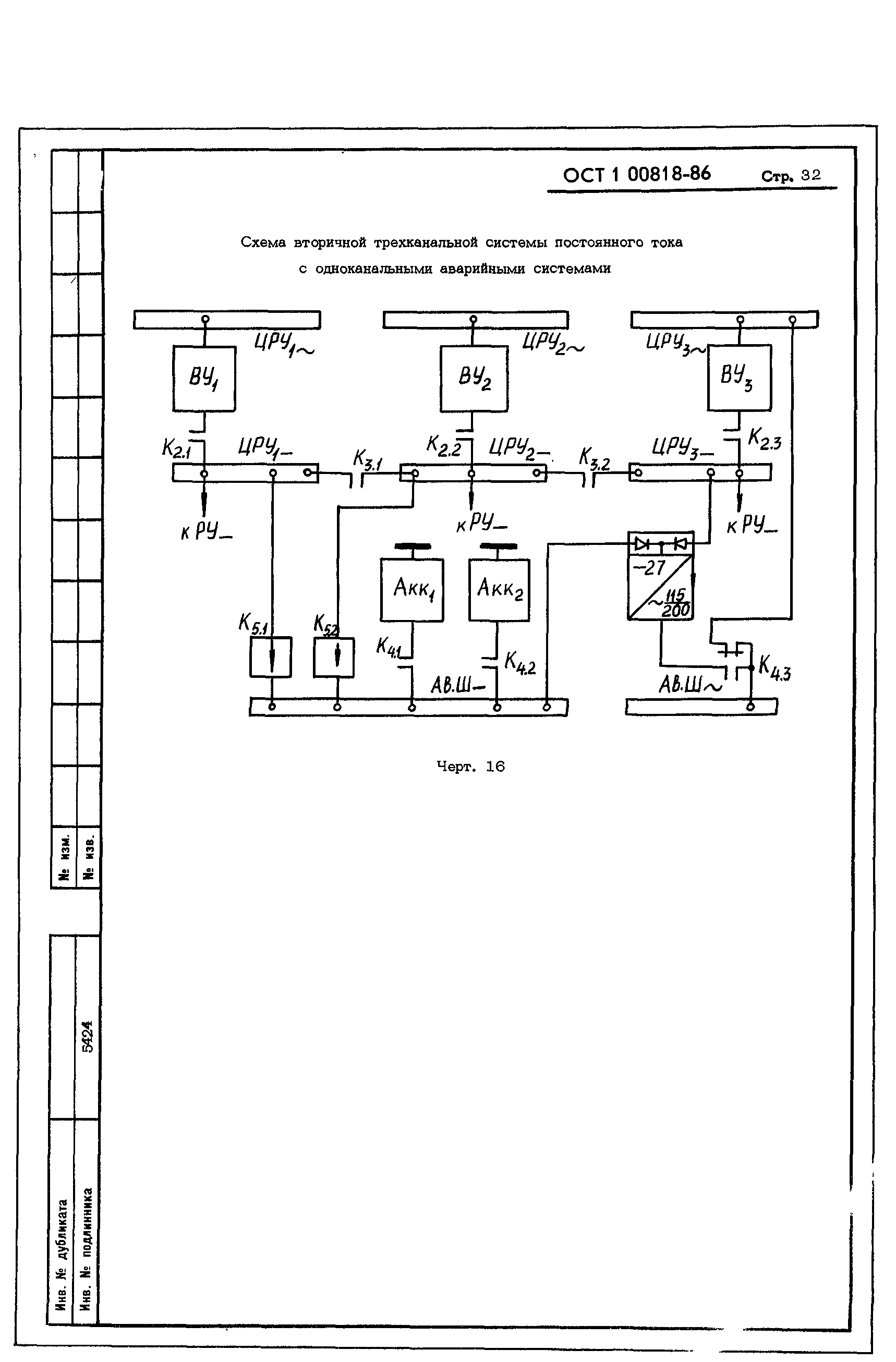
| Оглавление: | 1. Общие требования к структуре систем электроснабжения 2. Общие требования к системам распределения электроэнергии 3. Общие требования к органам управления и индикации систем электроснабжения 4. Общие требования к аппаратуре первичных и вторичных систем генерирования 5. Характеристики аппаратуры первичных источников электроэнергии Приложение 1 (рекомендуемое). Схемы типовых систем электроснабжения самолетов и вертолетов Приложение 2 (справочное). Классификация самолетов и вертолетов |
| Утверждён: | 18.02.1986 Министерство (Ministry 298-06) |
| Заменяет собой: |
|
| Нормативные ссылки: |






































