Скачать Типовой проект 902-2-410.86 Альбом III. Часть II. Нестандартизированное оборудование (из ТП 902-2-409.86)Дата актуализации: 01.01.2021
|
| Обозначение: | Типовой проект 902-2-410.86 |
| Обозначение англ: | 902-2-410.86 |
| Статус: | не определен законодательством |
| Название рус.: | Альбом III. Часть II. Нестандартизированное оборудование (из ТП 902-2-409.86) |
| Дата добавления в базу: | 01.09.2013 |
| Дата актуализации: | 01.01.2021 |
| Дата введения: | 01.08.1986 |
| Дата окончания срока действия: | 30.06.2003 |
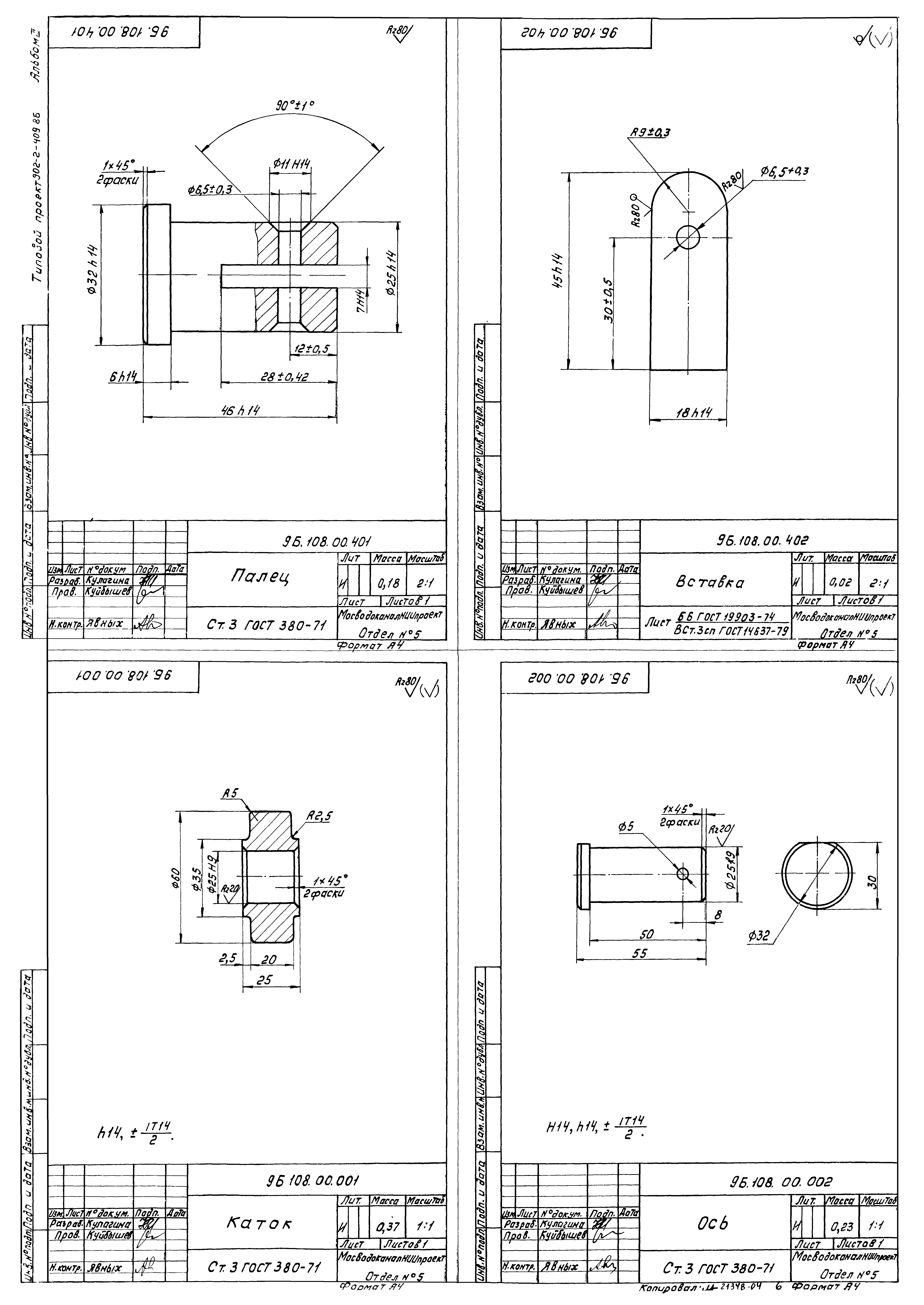
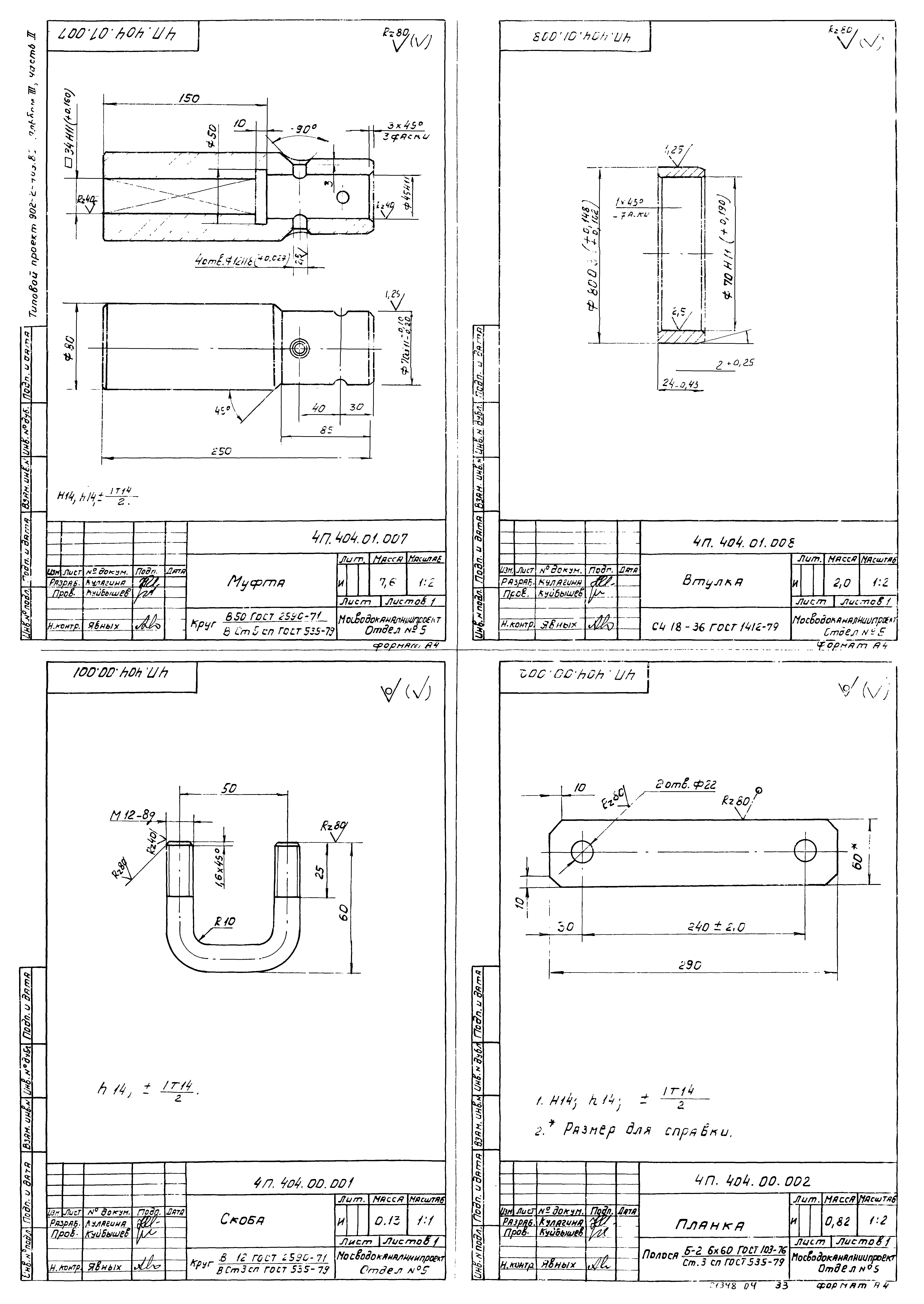
| Оглавление: | Часть 2 ТП-902-2-409.86 9Б.108.00.210 СБ Вилка ТП-902-2-409.86 9Б.108.00.210 Вилка. Спецификация ТП-902-2-409.86 9Б.108.00.211 Серьга ТП-902-2-409.86 9Б.108.00.201 Балка ТП-902-2-409.86 9Б.108.00.300 Траверса. Спецификация ТП-902-2-409.86 9Б.108.00.300 СБ Траверса ТП-902-2-409.86 9Б.108.00.301 Тяга ТП-902-2-409.86 9Б.108.00.302 Коромысло ТП-902-2-409.86 9Б.108.00.400 Палец. Спецификация ТП-902-2-409.86 9Б.108.00.400 СБ Палец ТП-902-2-409.86 9Б.108.00.401 Палец ТП-902-2-409.86 9Б.108.00.402 Вставка ТП-902-2-409.86 9Б.108.00.001 Каток ТП-902-2-409.86 9Б.108.00.002 Ось ТП-902-2-409.86 9Б.108.00.003 Ось ТП-902-2-409.86 9Б.108.00.004 Заглушка ТП-902-2-409.86 4И.558.00.000 Лоток распределительный. Спецификация ТП-902-2-409.86 4И.558.00.100 Корпус. Спецификация ТП-902-2-409.86 4И.558.00.000 СБ Лоток распределительный ТП-902-2-409.86 4И.558.00.100 СБ Корпус ТП-902-2-409.86 4И.558.00.101 Труба ТП-902-2-409.86 4И.558.00.102 Патрубок ТП-902-2-409.86 4И.558.00.103 Патрубок ТП-902-2-409.86 9Б.109.00.000 СБ Бункер для осадка ТП-902-2-409.86 9Б.109.00.000 Бункер для осадка. Спецификация ТП-902-2-409.86 9Б.109.01.000 СБ Бункер ТП-902-2-409.86 9Б.109.01.000 Бункер. Спецификация ТП-902-2-409.86 9Б.109.01.001 Балка ТП-902-2-409.86 9Б.109.01.002 Днище ТП-902-2-409.86 9Б.109.01.003 Плита ТП-902-2-409.86 9Б.109.01.004 Угольник ТП-902-2-409.86 9Б.109.01.004-01 Угольник ТП-902-2-409.86 9Б.109.01.005 Ребро ТП-902-2-409.86 9Б.109.01.006 Ребро ТП-902-2-409.86 9Б.109.01.007 Ребро ТП-902-2-409.86 9Б.109.01.007-01 Ребро ТП-902-2-409.86 9Б.109.01.008 Ребро ТП-902-2-409.86 9Б.109.01.009 Стенка ТП-902-2-409.86 9Б.109.02.000 Затвор секторный. Спецификация ТП-902-2-409.86 9Б.109.02.000 СБ Затвор секторный ТП-902-2-409.86 9Б.109.02.100 СБ Корпус ТП-902-2-409.86 9Б.109.02.100 Корпус. Спецификация ТП-902-2-409.86 9Б.109.02.101 Обойма ТП-902-2-409.86 9Б.109.02.102 Бобышка ТП-902-2-409.86 9Б.109.02.103 Стенка ТП-902-2-409.86 9Б.109.02.200 СБ Сектор ТП-902-2-409.86 9Б.109.02.200 Сектор. Спецификация ТП-902-2-409.86 9Б.109.02.201 Щека ТП-902-2-409.86 9Б.109.02.202 Щека ТП-902-2-409.86 9Б.109.02.203 Дно ТП-902-2-409.86 9Б.109.02.001 Груз ТП-902-2-409.86 9Б.109.02.002 Палец ТП-902-2-409.86 9Б.109.02.003 Пластина ТП-902-2-409.86 9Б.109.02.004 Пластина ТП-902-2-409.86 9Б.109.02.005 Прокладка ТП-902-2-409.86 9Б.109.02.006 Прокладка ТП-902-2-409.86 9Б.109.02.007 Прокладка ТП-902-2-409.86 9Б.109.02.008 Рычаг ТП-902-2-409.86 4П.404.00.000 СБ Колонка для управления задвижкой Ду200 ТП-902-2-409.86 4П.404.00.000 Колонка для управления задвижкой Ду200. Спецификация ТП-902-2-409.86 4П.404.01.000 Колонка. Спецификация ТП-902-2-409.86 4П.404.01.100 Корпус колонки. Спецификация ТП-902-2-409.86 4П.404.01.000 СБ Колонка ТП-902-2-409.86 4П.404.01.100 СБ Корпус колонки ТП-902-2-409.86 4П.404.01.101 Стакан ТП-902-2-409.86 4П.404.01.102 Заглушка ТП-902-2-409.86 4П.404.01.103 Бобышка ТП-902-2-409.86 4П.404.01.104 Труба ТП-902-2-409.86 4П.404.01.105 Фланец ТП-902-2-409.86 4П.404.02.000 Муфта. Спецификация ТП-902-2-409.86 4П.404.02.000 СБ Муфта ТП-902-2-409.86 4П.404.02.001 Фланец ТП-902-2-409.86 4П.404.03.000 Штанга. Спецификация ТП-902-2-409.86 4П.404.03.000 СБ Штанга ТП-902-2-409.86 4П.404.03.001 Хвостовик ТП-902-2-409.86 4П.404.03.002 Фланец ТП-902-2-409.86 4П.404.03.003 Труба ТП-902-2-409.86 4П.404.01.001 Втулка ТП-902-2-409.86 4П.404.01.002 Шпиндель ТП-902-2-409.86 4П.404.01.003 Указатель открытия ТП-902-2-409.86 4П.404.01.004 Рамка указателя ТП-902-2-409.86 4П.404.01.005 Стрелка ТП-902-2-409.86 4П.404.01.006 Прокладка регулировочная ТП-902-2-409.86 4П.404.01.007 Муфта ТП-902-2-409.86 4П.404.01.008 Втулка ТП-902-2-409.86 4П.404.00.001 Скоба ТП-902-2-409.86 4П.404.00.002 Планка ТП-902-2-409.86 9А.579.000 СБ Контейнер для мазута ТП-902-2-409.86 9А.579.000 Контейнер для мазута. Спецификация ТП-902-2-409.86 9А.579.100 Корпус. Спецификация ТП-902-2-409.86 9А.579.100 СБ Корпус ТП-902-2-409.86 9А.579.101 Обечайка ТП-902-2-409.86 9А.579.102 Конус ТП-902-2-409.86 9А.579.103 Патрубок ТП-902-2-409.86 9А.579.104 Скоба |
| Разработан: | МосводоканалНИИпроект |
| Утверждён: | 15.01.1986 Главстройпроект Госстроя СССР (АЧ-4) |




































